архітектор Опубліковано: 4 травня 2010 Автор Поділитись Опубліковано: 4 травня 2010 Так понимаю песчано-щебневая подушка для устранения подсоса капилярной влаги. против подсоса капиллярной влаги обычно используется рубероид, укладывается по верхнему обрезу фундамента, поверх бетона. А песчано-щебневая подушка служит для упрочнения основания и придания ему равномерной несущей способости. Можно ли применить просто щебень фракции 5-20 и какой толщины? в зависимости от нагрузки от здания и типа грунтов. Кроме пленки пвх, дополнительная гидроизоляция не требуется? И если только пленку, то края запускать на стены или обрезать по примыканию пола и стены? запускать По второму вопросу так: есть фундамент на 800мм выше уровня земли, далее стены. Пол в доме на уровне верхней части фундамента. Буду утеплять цоколь ЭППС по технологии которую Вы описывали. Достаточно ли мне утеплить только часть фундамента которая над землей или нужно раскопать фундамент по наружке на определенную глубину и утеплить ниже уровня земли? Незнаю, какая ситуация на самом деле, но я бы сделал подсыпку, дав возможность фундаменту сидеть на уровне нормативной глубины промерзания. 1 Посилання на коментар Поділитися на інших сайтах More sharing options...
panken2006 Опубліковано: 5 травня 2010 Поділитись Опубліковано: 5 травня 2010 Уважаемый архитектор! Выскажите свое авторитетное мнение по проекту: www.stroimdom.com.ua/forum/showthread.php?t=34605 и расположению на участке. Возможно ли реализовать этот проект в газобетоне и какие могут быть сложности? Спасибо. Посилання на коментар Поділитися на інших сайтах More sharing options...
vip Опубліковано: 5 травня 2010 Поділитись Опубліковано: 5 травня 2010 Олег, при возведении надземной части фундамента из красного кирпича марки 125, достаточно ли гидроизоляции из рубероида внутренней его части при дальнейшей засыпке землей для поднятия уровня пола? (или необходимо применение мастик, наплавляемых рубероидов и пр.) Посилання на коментар Поділитися на інших сайтах More sharing options...
архітектор Опубліковано: 5 травня 2010 Автор Поділитись Опубліковано: 5 травня 2010 Олег, при возведении надземной части фундамента из красного кирпича марки 125, достаточно ли гидроизоляции из рубероида внутренней его части при дальнейшей засыпке землей для поднятия уровня пола? (или необходимо применение мастик, наплавляемых рубероидов и пр.) А к чему такая экономия? Сделали бы из бетона, небыло бы вопросов. А так, кирпичу может и не страшно, но раствору, на который он положен - страшно. Под вертикально уложенный рубероид, снизу и в стыки будет попадать влага и потихоньку, год за годом разрушать раствор. 1 Посилання на коментар Поділитися на інших сайтах More sharing options...
архітектор Опубліковано: 5 травня 2010 Автор Поділитись Опубліковано: 5 травня 2010 Уважаемый архитектор! Выскажите свое авторитетное мнение по проекту: www.stroimdom.com.ua/forum/showthread.php?t=34605 и расположению на участке. Возможно ли реализовать этот проект в газобетоне и какие могут быть сложности? Спасибо. Сложности в том, что этот пример Ваш - сруб, и сделан с учетом перевязки венцов брусьев. У газобетонных стен другой конструктив. И эти треугольные в плане формы у дома, на которые будет стекать вода с крыши - не самое лучшее решение. Посилання на коментар Поділитися на інших сайтах More sharing options...
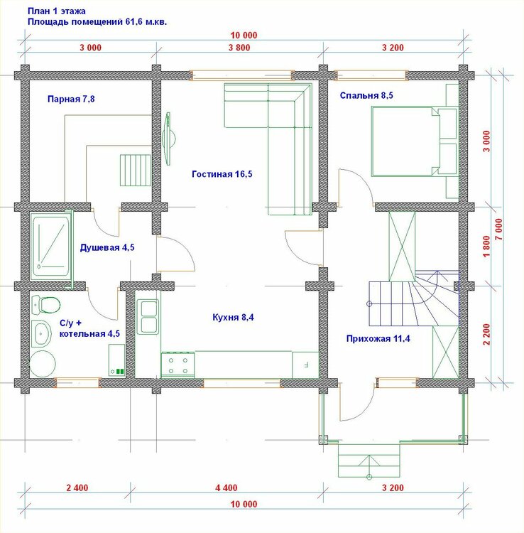
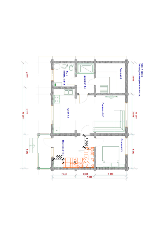
киевлянка Опубліковано: 7 травня 2010 Поділитись Опубліковано: 7 травня 2010 Олег, не могли бы Вы посоветовать, можно ли перенести лестницу ближе к боковой стене в данном проекте и нужно ли? Прилагаю планы этажей (план 1-го этажа в двух вариантах, второй ("от руки") планируем использовать). На фото лестницы: смущает, что лестница начинается фактически из середины тамбура. Посилання на коментар Поділитися на інших сайтах More sharing options...
apxitektop.s Опубліковано: 7 травня 2010 Поділитись Опубліковано: 7 травня 2010 (змінено) Олег, не могли бы Вы посоветовать, можно ли перенести лестницу ближе к боковой стене в данном проекте и нужно ли? Прилагаю планы этажей (план 1-го этажа в двух вариантах, второй ("от руки") планируем использовать). На фото лестницы: смущает, что лестница начинается фактически из середины тамбура. рассчитать легко пользуясь стандартным и проверенным правилом - ширина проступи - 300мм , высота подступенка - 150мм, но в случае коттеджного строительства - возможно и меньше, но опять же - меньше это не удобно, ведь вам же жить в этом доме; габариты помещения известны, ширина площадки не менее ширины марша. Заметил, что у вас окна спальни выходят на север, это не желательно, ведь, когда вы просыпаетесь с солнышком - так значительно лучше =) , старайтесь окно спальни обратить на восход. А лестницу можно так разместить : Змінено 7 травня 2010 користувачем apxitektop.s 1 Посилання на коментар Поділитися на інших сайтах More sharing options...
архітектор Опубліковано: 7 травня 2010 Автор Поділитись Опубліковано: 7 травня 2010 Олег, не могли бы Вы посоветовать, можно ли перенести лестницу ближе к боковой стене в данном проекте и нужно ли? Прилагаю планы этажей (план 1-го этажа в двух вариантах, второй ("от руки") планируем использовать). На фото лестницы: смущает, что лестница начинается фактически из середины тамбура. по разрезу видно, что высота до крыши в месте, где лестница выходит на второй этаж очень низкая, порядка 1,6 м. (это в Вашем варианте) Лестницу не обязательно делать со ступеньками 300*150 мм, для коттеджа, или бани могут быть более крутые лестницы, которые занимают меньше места на в помещении. 1 Посилання на коментар Поділитися на інших сайтах More sharing options...
apxitektop.s Опубліковано: 7 травня 2010 Поділитись Опубліковано: 7 травня 2010 по разрезу видно, что высота до крыши в месте, где лестница выходит на второй этаж очень низкая, порядка 1,6 м. (это в Вашем варианте) Лестницу не обязательно делать со ступеньками 300*150 мм, для коттеджа, или бани могут быть более крутые лестницы, которые занимают меньше места на в помещении. 1) касательно разреза, вы не совсем внимательно его смотрели, на месте лестницы идет другая конфигурация крыши - ну это насколько понял я и как логически должно быть =), добавил скриншот с акцентом в том месте 2) Лестницу надо проектировать относительно энергономики, а принятый стандарт это то, что я описал выше, хотя возможны и другие размеры для коттеджа, о чем я и писал тоже.... Посилання на коментар Поділитися на інших сайтах More sharing options...
архітектор Опубліковано: 7 травня 2010 Автор Поділитись Опубліковано: 7 травня 2010 По поводу лестницы. Косоур (тетива) не красиво сопрягается с перекрытием Чему удивлятся, это стандартная модель Архикад Стейрмейкер. Не надо воспринимать буквально, то что выдает программа. Ведь программа не строит дома, а лишь работает со стандартными (внутренними) элементами. В реальности все это может выглядеть несколькими способами. Только тут уже программа не поможет, нужны реальные узлы. О, интересно, сообщения исчезают, неуспев повисеть и несколько минут. Кому это выгодно? Так-так-так... Кажется я знаю в чем дело. Посилання на коментар Поділитися на інших сайтах More sharing options...
Мирт Опубліковано: 7 травня 2010 Поділитись Опубліковано: 7 травня 2010 О, интересно, сообщения исчезают, неуспев повисеть и несколько минут. Кому это выгодно? Так-так-так... Кажется я знаю в чем дело. На самом деле написал, а потом подумал зачем засорять эту личную тему архитектора, и удалил. но не успел Посилання на коментар Поділитися на інших сайтах More sharing options...
ДОКС Опубліковано: 7 травня 2010 Поділитись Опубліковано: 7 травня 2010 На самом деле написал, а потом подумал зачем засорять эту личную тему архитектора, и удалил. но не успел Прошу пардона... а чё вообще тогда было писать?...;) архитектор, всегда пишет по-уму... и я часто читаю его ветку... По поводу лестницы "киевлянки" - моё мнение: необходимо для начала проработать до конца планы помещений и всю архитектуру здания. При данных планах, будет работать лестница с забежными ступенями с фиксированной областью внизу... Посилання на коментар Поділитися на інших сайтах More sharing options...
Мирт Опубліковано: 7 травня 2010 Поділитись Опубліковано: 7 травня 2010 (змінено) Прошу пардона... а чё вообще тогда было писать?...;) Увидел этот бредовый узел, и написал. Сейчас присмотрелся под 5,6 ступенью считать от перекрытия вниз высота тетивы ну просто ни какая.Может здесь шкаф вместо стойки тогда нормально . Вобщем это недостатки программы. Лестница конечно сложная в исполнении. Змінено 7 травня 2010 користувачем Мирт Посилання на коментар Поділитися на інших сайтах More sharing options...
vip Опубліковано: 7 травня 2010 Поділитись Опубліковано: 7 травня 2010 А к чему такая экономия? Сделали бы из бетона, небыло бы вопросов. А так, кирпичу может и не страшно, но раствору, на который он положен - страшно. Под вертикально уложенный рубероид, снизу и в стыки будет попадать влага и потихоньку, год за годом разрушать раствор. А гидроизоляция в виде мастики спасет ситуацию? Посилання на коментар Поділитися на інших сайтах More sharing options...
apxitektop.s Опубліковано: 7 травня 2010 Поділитись Опубліковано: 7 травня 2010 А гидроизоляция в виде мастики спасет ситуацию? это риск, потому как есть еще такое понятие как морозостойкость кирпича, впрочем как и других материалов, то-есть цикл замерзания-размерзания в зимний период, конечно же более предпочтителен бетон для этих целей, опять же, дабы советовать надо смотреть детальные чертежи, ибо скорей всего вы не утепляете фундамент объекта, а это чревато образованием точки росы в вашем кирпиче на границе тёплого и холодного, а эта влага образуемая из-за точки росы будет замерзать и и разрушать ваш кирпич - вне зависимости от того гидроизолируете вы его или нет.... так что та часть условно называемая "цоколем" - должна быть бетонной, иметь вертикальную и горизонтальную гидроизоляцию, а также быть утепленной, вглубь фундамента, но конечно же не на всю глубину... 1 Посилання на коментар Поділитися на інших сайтах More sharing options...
vip Опубліковано: 8 травня 2010 Поділитись Опубліковано: 8 травня 2010 это риск, потому как есть еще такое понятие как морозостойкость кирпича, впрочем как и других материалов, то-есть цикл замерзания-размерзания в зимний период, конечно же более предпочтителен бетон для этих целей, опять же, дабы советовать надо смотреть детальные чертежи, ибо скорей всего вы не утепляете фундамент объекта, а это чревато образованием точки росы в вашем кирпиче на границе тёплого и холодного, а эта влага образуемая из-за точки росы будет замерзать и и разрушать ваш кирпич - вне зависимости от того гидроизолируете вы его или нет.... так что та часть условно называемая "цоколем" - должна быть бетонной, иметь вертикальную и горизонтальную гидроизоляцию, а также быть утепленной, вглубь фундамента, но конечно же не на всю глубину... Фундамент обязательно утепляется. Думаю массив кирпича будет находится при температуре не ниже 0. Плюс марка кирпича М125, полнотелый. Посилання на коментар Поділитися на інших сайтах More sharing options...
Lena457 Опубліковано: 8 травня 2010 Поділитись Опубліковано: 8 травня 2010 Прокоментируйте, пожалуйста наш проект.И скажите чем чревато в цокольном этаже гараж и погреб Посилання на коментар Поділитися на інших сайтах More sharing options...
apxitektop.s Опубліковано: 8 травня 2010 Поділитись Опубліковано: 8 травня 2010 Я не вижу на фасадах цокольного этажа, цокольный этаж - более чем на половину своей высоты - выступает над уровнем земли...У вас не цокольный этаж, а подвал. Представленная планировка имеет право на жизнь и наличие гаража и погреба, если там есть отдельная самостоятельная вентиляция ничем не чревата, только под топочную рекомендуется 8м2, а не 6 как у вас, но это ньюансы... Посилання на коментар Поділитися на інших сайтах More sharing options...
apxitektop.s Опубліковано: 8 травня 2010 Поділитись Опубліковано: 8 травня 2010 Фундамент обязательно утепляется. Думаю массив кирпича будет находится при температуре не ниже 0. Плюс марка кирпича М125, полнотелый. теплотехнический расчет нужен, не все так позитивно, если без расчета, ну обмазочная гидроизоляция нужна в любом случае... Теплотехнический расчет в онлайн режиме можно осуществить здесь dmitriy.chiginskiy.ru/teremok/online/ 1 Посилання на коментар Поділитися на інших сайтах More sharing options...
Lena457 Опубліковано: 8 травня 2010 Поділитись Опубліковано: 8 травня 2010 Я не вижу на фасадах цокольного этажа, цокольный этаж - более чем на половину своей высоты - выступает над уровнем земли...У вас не цокольный этаж, а подвал. Представленная планировка имеет право на жизнь и наличие гаража и погреба, если там есть отдельная самостоятельная вентиляция ничем не чревата, только под топочную рекомендуется 8м2, а не 6 как у вас, но это ньюансы... Спасибо за быстрый ответ! В планах цокольный этаж выступает где то на 1 метр над уровнем земли. Я слыхала,что выхлопные газы из гаража могут попасть в дом,а погреб под домом может быть теплым(например для картошки).Это конечно отдельное мнение некоторых людей,но сомнения подкрались. И хотелось бы узнать все трудности такого проекта в процесе стройки. Посилання на коментар Поділитися на інших сайтах More sharing options...
Falcon76 Опубліковано: 8 травня 2010 Поділитись Опубліковано: 8 травня 2010 Уважаемый Архитектор! Прокомментируйте, пожалуйста, планировку одноэтажного дома www.stroimdom.com.ua/forum/showthread.php?p=542828#post542828 Спасибо. Посилання на коментар Поділитися на інших сайтах More sharing options...
архітектор Опубліковано: 8 травня 2010 Автор Поділитись Опубліковано: 8 травня 2010 Фундамент обязательно утепляется. Думаю массив кирпича будет находится при температуре не ниже 0. Плюс марка кирпича М125, полнотелый. Я не совсем понимаю - Вы зарабатываете деньги, вкладываете в строительство дома, причем поэтапно. В итоге, сумма вложений, думаю, плучится немаленькая. Вопрос - при таком подходе к фундаменту, базису дома, готовы ли Вы тратить деньги на его ремонт еще до полного окончания стройки? Почему не сделать как нужно, по правилам, нормам, не изобретая велосипед и сталкиваясь с неожиданными проблемами в будущем? Посилання на коментар Поділитися на інших сайтах More sharing options...
архітектор Опубліковано: 8 травня 2010 Автор Поділитись Опубліковано: 8 травня 2010 Прокоментируйте, пожалуйста наш проект.И скажите чем чревато в цокольном этаже гараж и погреб по картинкам с изображением дома и планов - мне такая архитектура не импонирует, в целом. Дом должен быть пропорциональным внешне - крыша над эркером, домом, входной группой, размеры и форма окон - я не говорю о "золотом сечении", все равно в этом случае его никто не вычислит. Но пропорционирование - залог гармоничного дома. Тут декор не поможет. Не нравятся трапецевидные комнаты в том случае, когда их можно сделать правильной формы. По цоколю - для того, чтобы определиться - строить его или нет, нужно оперировать фактами - данными геологических изысканий, необходимостью помещений, расположеных ниже уровня земли, возможностями конструкций, плюс строить профессионально - тогда проблем не будет. А то вот сегодня видел - сделали цоколь, обложили дорогущей рулонной гидроизоляцией с пупырышками, а швы не загерметизировали, даже не проклеили, просто притулили с небольшим нахлестом. Тем самым сведя эффект от гидроизоляции практически к "нулю". Посилання на коментар Поділитися на інших сайтах More sharing options...
архітектор Опубліковано: 8 травня 2010 Автор Поділитись Опубліковано: 8 травня 2010 Уважаемый Архитектор! Прокомментируйте, пожалуйста, планировку одноэтажного дома www.stroimdom.com.ua/forum/showthread.php?p=542828#post542828 Спасибо. Нерациональная планировка, не знаю, кто ее делал, но сильно накручено, много углов, переломов стен. Это минус в отделке и подборе мебели. Ненужное удорожание. Большие габариты, маленький, непропорциональны эркер. Это больше проявится, если сделать фасады. Посилання на коментар Поділитися на інших сайтах More sharing options...
Falcon76 Опубліковано: 9 травня 2010 Поділитись Опубліковано: 9 травня 2010 Спасибо за ответ! Ценю Ваше мнение. Хотелось бы уточнить: нерациональная планировка это имеется в виду большие размеры помещений или все-таки их расположение, и что по Вашему мнению можно было бы изменить или хотя бы в каком направлении поработать над оптимизацией планировки. Также хочу дождаться фасадов, прежде чем делать окончательные выводы. Знаю только, что крыша предполагается в стиле "шале". Посилання на коментар Поділитися на інших сайтах More sharing options...
Рекомендовані повідомлення
Створіть акаунт або увійдіть у нього для коментування
Ви маєте бути користувачем, щоб залишити коментар
Створити акаунт
Зареєструйтеся для отримання акаунта. Це просто!
Зареєструвати акаунтУвійти
Вже зареєстровані? Увійдіть тут.
Увійти зараз