bunak Опубліковано: 23 травня 2023 Поділитись Опубліковано: 23 травня 2023 (змінено) Доброго дня! Підкажіть будь ласка. Хочу зробити вуличні сходи із бетону, висота 1.5 метра. Нішу під сходами хочу закрити - (бокова стіна сходів) , цю стіну облицювати плиткою. Є залишки цегли, з яких я хотів би викласти стіни під сходами. І ось цю стіну й облицювати. Чи доречне викласти стіну із цегли з зору раціональності? Орієнтовно розумію наступний порядок робіт: залити фундаменти під першу сходинку та стінку, викласти з цегли стінку під сходами, залити сходи. Як простіше зробити опалубку для сходинок, засипати між викладеними стінами? Чи робити опалубку яка залишиться всередині? Як зробити щоб облицювання не відпадала від цегляної стінки? Пишуть що цегла може натягувати вологу, а від цього начебто можлива відпадання облицювання. Дякую! Змінено 23 травня 2023 користувачем bunak Посилання на коментар Поділитися на інших сайтах More sharing options...
архітектор Опубліковано: 25 травня 2023 Автор Поділитись Опубліковано: 25 травня 2023 В 23.05.2023 в 10:11, bunak сказал: Доброго дня! Підкажіть будь ласка. Хочу зробити вуличні сходи із бетону, висота 1.5 метра. Нішу під сходами хочу закрити - (бокова стіна сходів) , цю стіну облицювати плиткою. Є залишки цегли, з яких я хотів би викласти стіни під сходами. І ось цю стіну й облицювати. Чи доречне викласти стіну із цегли з зору раціональності? Орієнтовно розумію наступний порядок робіт: залити фундаменти під першу сходинку та стінку, викласти з цегли стінку під сходами, залити сходи. Як простіше зробити опалубку для сходинок, засипати між викладеними стінами? Чи робити опалубку яка залишиться всередині? Як зробити щоб облицювання не відпадала від цегляної стінки? Пишуть що цегла може натягувати вологу, а від цього начебто можлива відпадання облицювання. Дякую! так, цегла може і буде втягувати вологу, через морози взимку і весною - лущитиметься. По правильному такі сходи робляться так - заливається монолітний фундамент під першу сходинку та монолітна (відносно тонка) бічна стіна сходів, всередину насипається пісок, трамбується і по ньому відливається східцевий марш. Якщо робити не так, як книжка пише - можна витратити час та матеріали, але зі якись час до цього хоббі треба буде знову повернутися через об'єктивні причини. Крім того - якісно відлита бетонна стіна під сходами не потребуватиме облицювання, не лущитиметься (якщо бетон якісний). Ще один варіант - дере'яні сходи. Послужать якийсь час, якщо буде провітрювання і обробка від гниття. Або металеві сходи - значно економніше по затратах, порівняно з бетонним чи навіть типу цегляним 1 Посилання на коментар Поділитися на інших сайтах More sharing options...
vadimv Опубліковано: 26 травня 2023 Поділитись Опубліковано: 26 травня 2023 (змінено) 10 годин тому, архітектор сказав: Ще один варіант - дере'яні сходи. Послужать якийсь час, якщо буде провітрювання і обробка від гниття. Або металеві сходи - значно економніше по затратах, порівняно з бетонним чи навіть типу цегляним Ще можна пошукати на розбірках готовий залізобетонний сходовий марш і встановити на місце. Якраз 10 сходинок. Змінено 26 травня 2023 користувачем vadimv 3 Посилання на коментар Поділитися на інших сайтах More sharing options...
irina1969 Опубліковано: 26 травня 2023 Поділитись Опубліковано: 26 травня 2023 1 годину тому, vadimv сказав: Ще можна пошукати на розбірках готовий залізобетонний сходовий марш і встановити на місце. Якраз 10 сходинок. у мене такі сходові марші і в домі, і на ділянці ( перепади висот ), потім все це обшили деревом, дуже зручні в користуванні бо прораховані спеціалістами...бетон там відмінний 👍на вулиці можна було і не обшивати, але ми робили одне ціле з доріжками 1 Посилання на коментар Поділитися на інших сайтах More sharing options...
архітектор Опубліковано: 27 червня 2023 Автор Поділитись Опубліковано: 27 червня 2023 за другий десяток років, скільки існує ця тема на форумі, консультуючи людей з питань забудови знову виходжу на ті самі питання. Люди, бажаючи уявити свій майбутній будинок - надихаються емоціями і картинками, навіюванням і самонавіюванням, величезною купою інформаційних стереотипів. І майже ніхто не починає роботу з проектом з чисто прагматичних понять: скільки коштуватиме (собівартість) побудувати цю ідею? (існує стійка думка, що після кризи 2008 року будівельники працюватимуть за безцінь, потім був 2015 рік з тими самими очікуваннями дармової робочої сили, не став виключенням і 2023 рік) що матеріали дасть кум задешево, що побудує фірма, де працює друг. Ці всі фактори є необєктивними. Практика підтвердила, що які б не були глибокі потрясіння, якісні і надійні будівельники не працюють за безцінь. Про кумів - через півроку після початку постачань будматеріалів від родичів на об'єкт виявилося, що по багатьох позиціях дешевше і швидше було купити у незнайомих людей, бо так склалася обстановка на ринку, а фірма друга - це бізнес, мета якого приносити прибуток і платити будівельникам стільки, скільки їх влаштовує, а не кидати людей, щоб за будь-яку ціну пробити дно. Що низька ціна - це мінус якісні матеріали, мінус витримання технологій, там де це неможливо зрозуміти чи проконтролювати. Отже, пропоную це відео з простим прикладом - тераса, площадка 3*4 метри, покрита деревом (сосна, модрина, термодерево чи ДПК), на дерев'яному каркасі, на бетонному стовбчатому фундаменті. Не тільки про покриття, яке всі бачать, але і про зворотню, невидиму частину роботи і кошторису. Аналогічно перед тим, як генерувати проект будинку - варто так само пропускатти його через сито оцінки вартості, а не тільки - подобається-не подобається. 1 Посилання на коментар Поділитися на інших сайтах More sharing options...
архітектор Опубліковано: 13 серпня 2023 Автор Поділитись Опубліковано: 13 серпня 2023 Пропоную не дивитися це відео з наступних причин: - вам не хочеться переключити увагу на тему створення - вам не цікавий досвід інших людей - у вас немає бажання помріяти 1 Посилання на коментар Поділитися на інших сайтах More sharing options...
gid_8462 Опубліковано: 19 серпня 2023 Поділитись Опубліковано: 19 серпня 2023 (змінено) Так і було. Середній клас, що тільки народжувався, почав покидати багатоповерхівки. Досвіду будівництва заміського житла не мали ні архітектори, ні замовники. І стали проростати на невеликих ділянках палаци-башти в три поверхи + підвал. На перший поверх потрібно було піднятись на висоту 1,5 - 2 м величезними парадними сходами. Поступово, з набиванням багатьох ґуль, почав приходити досвід. Дякую, що ділитесь своїм. Змінено 19 серпня 2023 користувачем gid_8462 стилістика 3 Посилання на коментар Поділитися на інших сайтах More sharing options...
архітектор Опубліковано: 20 серпня 2023 Автор Поділитись Опубліковано: 20 серпня 2023 В 19.08.2023 в 18:56, gid_8462 сказал: Поступово, з набиванням багатьох ґуль, почав приходити досвід. Є можливість зібрати ще досвіду. Наші сусіди поляки цього року дозволили будувати будинки 70 м2 площі забудови за спрощеною процедурою і навіть створили базу проектів, які можна скачати. Звичайно, є багато але, будинок має бути збудований не на продаж, має бути призначений керівник будівництва і вестися будівельний журнал і взагалі треба детально вивчати що має, а що не має, бо польські порядки будівництва не такі як у нас. Новина тут: Цитата Будинки без дозволу - без обмеження площі. Ми полегшуємо полякам будівництво будинків 19 серпня 2023 р Сейм завершив роботу над дерегуляцією будівельного закону, який вводить спрощення у будівництві будинків понад 70 м2 площі забудови. Цього року поляки зможуть скористатися безкоштовними проектами будинків площею 120, 150 та 180 м2. Ефективне будівництво одноквартирних будинків для власних потреб, будинків із забудованою площею понад 70 м2 без дозволу на будівництво – це найважливіші цілі поправки до закону про будівництво, прийнятої 17 серпня Сеймом. З 3 січня 2022 року поляки можуть будувати будинок до 70 м2 за спрощеною процедурою: на основі спрощеної заяви, без обов’язку призначення керівника будівництва та ведення будівельного журналу. За результатами минулорічного конкурсу можна безкоштовно скористатися 72 проектами цілорічних будинків до 70 м2, а завдяки студентському конкурсу – 11 ескізними проектами рекреаційних будинків до 70 м2. заряд. Базу безкоштовних проектів можна знайти на сайті Головного управління архбудконтролю (ГУНБ). Наразі їх завантажили майже 62 000 разів. разів. Зараз ми розширюємо каталог будівель, звільнених від обов’язку отримання дозволу на будівництво. Він включатиме напр. односімейні будинки, площа забудови яких перевищує 70 м2. На практиці це означає, що будівництво такого будинку можна починати практично відразу після відправки простого повідомлення в офіс і повідомлення будівельного нагляду про дату початку будівельних робіт. – каже міністр розвитку та технологій Вальдемар Буда. Змінені положення виключають можливість заперечення органу управління архітектури та будівництва щодо повідомлення про будівництво такого будинку. Проте обов’язок призначення керівника будівництва та ведення будівельного журналу залишиться. Варіант будівництва на основі спрощеного повідомлення поширюється лише на окремо стоячі, не більше двох поверхових одноквартирних житлових будинків, зона впливу яких повністю розташована на ділянці або ділянках, на яких вони спроектовані. Такий будинок теж має будуватися для власних житлових потреб, а не для продажу чи здачі в оренду. У липні ц.р З ініціативи міністра Вальдемара Буди ГУНБ оголосило конкурс на безкоштовні проекти будинків площею 120, 150 та 180 м2. ГУНБ завершив прийом заяв на конкурс. На конкурс надійшло понад 80 робіт. До 5 вересня. триває оцінка поданих робіт. Безкоштовні проекти будинків будуть доступні пізніше цього року. Мене зацікавила ця база безкоштовних проектів, з якої вже було 62000 скачувань і я зайшов 62001. Отже - нічого безкоштовного в повному обсязі просто так не дають. З того що дають - такий проект у вигляді схеми плану (без розмірів) і картинок. Отже, площа забудови 69,85 м2, а площа двох поверхів 101,1 м2. І я б добре оцінив цей проект, як будинок розумної людини без понтів і порад від родичів, менталітет яких, нажаль, дуже міцно забетонований в срср. Гараж вбудоваий в будинок - спірне питання, не завжди він прямо так конче потрібен. Собівартість місця для зберігання авто може бути меншою, якщо для неї зробити навіс. Все решта - добре. Тамбур з шафкою для одягу при вході, шафа далі по напрямку руху в вітальню, три спальні на другому поверсі, зручні санвузли і окрема кладовка (може бути пральня). Малі звиси даху, що значно економить матеріали, наявність сонячних панелей - шкода ігнорувати сонячну енергію, ставити кондиціонери для охолодження, і бойлери для нагріву води, якщо навпаки сонцем можна і воду нагріти, і енергію виробити Посилання на коментар Поділитися на інших сайтах More sharing options...
архітектор Опубліковано: 20 серпня 2023 Автор Поділитись Опубліковано: 20 серпня 2023 Ще один польський проект - "мінімальний" - справді має багато можливостей. Площа забудови 69 м2, загальна площа 95 м2, три спальні, ніби виокремлена кухня на першому поверсі, звичайно, дуже маленькі дитячі спальні, але зате окремі, а можна і одну зробити. Досить круті сходи, відповідно невисокі стелі на обох поверхах. Досить розумно і як кажуть протягуй ноги по одежі. Краще менший будинок, готовий для життя, ніж недобуд на роки з великими амбіціями. В даному будинку монолітне перекриття, стіни з газобетону, добре утеплені, опалення - тепла підлога, рекуператор та механічна система вентиляції, тепловий насос і 20 см товщина зовнішнього утеплення стін. Взагалі розрахункам відповідності норм і енергозбереженню приділено дуже багато уваги. Порівняно з тим, про що говорять на будівництві в Україні у цих проектах - космічні технології. Розум і освіта, в усіх деталях, а не неуцтво, дикунство і невігластво, як у нас. Всім раджу скачати проект і замислитись, як космічно далеко ми в якості від польских проектів і наскільки у нас багато бажання зробити понти, глянцеву обгортку, під якою пустота 2 Посилання на коментар Поділитися на інших сайтах More sharing options...
DimaF Опубліковано: 21 серпня 2023 Поділитись Опубліковано: 21 серпня 2023 12 часов назад, архітектор сказал: як космічно далеко ми в якості від польских проектів Ми взагалі далеко від Польщи, бо на відміну від поляків, 20 років страдали дурнею.... Посилання на коментар Поділитися на інших сайтах More sharing options...
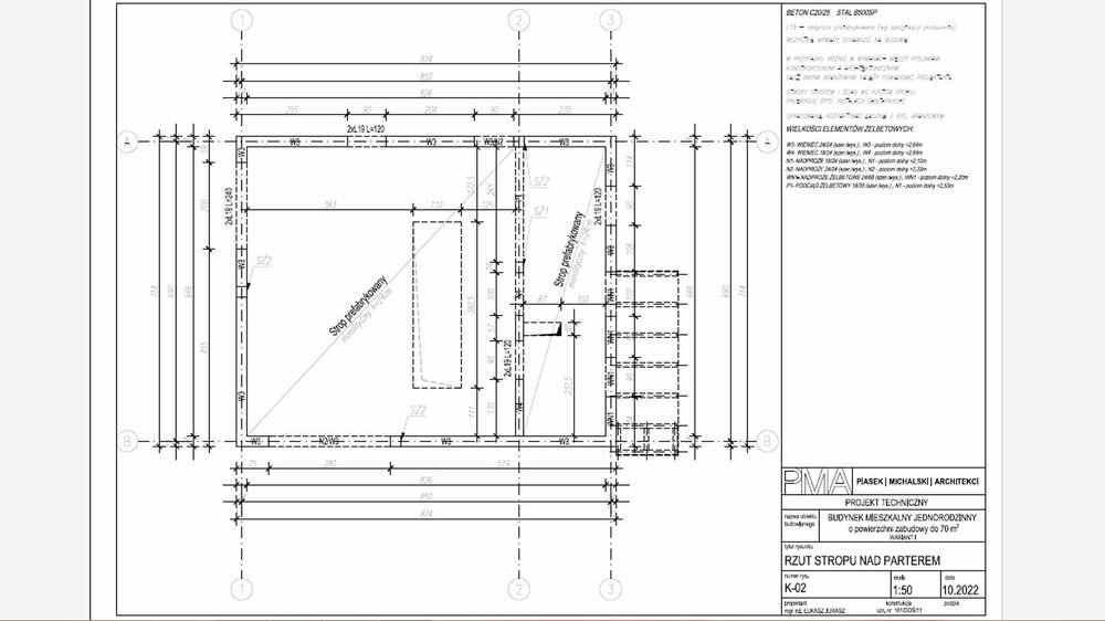
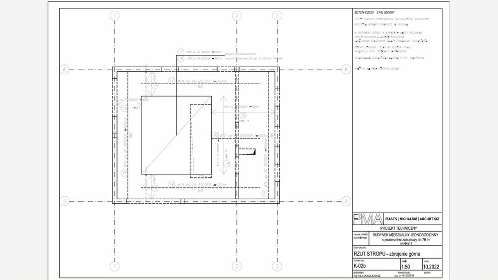
архітектор Опубліковано: 21 серпня 2023 Автор Поділитись Опубліковано: 21 серпня 2023 Польські проекти для безкоштовного завантаження складаються з п'яти томів кожен. В кожному томі 30-40 сторінок складної інформації, описова частина, посилання на десятки нормативних документів, складні для читання креслення, достатньо складні для розуміння специфікації. Для того, щоб правильно все прочитати і зрозуміти, потрібні хороші освічені фахівці на будівництві. З моєї практики - в Україні одиниці людей зможуть прочитати і зрозуміти такий проект. Кілька років тому покликали сусіди на своє будівництво. проблема була в тому, що вони купили типовий проект Архон, та не змогли прочитати деталі. Замовник за освітою вчитель історії, займається торгівлею, керівник будівництва, чи то народною мовою "прораб" - не відвідує будівництво, а робітники, яких він посватав - також не читають креслення. Їх бригадир, як виявилося - теж вчитель історії. Питання було в тому, що в польському проекті армування монолітного перекриття в один шар арматури і товщина 14 см. Оскільки ніхто не зміг прочитати це в проекті, замовили вдвічі більше арматури, зробили перекриття 20 см товщиною, змінилися також сходи, проектні в будинок вже не влазили. Нижче - сторінки з польського проекту, титульні аркуші, автори, їх офіційні дозволи на розробку проектів (у нас часто вказують фіктивних авторів, або розробники не мають підстав для розробки проектів (дипломи, сертифікати) зміст першого тому - нижче. Володіння першим томом, просто як паперовим чи електронним альбомом в більшотсі випадків нічого не дасть. Посадки будинку на ділянки немає, її треба зробити окремо і не завжди все влізе по протипожежних відстанях. Фундаменти не враховують рельєф ділянки і особливості грунтів. Специфікації і самі креслення передбачають, що той хто їх читає, може якщо не сам таке саме запроектувати, то принаймні має будівельну освіту і багаторічний досвід читання проектів і будівництва 5. OPINIA GEOTECHNICZNA ORAZ INFORMACJA O SPOSOBIE POSADOWIENIA OBIEKTU W projekcie przyjęto, że w miejscu posadowienia budynku znajdują się grunty nośne, a poziom lustra wody znajduje się poniżej poziomu posadowienia budynku, przyjęto proste warunki gruntowe, a obiekt zaliczono do I kategorii geotechnicznej. Posadowienie budynku na żelbetowych ławach fundamentowych, wykonanych na podkładzie z chudego betonu grubości 10 cm. UWAGA: Każdorazowo w celu określenia lokalnych warunków gruntowych dla przedmiotowej inwestycji należy wykonać dokumentację geotechniczną, konstrukcję fundamentów należy adaptować do lokalnych warunków gruntowych a także ustalać kategorię geotechniczną przez osoby do tego uprawnione. Опис зовнішньої стіни: Ściana nośna zewnętrzna – tynkowana SZ1, UC ≤ 0,12 W/m2K, UC(max)=0,20 W/m2K, gr. 44 cm tynk mineralny zewnętrzny styropian do zastosowań elewacyjnych gr. 20 cm (styropian λmax=0,032 W/mK, Bsmin=100) bloczek z betonu komórkowego na zaprawie klejowej do cienkich spoin (termicznej) gr. 24 cm tynk cementowo-wapienny kat. III gr. 1 cm Зовнішня несуча стіна - оштукатурена SZ1, UC ≤ 0,12 Вт/м2K, UC(max)=0,20 Вт/м2K, товщ. 44 см 1. зовнішня мінеральна штукатурка 2. пінополістирол для фасадних робіт. 20 см (пінопласт λmax=0,032 Вт/мК, Bsmin=100) 3. блок газобетонний з клейовим розчином для тонких (термічних) швів, товщ. 24 см 4. штукатурка цементно-вапняна III категорії товщ. 1 см Підлога на землі P1, UC ≤ 0,17 Вт/м2K, UC(max)=0,30 Вт/м2K, товщина 40 см 1. обробка підлоги в кімнатах: тамбур, туалет, кухня, кімната. технічна - керамічна плитка або кераміки, товщ. 2 см або оздоблення підлоги у вітальні, холі - підлогові панелі. 2 см або самовирівнююча стяжка. 1 см 2. стяжка чистова товщина 7 см 3. Плити полістирольні EPS 100 з вологозахисною плівкою, товщина. 3 см 4. твердий полістирол товщ. 12 см (λmax=0,031 Вт/мК) 5. руберойд термозварний на грунтовці 6. бетонна плита (бетон В20) товщ. 15 см 7. пісок ущільнений шарами товщ. 30 см 8. корінний ґрунт після зняття верхнього шару Цікаво порахувати вартість виконання за цією технологією стіни і підлоги по грунту з усіма вказаними шарами і людино-годинами робочого часу на доставку і виконання на ділянці всіх передбачених робіт. Думаю, тому і спальні по 8м2, бо краще зробити малу спальню якісно, ніж 25 м2 неякісно, як у нас звикли робити. Як у нас зазвичай? Покупець думає емоціями, тому а). має бути лед-підсвітка фасаду і красиве фото в оголошенні б). покупцю можна запропонувати каву, можна перед продажем посадити газон без поливу. І не відповідати прямо на питання, не говорити те, про що не питали. Якщо людина будує для себе, то 100% його обкрадуть будівельники. Бо задача будівельника а). проснутися, похмелитися б). вдіти шльопанці, вкрасти мішок цементу і лягти спати далі. А насправді - мало хто готує ділянку для прийому людей. Не робить туалет, бо це коштує грошей, не робить душ, бо нащо думати про побут будівельників, які а). бухають, б). крадуть, в) косячать. Також непотрібно платити освіченим людям, бо а). в Україні погана освіта і куплені дипломи. б). не боги горшки ліплять і Ной не був спеціалістом, а ковчег не потонув. В результаті замкнене коло - низька освіта, погані побутові умови, вимоги низької ціни, відсутність грамотного планування і управління, простої в роботі, перебої в постачанні якісних матеріалів, порушення технології, відсутність записів і фотофіксації - на виході ніхто ні за що не відповідає, змінилися 5-6 блигад, проект порушували, але ніхто не пам'ятає як і скільки. Чеки не складали, бо нащо себе нарвувати. Якщо ж скласти, то вийде дорожче за 1500 у.о. за м2, ну але то все робочі винуваті, треба було їх більше щемити а так виглядає інтегрований план першого поверху, де є і габаритні розміри (для посадки на ділянку), і фасадні розміри після оздоблення, і кладочні розміри для мулярів, і розміри стін для підрахунку витрат матеріалів, і розстановка меблів і сантехніки, розміри сходів, вікон, дверей 2 Посилання на коментар Поділитися на інших сайтах More sharing options...
архітектор Опубліковано: 21 серпня 2023 Автор Поділитись Опубліковано: 21 серпня 2023 Чотири сторінки креслень стосуються монолітного перекриття. Це якраз той набір креслень і рішень, які (як показує досвід) не читають ні замовники, ні будівельники в Україні. За всіх не скажу, але більшість приватних будівництв - це буде точно. Посилання на коментар Поділитися на інших сайтах More sharing options...
архітектор Опубліковано: 21 серпня 2023 Автор Поділитись Опубліковано: 21 серпня 2023 Дивно, що на дерев'яні конструкції даху всього лише одна сторінка креслення від конструктора і одна від архітектора, де показано водостоки та розміщення сонячних панелей на даху. Я б дуже здивувася, якби по цьому кресленню будь-хто з будь-яким досвідом запросто сам побачив де написано про кількість матеріалів, сам правильно замовив все що потрібно на пилорамі і пояснив що до чого при штабелюванні наступному монтажі на даху. Як кажуть в народі - "потім все зробили під себе", це коли простими словами пояснити - чому відрізняється те що побудували, від того, що мало бути за проектом. Посилання на коментар Поділитися на інших сайтах More sharing options...
gid_8462 Опубліковано: 21 серпня 2023 Поділитись Опубліковано: 21 серпня 2023 Дуже цікавий досвід наших західних сусідів. Актуальний для нас нині, а ще більше - в майбутньому. Дійсно, проєкти передбачають досить високий рівень фахівців, які мають читати креслення та слідувати їм. А в цьому якраз і проблема... Посилання на коментар Поділитися на інших сайтах More sharing options...
архітектор Опубліковано: 21 серпня 2023 Автор Поділитись Опубліковано: 21 серпня 2023 Доречі - цікаве і правильне рішення по оздобленню стін двома матеріалами. В польському проекті дерев'яні рейки натуральні на фасаді, та штукатурка по пінопласту товщиною 200 мм. Так от, під рейками інший тип утеплення стіни: декоративна рейка, під нею дерев'яна плита (можливо ОСБ), під нею два шари лат і контрлат, під ними - пароізоляція, під нею скловата 5 см, знову лати -10 см і між ними скловата 10 см, і вже під нею - газобетон. Думаю, собівартість такого оздоблення і утеплення стіни (без вартості самого газобетону) - десь від 4000-5000 грн/м2 на наші гроші. В Україні рідко хто погодиться не те щоб на такі гроші за фасад (які звичайно вкрадуть, бо на будівництві тільки крадуть і косячать, інакше ніяк), а ще й на вигляд натурального дерева через рік експлуатації. Дерево постаріє, місцями піде плямами, на південному фасаді посіріє, на північному мохом поросте. Жах. А потім ще треба буде його шліфувати і покривати маслом через пару років, а потім знову, знову. Я вже в своїй практиці махнув рукою, також максимально спростив задачу і натуральне дерево замінив морозостійкою плиткою з намальованою текстурою. Доречі зад на цьому відео виключно для емоцій і привернення уваги, бо інакше ніяк не діє. Оті всі формули і таблиці, специфікації, норми і старий зморщений зовнішній вигляд. Люди хотять Барбі 1 Посилання на коментар Поділитися на інших сайтах More sharing options...
архітектор Опубліковано: 22 серпня 2023 Автор Поділитись Опубліковано: 22 серпня 2023 Повертаюся до реклами якісних безкоштовних проєктів. Які умови в Польщі - будівництво не на продаж, а лише для власної родини, окремостоячий будинок (не блокований, не таунхаус), не більше двох поверхів, не більше 70 м2 площі першого поверху (тобто в сумі не більше 140 м2). Обов'язково має бути: - призначений фахівець, керівник будівництва, має вестися будівельний журнал Посилання на коментар Поділитися на інших сайтах More sharing options...
delic Опубліковано: 22 серпня 2023 Поділитись Опубліковано: 22 серпня 2023 Цікавий поворот: від проекти менше 120м2 - це не цікаво, до реклами польських проектів до 70м2.... Цікаво що так вплинуло? Війна? Посилання на коментар Поділитися на інших сайтах More sharing options...
архітектор Опубліковано: 22 серпня 2023 Автор Поділитись Опубліковано: 22 серпня 2023 5 минут назад, delic сказал: Цікавий поворот: від проекти менше 120м2 - це не цікаво, до реклами польських проектів до 70м2.... Цікаво що так вплинуло? Війна? про що питання? Я робив і роблю різні проєкти для тих, хто їх цінує. Зараз поляки запропонували безкоштовні проєкти площею не до 70 м2, а до 140 м2. Якщо уважно читати - там 70 м2 - площа забудови. Важливо дати доступ українцям до якісних рішень, адже рівень зашкварних проєктів просто зашкалював раніше і не змінився і зараз. Інша справа, якби небуло доступу до альтернативи. Тролінгова тема - не платити архітекторам і робити самим. Круто, але виходить не дуже. Тому пропоную хоч скачати якісне і спробувати розібратися як воно робиться, а не лише свої "хотєлки" не підкріплені фундаментальними знаннями 2 Посилання на коментар Поділитися на інших сайтах More sharing options...
delic Опубліковано: 22 серпня 2023 Поділитись Опубліковано: 22 серпня 2023 39 хвилин тому, архітектор сказав: Важливо дати доступ українцям до якісних рішень Ви ж писали вище, що в тих проектах не кожен з освітою будівельника розбереться. І про виконавців багато написали. Тож то не рішення для українців. Можливо для поляків то так. От коли виконавці в Україні опанують ті проекти, держава підтримає їх реалізацію, а поляки будуть робити тех. нагляд, то може і буде рішення. Але не віриться. Посилання на коментар Поділитися на інших сайтах More sharing options...
архітектор Опубліковано: 22 серпня 2023 Автор Поділитись Опубліковано: 22 серпня 2023 10 минут назад, delic сказал: Ви ж писали вище, що в тих проектах не кожен з освітою будівельника розбереться. І про виконавців багато написали. Тож то не рішення для українців. Можливо для поляків то так. От коли виконавці в Україні опанують ті проекти, держава підтримає їх реалізацію, а поляки будуть робити тех. нагляд, то може і буде рішення. Але не віриться. Я мав на увазі, що будівництво маленьких будинків - у стереотипному розумінні - це як собачу будку збити з дощок. Аналог стереотипу - це що українці носять чуби, їдять сало щодня та ліплять в школі пам'ятники Бандері з пластиліну. Аналогічний твердий стереотип - що будівельники крадуть, а чим примітивніший проект, або чим простіший - тим легше його проконтролювати. І що інакше ніж самобуд - бути не може. Стереотип для того і є, щоб бути твердим, для більшості і назавжди. Але, є можливість для тих, хто не вважає себе сповідником стереотитів і міфів і готовий напружитися, напружити голову - є нові польські проєкти 2022 року. Які мають в собі перспективу. Є бажання йти за перспективою - будь-ласка, напружуйтеся і вивчайте, знаходьте якісних будівельників. Немає бажання - робіть як усі Посилання на коментар Поділитися на інших сайтах More sharing options...
delic Опубліковано: 22 серпня 2023 Поділитись Опубліковано: 22 серпня 2023 7 хвилин тому, архітектор сказав: напружуйтеся і вивчайте то наше все й назавжди... бо інакше буде як в анекдоті з собакою... моралі, порядку, дотримання законів годі й чекати... ці питання навіть не задаються... натомість маємо показуху, брехню і ось це "напружуйтеся"... Посилання на коментар Поділитися на інших сайтах More sharing options...
BAV_Lug Опубліковано: 22 серпня 2023 Поділитись Опубліковано: 22 серпня 2023 1 час назад, архітектор сказал: Я мав на увазі, що будівництво маленьких будинків - у стереотипному розумінні - це як собачу будку збити з дощок. Аналог стереотипу - це що українці носять чуби, їдять сало щодня та ліплять в школі пам'ятники Бандері з пластиліну. Аналогічний твердий стереотип - що будівельники крадуть, а чим примітивніший проект, або чим простіший - тим легше його проконтролювати. І що інакше ніж самобуд - бути не може. Стереотип для того і є, щоб бути твердим, для більшості і назавжди. Але, є можливість для тих, хто не вважає себе сповідником стереотитів і міфів і готовий напружитися, напружити голову - є нові польські проєкти 2022 року. Які мають в собі перспективу. Є бажання йти за перспективою - будь-ласка, напружуйтеся і вивчайте, знаходьте якісних будівельників. Немає бажання - робіть як усі В последнем проекте, который вы выложили, комнатки по 5-6 квадратов. Вы серъезно считаете что это "перспектива"? И на это нужно равняться и стремиться? Посилання на коментар Поділитися на інших сайтах More sharing options...
архітектор Опубліковано: 22 серпня 2023 Автор Поділитись Опубліковано: 22 серпня 2023 3 часа назад, BAV_Lug сказал: В последнем проекте, который вы выложили, комнатки по 5-6 квадратов. Вы серъезно считаете что это "перспектива"? И на это нужно равняться и стремиться? Перспектива в тому, що треба завантажити повний проект і подивитися на рівень його утеплення і як поляки порахували витрати на обслуговування, опалення, нагрів води і приготування їжі на рік в злотих Якщо співставити собівартість утеплення, вартість будівництва та постійні затрати на утримання - то автоматично приходить розуміння що маленької якісної кімнати достатньо Оце вчергове відповідаю, а сам думаю - ті самі стереотипи, що і десять років тому. Пригадайте пропагандистські сюжети москалів про те, як Європі розбирають паркет, палять книги, щоб зігрітися. Сидять в кожухах, їдять хом'ячків. Маленькі кімнатки на фоні цього - якось навіть не настільки жахливо Посилання на коментар Поділитися на інших сайтах More sharing options...
igor_d70 Опубліковано: 22 серпня 2023 Поділитись Опубліковано: 22 серпня 2023 1 час назад, архітектор сказал: Перспектива в тому, що треба завантажити повний проект і подивитися на рівень його утеплення і як поляки порахували витрати на обслуговування, опалення, нагрів води і приготування їжі на рік в злотих Якщо співставити собівартість утеплення, вартість будівництва та постійні затрати на утримання - то автоматично приходить розуміння що маленької якісної кімнати достатньо Оце вчергове відповідаю, а сам думаю - ті самі стереотипи, що і десять років тому. Пригадайте пропагандистські сюжети москалів про те, як Європі розбирають паркет, палять книги, щоб зігрітися. Сидять в кожухах, їдять хом'ячків. Маленькі кімнатки на фоні цього - якось навіть не настільки жахливо Как бы там небыло, но 5 квадратов комната это несуразно мало. Там только одна койка и станет (2 кв. м койка + 2 кв м подход к ней) Такие комнаты кстати достаточно распространены в домах старой постройки, по крайней мере на юге Украины. Я не знаю как там в Польше. Может они реально в той комнате только и спят, а все бодрствование проводят во дворе на свежем воздухе. Мне лично тут вспомнились многоэтажки новомодного, на то время, чешского проекта с кухнями по 2 кв м. Типо начерта вам кухня, только кофе сварить. Есть в ресторане надо. Посилання на коментар Поділитися на інших сайтах More sharing options...
delic Опубліковано: 23 серпня 2023 Поділитись Опубліковано: 23 серпня 2023 Що робить архітектор в Польщі? Розробляє якісні проекти великих і малих будинків, приймає участь у конкурсах безкоштовних проектів і т.і. Що робить архітектор в Україні? Розказує про стеріотипи, скиглить, рекламує польські проекти і пропонує замовникам напружуватись... От чому воно саме так виходить? В Австрії архітектор взагалі, ще й за будівництво відповідає. І замовник не напружується, а лише вибирає одне з запропонованих рішень згідно свого бюджету. В США взагалі розробляють і будують не будинки, а райони. З продуманими дорогами і дизайном всього району. Замовник лише вибирає один із варіантів запропонованих будинків і взагалі не напружується. До того ж все будівництво суворо контролюється інспекторами на відповідність нормам і проекту. 3 Посилання на коментар Поділитися на інших сайтах More sharing options...
Рекомендовані повідомлення
Створіть акаунт або увійдіть у нього для коментування
Ви маєте бути користувачем, щоб залишити коментар
Створити акаунт
Зареєструйтеся для отримання акаунта. Це просто!
Зареєструвати акаунтУвійти
Вже зареєстровані? Увійдіть тут.
Увійти зараз