Перейти до публікації
Пошук в
  • Додатково...
Шукати результати, які містять...
Шукати результати в...

Одноэтажный каркасный дом под Киевом

PGS

Рекомендовані повідомлення

Всем доброе время суток!

Немного предыстории: ровно 2 года назад на семейном совете было принято решение о строительстве дома. Исходя из финансовой части, сформировали директивный срок - через 5 лет мы должны переехать в свой дом. На сегодняшний день построена коробка дома. Постепенно выложу описание всех предшествующих этапов и дальше пойдем в режиме он-лайн.

IMG_4207.JPG.c828c6d99de7cbe9b53b5dcc7cdcc78e.JPG

IMG_4210.JPG.c6c735d8097b1b8b0cb1d3a683bfdc32.JPG

  • Лайк 9
Посилання на коментар
Поділитися на інших сайтах

Март 2011 г. - начало поисков участка.

Просмотрели около 50-ти участков. В мае я уже достаточно жестко общался с продавцами и если не получал конкретные ответы на все мои вопросы, то общение сразу заканчивалось. Что самое примечательное, с непосредственными владельцами удалось пообщаться 2 раза: первый просмотренный участок и последний.

В конце мая 2011 г. мы нашли именно то, что искали.

ТТХ участка:

с. Бобрица, К-С р-н, 20 км от ст. м. Житомирская

15 соток, угловой, на холме.

После выдачи символического задатка сделал вынос точек и геологические изыскания. Убедился, что все в порядке и в конце июля провели сделку.

Стоимость: 2,5 к$/сотка

IMG_2447.JPG.df5b3c5f611a5e726efb7c9634639e59.JPG

IMG_2574.JPG.c29ffa0a7f0a06a562d960d66387ec72.JPG

IMG_2441.JPG.a5ad2b29e5811384b54135d8672314cf.JPG

IMG_2438.JPG.1fcbd4094a60c2e8bb39797b78ac699c.JPG

IMG_3987.JPG.997fba8403049e685baba80a9069179c.JPG

  • Лайк 1
Посилання на коментар
Поділитися на інших сайтах

август-октябрь 2011 г.

1. В сети нашел вагончик и завез его на участок. Мы его назвали "Микродом" :)

2. На форуме нашел б/у сетку рабицу, ворота. В анжио докупил трубы и вместе с братом возвели забор. Технология следующая: садовым буром бурил землю на глубину 0,5м, бетонировал оцинкованную трубу 2м, затем натягивали сетку. Всего стоимость 76 м п забора с воротами получилась около 4 тыс грн.

3. Вспахали участок, немного повозились с пыреем - так сказать привыкали к земле.

На этом сезон 2011г и закончили.

IMG_3619.thumb.JPG.a32cfd5dc4efede427f49ef19131ee9f.JPG

IMG_3621.JPG.a8b3899c8622e793cb172ad74e8cca55.JPG

IMG_3651.JPG.f7e930d00a11c83eb5dfd1b75041b50b.JPG

IMG_3656.JPG.148ddeb5a6bc7c241e53206060acec4c.JPG

IMG_3675.JPG.24974c19c6a19600fbed4735c6fbe682.JPG

IMG_3691.JPG.077f2e44be1473992da632aadd79ee82.JPG

  • Лайк 1
Посилання на коментар
Поділитися на інших сайтах

Аккуратный домик. С виду и не скажешь, что каркасник.

Давайте, порадуйте нас мясцом описания стройки. :D

Посилання на коментар
Поділитися на інших сайтах

S_Lava

Обязательно порадую, но все по-порядку...

 

январь-март 2012 г. За это время:

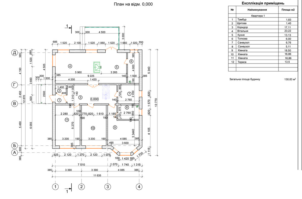
1. Григорий faraon сделал ескизный проект. Планировку с расстановкой мебели я начертил еще до покупки участка.

2. Получил разрешение в сельраде, сделал док-ты и подключил эл-во на участке. Плюс повесил фонарь на столбе и щит для временных линий. На вводе трехфазный автомат 16А, электронный счетчик, запрограммированный на 2 тарифа (день/ночь). За все заплатил 11,3 тыс грн.

3. Сделал стройпаспорт и отправил в инстанции уведомления о начале строительных работ. Стоимость 853 грн.

4. Пробурил скважину и обустроил приямок. Скважина 57м - 260 грн/м п. В приямке глубинный насос водолей, оголовок, автоматика, гидроаккумулятор на 100л, разводка. Приямок сделали за 1 день. Стоимость 11 тыс грн.

Вот так подготовились к строительному сезону :)

1.thumb.jpg.703ee3f9bb459c245e199c0ea339795c.jpg

2.thumb.jpg.8cf0ef35feafaa36eea08e616ee29632.jpg

3.jpg.796bd69cd77570309a26e2b2d3fb1738.jpg

4.jpg.ee7fd24f68a947152d306abb15de9292.jpg

5.thumb.jpg.df4034709264f39ab8d94604b5bd5ec0.jpg

6.thumb.jpg.efe1d58462ad97d28b72d8f45ff8bd99.jpg

IMG_3784.thumb.JPG.d4b4632f5e29e6e5edbe9f5349c6e75f.JPG

IMG_3786.thumb.JPG.c7f4fa3f8a812a01c378db6b23373ce3.JPG

IMG_3794.JPG.99c6bf786f0740f7f702682a1b2d0634.JPG

IMG_3791.JPG.7154ad7646257c581cc2437b803e0976.JPG

IMG_3797.JPG.1347ea9b6211d54324cdf466746935f5.JPG

IMG_3800.JPG.50e933f8e5e28a586e47bcb15ddf1311.JPG

IMG_3802.JPG.e2d8aaef2287f83f93662b32379eb24c.JPG

Посилання на коментар
Поділитися на інших сайтах

В апреле у меня появилось неприлично много свободного времени и я его решил использовать для благоустройства участка: завез КАМАЗ торфа и удобрил будущую зону сада, накопал ямки и посадил фруктовые деревья и кусты.

IMG_3815.JPG.7ee8ac5ad8eff71d3ad01dcf14e9916d.JPG

IMG_3814.thumb.JPG.c686f4ec8b5232da99d46cf2c3439630.JPG

IMG_3855.JPG.6ac59a0f0c5f4db8f136a2c62aba7a86.JPG

IMG_3863.thumb.JPG.3c77a2b52b804a5855738633f777d86c.JPG

IMG_3848.JPG.7f4306f2625790d21c1dbcc5e347659a.JPG

Посилання на коментар
Поділитися на інших сайтах

В символический день 1-го мая началась стройка.

Подрядчик - ООО "Фараон"

Котлован получился глубиной 600мм, сняли растительный слой до материкового грунта. Грунтом из котлована спланировал участок - один из углов поднял на 200мм.

IMG_3851.JPG.f0257677b58beeb70b6e2e6af2dcb103.JPG

IMG_3853.JPG.078f412b8c0211fcd5ee5a7276064fda.JPG

IMG_3854.JPG.3033ce1112256650eb9a1d6e512bd673.JPG

IMG_3856.JPG.c11a55cfd1db46f0189245c02f3647fb.JPG

1.thumb.jpg.8a3ddfdf0e45dda840f824447af44814.jpg

Посилання на коментар
Поділитися на інших сайтах

Вместо вынутого грунта в котлован засыпали песок и щебень, т.е. непучинистый грунт.

Сама конструкция ф-та - это что-то среднее между мелкозаглубленным ленточным и плитным ф-том.

IMG_3862.JPG.2be6166befed4f6aff7cf0d316375bd7.JPG

IMG_3864.JPG.6424364ab475c09e2136fae261d28177.JPG

IMG_3865.thumb.JPG.e3cc8aa4667b2258cbc6fdb2923abcb3.JPG

IMG_3866.thumb.JPG.e8efc26a46ee457cd00edf2b0e8eede4.JPG

IMG_3868.JPG.46e1b6b027e99fab0ad0f9cd5b5ab566.JPG

IMG_3869.JPG.0b560cad949ae64292b260bee1bc9eb3.JPG

IMG_3870.JPG.71761143f6da3f2d357cb41ebedbb457.JPG

IMG_3872.JPG.924d4b86c0611b3dfbb7526cc8852707.JPG

IMG_3874.JPG.0fdaaf289eaeb9f2cd48334faab4434e.JPG

IMG_3875.JPG.4cdb463cf6e30e56d568034a65153367.JPG

  • Лайк 1
Посилання на коментар
Поділитися на інших сайтах

строители - приколисты :-) - опалубку не той стороной поставили, гладкой наружу :-)))
  • Лайк 2
Посилання на коментар
Поділитися на інших сайтах

В итоге получилась монолитная плита с ребрами жесткости под несущими стенами.

Бетон заливали бетононасосом - 40 м3.

Срок работ нулевого цикла - 10 дней.

Стоимость - около 100 тыс. грн.

IMG_3876.JPG.b8ef5274646cca63157c313d12407446.JPG

IMG_3878.JPG.c21cf8f95411beefaf2b8762cb680665.JPG

IMG_3879.JPG.f14bae35705fcc48a0dffad8b96e0ad6.JPG

  • Лайк 1
Посилання на коментар
Поділитися на інших сайтах

S_Lava

...

2. Получил разрешение в сельраде, сделал док-ты и подключил эл-во на участке. Плюс повесил фонарь на столбе и щит для временных линий. На вводе трехфазный автомат 16А, электронный счетчик, запрограммированный на 2 тарифа (день/ночь). За все заплатил 11,3 тыс грн.

...

 

Если не трудно, распишите более подробно затраты на подключение эл-ва. Мне в Обуховском РП человек назвал сумму 18 000 грн. Это за проект, тех.решение, работы по подключению. Точка подключения в 20 метрах от участка. Собираю аргументы, чтобы торговаться с ним или буду искать другие альтернативы.

Посилання на коментар
Поділитися на інших сайтах

mail_malex

 

9 тыс - ТУ, проект, материалы, монтажные работы, ввод в экспл., экономия моего времени и т.д.

1,5 тыс - фонарь, фотореле, автомат, монтаж

0,8 тыс - сборка из трех однофазных автоматов и розеток.

опоры уже были установлены.

цены по состоянию на февраль 2012 г.

  • Лайк 1
Посилання на коментар
Поділитися на інших сайтах

Спустя месяц, 15 июня 2012 г. завезли лес и приступили к монтажу каркаса.

Брус 140х50 мм. Весь лес антисептировали в ванной и аккуратно складывали.

IMG_3951.JPG.032b4ef50a08d69f7049750476c8419b.JPG

IMG_3952.JPG.a0918fe45f5b42331436d5c28deb6e3e.JPG

IMG_3956.JPG.96ef8fc5dc449d140d2910f6b0766d36.JPG

IMG_4010.JPG.423e9bb9a95a2c4f010f10710c0e13de.JPG

Посилання на коментар
Поділитися на інших сайтах

В процессе монтажа каркаса соорудил септик из ЖБ колец. Работы выполнил Олег, известный на форуме как Аргилит. В состав работ входило: земляные работы (вручную), монтаж ЖБ колец, прокладка труб, поставка всех материалов.

Расстояние до дома - 8 м. Конструкция септика стандартная: 2 емкости из колец 1,5м в диаметре. Уровень грунтовых вод - 20 метров.

Стоимость 13,5 тыс грн.

IMG_4027.thumb.JPG.958d7dfcb4dd9c46fedeade97e58da01.JPG

IMG_4029.JPG.c1a746f7dc6bf0544494820d979ad5d3.JPG

IMG_4030.JPG.0f97ee25397c8265b31bf0f95bac6d0a.JPG

Посилання на коментар
Поділитися на інших сайтах

На предыдущих фото видно дымоход. Выкладываю фото внутри дома, которые Вы уже могли видеть в соседней ветке.

Сендвич-труба с внутренним диаметром 200 мм.

Дымоход обошелся в 8,4 тыс грн.

IMAG0921.thumb.jpg.992f0a4be32be5e36b9eba2fef13f749.jpg

IMAG0922.thumb.jpg.4cc4e79fe34f9f90dd027ff702a7b5df.jpg

IMG_4088.JPG.72db8200a15291e2d28efa743ea7145b.JPG

  • Лайк 1
Посилання на коментар
Поділитися на інших сайтах

31 июля - 10 августа монтаж шифера.

Шифер Ивано-Франковский, маленькие листы.

Заказывал в ООО "ТОГО". С коньками и доставкой вышел в 25 тыс. грн.

С монтажом шифера закончил работу Фараон.

Сметная стоимость коробки (без стоимости нулевого цикла) составила около 170 тыс. грн.

IMG_4059.JPG.9bcd74b3ec38292aaa0171b4d47f2bbc.JPG

IMG_4062.JPG.4b9a8bff05a37f5572c34360856467e6.JPG

IMG_4069.JPG.863de234f0fe363908e9c87d79245748.JPG

IMG_4070.JPG.ba9ecdfa3b6bad516790f005abe54fd8.JPG

IMG_4071.JPG.1bfbe4474ec05ed830e36c51107e5dad.JPG

  • Лайк 2
Посилання на коментар
Поділитися на інших сайтах

В доме появились окна.

Профиль Salamander, ширина 70 мм. Стеклопакет 4-12-4-16-4і.

Площадь остекления 30 м2.

Стоимость окон 28,8 тыс. грн.

IMG_4153.jpg.a05e27229f62d088c6bba3c5252b233b.jpg

IMG_4031.JPG.338dc506683ac265454ea69c4e944fbc.JPG

IMG_4041.JPG.79e11c9cf2a7afabef1f54a75906fffa.JPG

  • Лайк 2
Посилання на коментар
Поділитися на інших сайтах

В начале августа начал подготовку к фасадным работам, которые планировались на 20-ые числа августа. Забегая вперед, скажу, что из-за Григория Фараона эти даты были смещены на 2 недели. В итоге я принял решение самостоятельно (с помощью каменщиков) доделать "некрасивую" работу по фундаменту и как результат не успел разопалубить и расшить перемычки, смонтировать отливы и сделать герметизацию примыканий. Но сейчас не об этом...

Итак, в первую очередь завез кирпич на участок и нашел каменщиков.

Клинкерный кирпич для стен - Керамейя Рустика Топаз 3

Кирпич для цокольного карниза - Фагот.

Чтобы найти каменщика далеко ходить не пришлось - он работал на соседнем участке. Я подготовил всю техническую документацию, буклеты и рекомендации производителя, распечатал фото кладки крупным планом и вместе с составом работ вручил ему это все для того, чтобы он подумал, сможет ли он справиться с такой работой и за такую сумму. Смета у меня состояла из одной цифры: фасад шт 1 (состав работ прилагался). Вот он:

1. Подготовка поверхности

2. Устройство обмазочной гидроизоляции

3. Устройство рулонной гидроизоляции

4. Устройство выравнивающего слоя из цем-песч раствора

5. Кладка карнизного кирпича с расшивкой

6. Устройство обмазочной гидроизоляции

7. Устройство рулонной гидроизоляции

8. Кладка клинкерного кирпича с расшивкой.

9. Монтаж вентиляционных коробочек.

10. Монтаж гибких связей с использованием хим анкеров.

11. Армирование кладки.

12. Кладка откосов.

13. Устройство перемычек со спец армированием.

14. Устройство рулонной гидроизоляции (над перемычками).

15. Монтаж бетонного отлива.

16. Герметизация примыканий.

IMG_4060.JPG.136d181f1eefefa490e5942ea2decec9.JPG

IMG_4061.JPG.0056499dd09d028abc039f8a833b8fc3.JPG

  • Лайк 3
Посилання на коментар
Поділитися на інших сайтах

Кроме этого перед выполнением работ написал для каменщиков очень развернутую инструкцию по выполнению работ и регулярно проверял ее знание. Кстати, в ней есть почти все технологические моменты, расстояния и т.д.

Инструкция прилагается.

кирпичный фасад.doc

  • Лайк 5
Посилання на коментар
Поділитися на інших сайтах

Первые ряды - самые ответственные. Присутствовал каждый день, иногда даже приходилось дополнительно приезжать в 7.00 на стройку.

IMG_4077.thumb.JPG.03ad6d46d0f0c19eea9c075d1af0e8db.JPG

IMG_4078.JPG.5597f13bde0a2c9d4ed5c0412bdeb489.JPG

IMG_4079.thumb.JPG.bdc3b88c2c6dc598a4fca44193b85f8b.JPG

IMG_4080.JPG.f2247da135a247dfed85777ba735fff3.JPG

IMG_4081.thumb.JPG.a7c3526de89b1b16975c11de7af0d4be.JPG

Посилання на коментар
Поділитися на інших сайтах

Класный домик.:good:

Единственно кательная. по моему, маловата.:confused:

:-) Особливо ОЧЕНЬ понравилась инструкция. Обязательно возьму на вооружение.:good:

  • Лайк 1
Посилання на коментар
Поділитися на інших сайтах

Створіть акаунт або увійдіть у нього для коментування

Ви маєте бути користувачем, щоб залишити коментар

Створити акаунт

Зареєструйтеся для отримання акаунта. Це просто!

Зареєструвати акаунт

Увійти

Вже зареєстровані? Увійдіть тут.

Увійти зараз
×
×
  • Створити...