Татьяна5 Опубліковано: 18 грудня 2013 Поділитись Опубліковано: 18 грудня 2013 наблюдаю уже полгода, пока затеканий не было (т т т). Зима покажет ;) последовательность монтажа была следующая: дымоход, сверху одевается крыза, клеится плитка и заходит немного на крызу. эт точно , именно снег все покажет Посилання на коментар Поділитися на інших сайтах More sharing options...
PGS Опубліковано: 28 грудня 2013 Автор Поділитись Опубліковано: 28 грудня 2013 Еще фото дымохода (на чердаке). На последнем фото - привод управления шибером (регулятор подачи наружного воздуха в топку). 13 Посилання на коментар Поділитися на інших сайтах More sharing options...
PGS Опубліковано: 30 грудня 2013 Автор Поділитись Опубліковано: 30 грудня 2013 Думаю, можно подвести итоги сезона 2013г. Закончен важный этап под названием "коробка" и в следующем году начнется самое интересное ;) Что сделал в декабре: - оплатил 13м3 ЭППС для утепления пола (100мм по всей площади). - оплатил силовой кабель (ВВГнгд), сетевой и антенный. - заказал входную дверь. Решил остановиться на финской Фенестре. Приедет через 2 месяца. Прикрепил фин результат моей "деятельности" с самого начала строительства, вернее с покупки участка. Фиксирую все затраты и разношу по разделам. Начинающим застройщикам будет особенно полезна информация. И самое главное: ВСЕХ С НАСТУПАЮЩИМ НОВЫМ ГОДОМ И РОЖДЕСТВОМ!!! Здоровья, благополучия и много-много сил для того, чтобы осуществить свои мечты! 9 Посилання на коментар Поділитися на інших сайтах More sharing options...
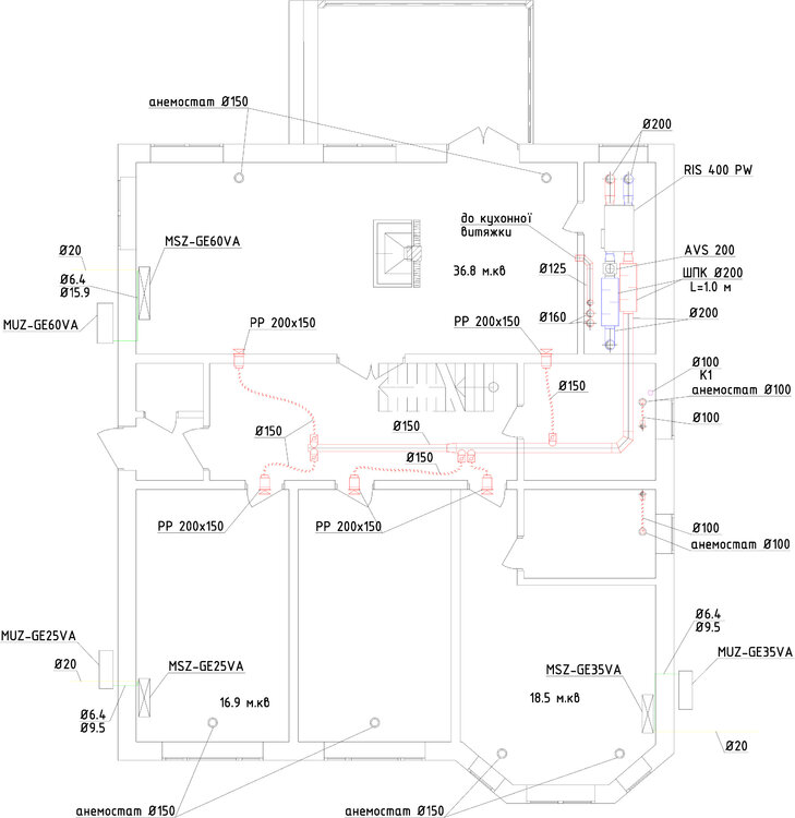
PGS Опубліковано: 14 січня 2014 Автор Поділитись Опубліковано: 14 січня 2014 ВСЕХ с наступившими ПРАЗДНИКАМИ!!! Начинаю сезон 2014 года с вентиляции. Запроектировано: 1. Система приточно-вытяжной вентиляции на базе рекуператора в гостиной, кухне и 3х спальнях. Приточный воздух будет догреваться водой (отдельная ветка от котла). Оборудование будет висеть под потолком в топочной. В будущем планирую закрыть его подвесным потолком Армстронг. Воздуховоды притока будут на чердаке, воздуховоды вытяжки - под потолком в холле. Решетки притока и вытяжки будут на противоположных концах дома и выйдут по чердаку в подшивке свесов кровли. 2. Принудительная вытяжка с/у с помощью канальных вентиляторов, которые будут установлены на чердаке. После вентиляторов воздуховоды соединяться в один и выйдут на коньке. Принудительная вытяжка кухонного зонта - выйдет на коньке. 3. Естественная вентиляция топочной и кухни. Два независимых воздуховода выйдут на коньке. 4. Вентиляция септика. Фановая труба выйдет на коньке. 4 Посилання на коментар Поділитися на інших сайтах More sharing options...
x_y_z_ Опубліковано: 15 січня 2014 Поділитись Опубліковано: 15 січня 2014 (змінено) 2. Принудительная вытяжка с/у с помощью канальных вентиляторов, которые будут установлены на чердаке. После вентиляторов воздуховоды соединяться в один и выйдут на коньке. Принудительная вытяжка кухонного зонта - выйдет на коньке.Смысл тогда в пункте 1? Именно вентиляции на базе рекуператора? Рекуператор сальда? Змінено 15 січня 2014 користувачем x_y_z_ орфо 1 Посилання на коментар Поділитися на інших сайтах More sharing options...
PGS Опубліковано: 15 січня 2014 Автор Поділитись Опубліковано: 15 січня 2014 п. 2 будет включаться эпизодически и глобального влияния на п.1 оказывать не будет. Рекуператор SALDA RIS 400 PW Посилання на коментар Поділитися на інших сайтах More sharing options...
sov1178 Опубліковано: 15 січня 2014 Поділитись Опубліковано: 15 січня 2014 п. 2 будет включаться эпизодически А как будет осуществляться вентиляция с/у? Если тоже периодически, то это неправильно, а если за счет ЕВ, то это может не работать, либо всеравно ухудшать эффективность рекуперации. Посилання на коментар Поділитися на інших сайтах More sharing options...
PGS Опубліковано: 16 січня 2014 Автор Поділитись Опубліковано: 16 січня 2014 Вентиляторы в с/у планирую вывести на отдельные выключатели (сейчас так сделано в квартире). И думаю, что небольшая естественная тяга все-таки будет в каналах, но это уже будет видно по факту эксплуатации. Как посоветуете организовать п.2 с минимальным влиянием на эффективность рекуперации? Посилання на коментар Поділитися на інших сайтах More sharing options...
x_y_z_ Опубліковано: 16 січня 2014 Поділитись Опубліковано: 16 січня 2014 ак посоветуете организовать п.2 с минимальным влиянием на эффективность рекуперации? Завести ці канали в рекуператор. (Повітря в пластинчастому рекуператорі не змішується) 2 Посилання на коментар Поділитися на інших сайтах More sharing options...
PGS Опубліковано: 16 січня 2014 Автор Поділитись Опубліковано: 16 січня 2014 Я еще учитываю такой нюанс, что переселяясь в дом, многое нужно будет докупать, доделывать уже живя в нем. Так вот рекуператор попадает в этот список. Это я к тому, что вначале мне нужна будет независимая вентиляция в с/у, а при монтаже рекуператора можно будет подправить воздуховоды на чердаке. Там разводка будет в открытом виде. Посилання на коментар Поділитися на інших сайтах More sharing options...
x_y_z_ Опубліковано: 17 січня 2014 Поділитись Опубліковано: 17 січня 2014 Я еще учитываю такой нюанс, что переселяясь в дом, многое нужно будет докупать, доделывать уже живя в нем. Так вот рекуператор попадает в этот список. Это я к тому, что вначале мне нужна будет независимая вентиляция в с/у, а при монтаже рекуператора можно будет подправить воздуховоды на чердаке. Там разводка будет в открытом виде. І це правильно. Під час ремонтів, фільтри рекуператора понатягують усякого . А проходку через дах ставте вже під майбутній рекуператор і в неї заводьте тимчасово ці канали. Можна туди й кухонний зонд але треба ОК ставити, але це вже спеціалістів. 1 Посилання на коментар Поділитися на інших сайтах More sharing options...
PGS Опубліковано: 22 січня 2014 Автор Поділитись Опубліковано: 22 січня 2014 Начали прокладывать воздуховоды и подключать к вентканалам Вильпе на коньке . Основные трассы проходят на чердаке и под потолком в холле. На последнем фото шумоглушители в топочной. 5 Посилання на коментар Поділитися на інших сайтах More sharing options...
PGS Опубліковано: 24 січня 2014 Автор Поділитись Опубліковано: 24 січня 2014 ...еще фото. На втором - сборники конденсата. 4 Посилання на коментар Поділитися на інших сайтах More sharing options...
PGS Опубліковано: 9 лютого 2014 Автор Поділитись Опубліковано: 9 лютого 2014 Решил воспользоваться потеплением и залить порог под входную дверь. Простелил гидроизоляционную пленку для фундаментов, сделал каркас из сетки диам. 4 мм ячейкой 50х50. В раствор на всякий случай добавил противоморозную добавку. Пока жена лепила кельмой "царевну-лягушку", мне позировали местные "жители" 8 Посилання на коментар Поділитися на інших сайтах More sharing options...
PGS Опубліковано: 27 лютого 2014 Автор Поділитись Опубліковано: 27 лютого 2014 Закончил первый этап монтажа системы вентиляции - вся разводка воздуховодов с присоединением к кровельным проходкам. Работы немного растянулись во времени из-за морозов (не приклеивался скотч). Суммарная продолжительность работ 5 смен. Бюджет 27,2 тыс. Второй этап - после окончания отелочных работ (монтаж и пусконаладка оборудования, а также монтаж решеток и анемостатов). 2 Посилання на коментар Поділитися на інших сайтах More sharing options...
PGS Опубліковано: 4 березня 2014 Автор Поділитись Опубліковано: 4 березня 2014 В процессе поиска входной двери нашел "залежавшуюся" на складе дверь с параметрами моего проема (не пришлось резать кирпич). Плюс ко всему получил приличную скидку, т.к. расцветка специфическая. Производитель Haapsalu Uksetehas (Эстония), аналог Фенестры. 9 Посилання на коментар Поділитися на інших сайтах More sharing options...
PGS Опубліковано: 10 березня 2014 Автор Поділитись Опубліковано: 10 березня 2014 Начал отделочные работы в топочной и электрощитовой. Сначала сделаю стены, затем по ним монтируется вся сан/тех разводка и провода. Пирог стен: по дервеянным стойкам (несущим) ОСБ 15мм, ВГКЛ 12,5мм (между собой проклею клеем ПВА). В рабочей зоне (котлы, трубы) - облицовка плиткой. На фото - закладные брусы (200х50) для крепления котлов (газовый - основной, электрический - резервный). 1 Посилання на коментар Поділитися на інших сайтах More sharing options...
Татьяна5 Опубліковано: 10 березня 2014 Поділитись Опубліковано: 10 березня 2014 по дервеянным стойкам (несущим) ОСБ 15мм зачем? Посилання на коментар Поділитися на інших сайтах More sharing options...
PGS Опубліковано: 10 березня 2014 Автор Поділитись Опубліковано: 10 березня 2014 пожелание сантехника - чтобы надежно закрепить трубы 1 Посилання на коментар Поділитися на інших сайтах More sharing options...
sov1178 Опубліковано: 10 березня 2014 Поділитись Опубліковано: 10 березня 2014 зачем? Я у себя так делал, чтобы было удобно крепить оборудование. В 15мм ОСП многое можно крепить без закладных, а для котельной это актуально. Пирог стен: по дервеянным стойкам (несущим) ОСБ 15мм, ВГКЛ 12,5мм (между собой проклею клеем ПВА). Я у себя не клеил, а просто прикрутил саморезами. Не уверен, что клей здесь будет полезен (хотя мжет и ошибаюсь). 2 Посилання на коментар Поділитися на інших сайтах More sharing options...
Татьяна5 Опубліковано: 10 березня 2014 Поділитись Опубліковано: 10 березня 2014 пожелание сантехника - чтобы надежно закрепить трубы прикольно Добавлено через 35 секунд Я у себя так делал, чтобы было удобно крепить оборудование. В 15мм ОСП многое можно крепить без закладных, а для котельной это актуально. имхо - с закладными - надежнее Посилання на коментар Поділитися на інших сайтах More sharing options...
sov1178 Опубліковано: 10 березня 2014 Поділитись Опубліковано: 10 березня 2014 имхо - с закладными - надежнее Закладные под раковину, бак расширительный и т.п. тяжелые девайсы. А вот трубы, насосы, коллектора и т.п., ИМХО, можно и в ОСП. Кстати я вот бойлер на 100л задумал на стену каркасную привесить (крепление прямо в стойки). А сейчас задумался правильно ли я делаю...но отступать уже некуда ... Посилання на коментар Поділитися на інших сайтах More sharing options...
PGS Опубліковано: 11 березня 2014 Автор Поділитись Опубліковано: 11 березня 2014 Кстати я вот бойлер на 100л задумал на стену каркасную привесить (крепление прямо в стойки). А сейчас задумался правильно ли я делаю...но отступать уже некуда ... Если под креплением имеется ввиду кронштейн и он крепиться на 4 точки, то думаю сомнений не должно быть. Посилання на коментар Поділитися на інших сайтах More sharing options...
PGS Опубліковано: 15 березня 2014 Автор Поділитись Опубліковано: 15 березня 2014 Вот такая креативная получилась топочная . Плитку не покупал, использовал всю, которая была в наличии. Высота плитки 2,1м. Откосы сделаны из ЭППС 20мм, который наклеен на дерево и закреплен саморезами, отшпатлеваны по сетке. Окно открывается чуть больше 90 гр. п.с. за укладку плитки платил по 120 грн/м2. 4 Посилання на коментар Поділитися на інших сайтах More sharing options...
PGS Опубліковано: 5 травня 2014 Автор Поділитись Опубліковано: 5 травня 2014 Подготовка к электромонтажным работам - отверстия в фундаменте. Оставленная внутри опалубка достаточно сильно затрудняла сверление, но все закончилось успешно 2 Посилання на коментар Поділитися на інших сайтах More sharing options...
Рекомендовані повідомлення
Створіть акаунт або увійдіть у нього для коментування
Ви маєте бути користувачем, щоб залишити коментар
Створити акаунт
Зареєструйтеся для отримання акаунта. Це просто!
Зареєструвати акаунтУвійти
Вже зареєстровані? Увійдіть тут.
Увійти зараз