Перейти до публікації
Пошук в
  • Додатково...
Шукати результати, які містять...
Шукати результати в...

дом из газоблока на ушп

Dmode

Рекомендовані повідомлення

Привет всем!

Рассматривал вариант покупки квартиры, но читая данный формум, особенно ветку Гашиков, вдохновился и понял что хочу дом.

Год назад был куплен участок (6 соток). Сейчас заканчиваю коробку. Никак не мог собраться открыть тему, и только сейчас созрел.

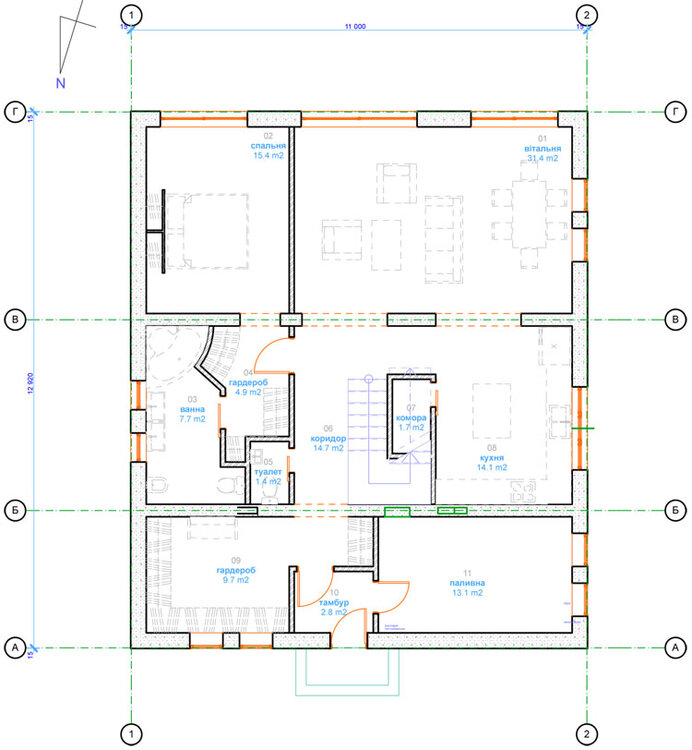
Очень понравилась технология УШП, перекрытия первого этажа тоже почти УШП. Стены газоблок. Проект простой. Буду выкладывать материалы понемногу. Пока фасады и планы.

1177052128_81-_2-1.thumb.jpg.48ad24481f64acbd2a4cd158cbf89848.jpg

1420968311_92-_.thumb.jpg.8aecfd5cc15828aeba23621a9a017ce6.jpg

935373647_3A.thumb.jpg.b5b89bf14428fc1ea2cc4e039d8a197f.jpg

  • Лайк 14
Посилання на коментар
Поділитися на інших сайтах

так выглядел участок при покупке

picture.php?albumid=4589&pictureid=51442

picture.php?albumid=4589&pictureid=51443

 

было полно старых деревьев, которые я убрал, теперь немного пусто без них, но зато больше места для строительного процесса

picture.php?albumid=4589&pictureid=51446

 

буровые работы (скважина)

picture.php?albumid=4589&pictureid=51447

 

буровые работы (геология)

picture.php?albumid=4589&pictureid=51449

 

завез пару будок, так как домик придется сносить

picture.php?albumid=4589&pictureid=51450

 

демонтировал домик, снял плодородный слой под ушп и вырыл яму под "очисні споруди"

picture.php?albumid=4589&pictureid=51451

  • Лайк 3
Посилання на коментар
Поділитися на інших сайтах

picture.php?albumid=4589&pictureid=51452

 

купил киловатты и установил электрощит

picture.php?albumid=4589&pictureid=51453

 

установил ограждение по периметру:

заливка цоколя

picture.php?albumid=4589&pictureid=51457

picture.php?albumid=4589&pictureid=51458

picture.php?albumid=4589&pictureid=51459

  • Лайк 8
Посилання на коментар
Поділитися на інших сайтах

фасадное ограждение, сделал демонтируемое (забетонировал гильзы из трубы на глубину около метра, в гильзы вставляются столбы, на столбы крепятся секции), поскольку участок маленький, подъезд не сильно широкий, что в последствии оказалось очень удобным решением. Ниже ограждение в собранном и разобранном виде. Демонтаж/монтаж занимает около 3 мин на секцию.

6439699_2012-11-0914_35.42Panorama.thumb.jpg.b8221ea3ab2d9dd91c2df7b181ae0247.jpg

1647987647_2012-11-0711_59.06Panorama.thumb.jpg.314ffc77f0bf752e113846e156f81896.jpg

Змінено користувачем Dmode
  • Лайк 6
Посилання на коментар
Поділитися на інших сайтах

далее подготовительные работы делал сам по выходным, жена помогала морально и физически:).

Выкопал по периметру дренажную траншею.

picture.php?albumid=4592&pictureid=51460

уложил в траншею геотекстиль, по углам труба для дренажных колодцев, трубу желтую брал в представительстве производителя инсталпласт в Киеве, существенно дешевле чем в эпицентре

picture.php?albumid=4592&pictureid=51462

picture.php?albumid=4592&pictureid=51463

picture.php?albumid=4592&pictureid=51465

далее щебень в него труба обернутая геотекстилем и снова щебень

picture.php?albumid=4592&pictureid=51477

picture.php?albumid=4592&pictureid=51476

picture.php?albumid=4592&pictureid=51467

 

Добавлено через 8 минут

одновременно проложил трубы канализации и грунтового теплообменника (только ввод под фундамент)

picture.php?albumid=4592&pictureid=51475

 

дренаж вывел в дренажный колодец

picture.php?albumid=4592&pictureid=51474

  • Лайк 9
Посилання на коментар
Поділитися на інших сайтах

канализацию в канализационный колодец

picture.php?albumid=4592&pictureid=51473

 

закопал трубы, геотекстиль который в дренажных каналах, завернул сверху нахлетом и накрыл досками чтобы не разворачивался

picture.php?albumid=4592&pictureid=51479

 

попробовал уплотнить грунт (на всякий случай), понял что виброплита для грунта не эффективна

picture.php?albumid=4592&pictureid=51482

 

уложил геотекстиль AgreenGEO-150 (плотнее не нашел)

picture.php?albumid=4592&pictureid=51480

picture.php?albumid=4592&pictureid=51483

 

геотекстиль дренажных траншей развернул с нахлестом на белый, перед засыпкой первого слоя щебня в 10см

picture.php?albumid=4592&pictureid=51484

 

взял двух подсобников и раскидал первый слой щебня, уплотнил ее виброплитой 100гк (брал в рамиренте)

picture.php?albumid=4592&pictureid=51485

 

второй слой щебня 10см перед уплотнением

picture.php?albumid=4592&pictureid=51488

 

далее положил слой геотекстиля, на этот раз typar по моему SF56, поскольку предыдущий белый не внушал доверия, и по нему 1 слой песка 10см с трамбовкой

picture.php?albumid=4592&pictureid=51491

 

потом второй слой песка 10см

picture.php?albumid=4592&pictureid=51492

Змінено користувачем Dmode
  • Лайк 17
Посилання на коментар
Поділитися на інших сайтах

предварительно купил ЭППС технониколь под ребра ПСБ-С 35 под плиту, псб брал в Викбуд, взвешивал при приемке - куб 35го весил в границах 24.5-25.5кг

 

из ЭППС были вырезаны и собраны L блоки с облицовкой шиферными листами, соединял клеем для пенополистирола (TYTAN 753 и Soudal Etics BOND). ЭППС резал нихромовой проволокой под напряжением - срез как на производстве.

 

Клей наносил исключительно пистолетом (Бригадир за 85грн в Леруа), и расход клея стал существенно ниже в сравнении с трубочкой, да и удобство работы не сравнить вообще.

 

picture.php?albumid=4592&pictureid=51493

 

в машину забивал до отказа - сказывался опыт игры в тетрис

picture.php?albumid=4592&pictureid=51495

Змінено користувачем Dmode
  • Лайк 19
Посилання на коментар
Поділитися на інших сайтах

по уровню уложил направляющие(доски) и по ним выровнял окончательно поверхность. Погрешность площадки получилась до 1см при размерах 11м х 13м, кривые доски не идеальные направляющие, но и так нормально

picture.php?albumid=4592&pictureid=51494

 

Взял бригаду из 4 человек, опыта ушп не было, но имели рекомендации как ответственные и старательные.

укладываем L-блоки, XPS (под ребра) и EPS (в остальных местах)

УШП выбрана вариантом которая повыше, то есть 10см утеплителя под ребрами и 30см под плитой вне ребер. Высота облицовки L-блока 40см

picture.php?albumid=4592&pictureid=51525

picture.php?albumid=4592&pictureid=51526

 

сдесь еще видно на дальнем плане канализацию, которую прокладывают от ввода из под фундамента до потребителей

picture.php?albumid=4592&pictureid=51527

picture.php?albumid=4592&pictureid=51529

 

разводка канализации в пенопласте

picture.php?albumid=4592&pictureid=51530

Змінено користувачем Dmode
  • Лайк 6
Посилання на коментар
Поділитися на інших сайтах

армирование ребер 6 прутов ф16мм, хомуты ф8мм с шагом 300мм,

на L-блоки надел гипскартонный профиль для удобства при заливке, плюс он дополнительно соединил их между собой как укрепление, перед кладкой стен профиль демонтировал

picture.php?albumid=4592&pictureid=51531

picture.php?albumid=4592&pictureid=51532

picture.php?albumid=4592&pictureid=51533

picture.php?albumid=4592&pictureid=51535

picture.php?albumid=4592&pictureid=51536

  • Лайк 13
Посилання на коментар
Поділитися на інших сайтах

выводы воды и канализация (кухня)

picture.php?albumid=4592&pictureid=51537

 

повязана нижняя арматурная сетка ф8 шаг 150, краской из баллона расчерчены внутренние перегородки по ПСБ, чтобы удобно было раскладывать теплый пол. Краска разъедает пенопласт, много не наносить.

picture.php?albumid=4592&pictureid=51541

 

укладываем трубы ТП. Трубы KAN pert ф18мм.

Трубы укладывал по арматуре с шагом 150 и 300мм.

picture.php?albumid=4592&pictureid=51542

 

раскручиваем трубы с помощью вот такого устройства :)

picture.php?albumid=4592&pictureid=51553

 

picture.php?albumid=4592&pictureid=51543

 

picture.php?albumid=4592&pictureid=51544

 

picture.php?albumid=4592&pictureid=51545

 

picture.php?albumid=4592&pictureid=51548

  • Лайк 19
Посилання на коментар
Поділитися на інших сайтах

picture.php?albumid=4592&pictureid=51549

 

picture.php?albumid=4592&pictureid=51550

 

пенопластовая заглушка под трап

picture.php?albumid=4592&pictureid=51551

 

picture.php?albumid=4592&pictureid=51552

Змінено користувачем Dmode
  • Лайк 28
Посилання на коментар
Поділитися на інших сайтах

уложено экстраармирование по ребрам, и выполняется опрессовка.

Для этого у друга взял опрессовочный насос, удобная штука.

picture.php?albumid=4592&pictureid=51554

 

picture.php?albumid=4592&pictureid=51557

 

picture.php?albumid=4592&pictureid=51555

 

все готово к заливке, на всякий случай укреплены L-блоки.

Сосед (дедушка) говорит что я наверное строю аэродром для нло, до последнего не понимает что это за стройка :)

picture.php?albumid=4592&pictureid=51556

 

Добавлено через 9 минут

залился

picture.php?albumid=4592&pictureid=51558

 

Добавлено через 10 минут

эх... цены бы еще...

так цены сейчас другие наверное.

Если по L-блокам и пенопласту:

EPS брал по прайсовой цене викбуда (ссылка устарела)

XPS брал у технониколя на выдубичах, если не ошибаюсь по 1100грн м3 (06.2012). Шифер брал на Фрунзе (киевский шиферный завод).

  • Лайк 24
Посилання на коментар
Поділитися на інших сайтах

насмотрелся как заливают немцы и не делал маяков.

В последствии пожалел, поскольку опыта не хватило, и разница в уровне плиты в некоторых местах достигает 2см.

Перекрытие первого этажа заливал уже с маяками, и полосами с паузами, как немцы - вышло ровно.

  • Лайк 5
Посилання на коментар
Поділитися на інших сайтах

Сразу видно профессионала:beer: отличная подача материала:Bravo:

 

спасибо, себя к профессионалам пока не отношу. Первая стройка в моей жизни :)

  • Лайк 5
Посилання на коментар
Поділитися на інших сайтах

армирование ребер 6 прутов ф16мм

Пожалуй в УШП таких сечений ещё не встречал ни у кого, даже под дома более 350т. А ширина рёбер какая?

А вот столь геометрически точной раскладки труб ТП не встречал даже у профи.

Посилання на коментар
Поділитися на інших сайтах

А почему шаг трубы ТП в середине комнат 300мм, зёбры не будет?

 

Поживем увидим, первопроходцы ушп с forumhouse в основном делали 150 край 300 внутри.

Если уменьшить шаг длины контуров увеличиваются, длины увеличиваются - программа требует увеличивать диаметр трубы, с длиной и диаметром растет цена, я выбрал такой вариант. Теплопотери и трубы считал в триальной Instal-heat&energy 4.8 от tece

Змінено користувачем Dmode
  • Лайк 2
Посилання на коментар
Поділитися на інших сайтах

Пожалуй в УШП таких сечений ещё не встречал ни у кого, даже под дома более 350т. А ширина рёбер какая?

 

ширина внутренних ребер 57, внешних 45см, реально получилось 58 и 46см

Вес дома около 200т. Весь проект и все расчеты кустарны, я не специалист-конструктор, поэтому возможен перезаклад.

Хотя для просчета плиты я пробовал просчитать равнонагруженную балку в разном софте (сечением в ребро ушп) лежащей на грунте, согласно показаниям геологии. И принял диаметр арматуры немного больше.

Мономах относительно балок довольно простым оказался.

Untitled-1.thumb.jpg.95eb5378f484e4d687236c49a790b60a.jpg

Untitled-2.thumb.jpg.654c51b09854a5d2d8bfaad2ef5be115.jpg

Змінено користувачем Dmode
  • Лайк 2
Посилання на коментар
Поділитися на інших сайтах

А вот столь геометрически точной раскладки труб ТП не встречал даже у профи.

Я (и бригада) первый раз в жизни раскладывали трубы ТП. Со страху видимо точно получилось.

  • Лайк 2
Посилання на коментар
Поділитися на інших сайтах

ширина внутренних ребер 57, внешних 45см

Вот на их ширину обычно обращают пристальное внимание УШПисты и сбор нагрузок на отдельные стены делается прежде всего для определения этой ширины. Вот готовый рассчёт для домика,конструктивно похожего на Ваш от российского инженера, наиболее близко подошедшего к рассчёту УШП (ссылка устарела) Кстати высота рёбер не имеет значения—жёсткость конструкции придаёт высота стен и армопояса. Для рёбер 200мм и 300мм у Дороселл несущая способность не меняется, меняется только коэффициент сопротивления теплопередачи ограждающих конструкций. Резюмируя— плита у Вас получилась замечательная, выполненная очень красиво и с небольшим перезакладом по армированию, а это куда лучше,чем наоборот.

  • Лайк 5
Посилання на коментар
Поділитися на інших сайтах

спасибо, себя к профессионалам пока не отношу. Первая стройка в моей жизни :)

 

Тогдатем более- респект:Bravo::Bravo: все очень и очень пристойно и профессионально

Пы сы- профессионал же не только тот кто деньги за жто получает- а кто грамотно и Правильно делает?) у Вас именно так:Bravo:

  • Лайк 1
Посилання на коментар
Поділитися на інших сайтах

Вот готовый расчёт для домика,конструктивно похожего на Ваш от российского инженера

интересная ссылка, жаль не видел ее когда занимался проектом. Но для меня не ясно согласно каких грунтов приведен расчет. Несущая способность грунта задается в конструкторском софте, и когда я пытался делать расчеты армирования, учитывал показатель наиболее слабонесущего слоя грунта согласно своей геологии.

 

Кстати высота рёбер не имеет значения

согласен, мне просто более приятна такая высота, хотелось цоколь повыше да и просто как то внушительней конструкция

 

Резюмируя— плита у Вас получилась замечательная, выполненная очень красиво и с небольшим перезакладом по армированию, а это куда лучше,чем наоборот.

спасибо за поддержку :) а то я себя заругал уже за то что маяков не делал

Посилання на коментар
Поділитися на інших сайтах

Створіть акаунт або увійдіть у нього для коментування

Ви маєте бути користувачем, щоб залишити коментар

Створити акаунт

Зареєструйтеся для отримання акаунта. Це просто!

Зареєструвати акаунт

Увійти

Вже зареєстровані? Увійдіть тут.

Увійти зараз
×
×
  • Створити...