Letec Опубліковано: 8 січня 2014 Поділитись Опубліковано: 8 січня 2014 Я пользуюсь бурами "Haisser" (есть в любом эпицентре). Под дюбель 6*45 стоит около 20 грн. На квартиру в 100-120 м.кв. хватает 2-3 шт. Но я работаю в основном в новостройках, а бетон там конечно помягче, чем в старых домах. Брал несколько раз Hilti и Hitachi (тоже в эпицентре), стоили по 80 грн., разницы не заметил. Я по-этому и спросил, тоже сегодня в Эпике присматривался на Макиту, токо что-то интуиция остановила. Посилання на коментар Поділитися на інших сайтах More sharing options...
crosawer Опубліковано: 8 січня 2014 Поділитись Опубліковано: 8 січня 2014 Макита тоже не произвела впечатления. Посилання на коментар Поділитися на інших сайтах More sharing options...
Днепр Владимир Опубліковано: 8 січня 2014 Поділитись Опубліковано: 8 січня 2014 Уважаемые мастера, скажите, какой фирмы бурами пользуетесь по плитам перекрытия, имею ввиду,для отверстий под дюбеля. Цена-качество. Смотрел тесты- как то в журналах, китай и фирменный бур - так вот -что у китая что у фирмы правильное отверстие( в бетоне) после сотого раза становится овалом смысл переплачивать? 1 Посилання на коментар Поділитися на інших сайтах More sharing options...
Олег747 Опубліковано: 9 січня 2014 Автор Поділитись Опубліковано: 9 січня 2014 (змінено) Вопрос :1. Нужен ли верт УД на две противоположные стены (по бокам)?2. На каком расстоянии разместить первый (последний) СД от боковой стены?3. Соединение УД-СД (на полу и потолке) фиксировать жёстко или , после закрепления СД, выкрутить "блошки"?4. Если делать с боковыми УД - ГКЛ к ним крепить?Спасибо.Есть два варианта устройства гипсокартонной стены, и Вы уже догадались, в чём их отличие. Первый - это разработанный инженерами - теоретически верный,- практически- ерунда плавающая. шваброй зацепи -покосится. Тут гипсокартон крепится по профилям СД находящимся на расст 10 см. от стены, боковые УД не применяются, если применяются, то гипсокартон к ним не крепится, профиля блошками не крепятся. Практика показала малую годность таких конструкций. Лично мы ( и многие другие) вежливо учитываем рекомендации инженеров-теоретиков, а конструктив создаём максимально жёсткий, "на века". Надёжно делаем. во всех трёх измерениях. И ничего не трещит, ну, может это мы такие везучие, или в Киеве здания не садятся и влагостный режим при ведении работ соблюдается, в общем десятилетние факты на лицо и их много. Мансарды, трёхкомнатные квартиры в новостройках, квартиры в старых (1903, 1908 гг.) домах, коттеджи вокруг города, банки, торговые центры. И в Донецке ТЦ делали, в Виннице банка два, 06-08 годы активные были у всех...всегда нравится мансарды зашивать и скрытый свет обустраивать, видимо потому, что нравится сложность хоть-какая и простор. Сейчас меньше. Всё. Насчёт буров могу подсказать следующее. Износ бура происходит где-то после бурения 200 кв.м. бетона, это прилично и достаточно, чтобы не обращать внимания на ценовую категорию. Износ происходит почти одинаково что у дешёвых, что у дорогих. А вот излом бура( пополам, снос половины головки или полностью головки) при попадании возле арматуры - происходит с дешёвыми чаще. Змінено 9 січня 2014 користувачем Олег747 2 Посилання на коментар Поділитися на інших сайтах More sharing options...
Samsonik Опубліковано: 9 січня 2014 Поділитись Опубліковано: 9 січня 2014 Уважаемые мастера, скажите, какой фирмы бурами пользуетесь по плитам перекрытия, имею ввиду,для отверстий под дюбеля. Цена-качество. Скажу так, раньше пробовал все фирмы, остановился на дешевых от 5 до 10 грн за штуку, бурят также, ломаются также от нагрева, так что не вижу смысла переплачивать. Вчера купил по 8-50 грн. бурят очень хорошо гранитный фундамент Добавлено через 9 минут 1. Нужен ли верт УД на две противоположные стены (по бокам)? 2. На каком расстоянии разместить первый (последний) СД от боковой стены? 3. Соединение УД-СД (на полу и потолке) фиксировать жёстко или , после закрепления СД, выкрутить "блошки"? 4. Если делать с боковыми УД - ГКЛ к ним крепить? 1. Мы ставим вокруг УД как на потолок 2. От боковой стены идем по 40 см. для большей жесткости, если прямая сплошная тогда по 60 см. но балконные стены и оконные постоянно на глаз от 20 до 30 см. 3. Зафиксировать и крепить гипс поверх 4. Крепим "мы" за всю практику не трещин не звонков мне. Так что надежно и крепко прибиваем УД к стене и крутим к ней гипс. Советую всегда, а даже рекомендую не экономить на профилях, а то купил один заказчик профиля нам, так они в руках гнутся, ну скупой платит дважды, в трое больше крепежа улетает и времени, а это удорожание работы Посилання на коментар Поділитися на інших сайтах More sharing options...
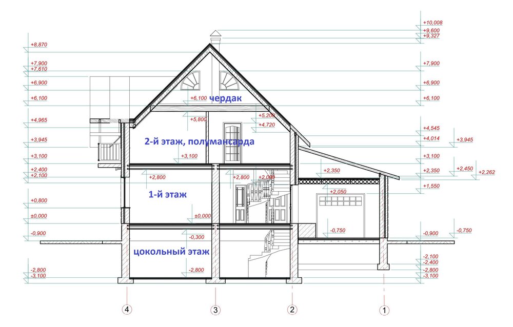
Саша79 Опубліковано: 12 січня 2014 Поділитись Опубліковано: 12 січня 2014 Подскажите по подшивке гипсокартоном потолка полумансарды. На рисунке "разрез 2-2" показан 2-й этаж и чердак, сейчас на перестенках второго этажа лежат затяжки (по моему так называются горизонтальные опоры). Размеры этих опор 150*50мм, такие же как стропила. Утепление будет между горизонтальными опорами минватой 150мм и 50 мм, только пока еще не решил 50мм будет снизу или сверху. На наклонной части понятно что добавить еще 50мм можно только снизу, а вот на горизонтальной можно как снизу так и сверху, зависит от конструкции под гипсокартон. На фото 3976 виден наклонный развернутый угол, т.е. наклонная часть не прямая. Общая ширина комнаты 4м, максимальная длина 4,8м. Ширина горизонтальной части около 3,5м. Нужен совет, как правильно сделать монтаж такого потолка из гипсокартона. Это не стену поставить, тут нужна качественная работа, чтобы не пошли трещины. По чердаку иногда будут ходить, из чего будет пол еще не знаю, хочется из досок, но наверное нужно будет искать более легкие альтернативные материалы. Если возможно прокомментируйте стоимость работ. Буду благодарен за помощь. Посилання на коментар Поділитися на інших сайтах More sharing options...
zmiey Опубліковано: 13 січня 2014 Поділитись Опубліковано: 13 січня 2014 Добрый день, Как Вы рассчитываете количество всего материала на потолок при одном уровне?? И как располагаете листы, вдоль или поперек профиля? Спасибо. Посилання на коментар Поділитися на інших сайтах More sharing options...
Витэк Опубліковано: 13 січня 2014 Поділитись Опубліковано: 13 січня 2014 Материалы просто рассчитать все расчертив. А листы не принципиально как располагать, можно и так и так. Просто нужно знать как по одному, и как по другому. 1 Посилання на коментар Поділитися на інших сайтах More sharing options...
zmiey Опубліковано: 13 січня 2014 Поділитись Опубліковано: 13 січня 2014 А то количество материалов на м2, что пишет Кнауф, в своих тех. листах??? Этому можно верить?? Кто нибудь сравнивал?? Посилання на коментар Поділитися на інших сайтах More sharing options...
Витэк Опубліковано: 13 січня 2014 Поділитись Опубліковано: 13 січня 2014 А то количество материалов Ориентировочно да. Но посчитать проще. Так как могут быть нюансы которые не впишутся в таблицу. Ничего сложного нет. Рисуете в проекции размер, и дальше профиля подвесы листы и все прочее. Посилання на коментар Поділитися на інших сайтах More sharing options...
Саша79 Опубліковано: 13 січня 2014 Поділитись Опубліковано: 13 січня 2014 Господа специалисты, не оставляйте без внимания мой пост 1206. Реально нужна консультация. Мастера скажут мол нужно так и так, а я даже приблизительно не буду понимать как нужно делать. Посилання на коментар Поділитися на інших сайтах More sharing options...
Витэк Опубліковано: 13 січня 2014 Поділитись Опубліковано: 13 січня 2014 Я вам толком сказать не могу, ждите может кто что скажет. .... Посилання на коментар Поділитися на інших сайтах More sharing options...
Саша79 Опубліковано: 13 січня 2014 Поділитись Опубліковано: 13 січня 2014 Я вам толком сказать не могу, ждите может кто что скажет. .... работа по такому потолку может быть очень сложной? во сколько же мне обойдется работа по подшивке? я думал что это стандартный потолок Посилання на коментар Поділитися на інших сайтах More sharing options...
tuw Опубліковано: 14 січня 2014 Поділитись Опубліковано: 14 січня 2014 Господа специалисты, не оставляйте без внимания мой пост 1206. Реально нужна консультация. Мастера скажут мол нужно так и так, а я даже приблизительно не буду понимать как нужно делать. www.google.ru/search?q=%D0%BC%D0%BE%D0%BD%D1%82%D0%B0%D0%B6+%D0%BC%D0%B0%D0%BD%D1%81%D0%B0%D1%80%D0%B4%D0%B0+%D0%B8%D0%B7+%D0%B3%D0%B8%D0%BF%D1%81%D0%BE%D0%BA%D0%B0%D1%80%D1%82%D0%BE%D0%BD%D0%B0&newwindow=1&tbm=isch&tbo=u&source=univ&sa=X&ei=hKbUUpjUC4TDtAahyoDoCA&ved=0CCcQsAQ&biw=1024&bih=505 www.knauf.ru/products/turnkey/product.wbp?root_id=1be68a19-b0cc-46ab-b85f-05fc9ce31756 мы вначале монтируем основной потолок(если есть возможность ,на двойной каркас) потом размечаем свесы.важно чтоб наклонный потолок приходил на стенку в горизонт и на верхний(основной потолок) на одинаковом расстоянии.. Добавлено через 27 минут работа по такому потолку может быть очень сложной? ну не очень сложной ;),с разметкой только немного повозиться. правильно сделаная разметка это 50% работы(любой). Добавлено через 1 минуту во сколько же мне обойдется работа по подшивке? примерно на 25-30 % дороже Посилання на коментар Поділитися на інших сайтах More sharing options...
Саша79 Опубліковано: 14 січня 2014 Поділитись Опубліковано: 14 січня 2014 мы вначале монтируем основной потолок(если есть возможность ,на двойной каркас) потом размечаем свесы.важно чтоб наклонный потолок приходил на стенку в горизонт и на верхний(основной потолок) на одинаковом расстоянии. Схемы и рисунки я изучал, но в этой теме совсем ничего не понимаю. Я планировал утеплитель 150мм между стропилами, и снизу 50 мм с перекрытием стропил, чтобы в общем было 200мм, но насколько я понял, между гипсокартонными профилями не получится установить утеплитель толщиной 50мм. На горизонтальной части я смог бы это сделать над стропилами, со стороны чердака, но на наклонной части это невозможно. Как нарастить эту толщину? Какие профиля лучше использовать при установке таких каркасов? Какими материалами проклеивать стыки так чтобы не появились трещины? Как то стрёмно доверять такую работу мастерам, вообще не имея понятия о том, как и что делается. Заранее благодарен за помощь. Посилання на коментар Поділитися на інших сайтах More sharing options...
tuw Опубліковано: 14 січня 2014 Поділитись Опубліковано: 14 січня 2014 Схемы и рисунки я изучал, но в этой теме совсем ничего не понимаю. Я планировал утеплитель 150мм между стропилами, и снизу 50 мм с перекрытием стропил, чтобы в общем было 200мм, но насколько я понял, между гипсокартонными профилями не получится установить утеплитель толщиной 50мм. На горизонтальной части я смог бы это сделать над стропилами, со стороны чердака, но на наклонной части это невозможно. Как нарастить эту толщину? Какие профиля лучше использовать при установке таких каркасов? Какими материалами проклеивать стыки так чтобы не появились трещины? Как то стрёмно доверять такую работу мастерам, вообще не имея понятия о том, как и что делается. Заранее благодарен за помощь. почему на наклонной части невозможно?профиля поперёк стропил ,немного опустите и ложите вату на профиля. в смысле какие профиля? сд,уд,лучше конечно 0,55. на стыки унифлот,бумага. можно стеклохолст всплошную. удачи вам 2 Посилання на коментар Поділитися на інших сайтах More sharing options...
калета Опубліковано: 14 січня 2014 Поділитись Опубліковано: 14 січня 2014 Я на стропила зробив би металевий каркас а потім зашив його листами в два шарі з розбіжкою стиків, що зменшить ймовірність появи тріщин. В кутах дав би паперову стрічку з металевими полосками. Добре якщо при скручуванні двох CD профілів під різним кутом є можливість вирізати деревяну ніби трикутну планку під потрібним кутом. Посилання на коментар Поділитися на інших сайтах More sharing options...
Саша79 Опубліковано: 14 січня 2014 Поділитись Опубліковано: 14 січня 2014 почему на наклонной части невозможно? потому что высота профиля, если я не ошибаюсь 25мм, потому 50 мм утеплителя не впихнуть Я на стропила зробив би металевий каркас а потім зашив його листами в два шарі з розбіжкою стиків, що зменшить ймовірність появи тріщин т.е. получается чтобы увеличить жесткость, придется увеличить нагрузку на стропила, знать бы как они себя поведут со временем, не прогнутся ли. Посилання на коментар Поділитися на інших сайтах More sharing options...
tuw Опубліковано: 14 січня 2014 Поділитись Опубліковано: 14 січня 2014 потому что высота профиля, если я не ошибаюсь 25мм 28мм.а если немного опустить ;),буквально на 25-30мм.кронштейн позволяет. Добавлено через 4 минуты Добре якщо при скручуванні двох CD профілів під різним кутом є можливість вирізати деревяну ніби трикутну планку а зачем их скручивать? Посилання на коментар Поділитися на інших сайтах More sharing options...
octavis Опубліковано: 14 січня 2014 Поділитись Опубліковано: 14 січня 2014 Еще раз обращаюсь за советом. Сейчас мои знакомые, проверенные временем специалисты, делают мансардный этаж. Размер мансарды 11 *4,2 Весь материал закуплен более, менее качественный. Профиль 0,55 (Киев Профиль), подвесы 0,7 Ветробарьер Утепление между стойками 200 мм ваты Ursa PureOne Потом через 35 см поперек стоек набиты доска 30*100 мм, для монтажа будущего каркаса. Далее Паробарьер с проклейкой лентой К2, ну и собственно сам каркас на фото. Профиля через 40 см по центрам, подвесы через 30-35 см. Дополнительно между профилями еще 5 см ваты Ursa PureOne (итого 25 см) Нужна консультация, как правильно сделать следующий узел Мастера предлагают несколько решений. 1. Оставить как есть, расстояние между стойками внутри 34 см, гипсокартон на таком расстоянии не прогнется. 2. Сделать ложный сегмент, который не будет крепится к общему каркасу, а будет скручивать 2 листа ГК (согнуть профиль по длине под углом 45 гр. и скрутить через гипс два листа между собою) 3. самый сложный и на мой взгляд непрактичный. Это жесткое крепление поперечного сегмента на блошки. Но при таком варианте, толщина профиля + блошки, оттянет от уровня стены гипс на 3-4 мм. Потом шпаклевщикам больше работы, толще слой. Сейчас уровень практически идеальный, сам проверял лазерным, правилом 3 м. Максимум погрешность 1мм Также подскажите как должен монтироваться ГК именно в этом узле (45 град). Нужно ли снимать кромку, оставлять зазор для шпаклевания стыка. Посилання на коментар Поділитися на інших сайтах More sharing options...
VEGEL Опубліковано: 14 січня 2014 Поділитись Опубліковано: 14 січня 2014 Раз уж так начали, то как вариант я бы делал по одной СД на каждой плоскости(не гнул бы как на фото). Соединить можно как на два УД по краям, так и с помощью углового соединения. Горбов от головок саморезов не будет. Правда подвесы у вас мешают. Сместить придется. 1 Посилання на коментар Поділитися на інших сайтах More sharing options...
tuw Опубліковано: 14 січня 2014 Поділитись Опубліковано: 14 січня 2014 glazovo7.ru/2012/04/14/karkas-gipsokartona-dlya-mansardy-chast-2-skaty/ как вариант развернутого угла. (ссылка устарела) вариант. перевязка плоскостей в углах только через гк,желательно удачи 2 Посилання на коментар Поділитися на інших сайтах More sharing options...
Саша79 Опубліковано: 14 січня 2014 Поділитись Опубліковано: 14 січня 2014 Еще раз обращаюсь за советом. Сейчас мои знакомые, проверенные временем специалисты, делают мансардный этаж. Поверх слоя утеплителя 50мм, под гипсокартон будет укладываться еще один слой паробарьера? Или оставите этой слой незащищенным? В таком случае, как мне кажется, это просто выброшенные на ветер деньги. Пар который будет останавливаться на паробарьере, будет, "увлажнять" утеплитель, т.е. своих функций он выполнять не будет. Теоретически, если бы не было паробарьера, пар мог еще пройти через утеплитель и выйти наружу. Но снаружи нужно было бы установить например диф. мембрану. Посилання на коментар Поділитися на інших сайтах More sharing options...
tuw Опубліковано: 14 січня 2014 Поділитись Опубліковано: 14 січня 2014 Потом через 35 см поперек стоек набиты доска 30*100 мм, для монтажа будущего каркаса каркас желательно крепить к несущим балкам 1 Посилання на коментар Поділитися на інших сайтах More sharing options...
octavis Опубліковано: 14 січня 2014 Поділитись Опубліковано: 14 січня 2014 Поверх слоя утеплителя 50мм, под гипсокартон будет укладываться еще один слой паробарьера? Или оставите этой слой незащищенным? В таком случае, как мне кажется, это просто выброшенные на ветер деньги. Пар который будет останавливаться на паробарьере, будет, "увлажнять" утеплитель, т.е. своих функций он выполнять не будет. Теоретически, если бы не было паробарьера, пар мог еще пройти через утеплитель и выйти наружу. Но снаружи нужно было бы установить например диф. мембрану. Значение пара слишком преувеличивают. Промерзания до внутреннего слоя минваты не будет. Так как 20 см минваты, паро и ветробарьер с двух сторон на 100% защитят. Согласно вашей логике, внутренние перегородки, утепленные минватой, тоже надо защищать паробарьером Добавлено через 2 минуты каркас желательно крепить к несущим балкам расстояние между несущими стойками разное (крыша делалась давно). Есть 90 см, есть 1,10 Именно поэтому я принял решение укрепить поперечными досками весь каркас, через 35 см (30*100). Именно они и служат основой для крепления каркаса. Посилання на коментар Поділитися на інших сайтах More sharing options...
Рекомендовані повідомлення
Створіть акаунт або увійдіть у нього для коментування
Ви маєте бути користувачем, щоб залишити коментар
Створити акаунт
Зареєструйтеся для отримання акаунта. Це просто!
Зареєструвати акаунтУвійти
Вже зареєстровані? Увійдіть тут.
Увійти зараз