Alex_kr Опубліковано: 6 жовтня 2010 Поділитись Опубліковано: 6 жовтня 2010 Ну, S скобы это муторно, просто проволокой к наклонным пруткам. По расчёту Вам и 8мм дополнительной арматуры хватит, если на крючки вешать, проще просто чуть потолще арматуру взять, но привязать как удобней;) понял спасибо на выходных буду заниматься так сказать корректировкой и установкой доп арматуры Посилання на коментар Поділитися на інших сайтах More sharing options...
Alex_kr Опубліковано: 7 жовтня 2010 Поділитись Опубліковано: 7 жовтня 2010 Есть еще вопрос для заливки буду заказывать сухой бетон марка М-250 (с завода), чтоб быстрее можно было залить но т.к. на улице ночью уже у нас бывает минус что лучше добавить в раствор чтоб не замерзал он (какие добавки и прочее), а то не дай бог через неделю бахнут морозы и моя заливка станет так сказать колом. Заливать планирую на следующей неделе P.S. Предлогали ребята купить просто щебень и цемент и они типа все сделают, но считаю что сам щебень и цемент мне сейчас выйдут дороже чем купить готовый сухой бетон, потому как надо мне примерно 3-3,5 куба Посилання на коментар Поділитися на інших сайтах More sharing options...
Winder Опубліковано: 7 жовтня 2010 Поділитись Опубліковано: 7 жовтня 2010 Есть еще вопрос для заливки буду заказывать сухой бетон марка М-250 (с завода), чтоб быстрее можно было залить но т.к. на улице ночью уже у нас бывает минус что лучше добавить в раствор чтоб не замерзал он (какие добавки и прочее), а то не дай бог через неделю бахнут морозы и моя заливка станет так сказать колом. Заливать планирую на следующей неделе P.S. Предлогали ребята купить просто щебень и цемент и они типа все сделают, но считаю что сам щебень и цемент мне сейчас выйдут дороже чем купить готовый сухой бетон, потому как надо мне примерно 3-3,5 куба А почему сухой??? Возмите сразу готовый с противоморозной добавкой до -5 Посилання на коментар Поділитися на інших сайтах More sharing options...
valya_bes Опубліковано: 7 жовтня 2010 Поділитись Опубліковано: 7 жовтня 2010 Поддерживаю. Лучше готовый. Вы уверены, что вам необходимо 3,5 куба? У меня в результате получилось больше, чем планировали. Вот как мы заливали www.stroimdom.com.ua/forum/showpost.php?p=586131&postcount=37 Посилання на коментар Поділитися на інших сайтах More sharing options...
Alex_kr Опубліковано: 8 жовтня 2010 Поділитись Опубліковано: 8 жовтня 2010 А почему сухой??? Возмите сразу готовый с противоморозной добавкой до -5 уверен 3-3,5 куба это уже с большим запасом я бы с большой охотой естественно взял бы миксер с бетоном, но к сожалению прийдетсЯ покупать сухой бетон из-за того что подьезд миксера к месту заливки не возможен. А от дороги это место примерно в 35-40 метрах. Заказывать бетононасос для 3-х кубов вообще безсмусленно, да и дорого вот тут пытался найти ребят которые смогут помочь сделать заливку www.stroimdom.com.ua/forum/showthread.php?t=46356 всего откликнулось двое, один потом начал уговаривать меня привести миксер и с миксера все залить. На мой вопрос в чем будете носить бетон к месту заливки от миксера сказал в ведрах, а на вопрос что скажет водитель бетоновоза, когда будет насыпать тем кто будет таскать по чайной ложке в ведерочко, сказал уточню ну и тихо испарился Посилання на коментар Поділитися на інших сайтах More sharing options...
Alex_kr Опубліковано: 8 жовтня 2010 Поділитись Опубліковано: 8 жовтня 2010 Поддерживаю. Лучше готовый. Вы уверены, что вам необходимо 3,5 куба? У меня в результате получилось больше, чем планировали. Вот как мы заливали www.stroimdom.com.ua/forum/showpost.php?p=586131&postcount=37 да вашу стройку тоже пересмотрел как заливали но из-за невозможности подьезда транспорта к месту заливки придется так сказать извращаться Посилання на коментар Поділитися на інших сайтах More sharing options...
Alex_kr Опубліковано: 10 жовтня 2010 Поділитись Опубліковано: 10 жовтня 2010 ну за выходные успел сделать разделительные ребра прокинул арматуру и привязал скобами, так же усилил балки на которые прийдется опора укороченной балки сделал с низу все подпоры и позакрывал все дыры в ребрах жесткости так же выставил опалубку для ляды к сожалению не успел выставить боковую опалубку, но надеюсь те кто приедет помогать заливать с этим справятся сами и быстрее чем я один. вот что в итоге имею сейчас вот уже дома сидел и еще раз перечитывал инструкцию теривовскую причем ни где не нашел, что если вы делаете какой либо проём и при этом приходиться резать балку (которая может проходить через него) то надо использовать разделительные ребра ну блин и химики , думают что народ сам догадается их делать они у себя на сайте о проемах в перекрытии очень скудно расписали, а там поди додумайся сам (ссылка устарела) так же есть следующий вопрос при бетонировании буду использовать сухой бетон, специально буду заказывать именно сухой чтоб проще тягать к бетономешалке (ибо далеко) и потом заливать его. И так как сейчас на дворе не то какие добавки лучше испрользовать, чтоб бетон который приготовим уже на месте мог нормально зреть не боясь быть замороженным??? Посилання на коментар Поділитися на інших сайтах More sharing options...
smilyk Опубліковано: 20 жовтня 2010 Поділитись Опубліковано: 20 жовтня 2010 Простите, не углядел, а у кого Вы покупали Териву? И я смотрю, крайние блоки закрыты пенопластом что ли? Что это? Посилання на коментар Поділитися на інших сайтах More sharing options...
frankfurt Опубліковано: 22 жовтня 2010 Поділитись Опубліковано: 22 жовтня 2010 Поддерживаю. Лучше готовый. Вы уверены, что вам необходимо 3,5 куба? У меня в результате получилось больше, чем планировали. Вот как мы заливали www.stroimdom.com.ua/forum/showpost.php?p=586131&postcount=37 Здравствуйте.Я посмотрел ваши фото и не могу понять зачем под бетонные балки я имею в виду те на которые ложатся блоки ложить раствор Посилання на коментар Поділитися на інших сайтах More sharing options...
valya_bes Опубліковано: 22 жовтня 2010 Поділитись Опубліковано: 22 жовтня 2010 Здравствуйте.Я посмотрел ваши фото и не могу понять зачем под бетонные балки я имею в виду те на которые ложатся блоки ложить раствор Немного не поняла, что Вы имели ввиду под раствором, где именно, на какой фотографии? Посилання на коментар Поділитися на інших сайтах More sharing options...
frankfurt Опубліковано: 22 жовтня 2010 Поділитись Опубліковано: 22 жовтня 2010 Немного не поняла, что Вы имели ввиду под раствором, где именно, на какой фотографии? Я имел в виду балки теревы ложили на раствор или прямо на кирпич Посилання на коментар Поділитися на інших сайтах More sharing options...
valya_bes Опубліковано: 22 жовтня 2010 Поділитись Опубліковано: 22 жовтня 2010 Я имел в виду балки теревы ложили на раствор или прямо на кирпич балки ложили на стены из кирпича Посилання на коментар Поділитися на інших сайтах More sharing options...
frankfurt Опубліковано: 22 жовтня 2010 Поділитись Опубліковано: 22 жовтня 2010 балки ложили на стены из кирпича Извените что надоедаю просто многие здесь пишут что ложим на раствор а другие надо поднять на 4см чтобы под балку зашёл бетон .Короче я просто этого не понемаю Посилання на коментар Поділитися на інших сайтах More sharing options...
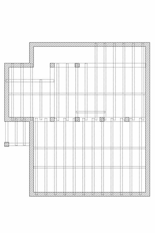
dimasik Опубліковано: 22 жовтня 2010 Поділитись Опубліковано: 22 жовтня 2010 интересное решение- это повидимому неправильно выполненный армопояс?? покажите дальнейшие фото, как была заложена арматура ? kolumb, лучше покажите решение следующей задачи: когда одна из балок операется на стену только с одной стороны, а другой стороной "висит в воздухе". Посилання на коментар Поділитися на інших сайтах More sharing options...
Alex_kr Опубліковано: 22 жовтня 2010 Поділитись Опубліковано: 22 жовтня 2010 Простите, не углядел, а у кого Вы покупали Териву? И я смотрю, крайние блоки закрыты пенопластом что ли? Что это? покупал у Брего крайние блоки закрывал пенопластовыми заглушками, стоимость одной заглушки 3грн (это если надо) вопрос что это не пойму, что это что??? Здравствуйте.Я посмотрел ваши фото и не могу понять зачем под бетонные балки я имею в виду те на которые ложатся блоки ложить раствор бетонные балки лучше когда укладываются на стену или еще на какиу опору, лучше положить на раствор, чтоб он убрал все неровностии получился так сказать подушкой для опирания балки я правильно понял ваш вопрос??? Извените что надоедаю просто многие здесь пишут что ложим на раствор а другие надо поднять на 4см чтобы под балку зашёл бетон .Короче я просто этого не понемаю ну на сколько я понимаю терива, когда заливается если балка поднята на 4 см (как укакзывает производитель), она застывает в залитом армопоясе со всех четырех сторон так сказать связывается с армопоясом крепче и застывает в самом поясе, а если ее не поднимать то пятка опоры остается замоноличенной только с трех сторон Посилання на коментар Поділитися на інших сайтах More sharing options...
Alex_kr Опубліковано: 22 жовтня 2010 Поділитись Опубліковано: 22 жовтня 2010 интересное решение- это повидимому неправильно выполненный армопояс?? покажите дальнейшие фото, как была заложена арматура ? kolumb, лучше покажите решение следующей задачи: когда одна из балок операется на стену только с одной стороны, а другой стороной "висит в воздухе". для этого делают с помощью арматурного каркаса может вы это имели в виду (ссылка устарела) Посилання на коментар Поділитися на інших сайтах More sharing options...
Andreika80 Опубліковано: 29 жовтня 2010 Поділитись Опубліковано: 29 жовтня 2010 Тоже у себя в Херсоне устанавливаю перекрытия Терива.Возникло не мало вопросов.На большинство ответили на фирме где заказывал,но все таки хотел бы обсудить с кем нибудь по месту.Кстати есть кто нибудь из Херсона,кто их уже делал? По поводу перекрытый,звонил в Киев,Виницу...но потом нашел фирму из Николаева,они вроде одни тут у нас на юге Украины.Цена одна из самых низких на Украине. Приехал к ним в офис,рассказали столько, что до сих пор перевариваю инфу.Повозили по городу показывали свои объекты,конечно впечатляет.Сделал заказ.Все хорошо,кроме того,что обещали что смогут прислать человека специалиста на 3-4 дня,чтоб он контролировал монтаж.Уже вторую неделю жду,рассказывают что бригада занята,и никто пока не может приехать. Надеюсь, с херсона кого нибудь найти. Если кому интересны ребята из николаева,то вот их сайт (ссылка устарела) Посилання на коментар Поділитися на інших сайтах More sharing options...
dimasik Опубліковано: 29 жовтня 2010 Поділитись Опубліковано: 29 жовтня 2010 иногда такое впечатление возникает, что люди уже после того как приступили к стройке начинают читать теорию) при покупке Теривы прилагается инструкция, где раскрыты все вопросы. у Брего в офисе прекрасный макет, все понятно. дают в руки бесплатные расчеты. одного не понимаю, зачем еще привлекать специалистов для монтажа за бешенные деньги? здесь в теме, половина вопросов по Териве от невычитанного материала. Человеку, который захочет применить Териву сориентироваться в 15 страницах будет очень сложно. вы даете: разложить балки по уровню, а по ним керамзитные блоки уже не можете без конструктора! ниже два эскиза: выполненный конструктором и мной. смотрите чей будет читабельнее). я консультировался следующим образом: показывал конструкторам свои эскизы раскладок балок, задавал вопросы по слабым местам, и не морочил им голову). Посилання на коментар Поділитися на інших сайтах More sharing options...
Alex_kr Опубліковано: 30 жовтня 2010 Поділитись Опубліковано: 30 жовтня 2010 dimasik а что вы нервничаете я тоже когда начинал, после прочтения инструкции задавал кучу вопросов вот к примеру меня интересовал вопрос, как сделать проем в перекрытии, при котором приходится резать одну балку. даже при доскональном прочтении хваленой инструкции от Брего там этого нет. и то что желательно делать ребра жесткости по краям проема тоже нет этого ни в инструкции ни даже на их сайте. Вот мол догадайся сам. А так в принципе разберется любой, но есть нюансы без которых извините никуда. Если хотите знать я в Брего задолбал всех, и директора поляка и второго директора украинца, и по телефону уже как называю свою фамилию у девчат там скоро от моих звонков (консультаций) или выработается стойкий иммунитет или алергия, одно из двух ;) Но надо отдать им должное, все нормально выслушают и предложат несколько вариантов решения вашей проблемы. За это им ставлю зачет, молодцы так держать Для тех кто разобрался в тонкостях как что ложить, это проблемы не составляет, а для тех кто начинает, там разбираться еще дай боже Но для начала согласен надо почитать инструкцию Сейчас опять их достаю, но с вопросом чтоб сделать перекрытие, которое будет выдерживать 3-4 бочки "Еврокуб" с водой, поставленные друс за другом (так сказать паровозом). Посилання на коментар Поділитися на інших сайтах More sharing options...
smilyk Опубліковано: 13 грудня 2010 Поділитись Опубліковано: 13 грудня 2010 подскажите мне - залил Териву. Пролеты по 4 метра. Заливал вручную (спеццемент М500 Д0 в соотношении 1Ц-2П-3 Щебня 5-20), кроме этого основную плоскость армировал сеткой 100х100 плюс остатки 10й арматуры поперек балок где то через 50-60см. Сразу после заливки на следующий день ударил мороз.. от -4 до -15. Еще мелкий снег понемногу падает - потом тает... Или дождь. В течение 10 дней температура колеблется от +5 до -10. Снизу подпирал телескопическим стойками и балками, взятыми в аренду. Вопрос - при таком температурном режиме насколько оставлять подпорки, и когда их можно снять? Я бы и до весны оставил - но взято все в аренду. На какой срок оформлять аренду? Посилання на коментар Поділитися на інших сайтах More sharing options...
Winder Опубліковано: 13 грудня 2010 Поділитись Опубліковано: 13 грудня 2010 Весной надо было перекрытие лить Посилання на коментар Поділитися на інших сайтах More sharing options...
Alex_kr Опубліковано: 13 грудня 2010 Поділитись Опубліковано: 13 грудня 2010 (змінено) подскажите мне - залил Териву. Пролеты по 4 метра. Заливал вручную (спеццемент М500 Д0 в соотношении 1Ц-2П-3 Щебня 5-20), кроме этого основную плоскость армировал сеткой 100х100 плюс остатки 10й арматуры поперек балок где то через 50-60см. Сразу после заливки на следующий день ударил мороз.. от -4 до -15. Еще мелкий снег понемногу падает - потом тает... Или дождь. В течение 10 дней температура колеблется от +5 до -10. Снизу подпирал телескопическим стойками и балками, взятыми в аренду. Вопрос - при таком температурном режиме насколько оставлять подпорки, и когда их можно снять? Я бы и до весны оставил - но взято все в аренду. На какой срок оформлять аренду? я спецом все заливки теривы отложил до весны потому как зима это дело непредсказуемое и можно потом попасть опять на новое перекрытие (так сказать) я когда перекрытие подвала заливал то на всякий случай для перестраховки в бетон вливал протовоморозные добавки и для заливки сам бетон я не делал а на бетонном заводе заказывал так сказать сухой бетон (так сказать просто добавь воды), а потом ребята мне его на месте в мешалке замешивали. привозил себе самосвалом Такой вопрос, в раствор добавлял ли антиморозные присадки или нет?? если нет то хреново, тогда пусть твои стоийки стоят как можно дольше тут уже как повезет так сказать у тя два варианта или все нормально будет или потом все заново (дай бог чтоб не менять перекрытия полностью) потому как при минусе цемент долго набирает свои свойства, это надо у ребят спрашивать (мож кто подскажет) попробуй по этому поводу новую тему создать, типа вопрос по цементу или то то подобное Змінено 13 грудня 2010 користувачем Alex_kr 1 Посилання на коментар Поділитися на інших сайтах More sharing options...
smilyk Опубліковано: 14 грудня 2010 Поділитись Опубліковано: 14 грудня 2010 Присадки не добавлял, потому что советовался и для перекрытия не советовали добавлять - сказали, что они влияют на прочность. Для других заливок да, а для перекрытия не советовали. В общем, я так думаю - попробую на пару месяцев подпорки оставить. Рассчитываю на качество цемента - я все в доме им лью - М500Д0. До этого качество не подводило, надеюсь так будет и дальше. Посилання на коментар Поділитися на інших сайтах More sharing options...
smilyk Опубліковано: 16 грудня 2010 Поділитись Опубліковано: 16 грудня 2010 У меня в результате получилось больше, чем планировали. У меня тоже получилось больше, чем считал... Заливали вручную - один выход миксера 180-200 литров. Площадь поверхности 60 квадратов, длина армопояса около 50 метров плюс ребра Теривы и стяжка 3,5-4 см. По моим подсчетам получилось около 10 кубов. Залили вчетвером за 2 дня. Посилання на коментар Поділитися на інших сайтах More sharing options...
alyak Опубліковано: 16 грудня 2010 Поділитись Опубліковано: 16 грудня 2010 подскажите мне - залил Териву. Пролеты по 4 метра. Заливал вручную (спеццемент М500 Д0 в соотношении 1Ц-2П-3 Щебня 5-20), кроме этого основную плоскость армировал сеткой 100х100 плюс остатки 10й арматуры поперек балок где то через 50-60см. Сразу после заливки на следующий день ударил мороз.. от -4 до -15. Еще мелкий снег понемногу падает - потом тает... Или дождь. В течение 10 дней температура колеблется от +5 до -10. Снизу подпирал телескопическим стойками и балками, взятыми в аренду. Вопрос - при таком температурном режиме насколько оставлять подпорки, и когда их можно снять? Я бы и до весны оставил - но взято все в аренду. На какой срок оформлять аренду? может еще и разбивать прийдется . больше месяца держать стойки не стоит . Посилання на коментар Поділитися на інших сайтах More sharing options...
Рекомендовані повідомлення
Створіть акаунт або увійдіть у нього для коментування
Ви маєте бути користувачем, щоб залишити коментар
Створити акаунт
Зареєструйтеся для отримання акаунта. Це просто!
Зареєструвати акаунтУвійти
Вже зареєстровані? Увійдіть тут.
Увійти зараз