Шаркер Опубліковано: 13 травня 2013 Автор Поділитись Опубліковано: 13 травня 2013 первый этаж закончен. Расход газобетона получился = 28 полет, клея ушло около 80-ти мешков. Читал, что обычно расход клея 1 - 1,2 мешка на 1 куб. У меня чего-то больше вышло. Перемычки заливал, мостик холода отсекал экструдированным пенопластом. Была идея - покупать перемычки из газобетона, взвесил за и против, по деньгам одно и тоже, но залитые - крепче. Залил. 1 Посилання на коментар Поділитися на інших сайтах More sharing options...
blacktigra Опубліковано: 13 травня 2013 Поділитись Опубліковано: 13 травня 2013 Шаркер, тогда желаю удачи. Планировка понравилась. Кстати, тему надо было переименовать в "Бой начинается!" :D 1 Посилання на коментар Поділитися на інших сайтах More sharing options...
Шаркер Опубліковано: 13 травня 2013 Автор Поділитись Опубліковано: 13 травня 2013 Положили 1 этаж стены, высота вышла 3,45 м. Приступили к монолиту 1-го этажа. начал искать опалубку горизонтальную в аренду, оказалось дело не простое. Нашел через знакомого, хорошую фирму, за очень приличные (адекватные) деньги отдали в аренду на 2 месяца. Рассчитываю успеть залить и второй монолит. Сереже привет и спасибо. Рекомендую, если нужны контакты пишите. 3 Посилання на коментар Поділитися на інших сайтах More sharing options...
Шаркер Опубліковано: 13 травня 2013 Автор Поділитись Опубліковано: 13 травня 2013 Шаркер, тогда желаю удачи. Планировка понравилась. Кстати, тему надо было переименовать в "Бой начинается!" :D Спасибо! ) 1 Посилання на коментар Поділитися на інших сайтах More sharing options...
cheser1 Опубліковано: 13 травня 2013 Поділитись Опубліковано: 13 травня 2013 Добрый день. Может че то не досмотрел но увидел только у Вас только 4 выпуска под сердечники. Хотя по сейсмике должны стоять по каждому углу, местах премыкания перестенков и на длинных стенах каждые 4 метра, если не ошибаюсь. Это для ячеистых бетонов. Рулонная гидроизоляция по сейсмике тоже не проходит. 2 Посилання на коментар Поділитися на інших сайтах More sharing options...
Шаркер Опубліковано: 13 травня 2013 Автор Поділитись Опубліковано: 13 травня 2013 Добрый день. Может че то не досмотрел но увидел только у Вас только 4 выпуска под сердечники. Хотя по сейсмике должны стоять по каждому углу, местах премыкания перестенков и на длинных стенах каждые 4 метра, если не ошибаюсь. Это для ячеистых бетонов. Рулонная гидроизоляция по сейсмике тоже не проходит. Вы правы. Рулонная по сейсмике не подходит. Но я не думаю, что Одессу можно отнести к сейсмически активной зоне ), и столько "ложу" веса на фундамент - монолит 1-го этажа, монолит 2-го этажа, армопояс под крышу, крыша - кстати посчитаю для интереса вес, потом отпишусь, что на "рулончики" можно не обращать внимание ). Про сердечники и перестенки уточню, не готов комментировать. 1 Посилання на коментар Поділитися на інших сайтах More sharing options...
cheser1 Опубліковано: 13 травня 2013 Поділитись Опубліковано: 13 травня 2013 Вы правы. Рулонная по сейсмике не подходит. Но я не думаю, что Одессу можно отнести к сейсмически активной зоне ), и столько "ложу" веса на фундамент - монолит 1-го этажа, монолит 2-го этажа, армопояс под крышу, крыша - кстати посчитаю для интереса вес, потом отпишусь, что на "рулончики" можно не обращать внимание ). Про сердечники и перестенки уточню, не готов комментировать. Почитайте вот эту тему на досуге www.stroimdom.com.ua/forum/showthread.php?t=89318&highlight=130+%E4%EB%FF+%F3%E7%EA%EE%E3%EE+%F3%F7%E0%F1%F2%EA%E0 Очень полезная и позновательная тема, и коментарии уважаемого одесского архитектора. Одесса, все таки сейсмо зона. И если на рулонную гидроизоляцию и можно закрыть глаза, типа наши деды так строились и все ок. То на сердечники надо было обратить внимание, Газоблоков у дедов не было Ну это скорее минус вашему проектировщику 1 Посилання на коментар Поділитися на інших сайтах More sharing options...
Pe_Na Опубліковано: 13 травня 2013 Поділитись Опубліковано: 13 травня 2013 Но я не думаю, что Одессу можно отнести к сейсмически активной зоне ) Зря. Да, нас качает редко, но мы в зоне риска. Мне когда конструктор проектировал дом, через полгода перезвонил и предлагал бесплатно сделать перерасчет и добавить прочности, потому что наш регион перевели в другую группу сейсмичности 1 Посилання на коментар Поділитися на інших сайтах More sharing options...
Шаркер Опубліковано: 13 травня 2013 Автор Поділитись Опубліковано: 13 травня 2013 Вы правы. Рулонная по сейсмике не подходит. Но я не думаю, что Одессу можно отнести к сейсмически активной зоне ), В отношении сейсмологии был поднят вопрос, очень верно. Был не прав в своем комментарии. Вот, что успел понаходить, может кому-то будет полезно. www.seism.org.ua/seism04-02_r.html (ссылка устарела) www.seism.org.ua/seism04-02_r.html Посилання на коментар Поділитися на інших сайтах More sharing options...
Шаркер Опубліковано: 13 травня 2013 Автор Поділитись Опубліковано: 13 травня 2013 После установки опалубки, в принципе достаточно быстро "связали" арматуру - где-то за 3 дня. Может трудолюбивые, а может домой просто на майские хотели :) опалубку устанавливал на плиты ОСБ, 22мм., Польша. Выстелили пленкой, перед заливкой. Посмотрим при снятии, думаю с ними все будет ок Металл брали на УГМК, очень толковые, спасибо Алевтине. Заливался через бетононасос, 60 м. трасса Бетон брали в "Комфорте", М300, П4. Расход бетона = 26,5 м. куб. Комфорт - молодцы, очень толковые, организованные и доброжелательные. Отдельно спасибо - Георгию. При заливке использовали электрич. глубинный вибратор. Вроде все 2 Посилання на коментар Поділитися на інших сайтах More sharing options...
Шаркер Опубліковано: 14 травня 2013 Автор Поділитись Опубліковано: 14 травня 2013 Уважаемые коллеги, подскажите если какие-то сформировавшиеся убеждения в отношении окон и раздвижных систем для террас - ПВХ или алюминий? Посилання на коментар Поділитися на інших сайтах More sharing options...
Шаркер Опубліковано: 15 травня 2013 Автор Поділитись Опубліковано: 15 травня 2013 Уважаемые коллеги, подскажите если какие-то сформировавшиеся убеждения в отношении окон и раздвижных систем для террас - ПВХ или алюминий? Отбиваясь от кучи писем и обратной связи о мнениях в отношении ПВХ и алюминия, применил секретное оружие - супруга. И знаете, работает. Потом все обобщу и отпишусь. Посилання на коментар Поділитися на інших сайтах More sharing options...
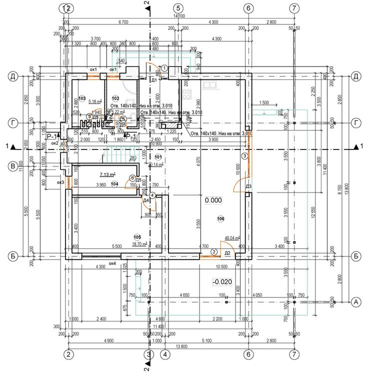
s_fly Опубліковано: 16 травня 2013 Поділитись Опубліковано: 16 травня 2013 Да, впечатляет!!! Фундамент под вентканал армир. 50 куб.м. Это опечатка или я чего-то не понял? На моем участке перепад высот составил 23 градуса, что составило от фасадной стенки до задней стенки дома, перепад почти в 30 см. У нас перепад менее 10 градусов а по высоте это 1.5 м Очень много деталей, если все помещать, то получается либо мелко, либо большой файл. При таком качестве pdf-а наиболее правильно конвертировать в png (см. фото1). Опалубка под фундамент - мощнейший Расход газобетона получился = 28 полет, клея ушло около 80-ти мешков. Читал, что обычно расход клея 1 - 1,2 мешка на 1 куб. У меня чего-то больше вышло. Все пишут о расходе мешок (25кг) на 1м3. Лично у меня на куб уходило меньше мешка. Ваши строители имеют возможность к выносу материала? И шпатель с какими зубцами используете? Тоже пробовал как клей Аэрок, так и Аквалит. Сейчас точно не помню, но по-моему у второго мешок 20 кг. и лично мне совсем не понравился. Аэрок отличный клей, но что-то у поставщика его небыло. Долго не искал и сейчас беру Экомикс в Эпицентре. Выстелили пленкой, перед заливкой. Посмотрим при снятии, думаю с ними все будет ок Если использовать пленку, OSB будет практически вечная Кстати удобно пленку пристрелевать степлером (в углах и по шву). Хочу еще у Вас спросить: какой шаг сетки плиты перекрытия и и какую арматуру использовали? Плиту кто рассчитывал? Заранее спасибо. Удачи в строительстве! 1 Посилання на коментар Поділитися на інших сайтах More sharing options...
serges Опубліковано: 16 травня 2013 Поділитись Опубліковано: 16 травня 2013 Шаркер, по поводу ПВХ vs AL, врядли открою для Вас Америку что алюм. холоднее и вроде дороже. О ПВХ окнах очень подробно расписано в журнале Murator 04/2011. Если интересно скиньте мейл, я Вам вышлю в пдф-е. 1 Посилання на коментар Поділитися на інших сайтах More sharing options...
Шаркер Опубліковано: 17 травня 2013 Автор Поділитись Опубліковано: 17 травня 2013 S_fly, про фундамент под вент.канал - не нашел у себя в тексте, но точно не было там 50 м.куб., наверно очепятка или "линканите" где это по тексту? По клею разобрался, что с расходом, вчера приглашал специалиста, что бы он посмотрел технологию, ну и собственно, что получилось, все дело в гребенке, мои строители работают №8, поэтому и расход больше. По рекомендации специалиста, лучше применять №5. Плиту - считал конструктор, сброшу инфу завтра, надо добраться до проекта, он в др. компе. Спасибо за пожелания. 2 Посилання на коментар Поділитися на інших сайтах More sharing options...
Шаркер Опубліковано: 19 травня 2013 Автор Поділитись Опубліковано: 19 травня 2013 to S_fly, про арматуру: арматура 8, 12, 16. Шаг = 200. 1 Посилання на коментар Поділитися на інших сайтах More sharing options...
Александр. Киев Опубліковано: 19 травня 2013 Поділитись Опубліковано: 19 травня 2013 Выдержит 400-х сотой плотности газобетон вес перекрытия и крышы? В углах окон не "порепается" горизонтальными или вертикальными трещинами ? Посилання на коментар Поділитися на інших сайтах More sharing options...
Шаркер Опубліковано: 19 травня 2013 Автор Поділитись Опубліковано: 19 травня 2013 Выдержит 400-х сотой плотности газобетон вес перекрытия и крышы? В углах окон не "порепается" горизонтальными или вертикальными трещинами ? Выдержит. над окнами заливаю перемычки. После последнего монолита, подниму 3-4 ряда камня, сделаю армопояс и на него уже буду "ложить" крышу. От армопояса к монолиту сделаю, по углам и по средине каждой из стен, бетонные "выпуски", чтобы вес крыши равномерно распределить по армопоясу, и сам армопояс опереть на монолит. Ну вот, как-то так. Посилання на коментар Поділитися на інших сайтах More sharing options...
Шаркер Опубліковано: 22 травня 2013 Автор Поділитись Опубліковано: 22 травня 2013 И так, закуплена 1 машинка газобетона. По прежнему беру "Аэрок". 1 машинка = 18 полет х 1,92 м.куб. = 34,56 м.куб., камень - 400х200х600, плотность 400. Приступили ко второму этажу. В силу того, что по проекту будет еще терраса, то её крыша "ложится" на мауэрлат, который закрепил на монолите. Сам мауэрлат обработал химией - от пожаро, насекомо и т.д. опасности Фото будет позже. Добавлено через 3 минуты И так, закуплена 1 машинка газобетона. По прежнему беру "Аэрок". Кстати про газобетон. Могу отметить следующее, что камень приходит с завода - "мокрый", т.е. как мне кажется производитель - производит, а вот просушить по ходу забывает. Поскольку полета обмотана пленкой, понятное дело, что только-что изготовленное изделие, обмотанное пленкой - не сохнет. Поэтому - разгружаю, переношу на второй этаж и там досыхает. Дал 2-ое суток на подсохнуть. У кого-то есть комментарии какие-то в отношении влажности газоблока? 1 Посилання на коментар Поділитися на інших сайтах More sharing options...
s_fly Опубліковано: 22 травня 2013 Поділитись Опубліковано: 22 травня 2013 У кого-то есть комментарии какие-то в отношении влажности газоблока? Так его и не нужно сушить: сразу в дело - потом высохнет Посилання на коментар Поділитися на інших сайтах More sharing options...
Шаркер Опубліковано: 22 травня 2013 Автор Поділитись Опубліковано: 22 травня 2013 Так его и не нужно сушить: сразу в дело - потом высохнет это точно. Есть нюанс, когда его перегружают, а он влажный еще, он реально Очень крохкий. Посилання на коментар Поділитися на інших сайтах More sharing options...
AНДРЮША Опубліковано: 24 травня 2013 Поділитись Опубліковано: 24 травня 2013 Вы снимете пленку сразу, быстро высохнет. Посилання на коментар Поділитися на інших сайтах More sharing options...
Шаркер Опубліковано: 24 травня 2013 Автор Поділитись Опубліковано: 24 травня 2013 Вы снимете пленку сразу, быстро высохнет. согласен, попробую поискать насколько это правильно, только что сделанный камень закрывать пленкой. Посилання на коментар Поділитися на інших сайтах More sharing options...
Александр. Киев Опубліковано: 25 травня 2013 Поділитись Опубліковано: 25 травня 2013 Есть нюанс, когда его перегружают, а он влажный еще, он реально Очень крохкий. Пусть открытый хоть мясячишку постоит. 1 Посилання на коментар Поділитися на інших сайтах More sharing options...
Шаркер Опубліковано: 25 травня 2013 Автор Поділитись Опубліковано: 25 травня 2013 Пусть открытый хоть месячишку постоит. это идеальный вариант, но такой возможности нет. Поэтому, открыли перенесли. Через день, начали "гнать" стены. Посилання на коментар Поділитися на інших сайтах More sharing options...
Рекомендовані повідомлення
Створіть акаунт або увійдіть у нього для коментування
Ви маєте бути користувачем, щоб залишити коментар
Створити акаунт
Зареєструйтеся для отримання акаунта. Це просто!
Зареєструвати акаунтУвійти
Вже зареєстровані? Увійдіть тут.
Увійти зараз