bampo Опубліковано: 28 жовтня 2013 Поділитись Опубліковано: 28 жовтня 2013 Вопрос к знатокам: Как часто надо чистить-пылесосить топку? И открыл такую особенность своего камина-когда во время горения открыть дверцу(естественно аккуратно и не резко) то тяга становится лучше аж гудит и дым в помещение не идёт,наоборот видно что пламя прижимается к стенке.В мануале пишут,что наоборот при открытии уменьшается качество горения.Такое ощущение,что топке не хватает воздуха зависит от частоты использования, я свою 75х57, чищу после 3х-6ти, как есть желание. у меня разницы в горении практически нет(если топка и дымоход прогреты) но в мороз, при подаче наружного воздуха, горение лучше(больше кислорода в холодном воздухе). Диаметр трубы подачи воздуха-100мм, длина-3,5м. Кстати, использовать АФ в такой конструкции, как Ваша, не рационально, лучше чугунки не футерованные... 1 Посилання на коментар Поділитися на інших сайтах More sharing options...
Oleg8510 Опубліковано: 29 жовтня 2013 Автор Поділитись Опубліковано: 29 жовтня 2013 Кстати, использовать АФ в такой конструкции, как Ваша, не рационально, лучше чугунки не футерованные... Объясните поподробней в чём заключается нерациональность.Преимущество моей конструкции в том, что я могу использовать топку как с дымовыми каналами так и напрямую... Посилання на коментар Поділитися на інших сайтах More sharing options...
bampo Опубліковано: 29 жовтня 2013 Поділитись Опубліковано: 29 жовтня 2013 Топка, у Вас, единственный источник тепла, по проекту? Посилання на коментар Поділитися на інших сайтах More sharing options...
Oleg8510 Опубліковано: 29 жовтня 2013 Автор Поділитись Опубліковано: 29 жовтня 2013 Топка, у Вас, единственный источник тепла, по проекту? Нет это не источник тепла-это источник вдохновения:D. По проекту у меня газовый котёл и тёплые полы Посилання на коментар Поділитися на інших сайтах More sharing options...
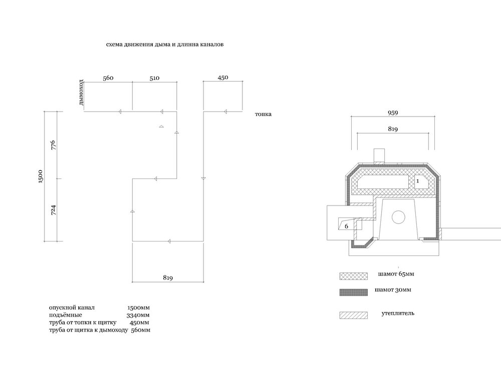
bampo Опубліковано: 29 жовтня 2013 Поділитись Опубліковано: 29 жовтня 2013 Можете поверить на слово, после года использования "вдохновения" с системой каналов, Вы навсегда переведёте "источник" в режим прямой топки. Почему-вдумчиво перечитайте пост Misha_k №15 и второй абзац поста №18 GIM. За короткое время "сеанса" реальной протопки не прогреете всю массу своего "лабиринта Минотавра", поскольку сгорите на своих 24м.кв. от ИК излучения через стекло, а если будете топить долго на малом горении, каналы очень быстро заростут сажей. Чистить 7 каналов моего, стального, ТО, то ещё удовольствие(сейчас делаю спец-приблуду, блокированную с пылесосом). Кстати, у меня на выходе из ТО, дымовые газы имеют температуру порядка 90 -120град., зависит от режима протопки, длина каналов 7х1м. Эта топка более "заточена" под конвекционный кожух с системой воздуховодов. Всё вышеизложенное из своего опыта эксплуатации, "хотелки", аналогичны Вашим, основное отопление ТП с электрокотлом. 2 Посилання на коментар Поділитися на інших сайтах More sharing options...
Misha_k Опубліковано: 29 жовтня 2013 Поділитись Опубліковано: 29 жовтня 2013 (змінено) bampo, спасибо за пост. Все правильно, в принципе об этом толдычу уже давно на протяжении долгого времени - во всем нужны расчеты. Считается все очень просто в принципе если не вдаваться в "форсажные" гонки выжать каждую каплю энергии по максимуму. Лучше пусть она(эта капля) улетит в дымоход, чем мы получим кучу проблем с обслуживанием прибора в будущем(ведь никто ничего потом уже не будет переделывать). В печах как и в автомобильном спорте - на болидах с формулы один по улицам не ездят. Для обычной жизни, люди обычно предпочитают более комфортные, удобные и красивые авто, хоть те по характеристикам с болидами не тянут. У нас на форумах очень много "умников" называющих себя практиками, но если честно, мне всегда хочется спросить - практика в чем? Как к конвекционной топке не рассчитанной для разовых больших закладок - прилепить огромную массу кирпича и дальше что? На практике будем замерять сколько часов подкладывая по три кг дров нагреем эту глыбу? До какой температуры? Что это вообще нам даст в квт*Ч? Так может сразу все подсчитать простыми расчетами, а не городить на русское авось, решая проблемы потом, по мере их поступления? Почему мы не учимся у людей, которые привыкли все прежде чем строить считать на цифрах? Посмотрите какие массы, длинну каналов и толщину плит они используют в своих системах? Так мы, наваливая тонны кирпича по принципу "от балды", что, умнее их?? С дуру как говорится - все сломать можно, лучше все таки по-европейски с головой и толком, чтобы ничего не ломать и не переделывать. Тогда и деньги в кармане останутся, при этом эффективность как бы некоторым "практикам" не казалось получим больше. Но опять же, если берем их примеры, то не бкркм "огульно" а смотрим где какая использована топка, где какая система и т.д. Не хочу обижать в очередной раз печников, но если подходить по "печниковки" не разбираясь, называя все что не из кирпича - буржуйка, ничего толкового мы не построим. Так как надеюсь уже все понимают, что буржуйка-буржуйке рознь в наше время, да и называть современные металические топки и печи - буржуйками, связывая их "по печниковски" с "аналогами" сто летней даности, как минимум не профессионально и говорит о квалификации того, кто такие термины сегодня использует. У немцев есть очень простой расчет для массы каналов - называется "Принцип большого пальца". Почему мы даже имея эту информацию сегодня, не учимся строить правильно? А вот там как раз и выходят более-менее правильные массы каналов, удобные для каждодневной топки. Но там не тонны - там килограммы. И да, кроме каналов нужно учесть еще много чего, в том числе какая система, открытая или закрытая(без решеток) какой процент излучения во время топки поступит через стекло в помещение и т.д и т.п. От этого всего и будет зависеть наш КОМФОРТ, а следовательно желание/или не желание топить камин часто. Змінено 29 жовтня 2013 користувачем Misha_k Посилання на коментар Поділитися на інших сайтах More sharing options...
Oleg8510 Опубліковано: 29 жовтня 2013 Автор Поділитись Опубліковано: 29 жовтня 2013 Можете поверить на слово, после года использования "вдохновения" с системой каналов, Вы навсегда переведёте "источник" в режим прямой топки. Почему-вдумчиво перечитайте пост Misha_k №15 и второй абзац поста №18 GIM. За короткое время "сеанса" реальной протопки не прогреете всю массу своего "лабиринта Минотавра", поскольку сгорите на своих 24м.кв. от ИК излучения через стекло, а если будете топить долго на малом горении, каналы очень быстро заростут сажей. Чистить 7 каналов моего, стального, ТО, то ещё удовольствие(сейчас делаю спец-приблуду, блокированную с пылесосом). Кстати, у меня на выходе из ТО, дымовые газы имеют температуру порядка 90 -120град., зависит от режима протопки, длина каналов 7х1м. Эта топка более "заточена" под конвекционный кожух с системой воздуховодов. Всё вышеизложенное из своего опыта эксплуатации, "хотелки", аналогичны Вашим, основное отопление ТП с электрокотлом. Верю всему вышесказанному, и пишу уже в который раз:для меня на первом месте стоял вопрос-снять температуру дымовых газов "У представителя Горьковского автозавода спрашивают:Что выпускает ваш завод? Ответ:ГАЗЫ":D:beer: Посилання на коментар Поділитися на інших сайтах More sharing options...
bampo Опубліковано: 29 жовтня 2013 Поділитись Опубліковано: 29 жовтня 2013 А зачем??? её снимать таким крайне неэффективным способом? Хотя, вопрос риторический, ведь всё уже смонтировано... Посилання на коментар Поділитися на інших сайтах More sharing options...
Oleg8510 Опубліковано: 29 жовтня 2013 Автор Поділитись Опубліковано: 29 жовтня 2013 А зачем??? её снимать таким крайне неэффективным способом? Хотя, вопрос риторический, ведь всё уже смонтировано... Если Вы об этом : Отправляю Вам смету на подключение топки. В смете учтены козырьки на другие дымоходы. Накопительные кольца 1 шт - 1584 грн. Крепеж для колец, не зависимо от их количества - 2926 грн. На кольца и крепеж сможем сделать Вам скидку 10% С уважением, Виктория. то я пас... 1 Посилання на коментар Поділитися на інших сайтах More sharing options...
Misha_k Опубліковано: 29 жовтня 2013 Поділитись Опубліковано: 29 жовтня 2013 Oleg8510, а Вы не считали во что обошлось вам все это сооружение по эффективности хуже австрофаммовских колец, материалы с работой (кольца австрофламмовские могли за 10мин смонтировать сами). Вот просто давайте прикинем разницу. Посилання на коментар Поділитися на інших сайтах More sharing options...
bampo Опубліковано: 29 жовтня 2013 Поділитись Опубліковано: 29 жовтня 2013 повторю вопрос-зачем Вы хотите снизить Т отходящих газов? Устанавливая ТО на свою топку, я ставил задачу забрать часть вылетающего в "трубу" тепла с быстрой его отправкой в существующюю систему отопления, + иметь резерв на случай отключения основного отопления(поэтому на топку будет установлен кожух для отвода тепла от нагретых стенок на второй этаж). Система исправно фунЦыклирует второй сезон, выплывшие недоработки, типа отсутствия стабилизации обратки ТО на уровне 50-60град., устранил(из-за этого, за сезон каналы ТО на 50-70%, забились сажей, правда я и топлю, пока, всяким сосновым хламом). Протопки бывают короткими 2-4 часа, иногда в мороз, днем -закладываем топку по самое немогу и ставим заслонку подачи воздуха на 30% открытия, горит часа 3. Посилання на коментар Поділитися на інших сайтах More sharing options...
Oleg8510 Опубліковано: 29 жовтня 2013 Автор Поділитись Опубліковано: 29 жовтня 2013 Oleg8510, а Вы не считали во что обошлось вам все это сооружение по эффективности хуже австрофаммовских колец, материалы с работой (кольца австрофламмовские могли за 10мин смонтировать сами). Вот просто давайте прикинем разницу. По эффективности может и хуже хотя...А обкладывать топку и делать портал пришлось бы по любому.Во всяком случае я ещё имею дровничёк а запах дерева в доме... Я доволен как с эстетической так и с технической точек зрения и считаю,что спор здесь не уместен:D:beer: Кому интересно выкладываю видео: youtu.be/H8mxbBK6f10 2 Посилання на коментар Поділитися на інших сайтах More sharing options...
-enjoy- Опубліковано: 29 жовтня 2013 Поділитись Опубліковано: 29 жовтня 2013 Устанавливая ТО на свою топку, а как сейчас все выглядит можна глянуть? последний раз было вот так www.stroimdom.com.ua/forum/showthread.php?t=109106&page=3 Посилання на коментар Поділитися на інших сайтах More sharing options...
bampo Опубліковано: 29 жовтня 2013 Поділитись Опубліковано: 29 жовтня 2013 Особо ничего не изменилось, чуть обвязка ТО обросла, пока не могу определиться с общим дизайном облицовки. Изменения, в основном, в гидравлической развязке ЭК и камина, контура ТП. Постараюсь сегодня оживить свою тему. Посилання на коментар Поділитися на інших сайтах More sharing options...
Misha_k Опубліковано: 29 жовтня 2013 Поділитись Опубліковано: 29 жовтня 2013 По эффективности может и хуже хотя...А обкладывать топку и делать портал пришлось бы по любому.Во всяком случае я ещё имею дровничёк а запах дерева в доме... Я доволен как с эстетической так и с технической точек зрения и считаю,что спор здесь не уместен:D:beer: Кому интересно выкладываю видео: youtu.be/H8mxbBK6f10 Oleg8510, спасибо за видео и вообще за поднятую тему. Поймите правильно, я честно, не пытаюсь как то пристыдить вашу систему, наоборот, очень хорошо, что мы сейчас пытаемся строить не просто камин зашитый в изоляционную облицовку, а делать более совершенные современные системы. Просто раз уж зашло здесь обсуждения про "приставки" разные, можно пока обсудить их в Вашей теме(с вашего разрешения конечно) - как должно все правильно считаться, какие варианты бывают и т.д. Я думаю, что всем будет полезно и интересно. просто мы часто поднимаем эти вопросы в разных ветках по чуть-чуть, а информацию в единую кучу собрать не получается. Очень вообще было бы хорошо, чтобы со временем пользователи разных подобных аккумулирующих приставок и систем к топкам Austroflamm делились уже собственным опытом. Пока же мы можем говорить о минусах и плюсах, нормах по проектированию таких каналов и многим в будущем это будет большим подспорьем избежать ошибок(надеюсь Вы не против) при проектировании своих каминов. 2 Посилання на коментар Поділитися на інших сайтах More sharing options...
Oleg8510 Опубліковано: 29 жовтня 2013 Автор Поділитись Опубліковано: 29 жовтня 2013 Миша спасибо,что уделили моему камину столько времени,я считаю,что в итоге наших публикаций выииграет только потребитель.Я тлько за и конструктивная критика всегда должна приветствоваться Вот ещё видео часть- 2.Прошу обратить внимание,что все режимы горения происходят через дымовой канал.т.есть шибер открыт а заслонка прямого канала закрыта: youtu.be/_r8fbS_sMas 1 Посилання на коментар Поділитися на інших сайтах More sharing options...
andr.ey Опубліковано: 29 жовтня 2013 Поділитись Опубліковано: 29 жовтня 2013 Oleg8510, ИМХО многие замечания/критика форумчан объективны, без расчетов щас никуда (не мы таки, жизнь така) ИМХО расчастет системы аккумуляции целесообразно начинать: с исходных данных №1 - данных производителя топки, т.е. Т дымовых газов, расход дымовых газов, рекомендуемая тяга, разовая загрузка (мощность топки) с исходных данных №2 - высота дымохода, пирог дымохода, высота над уровнем моря объекта, прибрежна зона или нет ИМХО сам расчет состоит из 3 частей: первая - расчтет давлений и охлаждение дымоых газов. Дымоход создает разрежение, которому препятствуют сопротивления (термическое и аэродинамическое): дым каналов , подвода воздуха для горения, самого дымохода + поправка на ветер. Дымовые газы остывают по длине каналов не линейно, а по экспоненте и зависят от параметров материала и конструкции каналов вторая - расчет сколько можем аккумулировать (согласно полученной длине каналов, разовой загрузке, т.д.) И нужно тепла выдать в каминный зал или помещение где находятся каналы. Соответственно получаем массу аккумуляции и площадь теплопередачи от системы к помещению вторая - расчет/проверка точки росы Все части расчета взаимосвязаны и параметры влияют друг на друга... поэтому на бумаге не посчитать, нужна модель/программа в которой подбором можно выйти на оптимальный результат. Можно ли посчитать самому - ИМХО да, даже полезно (сделать модельку в экселе или написать код) А зачем??? её снимать таким крайне неэффективным способом? Хотя, вопрос риторический, ведь всё уже смонтировано... ну вариант есть... весь шамот покрыть через воздушную прослойку шамотными плитами 3см или лещадкой на ребро. Площадь покрытия нужно посчитать (посчитать желаемые теплопотери). Но длина каналов явно не уложится в европейские нормы ЗЫ считаю что используя наш шамот и немецкие смеси можно делать продуманную аккумуляцию. ORTNER - супер (есть системы с КПД 95%), цена - космос, за эти деньги я себе ТН поставлю (но это на дачу, ну а в дом/ПМЖ подумал бы) 2 Посилання на коментар Поділитися на інших сайтах More sharing options...
Misha_k Опубліковано: 29 жовтня 2013 Поділитись Опубліковано: 29 жовтня 2013 Здесь даже не критика, здесь желание один раз разобраться как правильно. Если честно задолбало на форумах читать "умозаключения" печников взявших моду навешивать "от балды" тонны кирпича к конвекционным топкам, руководствуясь не здравым смыслом и грамотными расчетами, а принципом "1у.е за один кирпич положить".. чем больше - тем лучше. Для них лучше, заработок больше - для заказчика нет. Хотя у меня лично глядя на все это, всегда возникает один вопрос - что вы вообще творите.. Ладно, продолжим. Олег, Вы и все кто использует или будет использовать такие системы для начала должны знать и понимать, что с каналами топки и топиться должны не так, как без них. Я не понял на видео, вы пропустив газы через каналы, еще и придущили подачу воздуха? Так нельзя. Для начала вы должны эти каналы желательно чем быстрее и на более высоких температурах нагреть. Злом для каналов является - выхоложенные дымовые газы. Для этого существуют определенный способ топки таких систем. При подключенных каналах - забудьте про красивую игру с огнем, придушенные режимы горения и т.д. Каналы нужно нагревать на высоких температурах(как минимум в начале) и для этого как понимаете нам нужно доть достаточное количество воздуха в топку, где по хорошему и закладка должна в таком режиме увеличиваться(сократим время нагрева) Вы должны помнить, о чем не знает подавляющее число форумских спецов. По европейским нормам для таких систем средняя!! температура дымовых газов за каналами(в дымоход) должна быть не ниже 190!!гр. Вт под этот показатель и должны проектироваться каналы под такие топки, это очень важно. Поэтому нагружать бездумно тонны кирпича, бездумно прокладывая каналы как наверное понимаете - полный бред, ведущий к проблемам в дальнейшей эксплуатации таких систем. К слову, у австрофламмовских колец(на 6 штуках, допускается7) дТ120 гр. 313 -120 = 193. Это все, что там можно снять используя эту топку в нормальном эксплуатационном режиме(не как печную) имея и красивое спокойное горения и не боясь слишком перехлажденных дымовых газов и проблем с этим связанных. У вас же при такой массе, таким горением можно любоваться только переключив топку на прямой ход(напрямую в дымоход минуя каналы) Не торопитесь пока с видео. Не знаю на что клали ваш шамот, но систему нужно просушить, топите по чуть чуть, сушите, испытания потом, когда просохнет. Да, и нужно еще учитывать, что чем больше закладка в топку, тем выше температура дымовых газов. Для работы в номинальном!! режиме сертифицированном под работу топки без "надставок" - это режим с самыми наилучшими ее показателями по экологии и КПД. Для работы топки с аккумулирующими прибабахами, уже другие действуют нормы. Говоря простым языком: если мы превышаем указанную производителем в инструкции номинальную закладку, то получаем потерю тепла(снижение КПД) через увеличение температуры дымовых газов. Но в случае с аккумулирующими надставками, каналами и т.д - мы эту потерю собираем в теплоаккумуляторе и общий КПД у нас не падает, у нас просто перераспределяется та общая тепловая энергия, которую выделяет наша увелдиченная закладка. То есть и с корпуса и в каналы еще остается больше, чем если мы топим меньшей закладкой в режиме номинальном рассчитанным под тип отопления конвекционный. К примеру обратите внимание у Австрофламм в инструкции указываются две температуры газов. К примеру: Austroflamm 75Х57К для работы в номинале при закладке в 3кг - 300(если не ошибаюсь) при увеличенной закладке на 30% -уже 460. То есть, в Вашем случае путем увеличения закладки, получите совсем другой расклад по температурам для нагрева массы. Кстати, что интересно, в разных топках Австрофламм, увеличенная закладка не дает одинаково пропорционального роста температуры. Специально перевели для начинающих, где простым языком как топить в том числе, прочитайте и в принципе остальные статьи в этом разделе тоже, поможет многое понять в тематике теплоаккумуляции(ссылка устарела) 2 Посилання на коментар Поділитися на інших сайтах More sharing options...
Oleg8510 Опубліковано: 29 жовтня 2013 Автор Поділитись Опубліковано: 29 жовтня 2013 Да Миша я всё это понимаю,сильно пока не топлю,просто хотел показать на примере,что каналы-рабочие.Я вообще считаю режим тления-это как понты для приезжих-побаловаться иногда Кстати если бы я поставил 6 Аустрофламовских колец эта сумма была бы больше,чем я отдал за работу за весь камин Посилання на коментар Поділитися на інших сайтах More sharing options...
Misha_k Опубліковано: 29 жовтня 2013 Поділитись Опубліковано: 29 жовтня 2013 Может и больше, но места съели бы меньше, а с учетом, что можно такие системы полностью смонтировать самостоятельно, то думаю то на то. Кстати под Вашу топку готовый шамотный аккумулятор в комплекте с смесями, уплотнителями прочистками и т.д фирмы RATH стоит чуть больше 500 еро, сложил сам за час и теплоаккумулятор готов, дальше плиты облицовки, но об этом позже. Что касается режима тления, то нужно здесь сказать правду. Да есть минусы, стекла коптятся, сгорание не полное(ниже КПД) но - растянуть теплоотдачу таким образом загрузив полную топку дров и растянув их горение по времени - на самом деле эффективный и главное, самый дешевый способ получить долгоиграющий отпитель. Чем собственно люди и пользуются к примеру в дачных домах, где важна больше быстрая мощность и во вторую уже поддержка тепла, которую уже проще решить разными способами. Посмотрите на дачников кто пользуется к примеру йотуловскими трешками с режимом медленного горения? Я всех с кем не разговаривал из таких пользователей - хлопают в ладоши и тепло до утра и прогревают остывшие дома быстро. Так что как мы здесь и раньше говорили - не бывает идеального решения под любые условия, везде свои плюсы и минусы, решающим фактором при определении которых к сожалению играет цена. Посилання на коментар Поділитися на інших сайтах More sharing options...
ОИК-4 Опубліковано: 29 жовтня 2013 Поділитись Опубліковано: 29 жовтня 2013 Если честно задолбало на форумах читать "умозаключения" печников взявших моду навешивать "от балды" тонны кирпича к конвекционным топкам, руководствуясь не здравым смыслом и грамотными расчетами, а принципом "1у.е за один кирпич положить".. чем больше - тем лучше. Для них лучше, заработок больше - для заказчика нет. Хотя у меня лично глядя на все это, всегда возникает один вопрос - что вы вообще творите.. А печников притомили умозаключения манагера,который тяжелее ручки ничего в руках не держал и сам ничего никогда не строил, особенно теплоемкого.Не тебе наши зарплаты считать. Посилання на коментар Поділитися на інших сайтах More sharing options...
Viks Опубліковано: 29 жовтня 2013 Поділитись Опубліковано: 29 жовтня 2013 Здесь даже не критика, здесь желание один раз разобраться как правильно. Если честно задолбало на форумах читать "умозаключения" печников взявших моду навешивать "от балды" тонны кирпича к конвекционным топкам, руководствуясь не здравым смыслом и грамотными расчетами, а принципом "1у.е за один кирпич положить".. чем больше - тем лучше. Так сделайте наконец расчеты для застройщиков как пособие по ТП и ТК (теплоемким порталам или по теплоемким каналам...) На примере 2-х топок АФ65 и Ютула570 напр. в виде таблцы какая должна быть масса конструкции из шамотного кирпича при толщине в пол-кирпича и в четверть - он у нас по 0,8у.е. за шт пока П.С - облицовщики мрамором рекомендуют конструкцию в пол-кирпича С сечением дымоходов разобрались... С подводом обсудили... Остались порталы Добавлено через 5 минут А печников притомили умозаключения манагера,который тяжелее ручки ничего в руках не держал и сам ничего никогда не строил, особенно теплоемкого.Не тебе наши зарплаты считать. А по теме у вас есть что сказать? Как ваш последний теплоемкий портал с каналами в работе? www.stroimdom.com.ua/forum/showpost.php?p=2501482&postcount=51 2т кирпича прогреть до 50гр за 1,5часа топкой реально? У меня меньше пол-тонны шамота на портале - за 1,5часа прогревается до 50гр только перекладина - это при открытых конвекционных решетках Но 2т... не шамота до 50гр топкой с КПД 0,8 Посилання на коментар Поділитися на інших сайтах More sharing options...
GIM Опубліковано: 29 жовтня 2013 Поділитись Опубліковано: 29 жовтня 2013 На самый главный вопрос -А зачем?,так вразумительного ответа и не получено.Пусть это будет воспринято не как упрёк.Такие теплонакопительные система должны стоять немного в других местах,желательно островного расположения или в конце концов на границе нескольких жизненоважных помещений.Какой смысл ставить такой прибор в зале да ещё у стены.Чтоб не быть великим теоретиком приведу пример. Посилання на коментар Поділитися на інших сайтах More sharing options...
GIM Опубліковано: 29 жовтня 2013 Поділитись Опубліковано: 29 жовтня 2013 Хотелка очень схожая,но есть небольшая разница-очень удобное расположение.Если обратите внимание,между проектом и реалью есть разница в конструкции(ушёл воздушный зазор и 3см шамота)А почему?А потому что не одна каминная топка по большому счёту не способна разогреть массу за непродолжительное время а если топить сутками то по барабану какая будет топка а самое главное камин остаётся камином а непонятным монстром. И ещё обратите внимание нечего лишнего стараемся не греть(капитальные стены)Только не подумай те что я такой продвинутый в этом вопросе.Процесс был долгий,разговоров и консультаций велось много,не думаю что это самый оптимальный вариант,только вариантов топок было перебрано от печной и до ...Спасибо ребятам с форума Посилання на коментар Поділитися на інших сайтах More sharing options...
Oleg8510 Опубліковано: 29 жовтня 2013 Автор Поділитись Опубліковано: 29 жовтня 2013 На самый главный вопрос -А зачем?,так вразумительного ответа и не получено.Пусть это будет воспринято не как упрёк.Такие теплонакопительные система должны стоять немного в других местах,желательно островного расположения или в конце концов на границе нескольких жизненоважных помещений.Какой смысл ставить такой прибор в зале да ещё у стены.Чтоб не быть великим теоретиком приведу пример. Уважаемый GIM-какой ответ Вы хотите от меня услышать,судя по всему Вы крупный специалист в печных делах,а я ни разу не строитель... Но мой камин уже построен,более того он мне нравится и не только мне... Сейчас он на обкатке,но реальные результаты я думаю появятся через год,когда закончатся отделочные работы по дому Посилання на коментар Поділитися на інших сайтах More sharing options...
Рекомендовані повідомлення
Створіть акаунт або увійдіть у нього для коментування
Ви маєте бути користувачем, щоб залишити коментар
Створити акаунт
Зареєструйтеся для отримання акаунта. Це просто!
Зареєструвати акаунтУвійти
Вже зареєстровані? Увійдіть тут.
Увійти зараз