Andrei constructor Опубліковано: 28 жовтня 2013 Поділитись Опубліковано: 28 жовтня 2013 Народ, ничего не понимаю- из очень многих просмореных за последние месяцы проектов- такой вот вывод ощущение: " тянет" на дома в форме куба, с двускатной или другой простой крышей?! Какие то более интересные формы вызывают симпатию, но " свой" дом я , почему то таким не вижу Это бедность воображения? Детские стереотипы из мультиков? gidproekt.com/proekt-zagorodnogo-doma-semejnyj-uyutnoe-gnezdyshko.html Посилання на коментар Поділитися на інших сайтах More sharing options...
Kysil Опубліковано: 28 жовтня 2013 Поділитись Опубліковано: 28 жовтня 2013 Это бедность воображения? Детские стереотипы из мультиков? Це підсвідоме бажання вкласти ваші нереальні побажання в мінімалістичну форму. Посилання на коментар Поділитися на інших сайтах More sharing options...
Andrei constructor Опубліковано: 28 жовтня 2013 Поділитись Опубліковано: 28 жовтня 2013 Кубики www.stroimdom.com.ua/forum/album.php?albumid=4339 Добавлено через 2 минуты И больше никогда я не буду обращаться за услугами по " национальному" признаку. Только по профессиональному. Нормальный такой принцип, тоже его полюбляю. Посилання на коментар Поділитися на інших сайтах More sharing options...
Andrei constructor Опубліковано: 28 жовтня 2013 Поділитись Опубліковано: 28 жовтня 2013 Это греет вашу душу? Внешний вид куба можно сделать десятки вариантов, из которых вы выберете свой. Смотрите на планировочное решение (взял из первой вашей ссылки). Посмотрел дальше, одно расстройство. Посилання на коментар Поділитися на інших сайтах More sharing options...
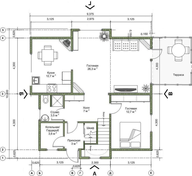
втлн Опубліковано: 28 жовтня 2013 Автор Поділитись Опубліковано: 28 жовтня 2013 gidproekt.com/proekt-zagorodnogo-doma-semejnyj-uyutnoe-gnezdyshko.html Практически идеальный вариант, но опять Из трех спален на 2 этаже , в сумме равных 53 м , надо " сотворить" кабинет на 10-11, две детских по 12-13 и что останется- родилеям Снова тетрис:D Посилання на коментар Поділитися на інших сайтах More sharing options...
Andrei constructor Опубліковано: 28 жовтня 2013 Поділитись Опубліковано: 28 жовтня 2013 На втором этаже вместо гардеробной и части санузла сделаю вам 4-ю полноценную комнату. Итого дом 154 м2 и 6 жилых комнат (для пожилых людей есть жилая комната на 1-м этаже). Вместо балконов или французские балконы или 2 балкона с выходом на покрытие террасы (эксплуатируемая кровля). Посилання на коментар Поділитися на інших сайтах More sharing options...
втлн Опубліковано: 28 жовтня 2013 Автор Поділитись Опубліковано: 28 жовтня 2013 На втором этаже вместо гардеробной и части санузла сделаю вам 4-ю полноценную комнату. Итого дом 154 м2 и 6 жилых комнат (для пожилых людей есть жилая комната на 1-м этаже). Вместо балконов или французские балконы или 2 балкона с выходом на покрытие террасы (эксплуатируемая кровля). А реально ли уменьшить 2 большие спальни на 2 этаже и сделать хоть какую нить нишу- кладовочку? . Что точно, так это кабинет должен быть с выходом окна - балкона на задний двор . И что обидно, что в данной планирове на 2 этаже самая маленькая из уже имеющихся спален, как раз желательно должна быть самая большая. свою спальню ПОКА думаем с выходом на фасад, ( а там видно будет), чтоб было удобно в окно выглядывать на калитку- вход на участок. Хотя и 15 м при умной расстановке мебели ( и отсутствия там кабинета мужа)вполне себе достаточно. Посилання на коментар Поділитися на інших сайтах More sharing options...
Kysil Опубліковано: 28 жовтня 2013 Поділитись Опубліковано: 28 жовтня 2013 А вот так- уже душу греет www.dom-ua.com/index.php?c=327&o=9984 "Мамо, що це?.." Посилання на коментар Поділитися на інших сайтах More sharing options...
Andrei constructor Опубліковано: 28 жовтня 2013 Поділитись Опубліковано: 28 жовтня 2013 А реально ли уменьшить 2 большие спальни на 2 этаже и сделать хоть какую нить нишу- кладовочку? . Да, конечно можно. Даже на 2-м этаже можно сделать две приличные кладовки. Добавлено через 59 секунд "Мамо, що це?.." Это бред пьяного студента-архитектора. Посилання на коментар Поділитися на інших сайтах More sharing options...
Kysil Опубліковано: 28 жовтня 2013 Поділитись Опубліковано: 28 жовтня 2013 Это бред пьяного студента-архитектора. Цей шедеур треба зберегти на майбутнє. :D Посилання на коментар Поділитися на інших сайтах More sharing options...
Andrei constructor Опубліковано: 28 жовтня 2013 Поділитись Опубліковано: 28 жовтня 2013 Kysil, пора открывать тему с подобным. Будет очень популярная тема. Добавлено через 14 минут Хотя и 15 м при умной расстановке мебели ( и отсутствия там кабинета мужа)вполне себе достаточно. Могу расширить это помещение за счет самой большой спальни (детской). В дополнительные квадратные метры поставлю или маленькую гардеробную или встроенный шкаф купе (там это можно сделать, так как на втором этаже средняя стена не является несущей). Будет общая площадь вашей спальни 18 м2. Посилання на коментар Поділитися на інших сайтах More sharing options...
Kysil Опубліковано: 28 жовтня 2013 Поділитись Опубліковано: 28 жовтня 2013 Kysil, пора открывать тему с подобным. Будет очень популярная тема. Вже відкрив! Приєднуйтесь, якщо маєте експонати. 1 Посилання на коментар Поділитися на інших сайтах More sharing options...
втлн Опубліковано: 28 жовтня 2013 Автор Поділитись Опубліковано: 28 жовтня 2013 Я приводила дома ТОЛЬКО с внешней точки зрения Планировку сейчас даже не открывала башка я деревянная Так, первые попавшиеся на первом попавшемся сайте Добавлено через 6 минут Kysil, пора открывать тему с подобным. Будет очень популярная тема. Добавлено через 14 минут Могу расширить это помещение за счет самой большой спальни (детской). В дополнительные квадратные метры поставлю или маленькую гардеробную или встроенный шкаф купе (там это можно сделать, так как на втором этаже средняя стена не является несущей). Будет общая площадь вашей спальни 18 м2. И какой метраж спален будет на 2 этаже? Кабинета? Санузла? Всего дома?( без учета терассы) Ну, кладовки - ниши 2 этажа- лишь бы были. Так, для ясности- ванны нам не надь. Ни на 1 ни на 2 этаже А на счет " шедевров" человеческого творения- с годами пришло понимание, что на вкус и цвет все фломастеры разные. и то, что у одного вызывает ужас-ужас для другого может оказаться вплне приемлимым или вообще, пределом мечтания. И это касается всего- домов, машин, мебели,одежд, дизайна , домашних животных...и так бесконечно... Посилання на коментар Поділитися на інших сайтах More sharing options...
Andrei constructor Опубліковано: 28 жовтня 2013 Поділитись Опубліковано: 28 жовтня 2013 И какой метраж спален будет на 2 этаже? Кабинета? Санузла? Всего дома?( без учета терассы) Ну, кладовки - ниши 2 этажа- лишь бы были. Общая площадь дома - 154 м2. После изменения планировки на втором этаже будет: Ваша спальня – 18 м2. Спальня № 2 – 18,36 м2. Спальня №3 – 16,81 м2 Кабинет мужа – 11 м2 Санузел – 5 м2 Кладовка – 1,5…2 м2 Коридор - 5,77 м2 Добавлено через 50 секунд Так, для ясности- ванны нам не надь. Ни на 1 ни на 2 этаже Понято, сделаем Посилання на коментар Поділитися на інших сайтах More sharing options...
=YaSto= Опубліковано: 28 жовтня 2013 Поділитись Опубліковано: 28 жовтня 2013 а не мелькала идея со всеми своими запросами податься к архитектору и сделать индивидуальный проэкт? переделывать готовые геморойно... Посилання на коментар Поділитися на інших сайтах More sharing options...
OlegArh Опубліковано: 28 жовтня 2013 Поділитись Опубліковано: 28 жовтня 2013 Ну и ладненько...как в песне поется: "Она хоть бывшая, Но подданная русска Вона ж так жеж Киiлвянка, Як була" :D Вот когда то по просьбам "бывших подданных" перерабатывал планировку одного домика - получилось либо 5 спален и кухна с гостинной, либо...вобщем вариантов было много.. Дом вышел 180 и 160 "килограммометров"., Кстати, можно совместить мастербэдрум с кабинетом и т.д. Вдруг пригггодится. Внешний вид не прикладываю, т.к. у каждого свои вкусовые пристрастия. P.S. В базовом варианте были 2 балкона в противоположных спальнях. 3 Посилання на коментар Поділитися на інших сайтах More sharing options...
втлн Опубліковано: 28 жовтня 2013 Автор Поділитись Опубліковано: 28 жовтня 2013 А в санузел 2 этажа- 5 м- можно будет втулить нормальную душкабину , унитаз, стиралку и ящик для грязного? У моих мужиков ужасная неискоренимая, как оказалось, привычка снимать грязное и бросать его там же, где купаются. У подруги подсмотрела , как короб для грязных вещей- небольшой- стоит прям сверху стиралки - ванная слишком тесная? Посилання на коментар Поділитися на інших сайтах More sharing options...
Andrei constructor Опубліковано: 28 жовтня 2013 Поділитись Опубліковано: 28 жовтня 2013 А в санузел 2 этажа- 5 м- можно будет втулить нормальную душкабину , унитаз, стиралку и ящик для грязного? Да, еще останется место для танцев Добавлено через 1 минуту У моих мужиков ужасная неискоренимая, как оказалось, привычка снимать грязное и бросать его там же, где купаются. Сам такой, поэтому сочувствую своей жене и вам. 1 Посилання на коментар Поділитися на інших сайтах More sharing options...
OlegArh Опубліковано: 28 жовтня 2013 Поділитись Опубліковано: 28 жовтня 2013 У меня для грязных вещей есть железная бочка во дворе...Раньше горела постоянно... Детишки, без одежки, пару раз ж..пы подморозили и стали опрятными. 1 Посилання на коментар Поділитися на інших сайтах More sharing options...
втлн Опубліковано: 28 жовтня 2013 Автор Поділитись Опубліковано: 28 жовтня 2013 а не мелькала идея со всеми своими запросами податься к архитектору и сделать индивидуальный проэкт? переделывать готовые геморойно... Мелькала. Подавлась. К двум.Не буду здесь это описывать, а то получится слишком долго. С одним мы слишком по разному , видимо, представляем жизнь в частном доме , а другой пытался меня переубедить, что мужу жизненно необходим большой кабинет, кухня отдельно от гостинной- колхоз, а родительская спальня должна быть на 1 этаже. А вдруг ноги откажут? и тд. То есть он не проекты под меня подгонял, а меня под проекты пятиспаленные. Я не скажу, какой он был национальности, дабы не вызывать сомнений в моем патриотизме;) Посилання на коментар Поділитися на інших сайтах More sharing options...
=YaSto= Опубліковано: 28 жовтня 2013 Поділитись Опубліковано: 28 жовтня 2013 само название темы противоречивое, чем меня и привлекло мы вначале тоже думали поменьше площадь... но это же ДОМ, смысл строить его в размер трёшки? нужен простор, размах, фантазия, и необязательно в 500-1000 квадратов идеально вложиться до 300 общей площади ИМХО дык то не НАШИ люди, хи, хи моя жена нарисовала поэтажно планы дома, пришли к архитектору и через месяц вааще без вопросов было готово...знать нам повезло... Посилання на коментар Поділитися на інших сайтах More sharing options...
втлн Опубліковано: 28 жовтня 2013 Автор Поділитись Опубліковано: 28 жовтня 2013 само название темы противоречивое, чем меня и привлекло мы вначале тоже думали поменьше площадь... но это же ДОМ, смысл строить его в размер трёшки? нужен простор, размах, фантазия, и необязательно в 500-1000 квадратов идеально вложиться до 300 общей площади ИМХО А меня очень даже устроил бы дом размеров нормальной трешки. Главное- чтоб именно в ТОМ заветном месте . В принципе ,не есть проблема построить более просторный дом в ДРУГОМ месте, но МОЕ место- у-ни-каль-но! Для меня, по крайней мере. Да и не тянет особо к большим домам. Хозяйка я не очень, иногда даже " очень не" но и помошниц по дому не найму без острейшей на то необходимости- ну пунктик у меня такой. Поэтому, я реально оцениваю свои возможности по содержанию своего дома в чистоте. Да и планируемый через пару-тройку лет малыш свободного времени не добавит. Вот машину большую хотелось! Дааа! Пар из носа, глаза горят!!!Сейчас балдею. Аквариум с огромными рыбинами - стоит, любуюсь. А вот собакины мои - в 3 раза меньше обычной кошки- радуют по полной. Зато мало места занимают, мало едят и т д.. Но самые настоящие " большие собаки в маленькой упаковке" Вот и с домом так- ну не хочется большой, хочется максимально большой двор. Посилання на коментар Поділитися на інших сайтах More sharing options...
Andrei constructor Опубліковано: 28 жовтня 2013 Поділитись Опубліковано: 28 жовтня 2013 моя жена нарисовала поэтажно планы дома, пришли к архитектору и через месяц вааще без вопросов было готово...знать нам повезло... Готово что, архитектура? За этот срок только можно привязать готовый типовой проект и получить все чертежи для строительства коробки. Индивидуальный делается несколько месяцев не вставая усилиями 2 человек. Посилання на коментар Поділитися на інших сайтах More sharing options...
=YaSto= Опубліковано: 28 жовтня 2013 Поділитись Опубліковано: 28 жовтня 2013 одно могу сказать - стройте ТОЛЬКО так как вам хочется (в смысле планировки и площадей), не поддавайтесь на переделки, Вам там жить, воплощайте полностью всё чего хочется и сразу. чтоб потом локти не кусать и не переделывать удачи Вам, дерзайте! свой дом это здорово! 1 Посилання на коментар Поділитися на інших сайтах More sharing options...
Телесистемы Опубліковано: 28 жовтня 2013 Поділитись Опубліковано: 28 жовтня 2013 по своему опыту могу сказать - кабинет на 2м этаже - некомфортно. вообще, полностью согласен с принципом зонирования 2х этажного дома: 1й этаж - проводим утро-день-вечер. 2й этаж - поднимаемся только на ночь. 1 Посилання на коментар Поділитися на інших сайтах More sharing options...
Рекомендовані повідомлення
Створіть акаунт або увійдіть у нього для коментування
Ви маєте бути користувачем, щоб залишити коментар
Створити акаунт
Зареєструйтеся для отримання акаунта. Це просто!
Зареєструвати акаунтУвійти
Вже зареєстровані? Увійдіть тут.
Увійти зараз