Николай78 Опубліковано: 18 грудня 2015 Автор Поділитись Опубліковано: 18 грудня 2015 Модульный дом 40 кв.м. Возводится производителем под ключ всего за 2 недели. Посилання на коментар Поділитися на інших сайтах More sharing options...
Николай78 Опубліковано: 18 грудня 2015 Автор Поділитись Опубліковано: 18 грудня 2015 Мой любимый формат мини-дома с антресолью. 28 квадратных метров на все 2 Посилання на коментар Поділитися на інших сайтах More sharing options...
Николай78 Опубліковано: 18 грудня 2015 Автор Поділитись Опубліковано: 18 грудня 2015 Дом из двух контейнеров + тамбур 1 Посилання на коментар Поділитися на інших сайтах More sharing options...
Николай78 Опубліковано: 18 грудня 2015 Автор Поділитись Опубліковано: 18 грудня 2015 Дом 55 кв.м На антресоли 2 спальни Фото второго этажа и планов не нашел, а жаль. Дом оч. экономично сконструирован, не считая панорамного окна, конечно 1 Посилання на коментар Поділитися на інших сайтах More sharing options...
Николай78 Опубліковано: 18 грудня 2015 Автор Поділитись Опубліковано: 18 грудня 2015 Замок 78 кв.м. 1 Посилання на коментар Поділитися на інших сайтах More sharing options...
Николай78 Опубліковано: 18 грудня 2015 Автор Поділитись Опубліковано: 18 грудня 2015 Tiny House с инфракрасной (насколько я понимаю) сауной Посилання на коментар Поділитися на інших сайтах More sharing options...
Николай78 Опубліковано: 18 грудня 2015 Автор Поділитись Опубліковано: 18 грудня 2015 57 квадратных метров 1 Посилання на коментар Поділитися на інших сайтах More sharing options...
Николай78 Опубліковано: 18 грудня 2015 Автор Поділитись Опубліковано: 18 грудня 2015 Казалось бы все элементарно и 4 спальных места в столь микроскопическом домике. Я только не понял как на антресоль запрыгивать 1 Посилання на коментар Поділитися на інших сайтах More sharing options...
Николай78 Опубліковано: 18 грудня 2015 Автор Поділитись Опубліковано: 18 грудня 2015 Гнездо параноика Посилання на коментар Поділитися на інших сайтах More sharing options...
Николай78 Опубліковано: 18 грудня 2015 Автор Поділитись Опубліковано: 18 грудня 2015 (змінено) Вообще-то я выбираю наиболее интересные, на мой взгляд, варианты домиков из двух групп: https://www.facebook.com/smallhouseua/ (ссылка устарела) По ссылкам сотни маленьких домиков и много других интересностей Обе группы мои, но рекламы там нет совсем никакой, если что Змінено 18 грудня 2015 користувачем Николай78 1 Посилання на коментар Поділитися на інших сайтах More sharing options...
Николай78 Опубліковано: 19 грудня 2015 Автор Поділитись Опубліковано: 19 грудня 2015 Общая площадь - 52.8 м2 Жилых комнат - 3 Материал стен - Газобетон Габариты (м) - 6.2x6.2 Этажей - 2 Фундамент - ленточный монолитный ж/б; Перекрытия - по деревянным балкам; Наружные стены - газоблоки 375мм; Кровля - битумная или металлочерепица; Высота первого этажа - 2.6м, мансардного - 1.2м/3м 1 Посилання на коментар Поділитися на інших сайтах More sharing options...
Николай78 Опубліковано: 19 грудня 2015 Автор Поділитись Опубліковано: 19 грудня 2015 Такой вот шалашик 2 Посилання на коментар Поділитися на інших сайтах More sharing options...
Николай78 Опубліковано: 19 грудня 2015 Автор Поділитись Опубліковано: 19 грудня 2015 Небольшой домик на колесах 2 Посилання на коментар Поділитися на інших сайтах More sharing options...
Николай78 Опубліковано: 19 грудня 2015 Автор Поділитись Опубліковано: 19 грудня 2015 Общежитие в Гонконге. 27 кв.метров. Посилання на коментар Поділитися на інших сайтах More sharing options...
Николай78 Опубліковано: 19 грудня 2015 Автор Поділитись Опубліковано: 19 грудня 2015 43 квадратных метра Посилання на коментар Поділитися на інших сайтах More sharing options...
Николай78 Опубліковано: 19 грудня 2015 Автор Поділитись Опубліковано: 19 грудня 2015 Мой дом - моя крепость 29 кв метров в черте города. Посилання на коментар Поділитися на інших сайтах More sharing options...
addinol Опубліковано: 19 грудня 2015 Поділитись Опубліковано: 19 грудня 2015 Подпишусь , собираюсь строить дачку что то в этом формате небольшое и не дорогое.Может почерпну что. Посилання на коментар Поділитися на інших сайтах More sharing options...
Николай78 Опубліковано: 19 грудня 2015 Автор Поділитись Опубліковано: 19 грудня 2015 Меньше и функциональнее номер было сделать нельзя. Я вот был в большом количестве бюджетных номеров и много думал на эту тему. Там везде одинаковые ошибки. Например: 1. Оч.маленький санузел 2. Дибильные шкафы с тремя тремпелями. 3. Прикроватные тумбочки - зачем? 4. Отсутствие возможности что-то приготовить. 5. Вход там где и сан.узел, что резко ограничивает возможности. 1 Посилання на коментар Поділитися на інших сайтах More sharing options...
Николай78 Опубліковано: 19 грудня 2015 Автор Поділитись Опубліковано: 19 грудня 2015 Попался этот чудный домик с большим количеством снимков. Судя по всему построен из подручных материалов. 2 Посилання на коментар Поділитися на інших сайтах More sharing options...
Николай78 Опубліковано: 19 грудня 2015 Автор Поділитись Опубліковано: 19 грудня 2015 Вот как так у них получается? Обычный сельский маленький дом, как у нас, никаких изысков. Обычная обрезная доска в интерьере кругом. Но все играет и работает. Посилання на коментар Поділитися на інших сайтах More sharing options...
addinol Опубліковано: 19 грудня 2015 Поділитись Опубліковано: 19 грудня 2015 Да как то ладненько и главное уютно. Посилання на коментар Поділитися на інших сайтах More sharing options...
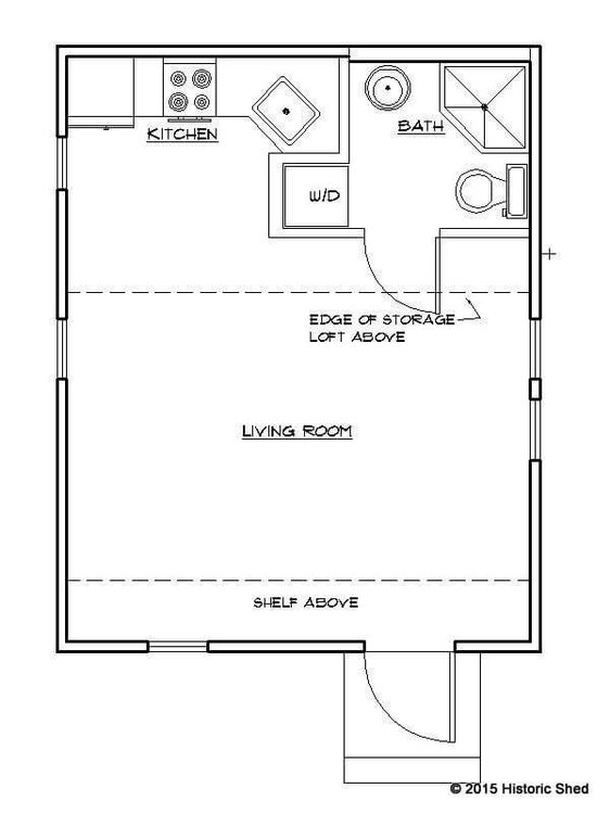
Николай78 Опубліковано: 19 грудня 2015 Автор Поділитись Опубліковано: 19 грудня 2015 Вот это, на мой взгляд, оптимальная конфигурация следующая по размерам за вагончиком. Таких домиков много, но они все похожи. Кухня слева, сан.узел справа и антресоль над ними. 2 Посилання на коментар Поділитися на інших сайтах More sharing options...
bambino Опубліковано: 19 грудня 2015 Поділитись Опубліковано: 19 грудня 2015 Вот это, на мой взгляд, оптимальная конфигурация следующая по размерам за вагончиком. Таких домиков много, но они все похожи. Кухня слева, сан.узел справа и антресоль над ними. Внутренний получается где-то 4.50х5.50, наружный 5х6. Как раз сборным из двух частей сделать. По 2.50 -максимальная ширина для перевозки. Посилання на коментар Поділитися на інших сайтах More sharing options...
Николай78 Опубліковано: 19 грудня 2015 Автор Поділитись Опубліковано: 19 грудня 2015 Холостяцкая берлога 1 Посилання на коментар Поділитися на інших сайтах More sharing options...
Николай78 Опубліковано: 19 грудня 2015 Автор Поділитись Опубліковано: 19 грудня 2015 Внутренний получается где-то 4.50х5.50, наружный 5х6. Как раз сборным из двух частей сделать. По 2.50 -максимальная ширина для перевозки. Абсолютно верно. Именно так я и подумал, глядя на него. Посилання на коментар Поділитися на інших сайтах More sharing options...
Рекомендовані повідомлення
Створіть акаунт або увійдіть у нього для коментування
Ви маєте бути користувачем, щоб залишити коментар
Створити акаунт
Зареєструйтеся для отримання акаунта. Це просто!
Зареєструвати акаунтУвійти
Вже зареєстровані? Увійдіть тут.
Увійти зараз