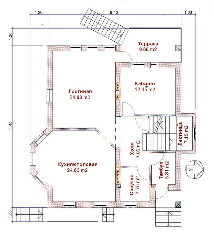
XamGelo Опубліковано: 18 травня 2007 Поділитись Опубліковано: 18 травня 2007 Фоток у меня к сожалению нет, поэтому выкладываю пока планы. К сожалению для критики уже поздно, стены ломать не буду :-D . Ситуация сложилась так что стройку надо было начинать очень быстро, поэтому в проекте есть недостатки, которые сам знаю и не успел учесть до начала строительства. Дальше, если интересно, буду делиться информацией Посилання на коментар Поділитися на інших сайтах More sharing options...
Homer Опубліковано: 18 травня 2007 Поділитись Опубліковано: 18 травня 2007 Конеч. интересно :-D Я даже к тебе в гости припрусь - када до родины "доедешь". Посилання на коментар Поділитися на інших сайтах More sharing options...
XamGelo Опубліковано: 18 травня 2007 Автор Поділитись Опубліковано: 18 травня 2007 Вот еще пара сгенерированных 3D видов того что есть уже. Только фасад еще не покрашен и деревья мааааааахонькие Посилання на коментар Поділитися на інших сайтах More sharing options...
BrotherSam Опубліковано: 18 травня 2007 Поділитись Опубліковано: 18 травня 2007 А вчём делали 3Д модель? Посилання на коментар Поділитися на інших сайтах More sharing options...
XamGelo Опубліковано: 18 травня 2007 Автор Поділитись Опубліковано: 18 травня 2007 Lghomer: always welcome А ты я смотрю уже с окошками аватар сделал :-D Все делалось в Архикаде Посилання на коментар Поділитися на інших сайтах More sharing options...
Виктоша Опубліковано: 18 травня 2007 Поділитись Опубліковано: 18 травня 2007 XamGelo, оч удивил Ваш проект-мы с мужем делаем сами-так очень похож 1-й этаж . такое же расположение кухни, гостинной, кабинета(у нас спальня) даже такой же выход на терассу! А какая квадратура Вашего дома и стен дома? Я только вчера решила делть эркер в кухне-чтоб круглый столик не забирал много места и вообще красиво.:roll: Правда кухня у нас буд небольшая-12 метров(вместе со столовой) Как вы считаете, можно сделать эркер при таких размерах? И скорее всего будем его делать не с западной стороны, а с южной-со стороны входа. Также, мы сомневаемся, где делать котельную в доме. Цокольн этаж хотим сделать не на весь дом-небольшой(будем использовать как кладовую для инструментов, закруток) . Удобно ли будет бегать туда в котельную со стороны улицы? или делать лучше котельную дома-как вы считаете? Посилання на коментар Поділитися на інших сайтах More sharing options...
Homer Опубліковано: 18 травня 2007 Поділитись Опубліковано: 18 травня 2007 Lghomer: always welcome А ты я смотрю уже с окошками аватар сделал :-D ну-да Посилання на коментар Поділитися на інших сайтах More sharing options...
XamGelo Опубліковано: 18 травня 2007 Автор Поділитись Опубліковано: 18 травня 2007 Виктоша, сейчас в вашей теме появится моя переделка дома с фисташками. Мой дом - 9.5 х 11.5 только прямоугольник, без эркеров Посилання на коментар Поділитися на інших сайтах More sharing options...
BrotherSam Опубліковано: 18 травня 2007 Поділитись Опубліковано: 18 травня 2007 Все делалось в Архикаде Сейчас тоже осваиваю Архикад 10. Хочу сделать 3Д модель чтобы покрутить и поиграться с оформлением фасадов... б-р-р-р, уже мозги кипят. Посилання на коментар Поділитися на інших сайтах More sharing options...
XamGelo Опубліковано: 18 травня 2007 Автор Поділитись Опубліковано: 18 травня 2007 Все делалось в Архикаде Сейчас тоже осваиваю Архикад 10. Хочу сделать 3Д модель чтобы покрутить и поиграться с оформлением фасадов... б-р-р-р, уже мозги кипят. Не, у меня 8.1, уже года 3 пользуюсь. 10-й самому интересно, может там 3D получше? Тока времени нет осваивать, да и переносить все свое (объекты, библиотеки, текстуры...) Посилання на коментар Поділитися на інших сайтах More sharing options...
Homer Опубліковано: 18 травня 2007 Поділитись Опубліковано: 18 травня 2007 Олега - кста - седня был на книжке - про ЧифАрхитект - воще не слушали они. Посилання на коментар Поділитися на інших сайтах More sharing options...
XamGelo Опубліковано: 18 травня 2007 Автор Поділитись Опубліковано: 18 травня 2007 BrotherSam: Видел на офсайте рендеринги с чифархитекта, оч понравились, и интерьеры и ландшафты. Буду ставить себе именно для целей дизайна, архикад - он больше для проектирования, с визуализацией у него не очень ... Посилання на коментар Поділитися на інших сайтах More sharing options...
XamGelo Опубліковано: 18 травня 2007 Автор Поділитись Опубліковано: 18 травня 2007 Сань, чэрэз неделю усе у нас будет, я тока боюсь шо для таких красивых картинок придется еще доп библиотеки искать, а вот их я тока за дэньги пока видел. Причем по цене ок 300 баксив за одну :-D Посилання на коментар Поділитися на інших сайтах More sharing options...
Homer Опубліковано: 18 травня 2007 Поділитись Опубліковано: 18 травня 2007 Сань, чэрэз неделю усе у нас будет, я тока боюсь шо для таких красивых картинок придется еще доп библиотеки искать, а вот их я тока за дэньги пока видел. Причем по цене ок 300 баксив за одну :-D Та ну нафиг - тыбзенные хдето найдем и сольем. Посилання на коментар Поділитися на інших сайтах More sharing options...
XamGelo Опубліковано: 18 травня 2007 Автор Поділитись Опубліковано: 18 травня 2007 Та искал, правда не долго , я может и не совсем правильно. Седня если нет не будет падать еще поищу Посилання на коментар Поділитися на інших сайтах More sharing options...
Chiara Опубліковано: 18 травня 2007 Поділитись Опубліковано: 18 травня 2007 Фоток у меня к сожалению нет, поэтому выкладываю пока планы. К сожалению для критики уже поздно, стены ломать не буду :-D . Ситуация сложилась так что стройку надо было начинать очень быстро, поэтому в проекте есть недостатки, которые сам знаю и не успел учесть до начала строительства. Дальше, если интересно, буду делиться информацией Может поделитесь тем "что бы сейчас сделал по-другому" в одноименной ветке, я ее спецом подняла Посилання на коментар Поділитися на інших сайтах More sharing options...
Белая Рысь Опубліковано: 18 травня 2007 Поділитись Опубліковано: 18 травня 2007 А что означает Ваш ник? Посилання на коментар Поділитися на інших сайтах More sharing options...
XamGelo Опубліковано: 18 травня 2007 Автор Поділитись Опубліковано: 18 травня 2007 Да это все касается в основном конкретно моей планировки а не технологий и материалов - там дверь чуть не так стоит, окно чуть не такое Посилання на коментар Поділитися на інших сайтах More sharing options...
Белая Рысь Опубліковано: 18 травня 2007 Поділитись Опубліковано: 18 травня 2007 А из чего дом? Посилання на коментар Поділитися на інших сайтах More sharing options...
XamGelo Опубліковано: 18 травня 2007 Автор Поділитись Опубліковано: 18 травня 2007 По нику могу сказать только одно, ни с профилем аватара, ни с написанием никаких ассоциаций быть не должно. Я хохол родом с полтавщины :-D Дом из самого одесского, традиционного материала - ракушняка. У нас процентов 90 из него строят Посилання на коментар Поділитися на інших сайтах More sharing options...
Doker Опубліковано: 1 червня 2007 Поділитись Опубліковано: 1 червня 2007 Скажите, а как Вы подбирали ракушняк? Мне тут вталкивали, что он весь разный по плотности, твердости и тп. Посилання на коментар Поділитися на інших сайтах More sharing options...
Pe_Na Опубліковано: 1 червня 2007 Поділитись Опубліковано: 1 червня 2007 А это даже на ощупь можно отличить. Чем камень темнее, тем он более крохкий. Гладкий - не всегда хороший, слишком пористый на практике оказывается прочнее., хотя лучше конечно золотую середину. Мы нашли вообще почти белый, но он из Винницкой области. Отказались из-за доставки, но тот на мой взгляд вообще супер (ссылка на изображение устарела) он и гладкий (меньше расход цемента) и очень прочный Посилання на коментар Поділитися на інших сайтах More sharing options...
ANGEL Опубліковано: 1 червня 2007 Поділитись Опубліковано: 1 червня 2007 А это даже на ощупь можно отличить. Чем камень темнее, тем он более крохкий. Гладкий - не всегда хороший, слишком пористый на практике оказывается прочнее., хотя лучше конечно золотую середину. Мы нашли вообще почти белый, но он из Винницкой области. Отказались из-за доставки, но тот на мой взгляд вообще супер он и гладкий (меньше расход цемента) и очень прочный А можно поподробней где в Винницкой области карьер? Адреса явки.. Посилання на коментар Поділитися на інших сайтах More sharing options...
Pe_Na Опубліковано: 1 червня 2007 Поділитись Опубліковано: 1 червня 2007 У меня пока есть только район - под Песчанкой. Это почти на границе с одесской областью. Если интересует, могу узнать телефон. В карьере камень на тот момент когда узнавали стоил 2 грн./шт. А доставка нам бы обошлась еще столько же. Поэтому не решились, хотя теперь жалею. Если у кого есть возможность доставить дешевле, то думаю это выгодно. Посилання на коментар Поділитися на інших сайтах More sharing options...
ANGEL Опубліковано: 1 червня 2007 Поділитись Опубліковано: 1 червня 2007 У меня пока есть только район - под Песчанкой. Это почти на границе с одесской областью. Если интересует, могу узнать телефон. В карьере камень на тот момент когда узнавали стоил 2 грн./шт. А доставка нам бы обошлась еще столько же. Поэтому не решились, хотя теперь жалею. Если у кого есть возможность доставить дешевле, то думаю это выгодно. Давайте координаты пароли явки.. Посилання на коментар Поділитися на інших сайтах More sharing options...
Рекомендовані повідомлення
Створіть акаунт або увійдіть у нього для коментування
Ви маєте бути користувачем, щоб залишити коментар
Створити акаунт
Зареєструйтеся для отримання акаунта. Це просто!
Зареєструвати акаунтУвійти
Вже зареєстровані? Увійдіть тут.
Увійти зараз