KosEroh Опубліковано: 28 травня 2014 Поділитись Опубліковано: 28 травня 2014 Наконец-то собрался с духом и решил попробовать сделать стационарный бассейн на участке своими руками. Исходные данные: размер 5 на 10, глубина от 1,75 до 1,5 м (зеркало воды - минус 10 см от бортов), технология - ж/б чаша с лайнером (пленкой). Скриммерный, две форсунки + два скриммера, песчаный насос, донный слив. Подсветка 4 точки. Из допов планирую со временем собрать солнечный нагреватель (спаять из пластика трубы, покрасить в черный цвет и под стекло). Оборудование решил брать у нашего форумчанина Ajj (www.stroimdom.com.ua/forum/member.php?u=86920) Размеры, форма и глубина предопределены размерностью термоблоков, из которых будут сделаны борта. Дно - ж/б плита по грунту. Обязательно будет накрытие (на участке сосны), какое именно - еще не определился. Большинство работ планируется своими руками, постараюсь документировать и визуализировать весь процесс )))) Пока что выкладываю проект, если можно так выразиться ))) Ну, поехали. 9 Посилання на коментар Поділитися на інших сайтах More sharing options...
Dorik K Опубліковано: 28 травня 2014 Поділитись Опубліковано: 28 травня 2014 Удачного строительства 1 Посилання на коментар Поділитися на інших сайтах More sharing options...
Ievgen_p Опубліковано: 28 травня 2014 Поділитись Опубліковано: 28 травня 2014 Самому интересна тема, на отдаленную перспективу. А донный слив - в дренаж ? Подскажите, а куда обычно сливают воду на зиму. У вас 5*10*1,5 = 75 м3, это не мало... И наполнять 75 м3 долго нужно... Посилання на коментар Поділитися на інших сайтах More sharing options...
InSAn Опубліковано: 28 травня 2014 Поділитись Опубліковано: 28 травня 2014 Ну, поехали. С Богом! PS: Буду наблюдать Посилання на коментар Поділитися на інших сайтах More sharing options...
KosEroh Опубліковано: 28 травня 2014 Автор Поділитись Опубліковано: 28 травня 2014 Самому интересна тема, на отдаленную перспективу. А донный слив - в дренаж ? Подскажите, а куда обычно сливают воду на зиму. У вас 5*10*1,5 = 75 м3, это не мало... И наполнять 75 м3 долго нужно... Насколько я успел почитать, такого объема бассейны на зиму не сливаются, там вопрос в давлении на стенки. Но если нужно будет, по частям все пойдет в сливную яму для ливневки - слив каркасника 5 м диаметром за сутки мой "септик" выдержал. 1 Посилання на коментар Поділитися на інших сайтах More sharing options...
Ievgen_p Опубліковано: 28 травня 2014 Поділитись Опубліковано: 28 травня 2014 А донный слив куда ведет - в дренаж ? Тогда вход в дренажный колодец/септик должен быть ниже -1,75 метра. Или там все как-то по другому организовано ? Посилання на коментар Поділитися на інших сайтах More sharing options...
KosEroh Опубліковано: 28 травня 2014 Автор Поділитись Опубліковано: 28 травня 2014 А донный слив куда ведет - в дренаж ? Тогда вход в дренажный колодец/септик должен быть ниже -1,75 метра. Или там все как-то по другому организовано ? Донный слив будет вести в приямок с насосом, т.к. система фильтрации работает через забор со скриммеров и с донника. С приямка от насоса уже будет вывод в ливневку, при этом глубина выхода может быть выше ливневки - выкачка все равно производится принудительно насосом. "Я так думаю" (с) 3 Посилання на коментар Поділитися на інших сайтах More sharing options...
Zeland Опубліковано: 28 травня 2014 Поділитись Опубліковано: 28 травня 2014 ооо ! интересная темка ( тоже хочу себе ! ) будем крайне признательны если оставите "смету " и контакты чего где покупали )) Посилання на коментар Поділитися на інших сайтах More sharing options...
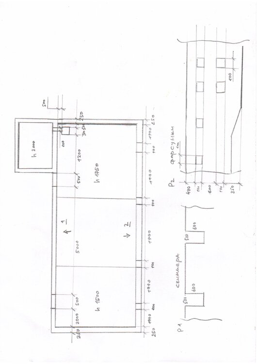
Ajj Опубліковано: 2 червня 2014 Поділитись Опубліковано: 2 червня 2014 Где то так. 1 Посилання на коментар Поділитися на інших сайтах More sharing options...
tomik Опубліковано: 2 червня 2014 Поділитись Опубліковано: 2 червня 2014 Знакомый занимается басейнами (строит и обслуживает). Так вот таких "самостроев" насмотрелся. Может пластиковая чашка все же.... или каркасник? У товарища в доме делали профи. Внутри дома басик. Через 3 года трещина пошла. Сливали воду. прокладывали балки снизу и поднимали чашку бетонную. Вообщем история еще та была. Подчеркиваю строили профи. Посилання на коментар Поділитися на інших сайтах More sharing options...
zyf Опубліковано: 2 червня 2014 Поділитись Опубліковано: 2 червня 2014 И мне интересно ) Посилання на коментар Поділитися на інших сайтах More sharing options...
Ihtiandr Опубліковано: 2 червня 2014 Поділитись Опубліковано: 2 червня 2014 Воду при сливе можно использовать для технических нужд (мойка машины, забора, крыши, окон, фасада дома, дорожек, полива...). Сразу надо рассчитывать сколько по времени его сливать 3-5 дней в дренажную систему... Рассчитывать сколько будет наполняться бассейн 3-4 дня, способность скважины наполнить. Скептически отношусь. При изначальной повсеместной экономии от "своими руками", "пленка", "самодельный солнечный обогреватель" без должного ухода, дорогого содержания, через пол года может благополучно превратится в зеленоватое болотце в центре участка накрытого наподобие пластиковой запыленной теплицей загаженной смолой "сосен" с рассадником насекомых, мух, и мошек... 5-9К будут выкинуты напрасно. Правду говорят чтобы сбить охотку от "хочу" установите временный каркасник/надувной и поиграйтесь.... (ссылка на изображение устарела) 1 Посилання на коментар Поділитися на інших сайтах More sharing options...
Ihtiandr Опубліковано: 2 червня 2014 Поділитись Опубліковано: 2 червня 2014 Еще проще, просто обычное спа бассейн джакузи купить чел на 6 да и все для монтажа на улице.. надоест можно будет и в дом занести.... (%D1%81%D1%81%D1%8B%D0%BB%D0%BA%D0%B0%20%D0%BD%D0%B0%20%D0%B8%D0%B7%D0%BE%D0%B1%D1%80%D0%B0%D0%B6%D0%B5%D0%BD%D0%B8%D0%B5%20%D1%83%D1%81%D1%82%D0%B0%D1%80%D0%B5%D0%BB%D0%B0) 1 Посилання на коментар Поділитися на інших сайтах More sharing options...
Ajj Опубліковано: 3 червня 2014 Поділитись Опубліковано: 3 червня 2014 Согласен, что иногда можно для начала купить самый простой каркасник и понять нужен ли тебе бассейн. И если нужен тогда уже строить. По поводу профи... У нас каждый человек раз поштукатуривший считает себя профи строителем))) Когда планируют бассейн в доме, то это закладывается в проект еще при строительства дома. Когда делают в готовом то тоже нужен проект, так как очень много нюансов. Такой проект может обойтись приблизительно от 2000$. Как часто заказчик готов пойти на такие траты? Еще маленький секрет, у бассейнщиков в 99% нет своих строительных подразделений и они прибегают к услугам фирм, с которыми давно сработались. 1 Посилання на коментар Поділитися на інших сайтах More sharing options...
KosEroh Опубліковано: 3 червня 2014 Автор Поділитись Опубліковано: 3 червня 2014 Спасибо за критику - каркасник интекс использую уже третий год, так что все-таки "дорос", наверное. Относительно трещин и пр. - конечно, вероятность ошибиться или сделать что-то не так, как нужно, велика. Однако азарт изготовления чего-либо своими руками никто не отменял, плюс опыт 5 лет строительства и отделки дома тоже нужно куда-то прикладывать ))) Внутри помещения бассейн сделать неизмеримо сложнее, чем внешний, да и лайнером вряд ли кто-то в помещении захочет... Не боги горшки обжигают, тем более, что на практике научился руководствоваться несколькими принципами работы: если не знаешь, как - спроси у более опытного; боишься - не делай, делаешь - не бойся; семь раз отмерь, один отрежь. Ну как-то так. Сегодня сфоткаю котлован ))) Добавлено через 2 минуты Кстати, есть перед глазами примеры удачного бассейна-самостроя - например, у уважаемого AndrejKiev (www.stroimdom.com.ua/forum/member.php?u=96) в ветке подробно процесс описан. 8 Посилання на коментар Поділитися на інших сайтах More sharing options...
captain Grey Опубліковано: 3 червня 2014 Поділитись Опубліковано: 3 червня 2014 Це з таких блоків, як у мене чи буде опалубка? Посилання на коментар Поділитися на інших сайтах More sharing options...
KosEroh Опубліковано: 3 червня 2014 Автор Поділитись Опубліковано: 3 червня 2014 Це з таких блоків, як у мене чи буде опалубка? З таких саме планую! 1 Посилання на коментар Поділитися на інших сайтах More sharing options...
loader Опубліковано: 3 червня 2014 Поділитись Опубліковано: 3 червня 2014 Еще проще, просто обычное спа бассейн джакузи купить чел на 6 да и все для монтажа на улице.. надоест можно будет и в дом занести.... (ссылка на изображение устарела) у них цены как на вертолет, не? поделитесь недорогими вариантами если такие существуют в природе. зы. на тему подписываюсь, интересно Посилання на коментар Поділитися на інших сайтах More sharing options...
test3210 Опубліковано: 3 червня 2014 Поділитись Опубліковано: 3 червня 2014 если не знаешь, как - спроси у более опытного; боишься - не делай, делаешь - не бойся; семь раз отмерь, один отрежь. семь раз отмерь а резать отдай ученику, правильно значит точно отмерил, нет виноват ученик, а тема интересна, подпишусь , сам пока не готов, надувной пока, а там глядишь и решусь Посилання на коментар Поділитися на інших сайтах More sharing options...
KosEroh Опубліковано: 9 червня 2014 Автор Поділитись Опубліковано: 9 червня 2014 Котлован готов. Даже с запасом ))) что-то фото не прикладывается www.dropbox.com/s/v47rq3b9ehy73ty/20140608_124933.jpg 1 Посилання на коментар Поділитися на інших сайтах More sharing options...
dr evil Опубліковано: 9 червня 2014 Поділитись Опубліковано: 9 червня 2014 KosEroh Доброго дня.Судячи по глибині котловану ви не плануєте бассейн повністю заглиблювати в землю? Дякую за тему,вона актуальна.Чи складали ви попередній кошторис по матеріалам і роботі? Посилання на коментар Поділитися на інших сайтах More sharing options...
Ajj Опубліковано: 9 червня 2014 Поділитись Опубліковано: 9 червня 2014 Судя по фото - место классное. Да тоже показалось, что глубины не хватает. Посилання на коментар Поділитися на інших сайтах More sharing options...
KosEroh Опубліковано: 9 червня 2014 Автор Поділитись Опубліковано: 9 червня 2014 Добрался до кровати... вместо запланированных 5 кубов бетона сегодня удалось залить только полтора - миксер сломался за 50 метров от места выгрузки, что успели руками перетащить за 4 часа - залили. Остальное уехало на завод после ремонта машины. По заглублению - после выхода на уровень отмостки дома планирую около 30 см борта над чистовым полом. Это просто уклон на участке. На этом фото видно лучше перепад. www.dropbox.com/s/ru7sxqwdpurcfro/20140609_172612.jpg 2 Посилання на коментар Поділитися на інших сайтах More sharing options...
Ievgen_p Опубліковано: 10 червня 2014 Поділитись Опубліковано: 10 червня 2014 Вопрос не совсем по басейну - а что у вас за растение заплело забор на дальнем плане? Не вредит ли деревянному забору ? PS Не могли бы фото выкладывать в тексте? Посилання на коментар Поділитися на інших сайтах More sharing options...
KosEroh Опубліковано: 10 червня 2014 Автор Поділитись Опубліковано: 10 червня 2014 Вопрос не совсем по басейну - а что у вас за растение заплело забор на дальнем плане? Не вредит ли деревянному забору ? PS Не могли бы фото выкладывать в тексте? Растение называется "дикий виноград", отлично растет на моем песке - правда, с поливом. Забору вроде бы не вредит особо, по крайней мере визуально забор под виноградом и без него - одинаковы. По фото - с планшета почему-то не хотели грузиться, пробую с компа - весенние фото газона и забора с обрезанным виноградом. Понял, почему фото не подгружались - разрешение большое слишком, на вложенные картинки стоит ограничение по размеру. 2 Посилання на коментар Поділитися на інших сайтах More sharing options...
Рекомендовані повідомлення
Створіть акаунт або увійдіть у нього для коментування
Ви маєте бути користувачем, щоб залишити коментар
Створити акаунт
Зареєструйтеся для отримання акаунта. Це просто!
Зареєструвати акаунтУвійти
Вже зареєстровані? Увійдіть тут.
Увійти зараз