Сергей 31 Опубліковано: 4 серпня 2014 Поділитись Опубліковано: 4 серпня 2014 Что на что надо умножить и поделить? Да это просто: определяете какое количество тепла нужно, затем рассчитываете циркуляционное давление и подгоняете диаметры. 1 Посилання на коментар Поділитися на інших сайтах More sharing options...
Leon26 Опубліковано: 5 серпня 2014 Поділитись Опубліковано: 5 серпня 2014 Ну вот...опять куча вопросов Что на что надо умножить и поделить? Специалист Вам нужен. Без него здесь никак не обойтись. Чтоб смонтировать правильную и эффективно работающую гравитационку нужны не только знания, но и опыт. Найдите нормального мастера который монтирует гравитационки из стальных труб (газосваркой) и будет Вам счастье. Хоть цена за работу покажется довольно не дешёвой, но когда всё просчитаете, увидите что это самый выгодный и надёжный вариант. Можно и из меди, но из-за дороговизны трубы больших диаметров, всё время будет желание занизить диаметр, что плачевно сказывается на ЕЦ. Да и в этом случае без хорошего специалиста по отоплению Вам не обойтись. Если конечно интересует результат, а не процесс Посилання на коментар Поділитися на інших сайтах More sharing options...
Dima75230 Опубліковано: 5 серпня 2014 Поділитись Опубліковано: 5 серпня 2014 Что за трубы такие? В чем преимущество по сравнению с ГОСТ 3262-75 ? Ссылку можно, где продают? Не знаю как в столицах, а у нас бесшовные трубы продают вот тут. 1 Посилання на коментар Поділитися на інших сайтах More sharing options...
SergeyNikolaevich Опубліковано: 5 серпня 2014 Автор Поділитись Опубліковано: 5 серпня 2014 У сварщиков на лбу не написано какой он специалист, максимум что можно вычитать на ихнем лбу это пьет он или нет, и сколько пьет. Специалист Вам нужен. Без него здесь никак не обойтись. Чтоб смонтировать правильную и эффективно работающую гравитационку нужны не только знания, но и опыт. Найдите нормального мастера который монтирует гравитационки из стальных труб (газосваркой) и будет Вам счастье. Хоть цена за работу покажется довольно не дешёвой, но когда всё просчитаете, увидите что это самый выгодный и надёжный вариант. Можно и из меди, но из-за дороговизны трубы больших диаметров, всё время будет желание занизить диаметр, что плачевно сказывается на ЕЦ. Да и в этом случае без хорошего специалиста по отоплению Вам не обойтись. Если конечно интересует результат, а не процесс Посилання на коментар Поділитися на інших сайтах More sharing options...
Leon26 Опубліковано: 5 серпня 2014 Поділитись Опубліковано: 5 серпня 2014 У сварщиков на лбу не написано какой он специалист, максимум что можно вычитать на ихнем лбу это пьет он или нет, и сколько пьет. В росийской глубинке строитесь? Посилання на коментар Поділитися на інших сайтах More sharing options...
SergeyNikolaevich Опубліковано: 5 серпня 2014 Автор Поділитись Опубліковано: 5 серпня 2014 В росийской глубинке строитесь? В Киеве не исключение. Все сварщики что мне попадались, или просто видел, злоупотребляют алкоголем. Я не утверждаю что все сварщики алканавты, но почему то я ни одного трезвенника не знаю и не встречал. Некоторые лучше, некоторые хуже, а когда с бодуна или поддатые то вообще привет. Из прошлого: вызвал сантехника (он же по ходу и сварщик), стояк потек. ну значит заварил он его, спустился в подвал включил воду а стояк течет, ну не так чтобы течет, но просачивается. так вот вам рецепт от сварщика/сантехника: замазал солью место сварки и сказал "заржавеет и затянется!" и был здоров. А еще сосед по летничной площадке, так тот вообще сварщик какого то там разряда, на заводе работет (какой именно не уточнял). Так вот я его за лет 25, сколько живу там, ни разу не видел трезвым! Он постоянно в овно пьяный, либо стену подпирает либо в луже сидит. Посилання на коментар Поділитися на інших сайтах More sharing options...
red baron Опубліковано: 5 серпня 2014 Поділитись Опубліковано: 5 серпня 2014 В Киеве не исключение. Все сварщики что мне попадались, или просто видел, злоупотребляют алкоголем. Я не утверждаю что все сварщики алканавты, но почему то я ни одного трезвенника не знаю и не встречал. Некоторые лучше, некоторые хуже, а когда с бодуна или поддатые то вообще привет. Из прошлого: вызвал сантехника (он же по ходу и сварщик), стояк потек. ну значит заварил он его, спустился в подвал включил воду а стояк течет, ну не так чтобы течет, но просачивается. так вот вам рецепт от сварщика/сантехника: замазал солью место сварки и сказал "заржавеет и затянется!" и был здоров. А еще сосед по летничной площадке, так тот вообще сварщик какого то там разряда, на заводе работет (какой именно не уточнял). Так вот я его за лет 25, сколько живу там, ни разу не видел трезвым! Он постоянно в овно пьяный, либо стену подпирает либо в луже сидит. немного юмора в тему я не сварщик - учусь))) звонит клиент - проблема по котельной(не помню что там было толи кран потек, толи что-то подобное) значит стою работаю - замечаю что клиент странно смотрит на меня. и так минут 5 - мне аж как то не так по себе)))) меня рассматривает я вопрос в лоб - что во мне так? Его ответ меня поразил - впервые вижу трезвого сантехника:) ну поржали вместе. Закончил - называю сколько денег - он дает в 2 раза больше я ему - нет сдачи - он - это за трезвость :):) тушите свет Посилання на коментар Поділитися на інших сайтах More sharing options...
AleksZm Опубліковано: 5 серпня 2014 Поділитись Опубліковано: 5 серпня 2014 У сварщиков на лбу не написано какой он специалист... Ну я например сразу предупреждаю, что являюсь низкоквалифицированымвысокооплачиваемым сварщиком Посилання на коментар Поділитися на інших сайтах More sharing options...
SergeyNikolaevich Опубліковано: 5 серпня 2014 Автор Поділитись Опубліковано: 5 серпня 2014 Ну я например сразу предупреждаю, что являюсь низкоквалифицированымвысокооплачиваемым сварщиком Давай сразу о главном: употребляешь? Добавлено через 9 минут Надо будет как то выпить и попробовать сварить что нить, может действительно лучше будет шов. Посилання на коментар Поділитися на інших сайтах More sharing options...
AleksZm Опубліковано: 5 серпня 2014 Поділитись Опубліковано: 5 серпня 2014 Какой диаметр брать на систему ЕЦ и какой толщины стенки? ostroykevse.ru/Otoplenie/Otoplenie_4.html Я так "грузовичками" (выдержка из ссылки) рассчитывал и варил друзьям двухэтажную дачу. Вчера запустили. Все батареи (семь штук, чугунные) и самодельный "полотенчик" прогрелись с 25 градусов до 85 в течении часа. Котел ТТ Данко 20кВт с плитой сверху, система открытая с ЕЦ. По швах было около 15 свичей, заварил за пол часа. Варил отопление инвертором ССВА-160 (целый дом) второй раз в жизни. Первый раз лет пять назад с газовым котлом. Главное желание учится и работать Добавлено через 2 минуты Давай сразу о главном: употребляешь? О это я люблю, НО в хорошей компании и под хорошую закуску. Когда вы берете балтийскую килечку..... Посилання на коментар Поділитися на інших сайтах More sharing options...
SergeyNikolaevich Опубліковано: 12 вересня 2014 Автор Поділитись Опубліковано: 12 вересня 2014 Эээээ....а это нормально использовать такие тоненькие трубы для ЕЦ? А то я себе тут уже список составил: 1) котел RODA Brenner Classic BC-03 15 кВт 2) стальные трубы на подачу и обратку 50мм 3) стальные трубы к радиаторам 25мм Кстати, что скажите о аллюминиевых китайских радиаторах? Подкупает вес изделия. Посилання на коментар Поділитися на інших сайтах More sharing options...
Leon26 Опубліковано: 12 вересня 2014 Поділитись Опубліковано: 12 вересня 2014 Эээээ....а это нормально использовать такие тоненькие трубы для ЕЦ? Трубы-трубами, а фитинги там вообще смертельные для ЕЦ. Гравитационку нужно монтировать из стальных труб, или экопласт не скупясь на диаметры на худой конец. Если есть деньги на медь больших диаметров, можно и из неё. Для хорошей естественной циркуляции главное не занижать проход. Посилання на коментар Поділитися на інших сайтах More sharing options...
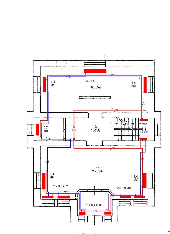
Korni Опубліковано: 12 вересня 2014 Поділитись Опубліковано: 12 вересня 2014 ...1) котел RODA Brenner Classic BC-03 15 кВт 2) стальные трубы на подачу и обратку 50мм 3) стальные трубы к радиаторам 25мм..... 15 кВт ЕЦ можно развести 28-22 медью. Подводки к радиаторам - 18-й. (ссылка на изображение устарела) Посилання на коментар Поділитися на інших сайтах More sharing options...
SergeyNikolaevich Опубліковано: 12 вересня 2014 Автор Поділитись Опубліковано: 12 вересня 2014 15 кВт ЕЦ можно развести 28-22 медью. Подводки к радиаторам - 18-й. А стальной? У них разное сопротивление потока теплоносителя будет? Посилання на коментар Поділитися на інших сайтах More sharing options...
Leon26 Опубліковано: 12 вересня 2014 Поділитись Опубліковано: 12 вересня 2014 А то я себе тут уже список составил: 1) котел RODA Brenner Classic BC-03 15 кВт 2) стальные трубы на подачу и обратку 50мм 3) стальные трубы к радиаторам 25мм Кстати, что скажите о аллюминиевых китайских радиаторах? Подкупает вес изделия. У котла выход 2", подачу и обратку до первого ОП желательно таким же диаметром. Ду 25 на один прибор имхо оправдано только для дальнего или более 15 секций прибора. Для обычного радиатора 7-10 секций вполне достаточно Ду 20. Хотя от бОльшего диаметра хуже не будет. Люминий на ТТ вообще нет смысла, Вам хороший объем теплоносителя нужен. Так что лучше чугуний, очень лучше - типа МС-140. 1 Посилання на коментар Поділитися на інших сайтах More sharing options...
Korni Опубліковано: 12 вересня 2014 Поділитись Опубліковано: 12 вересня 2014 А стальной? У них разное сопротивление потока теплоносителя будет? Разное. У меди стенки не зарастают и сопротивление гораздо ниже. Медь лучший материал для ЕЦ, имхо. Медь - СО с ЕЦ (гравитационка), водоснабжение, тёплый пол 230 м.кв - Радиаторная СО с возможностью работы в режиме гравитационной (Естественная Циркуляция) из меди - первые два этажа (ещё есть цоколь и мансардный этаж). Площадь одного этажа - около 110-120 м.кв. Радиаторы чугунные Виадрус, подвод к радиаторам 18мм медь, котёл энергонезависимый Протерм. Тёплый пол - 1 и 2-й этаж, 210 м.кв. Посилання на коментар Поділитися на інших сайтах More sharing options...
SergeyNikolaevich Опубліковано: 12 вересня 2014 Автор Поділитись Опубліковано: 12 вересня 2014 Разное. У меди стенки не зарастают и сопротивление гораздо ниже. Медь лучший материал для ЕЦ, имхо. А нержавейка? Посилання на коментар Поділитися на інших сайтах More sharing options...
Leon26 Опубліковано: 12 вересня 2014 Поділитись Опубліковано: 12 вересня 2014 Разное. У меди стенки не зарастают и сопротивление гораздо ниже. Медь лучший материал для ЕЦ, имхо. И чем лучше медь? Конкретно, по пунктам. И интересно, чем это у стальных труб в системах отопления стенки зарастают? Не одно десятилетие в этой теме, ни разу не встречал в нормальных условиях. Кроме нескольких клиничных случаев, и то не в частном доме, а в небольших котельных с ужасной водой, никакой водоподготовкой и постоянной подпиткой. А в таких условиях медь зарастает точно также. Медь тоже можно, но только для данного случая подача от котла должна начинаться минимум с Ду 40, а ещё лучше Ду 50, как изготовитель рекомендует. Озвучите смету на такие диаметры труб из меди? Или нуегонах на ночь глядя? Так что как ни крути, сталь рулит. Единственное что, так это недопустимо прокладывать сталь в сырых помещениях, в земле и магистрали-наружки. Во всех остальных местах можно смело рассчитывать на срок службы стальныхъ труб от 50 лет и более. В своей автономке (а перевидел я их очень много), так вообще, за 50 лет никаких изменений, стенка как только что с завода. Посилання на коментар Поділитися на інших сайтах More sharing options...
Korni Опубліковано: 12 вересня 2014 Поділитись Опубліковано: 12 вересня 2014 А нержавейка? Отлично, но дорого. Использовалась медь Dn50 (54мм) до коллектора, потом Dn40 (42мм) стояк на первый этаж и, отдельно, Dn32 (35мм) - стояк на второй этаж: Посилання на коментар Поділитися на інших сайтах More sharing options...
SergeyNikolaevich Опубліковано: 12 вересня 2014 Автор Поділитись Опубліковано: 12 вересня 2014 Посмотрел я цены на медь и желание пропало. Нержавейка побюджетнее будет. Посилання на коментар Поділитися на інших сайтах More sharing options...
Korni Опубліковано: 12 вересня 2014 Поділитись Опубліковано: 12 вересня 2014 И чем лучше медь? Конкретно, по пунктам..... ОК. Эквивалентная шероховатость медной трубы Δэ = 0,0015 мм, стальной трубы Δэ = 0,05 мм. Это увеличивает пропускную способность медных труб и позволяет применять трубы малого диаметра. Шероховатость практически не изменяется в эксплуатационном режиме. Требует меньше площади и легче в монтаже. Стенка тоньше гораздо, чем у стали (Диаметр номинальный- это внутренний диаметр). Легче и эстетичней спрятать в стене. Более стойкая к коррозии, чем железо (электрохимический потенциал) Медь антибактериальна (водоснабжение) Добавлено через 32 секунды Посмотрел я цены на медь и желание пропало. Нержавейка побюджетнее будет. Вы ошибаетесь. Посилання на коментар Поділитися на інших сайтах More sharing options...
SergeyNikolaevich Опубліковано: 12 вересня 2014 Автор Поділитись Опубліковано: 12 вересня 2014 Вы ошибаетесь. Подскажите тогда адресок где цены вменяемые, а то 380 грн/м за трубу 35мм чет слишком круто. Посилання на коментар Поділитися на інших сайтах More sharing options...
Korni Опубліковано: 12 вересня 2014 Поділитись Опубліковано: 12 вересня 2014 Подскажите тогда адресок где цены вменяемые, а то 380 грн/м за трубу 35мм чет слишком круто. А Вы действительно думаете, что "СИСТЕМА ОТОПЛЕНИЯ" - это только стоимость трубы? Тогда надо делать черной сталью. Или полипропиленом. Посилання на коментар Поділитися на інших сайтах More sharing options...
SergeyNikolaevich Опубліковано: 12 вересня 2014 Автор Поділитись Опубліковано: 12 вересня 2014 А Вы действительно думаете, что "СИСТЕМА ОТОПЛЕНИЯ" - это только стоимость трубы? Тогда надо делать черной сталью. Или полипропиленом. Нет, но так можно и золотой трубой СО сделать, и даже как то обосновать целесообразность применения именно золотой трубы :D У меня дом из самана в селе, вид толстых труб на стенах меня не будет напрягать. Я не пытаюсь использовать самое дешовое, я пытаюсь найти компромис. ;) Посилання на коментар Поділитися на інших сайтах More sharing options...
Korni Опубліковано: 12 вересня 2014 Поділитись Опубліковано: 12 вересня 2014 У меня дом из самана в селе, вид толстых труб на стенах меня не будет напрягать. Я не пытаюсь использовать самое дешовое, я пытаюсь найти компромис Сталь по наружке - это Ваш вариант. Посилання на коментар Поділитися на інших сайтах More sharing options...
Рекомендовані повідомлення
Створіть акаунт або увійдіть у нього для коментування
Ви маєте бути користувачем, щоб залишити коментар
Створити акаунт
Зареєструйтеся для отримання акаунта. Це просто!
Зареєструвати акаунтУвійти
Вже зареєстровані? Увійдіть тут.
Увійти зараз