Skalsa Опубліковано: 12 жовтня 2015 Поділитись Опубліковано: 12 жовтня 2015 Спасибо за ваш ответ. Рисунок от руки есть. Буду очень благодарен... Посилання на коментар Поділитися на інших сайтах More sharing options...
Болт Опубліковано: 18 жовтня 2015 Поділитись Опубліковано: 18 жовтня 2015 Уважаемые архитекторы (контсруктора), кто может накидать в программе проект одноэтажного дома? буду признателен... Если неправильно выразился, простите... Я уже и скачивал программу по моделированию, но так и не смог ничего сделать... Проект нарисовал на листе в клетку, 1 см. клетки - 1 метр дома.. Стены - 30 см. газоблок - СТОУНЛАЙТ либо Аэрок.. Прикрепляю чертеж.. Посилання на коментар Поділитися на інших сайтах More sharing options...
Технология Строительства Опубліковано: 18 жовтня 2015 Поділитись Опубліковано: 18 жовтня 2015 Уважаемые архитекторы (контсруктора), кто может накидать в программе проект одноэтажного дома? буду признателен... Если неправильно выразился, простите... Вы хотите, что бы Вам запроектировали дом бесплатно? Посилання на коментар Поділитися на інших сайтах More sharing options...
Болт Опубліковано: 18 жовтня 2015 Поділитись Опубліковано: 18 жовтня 2015 Вы хотите, что бы Вам запроектировали дом бесплатно? Нет не проект,а визуализация.. или это одно и тоже? если это сложно,то снимаю просьбу,, извините.. Посилання на коментар Поділитися на інших сайтах More sharing options...
Технология Строительства Опубліковано: 18 жовтня 2015 Поділитись Опубліковано: 18 жовтня 2015 Нет не проект,а визуализация.. или это одно и тоже? если это сложно,то снимаю просьбу,, извините.. Нет визуализация, это не проект дома. Что бы сделать Вам визуализацию, даже самую простенькую нужно потратить 3-4 часа. Если хорошую то часов 12-15. Напишите в тендерах, я думаю Вам это будет стоить небольших денег. Посилання на коментар Поділитися на інших сайтах More sharing options...
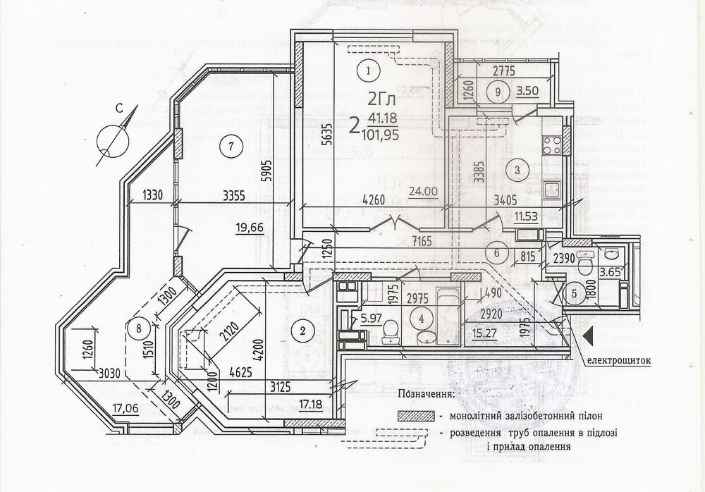
саме та Опубліковано: 24 листопада 2015 Поділитись Опубліковано: 24 листопада 2015 Дмитрий, здравствуйте. Вопрос по перепланировке, а точнее хотим поменять местами кухню и жилую комнату (помещение 3 и 2) В помещении 7 (по документам застеклённый балкон) хотим сделать полноценную комнату. Возможно ли? Если да,то какие согласования нужно проходить? Посилання на коментар Поділитися на інших сайтах More sharing options...
Тюня Опубліковано: 25 листопада 2015 Поділитись Опубліковано: 25 листопада 2015 Добрый день! Включусь в тему! Вопрос по выбору фундамента Собираемся построить летнюю кухню (площадку для барбекю крытую крышей) 4 на 6 метров + пристроенный к ней сарайчик для хозяйственной дребедени (4,7 на 4 метра), накрытые одной двускатной крышей В хозяйстве есть плиты - плиты перекрытия пустотные 6.3 на 1,15 и 2 плиты полнотелые с какого-то дорожного строительства (предыдущий владелец заволок на участок) Хотим использовать их на пол будущего сооружения, чистый пол выше уровня грунта на 100 планируется Хотели сделать фундамент под них, сделав ленту на глубину промерзания по короткой стороне прямоугольника пятна этой кухни, и на эту ленту опустить эти плиты в качестве чернового пола по длинной стороне ничего, т.е. плиты будут опираться только торцами нагрузка минимальная Стены сарайчика в 1 кирпич Там где плит не будет - дольем бетоном как пол по грунту Что скажете? Имеет право на жизнь или нет? Посилання на коментар Поділитися на інших сайтах More sharing options...
Технология Строительства Опубліковано: 25 листопада 2015 Поділитись Опубліковано: 25 листопада 2015 Добрый день! Включусь в тему! Вопрос по выбору фундамента Собираемся построить летнюю кухню (площадку для барбекю крытую крышей) 4 на 6 метров + пристроенный к ней сарайчик для хозяйственной дребедени (4,7 на 4 метра), накрытые одной двускатной крышей В хозяйстве есть плиты - плиты перекрытия пустотные 6.3 на 1,15 и 2 плиты полнотелые с какого-то дорожного строительства (предыдущий владелец заволок на участок) Хотим использовать их на пол будущего сооружения, чистый пол выше уровня грунта на 100 планируется Хотели сделать фундамент под них, сделав ленту на глубину промерзания по короткой стороне прямоугольника пятна этой кухни, и на эту ленту опустить эти плиты в качестве чернового пола по длинной стороне ничего, т.е. плиты будут опираться только торцами нагрузка минимальная Стены сарайчика в 1 кирпич Там где плит не будет - дольем бетоном как пол по грунту Что скажете? Имеет право на жизнь или нет? можно так и сделать. Можно для сарая кирпич поменять на газоблок и посмотреть на геологию, может даже можно будет сделать мелкозаглубленный фундамент если геология хорошая. экономия к будет не плохая пару десятков тыс. грн. Хотя для кого как=). Добавлено через 6 минут Дмитрий, здравствуйте. Вопрос по перепланировке, а точнее хотим поменять местами кухню и жилую комнату (помещение 3 и 2) В помещении 7 (по документам застеклённый балкон) хотим сделать полноценную комнату. Возможно ли? Если да,то какие согласования нужно проходить? 1. Если я правильно понял, то у вас каркасно-монолитный дом. В нем можно поменять, все местами помещения 3 и 2 и не только. 2. (про балкон)Если Вы не собираетесь продавать квартиру точно, хотя всякое бывает, то не нужно, если будете делать какие то юридические движения с Вашей квартирой то нужно. 2 Посилання на коментар Поділитися на інших сайтах More sharing options...
Тюня Опубліковано: 25 листопада 2015 Поділитись Опубліковано: 25 листопада 2015 посмотреть на геологию, Геология - песок и супеси, УГВ 6 метров (участок возле леса) Посилання на коментар Поділитися на інших сайтах More sharing options...
Технология Строительства Опубліковано: 25 листопада 2015 Поділитись Опубліковано: 25 листопада 2015 Геология - песок и супеси, УГВ 6 метров (участок возле леса) если там песок даже мелкий. То реально сделать мелкозаглубленный фундамент. Читайте технологию его возведения, проектируйте. Стройте. проблем не вижу=) 1 Посилання на коментар Поділитися на інших сайтах More sharing options...
JamGreen Опубліковано: 4 грудня 2015 Поділитись Опубліковано: 4 грудня 2015 Здравствуйте. Нужно в пятистенке перекрыть пролет 10,8 метров. Это будет торговый зал, поэтому хочется поменьше колонн. Я тут нарисовал "на глаз" чтобы "не сильно тонкая колонная" и "не сильно узкие проходы". Но если можно проходы расширить, не удорожая кардинально конструкцию, было бы круто. На этот пролет лягут 6м плиты перекрытия с обеих сторон. А сверху будет тоже какая-то несущая стена второго этажа, на которую будет опираться крыша. Материал стен нарисован кирпич, но я еще не определился, будет это ГБ 400мм или в полтора кирпича, это отдельный вопрос. Выше первого этажа, я думаю, по-любому будет ГБ. Я так понимаю, для ГБ надо будет включать эти пролеты в армопояс и рассчитывать армирование. Для кирпича - просто кинуть заводские балки, верно? Посилання на коментар Поділитися на інших сайтах More sharing options...
Тюня Опубліковано: 4 грудня 2015 Поділитись Опубліковано: 4 грудня 2015 Читайте технологию его возведения, проектируйте. Стройте. проблем не вижу=) Грузинская страховка. ЛЕЗЬ - Я ТЕБЯ ВИЖУ Посилання на коментар Поділитися на інших сайтах More sharing options...
JamGreen Опубліковано: 4 грудня 2015 Поділитись Опубліковано: 4 грудня 2015 Здравствуйте. Подскажите пожалуйста, нужно в пятистенке перекрыть пролет 10,8 метров. Это будет торговый зал, поэтому хочется поменьше колонн. Я тут нарисовал "на глаз" чтобы "не сильно тонкая колонная" и "не сильно узкие проходы". Но если можно проходы расширить, не удорожая кардинально конструкцию, было бы круто. На этот пролет лягут 6м плиты перекрытия с обеих сторон. А сверху будет тоже какая-то несущая стена второго этажа, на которую будет опираться крыша. Материал стен нарисован кирпич, но я еще не определился, будет это ГБ 400мм или в полтора кирпича, это отдельный вопрос. Выше первого этажа, я думаю, по-любому будет ГБ. Я так понимаю, для ГБ надо будет включать эти пролеты в армопояс и рассчитывать армирование. Для кирпича - просто кинуть заводские балки, верно? И второй вопрос, пожалуйста, подскажите выбор материала для стен, кирпич или газоблок. Хочу первый сделать из кирпича, потому что: 1. К стенам по кругу в перспективе обязательно потом будут крепиться всякие там козырьки, навесы для машины, терраса для второго этажа и т.д. В кирпич проще крепиться уже "потом". 2. Обязательно будут плиты перекрытия, большие пролеты. Можно обойтись без армопояса и стандартными перемычками. 3. Обязательно будет пристроено еще помещение такого же размера к длинной стене, фундамент тот же, не придется связываться на уровне армопояса над первым этажом. Короче поскольку это будет только первый этап размером примерно 1\6 от желаемого, к кирпичу будет проще стыковать что бы то ни было. Хотя изначально выглядит так как будто такую прямоугольную коробку саму по себе в один этаж проще сделать газоблоком и запустить все в работу даже без особой отделки стен. Что скажете? Посилання на коментар Поділитися на інших сайтах More sharing options...
Технология Строительства Опубліковано: 4 грудня 2015 Поділитись Опубліковано: 4 грудня 2015 Здравствуйте. Нужно в пятистенке перекрыть пролет 10,8 метров. Это будет торговый зал, поэтому хочется поменьше колонн. Я тут нарисовал "на глаз" чтобы "не сильно тонкая колонная" и "не сильно узкие проходы". Но если можно проходы расширить, не удорожая кардинально конструкцию, было бы круто. Нажмите, для показа скрытой информации На этот пролет лягут 6м плиты перекрытия с обеих сторон. А сверху будет тоже какая-то несущая стена второго этажа, на которую будет опираться крыша. Материал стен нарисован кирпич, но я еще не определился, будет это ГБ 400мм или в полтора кирпича, это отдельный вопрос. Выше первого этажа, я думаю, по-любому будет ГБ. Я так понимаю, для ГБ надо будет включать эти пролеты в армопояс и рассчитывать армирование. Для кирпича - просто кинуть заводские балки, верно? Здравствуйте. 1. Я Вам порекомендую сделать таким образом. Сделать пролеты таких размеров которые Вы показали на эскизе. Сделать монолитный пояс между 1 и 2 этажом, которые и в то же время будут служить балками над этими пролетами. 2. Обязательно будут плиты перекрытия, большие пролеты. Можно обойтись без армопояса и стандартными перемычками. Почему Вы так захотели? Скажу зачем нужен армопояс: - помогает дому садится равномерно; - сейсмо защита; - в участках где опираются плиты перекрытия особенно на газоблок возникают трещины, что бы этих трещин избежать делают монолитный пояс. По стоимости это около 4-5 м3 бетона и 300 кг арматуры, по сравнению со стоимостью всего дома это очень мало. Потому хорошая защита за относительно не большие деньги является выгодной и экономической оправданной. 2. По поводу сборных балок или будет недобор прочности, либо перебор под Ваше здание Вы не найдете, тут будет лучше сделать монолитным поясом. 3. Сборные перемычки можно сделать проблем не вижу, хотя смотря где, тоже самое в перегородках будет перебор прочности, лучше пару прутов арматуры + монолитного бетона будет дешевле не смотря на опалубку из дерева, которая Вам понадобится что бы залить эту же перемычку; 4. Газоблок и кирпич. Это уже политический вопрос, все только смотрят на маркетинг и на то что он лучше по теплоизоляции и больше экономия на фундамент, хотя иногда геология диктует какой будет фундамент. По поводу крепления тут да, кирпич имеет победу незамедлительную. Только Вы должны уже на этапе проектирование просчитать, Вам будет дешевле построить 1 этаж из кирпича или купить хим. анкера для крепления или предусмотреть ниши под балки, не вижу проблемы сделать это из газоблока. В любом случаи Вы еще находитесь на выборе потому задавайте больше вопросов, так как будут "за" и "против" и нужно проанализировать, какую нужно принять точку зрения исходя из (прочности, надежности, экономичности и простоты монтажа и скорость если такова нужна). 1 Посилання на коментар Поділитися на інших сайтах More sharing options...
SVE36rus Опубліковано: 6 грудня 2015 Поділитись Опубліковано: 6 грудня 2015 Здравствуйте! Уважаемые архитекторы, проектировщики и просто люди с опытом. Вложил два варианта планировки. Требуется критика по 1 и 2 варианту, как и что можно улучшить. Особенно с точки зрения эргономики и удобства проживания. www.stroimdom.com.ua/forum/showthread.php?t=191237 Посилання на коментар Поділитися на інших сайтах More sharing options...
semengv Опубліковано: 7 грудня 2015 Поділитись Опубліковано: 7 грудня 2015 Добрый день! Интересует такой вопрос: возможно ли использование в качестве армировки балок при пролете до 4 метров рельса с маркировкой "65"? А так же его использование для монолитного перекрытия размером 3х3 м с опиранием с одной стороны на несущую стенку (по армопоясу), а с другой на кирпичный перестенок, усиленный в этом месте в виде столба в 1,5 кирпича. А также использование его в качестве балки - для опирания лестницы -металлокаркас, обшитый деревом. Ширина данной балки в свету -2 метра. Целесообразность мероприятия не берем в расчет.Достался по наследству в количестве 50 метров. Вывозить и сдавать на металл - нет смысла - транспортные большие. Прочность стали у рельса, как мне сказали больше, но интересует именно мнение конструктора. Спасибо. Посилання на коментар Поділитися на інших сайтах More sharing options...
Технология Строительства Опубліковано: 7 грудня 2015 Поділитись Опубліковано: 7 грудня 2015 Добрый день! Интересует такой вопрос: возможно ли использование в качестве армировки балок при пролете до 4 метров рельса с маркировкой "65"? А так же его использование для монолитного перекрытия размером 3х3 м с опиранием с одной стороны на несущую стенку (по армопоясу), а с другой на кирпичный перестенок, усиленный в этом месте в виде столба в 1,5 кирпича. А также использование его в качестве балки - для опирания лестницы -металлокаркас, обшитый деревом. Ширина данной балки в свету -2 метра. Целесообразность мероприятия не берем в расчет.Достался по наследству в количестве 50 метров. Вывозить и сдавать на металл - нет смысла - транспортные большие. Прочность стали у рельса, как мне сказали больше, но интересует именно мнение конструктора. Спасибо. Забавная штука на самом деле. Все профили которые используются (дороги, мосты, железные дороги) лучше по характеристикам чем строительные профили. Геометрические характеристики дорожных профилей больше (момент инерции, момент сопротивления больше), соответственно и общая прочность конструкции выше. Думаю что для балки и для лестницы можно, по поводу перекрития нужно больше информации усилить как перестенок?, фундамент какой под это усиления сделать?. У меня когда то был случай подпорную стену запроектировал со сборных лестничных маршей, не знаю или её построили, там довольно тяжелая конструкция не каждому строителю по зубам. Решения найти можно, что бы использовать эти рельсы, надо правда хорошенько подумать как это дело лучше обыграть и вперед строить. 1 Посилання на коментар Поділитися на інших сайтах More sharing options...
semengv Опубліковано: 7 грудня 2015 Поділитись Опубліковано: 7 грудня 2015 нужно больше информации усилить как перестенок?, фундамент какой под это усиления сделать?. Перестенок в 1\2 кирпича шириной 4,5 м разделяет зону кухни-гостинной. Связан с наружной и средней несущими стенами. В нем арочный проем шир.2 м. Остальная часть глухая. Вот сразу за аркой в начале глухой части и нужно опирание. Думалось сделать выступ внутрь кухни из того же кирпича, т.е до 1,5 кирпича (типа столба). Опирание перестенка идет на плиты пустотки (по длинной стороне) 4,8 м (первый этаж будет перекрываться плитами, т.к. под частью (1\4) дома - подвал, еще 1\4 засыпан грунт слоем 3 метра. Перекрытия над 1 этажем - деревянные. Бетонное только в с\у. Условия вынужденные - на участке был старый фундамент и подвал под 1\2 дома. Все разбиралось, отсюда и рельсы. Подвал оставлен под 1\4, остальное засыпано грунтом. Поэтому не делала полы по грунту - 3 метра утрамбовать не реально. Нахожусь на стадии готового фундамента - армопояс не решилась заливать - будет по весне. Посилання на коментар Поділитися на інших сайтах More sharing options...
Технология Строительства Опубліковано: 8 грудня 2015 Поділитись Опубліковано: 8 грудня 2015 Перестенок в 1\2 кирпича шириной 4,5 м разделяет зону кухни-гостинной. Связан с наружной и средней несущими стенами. В нем арочный проем шир.2 м. Остальная часть глухая. Вот сразу за аркой в начале глухой части и нужно опирание. Думалось сделать выступ внутрь кухни из того же кирпича, т.е до 1,5 кирпича (типа столба). Опирание перестенка идет на плиты пустотки (по длинной стороне) 4,8 м (первый этаж будет перекрываться плитами, т.к. под частью (1\4) дома - подвал, еще 1\4 засыпан грунт слоем 3 метра. Перекрытия над 1 этажем - деревянные. Бетонное только в с\у. Условия вынужденные - на участке был старый фундамент и подвал под 1\2 дома. Все разбиралось, отсюда и рельсы. Подвал оставлен под 1\4, остальное засыпано грунтом. Поэтому не делала полы по грунту - 3 метра утрамбовать не реально. Нахожусь на стадии готового фундамента - армопояс не решилась заливать - будет по весне. Тут надо конечно натурно смотреть и проектировать. Если уже опирать то только на эту новую кирпичную колону в 1.5 кирпича, так как под перегородкой фундамент неизвестный, более того нужно по любому хотя бы визуальное обследование конструкции сделать. Вообще на перестенке нельзя опирать перекрытия это не несущая конструкция. Потом или строить рядом новую несущую стену (в вашем случаи колонны на которые будут опираться перекрытия), или выбирать другой тип перекрытия искать другие решения. Не играйтесь с этим это приведет к тому, что может будет трещать дом. Только этого Вам не хватало=). 1 Посилання на коментар Поділитися на інших сайтах More sharing options...
semengv Опубліковано: 8 грудня 2015 Поділитись Опубліковано: 8 грудня 2015 Если уже опирать то только на эту новую кирпичную колону в 1.5 кирпича, так как под перегородкой фундамент неизвестный, более того нужно по любому хотя бы визуальное обследование конструкции сделать. Вообще на перестенке нельзя опирать перекрытия это не несущая конструкция. Там нет еще ничего - у меня еще фундамент только основной. Весной будет армопояс по нему и плиты пустотки.Под ними просто грунт - обратная засыпка. Перестенок будет стоять по длинной стороне плиты. По плитам разве нельзя строить перестенки из кирпича? Я почему вопрос и задала сейчас - еще плиты не лежат - значит можно под колонну или под этот перестенок залить фундамент. Тогда вопрос с опиранием отпадет сам по себе. Посилання на коментар Поділитися на інших сайтах More sharing options...
Технология Строительства Опубліковано: 8 грудня 2015 Поділитись Опубліковано: 8 грудня 2015 Там нет еще ничего - у меня еще фундамент только основной. Весной будет армопояс по нему и плиты пустотки.Под ними просто грунт - обратная засыпка. Перестенок будет стоять по длинной стороне плиты. По плитам разве нельзя строить перестенки из кирпича? Я почему вопрос и задала сейчас - еще плиты не лежат - значит можно под колонну или под этот перестенок залить фундамент. Тогда вопрос с опиранием отпадет сам по себе. =) Забавный разговор пошел. 1. Перестенок или будет вернее её называть перегородка (толщина 120 мм (пол кирпича) - это НЕ ЕСТЬ несущая конструкция (на неё нельзя опирать перекрытия); 2. Вы хотите эту перегородку усилить и опереть на неё плиту монолитную, между первым и вторым этажом. Верно я понял? 3. Что получается. Монолитная плита опирается на перегородку, перегородка опирается на круглопустотную плиту. ЭТОГО ДЕЛАТЬ НЕЛЬЗЯ 100%. Какая бы плита не была. Нельзя. Если я все верно понял?=) Потому решения нужно искать другое. 100%. 1 Посилання на коментар Поділитися на інших сайтах More sharing options...
semengv Опубліковано: 8 грудня 2015 Поділитись Опубліковано: 8 грудня 2015 Добавлено через 6 минут =) Забавный разговор пошел. 1. Перестенок или будет вернее её называть перегородка (толщина 120 мм (пол кирпича) - это НЕ ЕСТЬ несущая конструкция (на неё нельзя опирать перекрытия); 2. Вы хотите эту перегородку усилить и опереть на неё плиту монолитную, между первым и вторым этажом. Верно я понял? 3. Что получается. Монолитная плита опирается на перегородку, перегородка опирается на круглопустотную плиту. ЭТОГО ДЕЛАТЬ НЕЛЬЗЯ 100%. Какая бы плита не была. Нельзя. Если я все верно понял?=) Потому решения нужно искать другое. 100%. 1. Знаю. 2. Именно так. 3. Тоже верно, и в курсе - поэтому ищу решение, а именно: перегородка приходится на СТЫК двух плит. При укладке плит есть возможность одну плиту 1.2 м поменять на 1м. шириной - получится щель. Если чуть сдвинуть, думаю на 25 см можно выйти. И до укладки плит залить под эту перегородку фундамент неглубокий. Там у меня глина очень плотная. Связать все это с общим фундаментом одним армопоясом (я его буду весной заливать). Так можно? А как тогда на плиты ставят перегородки из кирпича? Посилання на коментар Поділитися на інших сайтах More sharing options...
Технология Строительства Опубліковано: 9 грудня 2015 Поділитись Опубліковано: 9 грудня 2015 2. Именно так. 3. Тоже верно, и в курсе - поэтому ищу решение, а именно: перегородка приходится на СТЫК двух плит. При укладке плит есть возможность одну плиту 1.2 м поменять на 1м. шириной - получится щель. Если чуть сдвинуть, думаю на 25 см можно выйти. И до укладки плит залить под эту перегородку фундамент неглубокий. Там у меня глина очень плотная. Связать все это с общим фундаментом одним армопоясом (я его буду весной заливать). Так можно? Глина плотная это не показатель. Есть лессовые грунты. Когда Ваша глина намокает и превращается в кашу. И трещит весь дом, хотя когда она сухая она очень плотная. Стык плит продольный я так понял? потому что если поперечная там должна бить несущая стена? Если продольный стык. Заливать фундамент под несущие стены как обычно. Напишите Ваши контакты я Вам перезвоню, потому что каждый клаптик информации узнавать раз в день очень тянет время. Расскажите все по телефону, я Вам постараюсь помочь, так будет быстрее и надежнее. 1 Посилання на коментар Поділитися на інших сайтах More sharing options...
semengv Опубліковано: 9 грудня 2015 Поділитись Опубліковано: 9 грудня 2015 Глина плотная это не показатель. Все понимаю. Но грунты именно хорошие - через дом построился главный макшейдер мет. комбината - сказал, что грунты, следующие по качественным показателям после скальных, на глубине ок. 100 м скала. Я из Кривого Рога. Вода 5 лет назад была ниже 8 метров, еще опускалась. Спасибо за помощь! Посилання на коментар Поділитися на інших сайтах More sharing options...
JamGreen Опубліковано: 25 січня 2016 Поділитись Опубліковано: 25 січня 2016 Здравствуйте. Вот мой предыдущий вопрос. И второй вопрос, пожалуйста, подскажите выбор материала для стен, кирпич или газоблок. Хочу первый сделать из кирпича, потому что: 1. К стенам по кругу в перспективе обязательно потом будут крепиться всякие там козырьки, навесы для машины, терраса для второго этажа и т.д. В кирпич проще крепиться уже "потом". 2. Обязательно будут плиты перекрытия, большие пролеты. Можно обойтись без армопояса и стандартными перемычками. 3. Обязательно будет пристроено еще помещение такого же размера к длинной стене, фундамент тот же, не придется связываться на уровне армопояса над первым этажом. Короче поскольку это будет только первый этап размером примерно 1\6 от желаемого, к кирпичу будет проще стыковать что бы то ни было. Хотя изначально выглядит так как будто такую прямоугольную коробку саму по себе в один этаж проще сделать газоблоком и запустить все в работу даже без особой отделки стен. Что скажете? Я еще раз все обдумал, и все-таки хочу определиться с материалом кирпич\газоблок. Вот какие вводные. 1. Уже точно понятно, что стройка будет поэтапная, денег на все сразу нету. 2. Фундамент который уже есть, имеет такую форму: То есть между большой частью справа и маленькой слева - есть перемычка и по старому проекту подразумевалась связь зданий на уровне 2-3 этажа. 3. Сейчас будет застраиваться только большая часть фундамента. 4. В будущем будет долит фундамент по контурам с первой картинки, и первый этаж приобретет примерно такой вид: Перекрытия везде будут плитные, со временем достроится второй этаж. ____________ Вопрос 1. Материал первого этажа - кирпич, утепленный 15см пенопласта или 500мм газобетона. Я обошел достаточно много магазинов таких площадей, и сделал вывод что самые эффективные хозяева ночью вообще не отапливают их, а днем нагоняют температуру до приемлемых показателей с помощью нагревателей воздуха, и самые довольные своими решениями были те, кто топит буллерьяны с наддувом. Поэтому я и сам поступлю так же. По всем показателям: цены, личных ощущений, теплоэффективности для воздушного не постоянного отопления - газобетон выглядит на голову лучше кирпича. За кирпич говорит только то, что газобетон абсолютно вандалонеустойчив, и защититься от прямого взлома стены просто не возможно. Что скажете? Я зря об этом думаю, или стоит подумать? Второй этаж будет в любом случае из газобетона. Как лучше сделать? Цена варианта с кирпичом дороже на 30%, но в общей смете по первому этапу - эта разница менее 10%. Вопрос 2. При стыковке этапов постройки 1 и 2 - будет ли разница между кирпичом и газоблоком в узлах примыкания несущих стен, или нужно будет делать упор на хорошую связь фундаментов и армопоясов, а материал стен не будет иметь значения? Вопрос 3. Временное утепление крыши. Перекрытия будут устроены круглопустотными плитами. Потом утепление, стяжка и рубероид. В виде утепления я могу похоронить там 5см пенопласта, которые все равно там будут нужны при устройстве второго этажа. Но этого явно не достаточно. Как сделать временное утепление для такой крыши чтобы не выкинуть после материал - идей нету вообще, хотя я над этим думал очень долго. Буду очень признателен если подскажете решение. Посилання на коментар Поділитися на інших сайтах More sharing options...
Рекомендовані повідомлення
Створіть акаунт або увійдіть у нього для коментування
Ви маєте бути користувачем, щоб залишити коментар
Створити акаунт
Зареєструйтеся для отримання акаунта. Це просто!
Зареєструвати акаунтУвійти
Вже зареєстровані? Увійдіть тут.
Увійти зараз