Soyka Опубліковано: 6 квітня 2010 Поділитись Опубліковано: 6 квітня 2010 Спасибочки, там действительно плохо видно этот проем. Вот так лучше видно. Прорисовал один из вариантов расположения лестницы. [ATTACH]47098[/ATTACH] [ATTACH]47099[/ATTACH] [ATTACH]47100[/ATTACH] Проход между нижней ступенькой и стенкой 122 см. Конечно можно укоротить лестницу (сейчас 270 см), но не сильно. Проем в перекрытии огражден швеллерами П16. Два швеллера лежат между несущими стенами и кусок длинной 180 см опирается на эти швеллера. Были мысли развернуть лестницу вдоль стены, но тогда от комнаты на 1-м этаже ничего не останится. Тогда бы можно былобы разобрать чуть-чуть перекрытие и увеличить проем до 180*210 см. И ширина лестницы бы стала 1 м. ПС. Кстати санузел на 1-м этаже планируется в левом углу от лестницы. Параллельно приямку (видно на чертеже фундамента) для насосной станции . Честно говоря лестница вдоль стены мне нравится больше. А ее можно сделать сначала вдоль стены, потом площадка и поворот наверх как она сейчас нарисована? Посилання на коментар Поділитися на інших сайтах More sharing options...
AmateurFF Опубліковано: 6 квітня 2010 Автор Поділитись Опубліковано: 6 квітня 2010 Честно говоря лестница вдоль стены мне нравится больше. А ее можно сделать сначала вдоль стены, потом площадка и поворот наверх как она сейчас нарисована? Сейчас она без площадки - забежные ступеньки. Ну вот прорисовал. Проем между кухней и залом предполагается заложить(красный крест). Когда "гараж" был поменьше, там планировалось окно. Желтенькое -санузел на 1-м этаже. Посилання на коментар Поділитися на інших сайтах More sharing options...
Soyka Опубліковано: 6 квітня 2010 Поділитись Опубліковано: 6 квітня 2010 Сейчас она без площадки - забежные ступеньки. Ну вот прорисовал. Проем между кухней и залом предполагается заложить(красный крест). Когда "гараж" был поменьше, там планировалось окно. Желтенькое -санузел на 1-м этаже. Соедините с/у и пространство под лестницей и у вас получится кладовочка.:D Посилання на коментар Поділитися на інших сайтах More sharing options...
AmateurFF Опубліковано: 6 квітня 2010 Автор Поділитись Опубліковано: 6 квітня 2010 Соедините с/у и пространство под лестницей и у вас получится кладовочка.:D Так и планируется. А еще руки чешуться дверь между прихожей и "залом" заложить кирпичем и проламать чуть правее. Тогда то место, где сейчас дверь м.б. использовать для котла.. Втуринние стены, они тоже с термоблоков, - ободрать пенопласт и поштукатурить. Этим увеличиться теплоинерционность помещения. Посилання на коментар Поділитися на інших сайтах More sharing options...
Soyka Опубліковано: 6 квітня 2010 Поділитись Опубліковано: 6 квітня 2010 Удачи! Лучше конечно советовать, когда непосредственно находишься в помещении - так нагляднее! Но думаю у вас все получится! Посилання на коментар Поділитися на інших сайтах More sharing options...
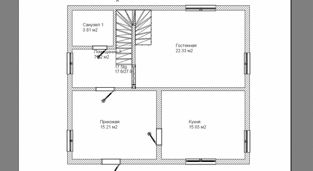
AmateurFF Опубліковано: 9 квітня 2010 Автор Поділитись Опубліковано: 9 квітня 2010 Хозяйка (дочка) настаивает на лестнице 85 см. Померяла у себя на работе - 81, говорит нормально. Вот прорисовал распределение комнат на 1-м этаже. Внутренние стены - убираем пенопласт, дверь между прихожей и помещением 3 (как его назвать?) передвигаем вправо. И на том месте, где была дверь цепляем газ.котел. Приямок НС расширяем. Посилання на коментар Поділитися на інших сайтах More sharing options...
Soyka Опубліковано: 9 квітня 2010 Поділитись Опубліковано: 9 квітня 2010 Хозяйка (дочка) настаивает на лестнице 85 см. Померяла у себя на работе - 81, говорит нормально. Вот прорисовал распределение комнат на 1-м этаже. [ATTACH]47527[/ATTACH] [ATTACH]47525[/ATTACH] [ATTACH]47526[/ATTACH] Внутренние стены - убираем пенопласт, дверь между прихожей и помещением 3 (как его назвать?) передвигаем вправо. И на том месте, где была дверь цепляем газ.котел. Приямок НС расширяем. У меня лестница 1 м. Думаю на более широкой удобнее и разминуться двум людям и что-то габаритное занести. Норма 90 см. Посилання на коментар Поділитися на інших сайтах More sharing options...
TARO Опубліковано: 10 квітня 2010 Поділитись Опубліковано: 10 квітня 2010 Маловато будет. У нас 1м - чтобы разминуться надо поворачиваться на 180 (перил пока нет - страшно, но даже если бы они были), а еще надо подумать , как на второй этаж мебель заносить будете - чтоб не через окно:D. А вообще, интересная у вас задачка - надо голову "поломать". Для инфо: внутренние стены уже есть? и дверные пролеты? не хотите кухню с залой поменять местами? 1 Посилання на коментар Поділитися на інших сайтах More sharing options...
AmateurFF Опубліковано: 13 квітня 2010 Автор Поділитись Опубліковано: 13 квітня 2010 Маловато будет. У нас 1м - чтобы разминуться надо поворачиваться на 180 (перил пока нет - страшно, но даже если бы они были), а еще надо подумать , как на второй этаж мебель заносить будете - чтоб не через окно:D. ..... Согласен, что 85 см очень мало. И с 1 м возникают проблемы. Большая мебель у нас пока заносится не часто (правда на 85 см не только с большой мебелью будут проблемы). К сожалению, проем под лестницу уже сделан и увеличить его мне кажется проблематичным. Хотя один вариант есть (пост 175). Но при этом лестница должна идти вдоль стены, а это съедает пространство гостинной! Поэтому заносить большую мебель будем через балкон! Он у нас просторный, двери на балкон широкие. Понятно, что это не нормально, а что делать? Посилання на коментар Поділитися на інших сайтах More sharing options...
AmateurFF Опубліковано: 13 квітня 2010 Автор Поділитись Опубліковано: 13 квітня 2010 ....А вообще, интересная у вас задачка - надо голову "поломать". Для инфо: внутренние стены уже есть? и дверные пролеты? не хотите кухню с залой поменять местами? На 1-м этаже стены капитальные. На них держиться перекрытие 2-го этажа. В ходе постройки менялся проект. Вот выкладываю иллюстрации. Так выглядел дом в начале 2009 года. В начале 2009 выполнили пристройку и наружные стены стали внутренними! Вместо окон на 2-м этаже получились балконные двери. Так что стена, которая отделяет гостинную и прихожую с кухней - капитальная. Рушить ее нельзя. Хотя перенести дверь, думаю, проблем не будет. Перенести кухню в гостинную можно, но там только одно окно - темновато будет. Вообщем пока хозяйка возражает. 1 Посилання на коментар Поділитися на інших сайтах More sharing options...
korden Опубліковано: 13 квітня 2010 Поділитись Опубліковано: 13 квітня 2010 AmateurFF а можете озвучить итоговую стоимость материалов для вашего фасада(штукатурка и т.п) и какова квадратура вашего "гаража" ? Если я правильно следил за темой второй этаж использовали одну штукатурку(польскую) , первый - нашей украинской? Экономию почувстовали? Если бы заново пришлось обштукатуривать, доплачивали и брали бы польскую или экономили и брали бы украинскую? Посилання на коментар Поділитися на інших сайтах More sharing options...
AmateurFF Опубліковано: 13 квітня 2010 Автор Поділитись Опубліковано: 13 квітня 2010 AmateurFF а можете озвучить итоговую стоимость материалов для вашего фасада(штукатурка и т.п) и какова квадратура вашего "гаража" ? Если я правильно следил за темой второй этаж использовали одну штукатурку(польскую) , первый - нашей украинской? Экономию почувстовали? Если бы заново пришлось обштукатуривать, доплачивали и брали бы польскую или экономили и брали бы украинскую? На материалы и инструменты ушло где-то 23000 грн. Общая площадь - около 200 кв.м (это по прощлогодним рассчетам, не перепроверял). Клеил сетку (Армирующая сетка 190 ProfiTherm и Стеклосетка Textilglasgitter Doubao 1/50м 160G./m2) шпаклевкоq клеевой Baumit ProContact. Штукатурку использовал акриловую (барашек) ProfiTherm Acrul-Putz 133K 20. Т.е. и клей и штукатурка были немецкие, просто превая партия (52 мешка) клея была польского (а может греческого) изготовления. А последующие - украинского. Вот тут и почуствувалась разница. Вот и стало обидно за "вітчизняного виробника". Не понятно, а где-же контроль от Baumit? Штукатурка была закуплена сразу на всю площадь, надеемся докупать не прийдется. Теперь немного о сложностях в работе. Я уже писал, но повторюсь. Самое не приятное это зависимость возможности выполнения работы от погоды. Ветер, солнце, очень быстро высушивают клей, работать становится не возможно. Да и быстрое высыхание клея - не хорошо. Не идет схватывание его. Вот поэтому работы выполнялись восновном в вечернее и ночное время. Второй фактор влияющий на производительность - количество углов. Поэтому вся наша декорация (бардюры, колоны) очень замедлила выполнения работ. Хорошо работать на прямых участках, но их оказалось слишком мало. Посилання на коментар Поділитися на інших сайтах More sharing options...
AmateurFF Опубліковано: 15 квітня 2010 Автор Поділитись Опубліковано: 15 квітня 2010 ....Перенести кухню в гостинную можно, но там только одно окно - темновато будет. Вообщем пока хозяйка возражает. Подумали что и для гостинной одного окна маловато Решили прорубить еще одно окно. Окно будет размером 155*135 и выходит на южную сторону (Вход в дом с северной стороны). Думаю что здание от этого не развалится. Стены бетонные, армированы вроде бы не плохо. Жалко не фотографировал все места закладки арматуры. Вот как будет выглядеть первый этаж (сегодняшнее понимание). Посилання на коментар Поділитися на інших сайтах More sharing options...
AmateurFF Опубліковано: 20 квітня 2010 Автор Поділитись Опубліковано: 20 квітня 2010 Начали воплощать очередную перестройку - готовим оконный проем. Вскрыл пенопласт. Немного поразмыслив, решили изменить размер и положения окна. Предполагалось окно 1520*1320. Решили делать меньше 1520*1230. Так меньше работы болгаркой и перфоратором. Провели частичную вырубку изнутри, понаходили и пообрезали арматуру. Опыт ламания стен у меня есть, в прошлом году вместо окон делали двери на балкон. Но тут глыба бетона потяжелее, как бы наш "гараж" не развалила. Прийдется ее выламывать по частям. И самое сложное согласовать окончание проема с установкой окна. Окно заказал там же, где и предыдущие - Kromido line. Ребята там хорошие, думаю согласуем вырубку с установкой. Посилання на коментар Поділитися на інших сайтах More sharing options...
AmateurFF Опубліковано: 5 травня 2010 Автор Поділитись Опубліковано: 5 травня 2010 Ну вот окно установили. В комнате стало заментно светлее. Поскольку окно договорились устанавлиать 4-го, то и вырубывть необходимо было 4-го. До этого только вели предварительные работы - подрубали по контуру, понаходили места закладки арматуры и пообрезали ее. В воскресенье прорубали амбразуру . В результате этих подготовок сам процес вырубки занял всего пол-часа. Теперь надо придумать куда деть эти два здоровенные куска бетона 2 Посилання на коментар Поділитися на інших сайтах More sharing options...
TARO Опубліковано: 6 травня 2010 Поділитись Опубліковано: 6 травня 2010 Что решили с планировкой? Посилання на коментар Поділитися на інших сайтах More sharing options...
AmateurFF Опубліковано: 12 травня 2010 Автор Поділитись Опубліковано: 12 травня 2010 Что решили с планировкой? За участие, СПАСИБО! Извините за задержку. К сожалению ничего нового. Пока идем по варианту описаному в посте #188 Мне Вариант 1 нравиться, так разумней получается внутренняя планировка. (ссылка на изображение устарела) Не нравиться то что опять нужно ламать стену, да и вход в дом с этой стороны, при такой ориентации дома, выглядит не логично. Вот набросал участок Вот на фото обозначил где д.б. дверь Посилання на коментар Поділитися на інших сайтах More sharing options...
TARO Опубліковано: 13 травня 2010 Поділитись Опубліковано: 13 травня 2010 Всегда рады помочь.8-) Да-а-а-а, ввели в заблуждение фотографии - казалось, что их снимали с дороги. Решать Вам. А так напрашивается еще одна комната на такой площади. Из личного опыта скажу, что мы приезжая в дом парадную дверь с дороги сразу закрываем и ходим только через гараж или черный вход. А жить будем - машину в гараж - сумки с машины в дом через гараж. Из парадной двери только утром выходить из дома или для входа, если не на машине приехал домой. А так весь день в доме или внутри участка. А еще, если позволит растояние от соседей со стороны лестницы, можно будет пристроить к дому гараж и вход из гаража сделать под лестницей. п.с. пенопласт легче отрывать штыковой лопатой. Мы сначала ножом страдали, а потом лопатой - не успевали пенопласт в мешки собирать. 1 Посилання на коментар Поділитися на інших сайтах More sharing options...
AmateurFF Опубліковано: 13 травня 2010 Автор Поділитись Опубліковано: 13 травня 2010 Решать Вам. А так напрашивается еще одна комната на такой площади. Да и кухня становиться ближе к комнатам. В теперешнем варианте на кухню надо добираться через прихожую, что не есть хорошо! Но увы, не хотят мои делать так. А еще, если позволит растояние от соседей со стороны лестницы, можно будет пристроить к дому гараж и вход из гаража сделать под лестницей. Там растояние к сожалению не позволяеет - 1,2 м до межи. А в этом году соседи так вспахали, что заехали к нам на 20-30 см. Козла даже поставить возле стенки трудно. п.с. пенопласт легче отрывать штыковой лопатой. Мы сначала ножом страдали, а потом лопатой - не успевали пенопласт в мешки собирать. Лопатой не пробовали, попробуем. Пока лучше всего перфоратором получалось и монтировкой. 1 Посилання на коментар Поділитися на інших сайтах More sharing options...
TARO Опубліковано: 14 травня 2010 Поділитись Опубліковано: 14 травня 2010 (змінено) Осмелюсь предложить на рассмотрение вариант 3 8-): (ссылка на изображение устарела) И подобный вариант 3_1: (ссылка на изображение устарела) Еще одной комнаты не будет, но так вроде тоже не плохо. п.с. и окно, которое недавно сделали не помешает - будет освещать холл. Змінено 14 травня 2010 користувачем TARO 2 Посилання на коментар Поділитися на інших сайтах More sharing options...
AmateurFF Опубліковано: 25 травня 2010 Автор Поділитись Опубліковано: 25 травня 2010 Осмелюсь предложить на рассмотрение вариант 3 8-): Еще одной комнаты не будет, но так вроде тоже не плохо. п.с. и окно, которое недавно сделали не помешает - будет освещать холл. Не хотят мои больше перестроек. Решили делать 1-й этаж так как в посте #188. Продолжаем работы по наружной штукатурке. Одна стена (от дороги) уже полностью закончена (кроме цоколя). Цоколь утеплен ЭППС и проклеен сеткой. Вторая стена (от соседского огорода) тоже близка к завершению. Интересно меняется цвет штукатурки от освещения. Это снято при заходе солнца. Солнце за облаками. На огороде тоже все потихоньку растет, но там больше хозяйничают женщины. Скоро дозреет земляника, клубника. Поесть земляничку в перерыве между работой это и мы могем Посилання на коментар Поділитися на інших сайтах More sharing options...
Soyka Опубліковано: 25 травня 2010 Поділитись Опубліковано: 25 травня 2010 :good:Молодцы! Скоро дозреет земляника, клубника. Поесть земляничку в перерыве между работой это и мы могем А мы могем вместо работы!:D:p Посилання на коментар Поділитися на інших сайтах More sharing options...
Мышка Опубліковано: 25 травня 2010 Поділитись Опубліковано: 25 травня 2010 Какие молодцы!!!! Я жду-не дождусь, когда выгонится коробка... Тогда можно будет полноценно заниматься огородом и садом Посилання на коментар Поділитися на інших сайтах More sharing options...
AmateurFF Опубліковано: 25 травня 2010 Автор Поділитись Опубліковано: 25 травня 2010 :good:Молодцы! А мы могем вместо работы!:D:p Да, слюнки текут.... Накрывали целофаном, что бы быстрей дозревала? Посилання на коментар Поділитися на інших сайтах More sharing options...
Soyka Опубліковано: 25 травня 2010 Поділитись Опубліковано: 25 травня 2010 Да, слюнки текут.... Накрывали целофаном, что бы быстрей дозревала? Нет! Сама! Естественным путем, так сказать! Посилання на коментар Поділитися на інших сайтах More sharing options...
Рекомендовані повідомлення
Створіть акаунт або увійдіть у нього для коментування
Ви маєте бути користувачем, щоб залишити коментар
Створити акаунт
Зареєструйтеся для отримання акаунта. Це просто!
Зареєструвати акаунтУвійти
Вже зареєстровані? Увійдіть тут.
Увійти зараз