Татьяна5 Опубліковано: 23 червня 2015 Автор Поділитись Опубліковано: 23 червня 2015 В это время готовится фундамент под вариацию Z7 проекта - уложен ЭППС, сделаны ребра, нарезана арматура. В том доме так же предусмотрено место под камин - там ребро и двойная армировка. Завтра до 12 часов все повяжем и стартуют сантехники с теплыми полами, потом маяки - и на послезавтра вызван бетононасос и миксера на 7 утра . 8 Посилання на коментар Поділитися на інших сайтах More sharing options...
Татьяна5 Опубліковано: 24 червня 2015 Автор Поділитись Опубліковано: 24 червня 2015 Второй готов , на нем будет газоблочная вариация Z7, есть допребра под стенками, есть место под камин. Теплые полы накручены, 450 мп, 7 контуров, все проверено, к утренней заливке бетононасосом готовы Уставшая, но довольная бригада, вместе с сантехниками - можно и мороженко поесть 10 Посилання на коментар Поділитися на інших сайтах More sharing options...
Кафоля Опубліковано: 24 червня 2015 Поділитись Опубліковано: 24 червня 2015 Интересно,подпишусь. Можно пару вопросов? Бюджет до "чистовой отделки? Чем обусловлен выбор УШП? Цена фундамента? Спасибо. Посилання на коментар Поділитися на інших сайтах More sharing options...
Татьяна5 Опубліковано: 24 червня 2015 Автор Поділитись Опубліковано: 24 червня 2015 Можно пару вопросов? Можно Бюджет до "чистовой отделки? Понятия не имею , меня всегда интересует финальная цифра домовладения, этапы я не считаю никогда Чем обусловлен выбор УШП? Цена фундамента? Я люблю УШП , делаю с удовольствием, нравится технологичность, четкость, получаемый результат, скорость получения "все в одном", я же девочка - нравится "красота" производства (все таки красивый тип фундамента), нравится как в итоге ведет себя дом на таком фундаменте, нравится толщина утепления )). Из минусов - цена. Но у меня нет задачи построить "самый дешевый дом" 8 Посилання на коментар Поділитися на інших сайтах More sharing options...
trik Опубліковано: 24 червня 2015 Поділитись Опубліковано: 24 червня 2015 (змінено) Понаблюдаю... А где и по чем брали такой не банальный забор? Змінено 24 червня 2015 користувачем trik писать надо правильно... или правильно писать... Правописание в общем. Посилання на коментар Поділитися на інших сайтах More sharing options...
Татьяна5 Опубліковано: 24 червня 2015 Автор Поділитись Опубліковано: 24 червня 2015 Понаблюдаю... А где и по чем брали такой небанальный забор? Харьков, Забор-Перфекто - zabor-perfecto.com.ua/, мои лучшие рекомендации ребятам-производителям и их установщикам во главе с Женей. В том году эти же ребята у нас поставили пару километров таких заборов, прошла зима - ни одного нарекания. В моем случае верх идет под зашивку деревом 2 Посилання на коментар Поділитися на інших сайтах More sharing options...
Кафоля Опубліковано: 24 червня 2015 Поділитись Опубліковано: 24 червня 2015 :D Хорошо,задам вопрос по другому. Какая смета по z7? Собираюсь сам начинать строительство по такому проэкту,очень страшно Посилання на коментар Поділитися на інших сайтах More sharing options...
Татьяна5 Опубліковано: 24 червня 2015 Автор Поділитись Опубліковано: 24 червня 2015 :D Хорошо,задам вопрос по другому. Какая смета по z7? Собираюсь сам начинать строительство,очень страшно я правда не делаю смет , никогда, просто имею некую "свою" философию и не парюсь по этому поводу дерните меня через 1,5 мес, смогу сказать цифру не имея которую не стоит стартовать, а лучше - дайте проект толковому прорабу посчитать и просто оплатите смету - Вам будет спокойнее Добавлено через 2 минуты и по чем брали такой небанальный забор? пардон, на эту часть не ответила - с учетом нашей (жителей Рябинок) скидки, вышло 160 грн за мп столбик-нижняя плита-столбик "все включено" 4 Посилання на коментар Поділитися на інших сайтах More sharing options...
Кафоля Опубліковано: 24 червня 2015 Поділитись Опубліковано: 24 червня 2015 Спасибо,обязательно дерну Буду внимательно следить за темой. И переодически задавать глупые вопросы Посилання на коментар Поділитися на інших сайтах More sharing options...
Татьяна5 Опубліковано: 24 червня 2015 Автор Поділитись Опубліковано: 24 червня 2015 Буду внимательно следить за темой. я через пару дней чертеж выложу, мы этот дом чуток "отрихтовали" под мое видение небольшого комфортного дома 1 Посилання на коментар Поділитися на інших сайтах More sharing options...
sly Опубліковано: 24 червня 2015 Поділитись Опубліковано: 24 червня 2015 можно и мороженко поесть о! они вместо зп получают мороженко? хочу такую бригаду! Посилання на коментар Поділитися на інших сайтах More sharing options...
Татьяна5 Опубліковано: 24 червня 2015 Автор Поділитись Опубліковано: 24 червня 2015 о! они вместо зп получают мороженко? хочу такую бригаду! если вместо зп давать только мороженное, можно сильно удивиться полученному результату :D;) 2 Посилання на коментар Поділитися на інших сайтах More sharing options...
sly Опубліковано: 24 червня 2015 Поділитись Опубліковано: 24 червня 2015 если вместо зп давать только мороженное, можно сильно удивиться полученному результату :D;) эх, а я уж размечтался... Посилання на коментар Поділитися на інших сайтах More sharing options...
Татьяна5 Опубліковано: 24 червня 2015 Автор Поділитись Опубліковано: 24 червня 2015 эх, а я уж размечтался... не, ну ты можешь попробовать :D, будет что обсудить )) Посилання на коментар Поділитися на інших сайтах More sharing options...
Татьяна5 Опубліковано: 25 червня 2015 Автор Поділитись Опубліковано: 25 червня 2015 Хороший, активный и продуктивный день . Заливка. 6.30 утра. Готов, всегда готов. Бетононасос со стрелою 38 метров стал четко посерединке между двумя фундаментами, что бы лишний раз не переставляться. Ларисе, ник Добровольская, как всегда, огромное спасибо за работу - бетон с завода Ковальской, П4Б25 9 Посилання на коментар Поділитися на інших сайтах More sharing options...
Татьяна5 Опубліковано: 25 червня 2015 Автор Поділитись Опубліковано: 25 червня 2015 Приняли, через часик затерли и поливаем через каждые 20 минут обе плиты - Бригадир на ответственном задании Обработали Гладиатором-3 доски на забор, поторцевали, монтируем 22 Посилання на коментар Поділитися на інших сайтах More sharing options...
trik Опубліковано: 26 червня 2015 Поділитись Опубліковано: 26 червня 2015 Приняли, через часик затерли и поливаем ... можно подробнее как затираете? Через часик ходить по свежему еще рано? Обработали Гладиатором-3 доски на забор, поторцевали, монтируем [/url] Как монтируются доски? В паз столба вставили и саморезами друг к дружке? А не думали сделать классический двухсторонний штакетник в пролетах? Немного больше возни но смотрелся бы намного круче... ЗЫ! На тачку надо еще "5" дорисовать, именная будет. Посилання на коментар Поділитися на інших сайтах More sharing options...
Татьяна5 Опубліковано: 26 червня 2015 Автор Поділитись Опубліковано: 26 червня 2015 Где-то в своих темах подробно этот процесс затирки описывала, коротко - приём под правило по маякам, в зависимости от температуры воздуха, как схватились - листы ЭППС в качестве дорожки и ползком с пенопластовой теркой, затирая в нолик. По форме забора каждый выбирает то, что нравится лично ему 5 Посилання на коментар Поділитися на інших сайтах More sharing options...
Vity Опубліковано: 26 червня 2015 Поділитись Опубліковано: 26 червня 2015 как все красиво получается... Вроде смотришь и кажется, как легко строить, сейчас бы взял и построил парочку домов...и потом понимаешь сколько Татьяна и бригада прошла опыт боем, чтобы добиться таких результатов 11 Посилання на коментар Поділитися на інших сайтах More sharing options...
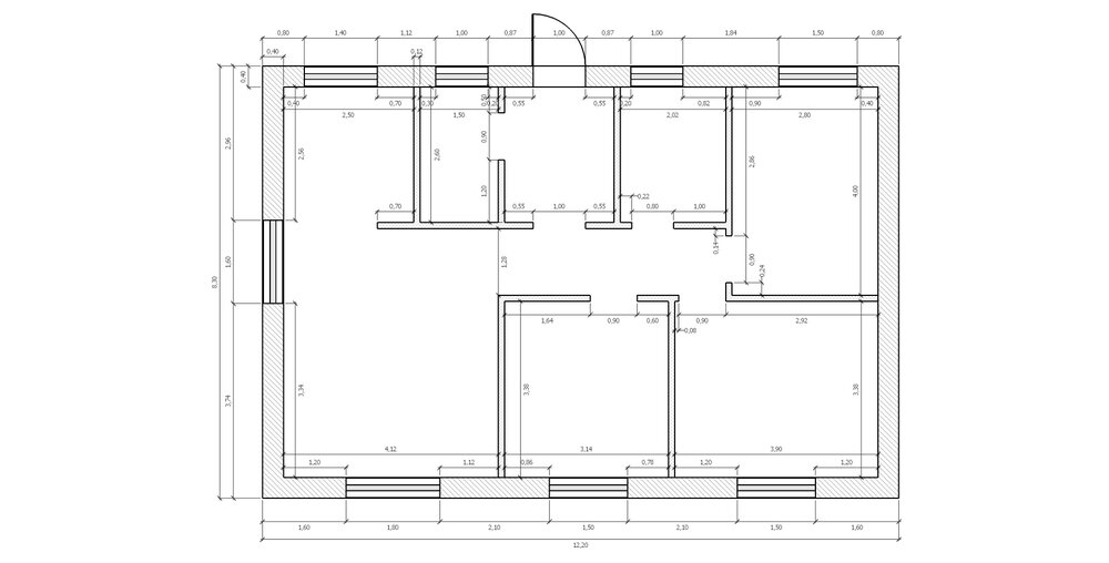
Татьяна5 Опубліковано: 26 червня 2015 Автор Поділитись Опубліковано: 26 червня 2015 Погодка - супер, и бетон поливать не надо :D, и температура отличная - подфартило. Выкладываю проект с размерами по второму домику с кодовым названием "мои вариации на тему z7 проекта", может кому пригодится. Общая площадь 81 м2 + пергольная терраса 3,5 на 8 метров (28 м2, под нее залили столбики, увы, не сфоткала пока), как по мне, функциональненько, а для двоих взрослых людей с периодическими наездами уже взрослых детей - вообще. ИМХО. 8 Посилання на коментар Поділитися на інших сайтах More sharing options...
trik Опубліковано: 27 червня 2015 Поділитись Опубліковано: 27 червня 2015 Выкладываю проект с размерами по второму домику с кодовым названием "мои вариации на тему z7 проекта"... Окна в тамбуре не хватает, темно и не уютно будет. Как вариант решения, поставить хорошую дверку со стеклом. Посилання на коментар Поділитися на інших сайтах More sharing options...
Татьяна5 Опубліковано: 27 червня 2015 Автор Поділитись Опубліковано: 27 червня 2015 Окна в тамбуре не хватает, темно и не уютно будет. Как вариант решения, поставить хорошую дверку со стеклом. А там, собственно, именно металлопластиковая входная дверь и запланирована , иначе нельзя, темно. Посилання на коментар Поділитися на інших сайтах More sharing options...
trik Опубліковано: 27 червня 2015 Поділитись Опубліковано: 27 червня 2015 Как монтируются доски? В паз столба вставили и саморезами друг к дружке? а все таки... На саморезах? Посилання на коментар Поділитися на інших сайтах More sharing options...
Татьяна5 Опубліковано: 27 червня 2015 Автор Поділитись Опубліковано: 27 червня 2015 а все таки... На саморезах? В паз, под углом, расклинить, дать нахлест 2 см, и саморезы 3 Посилання на коментар Поділитися на інших сайтах More sharing options...
Татьяна5 Опубліковано: 29 червня 2015 Автор Поділитись Опубліковано: 29 червня 2015 Чуток сделали забора, разопалубили фундаменты и перенесли опалубку на соседние участки с следующими двумя домами, выставили опалубку под один дом, копаем все траншеи и закапываем все коммуникации. В голове потихоньку складывается картинка будущего внешнего вида и цветового решения каркасного (с этим проще) и Z7 дома. Каркасник повторю этот - уж оч он мне и людям нравится (не всем, конечно). А в z7 газоблочном возьму мотивы из этого оч красивого чьего-то дома с мелкими коррективами - темно-серые окна, темно-серая кровля, орехово-шоколадные деревянные вставки и белая штукатурка с подшивой (фото не мое, взято из Интернета, но сочетания - бомба, как по мне) 16 Посилання на коментар Поділитися на інших сайтах More sharing options...
Рекомендовані повідомлення
Створіть акаунт або увійдіть у нього для коментування
Ви маєте бути користувачем, щоб залишити коментар
Створити акаунт
Зареєструйтеся для отримання акаунта. Це просто!
Зареєструвати акаунтУвійти
Вже зареєстровані? Увійдіть тут.
Увійти зараз