muvic Опубліковано: 5 травня 2016 Поділитись Опубліковано: 5 травня 2016 Яка відстань від в'їзних до гаражних воріт? Є можливість маневрування для автомобіля, який буде заїжджати у праві (по схемі) ворота гаража? Тоді можна буде робити відкотні ворота не по центру отвору, а зміщувати до лівого стовпа. Посилання на коментар Поділитися на інших сайтах More sharing options...
-electron- Опубліковано: 5 травня 2016 Поділитись Опубліковано: 5 травня 2016 Минимальная консольная часть - 30%. Можна уточнення? В цьому році буду лити фундамент фасадного паркана. В вкладені схематично зобразив розташування воріт. Ширина воріт 400 см. На скільки в сторону треба винести хвіртку, щоб ворота її не перекривали і щоб не мучитись потім з підбиранням конструктиву. В чому перевага консольних воріт над роликовими? Фундамент під ворота можна об'єднати з стрічкою фундаменту паркана, чи треба заливати окремо? Посилання на коментар Поділитися на інших сайтах More sharing options...
paland Опубліковано: 5 травня 2016 Поділитись Опубліковано: 5 травня 2016 Яка відстань від в'їзних до гаражних воріт? Є можливість маневрування для автомобіля, який буде заїжджати у праві (по схемі) ворота гаража? Тоді можна буде робити відкотні ворота не по центру отвору, а зміщувати до лівого стовпа. Это я знаю. Но я хочу до ворот ставить машину. Там 6 метров. Суть именно по центру чтобы стало 2 машины до ворот гаража. Поэтому и ломаю голову. Выезд сделать без проблем только как правильно нагрузку рассчитать. На саму часть что выезжает можно на рычаг тоже вес прибавить. Посилання на коментар Поділитися на інших сайтах More sharing options...
Piontkovskiy Опубліковано: 5 травня 2016 Поділитись Опубліковано: 5 травня 2016 Это я знаю. Но я хочу до ворот ставить машину. Там 6 метров. Суть именно по центру чтобы стало 2 машины до ворот гаража. Поэтому и ломаю голову. Выезд сделать без проблем только как правильно нагрузку рассчитать. На саму часть что выезжает можно на рычаг тоже вес прибавить. Если делать такую короткую консоль у ворот, то дело совсем не в весе (не нужну его добавлять), а в нагрузке на фундамент. Ваши ворота с так узко закрепленными каретками захотят вырвать Ваш фундамент, и прилечь:D Также, тут правильно сказали о фурнитуре, Вам она нужна мощнее (под 800кг), что бы сами каретки вообще выдержали эту нагрузку. В любом случае, рассмотрите и другие варианты ворот, т.к. даже 4000+1000 у Вас не влазит, а опирать ворота на 700мм, это заведомо их запороть Посилання на коментар Поділитися на інших сайтах More sharing options...
paland Опубліковано: 5 травня 2016 Поділитись Опубліковано: 5 травня 2016 Если делать такую короткую консоль у ворот, то дело совсем не в весе (не нужну его добавлять), а в нагрузке на фундамент. Ваши ворота с так узко закрепленными каретками захотят вырвать Ваш фундамент, и прилечь:D Также, тут правильно сказали о фурнитуре, Вам она нужна мощнее (под 800кг), что бы сами каретки вообще выдержали эту нагрузку. В любом случае, рассмотрите и другие варианты ворот, т.к. даже 4000+1000 у Вас не влазит, а опирать ворота на 700мм, это заведомо их запороть ну почему упирать на 700 мм. я же говорю я могу каретки поставить на расстоянии до 2 метров друг от друга. меня интересует или такая конструкция приемлема. (фото) с выездом не проблема но только вынос нижняя часть. ее снаружи я смогу спрятать в кожух. там еще земля будет насыпаться. Посилання на коментар Поділитися на інших сайтах More sharing options...
KeySims Опубліковано: 5 травня 2016 Поділитись Опубліковано: 5 травня 2016 какой минимальный размер противовеса возможен? надо установить откатные ворота на 4 метра проем но с одной стороны есть 4,6 а с другой 2,5 метра? как вариант сделать меньше противовес по длине но не треугольником а по всей высоте + дополнительную нагрузку. да да знаю чем больше плечо тем меньше груз. но вот так не продумали первоначально... ( ну и если есть вариант в таких размерах посоветуйте фурнитуру с последующем добавлением автоматики. Самый жесткий минимум 40%. Все остальное, раньше или позже раскроет трубу... Но я практически уверен, что Вы найдете исполнителей и на 50 см... Добавлено через 25 минут Можна уточнення? В цьому році буду лити фундамент фасадного паркана. В вкладені схематично зобразив розташування воріт. Ширина воріт 400 см. На скільки в сторону треба винести хвіртку, щоб ворота її не перекривали і щоб не мучитись потім з підбиранням конструктиву. В чому перевага консольних воріт над роликовими? Фундамент під ворота можна об'єднати з стрічкою фундаменту паркана, чи треба заливати окремо? Расстояние между проемами 6 метров. Роликовые: принцип как у трамвая, по рельсе ездят ролики, т.е. при проезде Вы будете переезжать трубу которая лежит на земле. Консольные: при открытии оставляют проезд свободным, так как вся нагрузка идет на каретки которые стоят за проемом. Лучше лить вместе, так будет дешевле (по работе). 1 Посилання на коментар Поділитися на інших сайтах More sharing options...
Piontkovskiy Опубліковано: 5 травня 2016 Поділитись Опубліковано: 5 травня 2016 ну почему упирать на 700 мм. я же говорю я могу каретки поставить на расстоянии до 2 метров друг от друга. меня интересует или такая конструкция приемлема. (фото) с выездом не проблема но только вынос нижняя часть. ее снаружи я смогу спрятать в кожух. там еще земля будет насыпаться. В принципе, если использовать 100Х50Х5 как нижнюю трубу у каркаса ворот + хорошо усилить геометрию ворот в районе примыкания к этой нижней трубе, то прокатит, и будет отлично работать. Люди по улице спотыкаться не будут:D ? Посилання на коментар Поділитися на інших сайтах More sharing options...
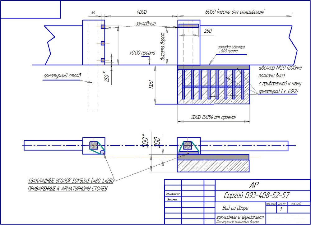
mont Опубліковано: 5 травня 2016 Поділитись Опубліковано: 5 травня 2016 Можна уточнення? В цьому році буду лити фундамент фасадного паркана. В вкладені схематично зобразив розташування воріт. Ширина воріт 400 см. На скільки в сторону треба винести хвіртку, щоб ворота її не перекривали і щоб не мучитись потім з підбиранням конструктиву. В чому перевага консольних воріт над роликовими? Фундамент під ворота можна об'єднати з стрічкою фундаменту паркана, чи треба заливати окремо? Идеальный вариант - 6 метров габарит ворот. Т.е. 4 метра проезд + 2 метра консольная часть. В идеале, консольная часть должна быть 50% от ширины проезда. Соответственно, калитку необходимо сдвинуть на 6,1 метра от проема ворот. С такой консольной частью, у Вас ворота будут работать очень долго. Консольные ворота больше подходят для нашего климата, но скорее для менталитета. Т.к. зимой, направляющую никто чистить не хочет, плюс необходимо устанавливать автоматику с значительным привышением фактического веса створки и надеяться, что фундамент не будет плавать. Также такие ворота не желательно зашивать профильным листом, т.к. они будут очень шуметь. Лучше заливать всё вместе. Добавлено через 6 минут paland, а почему Вы не хотите открывать ворота в противоположную сторону? Там калитка? 1 Посилання на коментар Поділитися на інших сайтах More sharing options...
paland Опубліковано: 5 травня 2016 Поділитись Опубліковано: 5 травня 2016 В принципе, если использовать 100Х50Х5 как нижнюю трубу у каркаса ворот + хорошо усилить геометрию ворот в районе примыкания к этой нижней трубе, то прокатит, и будет отлично работать. Люди по улице спотыкаться не будут:D ? спотыкаться не будут. там очень хорошо в ровень с дорогой получается. можно тогда поточнее расчет что где. как усилить геометрию. спс Добавлено через 1 минуту Добавлено через 6 минут paland, а почему Вы не хотите открывать ворота в противоположную сторону? Там калитка? да там калитка напротив входа. Добавлено через 1 час 24 минуты Самый жесткий минимум 40%. Все остальное, раньше или позже раскроет трубу... Но я практически уверен, что Вы найдете исполнителей и на 50 см... Я строю для себя и у мен так получилось и надо сделать. Всегда можно сказать что вы уверены но обоснованного почему нельзя нигде нет. Все так делают и мы так делаем. Вот так типа надо. В подумать и сделать предложение или обосновать почему вот в чем задача. Сейчас я все-таки ссылаюсь на то чтобы именно так сделать. Но взять фурнитуру из хороших. Ну и что если 10 лет не выдержит. Поменяю. Посилання на коментар Поділитися на інших сайтах More sharing options...
mont Опубліковано: 5 травня 2016 Поділитись Опубліковано: 5 травня 2016 Вариант когда ворота будут перекрывать калитку, в открытом положении, не рассматриваете? Прорисуйте схему ворот с правильными пропорциями и тогда картинка станет немного страшней. А то у вас на схеме 600 мм практически равно 1500 мм... Посилання на коментар Поділитися на інших сайтах More sharing options...
-electron- Опубліковано: 5 травня 2016 Поділитись Опубліковано: 5 травня 2016 Всім дякую. Я приблизно так і розраховував зсунути хвіртку на 6 метрів. Вже і плани доріжок накидав, при 6 метрах буде пряма доріжка в обхід будинку на терасу. І ще одне питання. Яку ширину треба фундаменту. Маю на увазі на яку відстань від паркану заливати на рівні бруківки фундамент. І чи на рівні, може його треба нижче опустити, для механізму і в нього одразу закласти направляючі для кареток? 1 Посилання на коментар Поділитися на інших сайтах More sharing options...
paland Опубліковано: 5 травня 2016 Поділитись Опубліковано: 5 травня 2016 Вариант когда ворота будут перекрывать калитку, в открытом положении, не рассматриваете? Прорисуйте схему ворот с правильными пропорциями и тогда картинка станет немного страшней. А то у вас на схеме 600 мм практически равно 1500 мм... Ну по моей картинке тогда можно представить размеры 400 + 60 + 80 это и будет 30% ))) Посилання на коментар Поділитися на інших сайтах More sharing options...
Piontkovskiy Опубліковано: 5 травня 2016 Поділитись Опубліковано: 5 травня 2016 спотыкаться не будут. там очень хорошо в ровень с дорогой получается. можно тогда поточнее расчет что где. как усилить геометрию. спс должно быть примерно так: Посилання на коментар Поділитися на інших сайтах More sharing options...
mont Опубліковано: 5 травня 2016 Поділитись Опубліковано: 5 травня 2016 Всім дякую. Я приблизно так і розраховував зсунути хвіртку на 6 метрів. Вже і плани доріжок накидав, при 6 метрах буде пряма доріжка в обхід будинку на терасу. І ще одне питання. Яку ширину треба фундаменту. Маю на увазі на яку відстань від паркану заливати на рівні бруківки фундамент. І чи на рівні, може його треба нижче опустити, для механізму і в нього одразу закласти направляючі для кареток? Вот Вам ТЗ для подготовки проёма. 3 Посилання на коментар Поділитися на інших сайтах More sharing options...
mont Опубліковано: 5 травня 2016 Поділитись Опубліковано: 5 травня 2016 Ну по моей картинке тогда можно представить размеры 400 + 60 + 80 это и будет 30% ))) Я бы лучше установил дополнительную пару фотоэлементов на калитке и делал бы откат в ту сторону. Очень сомневаюсь, что Вы будете использовать ворота и калитку одновременно. Ваша конструкция у меня вызывает только тревожные ощущения... Без обид. Посилання на коментар Поділитися на інших сайтах More sharing options...
paland Опубліковано: 5 травня 2016 Поділитись Опубліковано: 5 травня 2016 Я бы лучше установил дополнительную пару фотоэлементов на калитке и делал бы откат в ту сторону. Очень сомневаюсь, что Вы будете использовать ворота и калитку одновременно. Ваша конструкция у меня вызывает только тревожные ощущения... Без обид. Какие обиды. В спорах есть решение ;). Буду рассматривать картинку выше. Скажите ещё люди мнение по ней. Может ещё на остаток направляющей добавить веса? И брать фурнитуру из расчета 800 кг на воротах а вешать 200-300? Ну а открывать в сторону калитки не вариант. Там от столба до калитки 2,5 метра. Переносить не вариант. Дальше просто септик. Добавлено через 9 минут должно быть примерно так: ну и как понимаю использовать на ворота один профиль. какой? и какой на противовес ? может сильнее? стоит ли какойто профиль на направляющюю? примерные цифры какие предлагаете? Посилання на коментар Поділитися на інших сайтах More sharing options...
mont Опубліковано: 5 травня 2016 Поділитись Опубліковано: 5 травня 2016 Какие обиды. В спорах есть решение ;). Буду рассматривать картинку выше. Скажите ещё люди мнение по ней. Может ещё на остаток направляющей добавить веса? И брать фурнитуру из расчета 800 кг на воротах а вешать 200-300? Ну а открывать в сторону калитки не вариант. Там от столба до калитки 2,5 метра. Переносить не вариант. Дальше просто септик. Дополнительный вес на консольной части будет только мешать. Консоль, это не противовес, а рычаг. Что касается открывания в сторону калитки, то её переносить не надо. Ворота в открытом положении будут перекрывать калитку. Для того, чтоб при открытой калитке, ворота не двигались и ставится дополнительная пара фотоэлементов. Посилання на коментар Поділитися на інших сайтах More sharing options...
paland Опубліковано: 5 травня 2016 Поділитись Опубліковано: 5 травня 2016 Дополнительный вес на консольной части будет только мешать. Консоль, это не противовес, а рычаг. Что касается открывания в сторону калитки, то её переносить не надо. Ворота в открытом положении будут перекрывать калитку. Для того, чтоб при открытой калитке, ворота не двигались и ставится дополнительная пара фотоэлементов. Ну тогда если принять решение в сторону калитки то че мелочиться тогда делать на все 6 метров. Но пока все-таки продумаю вариант как планирую. А за что ненадо доп вес на направляющую понял. Учту спс. Тогда как я понял противовес играет роль не так противовеса а доп крепление чтобы сами ворота не сложились. Тогда как вариант в каждом углу добавить дополнительные крепления. Но и направляющую все-таки найти не 5мм толщиной а 6 к примеру. Посилання на коментар Поділитися на інших сайтах More sharing options...
mont Опубліковано: 5 травня 2016 Поділитись Опубліковано: 5 травня 2016 Ну тогда если принять решение в сторону калитки то че мелочиться тогда делать на все 6 метров. Но пока все-таки продумаю вариант как планирую. А за что ненадо доп вес на направляющую понял. Учту спс. Тогда как я понял противовес играет роль не так противовеса а доп крепление чтобы сами ворота не сложились. Тогда как вариант в каждом углу добавить дополнительные крепления. Но и направляющую все-таки найти не 5мм толщиной а 6 к примеру. Ну, что же, желаю удачи) Она Вам точно не помешает;) Посилання на коментар Поділитися на інших сайтах More sharing options...
Piontkovskiy Опубліковано: 6 травня 2016 Поділитись Опубліковано: 6 травня 2016 ну и как понимаю использовать на ворота один профиль. какой? и какой на противовес ? может сильнее? стоит ли какойто профиль на направляющюю? примерные цифры какие предлагаете? Противовес не нужен, он будет только нагружать каретки. По компоновке: низ - 100Х50Х5, обрамление каркаса - 50Х50Х3, наполнение - в зависимости от зашивки ворот. Обязательно усиливаете углы треугольником (из листа металла 3-4мм). Если Вас так сильно пугает ваша однотрубная консоль, продублируйте эти 2000мм ещё одной трубой 50Х50Х4. Всё будет работать, не переживайте. Посилання на коментар Поділитися на інших сайтах More sharing options...
paland Опубліковано: 6 травня 2016 Поділитись Опубліковано: 6 травня 2016 Противовес не нужен, он будет только нагружать каретки. По компоновке: низ - 100Х50Х5, обрамление каркаса - 50Х50Х3, наполнение - в зависимости от зашивки ворот. Обязательно усиливаете углы треугольником (из листа металла 3-4мм). Если Вас так сильно пугает ваша однотрубная консоль, продублируйте эти 2000мм ещё одной трубой 50Х50Х4. Всё будет работать, не переживайте. спс. буду двигаться в этом направлении. Посилання на коментар Поділитися на інших сайтах More sharing options...
Знатная зверюга Опубліковано: 22 червня 2016 Поділитись Опубліковано: 22 червня 2016 Всем привет. Ищу исполнителя на изготовление и установку откатных ворот и калитки. Проем ворот 3 метра, высота 2 метра. Проем калитки 1 метр. Обшивка профнастилом с двух сторон. Автоматика нужна. Хорошая, но не самая дорогая. С фотоэлементами, брелком, решеткой на автоматику. Ворота будут на даче, открываться не очень часто. Место - Киевская область, 40 км по Одесской трассе от КП. Посилання на коментар Поділитися на інших сайтах More sharing options...
Ivan_12345 Опубліковано: 6 липня 2016 Поділитись Опубліковано: 6 липня 2016 Доброго дня форумчане, Вот и для меня пришло время закрыть свой участок от постороннего глаза Посему прошу сорентировать по ценам (как и все хочу недорого но надежно и красиво) Ворота откатные: Ширина - 4м Высота - 1.8м 2 стороння обшивка профнастилом Калитка : ширина 1 м Высота - 1.8м 2 стороння обшивка профнастилом + автоматика + фундамент и установка (с фундаментом могу договорится с соседними строителями если что...) 16 км от Киева (с.Пуховка) Жду ваших предложений Посилання на коментар Поділитися на інших сайтах More sharing options...
-electron- Опубліковано: 22 вересня 2019 Поділитись Опубліковано: 22 вересня 2019 Які ролики варто брати? Ворота 1.8 на 4 (з противагою 6) зашиті профнастилом Є якісь фірми чи просто посилені брати. Швелер заклав 16ку довжиною 185 см. Єдине що було на момент заливки на базі. Можна приварити ролики до країв? Посилання на коментар Поділитися на інших сайтах More sharing options...
muvic Опубліковано: 22 вересня 2019 Поділитись Опубліковано: 22 вересня 2019 Якщо хочете поставити і забути про них - RollingCenter basic. З теперішнім курсом євро - приємна ціна. Якщо бажаєте за пару років "гратись" із заміною роликів - якусь ноунейм фурнітуру. Хочете щоб собаки починали скавчати коли ворота їдуть - можна взяти необроблену фірмову українську. Наче так. Головне пам'ятайте що, незалежно від виробника, для фурнітури згубним є довге перебування воріт або у повністю відкритому стані, або у частково відкритому, коли ворота "з'їхали" з нижнього уловлювача. Треба щоб були напіввідкритими тривалий час - ставте у середнє положення. 1 Посилання на коментар Поділитися на інших сайтах More sharing options...
Рекомендовані повідомлення
Створіть акаунт або увійдіть у нього для коментування
Ви маєте бути користувачем, щоб залишити коментар
Створити акаунт
Зареєструйтеся для отримання акаунта. Це просто!
Зареєструвати акаунтУвійти
Вже зареєстровані? Увійдіть тут.
Увійти зараз