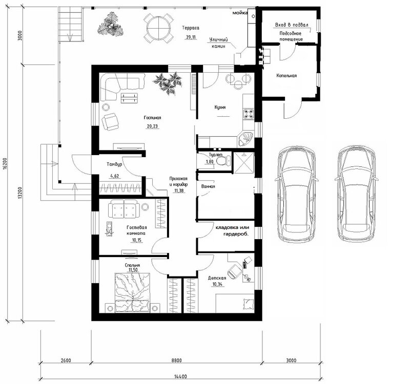
qwerty21 Опубліковано: 28 листопада 2015 Поділитись Опубліковано: 28 листопада 2015 Доброго времени суток! Уважаемые форумчане, прошу Вас высказать свое мнение о данном проекте одноэтажного дома. Хотелось бы заказать типовой проект в г.Харькове, нашла по моему мнению неплохую компанию, но мало что понимаю в этом. Визуально все понравилось очень. Но хотелось бы услышать обоснованное мнение специалиста, и принять правильное решение в выборе проекта. Помогите принять правильное решение, буду очень признательна. Данные по проекту: -планировка -фасад Посилання на коментар Поділитися на інших сайтах More sharing options...
Ter Опубліковано: 29 листопада 2015 Поділитись Опубліковано: 29 листопада 2015 Мое имхо (т.е., под себя если бы выбирал): 1. Очаг какой-нибудь хотелось бы в зале/кухне видеть (хотя, места там, в принципе, под него предостаточно). 2. Если захотите ванну поставить, санузел придется делать совмещенным (наверное). 3. Топочная для установки твердотопливника с аккумулирующей емкостью, вероятно, будет мала. 4. Мне лично не нужны в этом проекте подсобное помещение и навес для авто. Терраса тоже под вопросом (больше нравится беседка на некотором удалении от дома). Погреб в нынешние времена, на всяк пожарный, лучше подальше от дома располагать (если прилетит какая хрень в дом, не дай Бог вдруг, то у находящихся в подвале есть какие-никакие шансы)... У поляков похожих проектов много - этот, по ходу, одна из "вариаций на тему". В принципе, ничего лишнего. ЗЫ: Есть желание получить по ушам от Конструктора Андрея - покритикуйте проект... ЗЫ2: У меня (под мою ситуацию) он больше на похожий в прилагаемой картинке выходит (с ляпами, естессно, типа печки плюс с расположением коммуникаций в оригинале ситуация лучше и т.д.), ну и пардон за мой Эксель ЗЫ3: В последний момент увидел еще и вот это. Если бы слить воедино два этих варианта, с максимальным ужатием в сторону вашего проекта, было бы как раз то, что доктор прописал! 2 Посилання на коментар Поділитися на інших сайтах More sharing options...
Технология Строительства Опубліковано: 29 листопада 2015 Поділитись Опубліковано: 29 листопада 2015 Но хотелось бы услышать обоснованное мнение специалиста, и принять правильное решение в выборе проекта. 1. Сан.Узел 1 в доме=) обычно для 4 людей в одноэтажных домах его делают 2 штуки (один большой, второй гостевой); 2. Топочная маленькая, будет неудобно особенно для твердотоплевного котла; 3. Я бы между кухней и гостевой убрал перегородку, так будет просторнее, и уютнее. Запахи при готовке еды решаются нормальной вытяжкой; 4. Площадь комнат немного увеличить. От 12 м2 - что бы было жить комфортно, особенно в той комнате где будут спать 2 человека. 5. Идея симпатичная вообщем, мне кажется немного её усовершенствовать, и будет не плохо для жизни! 1 Посилання на коментар Поділитися на інших сайтах More sharing options...
ARCH INNOVATION Опубліковано: 29 листопада 2015 Поділитись Опубліковано: 29 листопада 2015 Гостиная маловата, а так вполне. 2 Посилання на коментар Поділитися на інших сайтах More sharing options...
vadimv Опубліковано: 29 листопада 2015 Поділитись Опубліковано: 29 листопада 2015 прошу Вас высказать свое мнение о данном проекте одноэтажного дома. Хотелось бы заказать типовой проектПролет 8м чем перекрывать будете? 1 Посилання на коментар Поділитися на інших сайтах More sharing options...
Sерджио Опубліковано: 29 листопада 2015 Поділитись Опубліковано: 29 листопада 2015 Домик понравился, но смущает то, что окна детской (10,34) - выходят на стоянку для машин - наверное еще ж и крытую. Т. е. дневного света - может быть мало. Мое имхо - окна спальни и детской я бы выводил в торцевой стене. 3 Посилання на коментар Поділитися на інших сайтах More sharing options...
dmitriylaser Опубліковано: 1 грудня 2015 Поділитись Опубліковано: 1 грудня 2015 Интересует Ваше мнение о проекте У вас участок уже есть? Если да - просим план в подробностях (размеры, стороны света, перепады высот и т.д) Если ширина учаска позволяет никогда бы не поставил 2 авто в длинну- крайне неудобно. На картинке мое виденье. Да еще как по мне не смотрится крыша. Изменил бы входную группу- и накрыл бы удлиненным свесом с общей крыши. Возможно уменьшил бы угол наклона. 1 Посилання на коментар Поділитися на інших сайтах More sharing options...
vickov Опубліковано: 1 грудня 2015 Поділитись Опубліковано: 1 грудня 2015 Очень похоже на мою планировку, но у меня при примерно одинаковой площади застройки спальни по 12 метров и зал большей площади. www.stroimdom.com.ua/forum/showthread.php?t=189494 Между спальнями у меня кладовка, но можно и 2-й санузел сделать. 1 Посилання на коментар Поділитися на інших сайтах More sharing options...
Andrei constructor Опубліковано: 7 грудня 2015 Поділитись Опубліковано: 7 грудня 2015 Пролет 8м чем перекрывать будете? Перекрывается пролет стропильными фермами. Т.е. висячая стропильная система. Добавлено через 24 минуты Погреб в нынешние времена, на всяк пожарный, лучше подальше от дома располагать (если прилетит какая хрень в дом, не дай Бог вдруг, то у находящихся в подвале есть какие-никакие шансы)... В смысле большая вероятность остаться под завалами дома? Добавлено через 7 минут 4. Площадь комнат немного увеличить. От 12 м2 - что бы было жить комфортно, особенно в той комнате где будут спать 2 человека. Часто при привязке проекта просят именно удлинить этот дом для увеличения площади спален. Удлиняем примерно на 1,5 м, получаются более просторные спальни. 1 Посилання на коментар Поділитися на інших сайтах More sharing options...
Ter Опубліковано: 9 грудня 2015 Поділитись Опубліковано: 9 грудня 2015 В смысле большая вероятность остаться под завалами дома? Угумс. У меня, кстати, по наброскам (благодаря вашим двум проектам) вот такая вот чуда вырисовывается (ниже). Если поругаете - буду не против (здесь или в моей теме). Посилання на коментар Поділитися на інших сайтах More sharing options...
Andrei constructor Опубліковано: 9 грудня 2015 Поділитись Опубліковано: 9 грудня 2015 У меня, кстати, по наброскам (благодаря вашим двум проектам) вот такая вот чуда вырисовывается (ниже). Если поругаете - буду не против (здесь или в моей теме). Слева ширину помещений сделайте минимум 3 м. 2,8 м очень мало. Что обозначает красный квадрат посередине? Посилання на коментар Поділитися на інших сайтах More sharing options...
Ter Опубліковано: 9 грудня 2015 Поділитись Опубліковано: 9 грудня 2015 Слева ширину помещений сделайте минимум 3 м. 2,8 м очень мало. Что обозначает красный квадрат посередине? Я отталкиваюсь от тех помещений, в которых сейчас живу. Там что 2.8, что 3 будет плюс-минус одинаково/достаточно. Красный квадрат посредине - место под печку (вариант типа кузнецовской овик). Посилання на коментар Поділитися на інших сайтах More sharing options...
Andrei constructor Опубліковано: 10 грудня 2015 Поділитись Опубліковано: 10 грудня 2015 Я отталкиваюсь от тех помещений, в которых сейчас живу. Это правильно, это ориентир, но когда делаешь новый дом, лучше улучшить свои условия проживания. Там стоит кровать (это 2 м), остается проход (0,8 м) если ничего больше не ставить прохода такого хватит вполне, но обычно там добавляют мебель и телевизор и проход становится неудобным. Наружная входная дверь - сделайте открывание наружу. Из чего сделаны капитальные стены дома? 2 Посилання на коментар Поділитися на інших сайтах More sharing options...
eam Опубліковано: 10 грудня 2015 Поділитись Опубліковано: 10 грудня 2015 Я отталкиваюсь от тех помещений, в которых сейчас живу. Там что 2.8, что 3 будет плюс-минус одинаково/достаточно Для спальни с нормальной кроватью эти 20см очень существенны. Основу кровати меньше 2.10 вы врядли найдете (под матрас 2м), а в большинстве они будут от 2.2м и больше. Соответственно проход останется 60см и меньше. Есть вероятность постоянно ударятся ногами об углы и проходить полубоком. Жить можно, но не совсем комфортно - так что делайте лучше 3м, как посоветовали выше. 2 Посилання на коментар Поділитися на інших сайтах More sharing options...
Ter Опубліковано: 10 грудня 2015 Поділитись Опубліковано: 10 грудня 2015 Для спальни с нормальной кроватью эти 20см очень существенны. Основу кровати меньше 2.10 вы врядли найдете (под матрас 2м), а в большинстве они будут от 2.2м и больше. Соответственно проход останется 60см и меньше. Есть вероятность постоянно ударятся ногами об углы и проходить полубоком. Жить можно, но не совсем комфортно - так что делайте лучше 3м, как посоветовали выше. За комментарии спасибо. Говорю же, тут я в габаритах отталкиваюсь от уже ПРИВЫЧНЫХ размеров, которые есть у меня в том доме, в котором живу. 1. По ширине - никаких телевизоров ставить не планирую (в спальне он когда-то стоял пару месяцев, да убрали; в доме, имхо, такое счастье вообще сейчас в доме стоять не должно - проку с него ноль, да и смотреть некогда) , ходить по проходу между кроватью и стеной при текущей ширине спальной комнаты в 2,80 чисто чтобы плюхнуться в кровать пару раз в день ненапряжно (ребенок умудряется даже бегать). Комната 3.10 у матери в хрущовке - прожил не один год, потому большой разницы очень не наблюдаю. Наоборот, чем компактней, тем лучше. После коридорчика в хрущобе, в которой прошло 30 лет жизни, равного ширине дверей, (навскидку те же 70 или 80 см), понимаешь, что больше как бы и не всегда нужно (разве что, когда требуется занести что-то габаритное, но такое случается раз в 5-10 лет, а то и не случается вообще). 2. По основе кровати. В последнее время у меня возникает желание выкинуть на фиг ортопедический матрац, сделать деревянный щит и сверху поставить тоненький "футон" (кто спал на полу и почувствовал разницу между сном на твердой поверхности и на обычном матраце, поймет меня). 3. Во всех комнатах учтен запас на отделку деревом (+7 см к стене) и плиткой (+5 см к стене). Стены наружные - хз. Возможен каркасник/солома, но на худой конец и газобетон пойдет (потому 40 см + 10 см или больше с запасом на дополнительное утепление и отделку). Несущие/простенки - обыкновенный кирпич. По открыванию дверей входных внутрь или наружу пока что несущественно. У нас привыкли открывать дверь наружу (склоняюсь как бы к этому варианту), чтобы тяжелее было выбить (хотя, какой дурень полезет их ломать, когда есть столько окон, разделаться с которыми намного быстрей и проще). В краях, где много снега бывает, ставят открыванием внутрь, чтобы если снега навалит, можно было открыть дверь и раскидав снег, выбраться наружу... ЗЫ: Хотелось бы услышать, чего не хватает этой картинке кровь из носу, и каким макаром можно было бы ее ужать еще больше... Посилання на коментар Поділитися на інших сайтах More sharing options...
Andrei constructor Опубліковано: 10 грудня 2015 Поділитись Опубліковано: 10 грудня 2015 Несущие/простенки - обыкновенный кирпич. Внутренние капитальные стены хватит выполнить толщиной в кирпич (250 мм). 1 Посилання на коментар Поділитися на інших сайтах More sharing options...
Ter Опубліковано: 10 грудня 2015 Поділитись Опубліковано: 10 грудня 2015 Внутренние капитальные стены хватит выполнить толщиной в кирпич (250 мм). Несущие в полтора, простенки в пол, в тамбуре в кирпич. Посилання на коментар Поділитися на інших сайтах More sharing options...
Andrei constructor Опубліковано: 11 грудня 2015 Поділитись Опубліковано: 11 грудня 2015 Несущие в полтора каким макаром можно было бы ее ужать еще больше... Несущие в кирпич - вот вам на двух стенах 0,25 м 2 Посилання на коментар Поділитися на інших сайтах More sharing options...
Ter Опубліковано: 11 грудня 2015 Поділитись Опубліковано: 11 грудня 2015 Несущие в кирпич - вот вам на двух стенах 0,25 м Это понятно, спасибо. Касаемо размеров помещений где ужаться можно или что перенести - вот вопрос... Посилання на коментар Поділитися на інших сайтах More sharing options...
qwerty21 Опубліковано: 11 грудня 2015 Автор Поділитись Опубліковано: 11 грудня 2015 У вас участок уже есть? Если да - просим план в подробностях (размеры, стороны света, перепады высот и т.д) Если ширина учаска позволяет никогда бы не поставил 2 авто в длинну- крайне неудобно. На картинке мое виденье. Да еще как по мне не смотрится крыша. Изменил бы входную группу- и накрыл бы удлиненным свесом с общей крыши. Возможно уменьшил бы угол наклона. Спасибо. На участке поставим дом так, чтоб машины можно было ставить параллельно. Там же выполним защитный навес. Этот навес не будет закрывать окно в спальню. Добавлено через 4 минуты Домик понравился, но смущает то, что окна детской (10,34) - выходят на стоянку для машин - наверное еще ж и крытую. Т. е. дневного света - может быть мало. Мое имхо - окна спальни и детской я бы выводил в торцевой стене. Благодарю за ответ. Стоянка в этом месте будет без навеса. Дневного света будет достаточно. Добавлено через 3 минуты 1. Сан.Узел 1 в доме=) обычно для 4 людей в одноэтажных домах его делают 2 штуки (один большой, второй гостевой); 2. Топочная маленькая, будет неудобно особенно для твердотоплевного котла; 3. Я бы между кухней и гостевой убрал перегородку, так будет просторнее, и уютнее. Запахи при готовке еды решаются нормальной вытяжкой; 4. Площадь комнат немного увеличить. От 12 м2 - что бы было жить комфортно, особенно в той комнате где будут спать 2 человека. 5. Идея симпатичная вообщем, мне кажется немного её усовершенствовать, и будет не плохо для жизни! Добрый день. Спасибо за ответ. Решили с инженером объединить кухню и гостиную (убрать перегородку). Думаем, что площади котельной будет достаточно. Будет 2 котла: твердотопливный в котельной и двухконтурный газовый на кухне. Посилання на коментар Поділитися на інших сайтах More sharing options...
Andrei constructor Опубліковано: 12 грудня 2015 Поділитись Опубліковано: 12 грудня 2015 Красный квадрат посредине - место под печку (вариант типа кузнецовской овик). Печь будет занимать чуть меньше места. Посилання на коментар Поділитися на інших сайтах More sharing options...
Ter Опубліковано: 14 грудня 2015 Поділитись Опубліковано: 14 грудня 2015 Печь будет занимать чуть меньше места. Да, я знаю, 1,3 м х 1,3 м примерно, но есть желание попробовать обходиться одной печью, поэтому оставлен запас "на всяк пожарный". Посилання на коментар Поділитися на інших сайтах More sharing options...
qwerty21 Опубліковано: 16 грудня 2015 Автор Поділитись Опубліковано: 16 грудня 2015 Добрый день!Интересует мнение опытных строителей! Для кровли поставщик материалов предлагает использовать композитную черепицу. Что скажете об этом материале? Стоит ли переплачивать? Может положить обычную металлочерепицу? Посилання на коментар Поділитися на інших сайтах More sharing options...
qwerty21 Опубліковано: 19 грудня 2015 Автор Поділитись Опубліковано: 19 грудня 2015 Добрый день. Кто-нибудь может мне что-то посоветовать насчет материала кровли?Неужели на форуме нет грамотных специалистов? Посилання на коментар Поділитися на інших сайтах More sharing options...
Drosselbeere Опубліковано: 19 грудня 2015 Поділитись Опубліковано: 19 грудня 2015 а вы ценик сравнивали на строительство крыши под ключ из металочерепицы, композитной, модульной, керамической, цпч ...... ? Посилання на коментар Поділитися на інших сайтах More sharing options...
Рекомендовані повідомлення
Створіть акаунт або увійдіть у нього для коментування
Ви маєте бути користувачем, щоб залишити коментар
Створити акаунт
Зареєструйтеся для отримання акаунта. Це просто!
Зареєструвати акаунтУвійти
Вже зареєстровані? Увійдіть тут.
Увійти зараз