svensen Опубліковано: 31 січня 2016 Поділитись Опубліковано: 31 січня 2016 Для одноэтажного гб 300мм+100 базальт - годится. Но мон. пояс будет хуже защищен. Посилання на коментар Поділитися на інших сайтах More sharing options...
Юрий Киев Опубліковано: 1 лютого 2016 Поділитись Опубліковано: 1 лютого 2016 смотрим типовые польские проекты и делаем вывод - 300 мм газобетона плюс 100 (лучше 150)мм пенопласта под штукатуркой - наиболее приемлемый вариант. армопояса,жб балки над дверями/окнами обязательно,армирование каждого 4 ряда (а также рядов под оконными проемами)газобетона обязательно. Посилання на коментар Поділитися на інших сайтах More sharing options...
svensen Опубліковано: 1 лютого 2016 Поділитись Опубліковано: 1 лютого 2016 Выводы лучше делать по построенному у нас. И не пенопласт , а пенополистирол применяют. Посилання на коментар Поділитися на інших сайтах More sharing options...
Юрий Киев Опубліковано: 1 лютого 2016 Поділитись Опубліковано: 1 лютого 2016 Выводы лучше делать по построенному у нас. И не пенопласт , а пенополистирол применяют. строят по-разному,но потом массово обклеивают пенопластом))) и да,о!чудо правильно писать - ППС,это сути не меняет. Посилання на коментар Поділитися на інших сайтах More sharing options...
svensen Опубліковано: 1 лютого 2016 Поділитись Опубліковано: 1 лютого 2016 На все оставшиеся деньги и обклеивают))) Посилання на коментар Поділитися на інших сайтах More sharing options...
Metabo Опубліковано: 1 лютого 2016 Автор Поділитись Опубліковано: 1 лютого 2016 Но мон. пояс будет хуже защищен. Добрый вечер! Проясните, пожалуйста, подробнее - почему так? Спасибо! Посилання на коментар Поділитися на інших сайтах More sharing options...
svensen Опубліковано: 2 лютого 2016 Поділитись Опубліковано: 2 лютого 2016 Я советую, настоятельно советую обратиться к специалисту и заказать проект. Посилання на коментар Поділитися на інших сайтах More sharing options...
ДОКС Опубліковано: 2 лютого 2016 Поділитись Опубліковано: 2 лютого 2016 Я советую, настоятельно советую обратиться к специалисту и заказать проект. ні в жодному разі... є такий типаж замовників, якім треба спочатку самостійно "дрова наламати"... а нам роботи й так забагато... 1 Посилання на коментар Поділитися на інших сайтах More sharing options...
Metabo Опубліковано: 2 лютого 2016 Автор Поділитись Опубліковано: 2 лютого 2016 Я советую, настоятельно советую обратиться к специалисту и заказать проект. Добрый день! Именно так и сделаем. Сами точно проектировать не будем ))), только вникать и разбираться. Спасибо! Посилання на коментар Поділитися на інших сайтах More sharing options...
Отступник Опубліковано: 4 лютого 2016 Поділитись Опубліковано: 4 лютого 2016 (змінено) Наткнулся на интересный ресурс. akvilonpro.ua. Написано очень доступно для несведущего человека. Там и проекты есть. Мне лично Шпак-7 понравился. Как раз для узкого участка. Змінено 4 лютого 2016 користувачем Отступник Не реклама! Не хочешь - не смотри. Посилання на коментар Поділитися на інших сайтах More sharing options...
vadimv Опубліковано: 4 лютого 2016 Поділитись Опубліковано: 4 лютого 2016 Мне лично Шпак-7 понравился.Аж 3 спальни уместилось на 100 кв.м? Шикарно, как и лестница с забежными ступенями... Посилання на коментар Поділитися на інших сайтах More sharing options...
Отступник Опубліковано: 4 лютого 2016 Поділитись Опубліковано: 4 лютого 2016 Аж 3 спальни уместилось на 100 кв.м? Шикарно, как и лестница с забежными ступенями... Изначально топикстартер планировал одноэтажный дом с ещё худшими условиями. Если у человека ограниченный бюджет и маленький участок, то почему не вариант? Напомню, что площадь 3-к чешки 62 квадрата. Я живу в двушке 70 кв.м. Мне просторно, гигантизмом не отягощаюсь. Со ступенями можно поработать, равно и как с увеличением площади. Они там не забежные, с учётом высоты потолка 2,7 м. Посилання на коментар Поділитися на інших сайтах More sharing options...
Metabo Опубліковано: 5 лютого 2016 Автор Поділитись Опубліковано: 5 лютого 2016 Наткнулся на интересный ресурс. akvilonpro.ua. Написано очень доступно для несведущего человека. Там и проекты есть. Мне лично Шпак-7 понравился. Как раз для узкого участка. Добрый день! Спасибо за информацию, ранее уже видел данный ресурс. Мы уже взяли за основу 1-ку + мансард и начнем с проектантом корректировать под себя расположение комнат и конструктив. Спасибо! Посилання на коментар Поділитися на інших сайтах More sharing options...
Беседины Опубліковано: 9 лютого 2016 Поділитись Опубліковано: 9 лютого 2016 Аж 3 спальни уместилось на 100 кв.м? Шикарно, как и лестница с забежными ступенями... План ужастный , но что такого, что 3 спальни в 100-метровом доме? Посилання на коментар Поділитися на інших сайтах More sharing options...
svensen Опубліковано: 9 лютого 2016 Поділитись Опубліковано: 9 лютого 2016 А что там "ужасТного"?? План как план. Наличие поворотной плошадки еще не говорит о том, что там "забежные "ступени. 1 Посилання на коментар Поділитися на інших сайтах More sharing options...
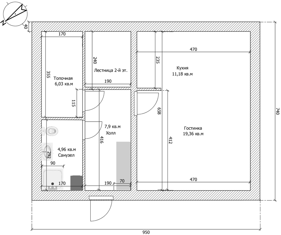
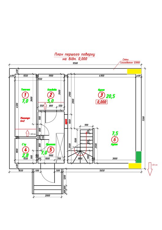
Metabo Опубліковано: 10 лютого 2016 Автор Поділитись Опубліковано: 10 лютого 2016 1. Тамбур - вузький. Дві людини не розминуться... 2. Котельна - для ТТ-котла та обладнання замала, рекомендую не менш 7-8 кв.м. 3. Кухню бажано на схід, гостинну на захід, дитячу на захід, батьківську на схід, гостьова на північ. Якщо бажаєте більш детальних доповідей, прикріпить план та фото ділянки. 18на23 и одноэтажный дом? Ну-ну.. Машина у соседа стоять будет? Тут на форумі розглядають багато різних проектів. Бувають вдалі, бувають не дуже вдалі. В даному випадку проект дуже не вдалий. Підберіть планування на Мураторі або Архетоні. Зверніться до проектантів на форумі і вони дополірують планування згідно Ваших побажань, врахують особливості розміщення на ділянці, зроблять грамотний проект, порадять правильні матеріали. Це шлях до комфортного будинку. Шановні! Намотавши на вуса, завдяки зауваженням форумчан, ми взяли на розгляд проект 1-но поверхового будинка з мансардою. Звернушвись до місцевого проектанта почали потрошку редагувати базовий проект. Розмір 7.4 на 9.5 м, матеріал газобетон (400 мм), несуча стіна 250 мм, перестінки 100 мм. Будь ласка, прокоментуйте 3-и варіанти плана першого поверха. Дякую. Посилання на коментар Поділитися на інших сайтах More sharing options...
abelor Опубліковано: 10 лютого 2016 Поділитись Опубліковано: 10 лютого 2016 Вот более 30 лет работаю архитектором и одно не могу понять: почему все так боятся проектировать наружную веранду в частном доме? Ну, нельзя у нас в Украине(ну, разве что в Крыму) проектировать вход в дом без СЕНЕЙ! НУ НЕЛЬЗЯ, климат у нас такой. Не хотите сеней, тогда уж лучше веранда. Ее же как интересно можно запроектировать, да она же может стать изюминкой Вашего дома и отапливать ее не надо! К ней даже можно сделать какие-то летние комнатки для гостей летом внезапно приехавших. Что вы все уперлись в эти унылые тамбуры? Даже это слово произносить уныло, как в бочку-ТАМБУР. Вообще, перестаньте проектировать квартиры на земле с ТАМБУРОМ, УЖОССС! Шановні! Намотавши на вуса, завдяки зауваженням форумчан, ми взяли на розгляд проект 1-но поверхового будинка з мансардою. Звернушвись до місцевого проектанта почали потрошку редагувати базовий проект. Розмір 7.4 на 9.5 м, матеріал газобетон (400 мм), несуча стіна 250 мм, перестінки 100 мм. Будь ласка, прокоментуйте 3-и варіанти плана першого поверха. Дякую. 1 Посилання на коментар Поділитися на інших сайтах More sharing options...
Metabo Опубліковано: 10 лютого 2016 Автор Поділитись Опубліковано: 10 лютого 2016 Вот более 30 лет работаю архитектором и одно не могу понять: почему все так боятся проектировать наружную веранду в частном доме? Ну, нельзя у нас в Украине(ну, разве что в Крыму) проектировать вход в дом без СЕНЕЙ! НУ НЕЛЬЗЯ, климат у нас такой. Не хотите сеней, тогда уж лучше веранда. Ее же как интересно можно запроектировать, да она же может стать изюминкой Вашего дома и отапливать ее не надо! К ней даже можно сделать какие-то летние комнатки для гостей летом внезапно приехавших. Что вы все уперлись в эти унылые тамбуры? Даже это слово произносить уныло, как в бочку-ТАМБУР. Вообще, перестаньте проектировать квартиры на земле с ТАМБУРОМ, УЖОССС! Уважаемый, Abelor. 1) Написано много и красноречиво - можно конкретнее, пожалуйста. С учетом того, что у нас дом будет располагаться на участке 18*23 м (меньшая сторона участка совпадает с меньшей стеной дома - по размеру). 2) На то вопросы задают на форуме, чтобы услышать конкретный совет (-ы), а еще лучше увидеть ))) Про то, что все УЖОССС - это проще пареной репы написать. ИМХО. Спасибо. 1 Посилання на коментар Поділитися на інших сайтах More sharing options...
svensen Опубліковано: 11 лютого 2016 Поділитись Опубліковано: 11 лютого 2016 Сени, веранды ? Действительно и как там живут без них в Норвегиях и прочих Финляндиях без них? Наверное там теплее, чем в Украине:D bptrip.ru/posts/zhizn-v-norvegii-kak-zhivut-lyudi-v-odnoj-iz-samyh-dorogih-stran-mira/ Две входные двери и теплый пол в прихожей должны спасти. По планам. Дверь в СУ можно и вовнутрь открывать.Опять же ножкой сидя, пардон, на унитазе можно заблокировать , если забыли закрыть Входная дверь-разберитесь вам "правая" или "левая" удобно. О забыл. Крылечко коротковато. Посилання на коментар Поділитися на інших сайтах More sharing options...
svensen Опубліковано: 11 лютого 2016 Поділитись Опубліковано: 11 лютого 2016 И это.. душкабинку лучше примыкать к внутренним стенам. А то трубы на душсетку в наружной стене. Мало ли:wink: Посилання на коментар Поділитися на інших сайтах More sharing options...
Беседины Опубліковано: 11 лютого 2016 Поділитись Опубліковано: 11 лютого 2016 Две входные двери и теплый пол в прихожей должны спасти. На самом деле- нет. Я жила в доме с таким входом год - холодом тянет. А когда метет снегом и ветер ,вообще ух. Пока заходишь -выходишь много холода запускается. И ,svensen, Вы, пожалуйста, за своей орфографией и пунктуацией следите. Metabo , у Вас в любой планировке можно холл покроить и сделать тамбур (маленькую прихожую, там и тумбу с обувью сделать), а из него слева двери в топочную. Посилання на коментар Поділитися на інших сайтах More sharing options...
svensen Опубліковано: 11 лютого 2016 Поділитись Опубліковано: 11 лютого 2016 Та я так привык писать -" ужасный". Что то не так?)) Посилання на коментар Поділитися на інших сайтах More sharing options...
Metabo Опубліковано: 11 лютого 2016 Автор Поділитись Опубліковано: 11 лютого 2016 Сени, веранды ? Действительно и как там живут без них в Норвегиях и прочих Финляндиях без них? Наверное там теплее, чем в Украине:D bptrip.ru/posts/zhizn-v-norvegii-kak-zhivut-lyudi-v-odnoj-iz-samyh-dorogih-stran-mira/ Две входные двери и теплый пол в прихожей должны спасти. По планам. Дверь в СУ можно и вовнутрь открывать.Опять же ножкой сидя, пардон, на унитазе можно заблокировать , если забыли закрыть Входная дверь-разберитесь вам "правая" или "левая" удобно. О забыл. Крылечко коротковато. На самом деле- нет. Я жила в доме с таким входом год - холодом тянет. А когда метет снегом и ветер ,вообще ух. Пока заходишь -выходишь много холода запускается. И ,svensen, Вы, пожалуйста, за своей орфографией и пунктуацией следите. Metabo , у Вас в любой планировке можно холл покроить и сделать тамбур (маленькую прихожую, там и тумбу с обувью сделать), а из него слева двери в топочную. Добрый день! А касаемо варианта планировки (№ 1, 2, 3) интересно услышать мнение. И еще немного конкретнее по крыльцу, какие размеры более практичны? Спасибо. Посилання на коментар Поділитися на інших сайтах More sharing options...
abelor Опубліковано: 11 лютого 2016 Поділитись Опубліковано: 11 лютого 2016 Вы, наверное, норвежец или швед(судя по нику). Уважаемый! НЕТ ТАКИХ ПЕРЕПАДОВ ТЕМПЕРАТУР ЗИМОЙ ни в Швеции, ни в Норвегии ни в прочих "финляндиях". А там, где они есть, то там ЛЮДИ В ЭТИХ СТРАНАХ НЕ ЖИВУТ ПОСТОЯННО, ТОЛЬКО ВАХТОВЫМ МЕТОДОМ! Читайте почаще матчасть. А то был у меня один заказчик, который хотел из Бельгии привезти стеклопакет для совмещенного перекрытия над его спальней на втором этаже, чтобы ночью смотреть на звездное небо. И уверял, что в Бельгии он в таком доме жил.;) Сени, веранды ? Действительно и как там живут без них в Норвегиях и прочих Финляндиях без них? Наверное там теплее, чем в Украине:D bptrip.ru/posts/zhizn-v-norvegii-kak-zhivut-lyudi-v-odnoj-iz-samyh-dorogih-stran-mira/ Две входные двери и теплый пол в прихожей должны спасти. По планам. Дверь в СУ можно и вовнутрь открывать.Опять же ножкой сидя, пардон, на унитазе можно заблокировать , если забыли закрыть Входная дверь-разберитесь вам "правая" или "левая" удобно. О забыл. Крылечко коротковато. Добавлено через 11 минут Можно и конкретно. 1)Кухня на юго-восток - хозяйке не понравится летом, без жалюзи или летней террасы будет некомфортно;2) вход в дом через узкий коридор и сразу на лестницу - дурной вкус, отдает казенщиной. Хотя, если работаете где-нибудь в райисполкоме, то должно нравиться. Вы еще зеленую дорожку постелите на эту лестницу и будет полный кайф. А если серьезно, то приглашайте лучше практикующего архитектора и обсуждайте с ним Ваши "хотелки" - меньше потратите нервов и времени. Да и недвижимость Ваша в результате будет милой и Вам и... возможным покупателям, если что. Уважаемый, Abelor. 1) Написано много и красноречиво - можно конкретнее, пожалуйста. С учетом того, что у нас дом будет располагаться на участке 18*23 м (меньшая сторона участка совпадает с меньшей стеной дома - по размеру). 2) На то вопросы задают на форуме, чтобы услышать конкретный совет (-ы), а еще лучше увидеть ))) Про то, что все УЖОССС - это проще пареной репы написать. ИМХО. Спасибо. Посилання на коментар Поділитися на інших сайтах More sharing options...
Беседины Опубліковано: 11 лютого 2016 Поділитись Опубліковано: 11 лютого 2016 Добрый день! А касаемо варианта планировки (№ 1, 2, 3) интересно услышать мнение. И еще немного конкретнее по крыльцу, какие размеры более практичны? Спасибо. Добрый вечер! Ну третий точно не по фен-шуй ,если это имеет какое-то значение . Лестница в гостиной - красиво. А вот между кладовой, топочной и с.у. смотрите ,как Вашей семье удобней. Там, ведь, стены пока можно двигать по желанию. Для меня в приоритете была бы ванная комната по метрам и возможность отдельного места для постирочной ,что бы можно было разложить сушку и она никому бы не мешала. Посилання на коментар Поділитися на інших сайтах More sharing options...
Рекомендовані повідомлення
Створіть акаунт або увійдіть у нього для коментування
Ви маєте бути користувачем, щоб залишити коментар
Створити акаунт
Зареєструйтеся для отримання акаунта. Це просто!
Зареєструвати акаунтУвійти
Вже зареєстровані? Увійдіть тут.
Увійти зараз