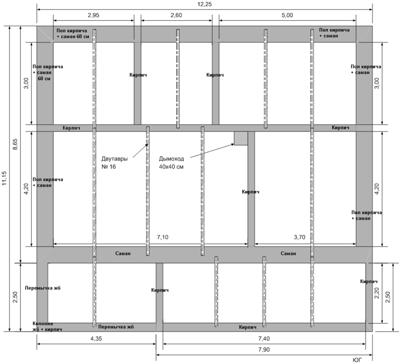
normal Опубліковано: 6 травня 2016 Поділитись Опубліковано: 6 травня 2016 Приветствую уважаемые форумчане! Делаю реконструкцию дома (импровизируем на ходу, без проекта), началось все с усиления фундамента и замены внутренних стен, потом дошло до армопояса, а поскольку потолки были высокие (3 м) - решил заложить в него двутавры (в надежде потом как-то к ним прикручивать потолок и пол чердака\мансарды). Также на уровне нижней полки двутавра, к армопоясу стен (перед заливкой) был приварен 50-й уголок (опирается на выпуски 18-й арматуры), для крепления потолка я думаю его будет достаточно, а вот для опирания перекрытия может быть слабое звено... Посоветуйте пожалуйста какие тут возможны варианты перекрытия под мансарду, желательно не сыпучие, не горючие. - можно ли в двутавр доску на ребро, между ними утеплитель, снизу и сверху обшить OSB, а потом стяжку? - или лучше посмотреть в сторону керамзитобетона\пенобетона и легкого монолита? Посилання на коментар Поділитися на інших сайтах More sharing options...
mastervovik Опубліковано: 6 травня 2016 Поділитись Опубліковано: 6 травня 2016 У вас там такой запас прочности, что шо хош можна! 1 Посилання на коментар Поділитися на інших сайтах More sharing options...
Технология Строительства Опубліковано: 9 травня 2016 Поділитись Опубліковано: 9 травня 2016 Посоветуйте пожалуйста какие тут возможны варианты перекрытия под мансарду, желательно не сыпучие, не горючие. - можно ли в двутавр доску на ребро, между ними утеплитель, снизу и сверху обшить OSB, а потом стяжку? Лучше из дерева сделайте. Конструкция легкая. При реконструкции, то что нужно! 1 Посилання на коментар Поділитися на інших сайтах More sharing options...
Privet Опубліковано: 9 травня 2016 Поділитись Опубліковано: 9 травня 2016 импровизируем на ходу, без проекта Интересный армопояс, который так нахально разрывает двутавр. 1 Посилання на коментар Поділитися на інших сайтах More sharing options...
Рекомендовані повідомлення
Створіть акаунт або увійдіть у нього для коментування
Ви маєте бути користувачем, щоб залишити коментар
Створити акаунт
Зареєструйтеся для отримання акаунта. Це просто!
Зареєструвати акаунтУвійти
Вже зареєстровані? Увійдіть тут.
Увійти зараз