Vitaliy67 Опубліковано: 5 червня 2016 Поділитись Опубліковано: 5 червня 2016 Уровень чистого пола это Ваш пол с уже финишным покрытием. Принимаем, что стяжка у Вас ровная. Теперь вопрос: какое будет финишное покрытие? Посилання на коментар Поділитися на інших сайтах More sharing options...
RapidX Опубліковано: 5 червня 2016 Поділитись Опубліковано: 5 червня 2016 Спасибо за совет! А как это, отбить? Проще всего отбить лазерным уровнем. По всей квартире по периметру и всем стенам будет проходить единая линия. Лазерный уровень должен быть у любого мало-мальски серьезного электрика, сантехника, отделочника. 1 Посилання на коментар Поділитися на інших сайтах More sharing options...
Holmes Опубліковано: 5 червня 2016 Поділитись Опубліковано: 5 червня 2016 Можешь попросить "отбить ноль" тех строителей, что делают отделку. Лазерный уровень у них должен быть. Это должно быть бесплатно. Правда сделают это уже когда придут стяжку делать. Насчет вешалки не советую - у тебя вместо нее встроенный шкаф - это эстетичней. И тем более роутер на вешлке с проводами - еще менее эстетично. Веди витую пару в шкаф - все будет хорошо. Гарантирую. Посилання на коментар Поділитися на інших сайтах More sharing options...
Vitaliy67 Опубліковано: 5 червня 2016 Поділитись Опубліковано: 5 червня 2016 И прежде чем начать чего либо делать они должны у Вас узнать УЧП. Считайте это тестом на проф. пригодность. Посилання на коментар Поділитися на інших сайтах More sharing options...
AНДРЮША Опубліковано: 5 червня 2016 Поділитись Опубліковано: 5 червня 2016 Хочу в ванную такое зеркало со светом над ним, и электрики сказали, что не нужно отдельный выключатель выводить, просто будет выключатель над самим зеркалом..Так и правда делают? У таких штук свой выключатель (на вашем фото виден вверху справа). Достаточно вывести провод за зеркалом. 1 Посилання на коментар Поділитися на інших сайтах More sharing options...
Аня767676 Опубліковано: 5 червня 2016 Автор Поділитись Опубліковано: 5 червня 2016 Уровень чистого пола это Ваш пол с уже финишным покрытием. Принимаем, что стяжка у Вас ровная. Теперь вопрос: какое будет финишное покрытие? везде, кроме спальни - плитка, в спальне ламинат Добавлено через 39 секунд И прежде чем начать чего либо делать они должны у Вас узнать УЧП. Считайте это тестом на проф. пригодность. УЧП, я так понимаю, это уровень чистого пола? Добавлено через 2 минуты Можешь попросить "отбить ноль" тех строителей, что делают отделку. Лазерный уровень у них должен быть. Это должно быть бесплатно. Правда сделают это уже когда придут стяжку делать. Насчет вешалки не советую - у тебя вместо нее встроенный шкаф - это эстетичней. И тем более роутер на вешлке с проводами - еще менее эстетично. Веди витую пару в шкаф - все будет хорошо. Гарантирую. так а если и правда помехи будут? боюсь. я хочу над вешалкой такую полочку, чтоб шапку и перчатки зимой класть. она довольно высоко, и оттуда роутер в глаза, думаю, бросаться не должен. просто представила себе ситуацию. роутер в шкафу купе. от него исходят волны ИНтернета)))) и как всякие волны, они от любой точки отражаются и она превращается в источник волн. Пока волны дойдут до балкона, получается неразбериха вмето волно (я конечно физик еще тот) а я сижу на балконе и веду видео звонок по скайпу. вдруг связь портится, и надо идти в прихожую, потому что там лучше вай фай ловит((( Посилання на коментар Поділитися на інших сайтах More sharing options...
Vitaliy67 Опубліковано: 5 червня 2016 Поділитись Опубліковано: 5 червня 2016 Ламинат, чаще встречающийся, 8мм плюс подложка 2мм итого 10мм. Плитка 8мм плюс клей 12мм. Плитка 10мм плюс клей 14мм. Плитка 6мм плюс клей 10мм. Толщина клея может несущественно меняться в зависимости от размера плитки. У входных дверей будет плитка, там и отбивайте УЧП(уровень чистого пола). Посилання на коментар Поділитися на інших сайтах More sharing options...
Holmes Опубліковано: 6 червня 2016 Поділитись Опубліковано: 6 червня 2016 просто представила себе ситуацию. роутер в шкафу купе. от него исходят волны ИНтернета)))) и как всякие волны, они от любой точки отражаются и она превращается в источник волн. Пока волны дойдут до балкона, получается неразбериха вмето волно (я конечно физик еще тот) а я сижу на балконе и веду видео звонок по скайпу. вдруг связь портится, и надо идти в прихожую, потому что там лучше вай фай ловит((( Радиоволны плохо проходят через монолит, лучше проходят через кирпич, свободно проходят через гипсокартон или шкаф. До балкона добьет интернет, не волнуйся. Воспринимать совета интернетчика нужно так: "постарайтесь меньше пересекать и спутывать интернет кабеля со всякими другими кабелями". Просто учти совет, но если там они один раз пересекаются - это нормально. Все будет рабдотать хорошо. Посилання на коментар Поділитися на інших сайтах More sharing options...
Крышник Опубліковано: 7 червня 2016 Поділитись Опубліковано: 7 червня 2016 (змінено) И я немного пасаветую,из своего опыта эксплуатации:D Высота стенки над рабочим столом в кухне 50 см(рассчитывал "йемперическим" способом исходя из "ростовок",168-175см,) Розетки монтировать над рабочим столом в кухне на высоте 35-40 см,так удобней,можно к стене что то приставить. Ставить не ЛЭД ленту,а светильник из ЛЭД элементов,об этом я написал темку,время показало,что очень удобно,и обязательно отдельный включатель в блоке с розетками,но фото в той теме есть.Соответственно сделать вывод кабеля в один из верхних шкафов для подключения блока питания светильника. В кухне,на нижнем уровне сделать несколько ящиков больших особенно под плитой,очень удобно для кастрюль и мелкой техники(см.фото) Ручки у меня "скобой",удобно для полотенец(фото ниже),покупал,на удивление дешевые итальянские(сейчас на сайте почему-то Китай) тут. Плинтус на рабочем столе не ставил,сделал его из финского "силикона",обычного сантехнического. Змінено 7 червня 2016 користувачем Крышник 1 Посилання на коментар Поділитися на інших сайтах More sharing options...
Аня767676 Опубліковано: 8 червня 2016 Автор Поділитись Опубліковано: 8 червня 2016 И я немного пасаветую,из своего опыта эксплуатации:D Высота стенки над рабочим столом в кухне 50 см(рассчитывал "йемперическим" способом исходя из "ростовок",168-175см,) Розетки монтировать над рабочим столом в кухне на высоте 35-40 см,так удобней,можно к стене что то приставить. Ставить не ЛЭД ленту,а светильник из ЛЭД элементов,об этом я написал темку,время показало,что очень удобно,и обязательно отдельный включатель в блоке с розетками,но фото в той теме есть.Соответственно сделать вывод кабеля в один из верхних шкафов для подключения блока питания светильника. В кухне,на нижнем уровне сделать несколько ящиков больших особенно под плитой,очень удобно для кастрюль и мелкой техники(см.фото) Ручки у меня "скобой",удобно для полотенец(фото ниже),покупал,на удивление дешевые итальянские(сейчас на сайте почему-то Китай) тут. Плинтус на рабочем столе не ставил,сделал его из финского "силикона",обычного сантехнического. Спасибо! Замечательная мысль. Я сейчас на стадии переговоров с электриками и сантехниками. Выбираю среди тех, кого рекомендуют причем чтоб я знала людей, которые рекомендуют... Встретилась в субботу с двумя электриками. До встречи по телефону спрашивала о скидке 10%, так как цены у них чуть выше рыночных. После встречи они сказали скинуть план с размерами, онит посчитают все сразу, и уже тогда прикинут скидку. Я скинула план на емейл и спустя день позвонила, трубку не взяли и второй день уже нет ответа..Странно. Завтра встречаюсь с другим электриком. Думаю, если с ним доворимся, взять список материалов и второй раз уже встретиться, дать ключ и материалы... Параллельно ищу сантехника. Прайс листа они не дают, но говорят в сркднем цену за точку. Первый специалист дало цену чуть выше рыночной, но потом выяснилось, что цена включает в себя чистоввые работы (установку унитаза и др.) Вроде, тогда нормально, но еще встречусь пообщаюсь. Вобщем, понимаю, что теряю время, но подобрпть специалиста непросто( Посилання на коментар Поділитися на інших сайтах More sharing options...
Аня767676 Опубліковано: 9 червня 2016 Автор Поділитись Опубліковано: 9 червня 2016 Наткнулась на фото кухни, где вместо традиционного рукава из керамической плитки над кухонной поверхностью, поставили графитную доску. Нравится идея, неясно, как ее воплотить, и неясно, как будет выглядеть у меня. Пускай повисит картинка здесь пока Посилання на коментар Поділитися на інших сайтах More sharing options...
mib Опубліковано: 9 червня 2016 Поділитись Опубліковано: 9 червня 2016 неясно, как ее воплотить есть специальные графитовые краски 1 Посилання на коментар Поділитися на інших сайтах More sharing options...
Аня767676 Опубліковано: 12 червня 2016 Автор Поділитись Опубліковано: 12 червня 2016 есть специальные графитовые краски вы думаете, ими стоить красить плитку? ведь это рабочая поверхность, я думала класть туда плитку. Хотела посоветоваться с форумчанами по поводу сантехнических работ. 1. Какие лучше использовать трубы? Сейчас в сан узел заведены две трубы, горячая и холодная, сантехники сказали t&c или rehau, или совместное производство, в общем, не смогла до конца понять производителя, но суть в том, что соединения обжимные. Вначале я думала ставить трубы из эко пластика на спайке. Но мне сказали, что обжимные соединения надёжные, а если ставить экопластик, то придется паять, и это риски. Поэтом придется место спайки поднимать с уровня пола и прятатьв какую-то нишу в стене. Сказали выбрать более дорогие трубы. Насколько я поняла, лучше поставить или трубы rehau, или металопластиковые pexal. Не знаю, какие выбрать, и что в моем случае лучше Посилання на коментар Поділитися на інших сайтах More sharing options...
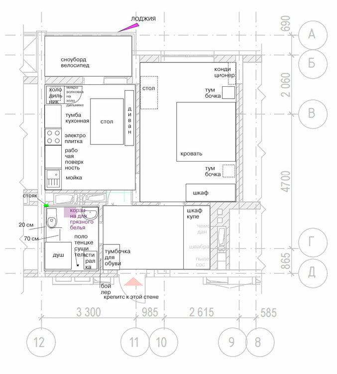
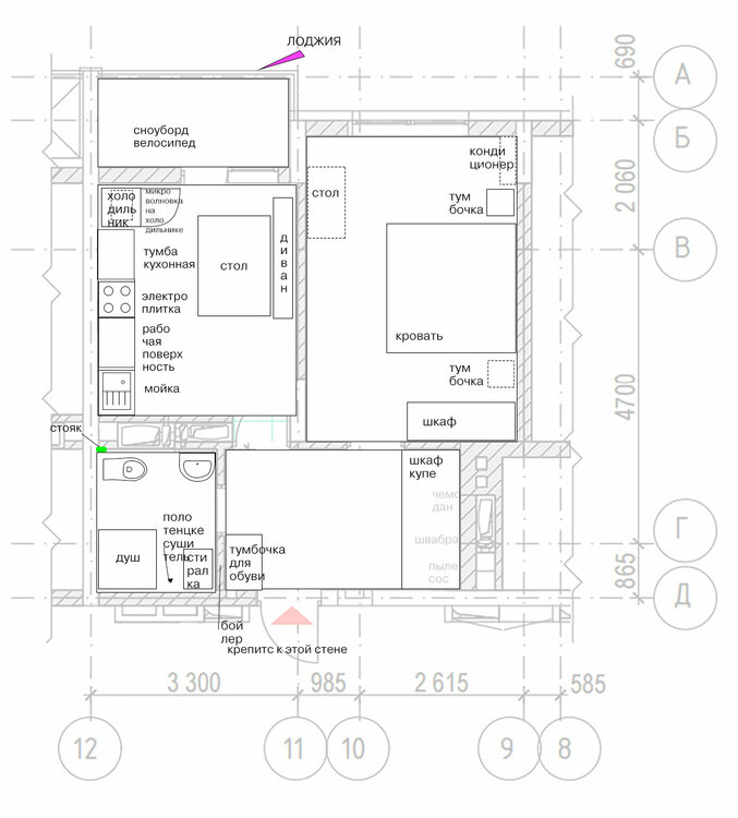
Аня767676 Опубліковано: 12 червня 2016 Автор Поділитись Опубліковано: 12 червня 2016 2. Как лучше расположить унитаз? Стояк находится в углу (отмечен зеленым) Сейчас унитаз по плану стоит боком ко входу: Но в этом случае он получается слегка упирается в душевую кабину. Между краем унитаза и душем около 70 см. Думаю развернуть унитаз, чтобы он стоял лицом ко входу. Пунктиром с точкой на плане отмечена несущая стена, там ведь штробить нельзя, поэтому я думала трубы спрятать в небольшой короб внизу, получится такой как бы порожек. На плане внизу вот эти 20 см - это не порожек, а просто расстояние между краем унитаза и стеной Вобщем, склоняюсь поставить унитаз лицом ко входу: Посилання на коментар Поділитися на інших сайтах More sharing options...
Аня767676 Опубліковано: 12 червня 2016 Автор Поділитись Опубліковано: 12 червня 2016 Еще я не знаю, ставить ли полотенцесушитель. У меня нет стояка, к которому можно было бы подключать водяной полотенцесушитель, и предлагают ставить электрический. Мне кажется, что можно вполне обойтись и без полотенцесушителя, но говорят, что с полотенцесушителем в ванной не будет так сыро. а я очень бюось всякой плесени.. Добавлено через 2 минуты Еще я не знаю, нормально ли ставить умывальник впритык к стене, как у меня на чертеже. Сходу не вижу, почему бы и нте. Под умывальником будет тумба, и над ним тоже тумба с зеркалом. И еще сейчас сяду выбирать, какой поддон душевой кабины мне нужен. Возможно, у вас есть какой-то опыт с этими разными видами поддонов, делитесь) Добавлено через 3 минуты И еще я не знаю как быть с временным унитазом для строителей. Мне вчера посоветовали ставить какой-то б-ушный, а другие люди говорят, что строители сами ставят себе самодельный из пятилитровой банки... В любом случае, этого нельзя делать, пока не разведены трубы, и мне интересно, как будут работаь люди до того...в принципе, у консьержки внизу есть свой туалет..спросить ли? или это не мое дело? вот не пойму, по идее, я ведь должна как-то этот момент обеспечить? Посилання на коментар Поділитися на інших сайтах More sharing options...
Lana_CK Опубліковано: 12 червня 2016 Поділитись Опубліковано: 12 червня 2016 Спросите у строителей со своим ли они унитазом Если нет- найдете б/у или брак недорогой Мне больше унитаз у Вас нравится лицом к душевой)) Умывальник впритык к стене справа? Смотря какой его размер. Если небольшой, можно и отступить см 10-15 1 Посилання на коментар Поділитися на інших сайтах More sharing options...
Аня767676 Опубліковано: 12 червня 2016 Автор Поділитись Опубліковано: 12 червня 2016 Спросите у строителей со своим ли они унитазом Если нет- найдете б/у или брак недорогой Мне больше унитаз у Вас нравится лицом к душевой)) Умывальник впритык к стене справа? Смотря какой его размер. Если небольшой, можно и отступить см 10-15 Умывальник думала шириной 60 см. А чем вам больше нравится вариант унитаза лицом к душевой? я просто боюсь, чтобы коленками прям не упираться....Вроде влазит, но...А лицом ко входу тоже как-то неуютно Посилання на коментар Поділитися на інших сайтах More sharing options...
Lana_CK Опубліковано: 13 червня 2016 Поділитись Опубліковано: 13 червня 2016 а если он боком? до умывальника сколько см? Посилання на коментар Поділитися на інших сайтах More sharing options...
Holmes Опубліковано: 13 червня 2016 Поділитись Опубліковано: 13 червня 2016 (змінено) Умывальник. Вплотную к стене никогда не ставил, но печему бы и нет? Если щель там все равно маленькая - там будет скапливаться грязь. в любом случае решить можно потом: делаешь выходы под воду и слив, а при установке можно уже +/- 10 см влево в право. Унитаз. Выбирай между вариантами "к душу" и "45 градусов из угла". Временный унитаз. Обычно они сами себе вырезают из 5л бутылки. Кухня. Непрактичное решение с доской. Варианты: - плитка (советую) - стекло, под ним обои или печать. У меня так, ноэто непрактичный варант если будешь сдавать. Трубы Если коротко: PEX-труба (труба из сшитого полиэтилена) - дороже для тебя, проще для мастера - нужно меньше считать (т.к. она гибкая), не нужен паяльник. У меня опыта нет. Срок службы 50 лет. Экопластик - дешевле для тебя, требует большей квалификации мастера. Не верь когда говорят что не подходит для горячей воды, просто для горячей воды там идет специальная. Вот сама технология: Вот одна из труб для горячей воды: Делал 3 раза ремонт с ними, все отлично. Срок службы 50 лет. Металлопластик - не советую. Подробнее о технологиях: stroyaqua.com/vodoprovod_santeh/trubi/kakie-truby-luchshe-dlya-vodoprovoda.html Змінено 13 червня 2016 користувачем Holmes Посилання на коментар Поділитися на інших сайтах More sharing options...
Крышник Опубліковано: 13 червня 2016 Поділитись Опубліковано: 13 червня 2016 Дополню по трубам в КВАРТИРУ,дешевле получается медью,как объяснил мне Сергей BSV,типа трубы дорогие,но на однушку их очень мало идет,а фитинги дешевые.Для пластика наоборот.Срок службы,х.з...думаю лет 50 простоит :D 1 Посилання на коментар Поділитися на інших сайтах More sharing options...
Аня767676 Опубліковано: 13 червня 2016 Автор Поділитись Опубліковано: 13 червня 2016 а если он боком? до умывальника сколько см? Если унитаз лицом ко входу, то между умывльником и душем примерно 55-60 см Добавлено через 41 секунду Дополню по трубам в КВАРТИРУ,дешевле получается медью,как объяснил мне Сергей BSV,типа трубы дорогие,но на однушку их очень мало идет,а фитинги дешевые.Для пластика наоборот.Срок службы,х.з...думаю лет 50 простоит :D Спасибо. А что скажете насчет труб в само м санузле? Какие рекомендуете? Посилання на коментар Поділитися на інших сайтах More sharing options...
Крышник Опубліковано: 14 червня 2016 Поділитись Опубліковано: 14 червня 2016 Спасибо. А что скажете насчет труб в само м санузле? Какие рекомендуете? Я имел ввиду во всей квартире медные :D 1 Посилання на коментар Поділитися на інших сайтах More sharing options...
schranznbasser Опубліковано: 14 червня 2016 Поділитись Опубліковано: 14 червня 2016 Еще я не знаю, ставить ли полотенцесушитель. У меня нет стояка, к которому можно было бы подключать водяной полотенцесушитель, и предлагают ставить электрический. Мне кажется, что можно вполне обойтись и без полотенцесушителя, но говорят, что с полотенцесушителем в ванной не будет так сыро. а я очень бюось всякой плесени.. Добавлено через 2 минуты Еще я не знаю, нормально ли ставить умывальник впритык к стене, как у меня на чертеже. Сходу не вижу, почему бы и нте. Под умывальником будет тумба, и над ним тоже тумба с зеркалом. И еще сейчас сяду выбирать, какой поддон душевой кабины мне нужен. Возможно, у вас есть какой-то опыт с этими разными видами поддонов, делитесь) Добавлено через 3 минуты И еще я не знаю как быть с временным унитазом для строителей. Мне вчера посоветовали ставить какой-то б-ушный, а другие люди говорят, что строители сами ставят себе самодельный из пятилитровой банки... В любом случае, этого нельзя делать, пока не разведены трубы, и мне интересно, как будут работаь люди до того...в принципе, у консьержки внизу есть свой туалет..спросить ли? или это не мое дело? вот не пойму, по идее, я ведь должна как-то этот момент обеспечить? я б поменял местами корзину для белья и умывальник, особенно если вы правша)) (а арендатор будет в 80% правшой), вы когда зубы будете чистить-придется или рукой об стену биться, или боком к умывльнику стоять. если будете феном голову сушить перед зеркалом-то же самое. имхо Посилання на коментар Поділитися на інших сайтах More sharing options...
Astromao Опубліковано: 14 червня 2016 Поділитись Опубліковано: 14 червня 2016 Плита. Кабель должен быть толстый, нужно посчитать. Но, пардон, 6 кв. мм для 30 А (с этой цифрой согласен) мне кажется много. Вот таблица расчета, если считать по ней, то вроде 2,5 кв. мм. Так? www.meanders.ru/sechenie.shtml Извините, но это какая-то левая таблица. Если включить все комфорки, то провод 2,5 просто сгорит. На такой кабель больше 3,5 квт опасно садить. 6 мм с запасом - самое то, туда же можно и духовку со временем подключить (+3 квт). Посилання на коментар Поділитися на інших сайтах More sharing options...
Аня767676 Опубліковано: 5 липня 2016 Автор Поділитись Опубліковано: 5 липня 2016 Провела электричество, сантехники в процессе работы. Вот фотографии, на которых показаны результаты работы электрика и незавершенная работа сантехника в порядке следования фото 1 - тут будет крепиться унитаз. Справа отнего на уровне унитаза (высота 40 см) будет гигиенический душ: 2 - тут - умывальник 3 - тут - скрытый смеситель для душа 4 - стиралка Посилання на коментар Поділитися на інших сайтах More sharing options...
Рекомендовані повідомлення
Створіть акаунт або увійдіть у нього для коментування
Ви маєте бути користувачем, щоб залишити коментар
Створити акаунт
Зареєструйтеся для отримання акаунта. Це просто!
Зареєструвати акаунтУвійти
Вже зареєстровані? Увійдіть тут.
Увійти зараз