Олег 1981 Опубліковано: 15 листопада 2016 Поділитись Опубліковано: 15 листопада 2016 Так а что теперь делать? Посилання на коментар Поділитися на інших сайтах More sharing options...
SON Опубліковано: 15 листопада 2016 Поділитись Опубліковано: 15 листопада 2016 Дайте более детальное фото верхней части с разных ракурсов. Покумекаю, мож чего получится малой кровью. Не знаю кто Вас сблатовал на нержу, когда керамические дымоходы в виде конструктора типа Шиделя стоят соизмеримо. По нормальному следовало бы прим. так. У Вас на первом этаже стена в кружочке 38 см. При такой толщине в ней запросто поместились бы 2 вентканала 140*140 мм (1/2*1/2 кирпича) и дымоход 270*140 (1*1/2). Ессно стена на втором этаже должна быть такой же толщины или с выступом в районе каналов. Общая шахта вышла б через кровлю. Все это как правило делается до монтажа стропилки и крыши. Затем приходят крышники и делают раскладку стропил и пр. Получилось как всегда, сначала положили асфальт, потом вспомнили про трубы. Посилання на коментар Поділитися на інших сайтах More sharing options...
Олег 1981 Опубліковано: 15 листопада 2016 Поділитись Опубліковано: 15 листопада 2016 Про асфальт это точно Посилання на коментар Поділитися на інших сайтах More sharing options...
Олег 1981 Опубліковано: 15 листопада 2016 Поділитись Опубліковано: 15 листопада 2016 Еще одно фото Посилання на коментар Поділитися на інших сайтах More sharing options...
StNick Опубліковано: 15 листопада 2016 Поділитись Опубліковано: 15 листопада 2016 А что базальта вокруг сендвича не хватит? Посилання на коментар Поділитися на інших сайтах More sharing options...
SON Опубліковано: 15 листопада 2016 Поділитись Опубліковано: 15 листопада 2016 А что базальта вокруг сендвича не хватит? Замотав трубу утеплителем можно еще больше усугубить ситуацию. Температура наружной трубы сэндвича при этом увеличится. А т. к. большинство сэндвичей имеют всего 2-3 см. утеплителя, наружная труба довольно не кисло нагревается. Олег 1981, насколько возможно отодвигайте деревяшки от трубы, либо саму трубу от дерева. При ограниченных расстояниях принцип на малюнке. Жесть является термоэкраном, и довольно эффективно отражает ИК-излучение от трубы. В данной ситуации лучше перебдеть. Посилання на коментар Поділитися на інших сайтах More sharing options...
Олег 1981 Опубліковано: 16 листопада 2016 Поділитись Опубліковано: 16 листопада 2016 Там её двигать то некуда (( . А если я в местах прохода перекрытия и крыши обложу трубу Суперизолом или вермикулитом ? Посилання на коментар Поділитися на інших сайтах More sharing options...
StNick Опубліковано: 16 листопада 2016 Поділитись Опубліковано: 16 листопада 2016 Там её двигать то некуда (( . А если я в местах прохода перекрытия и крыши обложу трубу Суперизолом или вермикулитом ? магнезитовыми плитами или базальтовым гипсокартоном? или все до фени? Посилання на коментар Поділитися на інших сайтах More sharing options...
MCPetrov Опубліковано: 18 листопада 2016 Поділитись Опубліковано: 18 листопада 2016 Итак, как писал раньше, проблема с вентиляцией, теперь еще раз, но уже с картинками: Вот фото моего вент-канала, в который затягивает дым, с другой стороны дома, и соответственно, с другой стороны конька. На фото красной стрелочкой указано куда и откуда затягивает. Зеленой стрелочкой показано мой дымоход камина, с которым пока проблем нет. А вот фото дымохода твердотопливного котла, дым от которого затягивает ко мне в вентиляционный канал. То-есть, с одной стороны конька, и другой половины дома ко мне в вентиляцию затягивает дым из дымохода. Помогает только открытое окно, на часа два-три, после растопки котла, как минимум, я так понимаю, пока котел окончательно не прогорит, и дыма просто станет намного меньше. Задолбало просто невероятно. Очень прошу совета, как с этим можно побороться. При чем самое интересное, что затягивает дым, в непонятное место под лестницей, прямо из стены, такое ощущение, что в ней есть дырки до самого вент канала, и через них дым засасывает. Вот такая вот беда! Посилання на коментар Поділитися на інших сайтах More sharing options...
SON Опубліковано: 19 листопада 2016 Поділитись Опубліковано: 19 листопада 2016 1. Затягивание дыма в дом говорит об обратной тяге в вентканалах. У Вас их 4 или 5, плюс дымоход, притока скорее всего нет. Такую прорву каналов нужно кормить воздухом, иначе они сами договорятся кому тянуть, кому подавать. 2. Дом расположен довольно рядом с многоэтажкой, и скорее всего выходы шахт находятся в зоне ветрового подпора. Точнее можно будет сказать, если будет общая фотка дома и высотки. Можете прикинуть сами, провев мнимую линию от верхнего края высотки под углом 45 гр. к земле. На малюнке, все что ниже красной линии - зона ветрового подпора. 3. Проясните по выходам каналов в шахте: - выходят прямо под зонт? - выходят в боковые окошки (на одну или две стороны) ? 4. Дефлектор на дымоходе камина бесполезная, даже вредная штука. Его лучше демонтировать, даж с т.з. "чистой" трубы, не говоря о том, что на дымоходах они запрещены нормативно. 2 Посилання на коментар Поділитися на інших сайтах More sharing options...
MCPetrov Опубліковано: 20 листопада 2016 Поділитись Опубліковано: 20 листопада 2016 1. Затягивание дыма в дом говорит об обратной тяге в вентканалах. - Это я уже понял! У Вас их 4 или 5, плюс дымоход, притока скорее всего нет. Такую прорву каналов нужно кормить воздухом, иначе они сами договорятся кому тянуть, кому подавать. - Я ж не могу делать канал прямо в комнате, чтоб была дыра на улицу. 2. Дом расположен довольно рядом с многоэтажкой, и скорее всего выходы шахт находятся в зоне ветрового подпора. Точнее можно будет сказать, если будет общая фотка дома и высотки. Можете прикинуть сами, провев мнимую линию от верхнего края высотки под углом 45 гр. к земле. На малюнке, все что ниже красной линии - зона ветрового подпора. - Это я уже тоже понял, поскольку высотный дом построили только в этом году, и такая ерунда началась активно именно в этом году. 3. Проясните по выходам каналов в шахте: - выходят прямо под зонт? - выходят в боковые окошки (на одну или две стороны) ? - Выходят в боковые окошки на обе стороны, зонт - исключительно декоративная штука (делано всё в доме не мной, поэтому вынужден все недочеты переделывать) 4. Дефлектор на дымоходе камина бесполезная, даже вредная штука. Его лучше демонтировать, даж с т.з. "чистой" трубы, не говоря о том, что на дымоходах они запрещены нормативно. - Вот тут сюрприз. Дымоход камина делали уже под моим руководством ну очень умные люди, которые мне точно желали только хорошего, хотя буквально недавно я увидел поворотный флюгер, и захотел его. Но самое основное - это варианты решения этой проблемы. Каким образом это побороть, чтоб и правильно, и не нужно было раскручивать пол дома. Посилання на коментар Поділитися на інших сайтах More sharing options...
SON Опубліковано: 20 листопада 2016 Поділитись Опубліковано: 20 листопада 2016 Но самое основное - это варианты решения этой проблемы. Каким образом это побороть, чтоб и правильно, и не нужно было раскручивать пол дома. Нужно выяснить причину обратной тяги в каналах. Либо от недостатка притока, либо высотка создает ветровой подпор. Проще всего это сделать временно сняв вентрешетки на вентканалах и повесив на каждую "флажок", (полоску туалетной бумаги). По отклонению полоски будет видно куда идет воздух. Понаблюдать нужно в течении недели, очень желательно и в ветреную погоду. Сидеть днями возле флажков ессно не стоит, но даже бросив взгляд утром/вечером придет понимание когда (при каких условиях) появляется обратная тяга. Или она вообще не пропадает. :D При отклонении флажков во внутрь (в дом) - приоткрыть окошко, глянуть чего поменялось. Высотка может быть виновницей только при ветре, при чем направление вдоль конька вашей крыши в сторону многоэтажки или близком к этому. Вобщем на основе наблюдений нужно сложить пазл. :D Кроме Вас это реально никто не вычислит, потому как можно пригласить спецов с приборами, лицензиями и регалиями, но на момент их прихода все может быть зашибись, а сидеть днями в доме ессно никто не будет. Когда поймете причину, тогда соотв. вырисуется рецепт лечения. Сдается мне, что в доме просто проблема с притоком, потому как затягивает дым, в непонятное место под лестницей, прямо из стены, такое ощущение, что в ней есть дырки до самого вент канала, и через них дым засасывает. Нарисовать расположение каналов и лестницы сможете? Заодно опишите конструктив вентканалов. Т.е. из чего и как сделаны. Посилання на коментар Поділитися на інших сайтах More sharing options...
MCPetrov Опубліковано: 23 листопада 2016 Поділитись Опубліковано: 23 листопада 2016 *Провёл в наблюдениях уже не одну неделю. При закрытых окнах у меня постоянно обратная тяга. И когда тепло, и когда холодно. И при сильном ветре, и в полный штиль. Как только открываю окно (достаточно даже в коридоре), сразу тяга меняет направление, и получается нормальная вытяжка, и все в доме стает нормально, но при минусовой температуре в холле стает очень холодно, поэтому использую этот способ исключительно как единственный действенный, но далеко не как выход из ситуации. По поводу вент-каналов. Завтра постараюсь сделать фото и схему. Все вент-каналы кирпичные, квадратные. Один канал на вытяжку, один - вентиляция. Что касается ветра, то когда ветер дует от моих труб к коньку, то у меня все в норме, или же если дым дует вдоль конька, в сторону высотки, то у меня тоже нет никаких проблем, но всегда есть обратная тяга, вне зависимости от силы и направления ветра. Посилання на коментар Поділитися на інших сайтах More sharing options...
Seymur Опубліковано: 28 листопада 2016 Автор Поділитись Опубліковано: 28 листопада 2016 При закрытых окнах у меня постоянно обратная тяга. И когда тепло, и когда холодно. И при сильном ветре, и в полный штиль. Если есть постоянный приток, значит должен быть и отток. Вопрос: где? Вероятно, это труба камина. Она у Вас перекрывается, кстати? Заткните отток и движение воздуха в в/каналах застопориться, вернее будет зависеть от ветра. Сделайте правильный приток и вентиляция наладится. Что касается ветра, то когда ветер дует от моих труб к коньку, то у меня все в норме, или же если дым дует вдоль конька, в сторону высотки, то у меня тоже нет никаких проблем, но всегда есть обратная тяга, вне зависимости от силы и направления ветра. Т.е., исходя из Ваших слов, если дым не попадает в зону захвата обратной тяги, то все норм. Что подтверждает: решение проблемы задымленности в устранении причин обратной тяги. ЗЫ. Возникла мысль. Я так понял, что дом разделен на две квартиры? Если так, то вопрос: - А Вы уверены, что стены между квартирами герметичны? Без щелей, каких-нибудь не заделанных продух итд. Может быть отток там? Посилання на коментар Поділитися на інших сайтах More sharing options...
MCPetrov Опубліковано: 29 листопада 2016 Поділитись Опубліковано: 29 листопада 2016 Если есть постоянный приток, значит должен быть и отток. Вопрос: где? Вероятно, это труба камина. Она у Вас перекрывается, кстати? Заткните отток и движение воздуха в в/каналах застопориться, вернее будет зависеть от ветра. Сделайте правильный приток и вентиляция наладится. Ну, вероятнее всего действительно отток - труба камина. На ней есть шибер для регулировки тяги. Но, поскольку мы камином пользуемся активно, а сейчас и вовсе топим камином (у меня сделана разводка по комнатам от камина). На счёт правильного притока - с удовольствием сделаю, но так и не могу понять, как его сделать правильно. В этом весь вопрос. Я ж не могу просто в комнате сделать отверстие в нижней части стены, на улицу, чтоб через неё поступал холодный воздух в комнату. Хотя есть возможность сделать отверстие в коридор. Я сейчас именно в коридоре открываю окно, чтоб дома не было вони и дыма, но и не было очень холодно. Т.е., исходя из Ваших слов, если дым не попадает в зону захвата обратной тяги, то все норм. Что подтверждает: решение проблемы задымленности в устранении причин обратной тяги. Так какая всё-таки причина обратной тяги? Ведь так и не ясна причина обратной тяги, чтоб её устранить. ЗЫ. Возникла мысль. Я так понял, что дом разделен на две квартиры? Если так, то вопрос: - А Вы уверены, что стены между квартирами герметичны? Без щелей, каких-нибудь не заделанных продух и т.д. Может быть отток там? Та чёрт его знает, как это выяснить? Но на сейчас вся проблема в том, что наступили морозы, дом обогреваю камином, чтоб в общем-то, для меня приемлемо и резонно (в следующем году, а может через год, будет установлен твердотопливный котёл). Так вот, как на данный момент решить проблему попадания дыма в дом (дым точно исключительно от дымохода со второй половины, в мой вент-канал, через крышу. Два дымохода между собой никак не соединены, и даже совместных стен у них нет, правда попадает он в дом, через странное место под лестницей). Кстати дым попадает в дом, независимо от того, горит у меня камин или нет, или же топлю я газовым котлом. Холодно в доме или жарко, всё равно - в дом идет дым, как только во второй половине начинают топить. При чем, даже визуально это видно. Можно ли просто каким-то образом перекрыть вент-каналы, просто закрыть их чем-то, или на крыше, или внутри дома (они выходят только на кухню), чтоб через них не поступал воздух в дом? Пока я буду решать вопрос с правильным притоком воздуха в дом? Посилання на коментар Поділитися на інших сайтах More sharing options...
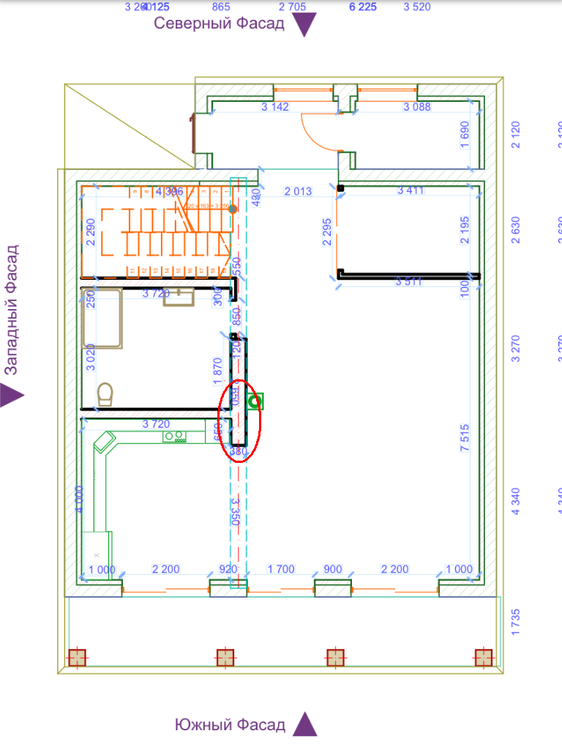
MCPetrov Опубліковано: 29 листопада 2016 Поділитись Опубліковано: 29 листопада 2016 Красным у меня отмечено, приблизительное месторасположение моих вент-каналов (+- 20 см вправо-влево) и зеленым показано то место, откуда я вижу и ощущаю поступление дыма и вони. За стеной с вент-каналами расположена кухня, стена, которая перпендикулярно - стена с коридором и выходом на улицу. Если это как-то поможет в решении проблемы. Посилання на коментар Поділитися на інших сайтах More sharing options...
SON Опубліковано: 29 листопада 2016 Поділитись Опубліковано: 29 листопада 2016 (змінено) Так какая всё-таки причина обратной тяги? Ведь так и не ясна причина обратной тяги, чтоб её устранить. Вот Вам ответ. При закрытых окнах у меня постоянно обратная тяга. И когда тепло, и когда холодно. И при сильном ветре, и в полный штиль. Как только открываю окно (достаточно даже в коридоре), сразу тяга меняет направление, и получается нормальная вытяжка, и все в доме стает нормально, Просто недостаток приточного воздуха.. но при минусовой температуре в холле стает очень холодно, поэтому использую этот способ исключительно как единственный действенный, но далеко не как выход из ситуации. Дык, жить зимой с открытыми окнами ессно не феншуй. :D Нужно организовать приток любым приемлемым способом. Либо установить стеновые приточные клапаны (в гугле - КИВ 125, КИВ-квадро), либо удалить часть уплотнителя в верхней части створок окон. Касается только жилых помещений. Первый вариант очень неплохой, но тянет фин. расходы и сверление стен, второй бесплатный, но с гораздо меньшей пропускной способностью. Иногда хватает и второго. Все вент-каналы кирпичные, квадратные. Нормально. Размер внутренний? Сколько всего каналов? Один канал на вытяжку, один - вентиляция. Вытяжка - это кух. зонт над плитой? Ну, вероятнее всего действительно отток - труба камина. Если камин - открытая топка, то и дымоход для него имеет немаленькое сечение, и точно также, и даж поболее, как и вентканалы "высасывает" воздух из дома. А т.к. притока по факту нет, каналы "сами решают" кому работать на вытяжку, кому на приток. На счёт правильного притока - с удовольствием сделаю, но так и не могу понять, как его сделать правильно. Выше написал. Для начала, шоб не громить дом: :D 1. Поставить окна в режим микропроветривания 2. Заклеить вентрешетки на вентканалах с обратной стороны бумагой/скотчем на 1/3-1/2. Тем самым уменьшите "аппетит" вытяжных каналов, соотв. потребуется меньший объем приточного воздуха. Я ж не могу просто в комнате сделать отверстие в нижней части стены, на улицу, чтоб через неё поступал холодный воздух в комнату. Дайте размер топки камина и примерный объем комнаты где он установлен. Это я к тому, что отдельный приток с улицы для открытого камина не всегда необходим. В разе закрытой топки (со стеклом/дверкой), на персональную приточку для нее можно вообще забить. Можно ли просто каким-то образом перекрыть вент-каналы, просто закрыть их чем-то, или на крыше, или внутри дома (они выходят только на кухню), чтоб через них не поступал воздух в дом? Пока я буду решать вопрос с правильным притоком воздуха в дом? Да запросто. :D Заткнуть тряпкой, но лучше на крыше. При затычке на входе (в доме) каналы будут выстуживаться холодным воздухом, соотв. охлаждать часть стены. Не исключено образования конденсата. Красным у меня отмечено, приблизительное месторасположение моих вент-каналов (+- 20 см вправо-влево) и зеленым показано то место, откуда я вижу и ощущаю поступление дыма и вони. Тут тока предположение. Возможно имеются неплотности/трещины, попросту говоря дырки за деревянной вагонкой, даже от того же крепежа оной. Змінено 29 листопада 2016 користувачем SON 1 Посилання на коментар Поділитися на інших сайтах More sharing options...
MCPetrov Опубліковано: 30 листопада 2016 Поділитись Опубліковано: 30 листопада 2016 Комната около 30 м2. Камин закрытый. Посилання на коментар Поділитися на інших сайтах More sharing options...
MCPetrov Опубліковано: 30 листопада 2016 Поділитись Опубліковано: 30 листопада 2016 Вот Вам ответ. Просто недостаток приточного воздуха.. Дык, жить зимой с открытыми окнами ессно не феншуй. :D Нужно организовать приток любым приемлемым способом. Либо установить стеновые приточные клапаны (в гугле - КИВ 125, КИВ-квадро), либо удалить часть уплотнителя в верхней части створок окон. Касается только жилых помещений. Первый вариант очень неплохой, но тянет фин. расходы и сверление стен, второй бесплатный, но с гораздо меньшей пропускной способностью. Иногда хватает и второго. Хочу сделать приток свежего воздуха правильно. Удаление уплотнителей - не вариант, делать, так делать нормально. Посмотрел эти клапаны, тема нормальная, а потом увидел рекуператор Прана, заинтересовался! Фин-расходы и сверление стен меня не пугают после месяцев мучений с вонью и дымом. Нормально. Размер внутренний? Сколько всего каналов? Вытяжка - это кух. зонт над плитой? Размер каналов - кирпич на кирпич, вроде как. Вытяжка - да, кухонный зонт, а рядом с ним вент канал с вентилятором, который вообще никак не помогает в этой проблеме. Крутить крутит, но толку от него никакого. Если камин - открытая топка, то и дымоход для него имеет немаленькое сечение, и точно также, и даж поболее, как и вентканалы "высасывает" воздух из дома. А т.к. притока по факту нет, каналы "сами решают" кому работать на вытяжку, кому на приток. Я понимаю, что приток для камина важен. И у нас так вышло что приток сделали сразу из нескольких комнат в камин, чтоб не сосал из одной, но вонь и дым попадает независимо от того, горит камин или нет. Даже если я камином не пользуюсь неделю, то всё равно попадает вся хрень ко мне. Выше написал. Для начала, шоб не громить дом: :D 1. Поставить окна в режим микропроветривания 2. Заклеить вентрешетки на вентканалах с обратной стороны бумагой/скотчем на 1/3-1/2. Тем самым уменьшите "аппетит" вытяжных каналов, соотв. потребуется меньший объем приточного воздуха. Окна спасают только в режиме полного проветривания. Ну разве что попробовать во всем доме, на первом этаже окна поставить в режим микропроветривания. Сегодня это попробую. По поводу вент-каналов, то на вытяжке стоит клапан, который полностью перекрывает вытяжку когда она не работает. А в самом вент канале стоит вентилятор. Дайте размер топки камина и примерный объем комнаты где он установлен. Это я к тому, что отдельный приток с улицы для открытого камина не всегда необходим. В разе закрытой топки (со стеклом/дверкой), на персональную приточку для нее можно вообще забить. Фото кидал в прошлом посте. Когда делали вытяжку для камина (её пришлось переделывать, в связи с криворукостью установщиков, то установщики делали замеры, и вроде как не было нужды в дополнительном притоке, тем более, как я уже писал, камин берет воздух из двух комнат (еще одна комната за стеной с камином) Да запросто. :D Заткнуть тряпкой, но лучше на крыше. При затычке на входе (в доме) каналы будут выстуживаться холодным воздухом, соотв. охлаждать часть стены. Не исключено образования конденсата. Хочу рискнуть закрыть на крыше, поскольку есть мысль, что есть дыры в стене с вентканалами, такое ощущение, что когда ставили лестницу, то пробили или дюбелями, или арматурой стену насквозь до вентканала, и попали в него, и через эти отверстия и затягивает в комнату, поскольку в саму кухню, где расположены каналы вентиляции и вытяжки нет вони и дыма, только под лестницей. Вентиляцию в кухне уж как-то порешаем, будем время от времени открывать окно на проветривание, все равно лучше, чем вонь и дым. Ну и если закрывать, то закрывать все каналы, и вытяжку в том числе? Тут тока предположение. Возможно имеются неплотности/трещины, попросту говоря дырки за деревянной вагонкой, даже от того же крепежа оной. Там на стене наклеен бамбук, а вот сама лестница (её металлическое основание - швеллер, крепится к стене, правда не знаю как и где (разбирать лестницу не хочу), и собственно из-за этого и возникла мысль, которую описал выше, на счет пробитых вентканалов. (хрен его знает, или это так может быть). Вот как-то так. Посилання на коментар Поділитися на інших сайтах More sharing options...
Seymur Опубліковано: 30 листопада 2016 Автор Поділитись Опубліковано: 30 листопада 2016 (змінено) ...Та чёрт его знает, как это выяснить? Ну, походите со свечкой, что ли. Может быть по наклону пламени получится узнать. Или ароматической палочкой - она дает постоянную тонкую струйку дыма... Найдите отток воздуха и тогда полнота понимания картины(приток-то нам известен) позволит выработать правильное решение. ...установщики делали замеры, и вроде как не было нужды в дополнительном притоке, тем более, как я уже писал, камин берет воздух из двух комнат... Вот интересно что они там мерили. Камин будет брать воздух из комнат только в том случае, если в комнаты тоже будет поступать откуда-то воздух. К камину, имхо, по-любому нужно было делать внешний подвод воздуха. Или организовывать вентиляцию через рекуператор. И, котлу тоже нужно воздуха немало. Змінено 30 листопада 2016 користувачем Seymur Посилання на коментар Поділитися на інших сайтах More sharing options...
SON Опубліковано: 30 листопада 2016 Поділитись Опубліковано: 30 листопада 2016 Хочу сделать приток свежего воздуха правильно. Удаление уплотнителей - не вариант, делать, так делать нормально. По большому счету функционально одинаково, дырка/щель на улицу. :D Стеновые клапаны конечно имееют бОльшую пропускную способность, но тож не безграничную. потом увидел рекуператор Прана, заинтересовался! Вы никогда не "подружите" механическую вентиляцию с естесственной. Праны и подобные штуки хороши когда работают в паре на одну обособленную комнату. Размер каналов - кирпич на кирпич, вроде как. Если это внутренний фактический размер - то это очень дохрена. :D В четыре раза больше необходимого. Обычный размер вентканалов 1/2*1/2 кирпича (140*140 мм). Прояснить просто, засунув зеркальце или фотик в канал. Сколько всего каналов в доме? Вытяжка - да, кухонный зонт, При пользовании им приоткрывать окошко в любой комнате, других вариантов нет. рядом с ним вент канал с вентилятором, который вообще никак не помогает в этой проблеме. Крутить крутит, но толку от него никакого. www.stroimdom.com.ua/forum/showthread.php?t=158125 Я понимаю, что приток для камина важен. Для закрытой топки, при организованной приточке на весь дом, в Вашем случае вообще не актуален. Ну разве что попробовать во всем доме, на первом этаже окна поставить в режим микропроветривания. Сегодня это попробую. Конечно нужно пробовать. Спасение утопающих.... :D Хочу рискнуть закрыть на крыше, Сразу все затыкать не стоит. Там на стене наклеен бамбук, а вот сама лестница (её металлическое основание - швеллер, крепится к стене, правда не знаю как и где (разбирать лестницу не хочу), . Нужно избавиться от обратной тяги в каналах, тогда проблема с паразитной тягой из-под лестницы снимется автоматически. И ничо не будет нужно разбирать Посилання на коментар Поділитися на інших сайтах More sharing options...
SON Опубліковано: 1 грудня 2016 Поділитись Опубліковано: 1 грудня 2016 Для StNick. 1 Посилання на коментар Поділитися на інших сайтах More sharing options...
StNick Опубліковано: 2 грудня 2016 Поділитись Опубліковано: 2 грудня 2016 Для StNick. [ATTACH]539444[/ATTACH] Спасибо! а что єто белой наполнитель? с виду как пенопласт. А нет фото еще прохода саміх стропил? Посилання на коментар Поділитися на інших сайтах More sharing options...
SON Опубліковано: 2 грудня 2016 Поділитись Опубліковано: 2 грудня 2016 Мина замедленного действия. :D Посилання на коментар Поділитися на інших сайтах More sharing options...
StNick Опубліковано: 2 грудня 2016 Поділитись Опубліковано: 2 грудня 2016 т.е. короб только в месте прохода стропилки или лучше короб на всю высоту кровли от основания до конька? Посилання на коментар Поділитися на інших сайтах More sharing options...
Рекомендовані повідомлення
Створіть акаунт або увійдіть у нього для коментування
Ви маєте бути користувачем, щоб залишити коментар
Створити акаунт
Зареєструйтеся для отримання акаунта. Це просто!
Зареєструвати акаунтУвійти
Вже зареєстровані? Увійдіть тут.
Увійти зараз