Igor_M Опубліковано: 15 квітня 2015 Автор Поділитись Опубліковано: 15 квітня 2015 т.е. пар она НЕ пропустит ( швы эбоксидной затиркой ) (сама плитка паро не пропускной материал ) Сама плитка как раз паропроницаемый материал... Швы эпоксидкой... да еще и в подвальных технических помещениях? Это ж непозволительная роскошь....:D Такую затирку применяют в помещениях, где нужна хорошая гироизоляция... ну и там, где ТП тоже рекомендуют... Там где в щелях ЭППС находится ЦП раствор мостик холода Ну это так придратся ( ЭППС с четвертями ) Хотя фасадчики кричат что в стыки ( щели ) утеплителя нельзя допускать раствор или клей ( мостик холода ) Я вообще предпочитаю ЭППС клеить на клей-пену (где это применимо). А фасадчики таки правы - в швах ни раствора (клея), ни даже ПЕНЫ быть не должно. Поверхность должна быть максимально однородной. Поэтому лучше использовать ЭППС с четвертью... причем в два слоя (с перекрытием стыков). Я так сделал утепление цоколя (может читали).;) Я по этому поводу всегда вспоминаю один из "полезных" советов: "Мыльница на резиновой присоске будет держаться на кафельной плитке лучше, если присоску предварительно намазать клеем, а потом прикрутить к стене саморезами с шайбами в предварительно забитые в стену дюбеля...":lol: Посилання на коментар Поділитися на інших сайтах More sharing options...
yriy1 Опубліковано: 15 квітня 2015 Поділитись Опубліковано: 15 квітня 2015 Сама плитка как раз паропроницаемый материал... Очень глубокое заблуждение Не люблю проявления сырости - по этой причине отказался от подвала Посилання на коментар Поділитися на інших сайтах More sharing options...
Igor_M Опубліковано: 15 квітня 2015 Автор Поділитись Опубліковано: 15 квітня 2015 Итак, день второй - завершение работ по стяжке в подвале. На фото 1 - тот самый "армированный" участок. Честно говоря я надеялся, что они как-то приподнимут сетку и поставят ее на какие-то подпорки... Мы же уже все знаем, что сетка (ну и арматура тоже) "работает" только в том случае, если она находится от края на расстоянии не менее 3см (ну или около того в зависимости от толщины "плиты"). Увидев такую картину, поначалу удивился... Но парни меня успокоили и рассказали про свое "ноу-хау"... Они засыпают сверху раствор, разравнивают слоем 2-3см (сколько надо), потом "подрывают" сетку и кладут ее сверху... ну а потом уже наваливают раствор по полной. Вот так получается "армированная" часть...;) На последующих фото - результат на втором этаже. Там за день уже все "схватилось" в достаточной степени, чтоб уже можно было смело ходить. Первые шаги по уже почти "полу" это я вам скажу незабываемые впечатления!!! Причем мне она показалась идеально ровной... Но оно и неудивительно после продолжительного хождения по "бугристой" черновой стяжке... Посилання на коментар Поділитися на інших сайтах More sharing options...
Igor_M Опубліковано: 16 квітня 2015 Автор Поділитись Опубліковано: 16 квітня 2015 На приаттаченных фото - результат на 1-м этаже. Если присмотреться, то на фото 3 виден деформационный шов, который идет от правого внутреннего угла налево с столбу. Кстати я был очень недоволен, когда увидел, что на границе между ТП кухни (чуть далее от другого внутреннего угла эркера рядом с дверью на террасу) и "обычным" полом ребята удалили мою ленту, которую я уложил аж до самого основания (т.е. она "разрывала" даже слой ЭППС). Они на этом месте сделали "разрыв" своим способом - прорезают свежую еще выровненную стяжку правилом на 4-5см и просто "втыкают" туда полоску вспененного полиэтилена, остатки сверху обрезают и потом затирают полотером. Так вот, эту линию они провели не точно по "границе" теплого пола, а "наискось", т.е. начали правильно (от правого угла), а потом пошли под углом и залезли на зону теплого пола почти на 20см... Я конечно не думаю, что это фатально... но неприятно все-таки... На фото 4 - санузел 1-го этажа. Вот там слева чуть поодаль виднеется кусок ЭППС, который был мною уложен на трапик аварийного слива. "Технология" сработала!!! 3 Посилання на коментар Поділитися на інших сайтах More sharing options...
Igor_M Опубліковано: 20 квітня 2015 Автор Поділитись Опубліковано: 20 квітня 2015 Во вложениях - вид стяжки в подвале. На самом деле в самую последнюю очередь делали первый этаж, просто я решил делать "фотосессию" последовательно - сверху вниз...;) На фото 1 как раз спуск в подвал. Там у меня коридорчик такой "сегментированный", что по-хорошему нужно было почти каждый квадратный метр укладывать деформационные ленты... Решили сделать по-минимуму, так как в принципе площади небольшие... и если вдруг и треснет где-нибудь не там, где "нужно", то страшного ничего не случится... Кстати в подвале с "при стенным" монтажом лент парни немного помучились - одно дело гвоздями к газобетону прибивать, а другое - к полнотелому кирпичу... и к бетонным блокам фундамента...:D А вот к лестнице (которая из бетона) вообще у них не получилось, поэтому тут "стяжечники" действовали по своей технологии - полоску прижимают ногой, присыпают раствором и... далее как по маслу... Кстати вот слева вход в котельную. Я придумал и там сделать пол ниже на 5мм, что собственно ребята и сделали. Потом, когда покупал противопожарную дверь, как-то не задумывался и дверь привезли... "с порогом". Т.е. все мои "размышлизмы" о перепадах уровней оказались в данной конкретной ситуации ни к чему... На фото 2 - большая комната подвала (громко именуемая "игровая"). Если помните, там посередине участок, армированный сеткой (типа под бильярдный стол укреплял). Так вот, геометрия комнаты такова, что деформационный шов сделали аккурат... посередине армированного участка (на фото четко видна эта линия)... На фото 3 - вид из "игровой" в коридор подвала. Только на этом фото можно насчитать 7 (семь...) деформационных швов... По поводу последних могу сказать, что в начале выполнения работ мы обсуждали - где и как проводить эти самые швы. В итоге сделали почти везде именно в тех местах, которые мы оговорили... и почти ни в одном месте точно так, как я рисовал. В-основном это касается дверных проемов - "резали" то по центру проема, то с противоположной стороны, то вообще наперекосяк... На мои замечания по этому поводу парни ответили, что это не играет особой роли, поскольку все "лопнет" еще до укладки финишного покрытия и потом подвижек уже не будет. Так оно по сути и произошло... и как показала практика за год плитка, положенная на "трещину", даже и не подумала трескаться... Посилання на коментар Поділитися на інших сайтах More sharing options...
Natalita Опубліковано: 20 квітня 2015 Поділитись Опубліковано: 20 квітня 2015 Ого, Вам стяжку вертолётом затирали? На форуме первый раз такое вижу. Видимо серьёзная бригада. Ошибаетесь,плохо смотрели Посилання на коментар Поділитися на інших сайтах More sharing options...
Igor_M Опубліковано: 20 квітня 2015 Автор Поділитись Опубліковано: 20 квітня 2015 Ну и когда уже все вроде как "залито", то не стоит расслабляться... Все ж знают, что для того, чтобы бетон (раствор) набрал требуемую прочность, необходимо после заливки провести этап "ухаживания"... Т.е. нужно создать такие условия, чтобы гидратация цемента происходила в оптимальном температурно-влажностном режиме, а именно - не создавать сквозняков, температура должна быть не ниже "Х" и не выше "Y". Памятуя свой личный опыт, когда я оставил окно открытым и у меня напротив окна обвалилась штукатурка с потолка (), на этот раз я уже таких глупостей себе не позволял...:D Я каждый день следил за "климатом" внутри дома, щупал стяжку на предмет температуры и влажности... Должен сказать, что все эти два дня в доме не было ни повышенной влажности, т.е. никаких потеков на окнах и сырости на стенах (как описывают многие после заливки стяжек...) И вот на третий день я решил, что уже пора "вмешаться"...;) По ощущениям было, что верхний слой уже пересыхает... Для того, чтобы "выровнять градиент влажности", я закупил в Анжио полиэтиленовую пленку...пришлось потратиться... (все-таки 250м2). По своему обыкновению, "спроектировал карту оптимального раскроя"......и полностью накрыл все полы. Процесс - на фото 1. Каждый день утром и вечером приезжал и смотрел - стяжка под пленкой заметно набирала влаги. Места, на которых уже появлялись "капельки" на обратной стороне пленки, я периодически "проветривал". И так больше недели. Когда уже стало очевидно, что влажность "выровнялась" и под пленкой стяжка стала уже не такой мокрой (т.е. более светлой на вид), я приступил к "дорезанию" деформационных швов там, где я посчитал нужным добавить. А именно - пропустили "разрыв" в одном из дверных проемов (фото 2). А также в двух комнатах прямоугольной формы с эркерами сделал надрезы от угла эркера к противоположной стене (фото 3). Надо сказать, что резалось не очень легко - искры сыпались дай боже... После "порезки" вымел оттуда мусор (и даже "выдул", поскольку пылесоса тогда еще не было)... и заполнил щели силиконом (фото 4). У меня остался "просроченный" после ремонта в квартире - вот он в дело и пошел... Собственно общим результатом я доволен ОЧЕНЬ, что бывает со мной кране редко... Чего собственно и ВСЕМ ЖЕЛАЮ!!! 6 Посилання на коментар Поділитися на інших сайтах More sharing options...
Korni Опубліковано: 20 квітня 2015 Поділитись Опубліковано: 20 квітня 2015 ....Каждый день утром и вечером приезжал и смотрел - стяжка под пленкой заметно набирала влаги. Места, на которых уже появлялись "капельки" на обратной стороне пленки, я периодически "проветривал"..... Лучше бы водой поливали, чем проветривали. Я серьёзно. Добавлено через 1 минуту ...Надо сказать, что резалось не очень легко - искры сыпались дай боже..... Резать лучше на третий-четвертый день максимум. 1 Посилання на коментар Поділитися на інших сайтах More sharing options...
Igor_M Опубліковано: 21 квітня 2015 Автор Поділитись Опубліковано: 21 квітня 2015 Лучше бы водой поливали, чем проветривали. Я серьёзно. Если честно, то мне конечно нужно было бы исполнителя спросить - что и как делать дальше... Очень много читал разного - некоторые вообще через три-четыре дня уже начинали плитку укладывать... Ну у меня до плитки еще далеко было тогда, поэтому я все-таки решил "поухаживать"...;) Тогда я все делал по наитию, но вот сейчас еще раз перечитываю СНиП по полусухой стяжке и там в разделе "УХОД..." есть такие вот слова: "Для качественной выдержки готовой стяжки необходимо производить укрытие ее полиэтиленовой пленкой или пластиковыми листами минимум в течение 7 дней. В местах соединения пленка/листы должны быть хорошо перекрыты. При необходимости, в условиях повышенной температуры и низкой влажности, дополнительно производить увлажнение поверхности стяжки в течение первых 3-5 дней. После выдерживания стяжкам надо дать высохнуть естественным путем, в течение максимально возможного времени. Ни при каких обстоятельствах нельзя прибегать к быстрой искусственной сушке, поскольку она очень сильно увеличивает риск растрескивания и кручения." Т.е. получается, что я все делал правильно... Окна все закрыл, тяга от естественной вентиляции в это время года сами знаете какая... А вот пленкой накрыл не сразу, а на второй (или третий?) день... и потому, что стал замечать, что верхний слой начал становиться сухим (т.е. более светлым)... А не поливал я потому, что как раз и не было у меня "повышенной температуры и низкой влажности"... А "проветривал" это громко сказано - не зря ведь я в кавычки взял...;) Я просто в тех местах, где на пленке снизу уже капли воды образовывались, снимал пленку на час-два, а потом опять накрывал. На следующий день в этих местах уже капель не было... Там, где была "роса" - мелкие капельки по всей площади, я ничего не открывал... и через пару дней эта роса пропадала - видимо ее назад "засасывало"...:D Резать лучше на третий-четвертый день максимум. Ну это я понял в тот момент, когда начал резать... Твердая была, шо капец! Если честно, то меня это тогда сильно порадовало даже... ...поскольку не взирая на массу прочитанного у меня все-таки были сомнения насчет этой "полусухой" технологии и все время мучился - а не зря ли я отказался от традиционных "мокрых процессов"... Теперь точно знаю - не зря! И думается, что многие, прочтя мою историю о заливке стяжки, смогут сделать свой выбор более осознанно и аргументированно. А по поводу "порезки" в том же таки СНиПе написано такое вот: "Деформационные швы - выполняются для снятия внутреннего напряжения при усадке и исключения неконтролируемого образования трещин. Пропил стяжки шириной 3-4 мм выполняется на 1/3 толщины стяжки не позднее 24-72 часов после ее укладки. Усадочные швы нарезаются по осям колонн и стыкуются с вершинами ромба из швов, которыми обходится колонна." Получается, что тут я "о***ав"... Но... спасает то, что это было только в четырех местах... да и тех, где исполнитель убеждал меня в ненужности этих швов... за исключением "разрыва" в дверном проеме в котельную (это на фото 2 в посте 4079), но там в-общем не принципиально где бы оно треснуло, поскольку коридорчик меньше одного метра шириной... Если быть честным, то я там так и не смог пропилить больше 2см (очень неудобное место)... и в итоге там так и не треснуло... PS Кстати вот еще одна интересная (и полезная) информация с того же таки ресурса - Советы для производства полусухой стяжки... Посилання на коментар Поділитися на інших сайтах More sharing options...
ScorpMax Опубліковано: 21 квітня 2015 Поділитись Опубліковано: 21 квітня 2015 Т.е. получается, что я все делал правильно... Окна все закрыл, тяга от естественной вентиляции в это время года сами знаете какая... А вот пленкой накрыл не сразу, а на второй (или третий?) день... и потому, что стал замечать, что верхний слой начал становиться сухим (т.е. более светлым)... А не поливал я потому, что как раз и не было у меня "повышенной температуры и низкой влажности"... Не переживайте всё по технологии, избыток влаги тоже не есть хорошо, а увлажнять не означает заливать водой, насколько я помню из лабораторных работ по бетону количество влаги в растворе строго регламентировано и при её увеличении качество раствора становится значительно хуже. Кстати и одна из задач пластификаторов уменьшить массовую долю воды в растворе. Посилання на коментар Поділитися на інших сайтах More sharing options...
Korni Опубліковано: 21 квітня 2015 Поділитись Опубліковано: 21 квітня 2015 .....насколько я помню из лабораторных работ по бетону количество влаги в растворе.... При чём тут свойства жидкости (раствор) к твердому телу (стяжке)? 3 Посилання на коментар Поділитися на інших сайтах More sharing options...
ScorpMax Опубліковано: 21 квітня 2015 Поділитись Опубліковано: 21 квітня 2015 При чём тут свойства жидкости (раствор) к твердому телу (стяжке)? Цемент в растворе в результате процесса гидратации скажем просто кристаллизируется, при определённом соотношении цемента и воды данный процесс происходит оптимально, процесс довольно длительный и поливание стяжки в период схватывания приводит к заполнению пор водой что препятствует образованию кристаллов. Основная задача не дать влаге резко испариться из раствора, тоесть накрыть плёнкой, засыпать влажной стружкой, не устраивать сквозняков. Вся загвоздка в том что данное оптимальное соотношение цемента и воды приводит нас к полусухому раствору, который надо ещё и утрамбовать тоесть нужен "вертолёт" или иные способы уплотнения раствора. Мы говорим о стяжке внутри помещения где температура относительно стабильна, а когда поливают в 30-ти градусную жару бетон или раствор на улице да ещё водой из скважины, при этом получая отстрел верхнего слоя из за резкого перепада температуры - проще накрыть. Посилання на коментар Поділитися на інших сайтах More sharing options...
Korni Опубліковано: 21 квітня 2015 Поділитись Опубліковано: 21 квітня 2015 (змінено) Цемент в растворе в результате процесса гидратации скажем просто кристаллизируется,....Если бы Вы привели диаграмму этого процесса во времени, то не называли бы стяжку "раствором" спустя два дня. "Мокрая" она была или "полусухая" при устройстве - не важно. Змінено 21 квітня 2015 користувачем Korni Посилання на коментар Поділитися на інших сайтах More sharing options...
ScorpMax Опубліковано: 21 квітня 2015 Поділитись Опубліковано: 21 квітня 2015 Если бы Вы привели диаграмму этого процесса во времени, то не называли бы стяжку "раствором" спустя два дня. "Мокрая" она была или "полусухая" при устройстве - не важно. Да не называл я стяжку раствором, просто написал что процесс кристаллизации довольно длительный и воды достаточно в самом РАСТВОРЕ для набирания прочности СТЯЖКИ, главное не дать ей испариться раньше времени что и сделал Игорь накрыв её плёнкой. А поливание стяжки это обычно уже контрмеры, когда прое____. По поводу "мокрая" или "полусухая" - главное чтоб сделаны по технологии. Хотя как показывает практика (да и теория тоже) полусухая при одинаковых начальных соотношениях цемента и наполнителя (не воды ) более твёрдая. Игорь прорезая пазы убедился в этом похоже . Посилання на коментар Поділитися на інших сайтах More sharing options...
Korni Опубліковано: 21 квітня 2015 Поділитись Опубліковано: 21 квітня 2015 Да не называл я стяжку раствором.... Ну, Вам виднее, что имелось в виду ....а увлажнять не означает заливать водой, насколько я помню из лабораторных работ по бетону количество влаги в растворе строго регламентировано и при её увеличении качество раствора становится значительно хуже.... Посилання на коментар Поділитися на інших сайтах More sharing options...
sov1178 Опубліковано: 22 квітня 2015 Поділитись Опубліковано: 22 квітня 2015 просто написал что процесс кристаллизации довольно длительный Наверное проблема в том, что "процесса кристаллизации" при затвердевании бетона нет Бетон затвердевает из-за химической реакции, причем весь процесс можно поделить на два этапа, приведу цитату: Схватывание - это достаточно непродолжительная по времени стадия, которая длится в первые 24 часа жизни смеси. Важно заметить, что время схватывания во многом зависит от температуры воздуха. К примеру, если окружающая температура составляет +20С, то цемент начинает схватываться приблизительно спустя 2 часа после замешивания цементного раствора. Схватывание заканчивается через 3 часа. Таким образом, процесс схватывания цемента длится всего 1 час. Однако, если окружающая температура близка к 0С, то процесс может продлиться от 15 до 20 часов. При 0С схватывание только начинается через 6–10 часов с момента замешивания бетона. Также на скорость схватывания можно повлиять специализированными добавками: ускоритель схватывания и замедлитель схватывания. Следует помнить, что во время всего периода схватывания цементный раствор остается подвижным, то есть на него все еще можно оказать воздействие. Здесь имеет место понятие тиксотропии. То есть пока вы воздействуете на не застывший окончательно цемент, процедура схватывания растягивается. Именно по этому принципу работают все смесители, которые постоянно «шевелят» цементные смеси, сохраняя при этом их основные качества. Твердение - это следующий процесс, наступающий сразу после схватывания цемента. По сути, твердение бетона происходит постепенно и может растянуться на годы. Описанный срок в 28 суток указывается лишь затем, чтобы определенная марка бетона гарантированно обладала определенной маркой бетона на тот или иной отрезок времени. Стоить иметь в виду, что график твердения цемента в первые несколько дней динамичный и нелинейный. Почему так происходит и что служит причиной затвердевания цемента, подробно описывает процесс гидратации. Так вот на первом этапе лишняя вода может создать проблему (потому в жидком растворе/бетоне строго регламентируется кол-во воды), на втором этапе наличие достаточного кол-ва влаги просто необходимо. И, насколько мне известно, создать переизбыток ее здесь нереально (по крайней мере в условиях стройки). Посилання на коментар Поділитися на інших сайтах More sharing options...
ScorpMax Опубліковано: 22 квітня 2015 Поділитись Опубліковано: 22 квітня 2015 Наверное проблема в том, что "процесса кристаллизации" при затвердевании бетона нет Бетон затвердевает из-за химической реакции, причем весь процесс можно поделить на два этапа, приведу цитату: Да Вы несомненно правы всё дело в химической реакции в результате которой- цитата: - Благодаря химическим реакциям с водой уже через несколько минут как на поверхности зерен, так и в воде возникают иглообразные кристаллы. Через 6 часов образуется уже так много кристаллов, что между цементными зернами возникают пространственные связи и так далее где то в районе 100 лет Добавлено через 16 минут Ну, Вам виднее, что имелось в виду Имелось в виду, что воды изначально достаточно в растворе, главное не дать ей "сбежать", зачем насыщать стены потолки избыточной влагой поливая стяжку, если проще накрыть плёнкой и заставить влагу в растворе работать там где надо в данный момент, а поливая водой стяжку и изменяя количество влаги в ней спонтанно, мы изменяем скорости протекания реакций, что на моё субъективное мнение нежелательно: - тише едешь дальше будешь. Посилання на коментар Поділитися на інших сайтах More sharing options...
Igor_M Опубліковано: 23 квітня 2015 Автор Поділитись Опубліковано: 23 квітня 2015 ... чаще всего новый спор... Это яркая тенденция данного форума (возможно везде точно так же), поэтому я предпочел постоять в стороне и подождать пока народ "выпустит пар"...;) Вообще я тоже поспорить люблю... и пытаюсь, чтобы мое слово было последним (конечно, если аргументов хватает)... Но есть на форуме профессионалы этого дела, слово которых "последнее после самого последнего"...:D Я вот пока что собираюсь с мыслями и думаю - о чем поведать в следующей главе своей "повести о печальном..."...:D Наверное, сделаем паузу (но не рекламную) и немного поразглагосьствую на садово-огородные темы, тем более что сезон уже почти в разгаре. Расскажу свои прошлые "достижения" - возможно это поможет кому-нибудь избежать подобных ошибок... Посилання на коментар Поділитися на інших сайтах More sharing options...
Korni Опубліковано: 23 квітня 2015 Поділитись Опубліковано: 23 квітня 2015 ....Имелось в виду, что воды изначально достаточно в растворе, главное не дать ей "сбежать", зачем насыщать стены потолки избыточной влагой поливая стяжку, если проще накрыть плёнкой и заставить влагу в растворе работать там где надо в данный момент, а поливая водой стяжку и изменяя количество влаги в ней спонтанно, мы изменяем скорости протекания реакций, что на моё субъективное мнение нежелательно: - тише едешь дальше будешь. Главное не потерять при этом нить начала спора. А то зачет не поставят. Речь шла о "сушке". Посилання на коментар Поділитися на інших сайтах More sharing options...
ScorpMax Опубліковано: 24 квітня 2015 Поділитись Опубліковано: 24 квітня 2015 Главное не потерять при этом нить начала спора. А то зачет не поставят. Речь шла о "сушке". Поднятие плёнки для "выветривания" конденсата наверное перебор, неспорю. Но что то мне подсказывает, что всё проходило под строгим контролем чуть ли не с влагомером:). По поводу зачёта, Вы не хуже меня знаете, что зачёт у нас во многих вузах, далеко не всегда отображает уровень знаний абитуриента, особенно если это второе высшее:sad::sad::sad:. Посилання на коментар Поділитися на інших сайтах More sharing options...
Korni Опубліковано: 24 квітня 2015 Поділитись Опубліковано: 24 квітня 2015 Поднятие плёнки для "выветривания" конденсата наверное перебор, неспорю.... Именно об этом речь. Свои зачеты я сдавал, бетонируя взлётку для Буранов. Посилання на коментар Поділитися на інших сайтах More sharing options...
Igor_M Опубліковано: 27 квітня 2015 Автор Поділитись Опубліковано: 27 квітня 2015 Поднятие плёнки для "выветривания" конденсата наверное перебор, не спорю. Но что то мне подсказывает, что всё проходило под строгим контролем чуть ли не с влагомером. Честно скажу, что таких мест с избытком (на мой взгяд) влаги было не так уж и много... Т.е. если суммарно наберется 20м2, то это не так уж и много. Да и "проветривал" я максимум час, т силы - два... Основная цель была у меня при этом - добиться РАВНОМЕРНОЙ влажности по всей площади стяжки. Вполне могло быть, что в какую-то "заправку" в машину плеснули лишней воды (человеческий фактор ведь никто не отменял...), поэтому некоторые места получились не такими уж "полусухими". Ну и выполнялось мною лично под моим же личным строгим контролем... правда, без влагомера.:D По поводу зачёта, Вы не хуже меня знаете, что зачёт у нас во многих вузах, далеко не всегда отображает уровень знаний абитуриента, особенно если это второе высшее. Ну зачет больше уже имеет отношение к студенту...;) И я как никто знаю, что зачет зачету рознь - как-никак больше 10 лет преподавательского стажа в КПИ. Так вот, у меня зачет ВСЕГДА отображал уровень знаний моих студентов, иными словами - "нет знаний - нет зачета"... Мне за прием лабораторки как-то родители предлагали 50 баксов (а в 1990 году это были деньжищи... при моей зарплате с надбавкой за научную работу получалось СЕМЬ долларов в месяц...)... И когда я их "послал", то обо мне пошла молва ... "это э сколько он за зачет берет, если за лабораторную работу полтинника ему мало?":oops: Ответ на самом деле простой - столько же... т.е. НИСКОЛЬКО... Мне важно понимать, что я выполнил свою работу хорошо... И вы знаете, когда случайно встречаю своих студентов на улице, то они всегда говорят практически одно и то же: "Вот вы нас тогда гоняли и мы... а вот теперь мы понимаем ... и спасибо вам...":o Именно об этом речь. Свои зачеты я сдавал, бетонируя взлётку для Буранов. О-о-о-о-о... так мы с вами "приложились" к этому историческому полету. Я в свое время разрабатывал программу по расчету прочности на изгиб плоскостей Бурана, а также по контролю качества керамических пластин обшивки. Работал на на приборостроительном факультете на кафедре неразрушающего контроля качества. Писалось все на ассемблере, тестировали в ЦАГИ (в Жуковском)... Тогда это были фантастические месяцы... почти как в кино... 4 Посилання на коментар Поділитися на інших сайтах More sharing options...
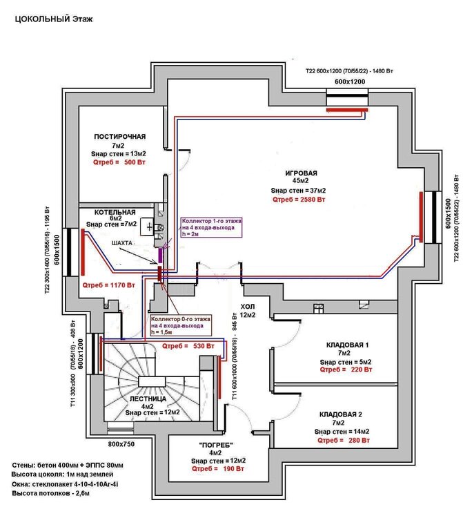
Igor_M Опубліковано: 29 квітня 2015 Автор Поділитись Опубліковано: 29 квітня 2015 (змінено) Пока еще свежо предание о реализации системы ОВК, то добавлю совсем "свежий" материал на эту же тему...;) А все начало крутиться в голове после идеи все-таки оборудовать в подвале постирочную в помещении рядом с котельной (кто читал тему, тот наверное вспомнит "первопричину" такого решения). И к тому же я хотел в подвале сделать нечто наподобие "погреба" (это помещение под входным крыльцом). И комнатку рядом с погребом (на рисунке внизу это называется "Кладовая 2") я определил как "чулан", т.е. холодная кладовка. И для того, чтобы создать там подходящий "микроклимат", я планирую в коридорчике установить дверь, за которой получится такой себе переходной "тамбурочек". И все бы ничего, да вот только радиатор в том коридорчике узком стоит шириной 90см... что никак не позволяет поставить перегородку с дверью. Поэтому родилась мысль перенести этот радиатор в Постирочную, а на его место установить "вертикальный" радиатор 400х900. Чтоб его максимально придвинуть к углу, нужен радиатор с центральным нижним подключением. Таковой нашелся только у Vogel&Noot (правда срок поставки полтора месяца, но мне же не горит...). Таким образом вырисовался план модернизации системы отопления. Внизу - два рисунка. Первый - как оно было, второй - как оно должно стать... На втором оранжевыми эллипсами выделены "модернизируемые участки":oops: Ну и поскольку работы будут выполнять специалисты, то как-то стыдно (и неудобно) их беспокоить по мелочам и "нагружать" прокладкой одной трассы... И стал я параллельно "думать и гадать - ну чтоб его такого предпринять... ну чтоб его такого сотворить..." с системой водоснабжения (и канализации само собой)... Змінено 29 квітня 2015 користувачем Igor_M Посилання на коментар Поділитися на інших сайтах More sharing options...
ScorpMax Опубліковано: 29 квітня 2015 Поділитись Опубліковано: 29 квітня 2015 И к тому же я хотел в подвале сделать нечто наподобие "погреба" (это помещение под входным крыльцом). И комнатку рядом с погребом (на рисунке внизу это называется "Кладовая 2") я определил как "чулан", т.е. холодная кладовка. И для того, чтобы создать там подходящий "микроклимат", я планирую в коридорчике установить дверь, за которой получится такой себе переходной "тамбурочек". Снова вкину пять копеек Хотя думаю уже поздно (учитывая разрыв во времени между событиями и повестью) Исходные данные теже примерно, бетонный подвал, пол бетонный, гидроизоляция с низу и по периметру, отопление отсутствует. Результат хранения картошки, буряка, моркови отрицательный - маленькая влажность высыхает продукция за пару недель превращается в "сушку":( Пришлось при планировании террасы, разместить под ней погреб, без бетонного пола и гидроизоляции стен. 3 Посилання на коментар Поділитися на інших сайтах More sharing options...
sov1178 Опубліковано: 29 квітня 2015 Поділитись Опубліковано: 29 квітня 2015 Пришлось при планировании террасы, разместить под ней погреб, без бетонного пола и гидроизоляции стен. +1 в настоящем погребе пол должен быть обычный глиняный, стены без ГИ наверное делать большого смысла нет. По крайней мере у родителей подобным образом сделано с влажностью полный порядок, есть некоторые вопросы по температуре летом, но там причина в особенностях конструкции. Посилання на коментар Поділитися на інших сайтах More sharing options...
Рекомендовані повідомлення
Створіть акаунт або увійдіть у нього для коментування
Ви маєте бути користувачем, щоб залишити коментар
Створити акаунт
Зареєструйтеся для отримання акаунта. Це просто!
Зареєструвати акаунтУвійти
Вже зареєстровані? Увійдіть тут.
Увійти зараз