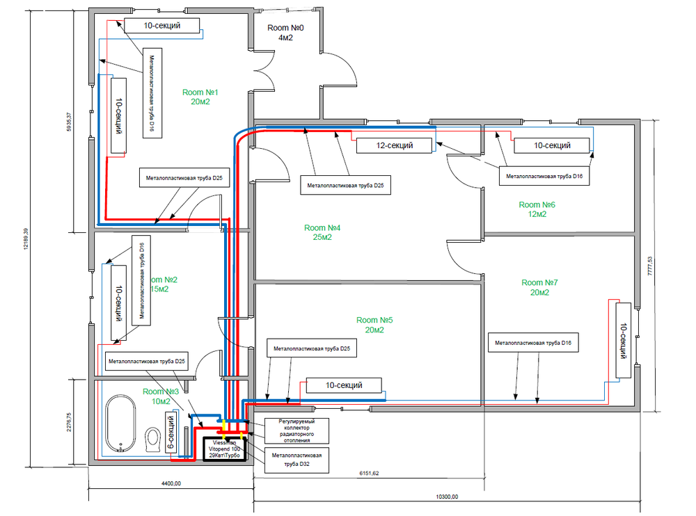
ruslan_krv Опубліковано: 12 жовтня 2016 Поділитись Опубліковано: 12 жовтня 2016 (змінено) Подскажите как модернизировать старую систему отопления в частном доме (1986год постройки, 1 этаж). Пирог стены кирпич ракушяк, воздушка, силикатный кирпич, минеральная вата 5 см. Сейчас используется система отопления открытого типа с чугунными батареями и котлом Noname. Планирую все переделать используя металопластиковые трубы с бетонировкой и утеплением в пол, а также замену радиаторов на алюминевые.Уже приобретен котел настенный Viessman Vitopend 1000Wh1d, 29квт турбо. Ниже предполагаемая новая схема разводки. Будет ли работать такая система? В схеме присутствуют регулируемые коллекторы так как в будущем планирую еще дополнительно сделать теплый пол в Room №1,2,3. В этой схеме есть 4 контура. Не лучше будет если сделать всего 2 контура: 1-ый для Room 1,2,3, второй для Room 4,5,6,7. Спасибо Змінено 12 жовтня 2016 користувачем ruslan_krv Не прикрепил фото Посилання на коментар Поділитися на інших сайтах More sharing options...
romi9999 Опубліковано: 12 жовтня 2016 Поділитись Опубліковано: 12 жовтня 2016 ...ракушяк, воздушка, силикатный кирпич... Спасибо задуть воздушку. 2 Посилання на коментар Поділитися на інших сайтах More sharing options...
ruslan_krv Опубліковано: 12 жовтня 2016 Автор Поділитись Опубліковано: 12 жовтня 2016 задуть воздушку. Задували , по моему бесполезно Посилання на коментар Поділитися на інших сайтах More sharing options...
ruslan_krv Опубліковано: 13 жовтня 2016 Автор Поділитись Опубліковано: 13 жовтня 2016 Уважаемые гуру систем отопления, помогите, пожалуйста, дельным советом Посилання на коментар Поділитися на інших сайтах More sharing options...
ts3 Опубліковано: 13 жовтня 2016 Поділитись Опубліковано: 13 жовтня 2016 Будет ли работать такая система? Работать будет В схеме присутствуют регулируемые коллекторы так как в будущем планирую еще дополнительно сделать теплый пол в Room №1,2,3 Если размеры радиаторов подобраны на низкотемпературный режим работы, то контуры теплого пола подключать можно. Если на высокотемпературный - на ТП отдельную гребенку нужно будет установить. В этой схеме есть 4 контура. Не лучше будет если сделать всего 2 контура: 1-ый для Room 1,2,3, второй для Room 4,5,6,7. Лучше для чего? На комфорт в помещении это вообще никак не повляет. Успехов в реализации! 1 Посилання на коментар Поділитися на інших сайтах More sharing options...
ruslan_krv Опубліковано: 13 жовтня 2016 Автор Поділитись Опубліковано: 13 жовтня 2016 Спасибо за комментарий. А как по вашему мнению эту мою "новую схему" реализовать более эффективно-экономичней. Может быть диаметр труб уменьшить-увеличить. К приммеру вместо D25 заменить D20. Или вообще везде допустимо использовать только D16? Посилання на коментар Поділитися на інших сайтах More sharing options...
ts3 Опубліковано: 13 жовтня 2016 Поділитись Опубліковано: 13 жовтня 2016 Спасибо за комментарий. А как по вашему мнению эту мою "новую схему" реализовать более эффективно-экономичней. Может быть диаметр труб уменьшить-увеличить. К приммеру вместо D25 заменить D20. Или вообще везде допустимо использовать только D16? На глаз - можно до 20 уменьшить, но нужно считать.. 1 Посилання на коментар Поділитися на інших сайтах More sharing options...
SON Опубліковано: 13 жовтня 2016 Поділитись Опубліковано: 13 жовтня 2016 система отопления открытого типа с чугунными батареями А шо не так? Цель модернизации? Дизайн/феншуй/хреново греет? замену радиаторов на алюминевые. Чего по утеплению чердака? Потому как есть преценденты, когда после такой модернизации увеличивался расход газа. 2 Посилання на коментар Поділитися на інших сайтах More sharing options...
ruslan_krv Опубліковано: 13 жовтня 2016 Автор Поділитись Опубліковано: 13 жовтня 2016 Цель модернизации - экономия, имеющийся сейчас котел Noname, атмосферник расход зимой(февраль) был окло 800 м3 в месяц. Несколько лет назад был приобретен котел Viessman Vitopend 100 WH1D турбо 29 Квт. Интегрировать его с имеющейся системой отопления не возможно, да и не сильно хочется. Чердак Room 1,2,3 деревяное перекрытие, утеплен 20 см рулонной ваты. Остальное панельное перекрытие, потолок гипсокартон-> 5-10см пространство->панель->+- 1oсм керамзит. Добавлено через 13 минут Забыл один озвучить один нюанс, этот агрегат Noname(Made in Brovary), требует чистки от сажы!!!! Раз в 2-3месяца забивается решетка через которую отводятся газы, пропадает тяга, и в помещении стойкий запах гари. Посилання на коментар Поділитися на інших сайтах More sharing options...
SON Опубліковано: 13 жовтня 2016 Поділитись Опубліковано: 13 жовтня 2016 Цель модернизации - экономия, Не получится ощутимой экономии. Конденсатник ессно будет экономней, но не настолько. Room 1,2,3 деревяное перекрытие, утеплен 20 см рулонной ваты. Остальное панельное перекрытие, потолок гипсокартон-> 5-10см пространство->панель->+- 1oсм керамзит. Так понял, чердак пристройки утеплен более/менее. Остальная площадь? Остаются вопросы по стенам, в частности по возд. прослойке. Дайте пирог стены, что есть по факту, в см. По Вашему малюнку даж на вскидку - в ванной будет прохладно. 1 Посилання на коментар Поділитися на інших сайтах More sharing options...
ruslan_krv Опубліковано: 13 жовтня 2016 Автор Поділитись Опубліковано: 13 жовтня 2016 Остальная площадь тоже будет утепляться но я думаю уже следующим летом. Пирог стен. Штукатурка пеcчанная->ракушечник20см->воздушка задутая не знаю чем какой-то пенной(0-5 см)->силикатный кирпич->5 см каменной ваты->силиконовая краска Посилання на коментар Поділитися на інших сайтах More sharing options...
SON Опубліковано: 13 жовтня 2016 Поділитись Опубліковано: 13 жовтня 2016 Пирог стен. Штукатурка пеcчанная->ракушечник20см->воздушка задутая не знаю чем какой-то пенной(0-5 см)->силикатный кирпич->5 см каменной ваты->силиконовая краска Силикатный кирпич в пол-кирпича или на ребро? Завтра прикину потери по стенам. Старая система совсем страшная? 1 Посилання на коментар Поділитися на інших сайтах More sharing options...
ruslan_krv Опубліковано: 14 жовтня 2016 Автор Поділитись Опубліковано: 14 жовтня 2016 Силикатный кирпич на ребро. СТарая система "страшноватая", но не скажу что со все. Реализована в виде самотечной на 2 крыла(пристройка и остальная часть дома) с расширительным баком и циркуляционным насосом. Батареи чугунные по 10 секций. Сказать что старая система сильно плохая не могу, но расход за прошлую зиму с сентября по конец апреля 3000м3. Добавлено через 2 минуты Еще одна цель реконструкции системы отопления, это использование газового и электрического котлов. Планирую использовать эл. котел для отопления ночью. Субсидию на газ не дали . По этому есть решение вложить деньги в средства для экономии расходов. Посилання на коментар Поділитися на інших сайтах More sharing options...
Слободарий Опубліковано: 14 жовтня 2016 Поділитись Опубліковано: 14 жовтня 2016 Почему выбрали алюминиевые радиаторы а не стальные? Алюминиевые завоздушивают систему и при определенных условиях шумят. 1 Посилання на коментар Поділитися на інших сайтах More sharing options...
ruslan_krv Опубліковано: 14 жовтня 2016 Автор Поділитись Опубліковано: 14 жовтня 2016 Честно еще на 100% не определился. Уже посматривая на металические 22 типа. А как алюминиевые могут завоздушивать систему? Посилання на коментар Поділитися на інших сайтах More sharing options...
SON Опубліковано: 14 жовтня 2016 Поділитись Опубліковано: 14 жовтня 2016 Честно еще на 100% не определился. Пока тут почитайте www.stroimdom.com.ua/forum/showthread.php?t=192248 Уже посматривая на металические 22 типа. Лучше смотреть на биметаллические. 1 Посилання на коментар Поділитися на інших сайтах More sharing options...
ruslan_krv Опубліковано: 14 жовтня 2016 Автор Поділитись Опубліковано: 14 жовтня 2016 Почитал www.stroimdom.com.ua/forum/sh...d.php?t=192248. Из прочтенного насколько я понял следует вывод: 1. Дешевле всего дрова. Но к сожалению или к счастью для меня это не вариант. 2. Чугунные комофортнее всего. Но я слабо представляю как в мою имеющеюся систему отопления открытого типа вмонтировать новый турбированый котел. Теоретически можно отрезать расширительный бак на чердаке, Установить воздухосбрасыватель. Но я почему то уверен, как только я дам туда 1-2 атмосферы потечет со всех щелей. 3. Попробовать заменить трасы на металопластик, промыть чугунные и поставить их? 4. Оставлять металическую разводку я думаю не целесообразно, так как - большая часть металических труб идет за шкафами или под потолком - в ванной вообще треш, труба-обратка на половину вмонтирована в пол. Пол пока не утеплен. Посилання на коментар Поділитися на інших сайтах More sharing options...
Слободарий Опубліковано: 14 жовтня 2016 Поділитись Опубліковано: 14 жовтня 2016 А как алюминиевые могут завоздушивать систему? Алюминий медленно реагирует с водой выделяя водород. 1 Посилання на коментар Поділитися на інших сайтах More sharing options...
ruslan_krv Опубліковано: 14 жовтня 2016 Автор Поділитись Опубліковано: 14 жовтня 2016 Тоесть вы советуете металические или бимметалические? Это из личного опыта? Спасибо Добавлено через 12 минут Подскажите, пожалуйста, какие лучше диаметры металопластиковых труб в моем случае лучше использовать D16+D20, или D20+D26. На сколько я понял тройников D26-D16-D26 под опрессовку не существует. Имеет ли смысл платить больше? Посилання на коментар Поділитися на інших сайтах More sharing options...
SON Опубліковано: 14 жовтня 2016 Поділитись Опубліковано: 14 жовтня 2016 Но я слабо представляю как в мою имеющеюся систему отопления открытого типа вмонтировать новый турбированый котел. Закрываете систему, т.е. глушите расширительный бачек. В котле имеется встроенный РБ, в разе нехватки штатного РБ добавляете дополнительный в любом месте. Доточить электрокотел тож проблем нет. Касаемо тандема - старая система/настенный котел: За конденсационник ничего не скажу, просто не довелось ставить. Обычный настенный котел ведет себя довольно прилично, несмотря на мул/грязь в системе. Практических примеров собсно немного, около десятка. Переживания по поводу забития теплообменника со старой системой оказались всего лишь предположениями. Диаметр труб старой системы играет свою положительную роль, т.е. скорость воды по факту небольшая, вся грязь/мул остается спокойно лежать в нижних коллекторах радиаторов и трубах несмотря на насос. Тоесть вы советуете металические или бимметалические? Это из личного опыта? Биметаллические радиаторы по внешнему ничем не отличаются о алюминиевых, но по сроку службы думаю переживут стальные, ну и плюс другие печеньки. В пересчете по деньгам на стальные +/- равные по мощности разницы практически нет. Оставлять металическую разводку я думаю не целесообразно, так как большая часть металических труб идет за шкафами или под потолком Железные трубы даж за шкафами греют стены. По модному это называется темперирование стен. П.С. Сегодня по стенам не сложилось посчитать. Завтра исправлюсь. 2 Посилання на коментар Поділитися на інших сайтах More sharing options...
ruslan_krv Опубліковано: 14 жовтня 2016 Автор Поділитись Опубліковано: 14 жовтня 2016 Уважаемый SON, огромное Вам спасибо за Вашу помощь. Вы ранее писали Потому как есть преценденты, когда после такой модернизации увеличивался расход газа. Не могли бы вы пояснить, почему может увеличиться расход газа? Теплопотери дома не меняются(плнирую утеплять постепенно со всех сторон). Радиаторы заменю на другие, с такой же мощностю или больше. Котел Viessman, который я приобрел несколько лет назад, вроде по Эффективней в плане КПД. Я ожидаю и надеюсь как раз на обратный эффект. Посилання на коментар Поділитися на інших сайтах More sharing options...
SON Опубліковано: 14 жовтня 2016 Поділитись Опубліковано: 14 жовтня 2016 (змінено) Да, есть живые примеры даж тут на форуме. В связи с давностью темы уже вряд-ли найду. Не могли бы вы пояснить, почему может увеличиться расход газа? Теплопотери дома не меняются(плнирую утеплять постепенно со всех сторон). Радиаторы заменю на другие, с такой же мощностю или больше. Котел Viessman, который я приобрел несколько лет назад, вроде по Эффективней в плане КПД. Я ожидаю и надеюсь как раз на обратный эффект. Чугунные радиаторы отдают примерно половину тепла излучением, половину конвекцией. Стальные радиаторы порядка 80% конвективный съем тепла, 20% на излучение. Т.е по своей сути они греют воздух. Теплый воздух ессно поднимается вверх, и чтоб получить примерно одинаковый комфорт наравне с чугуниной, дом нужно чуть перетапливать, т. к. все тепло вверху. Перекрытие (потолок/чердак) в домах старой постройки как правило в лучшем случае доски и 15-20 см глины с соломой. При "модных" стальных радиаторах перекрытие имеет большую температуру, соотв. и теплопотери через него увеличиваются. Ощутимую экономию газа может дать только комплексное утепление дома - стены+окна/двери+потолок+фундамент/цоколь. У мну дом 80м2, система гравитационка с чугуниной, до утепления я вылетал за 3000 кубов, после серьезного утепления вписываюсь до 2000 м3, но уже не шибко экономя. Система отопления без изменений. Газовые котлы, даж отечественных производителей имеют КПД не хуже импортных, конденсатники - отдельный разговор. Дайте фото своего котла позырить. П.С. Поинтересуйтесь на досуге стоимостью импортных чугунных радиаторов, даж без прибамбасов. Все станет на свои места. Змінено 14 жовтня 2016 користувачем SON 1 Посилання на коментар Поділитися на інших сайтах More sharing options...
ruslan_krv Опубліковано: 14 жовтня 2016 Автор Поділитись Опубліковано: 14 жовтня 2016 Фото котла который, сейчас выступает источником Энергии и который я планирую использовать, уже повесил. А серъезное утепление это что Вы имеете ввиду. Я уже утеплили стены 5 см каменная вата, фундамент 2-3 см эпс, потолок пристройки-каридора 20 см ваты.Просто та часть дома где панельное перекрытия, планирую сделать второй этаж жилым. Пока это холодный чердак утепленный керамзитом. Так делал не я, если что P/S:Сегодня чистил теплообмениик этого чуда, Энергия-16, вынес пол ведра сажи. Думаю если ничего не предпринять через 2-3 месяца процедуру нужно повторять. Посилання на коментар Поділитися на інших сайтах More sharing options...
SON Опубліковано: 14 жовтня 2016 Поділитись Опубліковано: 14 жовтня 2016 Фото котла который, сейчас выступает источником Энергии Мой не лучше. :D Посилання на коментар Поділитися на інших сайтах More sharing options...
ruslan_krv Опубліковано: 14 жовтня 2016 Автор Поділитись Опубліковано: 14 жовтня 2016 Я насколько понял, погуглив, что этот котел производили\(прозводят недай Бог) в Броварах, по какой-то лицензии, по типовой схеме. Только что-то они делают не так. Котел из себя представляет бочку, в верхней чати которой вварена решетка, которая постоянно забивается. Чистить его постоянно, для меня уже как ритуал Экзорцизма. Автоматика тоже ниочем.Термопару менял несколько раз менял,но на холодную его запустить, нужно несколько раз молитву "Отче Наш" прочитать, и еще немного поприседать. Посилання на коментар Поділитися на інших сайтах More sharing options...
Рекомендовані повідомлення
Створіть акаунт або увійдіть у нього для коментування
Ви маєте бути користувачем, щоб залишити коментар
Створити акаунт
Зареєструйтеся для отримання акаунта. Це просто!
Зареєструвати акаунтУвійти
Вже зареєстровані? Увійдіть тут.
Увійти зараз