Dendnepr Опубліковано: 27 жовтня 2017 Поділитись Опубліковано: 27 жовтня 2017 Все доброго здоровья! Пришла пора что-то менять в жизни. Конкретно-переехать из квартиры в дом. Бюджет ограничен стоимостью: продажа квартиры, гаража+небольшой ежемесячный доход, который будет идти на стройку Планируется, что в нем будут жить семейная пара с детьми: один мальчик, одна девочка. И тесть. Стоит задача спланировать расположение комнат чтоб никто никому не мешал. 1 тамбур (на входе-разуться) 2 прихожая 3 топочная (вход из тамбура или второй вход с улицы?) 6-7-9 кв.м или два помещения 4 санузел с душем возле входа 4 кв.м 5 кухня 10-12 кв. м 6 рядом кладовка 1,5-2 м. кв 7 зал 20-25 м.кв можно лестницу из зала если два этажа 8 спальня тесть -10 кв м 9 спальня сын 10-12 кв.м 10 спальня дочь 10-12 кв. м 11 спальня родители 12-15 кв. м. 12 санузел с ванной 5-6 кв.м 13 гардеробно-глажечная 14 где сушить белье? в топочной? там сажа. электрокотел-влажность не любит 15 терасса одна возле входа и хотелось бы все это добро впихнуть в 120 кв. метров одноэтажный дом получается с лишком длинный, да и на северную сторону тогда попадет спальня кто решал такую задачу? поделитесь, пожалуйста мыслями. Посилання на коментар Поділитися на інших сайтах More sharing options...
Dendnepr Опубліковано: 27 жовтня 2017 Автор Поділитись Опубліковано: 27 жовтня 2017 Перелопатил много проектов, путем вырезаний слепил такой одноэтажный Но хотелось бы детей выселить таки на второй этаж Посилання на коментар Поділитися на інших сайтах More sharing options...
Dendnepr Опубліковано: 27 жовтня 2017 Автор Поділитись Опубліковано: 27 жовтня 2017 по двухэтажному очень понравилась тема Евгения www.stroimdom.com.ua/forum/showthread.php?t=99562 но у него 146 квадратов. (хотя у моих родителе 140 на двоих ) и нужно перекручивать к сторонам света Посилання на коментар Поділитися на інших сайтах More sharing options...
mastervovik Опубліковано: 27 жовтня 2017 Поділитись Опубліковано: 27 жовтня 2017 Мне кажется с тестем без 2эт не обойтись. Тестю делать комнату в низу (в будущем для родителей будет) на верху три спальни (2+1 по сторонам), стенки общей не должно быть у родителей с детьми;) 2 Посилання на коментар Поділитися на інших сайтах More sharing options...
Dendnepr Опубліковано: 27 жовтня 2017 Автор Поділитись Опубліковано: 27 жовтня 2017 Да. Все к этому и идет. Хоть и очень хотелось 1 этаж, но 4-ре спальни на одном это уже общежитие. Я тоже хотел на первом этаже, но не выкручивается на втором только две спальни. Прийдется и нам на второй. Посилання на коментар Поділитися на інших сайтах More sharing options...
Dendnepr Опубліковано: 27 жовтня 2017 Автор Поділитись Опубліковано: 27 жовтня 2017 участок планируется 20*50 (средний) нужно определиться в какую сторону делать выход и терассу и от этого плясать с планировкой Посилання на коментар Поділитися на інших сайтах More sharing options...
mastervovik Опубліковано: 27 жовтня 2017 Поділитись Опубліковано: 27 жовтня 2017 участок планируется 20*50 (средний) нужно определиться в какую сторону делать выход и терассу и от этого плясать с планировкой Желательно терассу сделать, за линией с-ю в восточном направлении, западные направления не подходят. 1 Посилання на коментар Поділитися на інших сайтах More sharing options...
Dendnepr Опубліковано: 27 жовтня 2017 Автор Поділитись Опубліковано: 27 жовтня 2017 Да. я склоняюсь делать вход сбоку и терассу на южной стороне. Небольшую 2 метра ширины и на пол дома по длине. Чтоб возле окна одной из спален никто вечерами не сидел. Посилання на коментар Поділитися на інших сайтах More sharing options...
mastervovik Опубліковано: 27 жовтня 2017 Поділитись Опубліковано: 27 жовтня 2017 Да. я склоняюсь делать вход сбоку и терассу на южной стороне. Небольшую 2 метра ширины и на пол дома по длине. Чтоб возле окна одной из спален никто вечерами не сидел. Если смотреть на план, и если дом будет стоять семетрично улице, то сбоку это Ю-З? Это худший вариант! Нужны направления без буквы З, Ю-В, В, С-В в идеале. 1 Посилання на коментар Поділитися на інших сайтах More sharing options...
Dendnepr Опубліковано: 27 жовтня 2017 Автор Поділитись Опубліковано: 27 жовтня 2017 Нужны направления без буквы З, Ю-В, В, С-В в идеале. запад-это фронтон на улицу, всторону соседа-юг. совсем немного запада, градусов 10. восток-это сзади дома (если от улицы смотреть. чтоб делать вход с севера-нужно дом смещать южнее и перекрывать участок тенью он дома. да и не хочется к соседнему дому приближать окна. кручу-верчу, пока нет понимания. вернее есть, но без привязки с сторонам света. Посилання на коментар Поділитися на інших сайтах More sharing options...
mastervovik Опубліковано: 27 жовтня 2017 Поділитись Опубліковано: 27 жовтня 2017 А что за бзик терасса с входом? Как по мне терасса должна быть скрыта от улици, на мой взгляд вход сделать с улици, а терассу с видом на сад, и будет шикарно! ИМХО конечно. Так вы + отделяете входную зону с котельнями, СУ, прихожими и т.п от зоны комфорта в которой и должна располагаться терасса. Кроме того и в планах экономии, вспомогательные помещения нужно стараться размещать поближе к северу, а жилые наоборот. Посилання на коментар Поділитися на інших сайтах More sharing options...
Andrei constructor Опубліковано: 29 жовтня 2017 Поділитись Опубліковано: 29 жовтня 2017 Дом "Супербюджетный", общая площадь 105м2. Кладовку на 1-м этаже можно выделить под лестницей. Гардеробную можно выделить вместо умывальной на втором этаже. 1 Посилання на коментар Поділитися на інших сайтах More sharing options...
mastervovik Опубліковано: 29 жовтня 2017 Поділитись Опубліковано: 29 жовтня 2017 Дом "Супербюджетный", общая площадь 105м2. Кладовку на 1-м этаже можно выделить под лестницей. Гардеробную можно выделить вместо умывальной на втором этаже. Ужас как по мне что внешне что планировка 3 Посилання на коментар Поділитися на інших сайтах More sharing options...
vadimv Опубліковано: 29 жовтня 2017 Поділитись Опубліковано: 29 жовтня 2017 (змінено) 1 тамбур (на входе-разуться) 2 прихожая 3 топочная (вход из тамбура или второй вход с улицы?) 6-7-9 кв.м или два помещения 4 санузел с душем возле входа 4 кв.м 5 кухня 10-12 кв. м 6 рядом кладовка 1,5-2 м. кв 7 зал 20-25 м.кв можно лестницу из зала если два этажа 8 спальня тесть -10 кв м 9 спальня сын 10-12 кв.м 10 спальня дочь 10-12 кв. м 11 спальня родители 12-15 кв. м. 12 санузел с ванной 5-6 кв.м 13 гардеробно-глажечная 14 где сушить белье? в топочной? там сажа. электрокотел-влажность не любит 15 терасса одна возле входа и хотелось бы все это добро впихнуть в 120 кв. метров одноэтажный дом получается с лишком длинный, да и на северную сторону тогда попадет спальня кто решал такую задачу? поделитесь, пожалуйста мыслями.ИМХО, все, что больше 100 кв.м лучше делать двухэтажным. Так, чисто для примера, 8х8 внутри. Правда топочкая небольшая (2х2). Кухню при желании можно отделить на месте спальни. И кладовку там же. Гардеробно-глажечную при желании можно выделить между большими спальнями на 2 этаже. Террасу прилепить с любой стороны. Змінено 29 жовтня 2017 користувачем vadimv 1 Посилання на коментар Поділитися на інших сайтах More sharing options...
Andrei constructor Опубліковано: 29 жовтня 2017 Поділитись Опубліковано: 29 жовтня 2017 Ужас как по мне В чем? В том что вам не привычно, то все ужас? 1 Посилання на коментар Поділитися на інших сайтах More sharing options...
mastervovik Опубліковано: 29 жовтня 2017 Поділитись Опубліковано: 29 жовтня 2017 В чем? В том что вам не привычно, то все ужас? Чего не привычно? Привычно для цеха какго-то,или например спортзала:D Совсем такой минимализм, ни какой архитектуры, как коробка для чебурашки :D Посилання на коментар Поділитися на інших сайтах More sharing options...
Andrei constructor Опубліковано: 29 жовтня 2017 Поділитись Опубліковано: 29 жовтня 2017 Совсем такой минимализм, ни какой архитектуры Минимализм это и есть архитектурный стиль. Добавлено через 2 минуты Привычно для цеха какго-то,или например спортзала Это стереотип Посилання на коментар Поділитися на інших сайтах More sharing options...
Dendnepr Опубліковано: 30 жовтня 2017 Автор Поділитись Опубліковано: 30 жовтня 2017 А что за бзик терасса с входом? Как по мне терасса должна быть скрыта от улици, на мой взгляд вход сделать с улици, а терассу с видом на сад, и будет шикарно! Неправильно выразился. Имел ввиду-крыльцо с большим навесом, чтоб в непогоду перекурить можно, нескольким человекам. Сдержать снег зимой, дождь осенью. Вместо терассы-беседка. Или есть еще вариант-терасса по двум стенам. с заворотом на сад. У друзей так-мне понравилось Добавлено через 4 минуты Дом "Супербюджетный", общая площадь 105м2. Кладовку на 1-м этаже можно выделить под лестницей. Гардеробную можно выделить вместо умывальной на втором этаже. второй этаж где-то так и вижу, разве только санузел поменять местами со спальней-там же и вентканалы проходят. А в спальне они не нужны. а первый этаж-по сторонам света совсем не то Добавлено через 20 минут ИМХО, все, что больше 100 кв.м лучше делать двухэтажным. Так, чисто для примера, 8х8 внутри. Правда топочкая небольшая (2х2). Кухню при желании можно отделить на месте спальни. И кладовку там же. Гардеробно-глажечную при желании можно выделить между большими спальнями на 2 этаже. Террасу прилепить с любой стороны. гдето вокруг этого все и вьется. набираем варианты Посилання на коментар Поділитися на інших сайтах More sharing options...
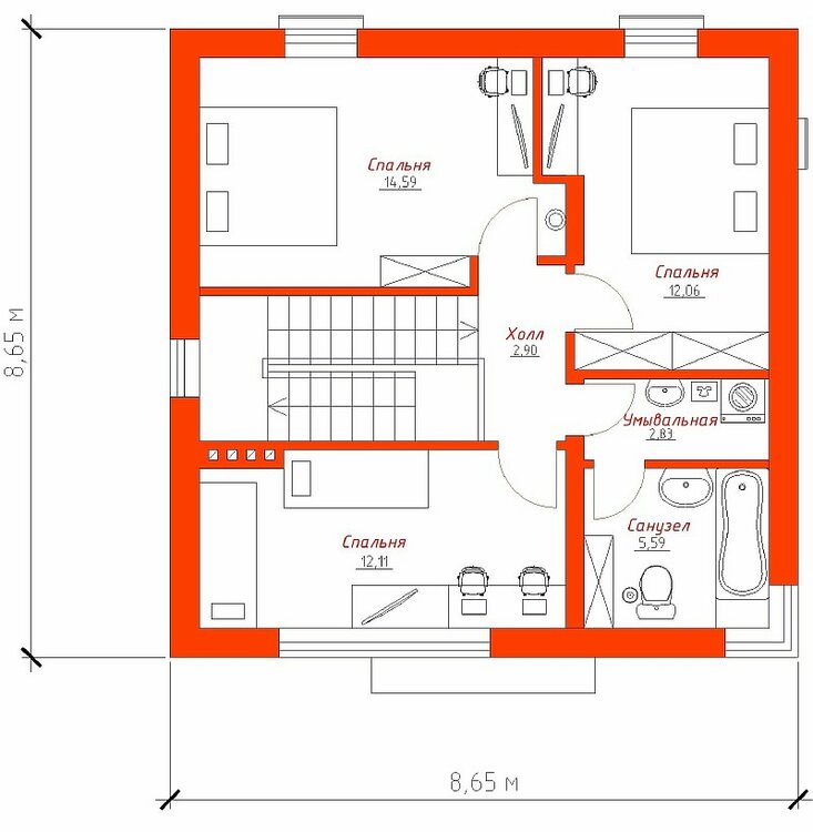
Dendnepr Опубліковано: 18 грудня 2017 Автор Поділитись Опубліковано: 18 грудня 2017 черновик планировки. теряется юг, но на юге стоит 3-х этажная громадина из силикатного кирпича. совсем не хочется на него окна делать. Посилання на коментар Поділитися на інших сайтах More sharing options...
vadimv Опубліковано: 18 грудня 2017 Поділитись Опубліковано: 18 грудня 2017 черновик планировкиСанузел с дверью в зал? Подумайте еще раз перед тем, как такое сделать. :D И на втором этаже санузел над кухней... Какая площадь (внутри) у вас получилась? Посилання на коментар Поділитися на інших сайтах More sharing options...
Dendnepr Опубліковано: 18 грудня 2017 Автор Поділитись Опубліковано: 18 грудня 2017 черновики фасадов и вид сверху Посилання на коментар Поділитися на інших сайтах More sharing options...
Dendnepr Опубліковано: 18 грудня 2017 Автор Поділитись Опубліковано: 18 грудня 2017 Санузел с дверью в зал? Подумайте еще раз перед тем, как такое сделать. :D Санузел какбы в прихожей. и дверь смещена к тамбурной двери. И на втором этаже санузел над кухней... Чем чревато? Там же как раз и вентканалы и коммуникации Какая площадь (внутри) у вас получилась? Пока не считал. Размеры я приблизительно по осям указал. по осям если считать то этаж 80 кв. м. Выкинуть половину толщины наружных стен и полную простенков, вентканалов-будет ближе к 65. как там еще лестницу посчитают-ХЗ Посилання на коментар Поділитися на інших сайтах More sharing options...
Музей Опубліковано: 19 грудня 2017 Поділитись Опубліковано: 19 грудня 2017 Уж очень крохотные спальни. В 11-ти м2 жить сложно. Я это к тому, что маленькая площадь это еще не бюджетность. В случае строительства дома на 120м2 или на 150м2 разница по затратам будет незначительная. Потому что, в обеих случаях Вам понадобится равное количество дверей, окон, светильников, мебели, техники, сантехники, керамики и даже система отопления и ГВС для домика побольше будет стоить буквально на 3-5% больше. 2 Посилання на коментар Поділитися на інших сайтах More sharing options...
Dendnepr Опубліковано: 19 грудня 2017 Автор Поділитись Опубліковано: 19 грудня 2017 Сейчас у детей 10.2 и 11.6 - ощущение, что с головой хватает. Правда не мансардные. Посилання на коментар Поділитися на інших сайтах More sharing options...
Музей Опубліковано: 19 грудня 2017 Поділитись Опубліковано: 19 грудня 2017 Сейчас у детей 10.2 и 11.6 - ощущение, что с головой хватает. Правда не мансардные. Что Вы улучшите в жизни семьи? В период стройки вы все пройдете через серьёзный бытовой дискомфорт, как следствие и психологический дискомфорт, а получите такие же крохотные комнатки, которые имеете сейчас. 3 Посилання на коментар Поділитися на інших сайтах More sharing options...
Рекомендовані повідомлення
Створіть акаунт або увійдіть у нього для коментування
Ви маєте бути користувачем, щоб залишити коментар
Створити акаунт
Зареєструйтеся для отримання акаунта. Це просто!
Зареєструвати акаунтУвійти
Вже зареєстровані? Увійдіть тут.
Увійти зараз