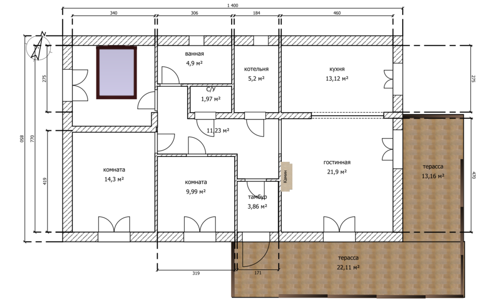
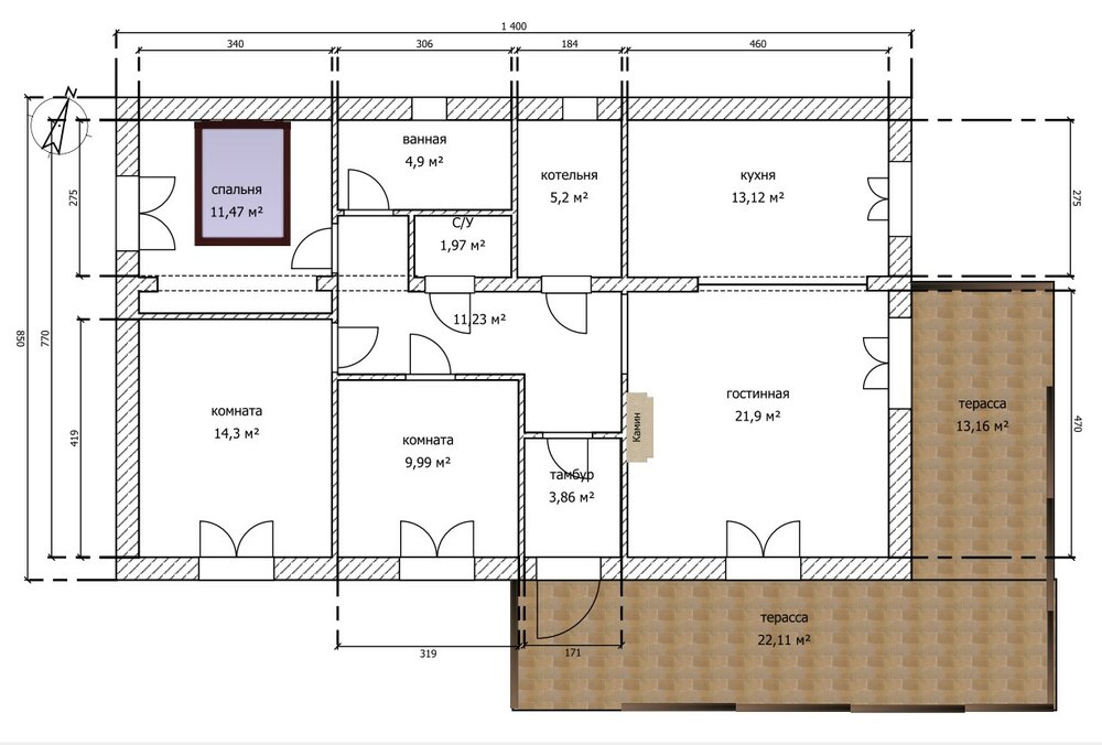
vavenko Опубліковано: 14 березня 2018 Поділитись Опубліковано: 14 березня 2018 Планирую начать строительство одноэтажного дома для семьи с маленькими детьми. Дом одноэтажный, участок узкий. Стены из газоблоков, перекрытия по деревянным балкам, крыша вальмовая, чердак не жилой, будет использоваться для хлама. Расположение на участке прикрепил. Покритикуйте планировку и подскажите, какой из вариантов дешевле и менее трудоемкий в реализации. Первый - несущая стена вдоль конька, смещена на 1 метр от центра здания. Недостаток в необходимости заливать балку над спальней и кухней. Во втором - несущие стены делят длинную строну на 3 неодинаковые части, балки нужно укладывать вдоль. Стропильная система будет сложнее. Так как дом на возвышенности и до воды очень глубоко, под частью дома думаю сделать подвал для хранения овощей, солений и различного инвентаря. Вход в подвал только с улицы. В первом варианте напрашивается в меньшей части, под котельной, ванной, кухней и спальней. Из плючов доступ к коммуникациям, но получится узкий и длинный на 36 квадратов. Во втором - в меньшей из трех частей, которая самая левая. Площадь 25м2, удобный вход, но коммуникации будут недоступны. Посилання на коментар Поділитися на інших сайтах More sharing options...
Maryan_bhfz Опубліковано: 14 березня 2018 Поділитись Опубліковано: 14 березня 2018 Ну если по первому варианту, то над спальней балку необязательно заливать, сделайте несущую перегородку с уступом и совместите ее с межкомнатной перегородкой Посилання на коментар Поділитися на інших сайтах More sharing options...
Музей Опубліковано: 14 березня 2018 Поділитись Опубліковано: 14 березня 2018 Первый - несущая стена вдоль конька, смещена на 1 метр от центра здания. Ваши планировки совершенно не пострадают если внутренняя несущая стена, в угоду конструктиву, будет расположена под коньком, т.е. по центру. Посилання на коментар Поділитися на інших сайтах More sharing options...
vavenko Опубліковано: 14 березня 2018 Автор Поділитись Опубліковано: 14 березня 2018 Ваши планировки совершенно не пострадают если внутренняя несущая стена, в угоду конструктиву, будет расположена под коньком, т.е. по центру. я что-то не понимаю, но почему не пострадают - гостиная и комната возле тамбура уменьшится, кухня и ванная увеличатся. Посилання на коментар Поділитися на інших сайтах More sharing options...
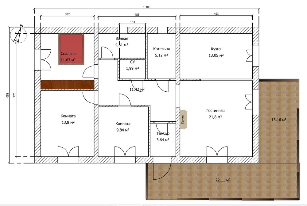
vavenko Опубліковано: 14 березня 2018 Автор Поділитись Опубліковано: 14 березня 2018 Ну если по первому варианту, то над спальней балку необязательно заливать, сделайте несущую перегородку с уступом и совместите ее с межкомнатной перегородкой Вот так, фундамент делать уступом? Посилання на коментар Поділитися на інших сайтах More sharing options...
Музей Опубліковано: 14 березня 2018 Поділитись Опубліковано: 14 березня 2018 я что-то не понимаю, но почему не пострадают - гостиная и комната возле тамбура уменьшится, кухня и ванная увеличатся. Размеры важны, для того чтобы избежать нестандартных размеров в деталях кровли. Это будет дорого. В планировках главное эргономика. Начните с расстановки мебели стандартных размеров. У Вас нет мебели в планах. Без мебели Вы не видите насколько Ваши комнаты на самом деле большие или маленькие. 2 Посилання на коментар Поділитися на інших сайтах More sharing options...
vavenko Опубліковано: 14 березня 2018 Автор Поділитись Опубліковано: 14 березня 2018 Это будет дорого. В чем удорожание? В работе или пиломатериалах? Куб пиломатериалов 2500 грн. Без мебели Вы не видите насколько Ваши комнаты на самом деле большие или маленькие. Мебель нужно расставить, согласен, но детская 7 квадратов - это очень мало. Родители живут в доме около 100 м2, где гостиная 25м, одна из спален 10м (мало) , кухня 15м и я представляю, насколько комнаты на плане большие или маленькие. Посилання на коментар Поділитися на інших сайтах More sharing options...
Maryan_bhfz Опубліковано: 14 березня 2018 Поділитись Опубліковано: 14 березня 2018 Да, именно это имел ввиду Посилання на коментар Поділитися на інших сайтах More sharing options...
Музей Опубліковано: 14 березня 2018 Поділитись Опубліковано: 14 березня 2018 детская 7 квадратов - это очень мало Даже 10м2 єто мало. Если бюджет не первичен, то имеет смысл увеличить ширину верхней части дома. Если дети маленькие, то лучше чтобы размеры и форма их комнат были одинаковые. Добавлено через 2 минуты Помещение "тамбур" желательно расширить, так чтобы там помещались шкафы для верхней одежды, обуви и банкетка, чтобы присеть, обуться, разуться. 2 Посилання на коментар Поділитися на інших сайтах More sharing options...
Willi Опубліковано: 17 березня 2018 Поділитись Опубліковано: 17 березня 2018 Подивіться ось тут https://www.stroimdom.com.ua/forum/showthread.php?t=208039&highlight=%E0%EA%F6%E8%FF повідомлення #1 Посилання на коментар Поділитися на інших сайтах More sharing options...
Скромный прораб Опубліковано: 19 березня 2018 Поділитись Опубліковано: 19 березня 2018 Планирую начать строительство одноэтажного дома для семьи с маленькими детьми. Дом одноэтажный, участок узкий. Стены из газоблоков, перекрытия по деревянным балкам, крыша вальмовая, чердак не жилой, будет использоваться для хлама. Расположение на участке прикрепил. Покритикуйте планировку и подскажите, какой из вариантов дешевле и менее трудоемкий в реализации. Первый - несущая стена вдоль конька, смещена на 1 метр от центра здания. Недостаток в необходимости заливать балку над спальней и кухней. Во втором - несущие стены делят длинную строну на 3 неодинаковые части, балки нужно укладывать вдоль. Стропильная система будет сложнее. . ИМХО лучше сделать не как дешевле, а как качественней - второй вариант, идеальный для раскладки балок. Террасу лучше перенести, все один к одному, но с выходом из кухни Посилання на коментар Поділитися на інших сайтах More sharing options...
lastandr Опубліковано: 19 березня 2018 Поділитись Опубліковано: 19 березня 2018 крыша вальмовая Для такой крыши очень важны углы уклона скатов, попробуйте прорисовать её во всех вариантах - и все станет понятно... Посилання на коментар Поділитися на інших сайтах More sharing options...
Рекомендовані повідомлення
Створіть акаунт або увійдіть у нього для коментування
Ви маєте бути користувачем, щоб залишити коментар
Створити акаунт
Зареєструйтеся для отримання акаунта. Це просто!
Зареєструвати акаунтУвійти
Вже зареєстровані? Увійдіть тут.
Увійти зараз