vladimir_arch Опубліковано: 17 квітня 2018 Поділитись Опубліковано: 17 квітня 2018 В газобетон без утепления не верю Ну, если речь о вере, то и говорить тут не о чем. Другое дело - если выполнить простейший теплотехнический расчёт, и с его помощью установить истину: блоки автоклавного газобетона при толщине 400 и объёмном весе 400 (и если кладку вести на клею, а не на ц./п. р-ре) дают требуемое сопротивление теплопроницанию. Да ещё и нагрузку от стен и кровли (со снеговой вместе) держат до 5 этажей. Впрочем, я, пожалуй, поторопился оборвать разговор о вере. У меня она тоже есть, и тоже связана с газобетоном - в руководстве по ведению кладки предписывается каждые 4 ряда делать борозду под укладку арматуры, и обеспыливать её. ОБЕСПЫЛИВАТЬ, Карл! Ну, да - был бы там Карл или хотя бы Лешек, но вот Петро или Мыкола - высасывать пыль из борозды строительным пылесосом (или выбирать щёткой) вряд ли будут (а без этого адгезия клея со стенками борозды не произойдет) - вот в это я не верю. Впрочем, можно ориентироваться на фирмы, специализирующиеся на ГБ, проехаться по их объектам и понаблюдать за процессом - может, и есть пунктуально выполняющие регламент. С этой точки зрения лучше поризованный керамоблок - кладка почти как из обычного кирпича. Только резать его надо по-особому ("Аллигатором"), а так всё то же.Raschet_Teplo_GB.xls Посилання на коментар Поділитися на інших сайтах More sharing options...
Скромный прораб Опубліковано: 17 квітня 2018 Поділитись Опубліковано: 17 квітня 2018 Да что там мелочиться, пять этажей... Пишите десять. Монитор, он такой, все выдержит)))) Посилання на коментар Поділитися на інших сайтах More sharing options...
vladimir_arch Опубліковано: 17 квітня 2018 Поділитись Опубліковано: 17 квітня 2018 Да что там мелочиться, пять этажей Спасибо за отловленную ошибку - действительно, газобетонные блоки, как пишется в руководстве к применению AEROC (есть ещё и YTONG, и STONELIGHT), несут нагрузку вплоть до 5 этажей, но вот что касается блоков D400, о которых я писал выше - то они несут нагрузку до трёх этажей включительно. Посилання на коментар Поділитися на інших сайтах More sharing options...
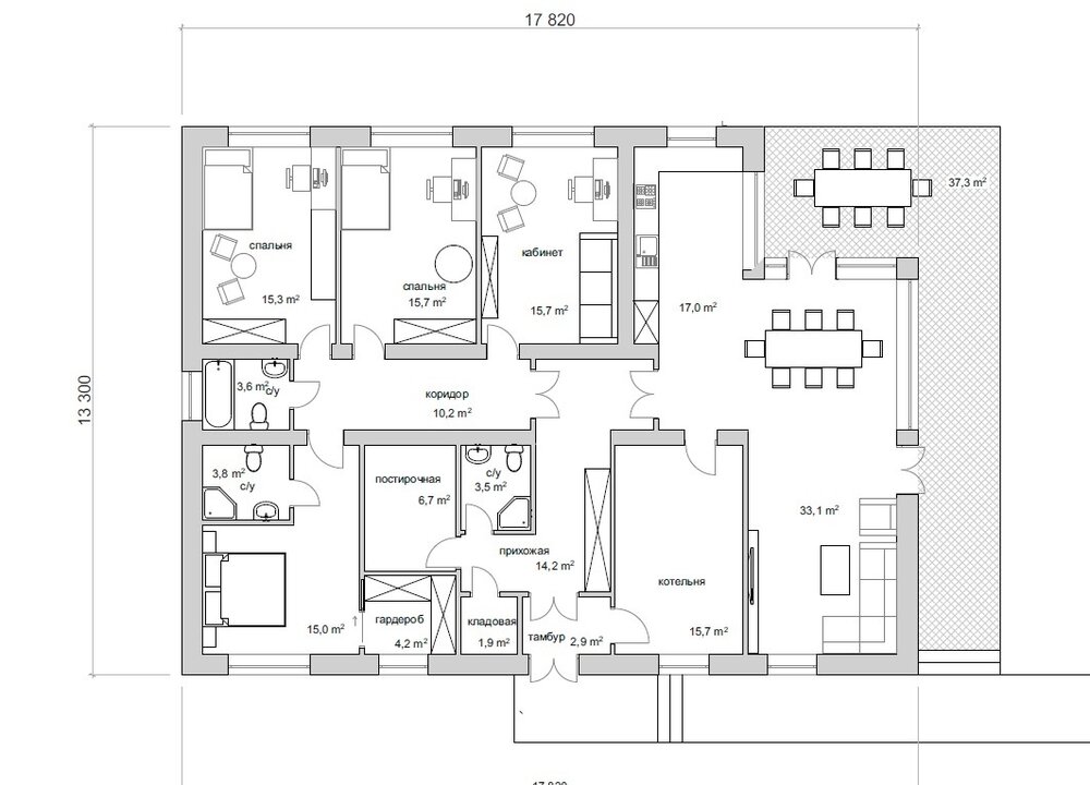
SectorPrize Опубліковано: 26 травня 2018 Автор Поділитись Опубліковано: 26 травня 2018 Проектом начал заниматься архитектор. На данный момент имеем такую планировку: Прошу форумчан высказаться. Как вам такое? Что стало лучше/хуже по сравнению с первым вариантом? Посилання на коментар Поділитися на інших сайтах More sharing options...
tort Опубліковано: 26 травня 2018 Поділитись Опубліковано: 26 травня 2018 У вас у котельній підстанція на весь квартал? Щось забагато туди площі архітектор відвів. З двох дверей у коридорі якісь зайві. Наприклад ті шо в кухню. Санвузлів понаробили із запасом. У вас багата оселя буде. Мабуть у вас багато грошей. 3 Посилання на коментар Поділитися на інших сайтах More sharing options...
JFK Опубліковано: 26 травня 2018 Поділитись Опубліковано: 26 травня 2018 У вас у котельній підстанція на весь квартал? . Похоже на то))) У меня в котельной 7 метров и постирочная и сушильная и кладовка. 1 Посилання на коментар Поділитися на інших сайтах More sharing options...
SectorPrize Опубліковано: 26 травня 2018 Автор Поділитись Опубліковано: 26 травня 2018 У вас у котельній підстанція на весь квартал? Щось забагато туди площі архітектор відвів. З двох дверей у коридорі якісь зайві. Наприклад ті шо в кухню. Санвузлів понаробили із запасом. У вас багата оселя буде. Мабуть у вас багато грошей. Изначально там была перегородка и кладовка со стороны кухни. По рекомендации Narval решил отдать всю площадь под котельную. Как и у него, у меня планируется тепловой насос с сопутствующими тепловыми аккумуляторами + твердотопливный котел в качестве резерва. По поводу дверей - согласен, правые - лишние. Денег, надеюсь, хватит Добавлено через 1 минуту Похоже на то))) У меня в котельной 7 метров и постирочная и сушильная и кладовка. Вы там и дрова/брикеты жжете, и белье сушите? Посилання на коментар Поділитися на інших сайтах More sharing options...
teonit Опубліковано: 26 травня 2018 Поділитись Опубліковано: 26 травня 2018 Прошу форумчан высказаться. Как вам такое? Что стало лучше/хуже по сравнению с первым вариантом? Вечером. Вы зашли в ванную, искупались, и... понесли грязные труселя в постирочную. Так? Совместите две ванные: общую и родительскую; так вы в ней спокойно разместите и корзину для белья, и ящик для туалетной бумаги, мыла, полотенец и прочего. 2 Посилання на коментар Поділитися на інших сайтах More sharing options...
dushes86 Опубліковано: 26 травня 2018 Поділитись Опубліковано: 26 травня 2018 Проектом начал заниматься архитектор. На данный момент имеем такую планировку: Прошу форумчан высказаться. Как вам такое? Что стало лучше/хуже по сравнению с первым вариантом? 1.Лучше: форма гостинной и ее зонирование. Не хватает углового камина на внешнем углу котельной. Хуже: 2. ваннная хозяйской спальни - вариант 1 с гардеробом и ванной в 1 линию слева от спальни намного рациональнее. 3.Входная зона - не фонтан: лабиринты. Для кого этот санузел? Если для гостей, то попробуйте объяснить гостю на словах, как пройти из гостинной в туалет, и при этом еще выбрать правильную дверь Если решили котельную делать такого размера, то можно поменять местами с кабинетом: так рациональнее с технической т. зр. 4. Вход в постирочную можно сделать из центрального коридора - зачем носить белье из спален через грязную зону входа? К тому же это поможет избавиться от апендикса для входа в нее из прихожей. 5. вход в кладовку можно сдедать и из тамбура 6. Прихожую делайте чуть квадратнее и просторнее: дом-то на большую семью строите. Иначе будете гуськом выходить. Для этого переработайте узел кладовки-стирки-туалета, плюс встройте шкаф в котельную (или кабинет, по совету выше) Добавлено через 4 минуты Вдогонку: а точно вам в хозяйской гардеробной окно нужно, а в ванной - нет? 2 Посилання на коментар Поділитися на інших сайтах More sharing options...
vadimv Опубліковано: 26 травня 2018 Поділитись Опубліковано: 26 травня 2018 На данный момент имеем такую планировку:1. Я бы добавил на кухне окно с восточной стороны. А то там будет темный угол. 2. Какая ширина гостиной от дивана до телевизора? Визуально - метра три, максимум 3,5. Это мало, надо как минимум 4. ИМХО. 3. Солнце вечером будет засвечивать телевизор в окно с западной стороны. 2 Посилання на коментар Поділитися на інших сайтах More sharing options...
SectorPrize Опубліковано: 26 травня 2018 Автор Поділитись Опубліковано: 26 травня 2018 1.Лучше: форма гостинной и ее зонирование. Не хватает углового камина на внешнем углу котельной. Хуже: 2. ваннная хозяйской спальни - вариант 1 с гардеробом и ванной в 1 линию слева от спальни намного рациональнее. 3.Входная зона - не фонтан: лабиринты. Для кого этот санузел? Если для гостей, то попробуйте объяснить гостю на словах, как пройти из гостинной в туалет, и при этом еще выбрать правильную дверь Если решили котельную делать такого размера, то можно поменять местами с кабинетом: так рациональнее с технической т. зр. 4. Вход в постирочную можно сделать из центрального коридора - зачем носить белье из спален через грязную зону входа? К тому же это поможет избавиться от апендикса для входа в нее из прихожей. 5. вход в кладовку можно сдедать и из тамбура 6. Прихожую делайте чуть квадратнее и просторнее: дом-то на большую семью строите. Иначе будете гуськом выходить. Для этого переработайте узел кладовки-стирки-туалета, плюс встройте шкаф в котельную (или кабинет, по совету выше) Добавлено через 4 минуты Вдогонку: а точно вам в хозяйской гардеробной окно нужно, а в ванной - нет? Благодарю! Практически со всем согласен Некоторые недочеты появились после одной из последних переделок (кладовка-постирочная- гостевой с/у, отсутсвие окна в хозяйском с/у). Котельную с кабинетом поменять не получится - не хочется соседства первой со спальней. Идея с камином очень интересная. Я, вообще-то, не планировал делать камин в доме. Но в данном случае, наверное, может быть уместным какая-то топка в котельной с "окном" в гостиную. Возможно, кто-то подскажет подходящие варианты? Добавлено через 6 минут Вечером. Вы зашли в ванную, искупались, и... понесли грязные труселя в постирочную. Так? Совместите две ванные: общую и родительскую; так вы в ней спокойно разместите и корзину для белья, и ящик для туалетной бумаги, мыла, полотенец и прочего. С этими функциями сейчас справляется настенный пенал 0,40 * 0,33, который, с отступами занимает площади около 0,15 кв.м. Думаю, в каждый из этих с/у влезет что-то подобное. Добавлено через 15 минут 1. Я бы добавил на кухне окно с восточной стороны. А то там будет темный угол. 2. Какая ширина гостиной от дивана до телевизора? Визуально - метра три, максимум 3,5. Это мало, надо как минимум 4. ИМХО. 3. Солнце вечером будет засвечивать телевизор в окно с западной стороны. 1. Да, утром на фоне светлой обеденной зоны там, наверное, будет довольно темный угол, и при работе за столешницей люди будут отбрасывать перед собой тень. Нужно это побороть. 2. там 3,5. Сейчас нахожусь в гостиной 3,5*5,0. В принципе, очень комфортно. Телевизор диагональю 49" как раз комфортно смотреть. Если сесть на полметра ближе - то вообще отлично. Единственный минус - если представить человек 8 перед телевизором, то четверо из них будут смотреть под довольно острыми углами. Бóльшая ширина гостиной должна увеличить этот угол. Нужно посчитать, решат ли что-то эти полметра. 3. Легко решатся использованием ролет. Добавлено через 7 минут Не нашел возможности редактировать свой пост. Она появляется с ростом репутации? Посилання на коментар Поділитися на інших сайтах More sharing options...
tort Опубліковано: 27 травня 2018 Поділитись Опубліковано: 27 травня 2018 По поводу дверей - согласен, правые - лишние.Подивився першу сторінку теми. Що було погано у тому варіанті так це полутемний коридор. Став коридор зовсім темним. При такому наборі кімнат дійсно починають люди замислюватись над другим поверхом. Але це необов'язково, можна десь боковий коридорчик з вікном назовні дать. Короче проблема більш приоритетна ніж камін. Ще потім виникне претензія до цілостності простору зали-столової-кухні. Ніби вони і пов'язані, але отой кут від котельньої закриває півкухні з входом. Уявіть собі що воно таке буде і спитайте себе чи це те що ви хотіли? Людина почуває себе більш комфортно там де бачить вхід/вихід, а із зали ви бачите лише ріг технічного приміщення де будете стрічатися раптово. Короче до мене тут написали про це. (див. п.6) Ще момент. У вас кімната на двох дорослих має такуж саму площу, навіть трохи меньшу ще й не дуже раціональної форми в плані, як і кімната для однієї дитини. Вона виросте звичайно потім, але ж не до зрілого віку, то потреби не великі. Тож виникає питання "Хто в домі хазяїн"? Є ще варіанти? Бо цей треба переробляти. Перший варіант попри довгий коридор мав всеж-таки деяку раціональність і цілісність. Цей чітко поділений на спочивальну зону та вітальню-кухню-столову і раптово котельня(!). 2 Посилання на коментар Поділитися на інших сайтах More sharing options...
SectorPrize Опубліковано: 28 травня 2018 Автор Поділитись Опубліковано: 28 травня 2018 Подивився першу сторінку теми. Що було погано у тому варіанті так це полутемний коридор. Став коридор зовсім темним. При такому наборі кімнат дійсно починають люди замислюватись над другим поверхом. Але це необов'язково, можна десь боковий коридорчик з вікном назовні дать. Короче проблема більш приоритетна ніж камін. Ще потім виникне претензія до цілостності простору зали-столової-кухні. Ніби вони і пов'язані, але отой кут від котельньої закриває півкухні з входом. Уявіть собі що воно таке буде і спитайте себе чи це те що ви хотіли? Людина почуває себе більш комфортно там де бачить вхід/вихід, а із зали ви бачите лише ріг технічного приміщення де будете стрічатися раптово. Короче до мене тут написали про це. (див. п.6) Ще момент. У вас кімната на двох дорослих має такуж саму площу, навіть трохи меньшу ще й не дуже раціональної форми в плані, як і кімната для однієї дитини. Вона виросте звичайно потім, але ж не до зрілого віку, то потреби не великі. Тож виникає питання "Хто в домі хазяїн"? Є ще варіанти? Бо цей треба переробляти. Перший варіант попри довгий коридор мав всеж-таки деяку раціональність і цілісність. Цей чітко поділений на спочивальну зону та вітальню-кухню-столову і раптово котельня(!). Проблема темного коридора решается внутренним остеклением. Нужно только продумать где оно более уместно. Двери в коридоре большую часть времени будут открыты и наверняка будут со стеклом. Абсолютной темноты даже при всех закрытых дверях там не будет 100%. Как раз тот угол можно срезать скажем так: и влепить туда "камин". Хотя сам угол меня не напрягает. Но с таким расположение котельной, желанием иметь резервное отопление на дровах - думаю, грех не сделать что-то подобное. В детских будут и рабочие столы, и шкафы для вещей. Вещи хозяев будут в гардеробной, а для дневного времяпрепровождения в нашем распоряжении весь дом (кабинет, гостиная). Стол, стул и шкаф в детских заберут минимум по 3-4 кв. м., в хозяйской спальне этой мебели не будет. Но немного оптимизировать это помещение все же нужно. Котельная ничем себя не будет выдавать (стена и стена). 1 Посилання на коментар Поділитися на інших сайтах More sharing options...
tort Опубліковано: 28 травня 2018 Поділитись Опубліковано: 28 травня 2018 (змінено) Проблема темного коридора решается внутренним остеклением. Нужно только продумать где оно более уместно. Двери в коридоре большую часть времени будут открыты и наверняка будут со стеклом. Абсолютной темноты даже при всех закрытых дверях там не будет 100%. У такого рішення є один мінус: воно дає світло не тільки іззовні але й з середини. Коли всі лягли спати, повимикали все, майже заснули і тут комусь із дітей закортіло до туалета, вони вмикають світло в коридорі і вам це заважає. А скоріше буде і навпаки. Бо дорослі ще до холодильника бігають вночі і лягають пізніше. Взагалі не рекомендовано ставити такі двері у дитячій кімнаті, по багатьом іншим причинам. Змінено 28 травня 2018 користувачем tort 3 Посилання на коментар Поділитися на інших сайтах More sharing options...
vadimv Опубліковано: 28 травня 2018 Поділитись Опубліковано: 28 травня 2018 Смотрю я на этот длинный коридор и чето мне вспомнилось, как подсвечивается проход в самолете. К сожалениюю, фотки не нашел - две полоски внизу на полу и две на потолке. И красиво и удобно. Можно сделать светодиодной лентой. 2 Посилання на коментар Поділитися на інших сайтах More sharing options...
SectorPrize Опубліковано: 28 травня 2018 Автор Поділитись Опубліковано: 28 травня 2018 У такого рішення є один мінус: воно дає світло не тільки іззовні але й з середини. Коли всі лягли спати, повимикали все, майже заснули і тут комусь із дітей закортіло до туалета, вони вмикають світло в коридорі і вам це заважає. А скоріше буде і навпаки. Бо дорослі ще до холодильника бігають вночі і лягають пізніше. Взагалі не рекомендовано ставити такі двері у дитячій кімнаті, по багатьом іншим причинам. Разумеется, в спальнях внутреннее остекление не уместно. Но есть еще санузел, прихожая и центральный блок технических помещений, который будет переделываться. Добавлено через 14 минут Смотрю я на этот длинный коридор и чето мне вспомнилось, как подсвечивается проход в самолете. К сожалениюю, фотки не нашел - две полоски внизу на полу и две на потолке. И красиво и удобно. Можно сделать светодиодной лентой. Этот длинный коридор имеет длину около 6 м от двери до двери. Или 9 м, если считать по максимуму. Добавлено через 2 минуты В крайнем случае, есть вот такие решения: Но, думаю, не пригодится. Добавлено через 11 минут Кстати, для достижения хоть каких-то сумерек в коридоре (при поступлении света из прихожей) нужно закрыть все двери в спальни и кабинет. Интересно, есть тут люди, у которых в доме в дневное время были бы закрыты все двери? Единственное исключение, которое приходит в голову - один из хозяев ранним утром просыпается, выходит в коридор, и закрывает за собой дверь. Добавлено через 11 минут Еще придумал такие варианты подсвечивания коридора: Добавлено через 1 минуту Посилання на коментар Поділитися на інших сайтах More sharing options...
dushes86 Опубліковано: 28 травня 2018 Поділитись Опубліковано: 28 травня 2018 Все так. Вариантов решения проблемы освещения темных коридоров хватает. Но на этапе проектирования можно попытаться избежать самой необходимости решать эту проблему путем изменения планоровочного решения. ЗЫ: из любопытсва я бы глянул на такой световой тоннель с призмами вживую. 4 Посилання на коментар Поділитися на інших сайтах More sharing options...
NEX-HELP Опубліковано: 28 травня 2018 Поділитись Опубліковано: 28 травня 2018 Изначально там была перегородка и кладовка со стороны кухни. По рекомендации Narval решил отдать всю площадь под котельную. Как и у него, у меня планируется тепловой насос с сопутствующими тепловыми аккумуляторами + твердотопливный котел в качестве резерва. По поводу дверей - согласен, правые - лишние. Денег, надеюсь, хватит Добавлено через 1 минуту Вы там и дрова/брикеты жжете, и белье сушите? Может в этом плане что-то подойдет?..по размерам где-то рядом.SCAN_20180528_125808566.pdfSCAN_20180528_130215522.pdf 1 Посилання на коментар Поділитися на інших сайтах More sharing options...
teonit Опубліковано: 1 червня 2018 Поділитись Опубліковано: 1 червня 2018 ЗЫ: из любопытсва я бы глянул на такой световой тоннель с призмами вживую. Есть подозрение, что солнечная панель на крыше + красивый потолочный светильник будет дешевле и не менее эффективно. 2 Посилання на коментар Поділитися на інших сайтах More sharing options...
SectorPrize Опубліковано: 4 червня 2018 Автор Поділитись Опубліковано: 4 червня 2018 Есть подозрение, что солнечная панель на крыше + красивый потолочный светильник будет дешевле и не менее эффективно. Думаю, можно обойтись и без солнечной панели 1 Посилання на коментар Поділитися на інших сайтах More sharing options...
Eliz_new Опубліковано: 4 червня 2018 Поділитись Опубліковано: 4 червня 2018 а зачем Вам вообще чьи то мнения, и тем более критика?! Это Ваш дом и Ваши личные предпочтения. Нарисовали себе эскиз желаемой планировки, и отправляйтесь на разработку индивидуального проекта. Много архитектурных компаний сейчас этим занимаются. Из тех,что я только знаю по Украине: z500; архетон, архон (кажется), муратор. Мы однажды дело имели именно с проектами компании архетон. Можно и других специалистов найти. И если думать об бюджетном варианте, то конечно лучше подобрать типовой проект с похожей планировкой, и просто внести какие то необходимые изменения. Скорее всего это выйдет менее затратно, чем разработка проекта с нуля. Но строить дом, я бы Вам рекомендовала, все же по проекту. Какой бы опытный и качественный строитель не был, но каждый может напортачить. Плюс тому же строителю будет проще по проекту строить. и по срокам быстрее выйдет. оно того стоит. Дом, это все же не вещи. Тут лучше четко по схеме, без самодеятельности. 1 Посилання на коментар Поділитися на інших сайтах More sharing options...
tort Опубліковано: 5 червня 2018 Поділитись Опубліковано: 5 червня 2018 а зачем Вам вообще чьи то мнения, и тем более критика? Мабуть шо людині так треба. Хтось вміє і з критики вилучати для себе користь. 1 Посилання на коментар Поділитися на інших сайтах More sharing options...
SectorPrize Опубліковано: 6 червня 2018 Автор Поділитись Опубліковано: 6 червня 2018 а зачем Вам вообще чьи то мнения, и тем более критика?! Это Ваш дом и Ваши личные предпочтения. Нарисовали себе эскиз желаемой планировки, и отправляйтесь на разработку индивидуального проекта. Много архитектурных компаний сейчас этим занимаются. Из тех,что я только знаю по Украине: z500; архетон, архон (кажется), муратор. Мы однажды дело имели именно с проектами компании архетон. Можно и других специалистов найти. И если думать об бюджетном варианте, то конечно лучше подобрать типовой проект с похожей планировкой, и просто внести какие то необходимые изменения. Скорее всего это выйдет менее затратно, чем разработка проекта с нуля. Но строить дом, я бы Вам рекомендовала, все же по проекту. Какой бы опытный и качественный строитель не был, но каждый может напортачить. Плюс тому же строителю будет проще по проекту строить. и по срокам быстрее выйдет. оно того стоит. Дом, это все же не вещи. Тут лучше четко по схеме, без самодеятельности. Типовых проектов, подходящих по мои запросы, я не нашел (пересмотрел несколько сотен). С архитектором уже работаю над эскизным проектом, но, чтобы правильно поставить задачу, нужно учесть множество нюансов, и с этим отлично помогает коллективный разум нашего форума. Если хочется совсем без самодеятельности - можно купить готовую квартиру или дом, смысла возиться со стройкой тогда нет. Мне же хочется построить дом под себя, и наслаждаться жизнью в нем. Рабочий проект тоже буду делать. Чужие мнения нужны для максимально полного и объективного понимания сильных и слабых сторон проекта, для того, чтобы избежать ненужных ошибок. Добавлено через 1 минуту Мабуть шо людині так треба. Хтось вміє і з критики вилучати для себе користь. Все верно! На то критика и нужна, разве нет? 1 Посилання на коментар Поділитися на інших сайтах More sharing options...
vadimv Опубліковано: 6 червня 2018 Поділитись Опубліковано: 6 червня 2018 Типовых проектов, подходящих по мои запросы, я не нашел (пересмотрел несколько сотен). С архитектором уже работаю Я тут однажды набрел на канал одного архитектора, и тот открыл Великую Тайну Заговора Масонов: типовые проекты специально делают такими недоделанными, чтобы обеспечить работу архитекторам. ;) Если бы в продаже имелись продуманные и качественно проработанные типовые проекты - к ним бы шли только эстеты с завышенными требованиями. Как к портным. Остальных вполне устраивает готовая одежда из магазина. Посилання на коментар Поділитися на інших сайтах More sharing options...
allasvet Опубліковано: 2 серпня 2018 Поділитись Опубліковано: 2 серпня 2018 Если дети и уедут и комнаты будут пустовать то можно установить датчик присутствия для отопления. Так будет поддерживаться минимальная температура в помещениях в которых в данный момент не находитесь. Мы для своих объектов всегда предлагаем такое решение. В хозяйской спальне отлично что находиться свой с/н и гардероб. В холле когда заставите всей мебелью(шкаф, кресла, зеркала и т.д.) и нормально будет. В коридоре можно разместить например: картины с направленной подсветкой, фото, библиотеку или из возможных вариантов ваших увлечений. И по поводу окон на южную или северную сторону. Существуют стекло пакеты и роллеты, которые не пропускаю солнечные лучи, и энергосберегающие. 1 Посилання на коментар Поділитися на інших сайтах More sharing options...
Рекомендовані повідомлення
Створіть акаунт або увійдіть у нього для коментування
Ви маєте бути користувачем, щоб залишити коментар
Створити акаунт
Зареєструйтеся для отримання акаунта. Це просто!
Зареєструвати акаунтУвійти
Вже зареєстровані? Увійдіть тут.
Увійти зараз