bodidron Опубліковано: 1 серпня 2019 Автор Поділитись Опубліковано: 1 серпня 2019 как по мне то там все "так легло" это плохо или хорошо? или дальше видно будет? Посилання на коментар Поділитися на інших сайтах More sharing options...
Фрай Опубліковано: 1 серпня 2019 Поділитись Опубліковано: 1 серпня 2019 Сами подумайте, это все-таки угол дома. Мне рукожопы сделали лучше, но без вибратора, хз чем лили с миксера и теперь один угол крошится а на нем нагрузка немалая Пусть вам конструкторы подскажут как но на мой взгляд ситуацию надо править сейчас Посилання на коментар Поділитися на інших сайтах More sharing options...
bodidron Опубліковано: 1 серпня 2019 Автор Поділитись Опубліковано: 1 серпня 2019 Сами подумайте, это все-таки угол дома. Мне рукожопы сделали лучше, но без вибратора, хз чем лили с миксера и теперь один угол крошится а на нем нагрузка немалая Пусть вам конструкторы подскажут как но на мой взгляд ситуацию надо править сейчас через 2 недели будет архитектор на обьекте, посмотрим.... пока по фотографиям ничего не говорил. Без вибратора, но ничего не крошится.... Посилання на коментар Поділитися на інших сайтах More sharing options...
Фрай Опубліковано: 1 серпня 2019 Поділитись Опубліковано: 1 серпня 2019 и у меня не сразу, через год, но внешне мой был ляля! Только под нагрузкой показал. Спрашивать надо не у архитекторов, шо они знают? Их дело спроектировать, а что и как слепят строители они предскажут? Посилання на коментар Поділитися на інших сайтах More sharing options...
bodidron Опубліковано: 1 серпня 2019 Автор Поділитись Опубліковано: 1 серпня 2019 и у меня не сразу, через год, но внешне мой был ляля! Только под нагрузкой показал. Спрашивать надо не у архитекторов, шо они знают? Их дело спроектировать, а что и как слепят строители они предскажут? гидроизоляцию с наружи мазали? заводской бетон с нормального завода с сертификатом? Посилання на коментар Поділитися на інших сайтах More sharing options...
Фрай Опубліковано: 1 серпня 2019 Поділитись Опубліковано: 1 серпня 2019 Ой, не смешно! Вы до сих пор бумажкам верите? Я верю тому что вижу. Но пусть скажут свое слово шановні будівельники, может я придираюсь и все у вас ОК Посилання на коментар Поділитися на інших сайтах More sharing options...
bodidron Опубліковано: 16 серпня 2019 Автор Поділитись Опубліковано: 16 серпня 2019 вчера закончили кладку Aeroc D400, 400мм 1 Посилання на коментар Поділитися на інших сайтах More sharing options...
bodidron Опубліковано: 11 листопада 2019 Автор Поділитись Опубліковано: 11 листопада 2019 дошли до армопояса под крышу, потихоньку растет 1 Посилання на коментар Поділитися на інших сайтах More sharing options...
bodidron Опубліковано: 23 січня 2020 Автор Поділитись Опубліковано: 23 січня 2020 январь оказался теплым... закончена кровля 2 Посилання на коментар Поділитися на інших сайтах More sharing options...
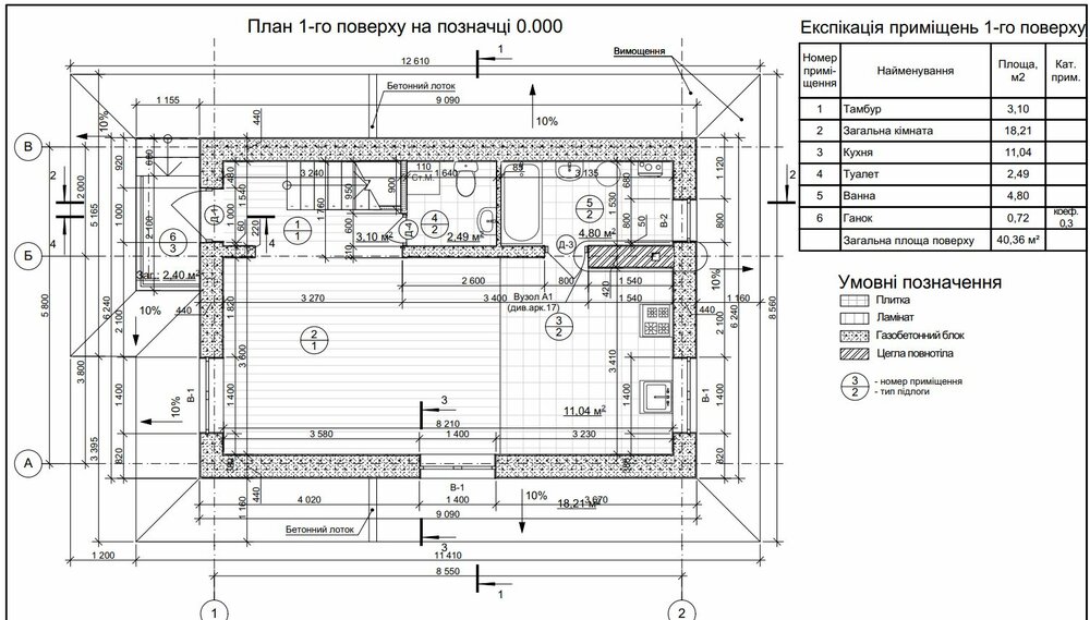
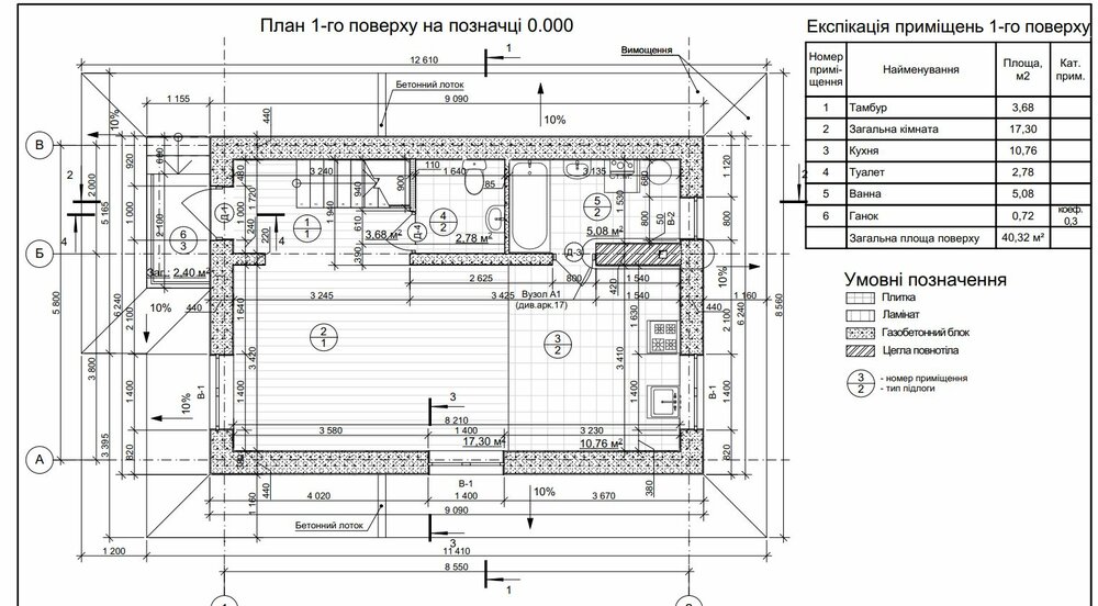
bodidron Опубліковано: 25 березня 2021 Автор Поділитись Опубліковано: 25 березня 2021 Посоветуйте планировки может оптимальнее, особенно кухня. К кухне главное требование, мойка у окна. И может по спальням что подскажете? Посилання на коментар Поділитися на інших сайтах More sharing options...
irainmost Опубліковано: 25 березня 2021 Поділитись Опубліковано: 25 березня 2021 (змінено) 2спалка кровать боком к скосу потолка. Удобно ли будет туда пробираться? Добавлено через 3 минуты не знаю писали или нет. на 2 этаже нет санузла, ночью бегать по лестнице не удобно. это я вам со знанием дела говорю. Змінено 25 березня 2021 користувачем #roofinspector 1 Посилання на коментар Поділитися на інших сайтах More sharing options...
oleg5 Опубліковано: 25 березня 2021 Поділитись Опубліковано: 25 березня 2021 Посоветуйте планировки может оптимальнее, особенно кухня. К кухне главное требование, мойка у окна. И может по спальням что подскажете? ИМХО: тамбур маленький, я бы убрал стенку и дверь. Унитаз развернуть, т .е. перевесить на стенку где умывальник что бы смотрел на СМ. Окно на кухне возле мойки не нужно, лучше 2 других сделать больше. С кроватью тоже надо думать, если этаж мансардный то неудобно, тоже самое и с лестницей. Посилання на коментар Поділитися на інших сайтах More sharing options...
bodidron Опубліковано: 25 березня 2021 Автор Поділитись Опубліковано: 25 березня 2021 Всем добрый день. А у кого мойка напротив окна? Вам удобно? Я вот тоже смотрю и сомневаюсь. Окно не открыть из за крана, на него постоянно летят брызги. Смотреть в окно когда моешь посуду можно и чуть сбоку, а посудомойка вообще убирает необходимость долго там стоять. 2спалка кровать боком к скосу потолка. Удобно ли будет туда пробираться? Добавлено через 3 минуты не знаю писали или нет. на 2 этаже нет санузла, ночью бегать по лестнице не удобно. это я вам со знанием дела говорю. открывается только одна половинка, добавлю живые фото Посилання на коментар Поділитися на інших сайтах More sharing options...
bodidron Опубліковано: 25 березня 2021 Автор Поділитись Опубліковано: 25 березня 2021 ИМХО: тамбур маленький, я бы убрал стенку и дверь. Унитаз развернуть, т .е. перевесить на стенку где умывальник что бы смотрел на СМ. Окно на кухне возле мойки не нужно, лучше 2 других сделать больше. С кроватью тоже надо думать, если этаж мансардный то неудобно, тоже самое и с лестницей. тамбур по факту и был выкинут. будет пристройка на улице. не было под рукой актуальных чертежей. Посилання на коментар Поділитися на інших сайтах More sharing options...
bodidron Опубліковано: 25 березня 2021 Автор Поділитись Опубліковано: 25 березня 2021 только средную стену неверно нарисовали чуть Посилання на коментар Поділитися на інших сайтах More sharing options...
oleg5 Опубліковано: 25 березня 2021 Поділитись Опубліковано: 25 березня 2021 (змінено) не знаю писали или нет. на 2 этаже нет санузла, ночью бегать по лестнице не удобно. это я вам со знанием дела говорю. Балкон решает проблему, а внизу любимые грядки тёщи/свекрови Шучу конечно, без 2 санузла неудобно, но это же смарт-дом. Змінено 25 березня 2021 користувачем oleg5 Посилання на коментар Поділитися на інших сайтах More sharing options...
bodidron Опубліковано: 25 березня 2021 Автор Поділитись Опубліковано: 25 березня 2021 (змінено) Балкон решает проблему, а внизу любимые грядки тёщи/свекрови �� Шучу конечно, без 2 санузла неудобно, но это же смарт-дом. Скажем так, он уже построен, канализация разведена. осталось последние правки по мебели, для проводки. в прошлом году теща жила уже летом, спали на 2 этаже, лестница деревянная стремянка, туалет на улице. чуть позже вылажу последние перестановки по актуальным размерам вот от этого уже можно отталкиваться собрал все фото вместе Змінено 25 березня 2021 користувачем bodidron 1 Посилання на коментар Поділитися на інших сайтах More sharing options...
irainmost Опубліковано: 25 березня 2021 Поділитись Опубліковано: 25 березня 2021 Поверхность и мойку рядом не нужно, это очень не удобно. Слева и справа от варочной поверхности всегда должно быть расстояние. Привлеките к проектирование женщину она скажет )) 1 Посилання на коментар Поділитися на інших сайтах More sharing options...
bodidron Опубліковано: 25 березня 2021 Автор Поділитись Опубліковано: 25 березня 2021 Поверхность и мойку рядом не нужно, это очень не удобно. Слева и справа от варочной поверхности всегда должно быть расстояние. Привлеките к проектирование женщину она скажет )) женщина и визуализирует. но уже есть хотелки с мойкой, есть коммуникации, есть вентканалы, которые уже накладывают ограничения Посилання на коментар Поділитися на інших сайтах More sharing options...
irainmost Опубліковано: 25 березня 2021 Поділитись Опубліковано: 25 березня 2021 а продлить столешню буквой Г не хотите? 1 Посилання на коментар Поділитися на інших сайтах More sharing options...
bodidron Опубліковано: 25 березня 2021 Автор Поділитись Опубліковано: 25 березня 2021 а продлить столешню буквой Г не хотите? мебельщики не рекомендуют, говорят лучше отдельно поставить еще кусок, так как в углу теряется много места бегло так накидали Посилання на коментар Поділитися на інших сайтах More sharing options...
vadimv Опубліковано: 26 березня 2021 Поділитись Опубліковано: 26 березня 2021 Поверхность и мойку рядом не нужноТак они вроде не совсем рядом, на чертеже между ними 60 см. Но лично я тоже голосую за Г-образную столешницу. лучше отдельно поставить еще кусокПридется его постоянно обходить. в углу теряется много местаТа я б не сказал. У нас в углу под мойкой ящик для сбора бумаги (на розжиг камина), мусорные ведра и фильтр питьевой воды. Посилання на коментар Поділитися на інших сайтах More sharing options...
bodidron Опубліковано: 26 березня 2021 Автор Поділитись Опубліковано: 26 березня 2021 вот местами близкое нагуглил в теме кухонь. пока ясно что варочная поверхность левее окна 100%, так как вытяжка. у мойки посудомоечная, а вот холодильник и духовка/микроволновка не ясны, как бы их не выкинуть на другую стену. загвостка что справа от окна всего 30см. надо было окно строить левее, тогда шкафы стандарные становились бы. думал может использовать среднюю стену для холодильника /духовки, хранения пока вижу что холодильник стал не плохо, делал бы для него шкафчик, чтобы не мыть холодильник. потом посудомойку, выдвинул холодильник, доступ к воде/канализации, потом варочная поверхность, мойка. и возможно г-образное закругление. а там уже духовку/микроволновку. и в первый этап делать только низ кухни, верх пустой 1 Посилання на коментар Поділитися на інших сайтах More sharing options...
bodidron Опубліковано: 28 вересня 2021 Автор Поділитись Опубліковано: 28 вересня 2021 (змінено) В 25.03.2021 в 17:52, irainmost сказал: а продлить столешню буквой Г не хотите? в итоге остановились на П образной кухне. Холодильник, мойка, посудомойка, угол, духовка/варочная, угол, кусок "острова" типа. Вытяжку по потолком перештробили. По дому уже сделан гипс потолка, и отшпаклеван 2й этаж. Электрика. Ванная/туалет. Куплен электрокотел протерм 9кватт, 14 модели. и запущен теплый пол и радиаторы 2 этажа. Змінено 28 вересня 2021 користувачем bodidron Посилання на коментар Поділитися на інших сайтах More sharing options...
newbee2020 Опубліковано: 29 вересня 2021 Поділитись Опубліковано: 29 вересня 2021 (змінено) В 31.10.2018 в 16:19, bodidron сказал: Змінено 29 вересня 2021 користувачем newbee2020 Посилання на коментар Поділитися на інших сайтах More sharing options...
Рекомендовані повідомлення
Створіть акаунт або увійдіть у нього для коментування
Ви маєте бути користувачем, щоб залишити коментар
Створити акаунт
Зареєструйтеся для отримання акаунта. Це просто!
Зареєструвати акаунтУвійти
Вже зареєстровані? Увійдіть тут.
Увійти зараз