vadimv Опубліковано: 18 жовтня 2018 Поділитись Опубліковано: 18 жовтня 2018 Проживать будет 6 человек (бабушка с дедушкой) + (мама папа) + две девочки подростка. С туалетами и ванами особых проблем не вижу, все просыпаются в разное время, думаю двух санузлов хватитНо лучше вделать их оба с унитазами и один с душем, а один - с ванной. 3 Посилання на коментар Поділитися на інших сайтах More sharing options...
ROS_SUMY Опубліковано: 18 жовтня 2018 Автор Поділитись Опубліковано: 18 жовтня 2018 Но лучше вделать их оба с унитазами и один с душем, а один - с ванной. полностью согласен Посилання на коментар Поділитися на інших сайтах More sharing options...
ROS_SUMY Опубліковано: 18 жовтня 2018 Автор Поділитись Опубліковано: 18 жовтня 2018 А может так? ( вариация на тему Z67) с верандой спереди Посилання на коментар Поділитися на інших сайтах More sharing options...
tansss Опубліковано: 18 жовтня 2018 Поділитись Опубліковано: 18 жовтня 2018 А может так? ( вариация на тему Z67) с верандой спереди ИМХО. Коридор жирноватый получился 1,8, понимаю шо толпа народа шастает но уменьшил бы до 1,5. Хоз помещение поменять с гардеробной. Прихожку закрыть стеной с дверью. Нашёл бы возможность наколхозить с/у для хозяйской спальни хоть по минимуму (душик, унитазик с гЫгЫеническим душем и махоньким умывальничком 1 Посилання на коментар Поділитися на інших сайтах More sharing options...
Музей Опубліковано: 18 жовтня 2018 Поділитись Опубліковано: 18 жовтня 2018 А может так? ( вариация на тему Z67) с верандой спереди Ужасно... Котельной нет. Прихожая шириной 3 метра, но там нет места для шкафов с верхней одеждой обувью, сумками, чемоданами. Коридор 1,8 метра. Даже не знаю, что сказать. Санузлы далеки от понятия комфортного проживания. Окна, как в среневеком домике. Терраса не в саду, а на входе. Расстановка мебели отсутствует. 1 Посилання на коментар Поділитися на інших сайтах More sharing options...
whisker Опубліковано: 18 жовтня 2018 Поділитись Опубліковано: 18 жовтня 2018 А может так? ( вариация на тему Z67) с верандой спереди Не хотите уйти от прямоугольника и разместить планировку дома аж на четыре спальни буквой Г ? Ну не лепится объединенная ночная зона на три поколения так кучно, как в пионерском лагере. Домочадцы озвереют и высушат друг друга. 1 Посилання на коментар Поділитися на інших сайтах More sharing options...
ROS_SUMY Опубліковано: 19 жовтня 2018 Автор Поділитись Опубліковано: 19 жовтня 2018 Не хотите уйти от прямоугольника и разместить планировку дома аж на четыре спальни буквой Г ? даже не знаю Ну не лепится объединенная ночная зона на три поколения так кучно, как в пионерском лагере. Домочадцы озвереют и высушат друг друга. сейчас в трешке на 55 кв., тем же составом))) Посилання на коментар Поділитися на інших сайтах More sharing options...
ROS_SUMY Опубліковано: 19 жовтня 2018 Автор Поділитись Опубліковано: 19 жовтня 2018 Прислушиваясь к мнению...опять же по мотивам Z67 Посилання на коментар Поділитися на інших сайтах More sharing options...
Музей Опубліковано: 19 жовтня 2018 Поділитись Опубліковано: 19 жовтня 2018 Прислушиваясь к мнению...опять же по мотивам Z67 В топочной должно быть окно? Кто помнит нормативы? Добавлено через 5 минут даже не знаю сейчас в трешке на 55 кв., тем же составом))) К комфорту привыкаешь быстро. Сделайте старшему поколению отдельный санузел. Жизнь длинная. Вы об этом не пожалеете. Лучше небольшая гостиная, чем недостаток хоз помещений. Тем более, что в летнее время все живут на террасе. 4 Посилання на коментар Поділитися на інших сайтах More sharing options...
ROS_SUMY Опубліковано: 19 жовтня 2018 Автор Поділитись Опубліковано: 19 жовтня 2018 В топочной должно быть окно? Кто помнит нормативы? можно поменять местами с гардеробной планировка в целом, имеет право на жизнь? Посилання на коментар Поділитися на інших сайтах More sharing options...
whisker Опубліковано: 19 жовтня 2018 Поділитись Опубліковано: 19 жовтня 2018 даже не знаю Вот три картинки, покрутите на досуге. Середина октября, строительный сезон заканчивается, впереди зима - можно рисовать. сейчас в трешке на 55 кв., тем же составом))) Понимаете в чем дело - мы "страшные люди", можем привыкнуть ко всему. И любая планировка имеет право на жизнь, только вот гармонии нет ни хрена. Все эти квартирники серии Z, включая самую популярную десятку, та же двушка-трешка, только на земле. Вы меня извините за наглость, но я считаю постройку компактного дома для трех поколений тупиковой задачей. Может лучше построить вменяемый дом для одного-двух поколений, а пока идет стройка, либо дети вырастут, либо старики ... сами знаете. 6 Посилання на коментар Поділитися на інших сайтах More sharing options...
Vito black Опубліковано: 19 жовтня 2018 Поділитись Опубліковано: 19 жовтня 2018 Прислушиваясь к мнению...опять же по мотивам Z67 Естественное освещение в топочной - обязательно, 0,03* площадь помещения - это если будет газ. Так-же, если будет газ - проблема привести газопровод внутрь дома (транзит газопровода через жилые помещения - запрещены). Если топочную и гардероб поменять местами - газопровод будет на фасаде, возле входной двери. Это все - если топиться будет газом. Если электрикой - топочная - нормально. Думаю в центре дома ТТ не поставят. Добавлено через 4 минуты Вы меня извините за наглость, но я считаю постройку компактного дома для трех поколений тупиковой задачей. Может лучше построить вменяемый дом для одного-двух поколений, а пока идет стройка, либо дети вырастут, либо старики ... сами знаете. Это - мудро. 2 Посилання на коментар Поділитися на інших сайтах More sharing options...
vadimv Опубліковано: 19 жовтня 2018 Поділитись Опубліковано: 19 жовтня 2018 Двухэтажник и мансардник не рассматриваю (ну нравятся одноэтажники и все тут)))Ну что, не убедили вас еще в рациональности двух этажей? ИМХО, для ваших задач - идеальный вариант. Одну спальню делаете для старшего поколения на первом этаже (рядом санузел). Три спальни для детей и для себя делаете на втором этаже (там же один или два санузла). И всем сухо и комфортно. И никаких длинных темных коридоров. Подумайте. 1 Посилання на коментар Поділитися на інших сайтах More sharing options...
ROS_SUMY Опубліковано: 19 жовтня 2018 Автор Поділитись Опубліковано: 19 жовтня 2018 Ну что, не убедили вас еще в рациональности двух этажей? ИМХО, для ваших задач - идеальный вариант. Одну спальню делаете для старшего поколения на первом этаже (рядом санузел). Три спальни для детей и для себя делаете на втором этаже (там же один или два санузла). И всем сухо и комфортно. И никаких длинных темных коридоров. Подумайте. Пока хочу одноэтажник, он удобнее и дешевле (мне так кажется) Посилання на коментар Поділитися на інших сайтах More sharing options...
Татьяна5 Опубліковано: 19 жовтня 2018 Поділитись Опубліковано: 19 жовтня 2018 и дешевле (мне так кажется) Бу га га 2 Посилання на коментар Поділитися на інших сайтах More sharing options...
Юрий Киев Опубліковано: 19 жовтня 2018 Поділитись Опубліковано: 19 жовтня 2018 Пока хочу одноэтажник, он удобнее и дешевле (мне так кажется) в Вашем случае идеальным был бы одноэтажный с жилой мансардой. газобетонный с деревянными перекрытиями (если сделать правильно ничего критичного или страшного),старшее поколение на первом этаже,молодежь на второй. санузлы спланировать друг над другом. будет ляля. Посилання на коментар Поділитися на інших сайтах More sharing options...
vadimv Опубліковано: 20 жовтня 2018 Поділитись Опубліковано: 20 жовтня 2018 Пока хочу одноэтажник, он удобнее и дешевле (мне так кажется)Дешевле - точно нет, а насчет удобнее - тут мнения всегда разделяются: кому-то удобнее ходить по одному этажу без лестниц, а кому-то удобнее забраться на второй этаж подальше от шума и пыли. Ладно, подкину вам еще пару идей: - можно расположить спальни попарно, вытянув это все в длинный сарай, например, в одном крыле живете вы с родителями, в другом - дети Еще у Татьяны5 есть похожая планировка https://www.stroimdom.com.ua/forum/showpost.php?p=4718831&postcount=7 - а можно скомпоновать все в квадрат с кухней-гостиной по центру, тогда не будет длинного коридора. 1 Посилання на коментар Поділитися на інших сайтах More sharing options...
Татьяна5 Опубліковано: 20 жовтня 2018 Поділитись Опубліковано: 20 жовтня 2018 Еще у Татьяны5 есть похожая планировка могу тем, кто в Киеве, его живьем дать походить, как раз строю 3 Посилання на коментар Поділитися на інших сайтах More sharing options...
ROS_SUMY Опубліковано: 23 жовтня 2018 Автор Поділитись Опубліковано: 23 жовтня 2018 как вариант, понравился польский проект з гаражом Посилання на коментар Поділитися на інших сайтах More sharing options...
vadimv Опубліковано: 23 жовтня 2018 Поділитись Опубліковано: 23 жовтня 2018 как вариант, понравился польский проект з гаражомВсе классно, но 3 комнаты от 9 до 11 кв м - это очень грустно. Даже я в своих аскетично-спартанских планировках рисовал не меньше 12 кв.м. 1 Посилання на коментар Поділитися на інших сайтах More sharing options...
Музей Опубліковано: 23 жовтня 2018 Поділитись Опубліковано: 23 жовтня 2018 как вариант, понравился польский проект з гаражом Разумно. Как заметил Вадим, очень мелкие спальные комнаты. Сделайте разрез по части спален, добавьте хотя бы 1 м и будет вполне хорошо. А гаражное помещение сразу сделала бы хоз помещением, чтобы избежать затрат на гаражные ворота, специальную вентиляцию, дренажи и пр. атрибуты гаража. Окно ванной комнаты на террасу можно сразу удалить. красоты не будет, т.к. терраса большая (это не есть недостаток) и окошко это будет выходить в самый темный угол. Камин, который обогревает кладовую - плохое решение. Ставила бы его к стене санузла. огромным недостатком считаю отсутствие места для шкафов в прихожей. Большое семейство. Только представьте себе, как какждый несет в свою спальну свои сапоги, пальто, куртки, сандали, шапки , сумки, перчатки. 2 Посилання на коментар Поділитися на інших сайтах More sharing options...
ROS_SUMY Опубліковано: 23 жовтня 2018 Автор Поділитись Опубліковано: 23 жовтня 2018 (змінено) Все классно, но 3 комнаты от 9 до 11 кв м - это очень грустно. Даже я в своих аскетично-спартанских планировках рисовал не меньше 12 кв.м. абсолютно согласен по размерам Разумно. огромным недостатком считаю отсутствие места для шкафов в прихожей. Большое семейство. Только представьте себе, как какждый несет в свою спальну свои сапоги, пальто, куртки, сандали, шапки , сумки, перчатки. шкафы в прихожей имеются, по остальным правкам - спасибо З.Ы. спальни я так понимаю лучше расположить на восток, а гостинную с верандой на запад? Змінено 23 жовтня 2018 користувачем ROS_SUMY Посилання на коментар Поділитися на інших сайтах More sharing options...
Музей Опубліковано: 23 жовтня 2018 Поділитись Опубліковано: 23 жовтня 2018 шкафы в прихожей имеются, по остальным правкам - спасибо У Вас шкафы в прОхожей. ;) И для шестерых их маловато. Но, это согласно моим представлениям. У меня, все что можно отнести к категории обувь и верхняя одежда , не "ходит" дальше прихожей. Это удобно и гигиенично. 1 Посилання на коментар Поділитися на інших сайтах More sharing options...
vadimv Опубліковано: 23 жовтня 2018 Поділитись Опубліковано: 23 жовтня 2018 спальни я так понимаю лучше расположить на восток, а гостинную с верандой на запад?Да, если участок позволяет. У Вас шкафы в прОхожей. ;) И для шестерых их маловато. Но, это согласно моим представлениям.Помню, оказались мы как-то в одном недешевом доме, там была прОхожая размерами примерно 3х4 с окном и шкафами - светлая и просторная. А тут 3,9 кв.м - самый минимум. 1 Посилання на коментар Поділитися на інших сайтах More sharing options...
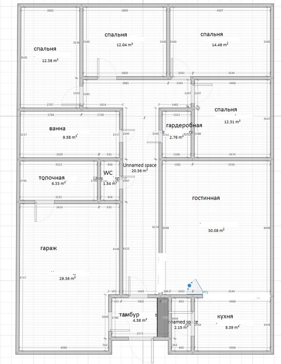
ROS_SUMY Опубліковано: 25 жовтня 2018 Автор Поділитись Опубліковано: 25 жовтня 2018 (змінено) А если.. по мотивам ua.dom4m.com.ua/4m6375-ua-4M6375/ он же "Пластичный" )) projekty.muratordom.pl/projekt_plastyczny,3112,0%2C0.htm?q=347&t=&v=1 Ванна правда 9 кв, ну то такое Змінено 25 жовтня 2018 користувачем ROS_SUMY Посилання на коментар Поділитися на інших сайтах More sharing options...
Рекомендовані повідомлення
Створіть акаунт або увійдіть у нього для коментування
Ви маєте бути користувачем, щоб залишити коментар
Створити акаунт
Зареєструйтеся для отримання акаунта. Це просто!
Зареєструвати акаунтУвійти
Вже зареєстровані? Увійдіть тут.
Увійти зараз