floyd_od Опубліковано: 3 травня 2019 Поділитись Опубліковано: 3 травня 2019 Всем доброго дня! Желание жить в собственном доме оформилось у нашей семьи пару лет назад. За плечами два ремонта от строителей (1 комн. кв. 50м и 2км 90 м) поэтому желания макаться в ремонт по полной, а тем более в стройку не возникало. В стройке почему то пугало еще и все разрешилово и подключение коммуникаций, очень уж я не люблю и не умею бегать по инстанциям и договариваться. Так как в семье двое детей 7 и 11 лет, оба работаем то хотелось дом в черте города, с привычным для нас комьютом на работу и в школу детей. Очертив для себя районы поиска начали мониторить объявления. Быстро поняли что это не вариант, поскольку "дизайнерские ремонты" мы пережить не могли. А смысл покупать дом с ремонтом и делать ремонт под себя мы не видели. так как найти подходящего по цене, расположению, и размеру участка не удавалось то морально был уже готов к строительству. И начал мониторить участки в том числе. Тоже глухо, или дорого, или какая то фигня или с доками, или дорогой или и то и другое Прошлой зимой нашли дом под чистовую отделку в черте города (в этом месте улица Вавилова является границей города), 3.2 сотки земли, дом из газобетона 40см, без утепления, 2 этажа, холодный чердак под вальмовой битумной кровлей, гараж 4х6м. Нашел пару фоток сразу после покупки в апреле 2018. Жаль я не изучил форум до того как купил дом так же хорошо как я его изучил в течение этого года. Это позволило бы мне не быть в розовых очках при покупке, и правильно спланировать бюджет на доделку. Но при всем при этом, забегая вперед, скажу - если бы я на тот момент знал о строительстве и о доме все то что я знаю сейчас - мы бы все равно купили этот дом, разве что эти знания позволили бы сторговать еще немного с продавца. Дом продавался с котлом и батареями отопления, теплый пол на первом этаже. При покупке мечталось что тысяч за 25-30 сделаем чистовой ремонт и въедем в новый дом. 13 Посилання на коментар Поділитися на інших сайтах More sharing options...
floyd_od Опубліковано: 3 травня 2019 Автор Поділитись Опубліковано: 3 травня 2019 Месяца три после покупки раскачивался, искал кто будет делать ремонт, решил обратиться к специалистам чтобы сделали дизайн проект ремонта. При этом постепенно выяснялись косяки по дому. При продаже все что видно по верхам было сделано достаточно неплохо, стяжка достаточно ровная, стены не кривые, поштукатурено с сеткой. швы газобетона вроде тонкие. Это внушало доверие к продавцу что все построенно хорошо. Сделал дизайн проект, нашел прораба по рекомендации. И погнали Опять сделаю лирическое отступление. На момент покупки дома, мой опыт с частными домами сводился к 3-х месячной аренде дома в Черноморке в Одессе (из этого мы вынесли что такое расположение нам не подходит, а так же то что надо делать так чтобы две машины становились во двор или гараж независимо - ибо меня задолбало постояннов в 11 вечера играть в пятнашки, так как жена уезжет и приезжает на/с работу раньше ) И регулярной (два раза в год по две недели) аренде части дома в Днепре - из этого опыта мы поняли как важна вентиляция в частном доме, и насколько все на нее забивают. Так же я не представлял себе частного дома без камина. Из сказанного выше в ремонте появилось два очень дорогостоящих пункта вентиляция и камин. 2 Посилання на коментар Поділитися на інших сайтах More sharing options...
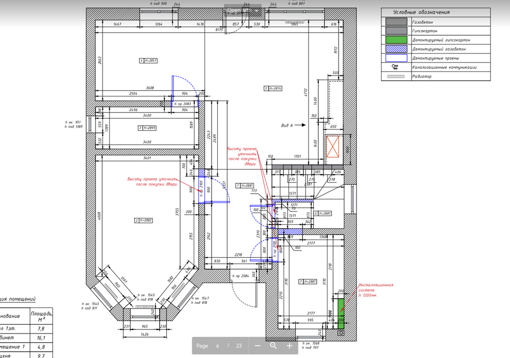
floyd_od Опубліковано: 3 травня 2019 Автор Поділитись Опубліковано: 3 травня 2019 Вентиляция, Из вентиляции в доме было подведено электричество к месту где предполагалось проделать отверстия в санузлах для вентиляторов в стене. Поскольку дом в черте города, хотелось иметь возможность жить с закрытыми окнами не говоря о комфорте зимой. Посему было принято решение попробовать сделать вентиляцию с ПВУ с рекуператором. Так как в Одессе все ищется по знакомым то была найдена компания которая взялась мне это устроить. После долгих обсуждений, чтений интернета, согласований с исполнителями был сделан проект и смета. В рекуператор вроде воздух из санузлов нельзя а через стену вентиляторами я не хотел из за шума (в квартире не переношу как гудит вентилятор, но спасает что естественная тяга очень сильная) было принято решение вывести вентканалы из санузлов на чердак, и там поставить два канальника. Сошлись мы с подрядчиками на Дайкине на 650 кубов (или 800, установка еще не куплена а каналы подойдут под обе, я еще думаю какую ставить ) Каналы на чердаке утеплены ватой с фольгой, надеюсь хватит. Вентиляция еще не доделана, проложены каналы в доме и на чердаке до установки. И у меня еще остались вопросы на которые надо получить ответ прежде чем доделывать: - насколько необходим в Одессе подогреватель воздуха электрический на входе перед установкой. - насколько необходимы управляемые задвижки, чтобы при выключенном рекуператоре глушить вентканалы (при отъездах например) Смета на вентиляцию получилась внушительная, но меньше чем мне посчитали в других конторах1 этаж Вавилова 2004 Model (1) (1).pdf2 этаж Вавилова 2004 Model (1).pdfЧердак Вавилова 2004 Model (1).pdf Посилання на коментар Поділитися на інших сайтах More sharing options...
eam Опубліковано: 3 травня 2019 Поділитись Опубліковано: 3 травня 2019 3.2 сотки земли, дом из газобетона 40см, без утепления, 2 этажа, холодный чердак под вальмовой битумной кровлей, гараж 4х6м Хм. Получается что соседский гараж вплотную стоит на меже и все с его крыши льется прямо к вам а ваш гараж расположен соответственно относительно следующего соседа? А как же противопожарные нормы (на глаз там между домами метра 3)? Посилання на коментар Поділитися на інших сайтах More sharing options...
Татьяна5 Опубліковано: 3 травня 2019 Поділитись Опубліковано: 3 травня 2019 Хм. Получается что соседский гараж вплотную стоит на меже и все с его крыши льется прямо к вам а ваш гараж расположен соответственно относительно следующего соседа? А как же противопожарные нормы (на глаз там между домами метра 3)? Это Одесса , там так можно )) 4 Посилання на коментар Поділитися на інших сайтах More sharing options...
floyd_od Опубліковано: 3 травня 2019 Автор Поділитись Опубліковано: 3 травня 2019 Это Одесса , там так можно )) В Одессе можно и гораздо хуже все . Сосед сделал водосточку со своего гаража, на моем она была уже сделана продаваном. В общем я надеюсь я понимаю на что пошел. Посилання на коментар Поділитися на інших сайтах More sharing options...
floyd_od Опубліковано: 3 травня 2019 Автор Поділитись Опубліковано: 3 травня 2019 Долго курил форум на предмет каминов, понял что хочу закрытую топку, камин будет больше декоративным чем резервным отоплением. Понял что дешёвые топки не стоит рассматривать из за того что стекло не будет оставаться чистым. При составлении дизайн проекта решил где будет камин. В углу в гостиной. Дымоход решил проложить по наружной стене дома. Изначально хотел угловую топку с гильотиной, думал о пьязетте, но каминщик отговорил. Потом думал о G&S угловой без гильотины - но в итоге сделал все по другому. Проблема которую я видел в угловой топке это то что телевизор слева от нее пришлось бы сдвигать минимум на метр от топки, и тогда телек с дивана нужно было бы смотреть под углом, или покупать топку с двойным стеклом, которая стоила бы как крыло от боинга и у меня банально не было денег на такую роскошь. Ставить не угловую топку в угол я не хотел, так как не нравился итоговый внешний вид. Как один из вариантов мне предложили Bef Home Flat 4L, угловая но угол внутренний. Для того чтобы убедиться что этот вариант мне подходит по дизайну, заказал визуализацию гостиной с учетом этой топки (изначально не заказывал визуализацию в дизайн проекте) Ребята по каминам установили мне шидель по наружной стене дома, но еще не утеплили, а также установили топку и сделали теплоемкий короб, как на визуализации, из шамотека. Вент решетка камина выходит на лестницу. На данный момент короб уже прошпаклеванный, но полку еще не сделал. Но марамор на полку уже заказал. 2 Посилання на коментар Поділитися на інших сайтах More sharing options...
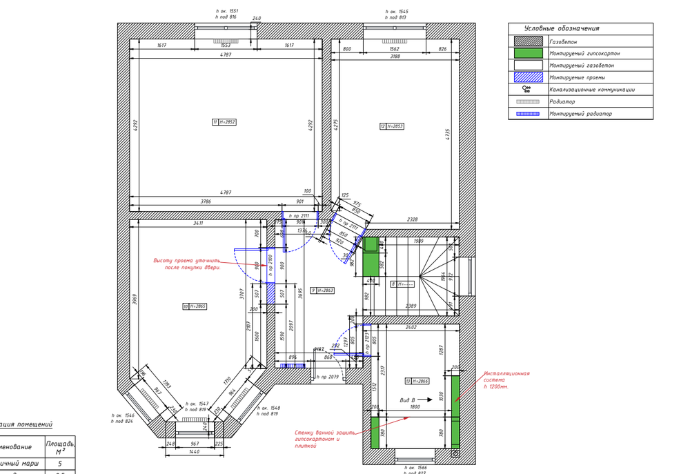
floyd_od Опубліковано: 3 травня 2019 Автор Поділитись Опубліковано: 3 травня 2019 Теперь можно про косяки, и собственные ошибки. Электрика в нашем проекте никак не ложилась на то что уже было сделанно в доме и к тому же сделана непонятным ШВВП, в итоге вся электрика делалась с нуля, что естественно привело к большому количеству штроб, и в итоге заделка штроб превратилась в перешаклевку стен. Ну и подравняли их немного. По электрике - не сразу удалось найти электрика который бы согласился работать не ШВВП и ПВс. В итоге я согласился на проводку на ВВП от одескабеля. Почему согласился - сейчас уже и не скажу, наверное стоило настоять на своем.. На первом этаже было сделано управление светом через релюшки в щитке. поменяли ввод электрики в дом, сделали промежуточный щиток в гараже. Когда делали сантехнику в санузле на первом этаже разбивали стяжку в углу и с ужасом обнаружили что "теплый" пол сделан очень оригинальным образом на по утрамбованному грунту накрутили трубы и залили стяжкой. Сказать что я обалдел это ничего не сказать. В итоге весь пол первого этажа нафик, залили черновой пол, 50мм ЭППС, блестящая пленка, трубы ТП, сетка и стяжка с фиброй. Вместе с этим добавил ТП в гостевой, и поменял гребенку. Нет худа без добра, так как снимали пол то проложили копофлексовские гофры под полом из щитка на улицу, щиток сделали в котельной, почти все кабели в комнаты сделаны сменяемыми через гофры, вывели гофры на чердак в том числе. Установив люк на чердак (изначально не было даже люка, зачем туда лазить ) обнаружил что перекрытие утеплено 100 мм минваты, в итоге добавил еще 150 мм, балки 200мм, обрешетка поперек и еще 50 мм ваты, поверх ваты паропроницаемая мембрана и доска с зазором. Один из главных косяков дома - не утеплены армопояса (два) и перемычки над окнами. Боюсь это приведет к необходимости утепления дома снаружи на данный момент денег на это нет - оставил как есть. В эту зиму дом брал 350-450 кубов газа в месяц. Сильных морозов в Одессе не было так что ничто не промерзало. Пытался посчитать утепление минватой 50 мм и потом барашек силиконовый - выходит - 8-9 килобаксов.. пока не готов. Добавлено через 8 минут Убрал "яйцо" на потолке в гостиной, пришлось полностью переделывать гипсокартон там. в кухне пришлось потолок ровнять. как и в некоторых других комнатах. Дом построили осенью как я понял, купил я его весной - он простоял зиму без отопления, маляры сказали что похоже гипсокартон покрутило кое-где. В итоге все потолки пошпаклеваны заново, как и стены. На стены по плану идет стекло-обои рогожка, и покраска. Рогожку Welltone перед праздниками поклеили в одной комнате и начали на лестнице. Краску на стены планирую Эскаровский 7й акрит. Чтобы не ошибиться с цветом съездили в эпик и заказали по литру выбранных цветов и сделали пробные выкраски, и не зря, в итоге два цвета пришлось менять. Радует что со второго раза вроде попали 2 Посилання на коментар Поділитися на інших сайтах More sharing options...
floyd_od Опубліковано: 3 травня 2019 Автор Поділитись Опубліковано: 3 травня 2019 на лестнице не понравились восемь поворотных ступеней, решили перезалить нижнюю часть лестницы, сделали поворотными шесть ступеней, теперь на все ступени полностью помещается нога. Сейчас в процессе переговоров с мастером по обшивки лестницы ясенем. Хочу вот так: Посилання на коментар Поділитися на інших сайтах More sharing options...
floyd_od Опубліковано: 3 травня 2019 Автор Поділитись Опубліковано: 3 травня 2019 На данный момент почти закончили укладывать плитку в санузлах. Примерную визуализацию сделали в Леокерамике. В нижнем санузле все получилось нормально, в верхнем вылезли проблемы. На стенах белая матовая плитка без фаски Tubadzin All in White 30x60см, пока не затерли затиркой выглядело все хорошо, после затирки получилось "не очень". Плитка по факту кривая (линзой), и даже если углы уложены ровно середина может немного выступать, и из-за бокового света с окна видна тень. Будут пробовать исправлять.. перекладывать штук 5-6 плиток - что из этого выйдет не уверен. Посилання на коментар Поділитися на інших сайтах More sharing options...
floyd_od Опубліковано: 3 травня 2019 Автор Поділитись Опубліковано: 3 травня 2019 Из того что хотелось бы обсудить, Буду делать заезд во двор и площадку для авто. Площадку думаю выкладывать той-же плиткой что сейчас на дорожках и отмостке. Вопрос по пирогу.. Пока планирую так: - подсыпка, трамбуем - геотекстиль? - щебень крупный (сколько сантиметров?) - щебень мелкий расклинить, трамбуем - геотекстиль? - гарцовка - плитка Вопрос, в каком месте геотекстиль правильно? или таки да надо два слоя до и после щебня? Въезд во двор думал делать вертикальную роллету, но начитался что может ветром выдавить, другой тип ворот не станет значит надо будет как-то выбирать роллету по ветровой нагрузке? или любую может вырвать? Посилання на коментар Поділитися на інших сайтах More sharing options...
xPavelx Опубліковано: 3 травня 2019 Поділитись Опубліковано: 3 травня 2019 Из того что хотелось бы обсудить, Буду делать заезд во двор и площадку для авто. Площадку думаю выкладывать той-же плиткой что сейчас на дорожках и отмостке. Вопрос по пирогу.. Пока планирую так: - подсыпка, трамбуем - геотекстиль? - щебень крупный (сколько сантиметров?) - щебень мелкий расклинить, трамбуем - геотекстиль? - гарцовка - плитка Вопрос, в каком месте геотекстиль правильно? или таки да надо два слоя до и после щебня? Въезд во двор думал делать вертикальную роллету, но начитался что может ветром выдавить, другой тип ворот не станет значит надо будет как-то выбирать роллету по ветровой нагрузке? или любую может вырвать? тоже планирую парковку в этом году, если буду делать с щебня (думаю еще над бетоном), то планирую примерно так - геотекстиль - щебень 20-40. ~20см - щебень 5-20. ~ 5см - гарцовка из гранотсева. - плитка 60мм. 1 Посилання на коментар Поділитися на інших сайтах More sharing options...
Сарочка Опубліковано: 3 травня 2019 Поділитись Опубліковано: 3 травня 2019 Из того что хотелось бы обсудить, Буду делать заезд во двор и площадку для авто. Площадку думаю выкладывать той-же плиткой что сейчас на дорожках и отмостке. Вопрос по пирогу.. Пока планирую так: - подсыпка, трамбуем - геотекстиль? - щебень крупный (сколько сантиметров?) - щебень мелкий расклинить, трамбуем - геотекстиль? - гарцовка - плитка Вопрос, в каком месте геотекстиль правильно? или таки да надо два слоя до и после щебня? Въезд во двор думал делать вертикальную роллету, но начитался что может ветром выдавить, другой тип ворот не станет значит надо будет как-то выбирать роллету по ветровой нагрузке? или любую может вырвать? Я бы делала два слоя геотекстиля 1- слой не даёт крупному щебню уходить в грунт 2- слой не даёт мелким фракциям гарцовки и песка проходить в слои щебня вместе с осадками вымывая таким образом основу из под брусчатки. 1 Посилання на коментар Поділитися на інших сайтах More sharing options...
JohnnyD Опубліковано: 3 травня 2019 Поділитись Опубліковано: 3 травня 2019 Из того что хотелось бы обсудить, Буду делать заезд во двор и площадку для авто. Площадку думаю выкладывать той-же плиткой что сейчас на дорожках и отмостке. Вопрос по пирогу.. Пока планирую так: - подсыпка, трамбуем - геотекстиль? - щебень крупный (сколько сантиметров?) - щебень мелкий расклинить, трамбуем - геотекстиль? - гарцовка - плитка Вопрос, в каком месте геотекстиль правильно? или таки да надо два слоя до и после щебня? Въезд во двор думал делать вертикальную роллету, но начитался что может ветром выдавить, другой тип ворот не станет значит надо будет как-то выбирать роллету по ветровой нагрузке? или любую может вырвать? Недавно здесь задавал подобный вопрос. У меня сейчас лежит на земле геотекстиль, сверху щебень 7-10 см. Заезжали 20-ти тонник, экскаватор. Щебень лишь разъехался в стороны и то не сильно, особо не продавился. Буду делать, подобно описанному Татьяной, пирогу, а именно щебень одной доставкой, песок,гарцовка. Геотекстиль только снизу, чтобы щебень не уехал в почву. 2 Посилання на коментар Поділитися на інших сайтах More sharing options...
floyd_od Опубліковано: 15 травня 2019 Автор Поділитись Опубліковано: 15 травня 2019 Собираюсь менять двери в доме в Одессе. Тамбура нет и не будет. После чтения форума думаю о дверях от Фенестры, но самая простая в исполнении термо с покраской и фрезеровкой с двух сторон выходит ~1100 EUR Стоимость для меня кусается. Читал про альтернативы но получается если мы говорим об аналогичной теплоизоляции двери, то в эти деньги альтернатив как бы и нет. Но, вопрос насколько мне в Одессе нужна такая теплая дверь? Морозы -15 у нас редкость (максимум 3-4 дня в году ). Насколько вероятны проблемы с конденсатом, и обмерзанием с дерями которые наши производители позиционируют как наружные для дома? Из того что рядом смотрю на Страж Proof. Пишут что полотно и коробка с терморазрывом, но нормального разреза коробки так и не увидел, везде в образцах только кусок из середины коробки, и там получается вата 50мм чс ребрами жесткости (мостики холода, но потом идет 20мм XPS), как это оформленно на ребре двери и как устроена коробка так и не понял, а продавци там где я был не захотели объяснять или не знали. По деньгам выходит до 700 баксов. Вопрос, поимею ли я проблемы с конденсатом и обмерзанием с такой дверью. В доме установлена ПВУ с рекуперацией, так что избыточной влажности в помещении не будет. В частном доме никогда не жил, так что о проблеме конденсата на двери, знаю только с этого форума Еще момент есть, дверь на солнечной стороне, и балкон над дверью до мая месяца не перекрывает солнечные лучи полностью. Фото в сообщении от начала апреля. Здесь на форуме резонно говорят что теплоизоляция дома должна быть сбалансированна. На данный момент дом не утеплен, построен из газобетона D400 400мм. Окна, с однокамерными пакетами, но типа "энергосберегающими". Как вишенка на торте не утепленные перемычки над окнами и армпояса. Перекрытие на холодный чердак 250мм в перекрест. Утеплять пока не буду, а там посмотрим.. Я боюсь что при данных вводных я не почувствую "всей прелести" Фенестровской двери Как вариант думал если будут проблемы, позхже добавить внутреннюю деревянную дверь, но хотелось бы этого избежать, так как в прихожей будет неудобно при двери открывающейся внутрь. Посилання на коментар Поділитися на інших сайтах More sharing options...
JohnnyD Опубліковано: 16 травня 2019 Поділитись Опубліковано: 16 травня 2019 Я бы смотрел в сторону металлопластиковой двери. Ее можно сделать в нужном размере, формы, со стеклом или без, цвете. Делают все те же оконные фирмы. Или же Фенестра базовая/термо без дополнительных хотелок. Если устраивает белый цвет. Исходя из цвета фасада, то белый не в тему конечно. Но точно не железную и тем более не с ватой внутри. 1 Посилання на коментар Поділитися на інших сайтах More sharing options...
ЮрийМ Опубліковано: 16 травня 2019 Поділитись Опубліковано: 16 травня 2019 Из того что рядом смотрю на Страж Proof. Пишут что полотно и коробка с терморазрывом, но нормального разреза коробки так и не увидел, везде в образцах только кусок из середины коробки Разрез коробки Страж Proof По сути обычная коробка без утеплителя. 2 Посилання на коментар Поділитися на інших сайтах More sharing options...
floyd_od Опубліковано: 16 травня 2019 Автор Поділитись Опубліковано: 16 травня 2019 Разрез коробки Страж Proof По сути обычная коробка без утеплителя. О! спасибо.. т.е. даже если сама дверь достаточно теплая, коробка будет промерзать скорее всего.. Возможно у кого то Пруф сттоит в качестве единтсвенной входной двери, как оно? Добавлено через 5 минут Я бы смотрел в сторону металлопластиковой двери. Ее можно сделать в нужном размере, формы, со стеклом или без, цвете. Делают все те же оконные фирмы. Или же Фенестра базовая/термо без дополнительных хотелок. Если устраивает белый цвет. Исходя из цвета фасада, то белый не в тему конечно. Но точно не железную и тем более не с ватой внутри. По факту это почти базовая фенестра Дверь: 556 EUR Termo исполнение: 135 EUR Двухцветная покраска: 225 EUR Цилиндр с ручкой примерно 140 EUR +/- Дверь выходит: 1056 EUR Фрезеровка и на внутренней стороне +56 Евро Итого из наворотов - Двухцветная покраска: 225 EUR, но мне без этого никак, изнутри белая должна быть, т.к. все двери белые внутри От внутренней фрезеровки откажусь скорее всего.. Посилання на коментар Поділитися на інших сайтах More sharing options...
SPClientOM Опубліковано: 16 травня 2019 Поділитись Опубліковано: 16 травня 2019 Тамбура нет и не будет. У меня также. Одна входная дверь - металлопластик Рехау с двухкамерным стеклопакетом. Открывается внутрь, вместо порожка такая же рама как и по периметру двери. Зимой внутри +25, снаружи -25. Не обмерзает, не запотевает. И ценник весьма и весьма гуманный по сравнению с Фенестрой... У меня дверь белого цвета, а можно заказать чтобы с одной сторны была белая, а с другой цветная. 2 Посилання на коментар Поділитися на інших сайтах More sharing options...
floyd_od Опубліковано: 16 травня 2019 Автор Поділитись Опубліковано: 16 травня 2019 У меня также. Одна входная дверь - металлопластик Рехау с двухкамерным стеклопакетом. Открывается внутрь, вместо порожка такая же рама как и по периметру двери. Зимой внутри +25, снаружи -25. Не обмерзает, не запотевает. И ценник весьма и весьма гуманный по сравнению с Фенестрой... У меня дверь белого цвета, а можно заказать чтобы с одной сторны была белая, а с другой цветная. Дверь открывающаяся внутрь не подходит я думаю. А если металопласт открывающийся наружу - то и петли будут снаружи С другой стороны дверь на терассу именно такая... но там будут роллеты скорее всего Посилання на коментар Поділитися на інших сайтах More sharing options...
JohnnyD Опубліковано: 16 травня 2019 Поділитись Опубліковано: 16 травня 2019 А если металопласт открывающийся наружу - то и петли будут снаружи Вас пугают петли снаружи? Вот так это выглядит у Фенестры Посилання на коментар Поділитися на інших сайтах More sharing options...
SPClientOM Опубліковано: 16 травня 2019 Поділитись Опубліковано: 16 травня 2019 Дверь открывающаяся внутрь не подходит я думаю. А если металопласт открывающийся наружу - то и петли будут снаружи С другой стороны дверь на терассу именно такая... но там будут роллеты скорее всего Петли наверное не критичны, так как взломостойкость металлопластиковой двери невелика при любом варианте установки. Главное чтобы отверстия для конденсата выходили наружу. Если дверь установить с открыванием на улицу, то отверстия для конденсата окажутся внутри помещения, и под дверью будет натекать лужица зимой. Возможно есть варианты решения этой проблемы, но мне о них неизвестно... Посилання на коментар Поділитися на інших сайтах More sharing options...
floyd_od Опубліковано: 16 травня 2019 Автор Поділитись Опубліковано: 16 травня 2019 Вас пугают петли снаружи? Не то чтобы пугают, скорее эстетически не нравятся. В принципе по безопасности наружный периметр дома будет защищен сигнализацией, так что совсем уж сильно не переживаю. Погуглю фотки таких таких дверей, может и понравится А какой порядок цен выйдет на такую дверь (размры стандартные)? Добавлено через 1 минуту Главное чтобы отверстия для конденсата выходили наружу. Если дверь установить с открыванием на улицу, то отверстия для конденсата окажутся внутри помещения, и под дверью будет натекать лужица зимой. Возможно есть варианты решения этой проблемы, но мне о них неизвестно... Хм, у меня дверь на терассу именно наружу открывается, надо поглядеть эти отверстия... Добавлено через 11 минут Задумался что делать с балконом сверху и крыльцом внизу. На балконе похоже плитка просто приклеена к стяжке без гидры и т.д. На штукатурке уже есть подтеки, надо что то делать.. Ставить капельник? Пока плитка на балконе не бухтит вроде. Думаю снять последний ряд, сделать капельник, и вернуть на место.. Не знаю как надолго этого хватит.. По крыльцу, не знаю есть ли гидроизоляция под бетоном.. Можно ли просто уложить керамогранит на крыльцо? Какой клей надо использовать? Или надо делать гидроизоляцию по бетону перед плиткой? Какой пирог? Я так понимаю вопрос стоит адресовать Propeller-у ? Посилання на коментар Поділитися на інших сайтах More sharing options...
Propeller Опубліковано: 17 травня 2019 Поділитись Опубліковано: 17 травня 2019 Здравствуйте! Сначала по крыльцу. 1. Если плитка, то обязательно полимер-цементная 2-компонентная гидроизоляция НА бетон (стяжку). 2. Клей обязательно с индексом S1 или S2. Классификация выглядиn обычно так : С2TES1 3. Затирка полимерцементная для наружных работ, соответсвующая ширине швов. Плиткой не подходить к фасаду вплотную. Оставить зазор (шов) и заполнить его потом герметиком. По балкону. Без демонтажа плитки. 1. www.5279009.com.ua/ekco/gallerydetail.cfm?iid=26 2. www.5279009.com.ua/ekco/gallerydetail.cfm?iid=32 2 Посилання на коментар Поділитися на інших сайтах More sharing options...
floyd_od Опубліковано: 17 травня 2019 Автор Поділитись Опубліковано: 17 травня 2019 Здравствуйте! Сначала по крыльцу. 1. Если плитка, то обязательно полимер-цементная 2-компонентная гидроизоляция НА бетон (стяжку). типа такой? www.ceresit.ru/ru/products/waterproofing/waterproofing-materials/cr-166.html По балкону. Без демонтажа плитки. 1. www.5279009.com.ua/ekco/gallerydetail.cfm?iid=26 2. www.5279009.com.ua/ekco/gallerydetail.cfm?iid=32 А если с демонтажем? то как крыльцо? Добавлено через 4 минуты По балкону, в этом случае мы порываем этим покрытием плитку и поверх камешки? Можете скинуть (можно в личку) предложение по материалам для балкона? Добавлено через 43 секунды А эти камешки потом грязь не забиваются? Посилання на коментар Поділитися на інших сайтах More sharing options...
Рекомендовані повідомлення
Створіть акаунт або увійдіть у нього для коментування
Ви маєте бути користувачем, щоб залишити коментар
Створити акаунт
Зареєструйтеся для отримання акаунта. Це просто!
Зареєструвати акаунтУвійти
Вже зареєстровані? Увійдіть тут.
Увійти зараз