Татьяна5 Опубліковано: 28 лютого 2020 Поділитись Опубліковано: 28 лютого 2020 А ну да, ну да. Серьезные просчеты. То, что я видел на этом форуме, на мой взгляд - эта планировка лучшая из одноэтажников. А если его еще и в кирпиче сваяяяяять :D:D:D...вааще бимба будет 1 Посилання на коментар Поділитися на інших сайтах More sharing options...
vadimv Опубліковано: 28 лютого 2020 Поділитись Опубліковано: 28 лютого 2020 А ну да, ну да. Серьезные просчеты.Серьезно, у нас в хрущобе была "зала" с выступающий углом. Это очень неудобно, его обмынать. А тут его впихнули в детскую. Посилання на коментар Поділитися на інших сайтах More sharing options...
vadimv Опубліковано: 28 лютого 2020 Поділитись Опубліковано: 28 лютого 2020 В этой планировке обмынать ничего не надо.Серьезно? Как насчет вот этих вот четырех (та даже пяти, два в одном) углов? Не говоря уже про стеночку посреди гостиной, которая постоянно будет путаться под ногами. 1 Посилання на коментар Поділитися на інших сайтах More sharing options...
vadimv Опубліковано: 28 лютого 2020 Поділитись Опубліковано: 28 лютого 2020 Покажите мне альтернативу для дома 10х10 в один этажВариант раз: 2 Посилання на коментар Поділитися на інших сайтах More sharing options...
vadimv Опубліковано: 28 лютого 2020 Поділитись Опубліковано: 28 лютого 2020 Вариант два: Посилання на коментар Поділитися на інших сайтах More sharing options...
vadimv Опубліковано: 28 лютого 2020 Поділитись Опубліковано: 28 лютого 2020 Вариант три: Посилання на коментар Поділитися на інших сайтах More sharing options...
vadimv Опубліковано: 28 лютого 2020 Поділитись Опубліковано: 28 лютого 2020 Что?? И это вот лучше чем у ТС?? Та ни в жизньБез проблем. Наше дело предложить, дело ТС - отказаться. Ему ж там жить. Посилання на коментар Поділитися на інших сайтах More sharing options...
vadimv Опубліковано: 28 лютого 2020 Поділитись Опубліковано: 28 лютого 2020 Ну да. У ТС пока намного лучшеТа да, особенно один совмещенный санузел на все случаи жизни... Посилання на коментар Поділитися на інших сайтах More sharing options...
vadimv Опубліковано: 28 лютого 2020 Поділитись Опубліковано: 28 лютого 2020 Троим и одного за глаза.Разве что в однокомнатной хрушобе. В двухкомнатных и то раздельный был. А вот комнаты в частном доме по 8-10м2, это нечтоКомнаты по 8-10м2 там при длине стены 8 м. Сделайте 10 - будут по 16м2. Посилання на коментар Поділитися на інших сайтах More sharing options...
Uk Опубліковано: 28 лютого 2020 Поділитись Опубліковано: 28 лютого 2020 Троим и одного за глаза. А вот комнаты в частном доме по 8-10м2, это нечто Если 2 барышни в семье - два су таки просто необходимость. Посилання на коментар Поділитися на інших сайтах More sharing options...
FLASH Опубліковано: 28 лютого 2020 Поділитись Опубліковано: 28 лютого 2020 Я бы без второго туалета дом не строил. Просто унитаз с умывальничком. 2 Посилання на коментар Поділитися на інших сайтах More sharing options...
FLASH Опубліковано: 28 лютого 2020 Поділитись Опубліковано: 28 лютого 2020 Если не цепляться за детали. Я ЗА Открытую кухню, объединенную с гостевой Выход на террасу с гостевой Я ПРОТИВ Тупо квадратного дома, это снаружи будет выглядеть дешевым и примитивным, осталось сайдингом обшить. Одного туалета Отсутствия душевой кабины Отсутствия кладовых (одежда, вещи) 2 Посилання на коментар Поділитися на інших сайтах More sharing options...
vadimv Опубліковано: 28 лютого 2020 Поділитись Опубліковано: 28 лютого 2020 не представляю я в одной комнате хороший проектор с изображением 150 дюймов, дорогая акустика и кухня с жареной рыбой. Это же атас полный, лютый ужас.Этот лютый ужас здесь на рисунке в первом сообщении темы. ;) Ждем может еще кто что предложитИ кстати, чтобы что-то предложить, нужно знать хотя бы размеры пятна застройки и ориентацию по сторонам света. И точный перечень помещений с площадями. Ничего этого нет. Посилання на коментар Поділитися на інших сайтах More sharing options...
vadimv Опубліковано: 29 лютого 2020 Поділитись Опубліковано: 29 лютого 2020 Короче, пока ТС молчит, лично я бы предложил свой любимый вариант одноэтажника с двумя спальнями (размеры произвольные, справа можно легко втулить гараж с входом через тамбур, кухню и выход на террасу можно при желании поменять местами): Посилання на коментар Поділитися на інших сайтах More sharing options...
hhh Опубліковано: 29 лютого 2020 Поділитись Опубліковано: 29 лютого 2020 Мой вариант 120 кв .м , печь конечно вам не нужна .. Посилання на коментар Поділитися на інших сайтах More sharing options...
Narval Опубліковано: 29 лютого 2020 Поділитись Опубліковано: 29 лютого 2020 Короче, пока ТС молчит, лично я бы предложил свой любимый вариант одноэтажника с двумя спальнями (размеры произвольные, справа можно легко втулить гараж с входом через тамбур, кухню и выход на террасу можно при желании поменять местами): Вот по этому дому мне не нравится 2 вещи : 1. Проходная комната гостиная. (когда реально сидят гости, а тебе что бы пройти в туалет надо через них пройти, ребенку пройти если гости родителей, или наоборот) 2. туалет напротив входной двери - радикально не по феншую. --------------- Раз начали выдавать планировки я тож свою запощу Недостаток что туалет один, но сдесь я сторонник того что оного туалета для 2-3 человек достаточно. 1 Посилання на коментар Поділитися на інших сайтах More sharing options...
Телесистемы Опубліковано: 29 лютого 2020 Поділитись Опубліковано: 29 лютого 2020 Обьясню, почему для инд жилого дома, даже совсем небольшого , необходимо два санузла. Во-первых, назовем их "гостевой" и "хозяйский", что предполагает - для гостей использование первого - там, в принципе , достаточно унитаза и умывальника. а хозяйский - остается личной зоной, с ванной , душем итп. Во-вторых, частный дом отличается от квартиры тем, что в нем предполагаются какие-либо "грязные" работы - уборка территории, уход за садом, цветами(и неважно, кто этим будет заниматься - хозяин или наемные работники) , кто-то любит помастерить. Во время таких работ или после очень удобно помыть руки или воспользоваться туалетом гостевым, расположенным поближе ко входу(т.к. хозяйский обычно располагается возле спален) чтобы не носить грязь по комнатам и коридорам. Поверьте моему уже двенадцатилетнему опыту проживания в доме. Посилання на коментар Поділитися на інших сайтах More sharing options...
anatol33 Опубліковано: 29 лютого 2020 Поділитись Опубліковано: 29 лютого 2020 Да. Это же маленький одноэтажник. Здесь это оправдано. В такие размеры априори не получится впихнуть комнату для просмотра 150 дюймового экрана. Я вообще сторонник того, что частный дом должен быть минимум 160-180м2. Вот мой минимальный набор 50м2 гостиная 2 спальни по 25м2 2 санузла 20м2 (15+5) 30м2 кабинет 20м2 кухня 10м2 коридор+лестница. Забули додати 2 кладові 10м, а також коридори на 2 поверхах зі сходами ніяк не будуть 10м, а всі 30 на такий будинок. Всього виходить у вас 210 м. Посилання на коментар Поділитися на інших сайтах More sharing options...
Narval Опубліковано: 29 лютого 2020 Поділитись Опубліковано: 29 лютого 2020 Дом 10*14, а размеры комнат такие же как и в 10*10. Пока ТС лидирует А есть у вас варианты чтобы с нормальными человеческими комнатами, а не аля клоповники? 9*11 плюс гараж ---- ТОесть человек думает построить 1этажный дом на 100 квадратов плюс гараж, а вы считаете что он обязан строить 200, потому что это ваш идеал? Посилання на коментар Поділитися на інших сайтах More sharing options...
vadimv Опубліковано: 29 лютого 2020 Поділитись Опубліковано: 29 лютого 2020 А есть у вас варианты чтобы с нормальными человеческими комнатами, а не аля клоповники?5х6 сойдет? Посилання на коментар Поділитися на інших сайтах More sharing options...
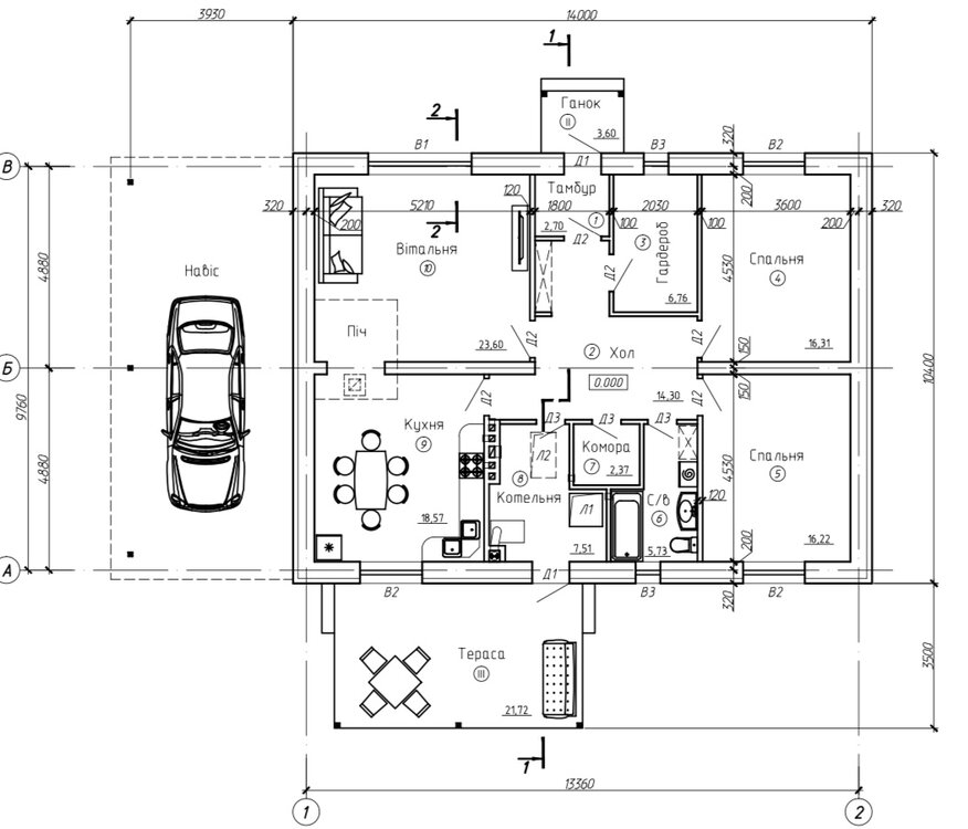
Gitan Опубліковано: 1 березня 2020 Поділитись Опубліковано: 1 березня 2020 Добрый день! Работаем с архитектором над планировкой. Фасады еще не трогали. Окна расставлены довольно условно. Нужно понимать, что участок широкий и не глубокий, поэтому тыльная стена будет практически глухой. Из особенностей - в нижней спальне будет организован тайный проход через шкаф в гараж, чтобы в случае чего можно было быстро смыться на машине, не используя главный вход в дом. В данный момент пришли к следующему. Буду благодарен за советы и рекомендации. Жить будет пара с ребенком 5 лет и котом. У меня практически аналогичные размеры и конфигурация дома. Вот только 2 эт. Чего и вам советую. Живем 2 взрослых, ребенок и собачка. https://www.stroimdom.com.ua/forum/showpost.php?p=3788417&postcount=132 https://www.stroimdom.com.ua/forum/showpost.php?p=3925526&postcount=172 Будет интересно, пишите в личку по поводу проекта. Посилання на коментар Поділитися на інших сайтах More sharing options...
Рекомендовані повідомлення
Створіть акаунт або увійдіть у нього для коментування
Ви маєте бути користувачем, щоб залишити коментар
Створити акаунт
Зареєструйтеся для отримання акаунта. Це просто!
Зареєструвати акаунтУвійти
Вже зареєстровані? Увійдіть тут.
Увійти зараз