nas-os Опубліковано: 31 березня 2020 Поділитись Опубліковано: 31 березня 2020 Всем привет! На дворе коронавирус, а это значит появилось много не оплачиваемого времени. Решил поделиться своими «успехами» в стройке. Участок купили в 2014году Начали строить в 2016 году. Так как стеснены в средствах, то всё что можно делать самостоятельно, делал сам. В 2019 году к строительству начала подключаться вторая половина. Изначально планировали построить временный домик, чтоб жить в нём во время стройки основного дома. После постройки основного дома, временный планировали под баньку. По размерам временный домик должен был быть 3,9х7,5м. Но потом, как то плавно пришли к тому, что из временного домика начали строить основной размером 7,5х10,5м это без учёта тамбура (входа) размером 1,5х3,3м. Проект дома рисовал в SketchUp. Вариантов дома получилось несколько. В основном, отличие между вариантами во втором этаже и крыше. Картинки двух вариантов выкладываю ниже. Первый этаж строится из газоблока 200х300х600 Д500, второй пока в двух вариантах. Перый из газоблока, второй каркасный. Больше склоняюсь к каркасному, так как после заливки межэтажного перекрытия останется много бруса 50х150, доски и фанеры. А так же каркасный будет легче, что немаловажно учитывая то, что у меня фасад дома стоит на колоннах. Колонны построены из клинкерного кирпича прочностной марки Д300 с трубой внутри сечением 80х80мм с толщиной стенки 6мм Что касается критики в адрес проделанной работы, прошу от неё воздержаться. Конструктивные предложения по второму этажу и крыше принимаются. По стройке слепил слайд шоу в четырёх сериях, т.е. серия в год. Кому интересно, смотрите на здоровье. Кому понравилось, жмите соответствующую кнопку. Если будут вопросы, задавайте. Всем благ и не болеть! 13 Посилання на коментар Поділитися на інших сайтах More sharing options...
Технолог Опубліковано: 31 березня 2020 Поділитись Опубліковано: 31 березня 2020 только Оптимизм и все будет гуд. удачи! 1 Посилання на коментар Поділитися на інших сайтах More sharing options...
razzil Опубліковано: 31 березня 2020 Поділитись Опубліковано: 31 березня 2020 я бы просчитал нагрузку на колонны. И на что они опираются? Со стороны хлипковато выглядит.. Посилання на коментар Поділитися на інших сайтах More sharing options...
nas-os Опубліковано: 31 березня 2020 Автор Поділитись Опубліковано: 31 березня 2020 (змінено) только Оптимизм и все будет гуд. удачи! Спасибо большое! я бы просчитал нагрузку на колонны. И на что они опираются? Со стороны хлипковато выглядит.. А вы посмотрите видео 2016 года, там от начала и до колонн. Кирпичь покупал Ошибся трошки я с маркой прочности кирпича. Марка прочности М350 пустотность 36%. Бетон под колоннами Б25 с армированием. Я считал, нагрузку на колонну. На одну колонну нагрузка без учёта крыши и второго этажа порядка 3 тонн. Это с учётом межэтажного перекрытия. Если делать 2 этаж из газоблока, то эта цифра увеличиться в два раза. Это всё с запасом. Если делать второй этаж каркасный, то суммарный вес на колонну будет менне 5 тонн. Запаса прочности кирпича более чем достаточно. Змінено 31 березня 2020 користувачем Хохол п8 Посилання на коментар Поділитися на інших сайтах More sharing options...
xPavelx Опубліковано: 31 березня 2020 Поділитись Опубліковано: 31 березня 2020 Если делать второй этаж каркасный, то суммарный вес на колонну будет менне 5 тонн. Запаса прочности кирпича более чем достаточно. а несущей способности грунта ? Добавлено через 5 минут посмотрел слайды с ютуба, вопрос отпал. Посилання на коментар Поділитися на інших сайтах More sharing options...
digor_ua Опубліковано: 31 березня 2020 Поділитись Опубліковано: 31 березня 2020 Перый из газоблока, второй каркасный. Больше склоняюсь к каркасному, так как после заливки межэтажного перекрытия останется много бруса 50х150, доски и фанеры. как по мне то строить дом из досок опалубки (черных, грязных, покрученных и тд) както не очень рельеф местности круто обыграли, не всякий архитектор так сможет Посилання на коментар Поділитися на інших сайтах More sharing options...
nas-os Опубліковано: 31 березня 2020 Автор Поділитись Опубліковано: 31 березня 2020 а несущей способности грунта ? Добавлено через 5 минут посмотрел слайды с ютуба, вопрос отпал. Сосед делал геологию. Там суглинок. А вообще там не грунт а камень. Когда сухо, лопату воткнуть невозможно. как по мне то строить дом из досок опалубки (черных, грязных, покрученных и тд) както не очень Ну зачем же покрученых? Брус 50х150 идёт на подпорку опалубки перекрытия. Чем его покрутит? Он даже бетона касаться не будет. В каркасе доски я вообще применять не планировал. Разве что как временные элементы. А что касается фанеры на опалубке, так вопервых, я буду прокладывать между бетоном и фанерой полиэтиленовую пленку. А вовторых, если запачкается, то можно грязной стороной прикрутить на улицу ну или внутрь стены. Со стороны улицы всё равно будет всё обшиваться утеплителем и фасадом, так что это вообще не проблема. рельеф местности круто обыграли, не всякий архитектор так сможет Это всё спонтанно, а вообще у меня тесть инженер-строитель. Он много в Киеве запроектировал. Правда от этого мне не легче. В его 84 года очень с ним тяжело общаться. Посилання на коментар Поділитися на інших сайтах More sharing options...
Сарочка Опубліковано: 31 березня 2020 Поділитись Опубліковано: 31 березня 2020 Как человек( без отсылки на пол) , что построила дом своими руками,могу сказать, что это сложно. Сложно столько лет ,упорно идти к своей цели. У вас ложный рельеф, сложный проект, упрощайте сейчас на сколько возможно. Иначе силы когда- то иссякнут, хорошо, если к тому времени будет пройдена финишная черта( хотя бы очерченная на основном этапе) . Отдых и ощущение большого сделанно дела, дадут новые силы. Время подведения итогов, как правило зима- перерыв между сезонами и это время отдыха с чувством удовлетворения. И оно либо даёт силы на новый этап, либо занимается самоедство по типу- а нафига все это надо- слишком много жертв. А, и отделка вот всего что вы построите потребует времени ( и денег)в два раза больше чем возведение коробки. Поэтому стоит ещё раз все взвесить. Я там вижу у вас мансарда вырисовывается. Так вот теперь могу сказать- мансарда сожрала много денег и оооочень много времени, даже больше жалко времени , нежели денег. А ведь меня предупреждали . Это было самое ужасное в стройке- вата. До сих пор чешусь от воспоминаний. И все бетонные работы по сравнению с ней просто прекрасны и увлекательны. Желаю удачи, терпения и финансов на успешное завершение проекта! 6 Посилання на коментар Поділитися на інших сайтах More sharing options...
nas-os Опубліковано: 1 квітня 2020 Автор Поділитись Опубліковано: 1 квітня 2020 Сарочка спасибо большое! Согласен с вами полностью. В моём случае, по крайней мере пока, энтузиазма хватает, а вот с деньгами напряг. В любом случае, на этот год хочу закончить первый этаж, залить межэтажное перекрытие и накрыть временной крышей. А то в подвале, где я пока ночую, во время дождей маленький душ Если финансы позволят, то было бы не плохо и окна поставить. Тогда можно будет из подвала ночлег перенести на первый этаж)) Посилання на коментар Поділитися на інших сайтах More sharing options...
loader Опубліковано: 2 квітня 2020 Поділитись Опубліковано: 2 квітня 2020 Денег нет и 3 этажа Может пожалейте себя и сделайте хотя бы 2 :D 3 Посилання на коментар Поділитися на інших сайтах More sharing options...
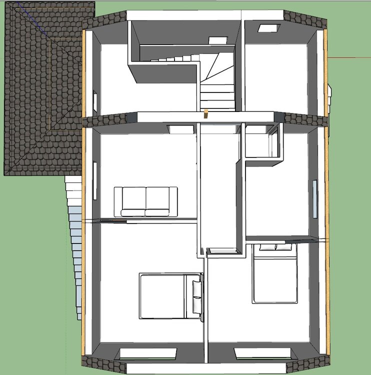
nas-os Опубліковано: 2 квітня 2020 Автор Поділитись Опубліковано: 2 квітня 2020 loader спасибо за критику! Эсли мансарда и подвал в вашем понимании это этажи, ну чтож такой я человек Я правда не описал площадь своего домика. Исправляюсь Дом состоит из трёх уровней, -1 этаж, он же подвал, 1 этаж, 2 этаж он же мансардный. Подвал состоит из трёх помещений Санузел 2,5м.кв Парная 4,4м.кв Предбанник 14м.кв 1 этаж Гостинная студия 47м.кв Санузел 6м.кв. Коридор с лестницей на второй этаж 11,7м.кв Тамбур(вход в дом) 3,1м.кв 2этаж(мансарда) Спальные комнаты 9м.кв, 11,1м.кв, 13,5м.кв Кабинет 6,6м.кв Кладовка 6м.кв Коридор 5,7м.кв Санузел 6,2м.кв Может чуть позже, приведу в порядок проект дома и выложу поэтажную планировку с метражём. Посилання на коментар Поділитися на інших сайтах More sharing options...
Сарочка Опубліковано: 2 квітня 2020 Поділитись Опубліковано: 2 квітня 2020 loader спасибо за критику! Эсли мансарда и подвал в вашем понимании это этажи, ну чтож такой я человек Я правда не описал площадь своего домика. Исправляюсь Дом состоит из трёх уровней, -1 этаж, он же подвал, 1 этаж, 2 этаж он же мансардный. Подвал состоит из трёх помещений Санузел 2,5м.кв Парная 4,4м.кв Предбанник 14м.кв 1 этаж Гостинная студия 47м.кв Санузел 6м.кв. Коридор с лестницей на второй этаж 11,7м.кв Тамбур(вход в дом) 3,1м.кв 2этаж(мансарда) Спальные комнаты 9м.кв, 11,1м.кв, 13,5м.кв Кабинет 6,6м.кв Кладовка 6м.кв Коридор 5,7м.кв Санузел 6,2м.кв Может чуть позже, приведу в порядок проект дома и выложу поэтажную планировку с метражём. Сильно удивитесь, но БТИ как раз вот эти все подвалы( цоколи), мансарды вполне себе считает этажами. Поэтому документально оформленный ваш дом будет зваться трехэтажным. 1 Посилання на коментар Поділитися на інших сайтах More sharing options...
Gitan Опубліковано: 2 квітня 2020 Поділитись Опубліковано: 2 квітня 2020 Сильно удивитесь, но БТИ как раз вот эти все подвалы( цоколи), мансарды вполне себе считает этажами. Поэтому документально оформленный ваш дом будет зваться трехэтажным. Мансарду за этаж не считают. Посилання на коментар Поділитися на інших сайтах More sharing options...
digor_ua Опубліковано: 2 квітня 2020 Поділитись Опубліковано: 2 квітня 2020 Мансарду за этаж не считают. если быть точным то там пишут "будынок з мансардою" при этом мансарда участвует в учете количества жилплощади, как общей, так и жилой даже план комнат рисуется 4 Посилання на коментар Поділитися на інших сайтах More sharing options...
loader Опубліковано: 2 квітня 2020 Поділитись Опубліковано: 2 квітня 2020 loader спасибо за критику! Эсли мансарда и подвал в вашем понимании это этажи, ну чтож такой я человек да я не критикую, так набрасую на вентилятор что урезание хотелок может сильно приблизить цель в ситуации ограниченых ресорсов. свои силы оценивать это ваша задача у меня тоже мансарда, не думаю что это сильно экономит, все равно обьемы отделки внешней и внутренней +- те же. 1 Посилання на коментар Поділитися на інших сайтах More sharing options...
DEN24 Опубліковано: 2 квітня 2020 Поділитись Опубліковано: 2 квітня 2020 Вот чесслово дело вам предлагают, уходите от мансарды. Буквально приподняв боковые стены второго этажа становится полноценным. Если остановитесь на газоблоке (думаю в конце концов оно так и будет) спокойно зальете армопояс по всему периметру дома, в данном проекте это гемморой и возможные необратимые последствия в будущем. Уход от вальмовой к двускатной кровле - красоты данное решение как не добавит так и не убавит, за то экономия на материалах и выполнении работ, а при желании можно сложить такую кровлю самому. Избегайте сложных узлов, мансарда это как раз тот случай, а, как говорят, самый лучший узел это его отсутствие. 1 Посилання на коментар Поділитися на інших сайтах More sharing options...
nas-os Опубліковано: 2 квітня 2020 Автор Поділитись Опубліковано: 2 квітня 2020 да я не критикую, так набрасую на вентилятор что урезание хотелок может сильно приблизить цель в ситуации ограниченых ресорсов. свои силы оценивать это ваша задача у меня тоже мансарда, не думаю что это сильно экономит, все равно обьемы отделки внешней и внутренней +- те же. Спасибо! Вот чесслово дело вам предлагают, уходите от мансарды. Буквально приподняв боковые стены второго этажа становится полноценным. Хмм, как то не слышал я предложений)) В основном споры определения этажности. Я в оформлении пока профан. Так то спорить не буду, как дойдёт дело, тогда и буду изучать. Процесс оформления всё равно не избежен) И кста ти, у меня знакомый дом построил, так его мансарду в жилую площадь не включили. Оформялся он 3 года назад. Если остановитесь на газоблоке (думаю в конце концов оно так и будет) спокойно зальете армопояс по всему периметру дома, в данном проекте это гемморой и возможные необратимые последствия в будущем. Вот про геморой, подробнее плз. люблю я его)) Уход от вальмовой к двускатной кровле - красоты данное решение как не добавит так и не убавит, за то экономия на материалах и выполнении работ, а при желании можно сложить такую кровлю самому. Тоже об этом думал, но пока до крыши мне ещё как до луны, так что время подумать есть. Избегайте сложных узлов, мансарда это как раз тот случай, а, как говорят, самый лучший узел это его отсутствие. Спасибо! Посилання на коментар Поділитися на інших сайтах More sharing options...
Сарочка Опубліковано: 2 квітня 2020 Поділитись Опубліковано: 2 квітня 2020 Оформляла в прошлом году- высота аттиковых стен 180 см- аж бегом посчитали как второй этаж. . Гемор с мансардой был при заливке пояса. Вот эти все подъемы, чтоб сделать его не разрывным, добавили кучу времени на изготовление. Потом много, очень много дорогостоящих материалов ( если делать не клеенкой) . Мансардные окна- отдельная песня. Да, они прекрасны, если их сильно хотеть. Но это Геморой геморойный. Вот только неделю назад делала последний откос на последнем окне. Знатно ругалась, думаю не все слова из моего лексикона знают некоторые представители данного сообщества. Скатный потолок. Засады две- первая отделка. Не так много материалов . Один дороже другого, требуют отдельных независимых каркасов по хорошему. По плохому. Потолок живет жизнью крыши- тут немножко расширяется, тут немножко сужается и идеальный каркас через время перестаёт быть идеальным и требует доработки. . Засада вторая- и вот у вас случились траблы с крышей... последствия можно устранить, но разрушения потолка неизбежны. Хорошо, если конструкция собрал- разобрал. А если гипсокартон? И ещё минус- мебель. Не все что вам хочется, вы сможете реализовать в условиях маленьких комнат. И в своё время, меня обо всем этом предупреждали. Но мне очень, очень хотелось мансардные окна. У меня они огромные и ради них все затевалось. В общем на мансарду нужно идти осознанно, а не из того, что это “ рациональное использование подкрышного пространства» 3 Посилання на коментар Поділитися на інших сайтах More sharing options...
DEN24 Опубліковано: 2 квітня 2020 Поділитись Опубліковано: 2 квітня 2020 Вот про геморой, подробнее плз. люблю я его)) При том плане\рисунке, который есть в данный момент, армопояс достаточно проблематично будет сделать закольцованным т.к. оконные проемы будут мешать и маурлат при вальме на разных уровнях, а при газоблоке его однозначно необходимо сделать таковым. а в западных техкартах при выполнении стен из газоблока он вообще должен быть двойной... 1 Посилання на коментар Поділитися на інших сайтах More sharing options...
nas-os Опубліковано: 3 квітня 2020 Автор Поділитись Опубліковано: 3 квітня 2020 Оформляла в прошлом году- высота аттиковых стен 180 см- аж бегом посчитали как второй этаж. . Гемор с мансардой был при заливке пояса. Вот эти все подъемы, чтоб сделать его не разрывным, добавили кучу времени на изготовление. Потом много, очень много дорогостоящих материалов ( если делать не клеенкой) . Мансардные окна- отдельная песня. Да, они прекрасны, если их сильно хотеть. Но это Геморой геморойный. Вот только неделю назад делала последний откос на последнем окне. Знатно ругалась, думаю не все слова из моего лексикона знают некоторые представители данного сообщества. Скатный потолок. Засады две- первая отделка. Не так много материалов . Один дороже другого, требуют отдельных независимых каркасов по хорошему. По плохому. Потолок живет жизнью крыши- тут немножко расширяется, тут немножко сужается и идеальный каркас через время перестаёт быть идеальным и требует доработки. . Засада вторая- и вот у вас случились траблы с крышей... последствия можно устранить, но разрушения потолка неизбежны. Хорошо, если конструкция собрал- разобрал. А если гипсокартон? И ещё минус- мебель. Не все что вам хочется, вы сможете реализовать в условиях маленьких комнат. И в своё время, меня обо всем этом предупреждали. Но мне очень, очень хотелось мансардные окна. У меня они огромные и ради них все затевалось. В общем на мансарду нужно идти осознанно, а не из того, что это “ рациональное использование подкрышного пространства» Спаксибо большое за предостережение! Наверное таки сделаю второй этаж полноценным. Скорее всего из каркаса, так как у меня только стоек под опалубку высотой 2,5м будет 54шт, кроме этого балки опалубки. В общем у меня только бруса 80шт (2,5м.куб) Грех его не использовать. Да и если учесть размеры листа ОСБ , я имею в виду 2,5м, то сам Бог велел сделать стены высотой 2,5м При том плане\рисунке, который есть в данный момент, армопояс достаточно проблематично будет сделать закольцованным т.к. оконные проемы будут мешать и маурлат при вальме на разных уровнях, а при газоблоке его однозначно необходимо сделать таковым. а в западных техкартах при выполнении стен из газоблока он вообще должен быть двойной... Спасибо! Согласен с вами. Я просто сначала не понял о чем вы. Как написал выше, то скорее всего буду делать каркас и вероятно двухскатная крыша по вашему совету. У меня даже заброшеный проект такой крыши есть. Посилання на коментар Поділитися на інших сайтах More sharing options...
Рекомендовані повідомлення
Створіть акаунт або увійдіть у нього для коментування
Ви маєте бути користувачем, щоб залишити коментар
Створити акаунт
Зареєструйтеся для отримання акаунта. Це просто!
Зареєструвати акаунтУвійти
Вже зареєстровані? Увійдіть тут.
Увійти зараз