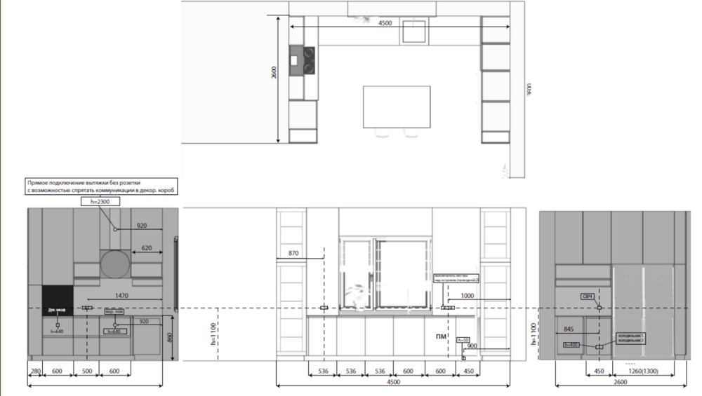
SergeyGM Опубліковано: 26 листопада 2021 Автор Поділитись Опубліковано: 26 листопада 2021 начинаем заморачиваться с плиткой в кухне. По другому не могу это назвать. И вот почему. На эскизе ниже раскладка. Размер плитки 30*90. Если следовать правилу, что сначала плитка, а столешница - под нее, то по углам окна возникают четыре плитки, которые, обходя окно, имеют выступы по 4-5 см шириной и 40 см длиной. Плиточник говорит, что ширину выступа надо бы не менее 10 см. Но этого достичь можно только если: 1) начинать выкладывать первый нижний ряд на 8 см ниже, т.е не с целой плитки, а с подрезом, но это скажется на качестве примыкания к столешнице; 2) запустить плитку ниже столешницы, то есть столешница будет упираться в плитку, а не заходить под нее и, тогда наличие плинтуса неминуемо. Что скажете? Какая будет наименьшая из зол? Возможно есть другие решения Посилання на коментар Поділитися на інших сайтах More sharing options...
shneider_vova Опубліковано: 26 листопада 2021 Поділитись Опубліковано: 26 листопада 2021 А покажите, как мебель будет на этой стене Посилання на коментар Поділитися на інших сайтах More sharing options...
SergeyGM Опубліковано: 26 листопада 2021 Автор Поділитись Опубліковано: 26 листопада 2021 (змінено) 13 минут назад, shneider_vova сказал: А покажите, как мебель будет на этой стене на этой стене - только нижний ряд шкафов. Змінено 26 листопада 2021 користувачем SergeyGM Посилання на коментар Поділитися на інших сайтах More sharing options...
shneider_vova Опубліковано: 26 листопада 2021 Поділитись Опубліковано: 26 листопада 2021 а что будет на подоконнике? Посилання на коментар Поділитися на інших сайтах More sharing options...
SergeyGM Опубліковано: 26 листопада 2021 Автор Поділитись Опубліковано: 26 листопада 2021 горшочки с цветами Посилання на коментар Поділитися на інших сайтах More sharing options...
Татьяна5 Опубліковано: 26 листопада 2021 Поділитись Опубліковано: 26 листопада 2021 Я силиконю стык плитка/столешница. Не важно примыкает или заходит под 1 1 Посилання на коментар Поділитися на інших сайтах More sharing options...
shneider_vova Опубліковано: 26 листопада 2021 Поділитись Опубліковано: 26 листопада 2021 8 минут назад, SergeyGM сказал: горшочки с цветами в смысле - какая отделка подоконника и откосов? Посилання на коментар Поділитися на інших сайтах More sharing options...
SergeyGM Опубліковано: 26 листопада 2021 Автор Поділитись Опубліковано: 26 листопада 2021 4 минуты назад, shneider_vova сказал: в смысле - какая отделка подоконника и откосов? подоконник из влагостойкого ДСП Topalit. Откосы - из плитки. Посилання на коментар Поділитися на інших сайтах More sharing options...
shneider_vova Опубліковано: 26 листопада 2021 Поділитись Опубліковано: 26 листопада 2021 8 минут назад, SergeyGM сказал: подоконник из влагостойкого ДСП Topalit. Откосы - из плитки. в вашей раскладке учтена толщина подоконника? Посилання на коментар Поділитися на інших сайтах More sharing options...
SergeyGM Опубліковано: 26 листопада 2021 Автор Поділитись Опубліковано: 26 листопада 2021 14 минут назад, shneider_vova сказал: в вашей раскладке учтена толщина подоконника? да, верх подоконника 95 см, низ подоконника - 93 см. Верх столешницы - 88 см Посилання на коментар Поділитися на інших сайтах More sharing options...
andrey_ka Опубліковано: 26 листопада 2021 Поділитись Опубліковано: 26 листопада 2021 1 година тому, SergeyGM сказав: но это скажется на качестве примыкания к столешнице; Чому? Невже плиточнику стане проблемою рівно врізати плитку? Посилання на коментар Поділитися на інших сайтах More sharing options...
SergeyGM Опубліковано: 26 листопада 2021 Автор Поділитись Опубліковано: 26 листопада 2021 Только что, andrey_ka сказал: Чому? Невже плиточнику стане проблемою рівно врізати плитку? его квалификация меня устраивает, но такой подрез энтузиазма у него не вызвал. Хотя, как по мне, они и посложнее узлы отлично делал. Посилання на коментар Поділитися на інших сайтах More sharing options...
metall_version Опубліковано: 26 листопада 2021 Поділитись Опубліковано: 26 листопада 2021 в нашем варике столешница заходит в оконный проем, и получается столешница и есть подоконник, высота вроде 88 Посилання на коментар Поділитися на інших сайтах More sharing options...
andrey_ka Опубліковано: 26 листопада 2021 Поділитись Опубліковано: 26 листопада 2021 (змінено) 26 хвилин тому, SergeyGM сказав: его квалификация меня устраивает, но такой подрез энтузиазма у него не вызвал. Хотя, как по мне, они и посложнее узлы отлично делал. Це одна з найпростіших операцій в плиточних роботах , тим більше оплочується додатково , як чистовий різ. Може він цього не знає , ви його зацікавте. Якщо плиточник боїться зарізати ці чотири плитки таким чином , то завезіть на фірму яка спеціалізується на порізці плитки , і вам там її поріжуть , а плиточнику залишиться її викласти. ПС.. Якщо ви опустите плитку на 8см. , то ці 8см. доведеться викладати під стелю. А як на мене , краще коли під стелю підходить ціла плитка. Змінено 26 листопада 2021 користувачем andrey_ka 1 Посилання на коментар Поділитися на інших сайтах More sharing options...
SergeyGM Опубліковано: 26 листопада 2021 Автор Поділитись Опубліковано: 26 листопада 2021 47 минут назад, andrey_ka сказал: Це одна з найпростіших операцій в плиточних роботах , тим більше оплочується додатково , як чистовий різ. Може він цього не знає , ви його зацікавте. Якщо плиточник боїться зарізати ці чотири плитки таким чином , то завезіть на фірму яка спеціалізується на порізці плитки , і вам там її поріжуть , а плиточнику залишиться її викласти. ПС.. Якщо ви опустите плитку на 8см. , то ці 8см. доведеться викладати під стелю. А як на мене , краще коли під стелю підходить ціла плитка. а что за фирмы по порезке плитки? В смысле что за направление у них? Посилання на коментар Поділитися на інших сайтах More sharing options...
andrey_ka Опубліковано: 26 листопада 2021 Поділитись Опубліковано: 26 листопада 2021 5 хвилин тому, SergeyGM сказав: а что за фирмы по порезке плитки? В смысле что за направление у них? Різати будь-яку плитку , в будь-який розмір , під будь-яким кутом. Посилання на коментар Поділитися на інших сайтах More sharing options...
Dendnepr Опубліковано: 27 листопада 2021 Поділитись Опубліковано: 27 листопада 2021 8 часов назад, SergeyGM сказал: да, верх подоконника 95 см, низ подоконника - 93 см. Верх столешницы - 88 см Я бы поднял столешницу под верх подоконника. У меня так и запланированно. Нам всегда низковато у других на кухне. Где "стандартная " высота столешницы 1 Посилання на коментар Поділитися на інших сайтах More sharing options...
Narval Опубліковано: 27 листопада 2021 Поділитись Опубліковано: 27 листопада 2021 8 минут назад, Dendnepr сказал: Я бы поднял столешницу под верх подоконника. У меня так и запланированно. Нам всегда низковато у других на кухне. Где "стандартная " высота столешницы Все индивидуально. я тоже чуть поднял из-за дизайна (ручка врезная) теперь жалею. 1 Посилання на коментар Поділитися на інших сайтах More sharing options...
Dendnepr Опубліковано: 27 листопада 2021 Поділитись Опубліковано: 27 листопада 2021 Да. Индивидуально. Поэтому одно время в кармане была рулетка и все везде мерял в гостях 2 1 Посилання на коментар Поділитися на інших сайтах More sharing options...
FTR Опубліковано: 27 листопада 2021 Поділитись Опубліковано: 27 листопада 2021 3 часа назад, Narval сказал: я тоже чуть поднял из-за дизайна (ручка врезная) теперь жалею. А сначала подумать, сделать визуализацию, а потом делать не пробовали? Ну что бы не жалеть потом)) Посилання на коментар Поділитися на інших сайтах More sharing options...
FTR Опубліковано: 27 листопада 2021 Поділитись Опубліковано: 27 листопада 2021 3 часа назад, Dendnepr сказал: Я бы поднял столешницу под верх подоконника. У меня так и запланированно. Нам всегда низковато у других на кухне. Где "стандартная " высота столешницы Поднять уровень столешницы до уровня подоконника правильное решение. Подоконник можно выполнить из такого же материала как столешница. В противном случае будет разбег по горизонтальным линиям, что режет глаз. Если подоконник будет отличаться от столешницы - получите визуальное пятно. Ещё необходимо учесть вопрос запотевание окна. Отсутствие батареи под окном и близкое расположение мойки, может вызвать обильное запотевание стёкол окна (влажность воздуха и температура в помещении могут уменьшить или усилить) 1 Посилання на коментар Поділитися на інших сайтах More sharing options...
SergeyGM Опубліковано: 27 листопада 2021 Автор Поділитись Опубліковано: 27 листопада 2021 (змінено) Подоконник уже стоит. Подымать столешницу до его уровня - высоко будет, уже экспериментировали Змінено 27 листопада 2021 користувачем SergeyGM 1 Посилання на коментар Поділитися на інших сайтах More sharing options...
Vikctor Опубліковано: 27 листопада 2021 Поділитись Опубліковано: 27 листопада 2021 57 минут назад, FTR сказал: Поднять уровень столешницы до уровня подоконника правильное решение. Подоконник можно выполнить из такого же материала как столешница. В противном случае будет разбег по горизонтальным линиям, что режет глаз. Если подоконник будет отличаться от столешницы - получите визуальное пятно. Ещё необходимо учесть вопрос запотевание окна. Отсутствие батареи под окном и близкое расположение мойки, может вызвать обильное запотевание стёкол окна (влажность воздуха и температура в помещении могут уменьшить или усилить) Отсутствует батарея радиатор под кухонным окном. Вообще они у меня только в спальнях присутствуют, да и там о их присутствии очень жалею. Окна нигде упорно не текут... Посилання на коментар Поділитися на інших сайтах More sharing options...
FTR Опубліковано: 27 листопада 2021 Поділитись Опубліковано: 27 листопада 2021 5 минут назад, Vikctor сказал: Отсутствует батарея радиатор под кухонным окном. Вообще они у меня только в спальнях присутствуют, да и там о их присутствии очень жалею. Окна нигде упорно не текут... Отлично, у вас относительная влажность меньше 50%, на кухне влажность в зоне мойки может быть больше. Но если температура воздуха и влажность будут в пределах нормы, и стеклопакет с енергосбережением, конденсации на окнах не будет. Посилання на коментар Поділитися на інших сайтах More sharing options...
Vikctor Опубліковано: 27 листопада 2021 Поділитись Опубліковано: 27 листопада 2021 Только что, FTR сказал: Отлично, у вас относительная влажность меньше 50%, на кухне влажность в зоне мойки может быть больше. Но если температура воздуха и влажность будут в пределах нормы, и стеклопакет с енергосбережением, конденсации на окнах не будет. Да, с низкой влажностью зимой беда. Бывает даже меньше 40%. Но в том же ноябре уже топлю и при влажности выше 60% всё равно не конденсируется влага на окнах Посилання на коментар Поділитися на інших сайтах More sharing options...
Рекомендовані повідомлення
Створіть акаунт або увійдіть у нього для коментування
Ви маєте бути користувачем, щоб залишити коментар
Створити акаунт
Зареєструйтеся для отримання акаунта. Це просто!
Зареєструвати акаунтУвійти
Вже зареєстровані? Увійдіть тут.
Увійти зараз