Татьяна5 Опубліковано: 1 жовтня 2020 Поділитись Опубліковано: 1 жовтня 2020 где можно взять фиброцемент за 30 ? Самое дешевое что нашел пока - 50у.е\м2 + 700грн\м2 всякие закладные Cedral, но надо торговаться и брать из наличия Посилання на коментар Поділитися на інших сайтах More sharing options...
xPavelx Опубліковано: 1 жовтня 2020 Поділитись Опубліковано: 1 жовтня 2020 Cedral, но надо торговаться и брать из наличия узнавал у нескольких продавцов за него, Cedral ушел с рынка Украины. Если его и привезут - то ждать до 2месяцев и это будут только планочки, всякие внутренние\наружные углы и другие комлектующие вообще не возят. Посилання на коментар Поділитися на інших сайтах More sharing options...
shneider_vova Опубліковано: 1 жовтня 2020 Поділитись Опубліковано: 1 жовтня 2020 какой фиброцемент можно взять за 30 ? Самое дешевое что нашел пока - 50у.е\м2 + 700грн\м2 всякие закладные я пока краем глаза смогу на nichiha. очень красивые расцветки под камень/кирпич. но распространение слабое в Украине Посилання на коментар Поділитися на інших сайтах More sharing options...
Татьяна5 Опубліковано: 1 жовтня 2020 Поділитись Опубліковано: 1 жовтня 2020 узнавал у нескольких продавцов за него, Cedral ушел с рынка Украины. Если его и привезут - то ждать до 2месяцев и это будут только планочки, всякие внутренние\наружные углы и другие комлектующие вообще не возят. Да, ждать 2 мес Никаких внутренних и внешних планочек они и не возили никогда Добавлено через 29 секунд я пока краем глаза смогу на nichiha. очень красивые расцветки под камень/кирпич. но распространение слабое в Украине Нечиха абалденная. От 80 уе, в среднем 120 за м2 1 Посилання на коментар Поділитися на інших сайтах More sharing options...
shneider_vova Опубліковано: 1 жовтня 2020 Поділитись Опубліковано: 1 жовтня 2020 Нечиха абалденная. От 80 уе, в среднем 120 за м2 это цена под ключ или только панели? потому что я вижу в интернете от 30 до 45 уе за м2, в зависимости от толщины, и 2 года назад на выставке мне примерно такие же цены называли Посилання на коментар Поділитися на інших сайтах More sharing options...
sergey-shu Опубліковано: 1 жовтня 2020 Автор Поділитись Опубліковано: 1 жовтня 2020 мда, сотка+ за метр это уже нереальненько выглядит. но фасад, конечно, важная штука и реально красит дом Посилання на коментар Поділитися на інших сайтах More sharing options...
Татьяна5 Опубліковано: 1 жовтня 2020 Поділитись Опубліковано: 1 жовтня 2020 это цена под ключ или только панели? потому что я вижу в интернете от 30 до 45 уе за м2, в зависимости от толщины, и 2 года назад на выставке мне примерно такие же цены называли 6 мм вы не захотите, а он в районе 50 уе-60 уе. Небыло у него никогда цен в 30 уе. Фасад это 10 мм. От 70 стартует. Это материал, не под ключ, конечно HPL панель тоже ничего, но тоже от 60 уе базовое Будь оно 30, я б только его и ставила Добавлено через 6 минут мда, сотка+ за метр это уже нереальненько выглядит. но фасад, конечно, важная штука и реально красит дом Мне под ключ фиброцементный фасад на красном доме (тема есть), стал в 120 уе +- за м2. Основа, сам материал, монтаж, углы и примыкания. И монтируется он не быстро, если хорошо делать. Так, что я б на месте ТС, если есть вопросы по бюджету, ушла от таких элементов в просто контрастный цвет штукатурки 5 Посилання на коментар Поділитися на інших сайтах More sharing options...
sergey-shu Опубліковано: 1 жовтня 2020 Автор Поділитись Опубліковано: 1 жовтня 2020 Воу... то есть мои 110м фасада обойдутся в десятку минимум. Неплохо так. Вопросы по бюджету всегда есть, но обычно они со временем решаются. Жить без фасадной доски какое-то время можно?)) Посилання на коментар Поділитися на інших сайтах More sharing options...
shneider_vova Опубліковано: 1 жовтня 2020 Поділитись Опубліковано: 1 жовтня 2020 6 мм вы не захотите, а он в районе 50 уе-60 уе. Небыло у него никогда цен в 30 уе. Фасад это 10 мм. От 70 стартует. Это материал, не под ключ, конечно я смотрел здесь nichiha.kiev.ua/ за 14 мм - 30уе. за 16 - 45уе Посилання на коментар Поділитися на інших сайтах More sharing options...
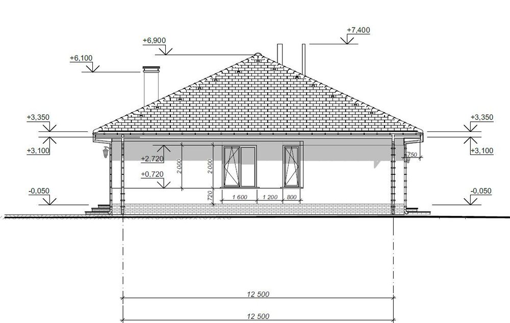
SergeyGM Опубліковано: 1 жовтня 2020 Поділитись Опубліковано: 1 жовтня 2020 Вот как выглядят окна 2000*1600 Посилання на коментар Поділитися на інших сайтах More sharing options...
Vikctor Опубліковано: 1 жовтня 2020 Поділитись Опубліковано: 1 жовтня 2020 ...Мне под ключ фиброцементный фасад на красном доме (тема есть), стал в 120 уе +- за м2. ... Вова, походу клинкерный кирпич дешевле выйдет. Возможно даже брендовый дешевле... П.С.: я конечно понимал, что термодоска и фибро-цементные панели вещи не дешёвые, но всё же не думал что настолько... Добавлено через 1 минуту Вот как выглядят окна 2000*1600 А где плоская кровля?... 1 Посилання на коментар Поділитися на інших сайтах More sharing options...
shneider_vova Опубліковано: 1 жовтня 2020 Поділитись Опубліковано: 1 жовтня 2020 Вова, походу клинкерный кирпич дешевле выйдет. Я сейчас считаю. Добавлено через 33 секунды Вот как выглядят окна 2000*1600 подоконник 720 мм - не низковато? Посилання на коментар Поділитися на інших сайтах More sharing options...
Татьяна5 Опубліковано: 1 жовтня 2020 Поділитись Опубліковано: 1 жовтня 2020 Вова, походу клинкерный кирпич дешевле выйдет. Возможно даже брендовый дешевле... П.С.: я конечно понимал, что термодоска и фибро-цементные панели вещи не дешёвые, но всё же не думал что настолько... .. Я сложную вертикальную укладку выбрала, с нахлестом, там рассчитывать стыки рабочие задолбались. Ну и отделка откосов, тоже фасад, тоже куча мелкой работы. Если стенка прямая и 1 окно - будет веселее. 1 Посилання на коментар Поділитися на інших сайтах More sharing options...
Uk Опубліковано: 1 жовтня 2020 Поділитись Опубліковано: 1 жовтня 2020 подоконник 720 мм - не низковато? Судя по планировке рабочая поверхность на кухне вдоль окна Там окно должно быть повыше похоже 2 Посилання на коментар Поділитися на інших сайтах More sharing options...
Татьяна5 Опубліковано: 1 жовтня 2020 Поділитись Опубліковано: 1 жовтня 2020 я смотрел здесь nichiha.kiev.ua/ за 14 мм - 30уе. за 16 - 45уе Там большими буквами написано ОТ Прозвоню им завтра, ради интереса 1 Посилання на коментар Поділитися на інших сайтах More sharing options...
Andrey1901 Опубліковано: 1 жовтня 2020 Поділитись Опубліковано: 1 жовтня 2020 Мне под ключ фиброцементный фасад на красном доме (тема есть), стал в 120 уе +- за м2. Основа, сам материал, монтаж, углы и примыкания. И монтируется он не быстро, если хорошо делать. Так, что я б на месте ТС, если есть вопросы по бюджету, ушла от таких элементов в просто контрастный цвет штукатурки Полностью поддерживаю. Очень хотел фиброцементный сайдинг, но после самых простых расчетов стало понятно что на большом фасаде это абсолютно нерационально по стоимости. В итоге штукатуркой доволен даже больше. 1 Посилання на коментар Поділитися на інших сайтах More sharing options...
sergey-shu Опубліковано: 1 жовтня 2020 Автор Поділитись Опубліковано: 1 жовтня 2020 Мне тоже стало интересно и позвонил. На эконом вариант (14) под ключ выйдет около 65 долл за квадрат + 10 за м.п. откосов + оформление углов повлечет доп затраты В премиум сегмент (16) дороже, от 90 и до ... в зависимости от материала. Отличие 14 от 16 конструктивные, в 16 полностью скрытый монтаж. Это то что сказал менеджер. Может, он что-то упустил 5 Посилання на коментар Поділитися на інших сайтах More sharing options...
Татьяна5 Опубліковано: 1 жовтня 2020 Поділитись Опубліковано: 1 жовтня 2020 Мне тоже стало интересно и позвонил. На эконом вариант (14) под ключ выйдет около 65 долл за квадрат + 10 за м.п. откосов + оформление углов повлечет доп затраты В премиум сегмент (16) дороже, от 90 и до ... в зависимости от материала. Отличие 14 от 16 конструктивные, в 16 полностью скрытый монтаж. Это то что сказал менеджер. Может, он что-то упустил Отож. А то я прям почти поверила в 30 и 45, а цен таких у Нечихи никогда небыло . Материал отличный. Посилання на коментар Поділитися на інших сайтах More sharing options...
shneider_vova Опубліковано: 1 жовтня 2020 Поділитись Опубліковано: 1 жовтня 2020 Мне тоже стало интересно и позвонил. На эконом вариант (14) под ключ выйдет около 65 долл за квадрат + 10 за м.п. откосов + оформление углов повлечет доп затраты В премиум сегмент (16) дороже, от 90 и до ... в зависимости от материала. Отличие 14 от 16 конструктивные, в 16 полностью скрытый монтаж. Это то что сказал менеджер. Может, он что-то упустил под ключ - это с работой и подсистемой? Посилання на коментар Поділитися на інших сайтах More sharing options...
sergey-shu Опубліковано: 1 жовтня 2020 Автор Поділитись Опубліковано: 1 жовтня 2020 под ключ - это с работой и подсистемой? Да, работа, материал, крепление и даже какой-то утеплитель на подложку 1 Посилання на коментар Поділитися на інших сайтах More sharing options...
Юрий Киев Опубліковано: 1 жовтня 2020 Поділитись Опубліковано: 1 жовтня 2020 Да, работа, материал, крепление и даже какой-то утеплитель на подложку а какой вес этих панелей уточняли? Посилання на коментар Поділитися на інших сайтах More sharing options...
shneider_vova Опубліковано: 1 жовтня 2020 Поділитись Опубліковано: 1 жовтня 2020 а какой вес этих панелей уточняли? 20 кг/м2 . то есть ни о чем. никаких проблем закрепить на газобетон нет Посилання на коментар Поділитися на інших сайтах More sharing options...
Юрий Киев Опубліковано: 1 жовтня 2020 Поділитись Опубліковано: 1 жовтня 2020 20 кг/м2 . то есть ни о чем. никаких проблем закрепить на газобетон нет не бегите впереди паровоза ))) то вы не видели как газоблок трещит даже без нагрузок или видели? а сколько отверстий надо насверлить на метр квадратный? Посилання на коментар Поділитися на інших сайтах More sharing options...
shneider_vova Опубліковано: 1 жовтня 2020 Поділитись Опубліковано: 1 жовтня 2020 не бегите впереди паровоза ))) то вы не видели как газоблок трещит даже без нагрузок или видели? а сколько отверстий надо насверлить на метр квадратный? У меня дом из d300 и ничего не трещит. Перекрытие из плит 2 Посилання на коментар Поділитися на інших сайтах More sharing options...
Юрий Киев Опубліковано: 1 жовтня 2020 Поділитись Опубліковано: 1 жовтня 2020 У меня дом из d300 и ничего не трещит. Перекрытие из плит 300 мм это конечно жесть дай бог шоб и дальше не трещал потому что этот процесс какой-то неконтролируемый у моего знакомого треснула стена лет после 6-7 проживания внутри штукатурка ,а трещина конкретная-вид неприятный замазали подмазали через время опять треснула вопрос шо такое - не знаю и что делать - не понятно ты не переживаешь- а что я могу сделать так там трещина конкретная ,а когда они много и тонкие то под отделкой как бы незаметны по моему Игорь М из известных тут жаловался на трещины,а вообще явление повсеместное конечно не особо заметно,но зачем же! так сколько там надо отверстий насверлить под эти панели Посилання на коментар Поділитися на інших сайтах More sharing options...
Рекомендовані повідомлення
Створіть акаунт або увійдіть у нього для коментування
Ви маєте бути користувачем, щоб залишити коментар
Створити акаунт
Зареєструйтеся для отримання акаунта. Це просто!
Зареєструвати акаунтУвійти
Вже зареєстровані? Увійдіть тут.
Увійти зараз