DVIJOK Опубліковано: 19 лютого 2021 Поділитись Опубліковано: 19 лютого 2021 Вторая тема о стройки от меня (дату первой смотрим через поиск) Решили строить в конце лета, поэтому на приемлемый результат, в плане "показать, посмотреть, пощупать", вышли только сейчас. Очень долго сидели, рисовали оптимальные планировки, искали фишки, искали участок, думали над узлами, изучали информацию по каркасникам. Это несмотря на то, что опыта у обоих (я и строитель) было завались. По итогу работы появилась планировка, которая и стала основой. Основой потому, что в процессе несколько раз менялась по мелочам. К тому, что вы видите, пришли уже на моменте установки перегородок. И нет, это не промашка или косяк, мы к этому были готовы. Как и к десятку других решений по узлам и деталям, которые изучались в процессе стройки. Единственное от чего мы не отступали - лучшие материалы на рынке. Участок купили в Вите-Почтовой, где уже была сформирована сеть застройки, ближайшие дома заселены и функционировали. Правда, от коммуникаций рядом с участком, проходила только ливневка . Газ был не нужен, уже на этапе проектирования, решили, что будет тепловой насос и электрика. Почему барн? Пусть каждый сам ответит на этот вопрос. Лично для меня - интерес проектирования, архитектуры и дальнейших экспериментов в этом стиле. Ну и честно говоря, задолбался я рисовать украинскую "классику". Во множественном числе пишу потому, что в проекте изначально были заняты два человека - я и строитель. Я - как гл.архитектор и проектировщик, строитель - как финансист и авторский надзор. Были так же подключены некоторые смежники и дизайнер. Но на разных этапах, принимали участие "все во всем" . Все фото мои, так как торчу на стройке. Бюджет? Ну как вам сказать... средний+. Цифры сейчас говорить не буду, может позже. Все что будет твориться дальше, может удивить, а может и нет. Бо в процессе проектирования, я наслушался в этих ваших интернетах, разных мнений, типа - чего это я такой дурак, положил стропила вдоль, а не в поперек, как все нормальные люди... Поэтому задавайте вопросы, если интересно. 9 Посилання на коментар Поділитися на інших сайтах More sharing options...
DVIJOK Опубліковано: 19 лютого 2021 Автор Поділитись Опубліковано: 19 лютого 2021 Продолжаем разговор... Поэтажные планы и будущий внешний вид барна. ТТХ Размеры - 13х5,6 м Каркас здания – рамы из двутавра 20Ш1 Стены – деревянный каркас общей толщиной 335 мм, утепление ватой 250 мм, вентзазор 50 мм. Кровля – тоже самое. Фасад – обшивка фальцем, планкен. Окна – алюминиевый профиль. Инженерия – тепловой насос, электросеть, скважина – теплые полы, фанкойлы, термос, рекуперация + печь. Бренды – #tyvek, #rockwool, #ruukki, #shiedel, #romotop, #octopus. Строй группа – Barn482 15 Посилання на коментар Поділитися на інших сайтах More sharing options...
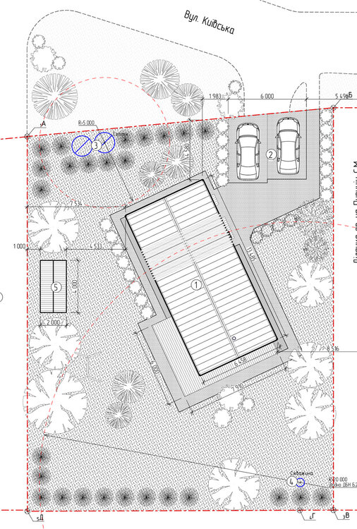
DVIJOK Опубліковано: 19 лютого 2021 Автор Поділитись Опубліковано: 19 лютого 2021 Участок попался с уклоном, перепад почти 2 м. Весь заросший как домовой, да еще и с небольшой затопляемой зоной. Но фишка в том, что эта зона между участком и дорогой. То есть существует возможность сделать там небольшой мини парк или игровую для детей. Ну и видосик там конечно еще тот . Кое какие деревья постарались все же сохранить, нам показалось, что Ольха черная в принципе неплохо выглядит и хорошо пьет воду. Ну и есть там еще береза, ель, лищина и др. Короче - расчищали и готовились ко всяким там работам... Ну и по доброй украинской традиции, весь мусор с окружающих строек, добрые люди сбрасывали на свободной место. То есть к нам... Сколько мы вывезли оттуда машин, ни пером описать, ни бульдозером убрать. 5 Посилання на коментар Поділитися на інших сайтах More sharing options...
Gitan Опубліковано: 19 лютого 2021 Поділитись Опубліковано: 19 лютого 2021 А навесик соседский на вашу территорию залез. Хорошо что водоотлив сделали)) 1 Посилання на коментар Поділитися на інших сайтах More sharing options...
DVIJOK Опубліковано: 19 лютого 2021 Автор Поділитись Опубліковано: 19 лютого 2021 Были еще на участке кучи земли, так мы их пустили в дело - выравнивали, подсыпали, засыпали. Ну и после подготовки наступила жесть, так как нужно было посадить здание согласно тому, как ходит солнышко и насколько удобно будет выходить в трусах утром на терасу с чашкой кофа. Забыл упомянуть, что опять же, по старой доброй украинской (читай еврейской) традиции, решили поделить наш участок на два. Поэтому вертели и крутили барн в разные стороны, считали инсоляцию, цокали языками и радостно пуская бульки носились по участку с колышками и сигнальной лентой. К фундаменту мы подошли уже когда ударили первые заморозки. Хотели сначала зафигачить все на сваях, но сделали геологию, и совместно с конструктором решили остановиться на ленте. Заливали в два этапа - ленту и подушку. Причем лента была ступенчатой. Цимес всего этого действа был в том, что в фундамент закладывались детали опор, на которые впоследствии должны были встать рамы каркаса из двутавров. Естественно все это со всякими гидроизоляциями, утеплением по периметру и под, отсыпками засыпками, трамбовкой и фееричными матюками. На сегодня все, можно ломать. 2 Посилання на коментар Поділитися на інших сайтах More sharing options...
DVIJOK Опубліковано: 19 лютого 2021 Автор Поділитись Опубліковано: 19 лютого 2021 А навесик соседский на вашу территорию залез. Хорошо что водоотлив сделали)) Там много интересных моментов, в том числе и с границами участков. Но мы решили не беситься, тем более соседи хорошие люди. Они нам дали и воду и электричество. 1 Посилання на коментар Поділитися на інших сайтах More sharing options...
LITMANENko Опубліковано: 19 лютого 2021 Поділитись Опубліковано: 19 лютого 2021 Да уж, соседский навес это прекрасная иллюстрация анекдота "а цэ пид помидорчики". Посилання на коментар Поділитися на інших сайтах More sharing options...
DVIJOK Опубліковано: 20 лютого 2021 Автор Поділитись Опубліковано: 20 лютого 2021 Еще чуток фоток и генплан. Уже на этапе монтажа закладных, на заводе заказали рамы из двутавра. К сожалению, мы не учли одной вещи - если изготовлением занимается пром предприятие, на точность можно не надеяться. Поэтому на будущее, озадачили ребят этим вопросом, вплоть до лекала... 1 Посилання на коментар Поділитися на інших сайтах More sharing options...
Игорь&Ира Опубліковано: 20 лютого 2021 Поділитись Опубліковано: 20 лютого 2021 К сожалению, мы не учли одной вещи - если изготовлением занимается пром предприятие, на точность можно не надеяться. Не факт. Мне змейки металлического каркаса лестницы делали на промпредприятии по любительскому чертежу. К результату не придерёшся. Правда, я общался напрямую с начальником цеха. Посилання на коментар Поділитися на інших сайтах More sharing options...
DVIJOK Опубліковано: 20 лютого 2021 Автор Поділитись Опубліковано: 20 лютого 2021 Не факт. Мне змейки металлического каркаса лестницы делали на промпредприятии по любительскому чертежу. К результату не придерёшся. Правда, я общался напрямую с начальником цеха. Дело не в том, что вы общались с начальником. Дело в технологии, весе и обьемах. Змейки то небось вручную делали... А двутавры при варке ведет... 1 Посилання на коментар Поділитися на інших сайтах More sharing options...
Дядя Женя Опубліковано: 20 лютого 2021 Поділитись Опубліковано: 20 лютого 2021 А почему каркас решили сделать из металла, а не из клееного бруса? Европа и остальной мир уже давно используют дерево... Плюсов больше. 1 Посилання на коментар Поділитися на інших сайтах More sharing options...
US7IGN Опубліковано: 20 лютого 2021 Поділитись Опубліковано: 20 лютого 2021 интересно, какой бюджет этой "дачи"? 2 Посилання на коментар Поділитися на інших сайтах More sharing options...
DVIJOK Опубліковано: 20 лютого 2021 Автор Поділитись Опубліковано: 20 лютого 2021 А почему каркас решили сделать из металла, а не из клееного бруса? Европа и остальной мир уже давно используют дерево... Плюсов больше. Была идея, что бы металл играл в интерьере. А дерево сделать акцентом. Если бы каркас был деревянным, то он был бы или в теле стены, или интерьер пришлось решать совершенно в других красках. Опять же связи... Да и насчет стоимости есть сомнения. Клееные срощенные вещи, сухие возможно сейчас, дороже металла. Добавлено через 3 минуты интересно, какой бюджет этой "дачи"? Я бы назвал бюджет - средний+. Чуть позже будут конкретные цифры. 1 Посилання на коментар Поділитися на інших сайтах More sharing options...
US7IGN Опубліковано: 20 лютого 2021 Поділитись Опубліковано: 20 лютого 2021 Чуть позже будут конкретные цифры. спасибо! что-то мне подсказывает, что скоро я снова озадачусь строительством. сейчас нужно сразу закладывать совсем новые идеи по энергетике. если можно, в этом проекте подробнее об этом. 1 Посилання на коментар Поділитися на інших сайтах More sharing options...
DVIJOK Опубліковано: 21 лютого 2021 Автор Поділитись Опубліковано: 21 лютого 2021 спасибо! что-то мне подсказывает, что скоро я снова озадачусь строительством. сейчас нужно сразу закладывать совсем новые идеи по энергетике. если можно, в этом проекте подробнее об этом. Немного позднее, опишу систему отопления подробнее. Сейчас это гибридная система на основе теплового насоса. Он будет давать и тепло и горячую воду, а летом охлаждать. От центральных сетей, будет только электричество, 6-8 квт. Планировали поставить солнечные батареи, но будем смотреть по бюджету. На сегодня ТН одно из самых дорогих решений, но в дальнейшем, плата за "коммуналку" мизерная. 2 Посилання на коментар Поділитися на інших сайтах More sharing options...
Дядя Женя Опубліковано: 21 лютого 2021 Поділитись Опубліковано: 21 лютого 2021 Интересны решения отсечения мостиков холода от металлического каркаса 2 Посилання на коментар Поділитися на інших сайтах More sharing options...
DVIJOK Опубліковано: 21 лютого 2021 Автор Поділитись Опубліковано: 21 лютого 2021 Интересны решения отсечения мостиков холода от металлического каркаса Вы же понимаете, что бы создать мостик, конструкция должна иметь или деталь, которая промерзнет, или путь по которому холод дойдет до исходной точки. У нас это исключено, так как металлический каркас полностью находиться в + и никакими деталями или креплениями он не связан, к примеру с фасадом. Короче, что бы не умничать, весь каркас закрыт ватой и деревом. Те детали к которым крепиться деревянный каркас, например пластины, они находяться в теле утеплителя ближе к внутреннему контуру. И даже от основного деревянного каркаса, металлические рамы отделены прокладками из влагостойкой фанеры, к которой будут примыкать ЦСП плиты. 2 Посилання на коментар Поділитися на інших сайтах More sharing options...
DVIJOK Опубліковано: 24 лютого 2021 Автор Поділитись Опубліковано: 24 лютого 2021 Как я уже рассказывал, каркас здания металлический. Всю основную нагрузку несет именно он. Это мощные рамы сваренные из двутавров. К ним фактически крепиться все. От стропил до каркаса стен. Немного пришлось помучатся при установке, но в целом все нормально. Конечно, после первого опыта, были пересмотрены некоторые вещи касательно методов монтирования, соединений, профилей, связей и т.д. 11 Посилання на коментар Поділитися на інших сайтах More sharing options...
DVIJOK Опубліковано: 4 березня 2021 Автор Поділитись Опубліковано: 4 березня 2021 Озадачились деревом. Так как сухая качественная древесина для Украины, как для довольно лесной страны в прошлом, большая проблема. Вернее сухая древесина есть, но она не для каркаса, так как золотая. Выкрутились тем, что кое-что взяли со своих складов, где она лежала несколько лет, и часть собрали по лесопилкам. Тесали сами и обрабатывали антипиренами тоже. В итоге каркас крыши собрали идеально. Собственно он на фото. Когда выложил 3д стропильной части на одном из форумов, был странный отклик местных архитекторов - что за? Почему так, а не классически? У вас все неправильно, а вы редиска... 3 Посилання на коментар Поділитися на інших сайтах More sharing options...
Фрай Опубліковано: 4 березня 2021 Поділитись Опубліковано: 4 березня 2021 так они отчасти правы, как-то рискованно досочки стоят. 1 Посилання на коментар Поділитися на інших сайтах More sharing options...
US7IGN Опубліковано: 4 березня 2021 Поділитись Опубліковано: 4 березня 2021 у вас получается совершенный эксклюзив, основанный на доступном материале и творческом подходе. вот почему в северной америке строят массово типовые проекты на дереве. потому что его там много, дешево и качественно... 1 Посилання на коментар Поділитися на інших сайтах More sharing options...
DVIJOK Опубліковано: 4 березня 2021 Автор Поділитись Опубліковано: 4 березня 2021 так они отчасти правы, как-то рискованно досочки стоят. В чем риск? Посилання на коментар Поділитися на інших сайтах More sharing options...
Фрай Опубліковано: 4 березня 2021 Поділитись Опубліковано: 4 березня 2021 Мои сомнения в том как дерево крепится к металлу. Слишком малая площадь опоры да ещё под таким наклоном. Посилання на коментар Поділитися на інших сайтах More sharing options...
DVIJOK Опубліковано: 4 березня 2021 Автор Поділитись Опубліковано: 4 березня 2021 Мои сомнения в том как дерево крепится к металлу. Слишком малая площадь опоры да ещё под таким наклоном. Думаю, что конструктора мы не зря привлекали. Все рассчитано. К тому же, а что эти стропила несут? Практически ничего. А ветровая и снеговая нагрузки настолько мизерны... Посилання на коментар Поділитися на інших сайтах More sharing options...
Фрай Опубліковано: 4 березня 2021 Поділитись Опубліковано: 4 березня 2021 Я высказал свои сомнения и не претендую на истину в последней инстанции. Обычно конструктор стремается и считает с таким запасом, что можно ставить 9 этажей. Ваш наоборот, не буду спорить, время покажет. Какое сечение доски? (брусом не назову) Посилання на коментар Поділитися на інших сайтах More sharing options...
Рекомендовані повідомлення
Створіть акаунт або увійдіть у нього для коментування
Ви маєте бути користувачем, щоб залишити коментар
Створити акаунт
Зареєструйтеся для отримання акаунта. Це просто!
Зареєструвати акаунтУвійти
Вже зареєстровані? Увійдіть тут.
Увійти зараз