AndryG Опубліковано: 1 березня 2021 Поділитись Опубліковано: 1 березня 2021 Доброго Моя третья с просьбой оценить вариант для покупки. (Спасибо за первые две. Вы реально помогли принять решение) Семья 4 человека. Двойня м+ж пяти лет. Задолбал курятник им. Хрущева. Уже почти готов пациент для психиатра с пунктиком "соседи! не бумкайте сабвуфером, не гудите по стене кондиционерами, не храпите...". На этот раз рассматриваем одноэтажный недострой с времянкой-флигелем, в котором годами и жили хозяева. Во время стройки это был одинокий домик в поле, теперь тут нормальная полностью застроенная улица. На фоне моднявых особняков в пару этажей этот дом из силикатного кирпича выглядит как собачья будка Недострой этот я взял к плотному рассмотрению, ибо за такие деньги я столько не настрою + участок 12,5 соток. На данный момент есть коробка дома с несущей стеной внутри, окнами и дверьми, накрыта двускатной ломаной крышей (с претензией на мансарду). Особо отмечу высоченный (около метра) фундамент. На вопрос о целях, продавец лишь ругнулся в кулак и помянул родственников-строителей. Есть скважина, у забора колодец соседа с городской водой - можно подключиться. Септика нет. Дом еще не построен, а шанхай уже организован. Флигели, переходы. Четыре ступеньки в коридоре-переходе у входа в дом - сейчас мне кажется дикой штукой. По планам хозяев в доме должны были быть только пальни, а санузел и кухня уйти во флигель. Жесть просто. Комнаты за кап. стеной узковаты. Хотелось бы к трем метрам ближе. Да, я читал тему про дом на барановке с узкими комнатами Интересен ваш опыт. Площадь дома хотелось бы чуток больше, но может и в эту получится запихнуть три спальни? Интересны ваши мысли по планировке дома. Как это всё достроить. И этот переход к флигелю... может это у меня такое предубеждение? Представляю себя на месте детворы... я бы на лето этот флигель оккупировал бы 100%. А зимой будет где с кумом политинформацию обсудить, не мешая домашним ;) Консервацией всякой, опять же, есть где заниматься, рыбу жарить. А какая мастерская шикарная! На крайний случай можно ТТ котел поставить и топить дровишками. В небольшом доме иметь два входа видится мне глупостью. В планах строителей с восточной стороны еще веранда должна быть. Но раз уж организован этот переход, он же тамбур... вход в дом с северной стороны довольно глуповато выглядит при южном фасаде, но что имеем. Что скажете? Посилання на коментар Поділитися на інших сайтах More sharing options...
US7IGN Опубліковано: 1 березня 2021 Поділитись Опубліковано: 1 березня 2021 Лично я плохо воспринимаю не видя фото, но в целом идею отдельной столовой/кухни с длинным переходом видел у знакомых. В холодное время года просто песня! Ну и никому не мешают те, кто там ест/выпивает. Я в свое время реализовал другую идею - в доме небольшая кухня и отдельно стоящая летняя кухня/гостевой домик. Стандартный кухонный уголок, стиралка, бойлер, диван трехметровый, дубовые стол на 10 человек и лавка с табуретками. По формату - однокомнатная квартира-студия только без туалета. Он вместе с душем во дворе немного дальше был. Т.к. использовалась только летом, то проблем не было. Хотя для зимы была ставлена печь и электрические нагреватели под окнами. Вот там компании конечно вообще отлично было. Да и сильно забухавшие могли остаться ночевать, не мешая основной семье в доме. Еще одно небольшое строение было переделано под радиорубку (с диваном и евробуржуйкой) и мастерская - отдельные входы. В нем тоже можно было заночевать. В самом доме было всего три спальни и зал и мне такая разнесенность в итоге больше понравилась, чем 3-4 этажа в одной коробке... 2 Посилання на коментар Поділитися на інших сайтах More sharing options...
AndryG Опубліковано: 2 березня 2021 Автор Поділитись Опубліковано: 2 березня 2021 US7IGN, спасибо за слова поддержки. Решили мы вляпаться. Иначе, пока будем искать идеальный вариант, уже никакой не нужен будет. Так что теперь вопрос "брать или не брать" сменяется на другой: "Ааааа что теперь с этим всем делать :shock:" Как хотелка максимум хочется две детские (дети разнополые) и себе спальню - диван в гостиной ненавижу с детства. БОльшая часть в доме имеет площадь 9,45 * 6 = 56 м^2 Сейчас в двушке живем в 44 квадратах. Значит можно сюда впихнуть требуемое. Но вот только не получается. Даже черновой идеи не получается никакой Помогите, пжлст. Один вариант приходит в голову. Сделать с южной части три спальни. В с-з углу получается огромная ванная (можно часть под кладовку/шкаф отрезать) остальное место кухня-гостиная-прихожая. Можно даже с двумя выходами (во флигель + на восток на террасу/веранду) Мансарду сделать - лестница всю выгоду сожрет, да и делать ее только в мЕньшей части. На флигель большие надежды в летнее время и т.п. но не хотелось бы тратиться сейчас на утепление и топить его зимой в будущем. Посилання на коментар Поділитися на інших сайтах More sharing options...
US7IGN Опубліковано: 2 березня 2021 Поділитись Опубліковано: 2 березня 2021 Судя по фото - прекрасный вариант! Все нюансы всегда можно обыграть и увидеть в них достоинства. Как минимум - больше ни у кого такого нет! 3 Посилання на коментар Поділитися на інших сайтах More sharing options...
lug Опубліковано: 28 березня 2021 Поділитись Опубліковано: 28 березня 2021 Вы таки купили это всё, я правильно понимаю? Ну, тогда - назад дороги нет! Вот общие идеи, пока без точной привязки к размерам: Комнаты слева - детские. Главный вход - в основной дом через прихожую Часть дома, откуда выход в пристройку - гостиная-кухня. В середине дома - санузел. Из спальни родителей- вход в просторную гардеробную Как-то так... Времянку на зиму закрыть, подогревать по минимуму до плюсовой температуры. Перегородку в левой части убрать. Это помещение организовать , как летнюю кухню с большим столом для посиделок с гостями. Правую часть обставить как универсальную жилую комнату, для гостей, например 1 Посилання на коментар Поділитися на інших сайтах More sharing options...
AndryG Опубліковано: 28 березня 2021 Автор Поділитись Опубліковано: 28 березня 2021 Искренне рад вашему вниманию Дали задаток, ждем оформления документов. Решил не злоупотреблять местным вниманием, пока нет точных размеров. В "легком" шоке пытаюсь разобраться, что делать дальше. Боюсь, как бы на новоселье кто-нить из гостей не спросил "а ты там под слоем песка метровым пленочку положил" Да вот только интернет завален больше рекламными статьями от горе-сеошников Хочется ко всему этому проект хоть какой-либо сделать. Но как найти толкового спеца, которому можно отдаться и не бояться ) С людьми вообще проблема у нас в стране, а со специалистами просто мрак. Буду рад любой помощи мыслями, планировками, планами и т.д. Посилання на коментар Поділитися на інших сайтах More sharing options...
lug Опубліковано: 28 березня 2021 Поділитись Опубліковано: 28 березня 2021 Главное - ввязаться в драку. Дорогу осилит идущий! Хочется ко всему этому проект хоть какой-либо сделатьСомневаюсь, что это хоть чему-то поможет в старом доме. Будете решать проблемы по мере их поступления. 1) определиться с планировкой и уже не метаться, а следовать плану 2) на фото - какой-то 2-й этаж просматривается. Это что? Откуда вход в него? Посилання на коментар Поділитися на інших сайтах More sharing options...
AndryG Опубліковано: 28 березня 2021 Автор Поділитись Опубліковано: 28 березня 2021 Вспоминая ремонт в квартире, где каждый вопрос ставил в тупик и требовал немедленного ответа... хочется план (и дома и действий). Проходили уже стократные походы в магазин и "нафиг тебе тут розетка, потом сделаешь, раствор стынет". Дырку в перекрытии оставили между дверями детских. Большая "комната" накрыта шестиметровыми плитами и над детскими короткие. Я неделю просидел за чтивом про лестницы и понял, что мансарда с нормальной лестницей добавит чуток полезной площади и офигеть сколько расходов. Посилання на коментар Поділитися на інших сайтах More sharing options...
lug Опубліковано: 28 березня 2021 Поділитись Опубліковано: 28 березня 2021 хочется план (и дома и действий). да, четкий план нужен обязательно. Это сэкономит время и деньги на дурных переделках. Дырку в перекрытии оставили между дверями детских. Жжжесть Это что ж получается, выход в мансарду под скосом крыши??? Н-да... Втиснуть сюда лестницу- есть риск похерить дешевую, простую и достаточную для вас планировку ради доп. площади в мансарде. Т.е. минимум 1 комнату внизу - минус (лестница займет), чтобы получить в мансарде - плюс. И заплатить за это ТАКУЮ кучу денег - что может оказаться проще оставить её холодным чердаком с доступом по стремянке. Тут надо крепко подумать и посчитать, хватит ли у вас денег и времени на это мероприятие. Кстати, это всё где? Посилання на коментар Поділитися на інших сайтах More sharing options...
AndryG Опубліковано: 28 березня 2021 Автор Поділитись Опубліковано: 28 березня 2021 Ага. Жесть. Верно. Выход над скосом. Сколько не читал про мансарды, все пишут по итогу "второй раз бы не делал". Две детские + санузел наверху сожрут денег/сил/нервов/времени прилично Пытаюсь себя уговорить, что сейчас же какось живем (#3), но чертик на другом плече гундосит, что дом - это не квартира и площади нужны побольше... но этому чертику сколько не дай - всё ему мало. Это всё в Сумах, где частный сектор или ужасно старый или ужасно дорогой, а может это мы ужасно бедные... Посилання на коментар Поділитися на інших сайтах More sharing options...
d.n.s Опубліковано: 28 березня 2021 Поділитись Опубліковано: 28 березня 2021 А можно сместить стену в левых комнатах, расширив их хотя бы до 3,20? Я бы с ума сошел в комнате в 2,60 шириной. Вырос в комнате 3*1,8 вдвоем с братом, по себе знаю. ЖЕСТЬ. Посилання на коментар Поділитися на інших сайтах More sharing options...
AndryG Опубліковано: 28 березня 2021 Автор Поділитись Опубліковано: 28 березня 2021 На этой стене уже лежат плиты перекрытия. Самого выбешивают узкие комнаты "под кровать". В старых домах сплошь и рядом. Тут, видимо, по привычке сделали. Успокаиваю себя, что детские будут отдельные. Посилання на коментар Поділитися на інших сайтах More sharing options...
lug Опубліковано: 28 березня 2021 Поділитись Опубліковано: 28 березня 2021 но чертик на другом плече гундосит Ага, этот чертик уже ширял в зад ваших продавцов. В итоге - они прожили полжизни в пристройке, а дом так и не достроили. Дурацкую дырку в перекрытии вы никак не примените к лестнице, пригодной для ежедневного употребления. Чтобы втиснуть в этом доме лестницу, придется разобрать часть перекрытия, пожертвовать 1 комнату. Вытащить наверх коммуникации, утеплить крышу, отделать мансарду - сопоставимо по деньгам с новым строительством. Вы точно это осилите? Если есть столько денех, может, просто купите другой дом? Если нет - то думайте в другую сторону. дом - это не квартира и площади нужны побольше. Для чего в городском доме вам нужны эти площади? Дом - это отсутствие соседей, солнце, воздух и вода, сад-огород, гараж-мастерская, мангал-шашлыки и т.д. Если вы с женой - на работе, дети - садик, школа, то для каких задач нужна еще площадь именно в доме? Пристройка у вас есть... Вырос в комнате 3*1,8 вдвоем с братом, По 10 кв м на каждого - это в 4 раза повеселей, чем 5,4 кв м на двоих. Самого выбешивают узкие комнаты "под кровать" Не такие они и узкие Мои дети выросли двое точь-в-точь в такой детской, как в этом доме: 4,48 х 2,65 = 11,8 кв м. У каждого был свой диванчик, ученический стол и отдельная половина шкафа Никто не страдал. А тут - каждому ребенку такая комната. Вполне достаточно! На мой беглый взгляд, на обустройство дома в упрощенном варианте - без мансарды- вам потребуется +/- 25000 долл. С мансардой - это капитальная перестройка дома, которая обойдется + ещё примерно столько. Оставьте её будущим поколениям. Тогда проще завалить переход к времянке, и на его месте сделать пристройку, включающую лестницу со входом в дальний фронтон. 2 Посилання на коментар Поділитися на інших сайтах More sharing options...
AndryG Опубліковано: 1 травня 2021 Автор Поділитись Опубліковано: 1 травня 2021 Заходишь в калитку весь в полной уверенности успеха, 30 минут ковыряния в этой горе мусора ... и начинаешь подумывать, что продавать это всё дети будут как недострой с флигелем. Доброго. Свершилось! Домик за годы простоя знатно поднабрался хлама. Брожу по горам строительного мусора и ломаю голову, что делать с полом. Вынести надо шифер битый вперемешку с дер. стружкой - это я понимаю. А что делать с остальным грунтом черного цвета, рассыпчатым и пылящим? Попробовал в углу под окном (для привязки к фотке) добраться к основанию фундамента - один чернозем. Если его там будет метр-два, то это капец невыполнимый достать его и вывезти. Тут и "мусорогрунта" выносить вагон и тележка, а если еще до песка... Звучат советы / родня / засыпать песком этом всё, затрамбовать и не мучиться. Объясняется тем, что 60-100 см трамбованного песка все возможные просадки сгладит. Механизм этого дела умалчивается... Хлам вынесли, после праздников вынесу кирпич/блоки и вопрос "сколько вынимать?" станет ребром. Буду рад любым мыслям и подсказкам, какими бы примитивными они вам не показались. Посилання на коментар Поділитися на інших сайтах More sharing options...
vbb Опубліковано: 1 травня 2021 Поділитись Опубліковано: 1 травня 2021 Пробурить лунки, залить столбики на них лаги и пол. И пусть там будет ниша. Ну можно там еще застелить гидроизоляцию или геотекстиль и засыпать щебнем 1 Посилання на коментар Поділитися на інших сайтах More sharing options...
normal Опубліковано: 2 травня 2021 Поділитись Опубліковано: 2 травня 2021 Та все там просто делается и сразу заливайте теплый пол без радиаторов, проект я сам рисовал в sweethome3d и по итогу почти все совпало, у вас просто перепуг накосячить, а в итоге наоборот получите идеальный дом чисто под себя, не слушайте никого и все (если нет критики значит у вас все правильно и это нормально) Посилання на коментар Поділитися на інших сайтах More sharing options...
lug Опубліковано: 3 травня 2021 Поділитись Опубліковано: 3 травня 2021 . А что делать с остальным грунтом черного цвета, рассыпчатым и пылящим? Ничего не делать. Грунт, уплотнившийся за десятилетия - вполне достаточное основание для пола Я бы и обломки не вытаскивала - бетонный и кирпичный бой тоже заполнитель. Или пол по лагам. Или засыпать песком до нужного уровня,+ утеплитель, + теплый пол. 1 Посилання на коментар Поділитися на інших сайтах More sharing options...
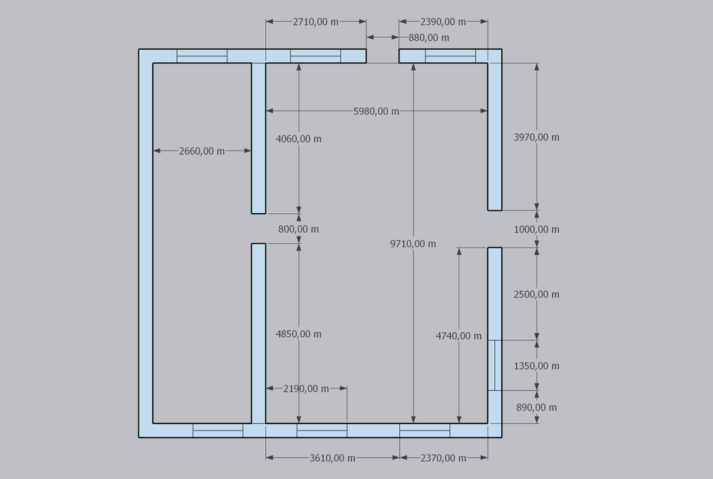
AndryG Опубліковано: 4 травня 2021 Автор Поділитись Опубліковано: 4 травня 2021 Спасибо всем за подсказки. Не стесняйтесь, пжлст, указывать на простейшие для опытных людей вещи. Например, за кучу половинок кирпичей и обломки бетона я только вчера чесал репу: "Что с ними делать" Начали вывозить откровенный мусор с коробки. После слоя стружки/опилок/бычков совковая лопата лишь скользит по откровенно твердому грунту - приятная новость. По высотам это получается примерно уровень земли во дворе. Кое-как намучал в SketchUp план текущих стен. Буду рад прочесть любые идеи/мысли/предложения. В голове вертится вариант сделать на юге три спальни, в левом-верхнем углу ванную (очнь хочется под котельную отрезать кусочек) и северную часть большой комнаты оставить открытой, ибо больше перестенков это пространство не выдержит. Думаю, без дизайнера/архитектора мне не обойтись. Сам я не обыграю размеры, чтобы потом в этом домике было удобно жить. ау! План v1.skp.zip Посилання на коментар Поділитися на інших сайтах More sharing options...
lug Опубліковано: 5 травня 2021 Поділитись Опубліковано: 5 травня 2021 вертится вариант сделать на юге три спальни Это неудобно, как по мне. 1) Нежелательно делать вплотную детские и взрослые комнаты, буквально вперемешку. Чтоб вечером ходить мимо них на цыпочках??? Зачем? Детское крыло в левой части - будет отделено от остального дома капитальной стеной. Это - подарок судьбы! Двери в детские закрыли - и жизнь продолжается без ограничений! в левом-верхнем углу ванную 2)Нежелательно загонять санузел в дальний угол дома. Все проживающие толпой будут ходить туда длинными коридорами мимо спален. Зачем? Санузел желательно в серединке между спальнями, чтоб из каждой - был самый короткий доступ к санузлу. 3) разносить кухню и санузел по разным углам дома = удорожание коммуникаций 4) кухня-гостиная возможна только в правом верхнем углу, т.к. там - выход в пристройку. Можно сделать зеркально - гостиная - справа, кухня - слева 5)котельную и гардеробную можно поменять местами, если будут какие-то суровые техусловия к отоплению Как я бы спланировала - см картинку. 3 Посилання на коментар Поділитися на інших сайтах More sharing options...
AndryG Опубліковано: 5 травня 2021 Автор Поділитись Опубліковано: 5 травня 2021 @lug, спасибо огромное за вариант! Ща с супругой сядем изучать. Может кто поделиться толковыми ссылками как прикинуть размеры мебели, комнат. Основы планировки или хто-зна как его. Посилання на коментар Поділитися на інших сайтах More sharing options...
lug Опубліковано: 5 травня 2021 Поділитись Опубліковано: 5 травня 2021 как прикинуть размеры мебели, комнат Основные размеры я проставила: -спальня 3,6х4м - ширина прихожей примерно 1,7м - длина верхней детской - вплотную до проёма, нижней детской = такая же. Тогда ширина гардеробной = что останется, примерно 1500мм - остальные стены привязывайте к сущ. проёмам, как на картинке. Примерная расстановка мебели - есть. Точные размеры шкафов будете перемерять по факту, когда уже стены выстроятся. Принимайте минимально-оптимальную толщину внутренних стен = 90мм. Это : гипсокартон 2 слоя + профиль CW50+ гипсокартон 1 слой. Можно заморочиться - по 2 гипса с обеих сторон. Получится 100мм. Внутрь стен, которые вокруг спальни - натолкать минвату. Это чуть улучшит шумоизоляцию. Остальные стены - необязательно Посилання на коментар Поділитися на інших сайтах More sharing options...
Alvalk Опубліковано: 6 травня 2021 Поділитись Опубліковано: 6 травня 2021 Может кто поделиться толковыми ссылками как прикинуть размеры мебели, комнат. Основы планировки или хто-зна как его. Есть хорошая бесплатная программа. В ней можно и дом нарисовать, и мебель расставить. И вид посмотреть как на плоском изображении, так и в 3D, как дом изнутри, так и снаружи, вместе с планировкой участка. Мне очень помогла, чтобы понять, что я хочу. На освоение хватило один день. Только не забудьте установить 3D-модели и текстуры Посилання на коментар Поділитися на інших сайтах More sharing options...
AndryG Опубліковано: 6 травня 2021 Автор Поділитись Опубліковано: 6 травня 2021 Бросил её на этапе постройки стен. Если коробку еще получилось по видосику сделать замкнутой, то доп. стена никак не хотела привязываться/прилипать к другим стенам. Не понял идеи программы: зачем нужны стены, комнаты? Почему комнату можно запросто расположить месту стенами. На сайте из документов только инструкция "сделайте коробку и поставьте вазу". Добавлено через 58 минут @Alvalk, не получается стену поставить внутреннюю в нужную позицию. Посилання на коментар Поділитися на інших сайтах More sharing options...
Alvalk Опубліковано: 6 травня 2021 Поділитись Опубліковано: 6 травня 2021 Alvalk, не получается стену поставить внутреннюю в нужную позицию. это как? Мне это сложно представить. Любая стена рисуется из точки А в точку Б. А если по этой стене потом кликнуть мышью (естественно, переключив курсор на "выбор объектов на плане"), то она выделяется и ее можно передвинуть. А если дважды кликнуть мышью, то можно вообще задать точные координаты, толщину и т.п. т.е. существует как минимум 3 возможности поставить стену в нужное место. Какая из них не получается? ;) Посилання на коментар Поділитися на інших сайтах More sharing options...
AndryG Опубліковано: 6 травня 2021 Автор Поділитись Опубліковано: 6 травня 2021 @Alvalk, передвинуть можно, но привязать к существующим - нет. И не понятно, как установить в точное место. Считать координаты - перебор. Интернет говорит, что мин. площадь помещения для газового котла равна 4 квадрата. А я тут размечтался впихнуть и тт небольшой для межсезонья. Наивная душа. Посилання на коментар Поділитися на інших сайтах More sharing options...
Рекомендовані повідомлення
Створіть акаунт або увійдіть у нього для коментування
Ви маєте бути користувачем, щоб залишити коментар
Створити акаунт
Зареєструйтеся для отримання акаунта. Це просто!
Зареєструвати акаунтУвійти
Вже зареєстровані? Увійдіть тут.
Увійти зараз