Перейти до публікації
Пошук в
  • Додатково...
Шукати результати, які містять...
Шукати результати в...

Z 100500....

ROS_SUMY

Рекомендовані повідомлення

Тема скорее всего создана для того чтобы сохранить хронологию событий великого будівництва...)

Итак: осенью 2018 года был приобретен участок, прелесть которого заключается в шаговой близости от квартиры где живем сейчас, наличием всех коммуникаций (газ/вода/городская канализация) и кума за забором. Тихая улочка на которой мой дом будет 4м😜

  0-02-02-a16b3ecd65fd70bc581b8768ecb4eef68823475bf628860a9dc9c9db4052c27d_2901a2b3.thumb.jpg.fc1cd0249ea5ddea265acaf9e91d1053.jpg

IMG_4707.thumb.JPG.956d6ff4f0342b2a58178e7bfb19e6a6.JPG

Работы 18 года закончились установкой "забора" в виде палок и натянутых бело красных лент ну и высаживанием плодово ягодных...

IMG_4829.thumb.JPG.1ae5b014530c8fc64c12b1df3ad846d5.JPG

  • Лайк 5
Посилання на коментар
Поділитися на інших сайтах

Год 2019, попутно делался ремонт в "запасной" квартире, поэтому до участка особо денег не доходило

 

IMG_6559.thumb.jpg.b504942368b4bd6a41d559432cbfb0ca.jpg

IMG_6833.thumb.jpg.5a33ea18508de5a58af30c8a5b772549.jpgIMG_7060.thumb.jpg.e7bf2b85879ff587306a586040252de3.jpgIMG_8893.thumb.jpg.37d8175704db57bb0dce237dc9d256fb.jpg

IMG_9689.thumb.jpg.3004fe6d8a9eceb2072db5799bd4fa23.jpg

Поставили забор, поровняли участок

IMG_0424.thumb.jpg.299ee3c3fb5a1d6188d2894bae6bc212.jpg

 

IMG_9149.jpg

Змінено користувачем ROS_SUMY
  • Лайк 4
Посилання на коментар
Поділитися на інших сайтах

Год 2020

Решили потренироваться на постройке гаража...

Голова уже начинала пухнуть от расположения будущих построек на участке, участок с южным фасадом, сзади на севере намечалась стройка многоэтажки, несколько раз концепции менялись и менялись, переносились ворота и калитки, менялись размеры и расположение гаража, навеса и будущего дома. В итоге пришли к следующему варианту Screenshot_1.thumb.png.775747dc39355aa754879758286f09e3.png

Начали, радовало то что не было проблем в строителях )

IMG_1569.thumb.jpg.63383aae52f9f106be7f7395904e841d.jpg

Подключил свет, поставили скважину

IMG_1630.thumb.jpg.441dac4c3bd19ed0051de3b59b368874.jpg

Ну и куда ж без мебели из поддонов)

IMG_1731.thumb.jpg.2ec83f4340a83dd46226fe63ed5707a0.jpg

 

Ну а дальше классика: траншея, арматура, бетон, стены, крыша...

IMG_1829.thumb.JPG.42c8a7ab111fccf7f49f4ee3c2a8075b.JPG

IMG_1821.thumb.jpg.2d73e6e7543c88988f52e3656f4c9879.jpg

IMG_1871.thumb.jpg.a2ca224d8ff02e216b146dba6525fa4d.jpg

Вспоминаю прошлогодние цены на дерево и плачу...

IMG_2004.thumb.jpg.f778d9182424d46fd9d40778362911dc.jpg

IMG_2040.thumb.jpg.35dbab0ec05ec0250c2e3fa9ef92b5c9.jpg

 

 

IMG_1893.jpg

Змінено користувачем ROS_SUMY
Добавление
  • Лайк 7
Посилання на коментар
Поділитися на інших сайтах

Едем дальше. Естественно не будучи олигархом пытался подэкономить выполняя некоторые работы (иногда первый раз в жизни) самостоятельно

IMG_0033.thumb.jpg.0f9d89da871cdd0d0e835087e1b68535.jpg

IMG_0416.thumb.jpg.76eb5b89d23c7b9311ecabfc1f75fc6a.jpg

IMG_0482.thumb.jpg.7edada94c99e2614230e513890937259.jpg

IMG_0486.thumb.jpg.32c91a8f06e6cd2a8bb0575232a32707.jpg

Строительный сезон подходил к концу

IMG_0929.thumb.jpg.db24e52ec25dcc0fc8921d28adf23076.jpg

Но гараж не скучал и зимой, став местом ежепятничних посиденьок

IMG_2544.thumb.jpg.29023e8739c00ead325d434f52bb8697.jpg

1608543264620012.thumb.jpg.3a13fda4e633d8c4682acfeeb0fa9ef2.jpg

IMG_2154.jpg

  • Лайк 10
  • Дякую 1
Посилання на коментар
Поділитися на інших сайтах

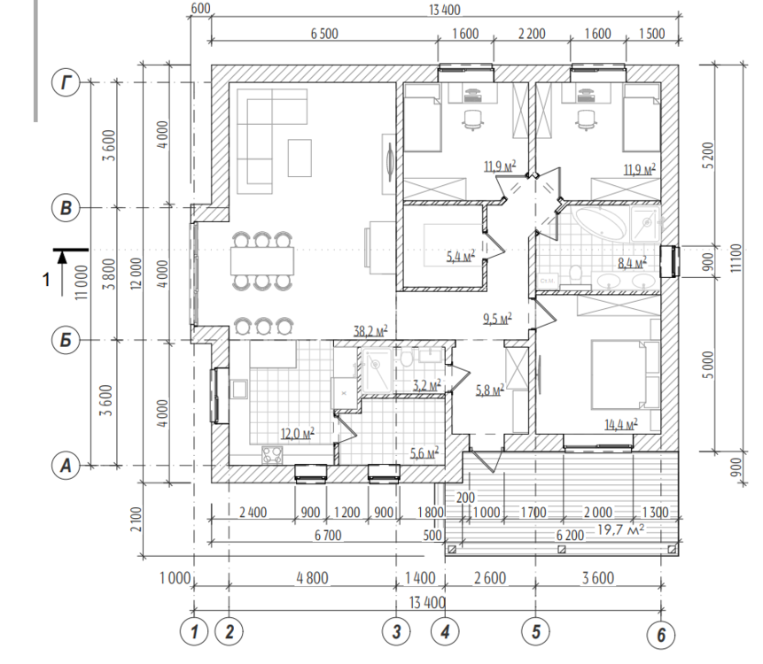
Впереди была зима и куча времени дабы определится с проектом, забегая на перед скажу что думал что это будет просто! Хоть и маленкий, но опыт постройки гаража и баланс на карте, говорили мне что нужно что то небольшое и компактное! Изначально хотелось только одноэтажник. Были желания то с 4мя спальнями то с 3мя, но обязательно с большой гостинной. Почему то запали в душу именно польские проекты - из них и стал выбирать. Но тут как в поговорке "то штани короткі то рубашка довга..." было пересмотрено куча сайтов, кучу раз останавливался вот на єтом и все...Z10, 69, дом под красной рябиной...от Архона от Z500 от extradoma и еще кучи) пытался рисовать самостоятельно но получалось как все в той же поговорке. То кухня маленька и гардеробной нема, то зачем нам там окно? а как туда поставить двери? и т.д. А хотелось всего: и веранду и два санузла и топочную и гардеробную.  Короче голова рэпалась от обилия информации, польские сайты с планировками снились уже по ночам. И тут отдельное ОГРОМНОЕ СПАСИБО я должен сказать Сергею Drosselbeere! Выслушав все наши хотелки описанные выше, расположение дома и входной группы (о этот южный фасад..) попредлагав свои варианты был предложен проект который устроил меня целиком и полностью!

Screenshot_2.thumb.png.f5dbc5491ae80ca5d3351c8f618a9beb.png

Ту было всё! и даже эркер !)Screenshot_3.thumb.png.6f8049ef19ff8988ee16f4daa08fe823.png

Змінено користувачем ROS_SUMY
  • Лайк 4
Посилання на коментар
Поділитися на інших сайтах

Итак дом на 126 м.кв. Газоблок D 400 шириной 40 см + AEROC Energy 10 см. Холодный чердак, перекрытие по деревянным балкам, фундамент два ряда ФБС, полы по грунту. Все расчеты на отце, за что ему огромное спасибо!

IMG_2645.thumb.jpg.eb13522fbb8373b7c595fd246b1ff4ed.jpg

IMG_2722.thumb.jpg.50866333d18bd8eb383d40eaf670682e.jpg

IMG_2782.thumb.PNG.34f529018806018b08ac3be24fd009f6.PNG

IMG_2964.thumb.jpg.b6d4520710411e07dad60a74aa4c98ce.jpg

 

IMG_3172.thumb.jpg.3abbb77d4e59defd57aa98feffa35937.jpg

IMG_3236.thumb.PNG.a59e8fe0fb8e7fccb77caa982d28db87.PNG

 

 

  • Лайк 4
Посилання на коментар
Поділитися на інших сайтах

Едем дальше:

Совместно с виброногой и кумом трамбуем грунт

IMG_4759.thumb.jpg.86dc3884ae8a9ebe5c19cce197e92934.jpg

Дальше песок

IMG_4787.thumb.jpg.ab858a4c2d53ebd2f522b0987a4d4ca9.jpg

"у вас на стройке несчастные случаи были?" (С)

сломал ногу...

IMG_4870.thumb.jpg.2208cac7a6214e202437640c67c0c87f.jpg

Зато есть помощники

IMG_4897.thumb.jpg.278f7cc07dcfca0d0cf64f5b7c97e045.jpg

IMG_4977.thumb.jpg.165772704804dcd22d43813eaed0898f.jpg

И ось нарешті початок великого будівництва

IMG_4986.thumb.jpg.363a4edf464ff0b7377c6f4f66c45d90.jpg

IMG_5090.thumb.jpg.72bf4f4f9d2745481eae38d5e9cfd320.jpg

IMG_5131.thumb.jpg.d041d34c6f086589b43d1ee28f71bb24.jpg

Далі буде...

Змінено користувачем ROS_SUMY
  • Лайк 7
Посилання на коментар
Поділитися на інших сайтах

2 часа назад, ROS_SUMY сказал:

Е

 

IMG_4897.thumb.jpg.278f7cc07dcfca0d0cf64f5b7c97e045.jpg

IMG_4977.thumb.jpg.165772704804dcd22d43813eaed0898f.jpg

Смотрю-одни "бабЫ" работают. А тот мужик с лопатой-надсмотрщик ? :)

 

Посилання на коментар
Поділитися на інших сайтах

В каком районе строитесь, если не секрет?

По фоткам то ли Химик, то ли Нахимова...

Посилання на коментар
Поділитися на інших сайтах

1 минуту назад, vadimv сказал:

В каком районе строитесь, если не секрет?

По фоткам то ли Химик, то ли Нахимова...

Нахимова)

  • Лайк 1
Посилання на коментар
Поділитися на інших сайтах

12 минут назад, Dendnepr сказал:

Смотрю-одни "бабЫ" работают. А тот мужик с лопатой-надсмотрщик ? :)

 

таков путь)

  • Хаха 1
Посилання на коментар
Поділитися на інших сайтах

5 часов назад, ROS_SUMY сказал:

IMG_5131.thumb.jpg.d041d34c6f086589b43d1ee28f71bb24.jpg

 

 

оконные перемычки на несущих стенах не монолитные? просто арматура в газоблоке?

  • Лайк 1
Посилання на коментар
Поділитися на інших сайтах

15 часов назад, Astrolog_ua сказал:

 

оконные перемычки на несущих стенах не монолитные? просто арматура в газоблоке?

так как ширина стены 400 то по краям ставился газоблок по 100 мм и оставшиеся 200 армировались и бетонировались. Так же устроен и армопояс

7687C66E-90A8-4743-8E6A-113C91849DE1.thumb.jpeg.be2335c038eda7f58648dbe190fa4893.jpeg

Змінено користувачем ROS_SUMY
  • Лайк 2
Посилання на коментар
Поділитися на інших сайтах

9 часов назад, Dendnepr сказал:

Смотрю-одни "бабЫ" работают

Дык всё по проекту!!! На визуализации несколькими постами выше так и изображено :) И ходЮт только они

Змінено користувачем tansss
  • Лайк 3
Посилання на коментар
Поділитися на інших сайтах

11 часов назад, ROS_SUMY сказал:

Впереди была зима и куча времени дабы определится с проектом, забегая на перед скажу что думал что это будет просто! Хоть и маленкий, но опыт постройки гаража и баланс на карте, говорили мне что нужно что то небольшое и компактное! Изначально хотелось только одноэтажник. Были желания то с 4мя спальнями то с 3мя, но обязательно с большой гостинной. Почему то запали в душу именно польские проекты - из них и стал выбирать. Но тут как в поговорке "то штани короткі то рубашка довга..." было пересмотрено куча сайтов, кучу раз останавливался вот на єтом и все...Z10, 69, дом под красной рябиной...от Архона от Z500 от extradoma и еще кучи) пытался рисовать самостоятельно но получалось как все в той же поговорке. То кухня маленька и гардеробной нема, то зачем нам там окно? а как туда поставить двери? и т.д. А хотелось всего: и веранду и два санузла и топочную и гардеробную.  Короче голова рэпалась от обилия информации, польские сайты с планировками снились уже по ночам. И тут отдельное ОГРОМНОЕ СПАСИБО я должен сказать Сергею Drosselbeere! Выслушав все наши хотелки описанные выше, расположение дома и входной группы (о этот южный фасад..) попредлагав свои варианты был предложен проект который устроил меня целиком и полностью!

Screenshot_2.thumb.png.f5dbc5491ae80ca5d3351c8f618a9beb.png

Ту было всё! и даже эркер !)Screenshot_3.thumb.png.6f8049ef19ff8988ee16f4daa08fe823.png

 

Посилання на коментар
Поділитися на інших сайтах

4 минуты назад, tansss сказал:

Дык всё по проекту!!! На визуализации несколькими постами выше так и изображено :)

😂😂😂

Змінено користувачем ROS_SUMY
Посилання на коментар
Поділитися на інших сайтах

15 часов назад, ROS_SUMY сказал:

так как ширина стены 400 то по краям ставился газоблок по 100 мм и оставшиеся 200 армировались и бетонировались. Так же устроен и армопояс

А где в этом пироге будет оконный профиль находиться?

Посилання на коментар
Поділитися на інших сайтах

32 минуты назад, razzil сказал:

А где в этом пироге будет оконный профиль находиться?

я так понимаю здесь

Screenshot_4.png

  • Лайк 3
Посилання на коментар
Поділитися на інших сайтах

На сегодняшний день: фундамент с работой - 177 тис.грн

                                  коробка с работой  - 235 тис.грн

Змінено користувачем ROS_SUMY
  • Лайк 2
Посилання на коментар
Поділитися на інших сайтах

Я вот всегда считал что "КОРОБКА" - это предмет который имеет закрытыми и ДНО И БОКА И ВЕРХ. А Вы что называете коробкой?

Посилання на коментар
Поділитися на інших сайтах

4 минуты назад, tansss сказал:

Я вот всегда считал что "КОРОБКА" - это предмет который имеет закрытыми и ДНО И БОКА И ВЕРХ. А Вы что называете коробкой?

в моем случае предмет без закрытого верха и боков 😂

Посилання на коментар
Поділитися на інших сайтах

13 минут назад, ROS_SUMY сказал:

в моем случае предмет без закрытого верха и боков 😂

если учесть, что фундамент считаете отдельно - то получается что и без дна?😁😉

  • Лайк 1
  • Хаха 1
Посилання на коментар
Поділитися на інших сайтах

15 минут назад, omozhyn сказал:

если учесть, что фундамент считаете отдельно - то получается что и без дна?😁😉

Так фундамент к коробке типа не относится... вот если плита есть или уже полы то хоть как то можно считать ДНОМ... а так только рамка для установки коробки :)

  • Лайк 1
Посилання на коментар
Поділитися на інших сайтах

2 минуты назад, tansss сказал:

Так фундамент к коробке типа не относится... вот если плита есть или уже полы то хоть как то можно считать ДНОМ... а так только рамка для установки коробки :)

хай буде так

Посилання на коментар
Поділитися на інших сайтах

4 минуты назад, tansss сказал:

Так фундамент к коробке типа не относится... вот если плита есть или уже полы то хоть как то можно считать ДНОМ... а так только рамка для установки коробки :)

о,да, это конечно интересная тема для обсуждения.

Кто-то выгнал стены из кирпича по ленте(потом будет утепление), кинули балки перекрытия, и крыша под "холодный чердак", поставили окна - контур вроде бы закрыт.

А рядом дом из ГБ на ушп и с мансардной, уже утепленной крышей, ну и тоже окна.

Во втором случае уже все утеплено, разведены коммуникации и ТП в полу, и стяжка.

А в первом все это еще предстоит. 

Но получается, что и там, и там - это коробка) 

  • Лайк 3
Посилання на коментар
Поділитися на інших сайтах

Створіть акаунт або увійдіть у нього для коментування

Ви маєте бути користувачем, щоб залишити коментар

Створити акаунт

Зареєструйтеся для отримання акаунта. Це просто!

Зареєструвати акаунт

Увійти

Вже зареєстровані? Увійдіть тут.

Увійти зараз
×
×
  • Створити...