Дмитрий Давыденко Опубліковано: 25 серпня 2021 Поділитись Опубліковано: 25 серпня 2021 Добрый день. Рассматриваю такой проект каркасного дома в стиле барнхаус.Нашел эскиз в интернете, хотел узнать Ваше мнение, может будут какие-то комментарии по улучшению. Так же хотел бы узнать на сколько принципиально делать проект фундамента и геологию под такой дом. Думаю поставить на сваи. Грунт на участке - строительный мусор и сыпуха, если углубиться - через 1,5-2м плотный чернозем. Может вкрутить просто сваи с запасом? Посилання на коментар Поділитися на інших сайтах More sharing options...
apxitektop.s Опубліковано: 25 серпня 2021 Поділитись Опубліковано: 25 серпня 2021 (змінено) 1 час назад, Дмитрий Давыденко сказал: принципиально делать проект фундамента и геологию под такой дом. Думаю поставить на сваи. Грунт на участке - строительный мусор и сыпуха, Если честно, почитав сообщение внимательно, и тип грунтов, то фундаменты и геологию можете не делать, сейчас как раз актуально делать дома на левитирующей подушке. 😁😉😂, А сваи это не фундамент и геология не нужна?)) Вы вообще понимаете на какой отметке сажать эти сваи, где несущий грунт , сечение необходимое, их шаг или будете вместе с Джамшутами по месту тестировать? Вам нужны в любом случае как проект так и геология. По планированию дома, в принципе нормально, если не вникать глобально Змінено 25 серпня 2021 користувачем apxitektop.s Посилання на коментар Поділитися на інших сайтах More sharing options...
MAESTRO DNEPR Опубліковано: 25 серпня 2021 Поділитись Опубліковано: 25 серпня 2021 На что будет опираться центральная стена между двумя спальнями на втором этаже, если под ней ничего нет? На воздух? Проект сырой, просто две картинки без малейшей привязки к конструктиву. 2 Посилання на коментар Поділитися на інших сайтах More sharing options...
vadimv Опубліковано: 26 серпня 2021 Поділитись Опубліковано: 26 серпня 2021 8 годин тому, MAESTRO DNEPR сказав: Проект сырой, просто две картинки Причем в традиционном стиле - без комнаты на первом этаже, зато с лестницей веером. 1 1 Посилання на коментар Поділитися на інших сайтах More sharing options...
Дмитрий Давыденко Опубліковано: 26 серпня 2021 Автор Поділитись Опубліковано: 26 серпня 2021 32 минуты назад, vadimv сказал: Причем в традиционном стиле - без комнаты на первом этаже, зато с лестницей веером. А мне не нужна комната на 2 этаже и опять же, это предварительный эскиз, детали уже будут обсуждаться с проектировщиками. что плохого в такой лестнице? какую лучше и выгоднее ставить? Посилання на коментар Поділитися на інших сайтах More sharing options...
Gitan Опубліковано: 26 серпня 2021 Поділитись Опубліковано: 26 серпня 2021 56 минут назад, Дмитрий Давыденко сказал: что плохого в такой лестнице? Надо поменьше забежных ступеней. Посилання на коментар Поділитися на інших сайтах More sharing options...
ПГС-Проект Опубліковано: 26 серпня 2021 Поділитись Опубліковано: 26 серпня 2021 14 часов назад, Дмитрий Давыденко сказал: через 1,5-2м плотный чернозем На чернозем опирать фундаменты нельзя, какой-бы он "плотный" не был... Посилання на коментар Поділитися на інших сайтах More sharing options...
Дмитрий Давыденко Опубліковано: 26 серпня 2021 Автор Поділитись Опубліковано: 26 серпня 2021 1 час назад, ПГС-Проект сказал: На чернозем опирать фундаменты нельзя, какой-бы он "плотный" не был... ок. если дорыться до глины, можно делать фундамент без проекта и геологии? плавунов там точно нет. Посилання на коментар Поділитися на інших сайтах More sharing options...
ПГС-Проект Опубліковано: 26 серпня 2021 Поділитись Опубліковано: 26 серпня 2021 Копать два а может и больше метра в двух трех местах в ручную, вы серьезно? А вдруг просадочный грунт, а как узнать? Никогда не понимал экономию на геологии 8-10тыс.грн, при том что постройка будет стоить 100к. не гривен. 1 Посилання на коментар Поділитися на інших сайтах More sharing options...
vadimv Опубліковано: 26 серпня 2021 Поділитись Опубліковано: 26 серпня 2021 3 години тому, Дмитрий Давыденко сказав: что плохого в такой лестнице? какую лучше и выгоднее ставить? - у нее разная ширина ступеней на разном расстоянии от центра, из-за чего легко промахнуться и полететь вниз. Случаи были. - выгоднее (с точки зрения своего здоровья) ставить лестницу с прямыми ступенями 1 Посилання на коментар Поділитися на інших сайтах More sharing options...
tort Опубліковано: 26 серпня 2021 Поділитись Опубліковано: 26 серпня 2021 5 часов назад, Дмитрий Давыденко сказал: А мне не нужна комната на 2 этаже...? Мова у vadimv йшла про житлову кімнату не на другому, а на першому поверсі. Дивно що її там нема, проте пральня та гардероб є. Бігати сходами з другого на перший за якоюсь дрібничкою ніхто не буде, тож явно оте приміщення не гардероб, а кладова. І взагалі, виходить що половина площі першого поверху віддана під допоміжні хоз. приміщення. А це найцінніша площа. Ну і чотири модулі у кухні - то для однокімнатної квартири є нормою, але ніяк не для двоповерхового будинку. Острів звісно компенсує деякі функції, але ж зручності у трикутник (холодильник-мийка-плита) не додає, хіба що плиту ви влаштуєте на острові. 3 Посилання на коментар Поділитися на інших сайтах More sharing options...
Gitan Опубліковано: 26 серпня 2021 Поділитись Опубліковано: 26 серпня 2021 2 санузла на 2 эт жирновато. Сделайте один и перенесите прачечную на 2 эт 1 Посилання на коментар Поділитися на інших сайтах More sharing options...
Дмитрий Давыденко Опубліковано: 26 серпня 2021 Автор Поділитись Опубліковано: 26 серпня 2021 2 часа назад, tort сказал: Мова у vadimv йшла про житлову кімнату не на другому, а на першому поверсі. Дивно що її там нема, проте пральня та гардероб є. Бігати сходами з другого на перший за якоюсь дрібничкою ніхто не буде, тож явно оте приміщення не гардероб, а кладова. І взагалі, виходить що половина площі першого поверху віддана під допоміжні хоз. приміщення. А це найцінніша площа. Ну і чотири модулі у кухні - то для однокімнатної квартири є нормою, але ніяк не для двоповерхового будинку. Острів звісно компенсує деякі функції, але ж зручності у трикутник (холодильник-мийка-плита) не додає, хіба що плиту ви влаштуєте на острові. Это опечатка была. я имел ввиду 1 этаж. на счет кухни и прачечной согласен. на счет гардеробной на первом этаже: она будет использоваться для курток, обуви и тд. на втором этаже гардеробные для остальных вещей. Касательно кухни рассмотрю Ваши советы. Посилання на коментар Поділитися на інших сайтах More sharing options...
design3s Опубліковано: 30 серпня 2021 Поділитись Опубліковано: 30 серпня 2021 Да, лестницу лучше сделать с прямым маршем, сама не однократно оступалась с такой лестницы с забежными ступенями. По санузлам на втором этаже это уже не принципиально можно один можно и два, это в основном зависит от вашего времяпровождения и колл. проживающих. Посилання на коментар Поділитися на інших сайтах More sharing options...
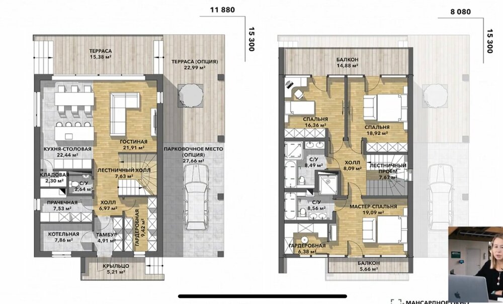
Дмитрий Давыденко Опубліковано: 30 серпня 2021 Автор Поділитись Опубліковано: 30 серпня 2021 В итоге нашел такой план. В принципе все устраивает. будут какие-то подсказки со стороны профессионалов? Посилання на коментар Поділитися на інших сайтах More sharing options...
design3s Опубліковано: 30 серпня 2021 Поділитись Опубліковано: 30 серпня 2021 1 минуту назад, Дмитрий Давыденко сказал: В итоге нашел такой план. В принципе все устраивает. будут какие-то подсказки со стороны профессионалов? Компактненько. Только мокрые зоны желательно размещать рядом, друг над другом. Может лестницы с сн поменять местами? 2 1 Посилання на коментар Поділитися на інших сайтах More sharing options...
vadimv Опубліковано: 30 серпня 2021 Поділитись Опубліковано: 30 серпня 2021 46 хвилин тому, Дмитрий Давыденко сказав: В итоге нашел такой план. А с какой стороны у вас север? Посилання на коментар Поділитися на інших сайтах More sharing options...
Дмитрий Давыденко Опубліковано: 31 серпня 2021 Автор Поділитись Опубліковано: 31 серпня 2021 8 часов назад, vadimv сказал: А с какой стороны у вас север? сзади, где терраса Посилання на коментар Поділитися на інших сайтах More sharing options...
vadimv Опубліковано: 31 серпня 2021 Поділитись Опубліковано: 31 серпня 2021 39 хвилин тому, Дмитрий Давыденко сказав: сзади, где терраса Т.е. терраса на северо-восток, нормально. 1 Посилання на коментар Поділитися на інших сайтах More sharing options...
Alvalk Опубліковано: 8 вересня 2021 Поділитись Опубліковано: 8 вересня 2021 В 31.08.2021 в 07:57, vadimv сказал: Т.е. терраса на северо-восток, нормально. а вот остекление в гостиной на север как-то не очень Посилання на коментар Поділитися на інших сайтах More sharing options...
Рекомендовані повідомлення
Створіть акаунт або увійдіть у нього для коментування
Ви маєте бути користувачем, щоб залишити коментар
Створити акаунт
Зареєструйтеся для отримання акаунта. Це просто!
Зареєструвати акаунтУвійти
Вже зареєстровані? Увійдіть тут.
Увійти зараз