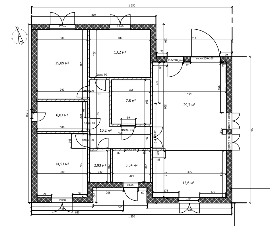
newbee2020 Опубліковано: 22 вересня 2021 Поділитись Опубліковано: 22 вересня 2021 (змінено) Пришлось создать таки свою темку, надоело бомжевать по чужим, да и пинают меня часто, лучше пусть это будет в одном месте Гуманитарий, но люблю осваивать что-то новое. Всегда мечтал о домике в лесу, чтобы воздух, птички, садок и вот эта вот все. В марте 2020 после начала карантина со второго просмотра куплен участок в ~20 км от Киева, где еще осталось немного леса, внезапно неплохой асфальт и массив без домиков старой застройки. Тогда же и начал вникать в тему стройки. Из околостроительного опыта - поклейка обоев и укладка ламината в своей квартире спасибо гуглу, ютубу, форуму и форумчанам, кто делится своим опытом и размышлениями. Также не справился бы без родственника грамотного технически и с желанием помочь. Погнали ! Какие задачи себе поставил перед выбором проекта: 1. не очень много площади 2. энергоэффективно и современно 3. чтобы красиво и не дорого почитав темы форумчан, немного покурив вражеский ФХ, вдохновившись темой черепашек Татьяны, взял за основу Z24 и немного переделал его под себя. из особенностей - большое тех помещение в центре дома. и кухня гостинная около 45 квм. три спальни и два сан узла (маю два малолетних сына). в мае-июне привез бытовку, лопату и мешалку, подключил свет, 4g+wifi, неспешно корчевали деревья на участке (дикие груши и сосны), завез камаз чернозема, пока был доступ с тыльной стороны), сделали забор по периметру (фасад не закрывали), паралельно готовился теоретически и работал над проектом. купил сварку за 1,5 кгрн и сам сварил каркас забора, тогда же и впервые ощутил удельный вес бетона 😀 ямки на 1м, стальные круглые трубы (достались в подарок с бытовкой). связаны между собой листами плоского шифера 3х0,5м. на 30 см в землю и 20 сверху. такой колхозанский заборчик, но стоит пока. дешево и красиво. потом (июль 2020) скважина (62 метра, бучакский горизонт, 125 труба, насос педрола 0,7 квт (спецом такой слабенький)) и септик (три камеры, две герметичных, кольца 1.5м, вентиляция), дренажный колодец углубили немного чтобы больше щебня сыпнуть, и как оказалось не зря - дошли до песочка, глубина метра 4 наверное. из дренажного колодца - еще траншея дренажная (про запас, 6 метров, труба 160 на щебенке и песке, сверху геотекстиль и грунт). яму копал JCB, ровнял лопатой и укладывали кольца сами. кольца ЖБИ Жуляны, очень крепкие (тяжко было 1.5 квт перфом долбить). август 2020 - поселил в бытовку двух молодых парней (нашел на ОЛХ) по 800 грн в день, ну и сам приезжал каждый день прорабствовать, в середине августа сняли JCB плодородный слой под УШП (около 20 см). геологию не делал (точнее делал, сам копнул и покатал шарики). грунт суглинок и супесь, в разных пропорциях. по пятну застройки перепал около 20 см. в нижнем углу больше глины. трамбанул плитой 150 кг котлован посля снятия плодородки (зачем спросите вы? не знаю, для "подстраховки"). копнули траншеи, уложили каналью, утепленные трубы с нержавки под ТТ в возможную внешнюю котельную и закладные трубы под остальное (пока ее нет, оно все прикопано). потом геотекстиль 250 г, щебеночки 20-40, один 20тонник, второй, третий, трамбуем все это дело, потом мелкий щебень 5-10, трамбуем, выводим горизонт под пенопласт уже песком. вообщем, классика УШП доросел, экструдер 10см в ребрах, ПСБ (EPS 100 ) 20 см в полу. сетка 150-150 8мм, ребра 5х12мм, хомуты на ребра 6мм с длинными хвостами, экстраармирование не делал (зря). 10 контуров теплого пола улиткой, длина общая около 730 мп, средняя длина около 65 метров, трубу купил ферролли pex A 16x2, как потом оказалось (после заливки), это подделка (буквы не совпадают с итальянским ферролли). впрочем, пост испытания трубы лопатой, изломом, давлением и температурой 95 градусов подтвердило плюс минус заявленые характеристики, будем надеяться не потечет. после заливки УШП, с помощью тех же парней залили отмостку 1.2 метра на 5см экструдера, залили столбы под террасу и потом саму террасу (около 30 квм получилось). потом они поехали домой (октябрь 2020) и зашла бригада на газоблок, стены и перемычки поставили за неделю с небольшим. внутренние стены аерок D500 150мм (они же и частично несущие). перессчитал и решил что этого будет достаточно. опираются на ребра УШП и сверху цельный армопояс (соответственно тоже 15 см), завязан с армопоясом по у-блокам. потом та же бридага в меньшем составе (3-4 чел) сделала крышу. угол около 27 градусов, в будущем под фотопанели), фасад южный. битумка акваизол гавайский песок, на подклад ковре (какой то дешманский), осб 12 мм еггер. в декабре окна (рехау евро 70, два енергосберегающих стекла, две камері по 14 аргон, теплая подставка, теплая дистанция, шпросы алюминий (зря). поставили сами с родичем входные двери (теплосталь вроде, красивые но стекло не такое как на фото и геометрия чуть подгулявшая). тяжелые ппц. также сделали фасадный забор, ворота (4м) калитка и пошли праздновать Новый 2021 год. Змінено 22 вересня 2021 користувачем newbee2020 10 2 Посилання на коментар Поділитися на інших сайтах More sharing options...
newbee2020 Опубліковано: 22 вересня 2021 Автор Поділитись Опубліковано: 22 вересня 2021 (змінено) весной 2021, как потеплело, поселил снова хлопчика на поденну оплату, вместе с ним утеплили перекрытие (30 см рокмин, в гостинной 25 см, чтобы потолка сэкономить), пароизоляция, черновые доски, люк, начали делать проводку, штукатурку (ручной ротбанд), потом два слоя шпаклевки Д60. откосы частично гипсокартон, частично ротбанд. паралельно внешние подрядчики сделали фасад Ceresit Visage (травертин), стены не утеплял, внешние откосы 3 см XPS, обшил фасадный забор изнутри. недавно поставили водосточку Orima K12 цвет черный глянец и начали неспеша делать гипсокартонные потолки с теневым швом. на данный момент бюджет около 70 к (без участка и света). Змінено 22 вересня 2021 користувачем newbee2020 17 Посилання на коментар Поділитися на інших сайтах More sharing options...
apereverzev Опубліковано: 22 вересня 2021 Поділитись Опубліковано: 22 вересня 2021 Неплохо этот травертин смотрится. Это панели или штукатурка? 1 Посилання на коментар Поділитися на інших сайтах More sharing options...
newbee2020 Опубліковано: 22 вересня 2021 Автор Поділитись Опубліковано: 22 вересня 2021 (змінено) тонкослойная штукатурка с лессировкой. обсуждали в теме у Татьяны эту технологию. могут делать под дерево, травертин и сланец. отжимают силиконовыми формами (типа с натурального травертина). смотрится очень круто, но красивое фото тяжело сделать под нужным освещением. ну и дорого (на дом с откосами и подготовкой обошлось почти в 5куе), но вау эффект присутствует. оттенок песочный с перламутровым отливом, под антрацит на мой вкус очень красиво. швы формированы под крупноформатную плитку 1х1.5м Змінено 22 вересня 2021 користувачем newbee2020 11 Посилання на коментар Поділитися на інших сайтах More sharing options...
metall_version Опубліковано: 22 вересня 2021 Поділитись Опубліковано: 22 вересня 2021 (змінено) прикольно, домик почти как у нас, планировка плюс минус такая-же, только у нас без террасы - эту площадь в площадь дома добавили (еще бывшие хоязева) уже переехали? не утепляли стены, только 375 ГБ ? Змінено 22 вересня 2021 користувачем metall_version 1 Посилання на коментар Поділитися на інших сайтах More sharing options...
newbee2020 Опубліковано: 22 вересня 2021 Автор Поділитись Опубліковано: 22 вересня 2021 (змінено) 19 минут назад, metall_version сказал: прикольно, домик почти как у нас, планировка плюс минус такая-же, только у нас без террасы - эту площадь в площадь дома добавили (еще бывшие хоязева) уже переехали? не утепляли стены, только 375 ГБ ? не утеплял, рассчетное теплосопротивление D300 375мм - R=4.2 если не ошибаюсь. вроде как вполне прилично. в доме на сегодня 16 градусов стабильно, за вчера упало на пол градуса с 16.5. котла еще нет (привет тамбурелычу). до переезда еще не скоро, внутри кроме стен конь не валялся. очень интересно, совпадут ли рассчетные теплопотери с реальными. по беглым прикидкам при дельте -20+20 получилось 4 -4.5 квт.ч без вентиляции. надо будет засесть еще разок более точно посчитать Змінено 22 вересня 2021 користувачем newbee2020 2 Посилання на коментар Поділитися на інших сайтах More sharing options...
metall_version Опубліковано: 22 вересня 2021 Поділитись Опубліковано: 22 вересня 2021 (змінено) мне теплопотери насчитали 7кВт в проекте по отоплению (ТП) у меня стена 300, и утеплитель 150 аэрок, перекрытие будет 300 минваты под полом эппс 100мм (фундамент ленточный), отопление только ТП, электрокотел да фасад, крыша, водосточка, черные окна - выглядит огонь ) а крыльцо планируется под входной дверью? или просто ступени будут? просто цоколь уже сделан (плитка?) Змінено 22 вересня 2021 користувачем metall_version 2 Посилання на коментар Поділитися на інших сайтах More sharing options...
newbee2020 Опубліковано: 22 вересня 2021 Автор Поділитись Опубліковано: 22 вересня 2021 честно говоря не определился, родич настаивает чтобы поднять уровень до двери (крыльцо), я не уверен, надо ли там ступень, или лучше перед дверью сделать небольшую. также есть соблазн сделать что-то типа осенней террасы небольшой там (южная сторона), но не знаю как и зачем 😀 ради пары осенне-весенних дней на солнце, стоит ли? основная терраса северо восточная и солнце там только утром Посилання на коментар Поділитися на інших сайтах More sharing options...
metall_version Опубліковано: 22 вересня 2021 Поділитись Опубліковано: 22 вересня 2021 (змінено) 9 минут назад, newbee2020 сказал: честно говоря не определился вангую будет просто ступенька 😉 так как плитка цоколя уже положена, и фасад готов а что внутри, на каком этапе все? камина нету? (не вижу дымоход) Змінено 22 вересня 2021 користувачем metall_version Посилання на коментар Поділитися на інших сайтах More sharing options...
newbee2020 Опубліковано: 22 вересня 2021 Автор Поділитись Опубліковано: 22 вересня 2021 (змінено) 12 минут назад, metall_version сказал: вангую будет просто ступенька 😉 так как плитка цоколя уже положена, и фасад готов а что внутри, на каком этапе все? проводка в стенах, подрозетники сделано, штукатурка, шпаклевка под покраску, частично потолочные профиля смонтированы под теневой шов (решил отказаться от натяжных в пользу ГК), на полу везде будет керамогранит прямо по УШП, без доп стяжки. надо еще: 1. водорозетки установить попутную требуху 2. електрощит с требухой 3. вентиляция (конь не валялся, крышные выходы не подколючены, вентилируют чердак) 4. дымоход шидель уни (наверное уже на след весну), подвод воздуха под топку сделал под УШП 5. потолки ГК, встроенные лед профиля, умные выключятели сяоми, розетки обычные (немного тоска берет в предвкушении 6. плитка 7. покраска всего 8. мебель. 8.1. - бабки на все это из наружного - доделать навес под авто (столбы вместе с УШП залил), двор, тротуарка, выравнивание, газон. фруктовый сад из 3-5 леток заложил год назад. все цвело, но опало. одно яблучко только отведал (донешта, вкуснота, у деда такой сад был). компенсирую маслятами, которых полно вокруг сосен куропатки залетают еще, но больно субтильные плицы, тушки мелкие, нечего там ловить, еще и подкармливать надо походу. Змінено 22 вересня 2021 користувачем newbee2020 9 Посилання на коментар Поділитися на інших сайтах More sharing options...
Gitan Опубліковано: 22 вересня 2021 Поділитись Опубліковано: 22 вересня 2021 Сколько освоено $? Посилання на коментар Поділитися на інших сайтах More sharing options...
Malchish Опубліковано: 22 вересня 2021 Поділитись Опубліковано: 22 вересня 2021 Феншуйный домик получился, фасад - агонь! Подпишусь. Это где такой заповедник под Киевом, с асфальтом, лесом и без старого села, если не секрет? Посилання на коментар Поділитися на інших сайтах More sharing options...
newbee2020 Опубліковано: 22 вересня 2021 Автор Поділитись Опубліковано: 22 вересня 2021 2 минуты назад, Gitan сказал: Сколько освоено $? читаем уважно, 70к без участка/света 🍺 1 Посилання на коментар Поділитися на інших сайтах More sharing options...
newbee2020 Опубліковано: 22 вересня 2021 Автор Поділитись Опубліковано: 22 вересня 2021 1 минуту назад, Malchish сказал: Феншуйный домик получился, фасад - агонь! Подпишусь. Это где такой заповедник под Киевом, с асфальтом, лесом и без старого села, если не секрет? не хочу особо деанонимизироваться, скажем так, если я я зайду в лес через дорогу и буду идти все время в нем в нужном направлении, то выйду примерно по месту вашей подписи 1 Посилання на коментар Поділитися на інших сайтах More sharing options...
dvirodov Опубліковано: 22 вересня 2021 Поділитись Опубліковано: 22 вересня 2021 У вас на фасаде наблюдаются тонкие линии, сначала подумал это утеплитель выделяется так - но утеплителя ж нет. Интересно, что это? Посилання на коментар Поділитися на інших сайтах More sharing options...
anabioz Опубліковано: 22 вересня 2021 Поділитись Опубліковано: 22 вересня 2021 3 хвилини тому, dvirodov сказав: У вас на фасаде наблюдаются тонкие линии, сначала подумал это утеплитель выделяется так - но утеплителя ж нет. Интересно, что это? Автор писал: тонкослойная штукатурка с лессировкой/ швы формированы под крупноформатную плитку 1х1.5м 2 Посилання на коментар Поділитися на інших сайтах More sharing options...
newbee2020 Опубліковано: 22 вересня 2021 Автор Поділитись Опубліковано: 22 вересня 2021 (змінено) 23 минуты назад, dvirodov сказал: У вас на фасаде наблюдаются тонкие линии, сначала подумал это утеплитель выделяется так - но утеплителя ж нет. Интересно, что это? имитация плит, каждый прямоугольник размером 1х1.5 формировался на стене отдельно, чтобы не было повторяющихся паттернов. на втором фото видно серьезный косяк с моей стороны - неподходящий цвет подшивки террасы. планировалось в цвет столбов, получилась шляпа. возможно, еще буду менять это Змінено 22 вересня 2021 користувачем newbee2020 1 Посилання на коментар Поділитися на інших сайтах More sharing options...
dvirodov Опубліковано: 22 вересня 2021 Поділитись Опубліковано: 22 вересня 2021 Только что, anabioz сказал: Автор писал: тонкослойная штукатурка с лессировкой/ швы формированы под крупноформатную плитку 1х1.5м Точно, не внимательно прочитал) Интересно Посилання на коментар Поділитися на інших сайтах More sharing options...
apereverzev Опубліковано: 22 вересня 2021 Поділитись Опубліковано: 22 вересня 2021 На крыше целая батарея вент выходов. Зачем так много? Посилання на коментар Поділитися на інших сайтах More sharing options...
newbee2020 Опубліковано: 22 вересня 2021 Автор Поділитись Опубліковано: 22 вересня 2021 Только что, apereverzev сказал: На крыше целая батарея вент выходов. Зачем так много? 1. санузел большой 2. санузен маленький 3. вентиляция котельной 4. фановая канализационная 5. кухонная вытяжка (не хочу в стену выводить) 6. вентиляция чердака 2 Посилання на коментар Поділитися на інших сайтах More sharing options...
Dendnepr Опубліковано: 22 вересня 2021 Поділитись Опубліковано: 22 вересня 2021 Нормуль. У меня больше НА кухне 2 шт. В топочной 2 плюс дымоход. Три санузла. Фан. И чердак. итого 10 шт 1 Посилання на коментар Поділитися на інших сайтах More sharing options...
Татьяна5 Опубліковано: 22 вересня 2021 Поділитись Опубліковано: 22 вересня 2021 3 часа назад, newbee2020 сказал: имитация плит, каждый прямоугольник размером 1х1.5 формировался на стене отдельно, чтобы не было повторяющихся паттернов. на втором фото видно серьезный косяк с моей стороны - неподходящий цвет подшивки террасы. планировалось в цвет столбов, получилась шляпа. возможно, еще буду менять это Если позволите, предложу как исправить визуальный эффект "шляпы" - добавьте молдинг массивный, можно даже из дерева 1 1 Посилання на коментар Поділитися на інших сайтах More sharing options...
newbee2020 Опубліковано: 22 вересня 2021 Автор Поділитись Опубліковано: 22 вересня 2021 Вы для меня гуру, как в технической части, так и в дизайне, потому буду благодарен за любой совет. молдинг - это по контуру потолка террасы кинуть типа брус, который визуально сгладит переход двух несовместимых цветов? правильно понял? 1 Посилання на коментар Поділитися на інших сайтах More sharing options...
Татьяна5 Опубліковано: 22 вересня 2021 Поділитись Опубліковано: 22 вересня 2021 2 минуты назад, newbee2020 сказал: Вы для меня гуру, как в технической части, так и в дизайне, потому буду благодарен за любой совет. молдинг - это по контуру потолка террасы кинуть типа брус, который визуально сгладит переход двух несовместимых цветов? правильно понял? Да, именно так, по контуру. Но именно массивное что то, не тоненькое Спасибо за гуру 1 Посилання на коментар Поділитися на інших сайтах More sharing options...
newbee2020 Опубліковано: 22 вересня 2021 Автор Поділитись Опубліковано: 22 вересня 2021 отличный совет, надо будет попробовать. а то я уже голову сломал, уже думал искуственный газон туды мастырить 😀 или шторы с дралона Посилання на коментар Поділитися на інших сайтах More sharing options...
Рекомендовані повідомлення
Створіть акаунт або увійдіть у нього для коментування
Ви маєте бути користувачем, щоб залишити коментар
Створити акаунт
Зареєструйтеся для отримання акаунта. Це просто!
Зареєструвати акаунтУвійти
Вже зареєстровані? Увійдіть тут.
Увійти зараз