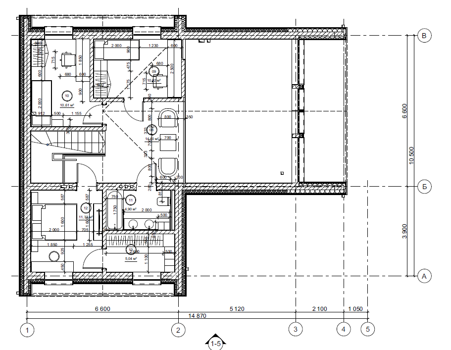
Rastak Опубліковано: 7 листопада 2021 Поділитись Опубліковано: 7 листопада 2021 Не нашел подходящей темы, где можно было бы спросить, потому создаю новую. Для таких домов, как на фото, с витражем на весь фасад в два этажа, применим ли газоблок, как конструктив? Или предпочтительнее каркасная технология? Понятно, что расчеты должен делать конструктор. Но перед тем как к нему идти, хочется понимать саму возможность использования в таком проекте газобетона. Технических знаний не имею, но глядя на картинку не понимаю, что может и будет скреплять боковые стены. Посилання на коментар Поділитися на інших сайтах More sharing options...
MAESTRO DNEPR Опубліковано: 7 листопада 2021 Поділитись Опубліковано: 7 листопада 2021 В этом проекте проблемой является не газоблок, а крыша. У Вас есть разрезы и планы этажей? 1 Посилання на коментар Поділитися на інших сайтах More sharing options...
Rastak Опубліковано: 7 листопада 2021 Автор Поділитись Опубліковано: 7 листопада 2021 4 хвилини тому, MAESTRO DNEPR сказав: В этом проекте проблемой является не газоблок, а крыша. У Вас есть разрезы и планы этажей? То есть с газоблоком тут проблем не будет? Правда, не понимаю, за счёт чего стены не разложатся наружу. Да, есть эскизник. Посилання на коментар Поділитися на інших сайтах More sharing options...
MAESTRO DNEPR Опубліковано: 7 листопада 2021 Поділитись Опубліковано: 7 листопада 2021 (змінено) Я так и думал. 1. Стены на разойдутся, потому-что по оси 3 на уровне перекрытия станет металлическая балка на монолитный пояс, которая потом впишется в витраж... оконщики её обошьют алюминиевым профилем. 2. Вопрос в другом: что не даст крыше "разъехаться" в осях 2-4? Если в другой части дома ещё как-то можно использовать для опирания крыши внутренние перегородки и одну стену, то в этой "второй свет". Надо хотя бы через одну стропилину делать декоративные потолочные балки, которые стянут и удержат крышу. Змінено 7 листопада 2021 користувачем MAESTRO DNEPR 1 Посилання на коментар Поділитися на інших сайтах More sharing options...
Rastak Опубліковано: 7 листопада 2021 Автор Поділитись Опубліковано: 7 листопада 2021 (змінено) 9 хвилин тому, MAESTRO DNEPR сказав: Я так и думал. 1. Стены на разойдутся, потому-что по оси 3 на уровне перекрытия станет металлическая балка на монолитный пояс, которая потом впишется в витраж... оконщики её обошьют алюминиевым профилем. Спасибо. Стало понятнее. В проекте заложены еще две колонны на всю высоту из одного газоблока, как я понял, по обе стороны от распашных дверей. Они нужны для этой балки тоже? Какова вообще их устойчивсть? Или она будет обеспечиваться самим витражем? 9 хвилин тому, MAESTRO DNEPR сказав: 2. Вопрос в другом: что не даст крыше "разъехаться" в осях 1-4? Если в другой части дома ещё как-то можно использовать для опирания крыши внутренние перегородки и одну стену, то в этой "второй свет". Надо хотя бы через одну стропилину делать декоративные потолочные балки, которые стянут и удержат крышу. По крыше, почему то был уверен, что все можно будет решить уже непосредственно с теми, кто будет её делать. Стягивающие балки, как мне кажется, не проблема. Апд. Вот это ж и есть стягивающая балка на разрезе Змінено 7 листопада 2021 користувачем Rastak Апдейт Посилання на коментар Поділитися на інших сайтах More sharing options...
MAESTRO DNEPR Опубліковано: 7 листопада 2021 Поділитись Опубліковано: 7 листопада 2021 2 минуты назад, Rastak сказал: По крыше, почему то был уверен, что все можно будет решить уже непосредственно с теми, кто будет её делать. Стягивающие балки, как мне кажется, не проблема. Сделать их не проблема... но они изменят весь интерьер. Вы должны себе это представлять. 6 минут назад, Rastak сказал: Спасибо. Стало понятнее. В проекте заложены еще две колонны на всю высоту из одного газоблока, как я понял, по обе стороны от распашных дверей. Они нужны для этой балки тоже? Какова вообще их устойчивсть? Или она будет обеспечиваться самим витражем? Я бы вместо них сделал две металлические стойки. Посилання на коментар Поділитися на інших сайтах More sharing options...
Rastak Опубліковано: 7 листопада 2021 Автор Поділитись Опубліковано: 7 листопада 2021 15 хвилин тому, MAESTRO DNEPR сказав: Сделать их не проблема... но они изменят весь интерьер. Вы должны себе это представлять. Да, спасибо. Конечно, представляем. Видели такое в интерьерах и для нас это ок. 16 хвилин тому, MAESTRO DNEPR сказав: Я бы вместо них сделал две металлические стойки. 2 - только до балки? Или 4: 2 до балки и 2 от балки до крыши? Посилання на коментар Поділитися на інших сайтах More sharing options...
MAESTRO DNEPR Опубліковано: 7 листопада 2021 Поділитись Опубліковано: 7 листопада 2021 2 минуты назад, Rastak сказал: 2- только до балки? Или 4: 2 до балки и 2 от балки до крыши? На всю высоту. Они нужны будут оконщикам. 1 Посилання на коментар Поділитися на інших сайтах More sharing options...
MAESTRO DNEPR Опубліковано: 7 листопада 2021 Поділитись Опубліковано: 7 листопада 2021 31 минуту назад, Rastak сказал: Вот это ж и есть стягивающая балка на разрезе Нет)... тот, кто её начертил пусть себе так сделает. Посилання на коментар Поділитися на інших сайтах More sharing options...
архітектор Опубліковано: 29 листопада 2021 Поділитись Опубліковано: 29 листопада 2021 В 07.11.2021 в 11:28, Rastak сказал: Для таких домов, как на фото, с витражем на весь фасад в два этажа, применим ли газоблок, как конструктив? Или предпочтительнее каркасная технология? Не могу понять суть вопроса. Если для вас не проблема заплатить за витраж высотой свыше 7 метров и шириной почти 7 метров, а это несколько тысяч долларов, возможно больше 10, если витраж с дверями, из алюминиевого профиля, с усилением, и энергосбережением, то как можно спрашивать о газобетоне, который стоит сравнительно ничтожно мало? Ну если есть бюджет на такой дом, который назвали подрядные компании, ведь вы ж не будете сами строить, сами изготавливать витраж? Если есть бюджет, чтобы нанять специалистов, то к чему сомнения? Специалисты уже заодно и предложат как сделать так, чтобы стенки не разъехались, куда надо балку добавить, или каркас усиливающий по периметру сделать. Тут скорее вопрос в том, а если не привлекать специалистов и надеятся что такой дом будет стоить дешево, то можно ли его построить? Нет конечно, такой дом не строится как хата на четыре стенки Посилання на коментар Поділитися на інших сайтах More sharing options...
Rastak Опубліковано: 29 листопада 2021 Автор Поділитись Опубліковано: 29 листопада 2021 39 хвилин тому, архитектор сказав: Не могу понять суть вопроса. Если для вас не проблема заплатить за витраж высотой свыше 7 метров и шириной почти 7 метров, а это несколько тысяч долларов, возможно больше 10, если витраж с дверями, из алюминиевого профиля, с усилением, и энергосбережением, то как можно спрашивать о газобетоне, который стоит сравнительно ничтожно мало? Ну если есть бюджет на такой дом, который назвали подрядные компании, ведь вы ж не будете сами строить, сами изготавливать витраж? Если есть бюджет, чтобы нанять специалистов, то к чему сомнения? Специалисты уже заодно и предложат как сделать так, чтобы стенки не разъехались, куда надо балку добавить, или каркас усиливающий по периметру сделать. Тут скорее вопрос в том, а если не привлекать специалистов и надеятся что такой дом будет стоить дешево, то можно ли его построить? Нет конечно, такой дом не строится как хата на четыре стенки Да, ценой витража уже прониклись, спасибо) даже с суммой до 20 тыс дол за окна уже почти смирились. Но пока цифра стремится к 40))) но вопрос не в этом. Картинки выше - это всего лишь эскизник того, что хотелось бы. И вопрос в том, имеет ли право на жизнь вообще такое решение, или этот эскизник всего лишь красивая картинка, с реализацией которой могут возникнуть серьезные трудности. Посилання на коментар Поділитися на інших сайтах More sharing options...
архітектор Опубліковано: 29 листопада 2021 Поділитись Опубліковано: 29 листопада 2021 29 минут назад, Rastak сказал: Да, ценой витража уже прониклись, спасибо) даже с суммой до 20 тыс дол за окна уже почти смирились. Но пока цифра стремится к 40))) но вопрос не в этом. Картинки выше - это всего лишь эскизник того, что хотелось бы. И вопрос в том, имеет ли право на жизнь вообще такое решение, или этот эскизник всего лишь красивая картинка, с реализацией которой могут возникнуть серьезные трудности. Ставите себе реальные критерии. Вот например отправить картинку на просчет и понять, что по такой картинке могут насчитать за витраж и 20 и 40 тыс. уе. И с этим надо как-то жить. Если норм, и есть бюджет и на окна и на мебель и на благоустройство участка - то почему нет. Если вы без понятия как строить дома и что сколько стоит, то формулируйте задачу в деньгах. Например вот есть план построить на участке в 10 соток дом за 50 тыс уе под ключ, или за 100 тыс под ключ. Что надо сделать, чтобы не потратить все эти деньги и только потом понять, что это таки действительно была только 1/5 нужной суммы, хоть как ни старался перехитрить подрядчиков 2 Посилання на коментар Поділитися на інших сайтах More sharing options...
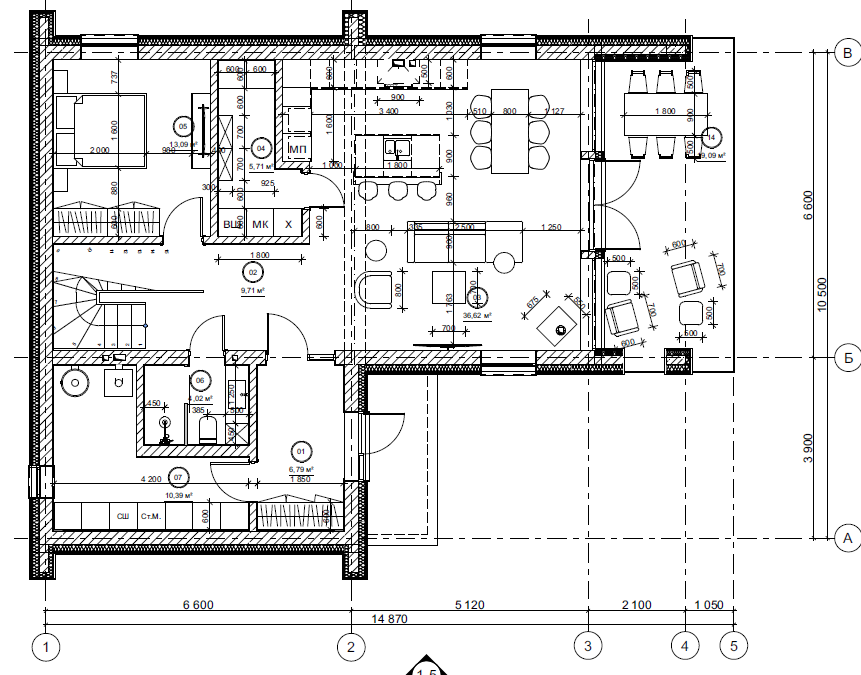
Фрай Опубліковано: 30 листопада 2021 Поділитись Опубліковано: 30 листопада 2021 В 07.11.2021 в 11:28, Rastak сказал: Интересно, а как практична эта терраса в эксплуатации? Держать там мягкую мебель нереально, от солнца и осадков защита близка к нулю. Или просто красиво смотрится? Посилання на коментар Поділитися на інших сайтах More sharing options...
Rastak Опубліковано: 2 грудня 2021 Автор Поділитись Опубліковано: 2 грудня 2021 (змінено) Цитата Интересно, а как практична эта терраса в эксплуатации? Держать там мягкую мебель нереально, от солнца и осадков защита близка к нулю. Или просто красиво смотрится? Просто красиво) от солнца и осадков можно какой-то зонт влепить или маркизу выдвижную. Вообще, в этом проекте много не очень практичных и рациональных решений, но хочется именно так) Змінено 2 грудня 2021 користувачем Rastak Посилання на коментар Поділитися на інших сайтах More sharing options...
Gitan Опубліковано: 3 грудня 2021 Поділитись Опубліковано: 3 грудня 2021 Где строится будете? В старой застройке и коттеджном городке? Как впишется дом такой архитектуры? Посилання на коментар Поділитися на інших сайтах More sharing options...
Rastak Опубліковано: 3 грудня 2021 Автор Поділитись Опубліковано: 3 грудня 2021 32 хвилини тому, Gitan сказав: Где строится будете? В старой застройке и коттеджном городке? Как впишется дом такой архитектуры? Старая застройка, но вокруг нарезаются участки и всякие проекты типа Z7 Z10 и тд застраиваются Посилання на коментар Поділитися на інших сайтах More sharing options...
Рекомендовані повідомлення
Створіть акаунт або увійдіть у нього для коментування
Ви маєте бути користувачем, щоб залишити коментар
Створити акаунт
Зареєструйтеся для отримання акаунта. Це просто!
Зареєструвати акаунтУвійти
Вже зареєстровані? Увійдіть тут.
Увійти зараз