blacktigra Опубліковано: 8 березня 2024 Поділитись Опубліковано: 8 березня 2024 Отримавши в минулому місяці чималий рахунок за електрику, вирішив що з мене досить і треба діяти. Більша частина зі спожитої електрики в мене йде на нагрів гарячої води в звичайному електричному бойлері. Я намагався перехитрити сам себе і типу керував нагрівом бойлера по нічному тарифу до вищої температури, але його об'єму все одно не вистачало і він часто грівся також вдень. В мене є тепловий насос, в обв'язці якого я з самого початку передбачив 3-х ходовий клапан для бойлера непрямого нагріву, але за багато років так і не скористався цією функцією. То грошей не вистачало, то часу, то натхнення. Але схоже відкладати далі вже нема куди, треба щось думати із бойлером. Так як цей проект повинен економити гроші, то я для себе вирішив що спробую зробити по максимуму з того, що накопичилось за час будівництва. Порившись на горищі знайшов там бойлер 2006 року випуску на 150 літрів, із вбудованим ТЕНом на 3 кВт та теплообмінником невідомої площі, проте сам бойлер з нержавійки. Так як він призначений для підлогового монтажу, довелося трохи подумати де і як його впхнути, щоб не займав багато місця в невеличкій котельні. Вирішив підвісити його до стелі. Два шматки профілю, два кутника, шпильки, гайки - це все теж знайшлося на горищі. Більшість фітингів та кранів валялися на горищі, вирішив їх використати, тому на фото такий зоопарк. Довелося лише трохи мідної труби докупити. Від поточних цін на мідь око й досі сіпається, навіть зі знижками. Але з ППР я б в деяких місцях не викрутився. Схему під'єднання до системи гарячого водопостачання довелося переробити. Вирішив зупинитися на варіанті коли бойлери під'єднані послідовно - холодна вода спочатку заходить в бойлер непрямого нагріву, потім в електричний бойлер, і далі на споживачів. Це дозволить збільшити вклад від ТН, і зменшити час роботи електричного бойлера без ризику залишитися без гарячої води. Байпас - на випадок якщо потече "новий" бойлер. Спойлер Перевірка нового бойлера показала що площа теплообмінника там невелика, десь 0,5-0,6 м2, чого недостатньо для нагріву до температури води +50С і вище. Нагрів води з +16 до +45 займав приблизно 45-60 хвилин в залежності від зовнішньої температури, нагрів з 45 до 50 займав потім ще 30 хвилин, бо температура теплоносія була не вище ніж +55..56С. Якщо подивитися на конструкцію бойлера, то помітно що датчик розташовано в верхній частині бойлера, ТЕН також, і теплообмінник не біля самого дна. Через це нижня частина бойлера була значно холоднішою ніж зона де розташовується термістор. Це мене не влаштовувало, тож зняв насос рециркуляції ГВП який не використовувався, і під'єднав до "нового" бойлера. Його функція тепер буде перемішувати воду під час нагріву, щоб бойлер прогрівався рівномірно по всій висоті - це дозволить збільшити запас гарячої води. Наступним етапом хочу присобачити пластинчастий теплообмінник, щоб збільшити площу та зменшити час нагріву. По дивному співпадінню теплообмінник теж валявся на горищі, але його пропускна здатність виявилася замала. Тож треба почекати поки на горищі з'явиться потужніший насос та більший теплообмінник. Налаштував керування бойлером від ТН таким чином, щоб вдень він грівся один раз в 15:00 до 45С. До цього часу вода з нього повністю розбирається, і він вистигає до 16-17С. Потім о 5 ранку він гріється за допомогою ТН до 45С, і догрівається ТЕНом до 60С. В цей час також паралельно вмикається насос рециркуляції перемішування. Так як потужність теплового насосу обмежена, налаштував температуру зовнішнього повітря нижче якої буде працювати лише ТЕН. ТЕНом старого електричного бойлера через контактор керує релюшка сонофф із датчиком температури (THR316). За розкладом о 5 ранку гріє до 60С, і протягом дня вмикається якщо температура впаде нижче +35С, та догріває до 45С. Сподіваюся комусь буде корисний мій досвід, або хтось свіжим поглядом побачить що б можна було зробити краще. Залишилося ще все заізолювати. Це як було: Спойлер Тепер вийшло так: Спойлер 4 Посилання на коментар Поділитися на інших сайтах More sharing options...
murava Опубліковано: 8 березня 2024 Поділитись Опубліковано: 8 березня 2024 Про яку суму витрат на гвп йде мова? 1 Посилання на коментар Поділитися на інших сайтах More sharing options...
volomoto Опубліковано: 8 березня 2024 Поділитись Опубліковано: 8 березня 2024 Я також таке горище хочу 1 година тому, blacktigra сказав: датчик розташовано в верхній частині бойлера, ТЕН також Мені цікаво чим керувались інженери, коли таке проектували. Надіюсь цьому є якесь раціональне, але зовсім неочевидне, пояснення. 1 Посилання на коментар Поділитися на інших сайтах More sharing options...
blacktigra Опубліковано: 9 березня 2024 Автор Поділитись Опубліковано: 9 березня 2024 (змінено) 13 часов назад, murava сказал: Про яку суму витрат на гвп йде мова? Приблизно 500 кВт*год на місяць, більша частина по денному тарифу. Здогадуюся до чого ваше питання, певно про вартість цього всього. Бойлер я все одно не купував - якось по вулиці їхала вантажівка, і з неї випала коробка. Я її підібрав, там виявився бойлер. Насос циркуляційний колись знайомі подарували, більшість матеріалів в мене вже була. Тепловий насос в мене вже майже 8 років, тож не використовувати влітку для нагріву ГВП це було нерозумно. Треба було зробити це раніше. Змінено 9 березня 2024 користувачем blacktigra 1 1 Посилання на коментар Поділитися на інших сайтах More sharing options...
blacktigra Опубліковано: 9 березня 2024 Автор Поділитись Опубліковано: 9 березня 2024 12 часов назад, volomoto сказал: Мені цікаво чим керувались інженери, коли таке проектували. Надіюсь цьому є якесь раціональне, але зовсім неочевидне, пояснення. Я думаю що основна мета то захист ТН. Взагалі то бойлер на 150 літрів для теплового насосу то трохи замало, через особливості джерела енергії. Тож маючи досвід і народилася така схема з послідовним під'єднанням. Цей бойлер то навіть не перша версія, а щось типу v0.9 alpha. В сучасних моделях набагато більший теплообмінник, ще дещо змінили. 1 Посилання на коментар Поділитися на інших сайтах More sharing options...
murava Опубліковано: 9 березня 2024 Поділитись Опубліковано: 9 березня 2024 (змінено) Ну я просто спитав про масштаби економії. Просто у нас є індивідууми, які для економії 50 квтч паливну переробляють і горобця в полі заженуть... 500 квтч + при наявності заліза, часто проїзжаючої вантажівки з коробками і рук, то можна і заморочитись сам так роблю. Змінено 9 березня 2024 користувачем murava 2 3 1 Посилання на коментар Поділитися на інших сайтах More sharing options...
Фрай Опубліковано: 9 березня 2024 Поділитись Опубліковано: 9 березня 2024 2 години тому, blacktigra сказав: Приблизно 500 кВт*год на місяць Посилання на коментар Поділитися на інших сайтах More sharing options...
vbb Опубліковано: 9 березня 2024 Поділитись Опубліковано: 9 березня 2024 (змінено) Я не спеціаліст у цих речах, але з'я вилися питання: 1 - не бачу зворотнього клапану між насосом рециркуляції та ліниєю подачі - чи не продавить обратно у подачу холодної? 2- чи не краще поставити теплообмінник перед цим новим бойлером для так назвемо, передогріву та на теплоносій не послідовно з бойлером а в параллел? як планується робити санітарний прогрів до +70? і ще, з власного досвіду, бажано мати розширювальний бак на всю цю красоту) Змінено 9 березня 2024 користувачем vbb Посилання на коментар Поділитися на інших сайтах More sharing options...
blacktigra Опубліковано: 9 березня 2024 Автор Поділитись Опубліковано: 9 березня 2024 4 часа назад, vbb сказал: З'явилися питання Зворотній клапан стоїть в самому насосі. Дезинфекцію можна налаштувати за розкладом на тепловому насосі, та за допомогою сонофф. Але вода і так регулярно оновлюється, і кожної ночі бойлери гріються до 60С. Типу вважається що цієї температури достатньо. Роль розширювального баку зараз виконує гідроакумулятор на свердловині. Зворотній клапан я прибрав з холодної води, бо існуючого розширювального бака би не вистачило. По схемі питанння не зовсім зрозумів. Намалюйте, якщо не складно. Посилання на коментар Поділитися на інших сайтах More sharing options...
vbb Опубліковано: 9 березня 2024 Поділитись Опубліковано: 9 березня 2024 1 година тому, blacktigra сказав: Зворотній клапан стоїть в самому насосі. Дезинфекцію можна налаштувати за розкладом на тепловому насосі, та за допомогою сонофф. Але вода і так регулярно оновлюється, і кожної ночі бойлери гріються до 60С. Типу вважається що цієї температури достатньо. Роль розширювального баку зараз виконує гідроакумулятор на свердловині. Зворотній клапан я прибрав з холодної води, бо існуючого розширювального бака би не вистачило. По схемі питанння не зовсім зрозумів. Намалюйте, якщо не складно. Якось итак: Посилання на коментар Поділитися на інших сайтах More sharing options...
blacktigra Опубліковано: 9 березня 2024 Автор Поділитись Опубліковано: 9 березня 2024 Зрозумів. Мені простіше залишити як є, бо багато перешкод для можливості реалізувати таку схему - доведеться багато перероблювати, шукати більший теплообмінник, і т.д. І в мене в години пікового водорозбору (зранку та ввечері) тепловий насос за розкладом не працює. Бак розширювальний лише для ГВП мені не потрібен, клапан також. Нема чому передавлювати воду, в мене тільки свердловина. Посилання на коментар Поділитися на інших сайтах More sharing options...
vbb Опубліковано: 9 березня 2024 Поділитись Опубліковано: 9 березня 2024 8 хвилин тому, blacktigra сказав: шукати більший теплообмінник, Ну я б поставив той що є, такий собі "економайзер" )) 10 хвилин тому, blacktigra сказав: Бак розширювальний лише для ГВП мені не потрібен, клапан також. Нема чому передавлювати воду, в мене тільки свердловина ну як )) от відкрили ви десь холодну воду, а в цей час малий насос маслає а свердловина ще не запустилася - і воно туди погнало з виходу нового бойлеру... Посилання на коментар Поділитися на інших сайтах More sharing options...
blacktigra Опубліковано: 9 березня 2024 Автор Поділитись Опубліковано: 9 березня 2024 40 минут назад, vbb сказал: Ну я б поставив той що є, такий собі "економайзер Він замалий. У ТН витрата до 1,6м3/год, у теплообмінника опір близько 1 бара виходить при такій витраті. Насос в ТН його не продаве. 43 минуты назад, vbb сказал: і воно туди погнало з виходу нового бойлеру... Та ні. Насос жеж по колу воду ганяє. Щоб виштовхати воду з бойлера в холодний кран насос десь має взяти цю воду. Це фактично насос рециркуляції ГВП. Посилання на коментар Поділитися на інших сайтах More sharing options...
vbb Опубліковано: 9 березня 2024 Поділитись Опубліковано: 9 березня 2024 (змінено) 52 хвилини тому, blacktigra сказав: Він замалий. У ТН витрата до 1,6м3/год, у теплообмінника опір близько 1 бара виходить при такій витраті. Насос в ТН його не продаве. а, ну так, з коллектору ще один насос - то таки занадто заморочки ) 52 хвилини тому, blacktigra сказав: Та ні. Насос жеж по колу воду ганяє. Щоб виштовхати воду з бойлера в холодний кран насос десь має взяти цю воду. Це фактично насос рециркуляції ГВП. ну тут не знаю, я ж не спец, по аналогії з електронікою, то там паразитні перетоки то таке .... діод та розв'язку зажди краще мати ) якщо десь є витік на землю (відкритий кран) то завжди знайдеться що туди потече ) Змінено 9 березня 2024 користувачем vbb Посилання на коментар Поділитися на інших сайтах More sharing options...
volomoto Опубліковано: 11 березня 2024 Поділитись Опубліковано: 11 березня 2024 09.03.2024 в 09:15, blacktigra сказав: Я думаю що основна мета то захист ТН. Взагалі то бойлер на 150 літрів для теплового насосу то трохи замало, через особливості джерела енергії. Тож маючи досвід і народилася така схема з послідовним під'єднанням. З таким малим ТО як не крути, але від гарячої зворотки не втечеш. Мені взагалі виглядає, що БНН для ТН є трохи тупіковою гілкою еволюціії і модуль, який складається з насоса і ППТО, буде більш життєздатним. Такий модуль можна причепити до будь-якого бойлера і не буде проблем із стратифікацією. По ціні вийде десь на то саме, що і спеціалізований бойлер. Єдиним суттєвим мінусом є потреба чистці ППТО, бо він буде з часом забруднюватись від водопровідної води. 2 Посилання на коментар Поділитися на інших сайтах More sharing options...
volomoto Опубліковано: 11 березня 2024 Поділитись Опубліковано: 11 березня 2024 Mixergy використовує такий підхід - mixergy.co.uk/news-and-insights/how-mixergy-cylinders-work-with-a-heat-pump/. Тут є технічні деталі support.mixergy.co.uk/heat-pump-module-mdc0008 і цікаво, що для ППТО вони вказуть еквівалентну площу, а не фактичну, що є правильно, бо в ППТО та змієвика різне число Рейнольдса. Посилання на коментар Поділитися на інших сайтах More sharing options...
blacktigra Опубліковано: 11 березня 2024 Автор Поділитись Опубліковано: 11 березня 2024 2 часа назад, volomoto сказал: модуль, який складається з насоса і ППТО, буде більш життєздатним. Так, це одне з можливих рішень, лишається просто поєднати ціну за комплект обладнання. Але є декілька нюансів: - насос зі сторони гарячої води, бо він недешевий виходить, якщо брати в правильному виконанні. - потрібно трохи більше місця для такого бойлера. Дуже рідко, але інколи тупо не вистачає місця. Є ще рішення коли теплообмінник використовується для нагріву гарячої води в проточному режимі, і тоді можна використати звичайний насос для систем опалення. Бочку можна брати будь яку, навіть з черняги, потрібно лише теплообмінник правильно розрахувати. Тобто бочка працює як теплоакумулятор, вода з водопроводу в неї не потрапляє. Декілька раз зустрічав таке рішення. Але потрібно реле протоку або датчик, щоб насос не ганяти постійно. В будь якому випадку ємність бойлера бажано брати якомога більшою, інакше не вдасться використати потенціал теплового насосу повністю. До речі, відповідь на ваше питання щодо конструкції мого бойлера дає ілюстрація з сайту Mixenergy. Вона пояснює перевагу бойлера де теплообмінник розташовано в нижній частині. Дійсно, причина не зовсім очевидна. Хоча така конструкція дає як переваги так і недоліки (див. абзац щодо розміру бойлера). Спойлер Ось ілюстрація з рекомендаціями Дайкіна з підбору бойлера стороннього виробника. 1 Посилання на коментар Поділитися на інших сайтах More sharing options...
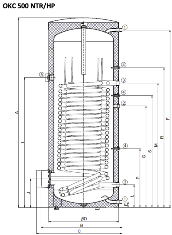
volomoto Опубліковано: 11 березня 2024 Поділитись Опубліковано: 11 березня 2024 9 хвилин тому, blacktigra сказав: До речі, відповідь на ваше питання щодо конструкції мого бойлера дає ілюстрація з сайту Mixenergy. Вона пояснює перевагу бойлера де теплообмінник розташовано в нижній частині. Так, але там вони трохи лукавлять, бо типово в бойлерів ТО досягає майже до самого низу. От приклад мого Drazice OKC 300 NTRR/SOL: Якщо дороблюсь до ТН, то підключу його до нижнього ТО, де буде завжди холодніша вода. На щастя, різьба на ТЕН розташована вище нижнього ТО, тому нагрів ТЕНом не буде конфліктувати з нагрівом від ТН. 16 хвилин тому, blacktigra сказав: В будь якому випадку ємність бойлера бажано брати якомога більшою, інакше не вдасться використати потенціал теплового насосу повністю. Це більше конструктивне обмження, що великий ТО не влізе на дно малого бойлера. Навіть якщо мати ТО на всю висоту бака, то утилізація такого змієвика буде малою, бо зверху завжди гаряча вада і тепбообміну там майже не буде. На мене образяться інженери Дражиче, але я вважаю, що ось це: Прихований текст — дурня, бо толку з того, що там 2 м2 площі ТО, якщо тільки з трохи більше половини буде реально працювати. Цілий ТО буде працювати тільки якщо гріти повний бак холодної води, але в реальності такого майже ніколи не буває. Чому б відразу не ставити дворядний змієвик тільки в нижню частину, якщо така технолонія вже є в цього виробника: Прихований текст Посилання на коментар Поділитися на інших сайтах More sharing options...
blacktigra Опубліковано: 12 березня 2024 Автор Поділитись Опубліковано: 12 березня 2024 (змінено) 18 часов назад, volomoto сказал: На мене образяться інженери Дражиче, але я вважаю, що ось це дурня. Можливо вони розробляли конструкцію виходячи з можливостей наявного тех-процесу та кінцевої вартості виробу. Бойлери з більш удосконаленими теплообмінниками суттєво дорожчі, при тому що і Дражице дешевим важко назвати. Мені мій бойлер подобається тим що там виробник спеціально передбачив місце під сонофф, за що я їм дуже вдячний. Спойлер Змінено 12 березня 2024 користувачем blacktigra 1 Посилання на коментар Поділитися на інших сайтах More sharing options...
volomoto Опубліковано: 12 березня 2024 Поділитись Опубліковано: 12 березня 2024 5 годин тому, blacktigra сказав: при тому що і Дражице дешевим важко назвати. Та власне і на фоні того ППТО з насосом вже не так дорого виглядає. Посилання на коментар Поділитися на інших сайтах More sharing options...
volomoto Опубліковано: 13 березня 2024 Поділитись Опубліковано: 13 березня 2024 Подивився я на дані зі свого бойлера в парі з електрокотлом і виглядає так, що якщо змінити котел на ТН такої ж потужності, то все буде працювати добре. Бойлер в мене такий: 11.03.2024 в 18:11, volomoto сказав: От приклад мого Drazice OKC 300 NTRR/SOL: І в обох гільзах (позначені цифрою 3) стоять сенсори температури. Обидва теплообмінники з'єднані послідовно і їхня сумарна площа 2 м2. Ось так виглядає процес нагріву бака, з якого вихляпали за день майже всю теплу воду: Прихований текст Потужність нагріву — 9 кВт, а всі інші метрики описані в легенді графіка. Із того можна зробити наступні висновки: 1. Дельта подача-зворотка менше 3 градусів, що є дуже добре. 2. Дельта між звороткою та низом бака становить менше 5 градусів. Тобто при зворотній температурі в 55 градусів я можу нагріти бак до не менше 50 градусів. При цьому подача подача не буде перевищувати 60 градусів, що є верхньою межою для ТН на R32 та R410. Тобто з таких ТН я зможу без проблем утилізувати 9кВт тепла. 3. При сильних морозах, щоб не мучити компресор, доцільннішим є використовувати двоетапний нагрів: спочатку до якоїсь відносно низької температури гріє ТН, а потім естафета передається електрокотлу. Можна і далі обходитись без ТЕНа. 4. Стратифікаця майже відсутня, що є добре для ТН. 5. Якщо я жив із 9 кВт котлом, то більше ніж 9 кВт ТН мені точно не потрібен (тут я трохи капітан :)) Посилання на коментар Поділитися на інших сайтах More sharing options...
Рекомендовані повідомлення
Створіть акаунт або увійдіть у нього для коментування
Ви маєте бути користувачем, щоб залишити коментар
Створити акаунт
Зареєструйтеся для отримання акаунта. Це просто!
Зареєструвати акаунтУвійти
Вже зареєстровані? Увійдіть тут.
Увійти зараз