Игореха Опубліковано: 5 жовтня 2011 Автор Поділитись Опубліковано: 5 жовтня 2011 ИМХО: Объеденить гардеробную с с/у и не заморачиваться... место для складирования вещей можно организовать в других помещениях... в том числе и подвальных. Ну в подвале и на втором этаже у меня есть помещения для гардероба/мусоросборника Тут я может быть громко назвал - гардероб... Этот закуток размером около 1 метра, собственно для оперативного гардероба/раздевалки. Там где будет висеть постоянно носимая одежда/ вещи гостей, дабы не захламлять проход и не портить весь вид маленького холла между гостинной и тамбуром. В тамбуре тоже есть нишка/вешалка для одежды/обуви, но поскольку топить тамбур на уровне со всем домом я не буду (там будет зимняя температура порядка 15 градкусов), то это - более летний вариат Комфрортее зимою одеваться и раздеваться в прихожей, а не в тамбуре. Посилання на коментар Поділитися на інших сайтах More sharing options...
КОРН Опубліковано: 5 жовтня 2011 Поділитись Опубліковано: 5 жовтня 2011 Еще хотелось бы некоторого стороннего критического взгляда на один "угол". На сегодня планировка сильно не изменилась, но уже почти пришел к конечному варианту. Как обычно не хватает 10 см:D Второй этаж остался без изменений, только немного поиграл с шириной кладовки и санузла. Ну и решил сделать часть центральной несущей стены в 1 кирпич. Не хочу чтобы 2 дверных проема были глубиной по 40 см в несущей стене, да и на 13 см расширю коридор на втором этаже. Надо будет только при заливке армопояса в этом месте сделать балку (совмещенную с армопоясом), т.к. сверху тоже будут плиты. Больше всего неопределенностей доставляет угол на первом этаже (нижний правый по схеме), там где тамбур/санузел/гардероб/холл. Уже раз пять его переигрывал, но есть сомнения. Кому не трудно, обратите внимание на него. Может у кого еще мысль появится. Несущие стены и перестенок возле лестницы в кирпич уже есть и останутся нетронутыми. А вот перестенки этих помещений в полкирпича еще пока планирую и обыгрываю Три раза перечитал, пять раз посмотрел, но так и не понял, что в этой схеме может не нравиться 1 Посилання на коментар Поділитися на інших сайтах More sharing options...
Игореха Опубліковано: 5 жовтня 2011 Автор Поділитись Опубліковано: 5 жовтня 2011 Три раза перечитал, пять раз посмотрел, но так и не понял, что в этой схеме может не нравиться Макс, честно? Мне нравится, в общем-то. Именно поэтому вынес этот вариант на обсуждение. Но, как говорится, что-то муляет:D Этот угол для меня с самого начала был самым "проблемным". Его я перерисовывал 3 раза ДО, и три раза уже ПОСЛЕ начала строки. Но, возможно, мои мозговые извилины зашли в определенное русло и не хотят взглянуть на этот вопрос с совершенно другой стороны. Знаешь как бывает - переклинило? Вроде нравится, и Алле нравится, но чего-то не хватает. Хочется в пределах этой площади сделать очень практично, комфортно, удобно, просторно и интересно. Вот с этим "просторно" и "комфортно" у меня есть сомнения. Может они и напрасны, но хочется общего мнения. Так "хорошо", "с пивом потянет", или "есть радикально иной взгляд". Ну если у тебя критических замечаний нету - это уже очень хорошо Посилання на коментар Поділитися на інших сайтах More sharing options...
Игореха Опубліковано: 6 жовтня 2011 Автор Поділитись Опубліковано: 6 жовтня 2011 Вчера закончили треть второго этажа по ограждающим стенам. Риштовка перекочевала с первого на второй этаж. Теперь стаи еще более видны помещения первого этажа, не хватает только еще трех перестенков. Вот некоторые виды. 1. Вид от лестницы/холла в гостинную. 2-3. Вид из гостинной в холл в сторону того моего "проблемного" угла. Левая арка - между гостинной и кухней. Арки тут кажутся невысокими, т.к. я забрался на стопку кирпичей см 30:D 4. Вид оттуда же на еще пока несуществующий перестенок между гостинной и гостевой. 5-7. И так в принципе ясно Посилання на коментар Поділитися на інших сайтах More sharing options...
КОРН Опубліковано: 6 жовтня 2011 Поділитись Опубліковано: 6 жовтня 2011 Вчера закончили треть второго этажа по ограждающим стенам. Риштовка перекочевала с первого на второй этаж. Теперь стаи еще более видны помещения первого этажа, не хватает только еще трех перестенков. Вот некоторые виды. 1. Вид от лестницы/холла в гостинную. 2-3. Вид из гостинной в холл в сторону того моего "проблемного" угла. Левая арка - между гостинной и кухней. Арки тут кажутся невысокими, т.к. я забрался на стопку кирпичей см 30:D 4. Вид оттуда же на еще пока несуществующий перестенок между гостинной и гостевой. 5-7. И так в принципе ясно Крепость!!! Всегда мечтал об арках, но не потянул бы... Ээх... И вообще, был бы у меня подобный бюджет, я б строил по твоему проекту. 2 Посилання на коментар Поділитися на інших сайтах More sharing options...
Игореха Опубліковано: 6 жовтня 2011 Автор Поділитись Опубліковано: 6 жовтня 2011 Крепость!!! Всегда мечтал об арках, но не потянул бы... Ээх... И вообще, был бы у меня подобный бюджет, я б строил по твоему проекту. Я тоже всегда мечтал об арках, но не видел как их можно гармонично вписать в помещения/интерьер. Поначалу у меня в этом финальном проекте была только одна арка, а вместо 2х других - двери. Потом я пересмотрел это решение, прикинул что двери будут бельмом, понял отсутствие какой-либо необходимости в тех дверях и намалевал вместо них арки Получилось вроде хорошо и визуально гостинная. холл и кухня стали гораздо более просторными и незажатыми. Во всяком случае мне сейчас очень нравится такое решение и Алле тоже. Единственный нюанс - всё же надо иногда проем между кухней и гостинной перекрывать из-за возможных запахов при готовке. В будущем поставлю раздвижные стеклянные двери/перегородку за аркой со стороны кухни. Надо что-то приятнопахнущее готовить - задвинул откатывающуюся дверь и вуаля! Интерьер дома выходит гораздо более интересным, несмотря на простоту планировки. Экстерьер в отличии от интерьера отстает сильно. Но будет коробка, буду думать над фасадами. Есть мысль сделать комбинированный фасад с навесными элементами + обыграть интересным крыльцом/входной группой. Основной фасад есть - кирпичный. Но уж очень он постный - коробка прямоугольной формы. Посилання на коментар Поділитися на інших сайтах More sharing options...
Игореха Опубліковано: 7 жовтня 2011 Автор Поділитись Опубліковано: 7 жовтня 2011 Стены подрастают - палет с кирпичем становится всё меньше Вылез некоторый трабл. Не повезло мне маленько с поставщиками Первый раз привезли отличный чистый песок и хороший цемент. Вторую порцию песка и цемента заказывал там-же, но и песок привезли какой-то серый, и его приходится просеивать, поскольку очень много всяких камней и ракушек Но это еще полбеды. Цемент заказал там же, но привезли другой, не твакой как в первый раз. Тоже вроде ничего, но на кладке с этим цементом начали проступать небольшие высолы, и это еще кладка полностью не просохла. Что же будет дальше? 1 Посилання на коментар Поділитися на інших сайтах More sharing options...
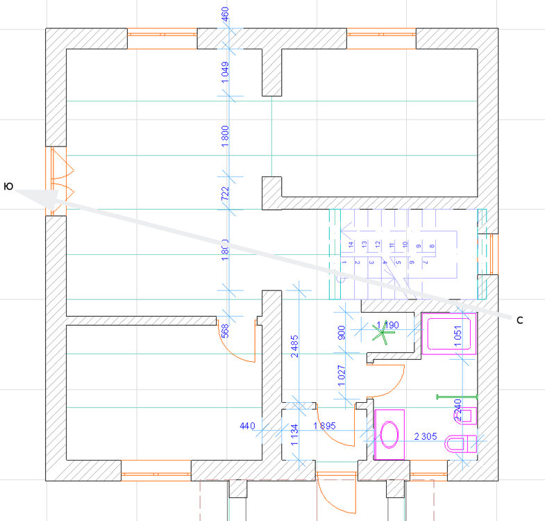
dnt Опубліковано: 7 жовтня 2011 Поділитись Опубліковано: 7 жовтня 2011 Собственно поэтажные. Все просто и прямолинейно. Юг в верхнем левом углу. Игорь! Почему кухня на жарком юге, а жилая комната на холодном севере? Посилання на коментар Поділитися на інших сайтах More sharing options...
Игореха Опубліковано: 7 жовтня 2011 Автор Поділитись Опубліковано: 7 жовтня 2011 Игорь! Почему кухня на жарком юге, а жилая комната на холодном севере? Не совсем так Я просто проекты люблю рисовать от входа. Так мне интуитивно понятнее и проще виртуально перемещаться по помещениям, т.е. "от себя" ;) Нарисовал стрелочку, дабы было понятно по сторонам света Юг слева почти. Кухня в верхнем правом углу Посилання на коментар Поділитися на інших сайтах More sharing options...
dnt Опубліковано: 7 жовтня 2011 Поділитись Опубліковано: 7 жовтня 2011 Не совсем так Я просто проекты люблю рисовать от входа. Так мне интуитивно понятнее и проще виртуально перемещаться по помещениям, т.е. "от себя" ;) Нарисовал стрелочку, дабы было понятно по сторонам света Юг слева почти. Кухня в верхнем правом углу Мне этот прект что то напоминает Посилання на коментар Поділитися на інших сайтах More sharing options...
Игореха Опубліковано: 7 жовтня 2011 Автор Поділитись Опубліковано: 7 жовтня 2011 Мне этот прект что то напоминает Возможно, но что именно? Полностью моё творение А по планировке что-то есть схожее с вашими задумками ;) Но для осознания, этот проект у меня в каталоге идет под номером 92_02:D Т.е. 92 порядковый, третья версия. Имеенно столько планировок, набросков, проетиков я чертил 2 года назад, когда только собирался строить свой дом. Были разные. Многие просто отбрасывал и делал по новой. что-то радикально менял. что-то не прошло по бюджету, когда начинал подсчитывать смету. В итоге вышел абсолютно простой, но как мне кажется разумный проект под мои хотелки. Лучшее - враг хорошего ;) 1 Посилання на коментар Поділитися на інших сайтах More sharing options...
Игореха Опубліковано: 9 жовтня 2011 Автор Поділитись Опубліковано: 9 жовтня 2011 Вот и пришел "долгожданный" дождь Вчера докупил в Бышеве катанки, порезал и погнул поперечные кольца для армопоясов. Но надо еще проварить и собственно сварить армокаркасы. Думал работать внутри дома, но т.к. кровли нету, то между плит очень даже капает. Поэтому решил остаться дома, посмотрев на это безобразие... Посилання на коментар Поділитися на інших сайтах More sharing options...
КОРН Опубліковано: 9 жовтня 2011 Поділитись Опубліковано: 9 жовтня 2011 Вот и пришел "долгожданный" дождь Вчера докупил в Бышеве катанки, порезал и погнул поперечные кольца для армопоясов. Но надо еще проварить и собственно сварить армокаркасы. Думал работать внутри дома, но т.к. кровли нету, то между плит очень даже капает. Поэтому решил остаться дома, посмотрев на это безобразие... Ну что посмотрел? Я вот с предложение хочу вынести на обсуждение: давайте на этом форуме появится смайл изображающий дождь или нестроительную погоду!:D Посилання на коментар Поділитися на інших сайтах More sharing options...
SanderEA Опубліковано: 10 жовтня 2011 Поділитись Опубліковано: 10 жовтня 2011 Ну и решил сделать часть центральной несущей стены в 1 кирпич. На центральную несущую стену нагрузка в 2 раза больше, чем на внешние. Я бы не стал так делать. Посилання на коментар Поділитися на інших сайтах More sharing options...
Игореха Опубліковано: 10 жовтня 2011 Автор Поділитись Опубліковано: 10 жовтня 2011 На центральную несущую стену нагрузка в 2 раза больше, чем на внешние. Я бы не стал так делать. Это я все понимаю. Но над той стеной пойдет общий армопояс, шириною 380мм. В том месте где стена будет в кирпич, армопояс будет иметь большую высоту - 300мм и будет проармирован 16 арматурой. Т.е. будет балка совмещенная с армопоясом. Ну и надо посмотреть не только на относительные виличины, а и на абсолютные. Над той стеной будет только армопояс и плиты и утеплитель. Больше ничего. Следовательно на погонный метр того армопояса и стены будет приходиться около 2х тонн наргузки. На основание стены - порядка 2,5 тонн на метр. Учитывая, что стена не "одна в поле", а имеет в своей кладке участки в полтора кирпича с каждой стороны, это для нее не нагрузка. ;) 1 Посилання на коментар Поділитися на інших сайтах More sharing options...
kvm Опубліковано: 10 жовтня 2011 Поділитись Опубліковано: 10 жовтня 2011 Игореха! Монстра! Респекты всяческие и уважухи! Ну это вряд-ли ... В общем летел я с высоты почти 2,5 вниз головою. Рядом был проем в подвал, на плитах - стопка НФок. Когда я уже понял что ОПА, последнее что успел сделать - прижал ладонь к грудной клетке, т.к. падал грудью прямо на стопку НФок.... было больно. Но чуть очухавшись и пережив боль, ощупал грудь и вроде ребра остались целыми. Отделался несколькими серьезыми ушибами, царапинами, и палец на руке опух. Ты б, эта, побережнее к себе, штоле? .. Моя бригада умеет Ну иногда приходится поправлять, показывать где чего не нравится, иногда надо сказать более одного раза, но в целом сработались. ... Мне в этом плане тож повезло - нюансы есть, но, в-общем, ребята лучше меня знают когда и что мне нужно. Любые перепроверки только доказывают их правоту. 1 Посилання на коментар Поділитися на інших сайтах More sharing options...
Игореха Опубліковано: 11 жовтня 2011 Автор Поділитись Опубліковано: 11 жовтня 2011 Игореха! Монстра! Респекты всяческие и уважухи! Ты б, эта, побережнее к себе, штоле? Мне в этом плане тож повезло - нюансы есть, но, в-общем, ребята лучше меня знают когда и что мне нужно. Любые перепроверки только доказывают их правоту. Привет, Костя! Да пытаюсь, но иногда бывают про... колы:D Таки падение не осталось безнаказанным и ребрам таки чуток не повезло. Ну ничего, все равно их не гипсуют, переходил так. Уже почти не болят, только если неловко повернусь резко. Скоро должно забыться Посилання на коментар Поділитися на інших сайтах More sharing options...
kvm Опубліковано: 11 жовтня 2011 Поділитись Опубліковано: 11 жовтня 2011 Привет, Костя! Да пытаюсь, но иногда бывают про... колы:D Таки падение не осталось безнаказанным и ребрам таки чуток не повезло. Ну ничего, все равно их не гипсуют, переходил так. Уже почти не болят, только если неловко повернусь резко. Скоро должно забыться Дядька моей жены на стройке дачи у друга сорвался со 2го этажа... Ходить начал через год. Так что ТБ - в первую очередь. Себя ж бережешь, не абы кого. Посилання на коментар Поділитися на інших сайтах More sharing options...
Игореха Опубліковано: 11 жовтня 2011 Автор Поділитись Опубліковано: 11 жовтня 2011 Дядька моей жены на стройке дачи у друга сорвался со 2го этажа... Ходить начал через год. Так что ТБ - в первую очередь. Себя ж бережешь, не абы кого. Сплюнь! Мне еще крышу делать:D;) Посилання на коментар Поділитися на інших сайтах More sharing options...
kvm Опубліковано: 11 жовтня 2011 Поділитись Опубліковано: 11 жовтня 2011 Сплюнь! Мне еще крышу делать:D;) Ну дык а я о чем! ЗЫ Я всего-то в колодец с разводкой воды нырнул Счесал ребра. Посилання на коментар Поділитися на інших сайтах More sharing options...
КОРН Опубліковано: 14 жовтня 2011 Поділитись Опубліковано: 14 жовтня 2011 Чувствую назревает что-то колоссальное! 6-го числа была уже треть второго этажа. Армопояс уже залил? Смотри, а то морозец припечет Посилання на коментар Поділитися на інших сайтах More sharing options...
КОРН Опубліковано: 14 жовтня 2011 Поділитись Опубліковано: 14 жовтня 2011 Нн, дык, я чо хотел спросить, ты уже решил как крышу будешь делать? Помнится надо было просчитать два варианта: тоньше ОСБ-толще стропилка/толще ОСБ-тоньше стропилка. На каком варианте остановился? И еще схемку в студию, можна? Посилання на коментар Поділитися на інших сайтах More sharing options...
Игореха Опубліковано: 14 жовтня 2011 Автор Поділитись Опубліковано: 14 жовтня 2011 Чувствую назревает что-то колоссальное! 6-го числа была уже треть второго этажа. Армопояс уже залил? Смотри, а то морозец припечет Да что там может назревать? Внешние стены уже стоят. Еще надо внутреннюю несущую и перестенки сложить и можно нонтировать армопояс. Посилання на коментар Поділитися на інших сайтах More sharing options...
Игореха Опубліковано: 14 жовтня 2011 Автор Поділитись Опубліковано: 14 жовтня 2011 Нн, дык, я чо хотел спросить, ты уже решил как крышу будешь делать? Помнится надо было просчитать два варианта: тоньше ОСБ-толще стропилка/толще ОСБ-тоньше стропилка. На каком варианте остановился? И еще схемку в студию, можна? Не хочу загадывать, Макс. Смотрю я на прогнозы и мало утешительного. Надо накрываться, а я стены до морозов не успеваю. В общем как будут выводить фронтоны, тогда т решу что делать в этом году с крышей, или просто легкую стропилку кинуть и закрыть гидробарьером. Посилання на коментар Поділитися на інших сайтах More sharing options...
kvm Опубліковано: 14 жовтня 2011 Поділитись Опубліковано: 14 жовтня 2011 Не хочу загадывать, Макс. Смотрю я на прогнозы и мало утешительного. Надо накрываться, а я стены до морозов не успеваю. В общем как будут выводить фронтоны, тогда т решу что делать в этом году с крышей, или просто легкую стропилку кинуть и закрыть гидробарьером. А может ну ее, легкую? Сразу полноценную, ну и гидробарьер в помощь. Одно но - а гидробарьер снег удержит? Даж у нас в Запике снего-ветровая нагрузка считается сходя из 150-170 кг/квадрат. Посилання на коментар Поділитися на інших сайтах More sharing options...
Рекомендовані повідомлення
Створіть акаунт або увійдіть у нього для коментування
Ви маєте бути користувачем, щоб залишити коментар
Створити акаунт
Зареєструйтеся для отримання акаунта. Це просто!
Зареєструвати акаунтУвійти
Вже зареєстровані? Увійдіть тут.
Увійти зараз