ilra Опубліковано: 20 травня 2010 Поділитись Опубліковано: 20 травня 2010 Добрый день! Участок находится в 30 км. от Киева, бориспольский район. Во сколько мне обойдется такой домик с материалами и работой. 1) внешняя отделка- блок-хаус с пазами. 2) стены комнат вагонкой, где ванная все в плитке (простой), где рабочая поверхность тоже в плитке. 3) пол плитка -в большой комнате. 4) утеплитель 100 мм 5)кровля битумная черепица 6) Ленточный фундамен, высокий, так как предполагаються высокие грунтовые воды. 7) веранда Если есть вопросы пишите. Или хотя бы предложите сколько стоят работы, если с материалом тяжело разобраться. Дальше предстоить строительство основного дома 200 кв.м. и, забора. Спасибо Посилання на коментар Поділитися на інших сайтах More sharing options...
lastandr Опубліковано: 20 травня 2010 Поділитись Опубліковано: 20 травня 2010 Если есть вопросы пишите. Пишем,а что еще остаётся... Уточните ,пожалуйста,координаты объекта Есть ли "отель" для рабочих? Когда хотите запустить сий процесс? Посилання на коментар Поділитися на інших сайтах More sharing options...
строим дом Опубліковано: 21 травня 2010 Поділитись Опубліковано: 21 травня 2010 где находится участок Посилання на коментар Поділитися на інших сайтах More sharing options...
ZER-GUT Опубліковано: 21 травня 2010 Поділитись Опубліковано: 21 травня 2010 где находится участок читайте повнимательней, здесь все написано Посилання на коментар Поділитися на інших сайтах More sharing options...
ilra Опубліковано: 21 травня 2010 Автор Поділитись Опубліковано: 21 травня 2010 Село Андреевка., вагончика нет. Посилання на коментар Поділитися на інших сайтах More sharing options...
ilra Опубліковано: 21 травня 2010 Автор Поділитись Опубліковано: 21 травня 2010 Село Андреевка., вагончика нет. Посилання на коментар Поділитися на інших сайтах More sharing options...
ilra Опубліковано: 21 травня 2010 Автор Поділитись Опубліковано: 21 травня 2010 Как вариант искать в селе жилье, не знаю, правда, на сколько он реалистичен Посилання на коментар Поділитися на інших сайтах More sharing options...
ilra Опубліковано: 21 травня 2010 Автор Поділитись Опубліковано: 21 травня 2010 Как вариант искать в селе жилье, не знаю, правда, на сколько он реалистичен Посилання на коментар Поділитися на інших сайтах More sharing options...
Ariy Опубліковано: 21 травня 2010 Поділитись Опубліковано: 21 травня 2010 ориентировочная цена с материалом 10800 у.е 0972763395 Посилання на коментар Поділитися на інших сайтах More sharing options...
DimaS Опубліковано: 21 травня 2010 Поділитись Опубліковано: 21 травня 2010 отпишитесь плз какие предложения поступают? интересная тема :drinks: Посилання на коментар Поділитися на інших сайтах More sharing options...
ilra Опубліковано: 21 травня 2010 Автор Поділитись Опубліковано: 21 травня 2010 Мне пишут в "личку", не знаю на сколько корректно дублировать их на общее рассмотрение (так как я еще мало посещаю сайт). Но могу сказать что цена находиться в диапазоне от 10 до 13 тыс. у.е. Хотя Как я понимаю...надо умножать на 1,5..как минимум из опыта ремонта квартиры))))) Посилання на коментар Поділитися на інших сайтах More sharing options...
Савлук Геннадий Анатольев Опубліковано: 21 травня 2010 Поділитись Опубліковано: 21 травня 2010 Добрый вечер, меня зовут Геннадий я директор строительной компании с Винницы. Капитальным строительством занимаюсь довно, опыт работы в организации работ позволяет грамотно спланировать последовотельность различных работ и вести технадзор за всеми этапами, согласованых с заказчиком работ. Бригады укомплетованы, с большим опытом работ, отобраны по уровню квалификации и специализации в своих профисиональных качествах. При необходимости сделаю рабочий проект и сметную документацию. Работ на выезде проводилась неоднократно. Заказчик проплачивает жилье, вагончик на стройку, если надо здают в аренду по 1000 - 1200 гр в месяц. Если вас заинтересовало мое предложение напишите я вышлю цены и реальные фото объектов. С уважением Геннадий. Посилання на коментар Поділитися на інших сайтах More sharing options...
rul.32 Опубліковано: 21 травня 2010 Поділитись Опубліковано: 21 травня 2010 Мне пишут в "личку", не знаю на сколько корректно дублировать их на общее рассмотрение (так как я еще мало посещаю сайт). Но могу сказать что цена находиться в диапазоне от 10 до 13 тыс. у.е. Хотя Как я понимаю...надо умножать на 1,5..как минимум из опыта ремонта квартиры))))) Недавно просчитывал такой домик 45м2 с инжиерными комуникациями вышло 145000гр. Посилання на коментар Поділитися на інших сайтах More sharing options...
ilra Опубліковано: 21 травня 2010 Автор Поділитись Опубліковано: 21 травня 2010 18000 у.е...что-то сильно круто..или остальные занижают или Вы умножаете))))) Посилання на коментар Поділитися на інших сайтах More sharing options...
rul.32 Опубліковано: 22 травня 2010 Поділитись Опубліковано: 22 травня 2010 18000 у.е...что-то сильно круто..или остальные занижают или Вы умножаете))))) Я не предлагаю,а констатирую.Да у Вас только один фундамент потянет на 25-27000гр.Так что соглашайтесь быстрее на 10000 у.е и обязательный тех.надзор Посилання на коментар Поділитися на інших сайтах More sharing options...
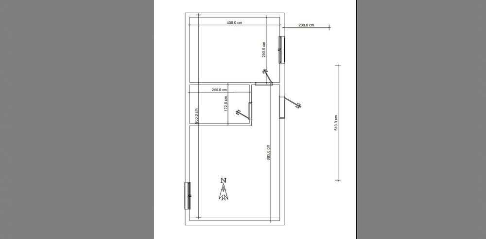
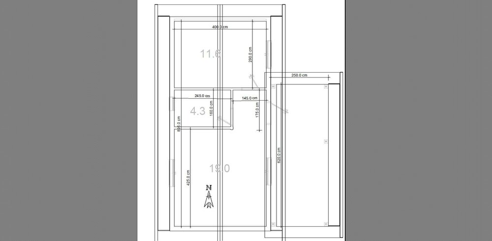
ilra Опубліковано: 25 травня 2010 Автор Поділитись Опубліковано: 25 травня 2010 Тема была начата www.stroimdom.com.ua/forum/showthread.php?t=36211 Хочу внести уточнения и возможно привлечь еще новые бригады к обсуждению темы. Выложены файлы: план дома, и визуализация. Итак, с. Андреевка участок 35 на 45. Есть свет, как только договоримся-делаю скважину. В селе есть местная техника. Вагончика нет, но я вижу два варианта..или искать у местных жителей или..военная палатка-лето в конце -концов)). Дом (в дальнейшем сауна). 9 на 4. (см.план) Итак вводные: 1) Фундамент на метр от земли 2) стены (внешняя отделка) блок-хаус с пазами. 3) крыша- битумная черепица (изломы на рисунке) 4) стены (внутренняя отделка) вагонка 5) внутрение стены гипсокартон водостойкий и плитка 6) утеплитель 150 внутрь. 7) где рабочая поверхность кухни, тоже плитка (см. рис). 8) разводка воды (две точки и унитаз) 9) електрика (ну точек не много как вы понимаете) 10) метал окна 3 и одно маленькое Материалы (утеплитель, пленки, битумная черепица, плитка, окна)..я покупаю сам! Я готов начать финансирование проекта. Интересует стоимость без материалов, которые я указал. Спасибо. Посилання на коментар Поділитися на інших сайтах More sharing options...
ilra Опубліковано: 25 травня 2010 Автор Поділитись Опубліковано: 25 травня 2010 На дерево и бетон у меня выходов нет, чтоб подешевле Посилання на коментар Поділитися на інших сайтах More sharing options...
sko73 Опубліковано: 26 травня 2010 Поділитись Опубліковано: 26 травня 2010 Тема была начата www.stroimdom.com.ua/forum/showthread.php?t=36211 Хочу внести уточнения и возможно привлечь еще новые бригады к обсуждению темы. Выложены файлы: план дома, и визуализация. Итак, с. Андреевка участок 35 на 45. Есть свет, как только договоримся-делаю скважину. В селе есть местная техника. Вагончика нет, но я вижу два варианта..или искать у местных жителей или..военная палатка-лето в конце -концов)). Дом (в дальнейшем сауна). 9 на 4. (см.план) Итак вводные: 1) Фундамент на метр от земли 2) стены (внешняя отделка) блок-хаус с пазами. 3) крыша- битумная черепица (изломы на рисунке) 4) стены (внутренняя отделка) вагонка 5) внутрение стены гипсокартон водостойкий и плитка 6) утеплитель 150 внутрь. 7) где рабочая поверхность кухни, тоже плитка (см. рис). 8) разводка воды (две точки и унитаз) 9) електрика (ну точек не много как вы понимаете) 10) метал окна 3 и одно маленькое Материалы (утеплитель, пленки, битумная черепица, плитка, окна)..я покупаю сам! Я готов начать финансирование проекта. Интересует стоимость без материалов, которые я указал. Спасибо. Здравствуйте, какой материал для несущих стен? какой утеплитель? материал для потолка? Материал для стропильной системы? vbp.kiev.ua Сергей. Посилання на коментар Поділитися на інших сайтах More sharing options...
veselibobru Опубліковано: 26 травня 2010 Поділитись Опубліковано: 26 травня 2010 По внутренней отделке запросто укомплектуем все... Посилання на коментар Поділитися на інших сайтах More sharing options...
Сергей НСТ Опубліковано: 26 травня 2010 Поділитись Опубліковано: 26 травня 2010 По внутренней отделке запросто укомплектуем все... Да погодите, Вы, комплектовать... Давайте подождем того, кто это все запроектирует и осметит... Посилання на коментар Поділитися на інших сайтах More sharing options...
Ясень-2000 Опубліковано: 26 травня 2010 Поділитись Опубліковано: 26 травня 2010 Да погодите, Вы, комплектовать... Давайте подождем того, кто это все запроектирует и осметит... :D:D:D:D:lol: Посилання на коментар Поділитися на інших сайтах More sharing options...
misha27 Опубліковано: 26 травня 2010 Поділитись Опубліковано: 26 травня 2010 Звоните сделаю проект. Посилання на коментар Поділитися на інших сайтах More sharing options...
veselibobru Опубліковано: 26 травня 2010 Поділитись Опубліковано: 26 травня 2010 Тема была начата www.stroimdom.com.ua/forum/showthread.php?t=36211 Хочу внести уточнения и возможно привлечь еще новые бригады к обсуждению темы. Выложены файлы: план дома, и визуализация. Итак, с. Андреевка участок 35 на 45. Есть свет, как только договоримся-делаю скважину. В селе есть местная техника. Вагончика нет, но я вижу два варианта..или искать у местных жителей или..военная палатка-лето в конце -концов)). Дом (в дальнейшем сауна). 9 на 4. (см.план) Итак вводные: 1) Фундамент на метр от земли 2) стены (внешняя отделка) блок-хаус с пазами. 3) крыша- битумная черепица (изломы на рисунке) 4) стены (внутренняя отделка) вагонка 5) внутрение стены гипсокартон водостойкий и плитка 6) утеплитель 150 внутрь. 7) где рабочая поверхность кухни, тоже плитка (см. рис). 8) разводка воды (две точки и унитаз) 9) електрика (ну точек не много как вы понимаете) 10) метал окна 3 и одно маленькое Материалы (утеплитель, пленки, битумная черепица, плитка, окна)..я покупаю сам! Я готов начать финансирование проекта. Интересует стоимость без материалов, которые я указал. Спасибо. Давайте тогда обсуждать. 0675799116 Вячеслав Посилання на коментар Поділитися на інших сайтах More sharing options...
Рекомендовані повідомлення
Створіть акаунт або увійдіть у нього для коментування
Ви маєте бути користувачем, щоб залишити коментар
Створити акаунт
Зареєструйтеся для отримання акаунта. Це просто!
Зареєструвати акаунтУвійти
Вже зареєстровані? Увійдіть тут.
Увійти зараз