Ugushka Опубліковано: 17 грудня 2007 Поділитись Опубліковано: 17 грудня 2007 Долго скитаясь по чужим веткам я таки решила состряпать свою, дабы и у меня было свое местечко, где можно быть похваленной или осужденной В целом все обстоит так: 30 соток земли вне города, но до окружной. Практически ровный участок с очень глубокими (50-80 м) грунтовыми водами и 80 см чернозема. Планируем три этажа - цоколь, два основных.. ну и небольшой чердак. Добротный фундамент уже заложен, то есть корешки есть. Какими быть вершками - решить пока не могу. Надеюсь отыскать тут помощь. Возможно, вообще скомбинируем этажи из разных материалов ,чтобы сравнить и дать характеристику теплопроводности Время покажет. Посилання на коментар Поділитися на інших сайтах More sharing options...
Chiara Опубліковано: 17 грудня 2007 Поділитись Опубліковано: 17 грудня 2007 привет-привет 8) С веткой тебя! Типа, с домиком 1 Посилання на коментар Поділитися на інших сайтах More sharing options...
Ugushka Опубліковано: 17 грудня 2007 Автор Поділитись Опубліковано: 17 грудня 2007 привет-привет 8) С веткой тебя! Типа, с домиком О, спасибо Только у меня нет домика.. но есть чертежи, щас досканю ) Посилання на коментар Поділитися на інших сайтах More sharing options...
Ugushka Опубліковано: 17 грудня 2007 Автор Поділитись Опубліковано: 17 грудня 2007 Фотоотчета у меня красивого нет. Но примерно вот так это начиналось и продолжалось. А на сегодня накрыт цоколь плитами стройка заморозилась. С удовольствием послушаю комментарии по поводу проекта, потому что какие-то детали, думаю, еще можно изменить Посилання на коментар Поділитися на інших сайтах More sharing options...
Chiara Опубліковано: 17 грудня 2007 Поділитись Опубліковано: 17 грудня 2007 мощный цоколь Угушка, для такого дома я в выбрала бы кирпич или паротерм. ИМХО. ТяжОлый он будет, нужно чтоб и прочный был. Только на теплый раствор и сделала бы все, чтоб отапливать его было бы дешевле, бо большой, т.е утепление нужно. Опять же ИМХО. Желаю побольше советов от профи и старожилов Посилання на коментар Поділитися на інших сайтах More sharing options...
Ugushka Опубліковано: 17 грудня 2007 Автор Поділитись Опубліковано: 17 грудня 2007 мощный цоколь Угушка, для такого дома я в выбрала бы кирпич или паротерм. ИМХО. ТяжОлый он будет, нужно чтоб и прочный был. Только на теплый раствор и сделала бы все, чтоб отапливать его было бы дешевле, бо большой, т.е утепление нужно. Опять же ИМХО. Желаю побольше советов от профи и старожилов Спасибо Вот так и думаем. Но ждем смету. Хотя, смета на сегодня совершенно не отобразит состояние на весну. Да и, как показал цоколь, - сметчики на 20-25% просчитались -то что-то забыли, то бетон подорожал.. то кирпича не хватило Строились с средины сентября по конец ноября. Исключительно на бензиновом генераторе, ибо свет от нас далеко. Очень остро стоял вопрос воды. Бочку покупать было дорого, да и некуда ее потом было прятать. Поэтому, пользусь "несезоном", мы купили на базаре 7 кубовый резиновый бассейн с надувным ободом за 700 грн, который наполнили поливалкой. Что нас и спасло При том, что участок большой и было где развернуться, строители умудрились примять соседские кусты смородины. Поэтому, туго себе представляю, как строятся люди на 6 сотках, особенно, когда рядом уже кто-то построился Посилання на коментар Поділитися на інших сайтах More sharing options...
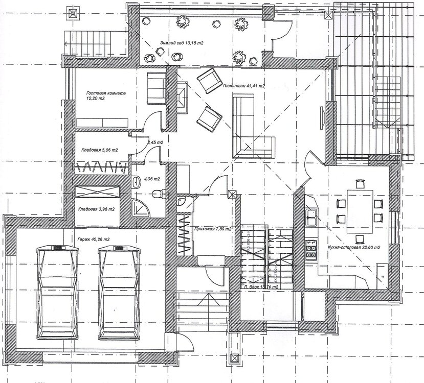
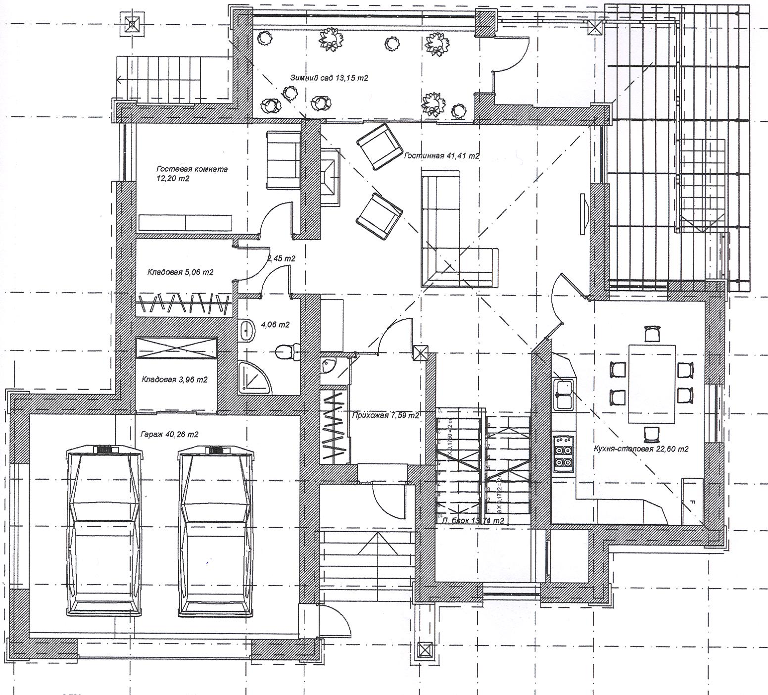
Дмитрий Викторович Опубліковано: 6 січня 2008 Поділитись Опубліковано: 6 січня 2008 Изучив план цоколя и этажей, Я не могу понять, на что будет опираться наружная стена 2 этажа над гаражом!!!!!!!!!!! Посилання на коментар Поділитися на інших сайтах More sharing options...
Надежда Опубліковано: 6 січня 2008 Поділитись Опубліковано: 6 січня 2008 И из гаража в дом удобнее входить не через улицу. На месте гардеробной при входе сделайте дверь из гаража, входную дверь сместите влево, она все равно у Вас не по центру, а гардероб перенесите вправо. Посилання на коментар Поділитися на інших сайтах More sharing options...
Ugushka Опубліковано: 6 січня 2008 Автор Поділитись Опубліковано: 6 січня 2008 Изучив план цоколя и этажей, Я не могу понять, на что будет опираться наружная стена 2 этажа над гаражом!!!!!!!!!!! Огромное спасибор за замечание.. Конструктор сказал, что на плиту. НАд воротами будет ЖБ балка. На нее. Или Вы думаете, этого недостаточно? И из гаража в дом удобнее входить не через улицу. На месте гардеробной при входе сделайте дверь из гаража, входную дверь сместите влево, она все равно у Вас не по центру, а гардероб перенесите вправо. Спасибо, Надежда. Мы долго думали над этим.. Но решили в итоге сделать вход в гараж с улицы, чтобы запахи из гаража не попадали в дом. При этом сделали общую кровлю над входами в гараж и дом. Посилання на коментар Поділитися на інших сайтах More sharing options...
Dron Опубліковано: 6 січня 2008 Поділитись Опубліковано: 6 січня 2008 Я не понял, у Вас цокольный этаж и фундамент гаража не одно целое? И потом на гаражные плиты будет ложиться капитальная стена второго этажа? Думаю это в корне неправильно. Фундамент должен быть одним целым. Посилання на коментар Поділитися на інших сайтах More sharing options...
Ugushka Опубліковано: 6 січня 2008 Автор Поділитись Опубліковано: 6 січня 2008 Я не понял, у Вас цокольный этаж и фундамент гаража не одно целое? И потом на гаражные плиты будет ложиться капитальная стена второго этажа? Думаю это в корне неправильно. Фундамент должен быть одним целым. Фундамент в гараже общий с цоколем. Вернее, под гаражом нет помещений, то есть, на уровне цоколя начинается фундамент гаража. А вот стена 2 этажа действителньо будет ложиться на гаражные плиты над воротами. Конструктор убеждает, что все будет устойчиво. А вы думаете, что нет? Посилання на коментар Поділитися на інших сайтах More sharing options...
Greyglass Опубліковано: 21 січня 2008 Поділитись Опубліковано: 21 січня 2008 Неплохой домик. Я бы поубирал почти все балконы. А какой размер получается? 1 Посилання на коментар Поділитися на інших сайтах More sharing options...
Ugushka Опубліковано: 21 січня 2008 Автор Поділитись Опубліковано: 21 січня 2008 Неплохой домик. Я бы поубирал почти все балконы. А какой размер получается? Общая 411 метров. А чем мешают балконы на Ваш взгляд? Вообще балконы - это привычка, притянутая из квартиры, понятное дело. Тут балконы махонькие и всегда хочется пространства на них, ибо на них то белье сохнет, то инструменты хранятся, то санки с великами стоят А вот насколько они оишние в частном доме - не могу понять ... Посилання на коментар Поділитися на інших сайтах More sharing options...
Greyglass Опубліковано: 21 січня 2008 Поділитись Опубліковано: 21 січня 2008 Общая 411 метров. А чем мешают балконы на Ваш взгляд? Вообще балконы - это привычка, притянутая из квартиры, понятное дело. Тут балконы махонькие и всегда хочется пространства на них, ибо на них то белье сохнет, то инструменты хранятся, то санки с великами стоят А вот насколько они оишние в частном доме - не могу понять ... Я уже писал в своей ветке. Почему балконы, как по мне, в частном доме не нужны. Белье сохнет на улице. Вы же не будете его таскать в спальню на балкон Инструменты хранятся в гараже или кладовой. Санки велики тамже. Или в подвале. Балкон в данном случае это просто неоправданные затраты при строительстве и лишние расходы при отоплении. Ибо даже если пренебречь тем что поверхность дома увеличивается, то самой теплопроводной частью стены являются окна и двери на балкон. Я бы убрал балконы и за их счет увеличил размеры комнат на втором этаже. Посилання на коментар Поділитися на інших сайтах More sharing options...
Ugushka Опубліковано: 21 січня 2008 Автор Поділитись Опубліковано: 21 січня 2008 Я бы убрал балконы и за их счет увеличил размеры комнат на втором этаже. Думаю, Вы правы. Но, наверное, оставлю себе один - во взрослой спальне. Летом в дождик можно будет там коляску с грудничком вывезти и самой спать - на балконе или в комнате Посилання на коментар Поділитися на інших сайтах More sharing options...
Greyglass Опубліковано: 21 січня 2008 Поділитись Опубліковано: 21 січня 2008 Дело ваше, но подумайте очень хорошо. Я сейчас сплю в комнате с балконом. Лучше бы его не было. Реально от него тянет холодом. (Не дует. Все герметично). Про грудничка - для этого есть крытое крыльцо или терраса. А если ребенок спит а вам гулять не хочется - существует радионяня. Это переговорное устройство. Поиском в гугле посмотрите. Мы щас таким пользуемся. Супер вещь. PS Посмотрел - по проекту у вас нет крыльца или террасы? Это зря. Хотя нет, вроде есть. Посилання на коментар Поділитися на інших сайтах More sharing options...
Ugushka Опубліковано: 21 січня 2008 Автор Поділитись Опубліковано: 21 січня 2008 А если ребенок спит а вам гулять не хочется - существует радионяня. Думаете ,я оставлю его самого во дворе? А если украдут... вместе с забором? Ну вообще, пока дом достроится, думаю, уже все мои грудники вырастут А внуки, мобыть, со мной жить в младенчестве и не будут... А вот увеличиваь ли комнаты.. у меня сейча детская 3,2 на 3,4.... с головой без гардероба. Так что тоже лишние площади отапливать не хочется. попробую перересовать без балконов и без увеличения комнат.. .как выглядеть будет... Посилання на коментар Поділитися на інших сайтах More sharing options...
Greyglass Опубліковано: 21 січня 2008 Поділитись Опубліковано: 21 січня 2008 Кто его украдет? Ну разве что с забором. Кстати если красть будут - вы же тоже услышите. Посилання на коментар Поділитися на інших сайтах More sharing options...
Ugushka Опубліковано: 21 січня 2008 Автор Поділитись Опубліковано: 21 січня 2008 Кто его украдет? Ну разве что с забором. Кстати если красть будут - вы же тоже услышите. Короче говоря, озадачили. Надо поговорить с теми, у кого уже есть дом... нужен ли им балкон.. и насколько безопасно во дворе.. Посилання на коментар Поділитися на інших сайтах More sharing options...
Greyglass Опубліковано: 21 січня 2008 Поділитись Опубліковано: 21 січня 2008 Короче говоря, озадачили. Надо поговорить с теми, у кого уже есть дом... нужен ли им балкон.. и насколько безопасно во дворе.. ЛОЛ. У меня есть дом! Я в нем живу! Могу рассказать что хотите. :) 1 Посилання на коментар Поділитися на інших сайтах More sharing options...
levoved Опубліковано: 21 січня 2008 Поділитись Опубліковано: 21 січня 2008 Короче говоря, озадачили. Надо поговорить с теми, у кого уже есть дом... нужен ли им балкон.. и насколько безопасно во дворе.. У Вас совсем не бюджетный дом, потому, ИМХО балкон не помешает. Наблюдать с балкона за двором и окружающими видами (у Вас они неплохие) как-то более радостно, чем из окон. Полгода теплого и относительно теплого времени года, как в наших широтах, это не так уж мало. Про безопасность все очень индивидуально. Как видно из фоток, Вы в поле пока строитесь, так что все зависит от того, кто и как скоро заселит эту целину. Посилання на коментар Поділитися на інших сайтах More sharing options...
Ugushka Опубліковано: 21 січня 2008 Автор Поділитись Опубліковано: 21 січня 2008 Спрашиваю: А у вас в нынешнем доме есть выход из гаража непосредственно в дом? Я к вопросу эффективности дверей, насколько они защищают жилую часть от запахов из гаража? Какой высоты правильнее делать забор? Как часто вы принимаетет гостей именно в зале, а не на кухне? Насколько нужна "игровая комната"? А какая у Вас собака? Как видно из фоток, Вы в поле пока строитесь, так что все зависит от того, кто и как скоро заселит эту целину. Остальное огороды. как быстро их продадут под строительство (в оригинале -это именно участки под строительство) будет зависеть от того, насколько злобно мои строители этим летом нанесут ущерб урожаю соседей :) Шутка, конечно, хотя, горько там совсем одним смотреть, как пенсионеры копают "золотую" картошку .. Посилання на коментар Поділитися на інших сайтах More sharing options...
Greyglass Опубліковано: 21 січня 2008 Поділитись Опубліковано: 21 січня 2008 Спрашиваю: А у вас в нынешнем доме есть выход из гаража непосредственно в дом? Я к вопросу эффективности дверей, короче защищают жилую часть от запахов из гаража? Какой высоты правильнее делать забор? Как часто вы принимаетет гостей именно в зале, а не на кухне? Насколько нужна "игровая комната"? А какая у Вас собака? Остальное огороды. как быстро их продадут под строительство (в оригинале -это именно участки под строительство) будет зависеть от того, насколько злобно мои строители этим летом нанесут ущерб урожаю соседей :) Шутка, конечно, хотя, горько там совсем одним смотреть, как пенсионеры копают "золотую" картошку .. Выхода из гараж в дом нет. Это очень достает. В будущем доме будет 100%. А о каких запахах вы вообще говорите? Вы что в гараже машину прогревать будете что-ли? Я в гараже никаких особых запахов не ощущаю. Забор - ну 2 метра щас. Это принципиально? Я вам скажу даже больше, все свое свободное время мы проводим в зале. И гостей принимаем в зале. Игровая комната - это что вы имели ввиду? Для детей игровая комната? Дети обычно весь дом превращают в игровую комнату. Ну и естественно что они хотят быть рядом со взрослыми. Так что игровая это если вы будете там вместе с детьми. Я для этого предусмотрел спортзал. Он же и будет игровой комнатой. Там и тренажеры поставить можно и шведскую стенку, и маты положить и т.д. Собаки нет пока. Два кота есть. Собаку конечно надо. Собираемся завести. Ну и вообще для спокойствия не помешает охотничье ружье в доме иметь. На всякий случай. (Хотя бы на случай охоты) Посилання на коментар Поділитися на інших сайтах More sharing options...
УютнаЯ Опубліковано: 22 січня 2008 Поділитись Опубліковано: 22 січня 2008 Мне очень нравится дом И планировка Ugushka, вы план где покупали? Или сами рисовали, а потом индивидуально заказывали у архитектора? Я бы присмотрелась к нему. (сейчас на стадии выбора проэкта, но ничего не могу найти ) В нем учтены почти все мои пожелания - полноценных два этажа, балконы, кладовки, места под шкафы, зимний сад, терасса и т.д... Посилання на коментар Поділитися на інших сайтах More sharing options...
Greyglass Опубліковано: 22 січня 2008 Поділитись Опубліковано: 22 січня 2008 Ну на 411 метрах можно что угодно разместить Посилання на коментар Поділитися на інших сайтах More sharing options...
Рекомендовані повідомлення
Створіть акаунт або увійдіть у нього для коментування
Ви маєте бути користувачем, щоб залишити коментар
Створити акаунт
Зареєструйтеся для отримання акаунта. Це просто!
Зареєструвати акаунтУвійти
Вже зареєстровані? Увійдіть тут.
Увійти зараз