Гість Колосова Опубліковано: 8 грудня 2010 Поділитись Опубліковано: 8 грудня 2010 Озадачена этим вопросом по профессиональной необходимости: нужно заложить утепление в полу жилого здания в Красноярске. Как понимается понятие "утеплённый пол" в рамках этого форума - утепление всей площади или ...? В рекомендациях по проектированию полов есть пункт 9.4. "Для утепления пола следует предусматривать укладку в соответствующие заглубления в грунтовом основании на ширину 1,5 - 2 м от стен минеральных несжимаемых материалов (шлака, керамзита и т.п.) слоем толщиной 0,15 - 0,25 м" (расчёт по зонам 2 м). Т.е. для комфортного пребывания людей (чтобы ноги не мёрзли) пол может быть утеплён по периметру здания или на всю площадь? Одними нормами руководствовать не получается, может кто из опыта практического подскажет. Посилання на коментар Поділитися на інших сайтах More sharing options...
Хтось Опубліковано: 8 грудня 2010 Поділитись Опубліковано: 8 грудня 2010 Т.е. для комфортного пребывания людей (чтобы ноги не мёрзли) пол может быть утеплён по периметру здания или на всю площадь? Одними нормами руководствовать не получается, может кто из опыта практического подскажет.[/size]Для комфортного пребывания нужно утеплять все. ИМХО. Потому что теплопроводность пенопласта всяко ниже теплопроводности грунта. Правда, если утеплять керамзитом, то скорее всего такое "утепление" в центре дома будет не очень ощутимо. Посилання на коментар Поділитися на інших сайтах More sharing options...
Reflex Опубліковано: 9 січня 2011 Поділитись Опубліковано: 9 січня 2011 Что касается отказа утепления пола в пользу использования его летом для охлаждения дома - то мы имеем 2 жарких месяца в году, ещё 3-4 посредственных и 6-7 холодных. Я всётаки за то, чтоб ногам было комфортно... Вот пишу сейчас, а ноги мёрзнут . И как писал Igor1959, у нас не землянки, а цоколь 40-50см, отсюда и эффект несколько иной. Посилання на коментар Поділитися на інших сайтах More sharing options...
Jeny Опубліковано: 18 січня 2011 Поділитись Опубліковано: 18 січня 2011 Не утеплять пол находящийся над землёй или даже на уровне земли это полный бред. По законам физики холод не может подниматься в верх , и каким образом это будет летом охлаждать помещение ума не приложу. По своему опыту знаю , что неудобство от жары летом -ничто по сравнению с постоянным кошмарным холодом зимой . Я сделал в половине дома тёплый пол , и впервые почувствовал зимой себя человеком , а не замерзшим цуцыком. Температура стяжки у меня 30-32 градуса , так скажите , нахера мне греть землю под стяжкой , и если бы я не положил 5 см пенопласта ( и то считаю мало)то значительная часть тепла уходила бы в стяжку от прямого контакта с грунтом 7градусов. У теплять надо всё вокруг и чем больше , тем комфортнее в течении всего года . Посилання на коментар Поділитися на інших сайтах More sharing options...
Jeny Опубліковано: 18 січня 2011 Поділитись Опубліковано: 18 січня 2011 КПД кондиционера 25-30% вызывает недоумение. Кондиционер , как и холодильник это тепловые насосы . Привиду по памяти электрические характеристики современных кондиционеров :потредляемая мощьность -700вт отбираемая мощьность по холоду -2100 вт отдаваемая мощьность по теплу -2400 вт . Отдаваемая по теплу всегда больше потому , что сам компресор нагревается как любой эл.двигатель. Посилання на коментар Поділитися на інших сайтах More sharing options...
Nafanya_TT Опубліковано: 24 січня 2011 Поділитись Опубліковано: 24 січня 2011 Не утеплять пол находящийся над землёй или даже на уровне земли это полный бред. По законам физики холод не может подниматься в верх , и каким образом это будет летом охлаждать помещение ума не приложу. По своему опыту знаю , что неудобство от жары летом -ничто по сравнению с постоянным кошмарным холодом зимой . Я сделал в половине дома тёплый пол , и впервые почувствовал зимой себя человеком , а не замерзшим цуцыком. Температура стяжки у меня 30-32 градуса , так скажите , нахера мне греть землю под стяжкой , и если бы я не положил Значительна5 см пенопласта ( и то считаю мало)то значительная часть тепла уходила бы в стяжку от прямого контакта с грунтом 7градусов. У теплять надо всё вокруг и чем больше , тем комфортнее в течении всего года . Холоду не обязательно подниматься вверх, что бы охладить помещение. Достаточно того что этот холод просто заберёт тепло у воздуха, который выше. 'Значительная" часть тепла от тёплого пола не уйдёт вниз уже об этом писали выше. Насёчёт комфортнее в течении всего года, это Вы погарячились. Ну, а то, что теповая мощность на обогрев у кондиционера больше, потому, что компрессор нагревается - вот это и есть бред полнейший, расмешило меня конечно очень. Вы в курсе вообще как работает холодильная машина? Кстати при работе на охлаждение, компрессор тоже нагреваеться, что прикоснуться нельзя. Посилання на коментар Поділитися на інших сайтах More sharing options...
Pride Опубліковано: 25 січня 2011 Поділитись Опубліковано: 25 січня 2011 Очень интересует есть ли на форуме отчаянные, которые не утепляли пол первого этажа (даже обогревая дом "теплым полом"), а просто утеплили цоколь (а то и всю "ленточку") и сделали теплую отмостку. Есть ли те, кто решил хитро использовать такой термостат как грунт под домом как для снижения затрат на обогрев жилья, так и на его охлаждение ? Скажите, а как мне быть, если у меня фундамент планируется плита? Его лучше снизу перед заливкой не утеплять? Т.е. просто гравийно-песочная подушка и всё? Потом бетон и по нему трубы тёплого пола? Не будет ли мне летом слишком прохладно от такого пола, учитывая, что и стены будут из кирпича с утеплением снаружи? Посилання на коментар Поділитися на інших сайтах More sharing options...
Вомбат Опубліковано: 25 січня 2011 Поділитись Опубліковано: 25 січня 2011 А кто мешает снизу плиту утеплить? Посилання на коментар Поділитися на інших сайтах More sharing options...
Jeny Опубліковано: 25 січня 2011 Поділитись Опубліковано: 25 січня 2011 Холоду не обязательно подниматься вверх, что бы охладить помещение. Достаточно того что этот холод просто заберёт тепло у воздуха, который выше. 'Значительная" часть тепла от тёплого пола не уйдёт вниз уже об этом писали выше. Насёчёт комфортнее в течении всего года, это Вы погарячились. Ну, а то, что теповая мощность на обогрев у кондиционера больше, потому, что компрессор нагревается - вот это и есть бред полнейший, расмешило меня конечно очень. Вы в курсе вообще как работает холодильная машина? Кстати при работе на охлаждение, компрессор тоже нагреваеться, что прикоснуться нельзя. Всё что вы здесь написали спорно , вопрос ведь в эффективности . По поводу ТН -кондиционера , он в обоих режимах и холода и тепла выдаёт одинаково, только в одном режиме тепло является побочным продуктом , а в другом холод, но тепла всегда будет больше , ведь любой электоприбор греется при работе. Посилання на коментар Поділитися на інших сайтах More sharing options...
Nafanya_TT Опубліковано: 25 січня 2011 Поділитись Опубліковано: 25 січня 2011 По поводу ТН -кондиционера , он в обоих режимах и холода и тепла выдаёт одинаково, только в одном режиме тепло является побочным продуктом , а в другом холод, но тепла всегда будет больше , ведь любой электоприбор греется при работе. При работе на тепло, в двух словах, внутренний блок становиться конденсатором, а наружный испарителем. Цель компрессора сжать хладагент до жидкого (соот-но сбольшим давлением) состояния, чтобы он в испарителе мог испариться и забрать окружающее тепло, в конденсаторе эти пары тепло отдают окружающей среде. Так, что компрессор непосредственно никакого участия в нагреве не принимает, тем более находиться он на улице. Всё происходит с помощью смены агрегатных состояний хладагента и законов термодинамики. Посилання на коментар Поділитися на інших сайтах More sharing options...
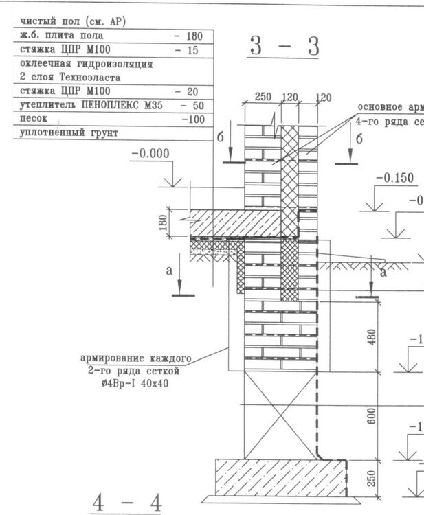
Зигзаг Удачи Опубліковано: 25 січня 2011 Поділитись Опубліковано: 25 січня 2011 Скажите, а как мне быть, если у меня фундамент планируется плита? Его лучше снизу перед заливкой не утеплять? Т.е. просто гравийно-песочная подушка и всё? Потом бетон и по нему трубы тёплого пола? Не будет ли мне летом слишком прохладно от такого пола, учитывая, что и стены будут из кирпича с утеплением снаружи? Считаю, что плиту от грунта надо утеплять. Вот фрагмент с проекта. 1 Посилання на коментар Поділитися на інших сайтах More sharing options...
Jeny Опубліковано: 25 січня 2011 Поділитись Опубліковано: 25 січня 2011 При работе на тепло, в двух словах, внутренний блок становиться конденсатором, а наружный испарителем. Цель компрессора сжать хладагент до жидкого (соот-но сбольшим давлением) состояния, чтобы он в испарителе мог испариться и забрать окружающее тепло, в конденсаторе эти пары тепло отдают окружающей среде. Так, что компрессор непосредственно никакого участия в нагреве не принимает, тем более находиться он на улице. Всё происходит с помощью смены агрегатных состояний хладагента и законов термодинамики. Не нужно было утруждать себя объяснением как работает тепловой насос (холодильник , кондиционер)да ещё в таких технических подробностях , причём так замудрённо, можно объяснить гораздо проще , берёться тепло в одном месте , сжимается и с помощью хладогена переносится в другое , перенос этого тепла осуществляет компрессор вращающегося эл. двигателем , но любой эл. двигатель при работе выделяет тепло , как в прочем и трущиеся части в самом компрессоре ( без этого пока никак)по этому к теплу взятому в исходной точке прибавляется тепло полученное в результате работы агрегата. Из этого следует, тепла выделеного конденсатором всегда больше изъятого испарителем ровно на столько , сколько его выделилось при работе механизма. Посилання на коментар Поділитися на інших сайтах More sharing options...
Pride Опубліковано: 26 січня 2011 Поділитись Опубліковано: 26 січня 2011 А кто мешает снизу плиту утеплить? Вы название темы читаете?! Я тоже хочу узнать все плюсы/минусы Неутепления пола. Но у меня планируется плита фундаментная. Вот я и пытаюсь понять - выгодно ли это в моём случае. Посилання на коментар Поділитися на інших сайтах More sharing options...
Pride Опубліковано: 26 січня 2011 Поділитись Опубліковано: 26 січня 2011 Считаю, что плиту от грунта надо утеплять. Вот фрагмент с проекта. У вас фундамент ленточный. А у меня планируется монолитная плита. Но про утепление я ещё до конца не разобрался. Посилання на коментар Поділитися на інших сайтах More sharing options...
Зигзаг Удачи Опубліковано: 26 січня 2011 Поділитись Опубліковано: 26 січня 2011 У вас фундамент ленточный. А у меня планируется монолитная плита. Но про утепление я ещё до конца не разобрался. Фундамент-то ленточный, но его частью является плита пола первого этажа, которая лежит на грунте. Так же как и у Вас. Посилання на коментар Поділитися на інших сайтах More sharing options...
Вомбат Опубліковано: 26 січня 2011 Поділитись Опубліковано: 26 січня 2011 Вы название темы читаете?! Читал. И сказал Вам, как НУЖНО сделать, потому что: 1. Зимой тепло не будет уходить в землю, т.е. меньше придется греть ТП. 2. Летом ТП все-равно будет достаточно прохладным, как его не утепляй. Только прохлада эта вряд ли будет охлаждать комнату - холодный воздух не будет подыматься, как это делает теплый воздух. Так что нет смысла в НЕутеплении пола. Посилання на коментар Поділитися на інших сайтах More sharing options...
Jeny Опубліковано: 26 січня 2011 Поділитись Опубліковано: 26 січня 2011 Читал. 1. Зимой тепло не будет уходить в землю, т.е. меньше придется греть ТП. Как это тепло не будет уходить в землю ? Тёплый пол будет плотно контактировать с большой массой температура которой на 20* ниже температуры пола , вы сядьте голым задом на землю и поймёте будет уходить тепло или не будет. Посилання на коментар Поділитися на інших сайтах More sharing options...
Nafanya_TT Опубліковано: 26 січня 2011 Поділитись Опубліковано: 26 січня 2011 ...... Только прохлада эта вряд ли будет охлаждать комнату - холодный воздух не будет подыматься, как это делает теплый воздух....... Странно, тогда пожалуйста обьясните, почему у меня за лето температура на первом этаже постоянно была на 5-8 градусов ниже чем на улице??? Никаких кондиционеров пока, что нет. Посилання на коментар Поділитися на інших сайтах More sharing options...
Propeller Опубліковано: 26 січня 2011 Автор Поділитись Опубліковано: 26 січня 2011 Можно я объясню. Как Землю греет Солнце? Тепловым излучением. Просто об этом способе передачи тепла (энергии) здесь немного забыли. Так вот в замкнутой системе (комнате) есть более теплые предметы и и элементы конструкции и более холодные. В замкнутой системе все стремится к термодинамическому равновесию. То есть, все предметы,элементы конструкции и воздух в т.ч. должны в идеале иметь одинаковую температуру (в данном случае читать энергию). Так вот, если пол у Вас более холодный, то остальные предметы будут греть его (излучением), пока он не станет таким же теплым как они. А пол, сука, снизу контактирует с прохладным грунтом, который постоянно отбирает у пола эту самую энергию, охлаждая его. Всем теплые предметам некуда деваться надо греть пол, который расходует это тепло на прогрев грунта (теплопроводность тел). Это значит, что теоретически, без наружной подпитки энергией извне температура в комнате станет равной температуре грунта. Летом "холодный" пол - действительно холодильник. Мне так кажется. 3 Посилання на коментар Поділитися на інших сайтах More sharing options...
Nafanya_TT Опубліковано: 27 січня 2011 Поділитись Опубліковано: 27 січня 2011 Можно я объясню. .......Летом "холодный" пол - действительно холодильник. Мне так кажется. Как раз это я и имею ввиду. Посилання на коментар Поділитися на інших сайтах More sharing options...
Jeny Опубліковано: 27 січня 2011 Поділитись Опубліковано: 27 січня 2011 А никто и не спорит с тем , что холодный пол летом это хорошо, остаётся выяснить что нам обойдётся дороже прохлада летом или тепло зимой , лично для меня все аргументы в пользу утепления пола , хотя каждый вправе решать сам. Посилання на коментар Поділитися на інших сайтах More sharing options...
Nafanya_TT Опубліковано: 27 січня 2011 Поділитись Опубліковано: 27 січня 2011 А никто и не спорит с тем , что холодный пол летом это хорошо, остаётся выяснить что нам обойдётся дороже прохлада летом или тепло зимой , лично для меня все аргументы в пользу утепления пола , хотя каждый вправе решать сам. В посте №3 приведены теплопотери через пол, поэтому для меня аргументы другие, да действительно здесь подход индивидуальный. Посилання на коментар Поділитися на інших сайтах More sharing options...
Вомбат Опубліковано: 27 січня 2011 Поділитись Опубліковано: 27 січня 2011 Как это тепло не будет уходить в землю ? Внимательнее читайте, пожалуйста, мои сообщения. Я так и написал, что если утеплить пол, то зимой тепло не будет уходить. Посилання на коментар Поділитися на інших сайтах More sharing options...
Вомбат Опубліковано: 27 січня 2011 Поділитись Опубліковано: 27 січня 2011 Летом "холодный" пол - действительно холодильник. Мне так кажется. Летом и ТП - холодильник ;) Как его не утепляй Посилання на коментар Поділитися на інших сайтах More sharing options...
Гість ключник Опубліковано: 27 січня 2011 Поділитись Опубліковано: 27 січня 2011 Подскажите, в какой литературе(название) можно найти температуру грунта, наверника она отличаеться в разных регионах и на разной глубине. Посилання на коментар Поділитися на інших сайтах More sharing options...
Рекомендовані повідомлення
Створіть акаунт або увійдіть у нього для коментування
Ви маєте бути користувачем, щоб залишити коментар
Створити акаунт
Зареєструйтеся для отримання акаунта. Це просто!
Зареєструвати акаунтУвійти
Вже зареєстровані? Увійдіть тут.
Увійти зараз