daniel Опубліковано: 13 жовтня 2010 Автор Поділитись Опубліковано: 13 жовтня 2010 не знаю.. уточню еще раз обязательно и доложу.. в компании Мастер-Дах придают внимание снего-ветровым нагрузкам в первую очередь.. для них это не миф, в отличии от продавцов металочерепицы и битумки, которые раасказывают людям, что малый вес кровли - это преимущество, не учитывая 200-250кг/м2 снего-ветровой нагрузки зимой.. поэтому я не думаю, что люди в здравом уме проектируют и строят крышу под укладку натуральной цементно-песчаной черепицы без полагающихся расчётов.. Посилання на коментар Поділитися на інших сайтах More sharing options...
daniel Опубліковано: 13 жовтня 2010 Автор Поділитись Опубліковано: 13 жовтня 2010 возьмите поэксперементируйте сами,возьмите две палки,уприте в стол, и надавите сверху,всю нагрузку держат скобы 8-) А если сбить их в виде буквы А,нагрузка равномерно распределится и палки не разъедутся! Расчётная нагрузка на м2 150 кг,на крышу,т.е. на 200 м2 крыши 30 тонн! пытаюсь вот проанализировать это дело.. полез гуглить.. существет прогонно-ригельная стропильная система (в предпоследнем Мураторе так и написано, оттуда я и выяснил название, хотя Гугл о таком знает мало).. каждая стропилина опирается зарезами (и закреплена скобой) на средние прогоны и окончанием своим на мауэрлат (также зарезом или скобой (если опирается на диагональ, а не на конёк)).. также стропила вверху образуя конёк опираются на коньковый прогон (хотя на коньке действительно нужно или шпильками скручивать или пластинами сбивать).. а в распорной стропильной системе используются бантины.. хотя я понимаю, что в моём случае они также не помешают. ещё вот, немного не пойму, какой смысл давить на палки сверху, что бы они разъехались в стороны, если на конёк никто никогда давить не будет, обычно давление снега-ветра-черепицы происходит на скаты крыши, которые лежат на стропилах, а эти в свою очередь опираются по середине на прогоны.. я не то что хочу спорить, я не кровельщик и не инженер кровельных систем, я просто пытаюсь разобраться в процессе, что бы потом было куда тыкать носом кровельщиков с обоснованием.. Посилання на коментар Поділитися на інших сайтах More sharing options...
daniel Опубліковано: 14 жовтня 2010 Автор Поділитись Опубліковано: 14 жовтня 2010 сегодня заливали первый конструкционный слой бетона на пол в кухне.. с сеткой 4мм шаг 70*70. ушло 34 мешалки бетона.. и где то 23-25 мешков цемента.. подняли уровень пола на 10-12см где-то... осталось 13см до нуля, в которые будет помещён ЭППС 5см + плёнка + сетка 3мм + трубы ТП + стяжка 5-6см с пластификатором и полимерными волокнами.. была кака, стала цяця :D Посилання на коментар Поділитися на інших сайтах More sharing options...
daniel Опубліковано: 14 жовтня 2010 Автор Поділитись Опубліковано: 14 жовтня 2010 сегодня также принимал в гостях замерщиков по окнам и по дверям... как толкьо закончат кровельные и подшивные работы - дам команду на установку... завтра будем заливать бетоном ванную. послезавтра холл.. ходить в дом прийдётся по потолку или через окна :D или сооружать трап... в понедельник ожидаю возвращение кровельщиков.. у меня уже все соседи беспокоятся, куда ж это они пропали, ещё и так надолго :D мол морозы скоро, а крыша недоделаная стоит Посилання на коментар Поділитися на інших сайтах More sharing options...
Nat Опубліковано: 14 жовтня 2010 Поділитись Опубліковано: 14 жовтня 2010 сегодня заливали первый конструкционный слой бетона на пол в кухне.. с сеткой 4мм шаг 70*70. ушло 34 мешалки бетона.. и где то 23-25 мешков цемента.. подняли уровень пола на 10-12см где-то... осталось 13см до нуля, в которые будет помещён ЭППС 5см + плёнка + сетка 3мм + трубы ТП + стяжка 5-6см с пластификатором и полимерными волокнами.. была кака, стала цяця :D Да, в готовом виде ... смотрится гораздо интереснее ;)... 1 Посилання на коментар Поділитися на інших сайтах More sharing options...
daniel Опубліковано: 14 жовтня 2010 Автор Поділитись Опубліковано: 14 жовтня 2010 это точно но я думал что выдет гораздо хуже и тяжелее.. но сам процес было приятно лицезреть, особенно когда в итоге удалось даже по уровню на глаз всё залить утром посмотрим на сколько это всё добро затвердеет.. Посилання на коментар Поділитися на інших сайтах More sharing options...
Nat Опубліковано: 14 жовтня 2010 Поділитись Опубліковано: 14 жовтня 2010 это точно но я думал что выдет гораздо хуже и тяжелее.. но сам процес было приятно лицезреть, особенно когда в итоге удалось даже по уровню на глаз всё залить утром посмотрим на сколько это всё добро затвердеет.. На глаз - это хорошо ! Только утром ... все увидится в другом свете ;). Посилання на коментар Поділитися на інших сайтах More sharing options...
daniel Опубліковано: 14 жовтня 2010 Автор Поділитись Опубліковано: 14 жовтня 2010 ну на глаз - это образно, на самом деле двухметровым уровнем раскатывали по верху и вроде ровно вышло ночью мороз - вода на поверхности бетона застыла мгновенно.. надеюсь до утра всё впитается и подсохнет.. хотя больше всего беспокоит холл.. если на усыхание кухни-ванной есть 2-3 дня, то на проходной холл (который будем заливать в субботу) - время будет только до понедельника.. каким образом будем заливать стяжку по тёплому полу - ума не приложу.. поскольку вход в дом находиться в холле.. прийдётся на пара дней перебираться к родителям поночевать.. Посилання на коментар Поділитися на інших сайтах More sharing options...
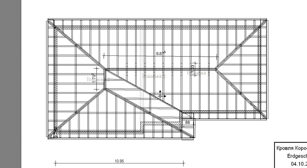
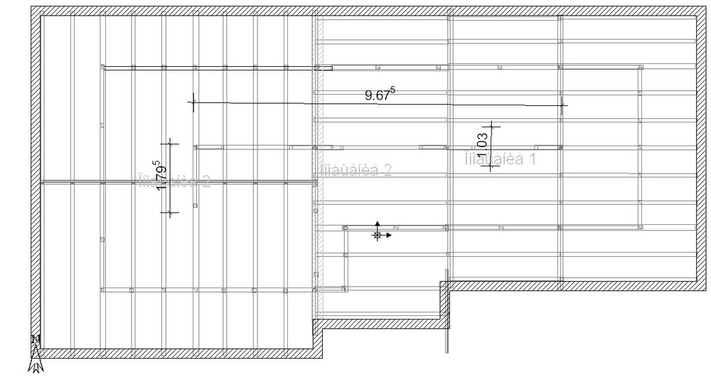
Alex.Iv Опубліковано: 15 жовтня 2010 Поділитись Опубліковано: 15 жовтня 2010 А можно попросить фото крыши со сотороны улицы, а именно уложены ли стропила на фронтон, а то как-то читаю, смотрю а понять не могу, как нужно делать. Посилання на коментар Поділитися на інших сайтах More sharing options...
daniel Опубліковано: 15 жовтня 2010 Автор Поділитись Опубліковано: 15 жовтня 2010 конечено можно! я в принципе неоднократно такие фото уже выкладывал.. фронтонов у меня нету... это вальмовая крыша, 4х скатная, только немного модифицированая, поскольку есть ендова внутри двора и конёк имеет Г-образную форму Стропила опираются на мауэерлат, котоырй уложен на стены, и серединой опираются на средние прогоны, в в верху на подконьковый прогон образуя конёк.. вот планы стропилки и перекрытия, а также фотка с улицы на сегодняшний день.. 2 Посилання на коментар Поділитися на інших сайтах More sharing options...
daniel Опубліковано: 16 жовтня 2010 Автор Поділитись Опубліковано: 16 жовтня 2010 Сегодня залили бетон на пол в холле.. вчера заливали в ванной + над приямком.. так что первый слой конструкционного бетона залит полностью по первому этажу.. От нового входа через холл к двери в старый дом положили доску над свежим бетоном, сфоткаю завтра покажу как сие выглядит :D главное утром по ошибке не вылететь с комнаты в холл и не оказаться по колено в бетоне... в понедельник ожидаю возвращение кровельщиков... правда погоду все интернет-синоптики сулят дождливую на всю неделю.. так что сами виноваты что уехали отдыхать, будут водостоки под дождём устанавливать :D как раз в пору.. Также в понедельник мои работники начнут копать яму под воду от колодца к дому, а потом наверно сразу на канализацию от дома к яме.. Потом, если по отоплению ещё не будет решения, может начнут оббивать старую плитку с кирпичного дома и утеплять пенопластом.. Приезжал сегодня также специалист по воде и отоплению.. другой уже.. с Житомира, говорят, лучший среди лучших по всему городу.. беседовали с ним какие трубы использовать, какие батареи и всё такое... через 2-3 дня составит мне смету (предложение) по моему проекту.. вчера ездили в Океан (фабрика окон и дверей), проплатили аванс за входные двери... по окнам мне Виндзор после замеров лупанул космическую цену.. тыщ на 5 больше чем я ожидал.. если в понедельник они не прогнуться и не скинут ещё пару штук, то пойдут в сад и поеду в Визаж на просчёт, или же вообще с Киева закажу.. Завтра, если выберемся, катнёмся в Житомир купим лектрический конвектор, поскольку таскать с комнаты в комнату один маслянный обогреватель надоело Посилання на коментар Поділитися на інших сайтах More sharing options...
valya_bes Опубліковано: 16 жовтня 2010 Поділитись Опубліковано: 16 жовтня 2010 Сегодня залили бетон на пол в холле.. вчера заливали в ванной + над приямком.. так что первый слой конструкционного бетона залит полностью по первому этажу.. От нового входа через холл к двери в старый дом положили доску над свежим бетоном, сфоткаю завтра покажу как сие выглядит :D главное утром по ошибке не вылететь с комнаты в холл и не оказаться по колено в бетоне... в понедельник ожидаю возвращение кровельщиков... правда погоду все интернет-синоптики сулят дождливую на всю неделю.. так что сами виноваты что уехали отдыхать, будут водостоки под дождём устанавливать :D как раз в пору.. Также в понедельник мои работники начнут копать яму под воду от колодца к дому, а потом наверно сразу на канализацию от дома к яме.. Потом, если по отоплению ещё не будет решения, может начнут оббивать старую плитку с кирпичного дома и утеплять пенопластом.. Приезжал сегодня также специалист по воде и отоплению.. другой уже.. с Житомира, говорят, лучший среди лучших по всему городу.. беседовали с ним какие трубы использовать, какие батареи и всё такое... через 2-3 дня составит мне смету (предложение) по моему проекту.. вчера ездили в Океан (фабрика окон и дверей), проплатили аванс за входные двери... по окнам мне Виндзор после замеров лупанул космическую цену.. тыщ на 5 больше чем я ожидал.. если в понедельник они не прогнуться и не скинут ещё пару штук, то пойдут в сад и поеду в Визаж на просчёт, или же вообще с Киева закажу.. Завтра, если выберемся, катнёмся в Житомир купим лектрический конвектор, поскольку таскать с комнаты в комнату один маслянный обогреватель надоело Какие двери выбрали? Как впечатление о фирме? А почему окна у них не просчитали? Посилання на коментар Поділитися на інших сайтах More sharing options...
daniel Опубліковано: 17 жовтня 2010 Автор Поділитись Опубліковано: 17 жовтня 2010 у Океана просчёт делал.. у них украинский профиль WDS, что не очень внушает доверие.. и фурнитура Зигения.. а также у них есть немецкий профиль Тиссен, правда о нём ничего не знаю... сама фирма - солидная.. у Океана куча представителей по всему городу... также у самого Океана есть целая сеть: пару СТО, магазины автозапчастей, магазин мебели и т.д. и всё это под брендом Океан выступает... выдали мне дисконтную карту на всю сеть Океан... Жалею вот что не успел в Визаж попасть и сделать просчёты с Трокала и КБЕ... а коггдба был в Окнах-Плюс (перекупщики у Визажа), то чёто меня отвернуло от них.. двери такие выбрали, только цвет тёмно-кооричневый.. и стекло прозрачное обычное, потом может затонируем изнутри, потому что готовые тонированные стоят немеряно денег и эффекта от той тонировки никакого.. ковочка.. 2 замка KALE, антивандальное покрытие снаружи... 1 Посилання на коментар Поділитися на інших сайтах More sharing options...
valya_bes Опубліковано: 17 жовтня 2010 Поділитись Опубліковано: 17 жовтня 2010 у Океана просчёт делал.. у них украинский профиль WDS, что не очень внушает доверие.. и фурнитура Зигения.. а также у них есть немецкий профиль Тиссен, правда о нём ничего не знаю... сама фирма - солидная.. у Океана куча представителей по всему городу... также у самого Океана есть целая сеть: пару СТО, магазины автозапчастей, магазин мебели и т.д. и всё это под брендом Океан выступает... выдали мне дисконтную карту на всю сеть Океан... Жалею вот что не успел в Визаж попасть и сделать просчёты с Трокала и КБЕ... а коггдба был в Окнах-Плюс (перекупщики у Визажа), то чёто меня отвернуло от них.. двери такие выбрали, только цвет тёмно-кооричневый.. и стекло прозрачное обычное, потом может затонируем изнутри, потому что готовые тонированные стоят немеряно денег и эффекта от той тонировки никакого.. ковочка.. 2 замка KALE, антивандальное покрытие снаружи... Красиво! А цена нормальная? 1 Посилання на коментар Поділитися на інших сайтах More sharing options...
daniel Опубліковано: 17 жовтня 2010 Автор Поділитись Опубліковано: 17 жовтня 2010 ну в принципе дешевле чем из металопластика и красивее я думал что будет дороже в районе 10-12К, а вышло вот как: 8500 с установкой и доставкой.. недели через три увидим вживую, когда готовы будем принять и окна и двери, после завершения кровельных работ.. Посилання на коментар Поділитися на інших сайтах More sharing options...
Nat Опубліковано: 17 жовтня 2010 Поділитись Опубліковано: 17 жовтня 2010 недели через три Тогда надо как-то договариваться ... насчет погоды ;)... У нас тоже ... затянулись фасадные работы. Очень беспокоюсь по этому поводу ... 1 Посилання на коментар Поділитися на інших сайтах More sharing options...
daniel Опубліковано: 17 жовтня 2010 Автор Поділитись Опубліковано: 17 жовтня 2010 да с кем тут договоришся то щас вот вся неделя будет как сегодня... слякоть и морось круглые сутки... уличные работы не поделаешь вероятно... не знаю конечно что будут делать кровельщики всё это время... лазить по крыше и ложить черепицу в такую погоду наверно не очень весело.. Посилання на коментар Поділитися на інших сайтах More sharing options...
daniel Опубліковано: 17 жовтня 2010 Автор Поділитись Опубліковано: 17 жовтня 2010 купили сегодня такую штуковину: Конвективный обогреватель UFO MCH/20 на 2Квата под 20 кв.м комнаты.. с функцией ионизации греет хорошо.. Посилання на коментар Поділитися на інших сайтах More sharing options...
Optimalist Опубліковано: 17 жовтня 2010 Поділитись Опубліковано: 17 жовтня 2010 купили сегодня такую штуковину: на 2Квата под 20 кв.м комнаты.. с функцией ионизации греет хорошо.. Ага... Муж Ани Лорак уже и конвекторами занялся? Ждем-с рекламы. Только каким боком туда запихали ионизацию ? Посилання на коментар Поділитися на інших сайтах More sharing options...
daniel Опубліковано: 17 жовтня 2010 Автор Поділитись Опубліковано: 17 жовтня 2010 ну дык УФОшки начинали с фототехники, потом перекинулись на обогреватели.. и в этом году видать успешно по конвекторам выступают.. менехер в магазине сказал, что лучше взять УФО чем Фламинго (который в полтора раза дешевле).. про ионизацию.. может и лапша там типа кнопочка зеленая есть, нажимаешь и конвектор посылает позитивные ионы :D или что то в этом роде.. вобщем не сушит воздух.. Посилання на коментар Поділитися на інших сайтах More sharing options...
Nat Опубліковано: 17 жовтня 2010 Поділитись Опубліковано: 17 жовтня 2010 про ионизацию.. может и лапша там типа кнопочка зеленая есть, нажимаешь и конвектор посылает позитивные ионы :D или что то в этом роде.. вобщем не сушит воздух.. Главное, ... чтоб тепло было ;)... Посилання на коментар Поділитися на інших сайтах More sharing options...
Optimalist Опубліковано: 17 жовтня 2010 Поділитись Опубліковано: 17 жовтня 2010 ну дык УФОшки начинали с фототехники, потом перекинулись на обогреватели.. и в этом году видать успешно по конвекторам выступают.. менехер в магазине сказал, что лучше взять УФО чем Фламинго (который в полтора раза дешевле).. про ионизацию.. может и лапша там типа кнопочка зеленая есть, нажимаешь и конвектор посылает позитивные ионы :D или что то в этом роде.. вобщем не сушит воздух.. А похоже Ани Лорак здесь не у дел... Это инфракрасные обогреватели муж со своей фирмы в Турции поставлял, а конвекторы "УФО Украина" закупает в Китае. Фламинго, кстати, собирают в Виннице, там же где и Термии. Какой из них лучше, не знаю. На счет зеленой кнопочки, действительно похоже на обман. Современные конвекторы имеют невысокую температуру и воздух не сушат. 1 Посилання на коментар Поділитися на інших сайтах More sharing options...
daniel Опубліковано: 17 жовтня 2010 Автор Поділитись Опубліковано: 17 жовтня 2010 да я и не заморачивался изучением столь подробных нюансов относительно конвекторов мне главное, что бы оно эффективно грело и избавило меня от перетаскивания тяжелого маслянного обогревателя из зала в спальню и обратно.. купив это барахлишко за не столь большие деньги думаю я получил то, чего желал по крайней мере пока у меня батареи отрезаны от котла (который ушёл на металолом) и на улице зима приближается - то этот прибор должен справиться с поставленной задачей Посилання на коментар Поділитися на інших сайтах More sharing options...
Optimalist Опубліковано: 17 жовтня 2010 Поділитись Опубліковано: 17 жовтня 2010 да я и не заморачивался изучением столь подробных нюансов относительно конвекторов по крайней мере пока у меня батареи отрезаны от котла (который ушёл на металолом) и на улице зима приближается - то этот прибор должен справиться с поставленной задачей Безусловно среди электрообогревателей конвекторы лучший выбор для постоянного отопления. Но я все-таки предпочитаю французских фирм, ведь именно они первыми создали современные конвекторы, которые не сушат воздух, тихие и безопасные. 1 Посилання на коментар Поділитися на інших сайтах More sharing options...
daniel Опубліковано: 18 жовтня 2010 Автор Поділитись Опубліковано: 18 жовтня 2010 а я вот даже не искал и не уточнял кто из брендов лучший в этом направлении.. не было ни времени не желания.. Вы вот (спасибо) немного просветили в этом вопросе! Жаль что я раньше не поднимал эту тему и не поинтересовался.. если б этот конвектор стоил 1000 зелени, то я б думаю уделил бы немноо времени и изучил бы вопрос.. а коль оно стоит менее сотки - то зашёл в магазин и купил сходу что посоветовали хотя думал изначально вообще Фламинго брать (цветной рекламный буклетик у меня на руках был).. но продавцы подсунули УФО-шку если бы мне нужно было отапливать весь дом на постоянной основе электро-конвекторами - то я бы естессно также выбирал бы качественный проверенный продукт определённого бренда.. а так, в данном случае, для временных неудобст, да и что б потом валялся по запас, вот купил такой вариант. Кстати, у меня фотик УФО 5333 (могиканин) до сих пор лежит, я им фотоотчёты стройки фоткаю покупал его когда ещё работал в инет-магазине, когда УФО-шки токо на рынок начали выходить.. за свои копеечные деньги - был отличный фотоаппарат отъездил со вмой пол Африки.. правда новую батарейку на него уже не купишь, да и слабоват он на сегодняшний день стал по качеству... поэтому весной купили Никон Л110, а УФО-шка осталась чисто для черновых фоток в экстремальных и грязных условиях Посилання на коментар Поділитися на інших сайтах More sharing options...
Рекомендовані повідомлення
Створіть акаунт або увійдіть у нього для коментування
Ви маєте бути користувачем, щоб залишити коментар
Створити акаунт
Зареєструйтеся для отримання акаунта. Це просто!
Зареєструвати акаунтУвійти
Вже зареєстровані? Увійдіть тут.
Увійти зараз