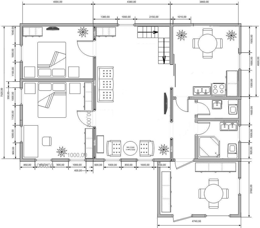
-=Vitalik=- Опубліковано: 12 грудня 2010 Поділитись Опубліковано: 12 грудня 2010 Вводная: 1. Перепланирую классический одноэтажный дом с двухскатной крышей (блокхауз-ветробарьер-базальтовый мат 50 мм-бревно грубого теса 250-300 мм + вагонка/гипсокартон), без переноса стен нарисовался вот такой вариант – ниже. (Коробка была изначально срублена в такой планировке, куплена, перевезена и собрана на новом месте); 2. Дом планировался как дача, однако получился теплый и может использоваться для круглогодичного проживания - молодая семья с двумя детьмя. Нужно предусмотреть спальню для родителей для проживание в теплое время года; 3. Планируется начать внутренние работы, на сегодня коробка накрыта, обшита, вставлены окна, настелены черновые полы, подключены коммуникации. Прошу: Совета по функциональному назначению помещений, месту установки лестницы, возможному переносу перегородок исходя из Вашего опыта Посилання на коментар Поділитися на інших сайтах More sharing options...
вторик Опубліковано: 13 грудня 2010 Поділитись Опубліковано: 13 грудня 2010 мот поменять обеденный стол с диваном местами? предварительно сместив двери. а так маемо тэ шо маемо. 1 Посилання на коментар Поділитися на інших сайтах More sharing options...
Dex-paketa Опубліковано: 13 грудня 2010 Поділитись Опубліковано: 13 грудня 2010 Мне не нравится: - винтовая лестница (все говорят, что очень неудобно) - проходная кухня (может там лучше сделать с/у поменяв их местами?) - 2 двери с гостиной в стене справа. В своем проекте я наоборот уменьшаю количество дверей чтоб было как можно больше глухих стен и углов. Там можно будет поставить стол/диван и никто проходя через гостинную не будет мешать 1 Посилання на коментар Поділитися на інших сайтах More sharing options...
-=Vitalik=- Опубліковано: 13 грудня 2010 Автор Поділитись Опубліковано: 13 грудня 2010 Благодарю за первые комментарии, принимаю идею минус одна дверь, просчитаю другой вариант лестницы (хотелось бы еще мнений по этому поводу). На входе расположил кухню, а не санузел, т.к. не хотел стесненного пространсва. Кухню планирую отделять не стационарной стеной, а легкой сдвижной полупрозарвной перегородкой, когда там будет бардак. Посилання на коментар Поділитися на інших сайтах More sharing options...
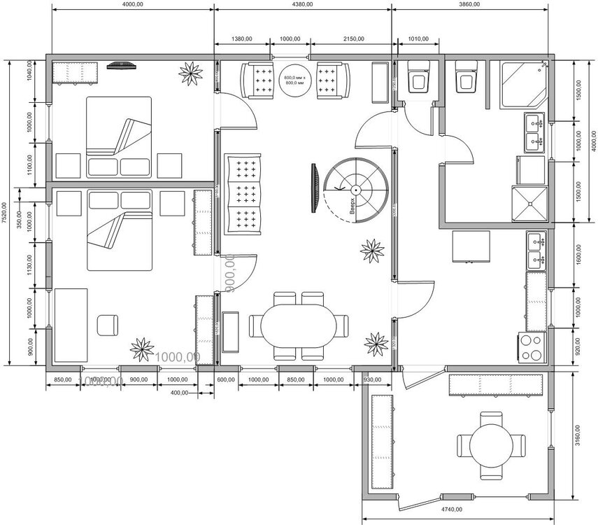
OlegArh Опубліковано: 13 грудня 2010 Поділитись Опубліковано: 13 грудня 2010 Соглашусь с "ракетой". Может как-то так? Двери особо не двигал, т.к. не знаю ситуации по стенам...Ну и малый с/узел не выделял... И еще: у моих знакомых подобная ситуация, так они ванную комнату вынесли на веранду. Площадь дома заметно увеличилась... 2 Посилання на коментар Поділитися на інших сайтах More sharing options...
ХХХХ Опубліковано: 13 грудня 2010 Поділитись Опубліковано: 13 грудня 2010 кухню и с/у однозначно менять местами! 1 Посилання на коментар Поділитися на інших сайтах More sharing options...
-=Vitalik=- Опубліковано: 13 грудня 2010 Автор Поділитись Опубліковано: 13 грудня 2010 Олигарх, Вы предложили очень интресные идеи, спасибо! Тем более, советы по ротации кухни и санузла повторяются, пожалуй, надо прислушаться. Вот думаю, нужно ли сохранять в Вашем варианте дверь между залом и кухней? Такой вариант лестницы не пройдет, так второй этаж под двухскатной крышей, если не винтовую, то придется делать два марша с разворотом на 180 градусов... займет много места. Этот вариант мне очень понравился, однако не представляю дом на 6 человек с один санузлом. Может в веранду второй вынести? Посилання на коментар Поділитися на інших сайтах More sharing options...
OlegArh Опубліковано: 13 грудня 2010 Поділитись Опубліковано: 13 грудня 2010 Вот думаю, нужно ли сохранять в Вашем варианте дверь между залом и кухней? Думаю, что обязательно. Может быть сдвижную или "японскую"... Такой вариант лестницы не пройдет, так второй этаж под двухскатной крышей, если не винтовую, то придется делать два марша с разворотом на 180 градусов... займет много места.Ну почему же? До 180 град. есть еще 120 и 90 (как здесь) ;) Этот вариант мне очень понравился, однако не представляю дом на 6 человек с один санузлом. Может в веранду второй вынести?А можно "в сад"? ;) А если ввести оплату -очереди точно не станет Ладно - шучу...Пользуйтесь 8-) Обратите внимание на внутреннее открывание дверей из зала в комнаты. Мелочь, а приятно... P.S. Повторюсь - не знаю ситуации ни по стенам (где капитальная а где перегородга) - тут сама идея. Лестницу тоже нужно смотреть - где она пройдет над кухонной дверью... P.P.S. Что за "рисовальная" прога? 1 Посилання на коментар Поділитися на інших сайтах More sharing options...
OlegArh Опубліковано: 13 грудня 2010 Поділитись Опубліковано: 13 грудня 2010 У Вас размеры мебели "от фонаря"...Душевая кабина, например, 1,4*1,4 м. Двери в туалет - 0,9 м. Чуть поправил: кабинку, горшок и умывальник - получилось компактнее. Т.е. в ванную (которой нет в наборе мебели) можно (и нужно) поставить: стиралку, сушилку, гладилку, и пр. хозяйскую нрень-ку ;) Хозяйка за это сделает поцелЮньки... 1 Посилання на коментар Поділитися на інших сайтах More sharing options...
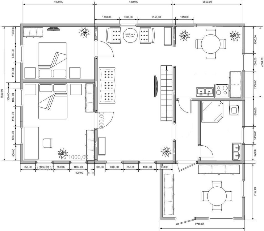
-=Vitalik=- Опубліковано: 14 грудня 2010 Автор Поділитись Опубліковано: 14 грудня 2010 Олигарх, еще раз хочу поблагодарить Вас за высказанные мысли, они мне очень помогли. Преобразовал план с их учетом и вот получился такой вариант? По предварительной прикидке такое распорожение лестницы не позволяет сохранить дверь на кухню из зала (высота 2,9, я так понимаю, итого два марша будут около 4 м). А 1,4*1,4 - это ванная, а вот в новом варианте во втором санузле есть душ. P.S. Программа MS Visio 2007, осваивается быстрее специализированых кадов, но гораздо скромнее в возможностях. Посилання на коментар Поділитися на інших сайтах More sharing options...
separett Опубліковано: 14 грудня 2010 Поділитись Опубліковано: 14 грудня 2010 1. Недостаток. Винтовая лестница. 2.Стенка, где уствновлены унитазы, внешняя - можно поставить нужники без смыва. Солидная экономия обеспечена. В вашем случае можно поставить один унитаз смывной, а в отдельной каморке - туалет безводный. Будете пользоваться безводником, а водный - для гостей, понтов и тещи. Солидная экономия обеспечена. Интересно, вы специально так проектировали? Посилання на коментар Поділитися на інших сайтах More sharing options...
-=Vitalik=- Опубліковано: 15 грудня 2010 Автор Поділитись Опубліковано: 15 грудня 2010 1. Лестница уже не винтовая, см. последнею схемку, но Ваше замечание лишний раз подтверждает правильность такой замены; 2. Туалеты уже тоже не по наружной стене. Что такое безводный туалет? Это когда нет бачка, а смыв происходит просто за счет напора воды (если хорошее давление в водопроводе)? Если так, то почему можно применять только в случае унитаз у наружной стенки? Посилання на коментар Поділитися на інших сайтах More sharing options...
Dex-paketa Опубліковано: 15 грудня 2010 Поділитись Опубліковано: 15 грудня 2010 А несущая стена так сделать не позволит? Тогда лестницу можно продолжить (сделать менее крутой) и под ней небольшую кладовку для верхних шмоток. Зашел, сразу скинул куртку, пошел дальше. Не люблю я коридоры, не могу понять, зачем они вообще нужны Как минимум я б сделал вместо двери акру (с небольшим расширением) 2 Посилання на коментар Поділитися на інших сайтах More sharing options...
OlegArh Опубліковано: 15 грудня 2010 Поділитись Опубліковано: 15 грудня 2010 (змінено) А несущая стена так сделать не позволит? Тогда лестницу можно продолжить (сделать менее крутой) и под ней небольшую кладовку для верхних шмоток. Зашел, сразу скинул куртку, пошел дальше. Не люблю я коридоры, не могу понять, зачем они вообще нужны Как минимум я б сделал вместо двери акру (с небольшим расширением) Та не-е. Арка хорошо, но "санитарную зону" принято выгораживать. Змінено 15 грудня 2010 користувачем OlegArh 1 Посилання на коментар Поділитися на інших сайтах More sharing options...
Dex-paketa Опубліковано: 15 грудня 2010 Поділитись Опубліковано: 15 грудня 2010 Что такое "санитарная зона" и от чего она там защищает? Кухня с туалетом рядом а для гостиной нужна санитарная зона? Посилання на коментар Поділитися на інших сайтах More sharing options...
OlegArh Опубліковано: 15 грудня 2010 Поділитись Опубліковано: 15 грудня 2010 Что такое "санитарная зона" и от чего она там защищает? Кухня с туалетом рядом а для гостиной нужна санитарная зона? Так я ж не против - может кому и нравится...;) Только видеть одновременно телевизор и вход "на горшок" - не очень эстетично. А уж если гости прийшли, и в зале "расселись"...... ИМХО Ну, да не мне решать 8-) Для ТС Прикинул лестницу на второй этаж - очень даже хорошо "входит и выходит" (м/ф "Винни пух") ;) Высота стен 2900. Ширина лестницы - 1000. Ступени взял не самые лучшие 180*250, так, что можно поиграть размером. Проем в стене на кухню - это зона, где можно делать двери (или арку). Проем высотой 2000 и идет от стены кухня/коридор до лестницы. Прошу заметить, что макет сделан на рельных чертежах, т.е. не от фонаря. Дверь в спальню желательно сместить, что бы не спотыкаться о лестницу... Успехов. 1 Посилання на коментар Поділитися на інших сайтах More sharing options...
-=Vitalik=- Опубліковано: 15 грудня 2010 Автор Поділитись Опубліковано: 15 грудня 2010 Огромное спасибо OlegArh, спасибо Dex-paketa! Даже и не знаю, чтобы я без Вас делал, очень помогли, а ЗД-модель вообще супер вещь, сразу намного лучше представляешь, как оно будет и что ты хочешь. Думаю, можно считать планировку оптимизированой с учетом коллективного разума, продолжу воплощение в жизнь. Зал, кухня планирую гипсокартон, все четыре спальни широкая вагонка, думаю, к весне будут фотки. P.S. Сам не люблю узкие коридоры, но все-таки соглашусь по последнему вопросу с OlegArh. P.P.S. Так как по второму этажу критики не прозвучало, считаю его образцом совершества )) Посилання на коментар Поділитися на інших сайтах More sharing options...
OlegArh Опубліковано: 15 грудня 2010 Поділитись Опубліковано: 15 грудня 2010 Так как по второму этажу критики не прозвучало, считаю его образцом совершества )) А шо? Там тоже нужно чё-то предложить? Ну, разве, что пожарный выход А вот свету в холле 2-го этажа добавить нужно, хотя бы мансардное окно... ("Свету" дети со временем сами приведут...) Клавиша ПСБ внизу справа Я не жадный - просто приятно 1 Посилання на коментар Поділитися на інших сайтах More sharing options...
shodyveletyk Опубліковано: 18 грудня 2010 Поділитись Опубліковано: 18 грудня 2010 ответ по поводу лестницы в личке Посилання на коментар Поділитися на інших сайтах More sharing options...
vickov Опубліковано: 18 грудня 2010 Поділитись Опубліковано: 18 грудня 2010 Извините, если повторился, винтовая лестница - это самый большой минус. Посилання на коментар Поділитися на інших сайтах More sharing options...
Музей Опубліковано: 22 грудня 2010 Поділитись Опубліковано: 22 грудня 2010 У Вас будет тёмная гостинная и длинная, плюс первый этаж обычно темнее второго. Учитывая наличие в ней лестницы усилиться впечатление словно Вы не в гостинной, а в прихожей. Представьте себе дизайн этой комнаты… Посилання на коментар Поділитися на інших сайтах More sharing options...
solotin Опубліковано: 22 грудня 2010 Поділитись Опубліковано: 22 грудня 2010 Туалет на первом этаже однозначно делайте 1*1,5м, чтобы коленки не упирались в дверь. Я бы сделал кухню столовую одной комнатой, большой комнатой. Винтовая лестница не удобна в эксплкатации. Рассмотрите возможность установки стандартной лестници. Если нет такой возможноси то ваш вариант неизбежен. Посилання на коментар Поділитися на інших сайтах More sharing options...
OlegArh Опубліковано: 22 грудня 2010 Поділитись Опубліковано: 22 грудня 2010 Винтовая лестница не удобна в эксплкатации. Рассмотрите возможность установки стандартной лестници. Сначала читаем...Потом уже пишем... Посилання на коментар Поділитися на інших сайтах More sharing options...
solotin Опубліковано: 23 грудня 2010 Поділитись Опубліковано: 23 грудня 2010 P.S. Программа MS Visio 2007, осваивается быстрее специализированых кадов, но гораздо скромнее в возможностях. В этом вас на 200% поддержую. Сам 1,5 года рисовал в ней. очень удобно. Ести стандартные шкафы, кровать, и тд. Посилання на коментар Поділитися на інших сайтах More sharing options...
Рекомендовані повідомлення
Створіть акаунт або увійдіть у нього для коментування
Ви маєте бути користувачем, щоб залишити коментар
Створити акаунт
Зареєструйтеся для отримання акаунта. Це просто!
Зареєструвати акаунтУвійти
Вже зареєстровані? Увійдіть тут.
Увійти зараз