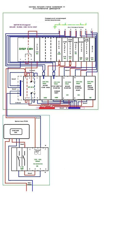
sanykrimea Опубліковано: 17 квітня 2011 Поділитись Опубліковано: 17 квітня 2011 С гребенками вот не уверен, т.к. УЗО разных производителей, наверное нормально не станут??? Могут и не стать - или в натуре испытывайте (в магазине), или линейкой считайте. Ещё, как лучше монтировать два конца ПВ1 6мм2 в один зажим контактора или автомата например, может лучше в двойной наконечник??? Лучше в двойной наконечник, можно и без - особой роли не играет. В ЗУБР например, в один контакт придется "впихивать" 2.5mm2 и 6мм2 ???? Нельзя такое "впихивать"в один зажим, и не в ЗУБР - там зажим слабый. От УЗО два проводника одинакового сечения, один к ЗУБРУ, другой - к контактору. Правильно ли подключил УЗО - ЗУБР - контактор???? Правильно Всё монтировать ПВ-1 6мм2 ??? Длительно допустимый ток для 4 мм2 - 41А, для 6 мм2 - 50А, можно любым. 1 Посилання на коментар Поділитися на інших сайтах More sharing options...
Standard Опубліковано: 18 квітня 2011 Поділитись Опубліковано: 18 квітня 2011 Сделал на бумаге монтажную схему , прошу оценить, может где улучшить можно???? или подправить ??? Схему чуть доработал, добавил УЗО. С гребенками вот не уверен, т.к. УЗО разных производителей, наверное нормально не станут??? Ещё, как лучше монтировать два конца ПВ1 6мм2 в один зажим контактора или автомата например, может лучше в двойной наконечник??? В ЗУБР например, в один контакт придется "впихивать" 2.5mm2 и 6мм2 ???? Правильно ли подключил УЗО - ЗУБР - контактор???? Всё монтировать ПВ-1 6мм2 ??? 1.Вводной автомат должен стоять до счётчика!(шкаф (щиток) учёта). В квартирном щитке должен стоять свой вводной автомат перед УЗО(противопожарным). 2.Зачем запитывать ЗУБР проводом 6□, если сила не идёт через него, Вы берёте управление на пускатель(А1,А2), на подхват катушки. Тем более ставите в фазный АВ 10А. 3. Что это за лабиринты на пускателе? У Вас на МП, 4 нормально открытых(разомкнутых) контакта: 1,3,5,7-вход, 2,4,6,8 – выход; и делать такие цепи 1-2-3-4, 5-6-7-8, зачем? Используйте любые 2,например: 3-4 L, 5-6 N. 4.Неправильная организация нулей после групповых УЗО. Нельзя соединять на общую шину нули разных УЗО. Высаживайте N прямо на диф.реле (по группам согласно фазным) 5. Лучше используйте нулевую шину после вводного УЗО, для раздачи N на 5 УЗО, ЗУБР, МП (сила +А2) 6.Не нравится : группа кухня розетки 6 кВт; нельзя развести на 2 автомата, под этим же диф.реле? Группы освещения под одним УЗО, выбьет - останетесь без света. 1 Посилання на коментар Поділитися на інших сайтах More sharing options...
zmiey Опубліковано: 18 квітня 2011 Автор Поділитись Опубліковано: 18 квітня 2011 Нельзя такое "впихивать"в один зажим, и не в ЗУБР - там зажим слабый. От УЗО два проводника одинакового сечения, один к ЗУБРУ, другой - к контактору. Тогда так??? Но все равно под контактом пускателя получается два проводника разного диаметра! Посилання на коментар Поділитися на інших сайтах More sharing options...
sanykrimea Опубліковано: 18 квітня 2011 Поділитись Опубліковано: 18 квітня 2011 Тогда так??? Но все равно под контактом пускателя получается два проводника разного диаметра! Если используете разные сечения - то в двойном наконечнике их обожмите. Если без наконечника - то сечение должно быть одинаковым - на ЗУБР и на контактор 6 мм2. Standar правильно говорит - после УЗО нельзя нули объединять. Посилання на коментар Поділитися на інших сайтах More sharing options...
zmiey Опубліковано: 18 квітня 2011 Автор Поділитись Опубліковано: 18 квітня 2011 1.Вводной автомат должен стоять до счётчика!(шкаф (щиток) учёта). В квартирном щитке должен стоять свой вводной автомат перед УЗО(противопожарным). У меня частный дом и ввод заходит прямо на опломбированный счетчик, может поставлю 40А АВ прямо на промежуточной опоре рядом с изоляторами, хотя...... ночью, в мороз карабкаться на столб, если что........:D 2.Зачем запитывать ЗУБР проводом 6□, если сила не идёт через него, Вы берёте управление на пускатель(А1,А2), на подхват катушки. Тем более ставите в фазный АВ 10А.Та не знаю, как то хочется что бы всё однотипное было, вроде как внешний вид лучше, а как лучше??? 3. Что это за лабиринты на пускателе? У Вас на МП, 4 нормально открытых(разомкнутых) контакта: 1,3,5,7-вход, 2,4,6,8 – выход; и делать такие цепи 1-2-3-4, 5-6-7-8, зачем? Используйте любые 2,например: 3-4 L, 5-6 N.Посоветовали, что бы обезопасить себя от залипания контактов, из двух последовательно соединенных- один точно сработает. 4.Неправильная организация нулей после групповых УЗО. Нельзя соединять на общую шину нули разных УЗО. Высаживайте N прямо на диф.реле (по группам согласно фазным)Переделал , так предлагаете???? Как то не очень нравится, придется соединять ноли и проводник до УЗО через ВАГО, наверное, боюсь длины кабелей не хватит 5. Лучше используйте нулевую шину после вводного УЗО, для раздачи N на 5 УЗО, ЗУБР, МП (сила +А2)Переделал, не совсем понял "на 5 УЗО" ведь на групповые УЗО, ноль должен идти с выхода контактора???? а если его запустить с шины ноль......?????? 6.Не нравится : группа кухня розетки 6 кВт; нельзя развести на 2 автомата, под этим же диф.реле? Группу кухня развести на 2-а автомата, это же нужно прокладывать второй кабель??? Или как??? Группы освещения под одним УЗО, выбьет - останетесь без света.Та ничего, мне кажется лучше так, а то везде рядом мощные и так нагрузки не с чем объединять. И еще хотел сказать, я не специалист и поэтому не все термины понимаю правильно, типа : " подхват катушки" , "Высаживайте N" поэтому если что не так понял звыняйте. А что с гребенками делать ума не приложу, не хочется убирать.....!!!! Посилання на коментар Поділитися на інших сайтах More sharing options...
zmiey Опубліковано: 19 квітня 2011 Автор Поділитись Опубліковано: 19 квітня 2011 Так что , можно воплощать???? Посилання на коментар Поділитися на інших сайтах More sharing options...
ink_stroi Опубліковано: 19 квітня 2011 Поділитись Опубліковано: 19 квітня 2011 Ваго - лишнее соединение, зачем? Посилання на коментар Поділитися на інших сайтах More sharing options...
zmiey Опубліковано: 20 квітня 2011 Автор Поділитись Опубліковано: 20 квітня 2011 Еще не знаю, может длины кабелей не хватить. Посилання на коментар Поділитися на інших сайтах More sharing options...
Standard Опубліковано: 20 квітня 2011 Поділитись Опубліковано: 20 квітня 2011 (змінено) У меня частный дом и ввод заходит прямо на опломбированный счетчик, может поставлю 40А АВ прямо на промежуточной опоре рядом с изоляторами, хотя...... ночью, в мороз карабкаться на столб, если что........:D Та не знаю, как то хочется что бы всё однотипное было, вроде как внешний вид лучше, а как лучше??? Посоветовали, что бы обезопасить себя от залипания контактов, из двух последовательно соединенных- один точно сработает. Переделал , так предлагаете???? Как то не очень нравится, придется соединять ноли и проводник до УЗО через ВАГО, наверное, боюсь длины кабелей не хватит Переделал, не совсем понял "на 5 УЗО" ведь на групповые УЗО, ноль должен идти с выхода контактора???? а если его запустить с шины ноль......?????? Группу кухня развести на 2-а автомата, это же нужно прокладывать второй кабель??? Или как??? Та ничего, мне кажется лучше так, а то везде рядом мощные и так нагрузки не с чем объединять. И еще хотел сказать, я не специалист и поэтому не все термины понимаю правильно, типа : " подхват катушки" , "Высаживайте N" поэтому если что не так понял звыняйте. А что с гребенками делать ума не приложу, не хочется убирать.....!!!! Я понял что дом, и говорил Вам как это должно быть правильно. Смысла 40А на опоре нет, в щитке 25А, он должен быстрее сработать. Смысл есть заменить 25 на 40. С ЗУБРА на МП провод 2,5 мм², зачем 6 мм² на ЗУБР(повторяю в фазном стоит АВ 10А)? Внешний вид лучше? Чем? Большим сечением провода, однотипностью. Ваш щиток, Вам решать Да, мысль понятна что от залипания контактов. Работать будет, что так , что так. Если длины не хватит, это плохо. Надо добавлять, для правильной работы УЗО. Сделал бы так: наконечник 2×2,5, обжал, сверху термоусадка. Запас провода в щитке должен быть всегда(лично использую такой алгоритм :сверху ввод в щиток в дальний угол и обратно по диагонали) Да, не прав, на УЗО только после пускателя. Увлёкся, т.к. в Вашем случае (разные по производителю УЗО) всё равно поставил бы распред.блок после МП и запитал отдельно каждое УЗО. Стараюсь не использовать перемычки из провода(вместо гребёнки) между автоматами, дифами, дифреле. Использую распред.блоки для распределения. По поводу группы кухня: разделение на 2 группы, подразумевает отдельную линию («запитку») выбранных розеток, приборов. Надеюсь Вы понимаете что может возникнуть ситуация с «выбиванием» автомата, и контроль ситуации- это не включай, не есть хорошо. Повторюсь: Ваш щиток(Ваша электроустановка(дом)), Вам решать .Это относится и к освещению. Змінено 20 квітня 2011 користувачем Standard Посилання на коментар Поділитися на інших сайтах More sharing options...
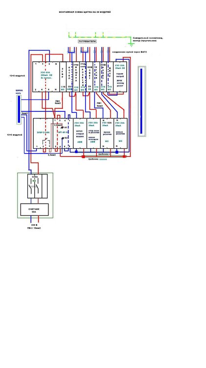
zmiey Опубліковано: 30 квітня 2011 Автор Поділитись Опубліковано: 30 квітня 2011 Переделал монтажную схему, вынес УЗО в другой щиток, прорисовал трассы прокладки проводов. Что скажите господа??? Кажется учел всё!!! Посилання на коментар Поділитися на інших сайтах More sharing options...
Наблюдатель Опубліковано: 30 квітня 2011 Поділитись Опубліковано: 30 квітня 2011 Кажется учел всё!!!В монтажную схему не вникал, а по электрической схеме, для лучшего согласования УЗО с вышестоящим автоматом и соответственно минимизации последствий при КЗ внутри УЗО, нужно хотя бы автоматы после групповых УЗО убрать и поставить их перед групповыми УЗО. Автомат на питание схемы ЗУБРА и обмотки контактора нужно ставить на 0,5А, что, как минимум при межвитковом замыкании в обмотке контактора, вероятность которого более высока в одно-обмоточных контакторах, минимизирует вероятность пожара! 1 Посилання на коментар Поділитися на інших сайтах More sharing options...
zmiey Опубліковано: 1 травня 2011 Автор Поділитись Опубліковано: 1 травня 2011 (змінено) В монтажную схему не вникал, а по электрической схеме, для лучшего согласования УЗО с вышестоящим автоматом и соответственно минимизации последствий при КЗ внутри УЗО, нужно хотя бы автоматы после групповых УЗО убрать и поставить их перед групповыми УЗО. Если я правильно понял, это относится к тем группам, где сейчас стоит один автомат, после группового УЗО??? Надо поменять их местами???? Может можно после контактора, добавить ещё один автомат на 16А или 20А для защиты всех групповых УЗО?????? Не хочется менять монтажную схему, самому нравится как всё стало. Автомат на питание схемы ЗУБРА и обмотки контактора нужно ставить на 0,5А, что, как минимум при межвитковом замыкании в обмотке контактора, вероятность которого более высока в одно-обмоточных контакторах, минимизирует вероятность пожара!Может лучше, держатель с плавким предохранителем??? Хотя не знаю, в паспорте на ЗУБР, они рисуют автомат на 40А!!!!!, интересно почему??? Змінено 1 травня 2011 користувачем zmiey Посилання на коментар Поділитися на інших сайтах More sharing options...
sanykrimea Опубліковано: 1 травня 2011 Поділитись Опубліковано: 1 травня 2011 (змінено) Надо поменять их местами???? Не надо ничего менять - вероятность КЗ в УЗО или контакторе и возникновение тяжёлых последствий менее допустимой для любого элемента электропроводки. Они (УЗО и контакторы) так и проектируются - их конструкции допускают не более 1 возгорания (электроустановки или её части) на миллион электропроводок в год, также как и автоматы, РН.счётчики и пр. Напр.: (ссылка устарела) 4.3. Конструкция УЗО-Д должна обеспечивать его пожарную безопасность и работоспособность как в нормальном режиме работы, так и при возникновении возможных неисправностей и нарушении правил эксплуатации. При этом вероятность возникновения пожара в (от) УЗО-Д не должна превышать 10 в -6 степени в год. Хотя не знаю, в паспорте на ЗУБР, они рисуют автомат на 40А!!!!!, интересно почему??? Автомат на РН 10А можно выкинуть из схемы вообще - питание схемы РН происходит от контактной группы РН, т.е АВ10А ограничивает ток нагрузки до 10А. В паспорте указан номинал АВ для защиты именно контактной группы. В Вашей схеме контакты РН защищает вводной АВ 25А Змінено 1 травня 2011 користувачем sanykrimea 1 Посилання на коментар Поділитися на інших сайтах More sharing options...
Наблюдатель Опубліковано: 1 травня 2011 Поділитись Опубліковано: 1 травня 2011 Если я правильно понял' date=' это относится к тем группам, где сейчас стоит [i']один [/i]автомат, после группового УЗО???Да, правильно поняли, это относится к групповым УЗО после которых стоит один автомат, а не к обще групповым УЗО после которых стоит 2-ва или более автоматов. Надо поменять их местами????Да' date=' надо просто поменять их местами, чтоб групповой автомат стоял перед групповым УЗО.[/font'] Может можно после контактора' date=' добавить ещё один автомат на 16А или 20А для защиты всех групповых УЗО??????[/quote']Принцип согласования УЗО с выше стоящим автоматом для минимизации последствий КЗ внутри УЗО вроде поняли правильно, но переусердствовали с реализацией. Проще и лучше просто вводной автомат поменять на 16А или 20А, но оба варианта не приемлемы, так как зажимается мощность ввода. При бюджетном улучшении параметра согласования обще групповых УЗО с вышестоящим автоматом лучше поставить один автомат 1Р 20А перед обще групповыми УЗО. Не хочется менять монтажную схему' date=' самому нравится как всё стало.[/quote']Ваше право отдать предпочтение красоте на схеме или удобству монтажа в ущерб безопасности. Может лучше' date=' держатель с плавким предохранителем???[/quote']Нет, плавкий предохранитель лучше только в случаях более высокой вероятности возникновения 2-х и более кратной перегрузки, так как сработает быстрей, чем автомат. При межвитковом замыкании катушки контактора перегрузка в начале очень долго нарастает, по мере поочередного пробоя изоляции витков из-за нагрева вызванного первым межвитковым замыканием. При КЗ плавкий предохранитель отработает медленней, чем автомат и при слабой перегрузке в 1,5 раза скорей всего вообще не сработает. С автоматом лучше оперативность в обслуживании, поиске неисправности и не нужно держать запасные плавкие предохранители. Хотя не знаю' date=' в паспорте на ЗУБР, они рисуют автомат на 40А!!!!!, интересно почему???[/quote']Для защиты контактов ЗУБРА от сверх токов, когда нагрузку коммутирует сам ЗУБР. 1 Посилання на коментар Поділитися на інших сайтах More sharing options...
zmiey Опубліковано: 3 травня 2011 Автор Поділитись Опубліковано: 3 травня 2011 При бюджетном улучшении параметра согласования обще групповых УЗО с вышестоящим автоматом лучше поставить один автомат 1Р 20А перед обще групповыми УЗО.Тогда вот так получается... Посилання на коментар Поділитися на інших сайтах More sharing options...
sanykrimea Опубліковано: 4 травня 2011 Поділитись Опубліковано: 4 травня 2011 Тю! Я ж говорил - скоро будет защита автоматов автоматами:D Зачем Вам лишний автомат? У Вас уже стоит вводной автомат на 25А, последовательно с ним ещё и на 20А вставить для защиты УЗО?:D Посилання на коментар Поділитися на інших сайтах More sharing options...
zmiey Опубліковано: 4 травня 2011 Автор Поділитись Опубліковано: 4 травня 2011 Зачем Вам лишний автомат? У Вас уже стоит вводной автомат на 25А, последовательно с ним ещё и на 20А вставить для защиты УЗО?:D Блин Клинтон!!!!!!!!.......Голова кругом............. Да вроде бы же для защиты групповых УЗО тех, что на 25А. Хуже ж не будет, и место пока есть.... Посилання на коментар Поділитися на інших сайтах More sharing options...
sanykrimea Опубліковано: 4 травня 2011 Поділитись Опубліковано: 4 травня 2011 Хуже не будет. Лучше будет если щиток со счётчиком и вводным автоматом на улице, а групповой щиток (с УЗО и пр.) в доме. Тогда, возможно, при установке в групповом щитке автомата 20 А с характеристикой В зимой первым будет отключаться он, а не автомат на улице. А просто дублировать работу вводного автомата не стоит - деньги на ветер. P.S. Ещё и мощность добровольно себе на 1 кВт снизили :D Посилання на коментар Поділитися на інших сайтах More sharing options...
zmiey Опубліковано: 4 травня 2011 Автор Поділитись Опубліковано: 4 травня 2011 Что ставить на вводе, ещё не могу определиться... Я так понимаю, что если вводной автомат на 40А, тогда есть смысл ставить 20А перед групповыми УЗО, а если на вводе 25А, то нет??? Посилання на коментар Поділитися на інших сайтах More sharing options...
sanykrimea Опубліковано: 4 травня 2011 Поділитись Опубліковано: 4 травня 2011 В любом случае нет абсолютно никакого смысла ставить перед УЗО автоматы - они защищены нижестоящими АВ. Посилання на коментар Поділитися на інших сайтах More sharing options...
zmiey Опубліковано: 4 травня 2011 Автор Поділитись Опубліковано: 4 травня 2011 Спасибо, есть над чем подумать... Посилання на коментар Поділитися на інших сайтах More sharing options...
Наблюдатель Опубліковано: 5 травня 2011 Поділитись Опубліковано: 5 травня 2011 (змінено) Тогда вот так получается...По Вашему, как Вы хотели поставить автомат 16 или 20А после контактора, да, получается так. Но я писал, что как минимум так ставить это переусердствование, бессмысленный лишний автомат. Для достижения того же эффекта лучше просто уменьшить номинал вводного автомата до 20А. Так же я писал, что оба этих варианта, Ваш после контактора или мой, просто уменьшение номинала вводного автомата, для согласования УЗО с вышестоящим автоматом, не приемлемы, так как зажимается мощность ввода! Вы не внимательны, я не писал, что нужно 1-ин автомат 1Р 20А поставить перед групповыми и обще групповыми УЗО! Я писал, что нужно 1-ин автомат 1Р 20А поставить перед обще групповыми УЗО, а перед этим писал, что как минимум нужно групповые автоматы поставить перед групповыми УЗО! Да вроде бы же для защиты групповых УЗО тех, что на 25А.УЗО должно согласовываться с вышестоящим автоматом не только для защиты УЗО от сверх токов, а для защиты питающей сети и минимизации последствий, как минимум в щите, в случае КЗ внутри УЗО, вероятность которого обусловлена конструктивным особенностям УЗО, особенно если УЗО поддельное! Автомат после УЗО вообще ни как не защищает проводку в щите и питающую сеть от КЗ внутри УЗО! Что ставить на вводе, ещё не могу определиться...При текущем ответвлении со скрутками и вводе, вводной автомат не более 25А и соответственно контроль одновременно включенных мощных электроприборов, чтоб не вырубило вводной! Я так понимаю, что если вводной автомат на 40А, тогда есть смысл ставить 20А перед групповыми УЗО, а если на вводе 25А, то нет???Нет, при УЗО 25А вышестоящий автомат должен быть ≤20А! Змінено 5 травня 2011 користувачем Наблюдатель Посилання на коментар Поділитися на інших сайтах More sharing options...
ink_stroi Опубліковано: 6 травня 2011 Поділитись Опубліковано: 6 травня 2011 Для достижения того же эффекта лучше просто уменьшить номинал вводного автомата до 20А. Я писал, что нужно 1-ин автомат 1Р 20А поставить перед обще групповыми УЗО, а перед этим писал, что как минимум нужно групповые автоматы поставить перед групповыми УЗО! Нет, при УЗО 25А вышестоящий автомат должен быть ≤20А! Так же я писал, что оба этих варианта, Ваш после контактора или мой, просто уменьшение номинала вводного автомата, для согласования УЗО с вышестоящим автоматом, не приемлемы, так как зажимается мощность ввода!Молодчина, вот жгет , давай еще! ТС вам пора уже остановиться.;) оба этих варианта... не приемлемы, так как зажимается мощность ввода! Посилання на коментар Поділитися на інших сайтах More sharing options...
zmiey Опубліковано: 6 травня 2011 Автор Поділитись Опубліковано: 6 травня 2011 Сообщение от Наблюдатель Автомат после УЗО вообще ни как не защищает проводку в щите и питающую сеть от КЗ внутри УЗО! А как же вводной автомат на 25А??? Посилання на коментар Поділитися на інших сайтах More sharing options...
ink_stroi Опубліковано: 6 травня 2011 Поділитись Опубліковано: 6 травня 2011 А как же вводной автомат на 25А??? Вынос неокрепшего мозга, не более. АВ на вводе на то и стоит, чтобы Вы не превысили выделенную Вам мощность. А случайно заблудшая к Вам КоЗа в реале это достаточно прогнозируемая ситуёвина.. Посилання на коментар Поділитися на інших сайтах More sharing options...
Рекомендовані повідомлення
Створіть акаунт або увійдіть у нього для коментування
Ви маєте бути користувачем, щоб залишити коментар
Створити акаунт
Зареєструйтеся для отримання акаунта. Це просто!
Зареєструвати акаунтУвійти
Вже зареєстровані? Увійдіть тут.
Увійти зараз