Viorel Опубліковано: 2 липня 2011 Поділитись Опубліковано: 2 липня 2011 Интересная норма. Откуда проект? Выложите его сюда. Суммарная проектная нагрузка увеличится не в 3 раза а на 10% (с учётом всех нагрузок) Это вопрос уж точно не кровельщикам надо задавать. Проект Минима-102.Там армопояс по ФБС, если фундамент из ФБС. Загружу позже. А почему суммарная нагрузка увеличится только на 10 %, если 1м.кв ППЧ раза в три тяжелее 1м.кв.МЧ? Посилання на коментар Поділитися на інших сайтах More sharing options...
VillaDeLux (ex Акро) Опубліковано: 2 липня 2011 Поділитись Опубліковано: 2 липня 2011 Проект Минима-102.Там армопояс по ФБС, если фундамент из ФБС. Загружу позже. Давайте разрезы и узлы. А почему суммарная нагрузка увеличится только на 10 %, если 1м.кв ППЧ раза в три тяжелее 1м.кв.МЧ? Задайте вопрос в этой теме: Расчёт несущей способности стропильной системы. Правда и мифы о весе черепицы. там я вам и отвечу. 1 Посилання на коментар Поділитися на інших сайтах More sharing options...
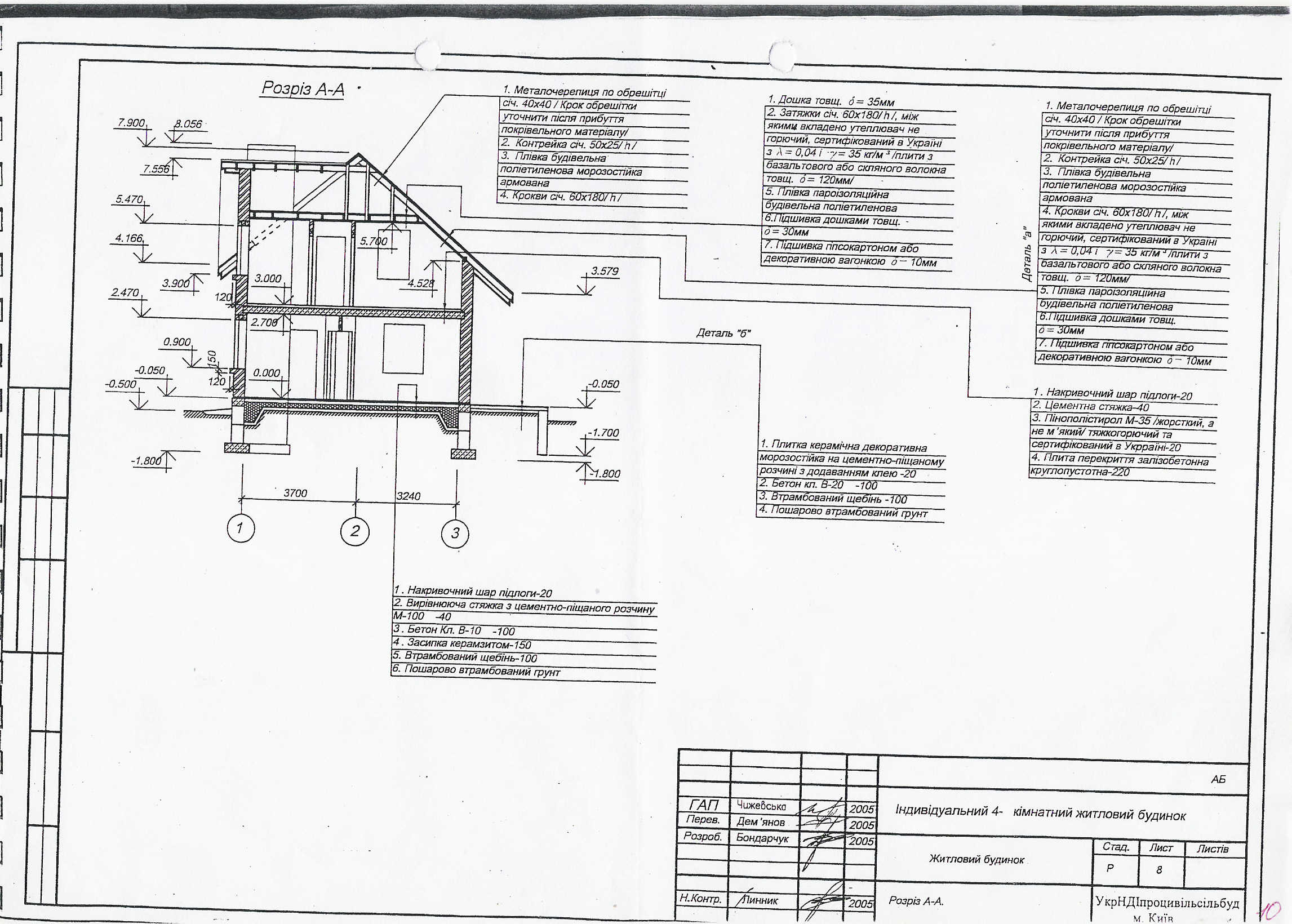
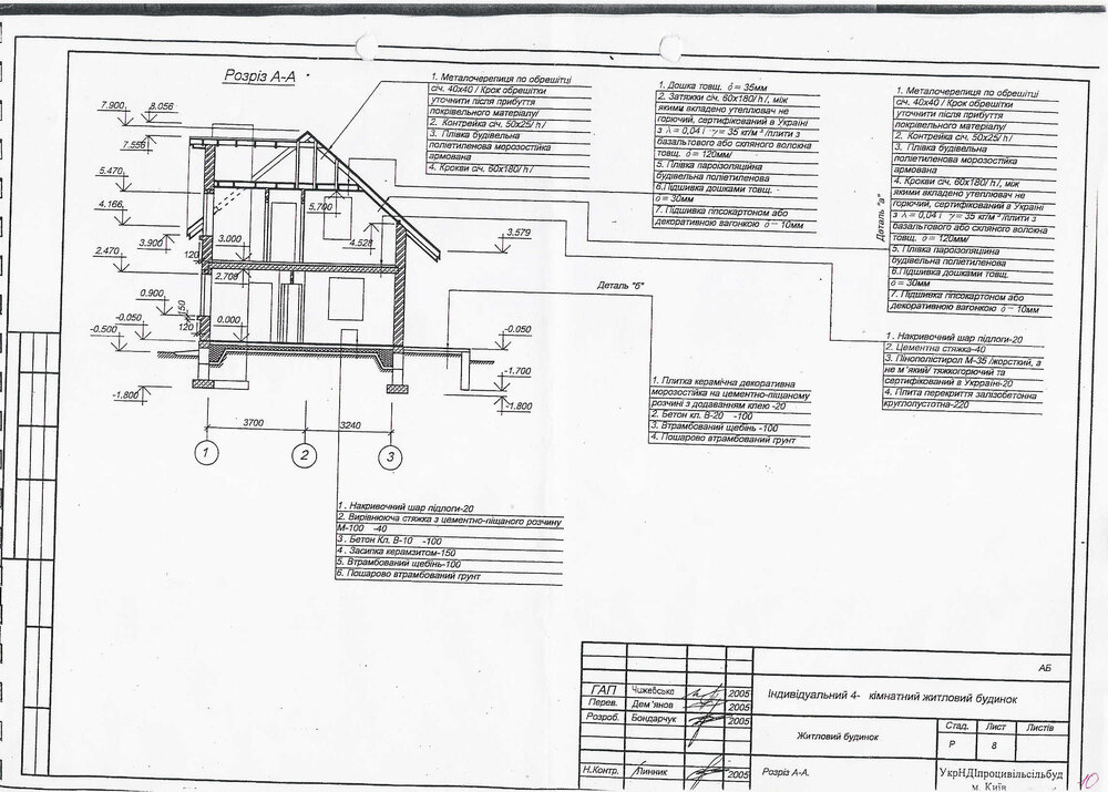
Viorel Опубліковано: 2 липня 2011 Поділитись Опубліковано: 2 липня 2011 Давайте разрезы и узлы. Даю разрез кровли. Посилання на коментар Поділитися на інших сайтах More sharing options...
Fandorin Опубліковано: 4 липня 2011 Поділитись Опубліковано: 4 липня 2011 1) У меня каркасники, вес ППЧ - 22 кг, вес ЦПЧ - 40 кг, стропилка под них разная 2) Самый главный минус ППЧ - выгорание, по отзывам, именно Житомирская этого главного минуса не имеет + мне хочется перепада цветов на крыше, это очень в темку в мой дизайн 3) Второй минус ППЧ - "разваливается", по отзывам, Житомирская и этого минуса не имеет Я видела это ППЧ после 6-ти лет эксплуатации - к внешнему виду не имею никаких претензий, мне оч понравилось Пообщался с производителем - решил брать. На участке проводили краш тест, топтались, бросали на бетонное перекрытие, поджигали. Итог: после 4- го броска с ускорением, появилась трещина(но кидали реально сильно, так что считаю - зачет) поджигание (газета зажигалась на и под куском) там где были мелкие заусеницы начало гореть потом затухло. Посилання на коментар Поділитися на інших сайтах More sharing options...
VillaDeLux (ex Акро) Опубліковано: 4 липня 2011 Поділитись Опубліковано: 4 липня 2011 На участке проводили краш тест, топтались, бросали на бетонное перекрытие, поджигали П_п_ц. Покрышки на автомобиль вы тоже с кувалдой и горелкой ходите выбирать? Всё вышеперечисленное, неестественные воздействия на материал. Причём, кратковременные. Реально, за весь период эксплуатации подобные воздействия ваша черепица не будет воспринимать. Ультрафиолет - вот губительное воздействие на полиэтилен! Особенно активно протекает окислительная деструкция полиэтилена под воздействием ультрафиолетовых лучей. Полиэтилен обладает химической стойкостью к кислотам, щелочам, растворам солей и органическим растворителям. Однако полиэтилен под воздействием ультрафиолетовых лучей становится хрупким и теряет свою прочность. Главным врагом полиэтилена в процессе его эксплуатации являются солнечные лучи, точнее их ультрафиолетовый спектр. Под воздействием ультрафиолета структурное строение молекул претерпевает некоторые негативные изменения, в силу которых дальнейшая устойчивость материала к ультрафиолетовому излучению, входящему в состав солнечного света, значительно снижается. Несмотря на то, что вторичный полиэтилен сохраняет все физико-механические свойства первичного полиэтилена, необходимо учитывать, что данный материал в процессе эксплуатации (своей первой жизни) уже подвергался воздействию прямых солнечных лучей, в частности ультрафиолета. Вот эту черепицу тоже несколько лет назад бросали на бетон: Вы думаете что вы счастливчик и вас пронесёт мимо лиха? Fandorin, одумайтесь. Прислушайтесь в мнению опытных мастеров а не людей которые хотят на вас заработать. 2 Посилання на коментар Поділитися на інших сайтах More sharing options...
*Alexey* Опубліковано: 4 липня 2011 Поділитись Опубліковано: 4 липня 2011 Вот эту черепицу тоже несколько лет назад бросали на бетон: [ATTACH]119908[/ATTACH] Вот продолжение: 2 Посилання на коментар Поділитися на інших сайтах More sharing options...
Viorel Опубліковано: 5 липня 2011 Поділитись Опубліковано: 5 липня 2011 Давайте разрезы и узлы. Для форумчанина АКРО даю разрезы дома. Посилання на коментар Поділитися на інших сайтах More sharing options...
VillaDeLux (ex Акро) Опубліковано: 5 липня 2011 Поділитись Опубліковано: 5 липня 2011 Для форумчанина АКРО даю разрезы дома. данный чертёж общий. по логике вещей, должны быть ещё укрупнённые узлы пока что пояса не видно. Посилання на коментар Поділитися на інших сайтах More sharing options...
Viorel Опубліковано: 5 липня 2011 Поділитись Опубліковано: 5 липня 2011 данный чертёж общий. по логике вещей, должны быть ещё укрупнённые узлы пока что пояса не видно. Там между 1-м и 2-м этажом точно нет армопояса. Сегодня звонил проектантам, они ответили, что пояс не надо делать, так как дом маленький, а стены из кирпича и толщиной 40 см. Мое желание положить кладочную сетку в кладку кирпича прокоментировали пословицей "Кашу маслом не испортишь". Одним словом, армопояс я делать не буду. А сеткой пройдусь и не раз. Посилання на коментар Поділитися на інших сайтах More sharing options...
Andre_Pr. Опубліковано: 6 липня 2011 Поділитись Опубліковано: 6 липня 2011 Может лучше не сеткой, а арматурой? Штучки три 10 или 12 мм параллельно по всему периметру. А через ряд-другой кирпича повторить. Если сравнивать с сеткой, думаю как Вологодское масло с бутербродным (кто помнит, тот поймет). Я себе, правда, под плиты перекрытия вообще 16 мм пристроил, заодно и легли ровнехонько. Посилання на коментар Поділитися на інших сайтах More sharing options...
Viorel Опубліковано: 7 липня 2011 Поділитись Опубліковано: 7 липня 2011 Может лучше не сеткой, а арматурой? Штучки три 10 или 12 мм параллельно по всему периметру. А через ряд-другой кирпича повторить. Если сравнивать с сеткой, думаю как Вологодское масло с бутербродным (кто помнит, тот поймет). Я себе, правда, под плиты перекрытия вообще 16 мм пристроил, заодно и легли ровнехонько. Под плиты ПК не желательно класть арматуру. Вот только вчера задавал по этому поводу вопросы. www.stroimdom.com.ua/forum/showthread.php?t=69336 Посилання на коментар Поділитися на інших сайтах More sharing options...
immigrant Опубліковано: 8 липня 2011 Поділитись Опубліковано: 8 липня 2011 Были вчера в "Олимпик-Парке". Помните совесткий фильм "Остров погибших кораблей"? Так вот - это "городок обиженных домов"... Все фото выкладывать не буду. Только несколько шедевров. Большинство накрыто ППЧ. Посилання на коментар Поділитися на інших сайтах More sharing options...
Danilass Опубліковано: 8 липня 2011 Поділитись Опубліковано: 8 липня 2011 Были вчера в "Олимпик-Парке". Помните совесткий фильм "Остров погибших кораблей"? Так вот - это "городок обиженных домов"... Все фото выкладывать не буду. Только несколько шедевров. Большинство накрыто ППЧ. Это на искуственно-состаренная или "упс...."? 1 Посилання на коментар Поділитися на інших сайтах More sharing options...
*Alexey* Опубліковано: 8 липня 2011 Поділитись Опубліковано: 8 липня 2011 Это на искуственно-состаренная или "упс...."? Это КОНКРЕТНЫЙ и весьма предсказуемый У П С... ЗЫ: а искусственно состаривать ППЧ нет смысла. Она и так очень быстро состариться ;) Посилання на коментар Поділитися на інших сайтах More sharing options...
Viorel Опубліковано: 8 липня 2011 Поділитись Опубліковано: 8 липня 2011 Я все-таки отказался от ППЧ. Но в инете можно найти и фотки МЧ с облезшим покрытием. Посилання на коментар Поділитися на інших сайтах More sharing options...
*Alexey* Опубліковано: 8 липня 2011 Поділитись Опубліковано: 8 липня 2011 Я все-таки отказался от ППЧ. Но в инете можно найти и фотки МЧ с облезшим покрытием.Верное решение. Да и металл пролежит дольше . Даже если и облезет, на его водонепроницаемость это никак не повлияет.... Посилання на коментар Поділитися на інших сайтах More sharing options...
Danilass Опубліковано: 8 липня 2011 Поділитись Опубліковано: 8 липня 2011 Я все-таки отказался от ППЧ. Но в инете можно найти и фотки МЧ с облезшим покрытием. Ну дык хотели же "подэшэвшэ"... Посилання на коментар Поділитися на інших сайтах More sharing options...
Viorel Опубліковано: 8 липня 2011 Поділитись Опубліковано: 8 липня 2011 Ну дык хотели же "подэшэвшэ"... Не подешевле, а подолговечнее. Посилання на коментар Поділитися на інших сайтах More sharing options...
VillaDeLux (ex Акро) Опубліковано: 8 липня 2011 Поділитись Опубліковано: 8 липня 2011 Я все-таки отказался от ППЧ. Но в инете можно найти и фотки МЧ с облезшим покрытием. Но не смотря на это она всё равно не протекает. Да, некрасивая, да облезлая но кровля. Которую, можно покрасить но менять не обязательно. А ППЧ к тому времени рассыпается и требует срочного, капитального ремонта кровли к которому не все готовы. 1 Посилання на коментар Поділитися на інших сайтах More sharing options...
*Alexey* Опубліковано: 8 липня 2011 Поділитись Опубліковано: 8 липня 2011 Не подешевле, а подолговечнее. Так немецкая керамика будет самое ОНО... ;) Долговечнааая!! :-D Посилання на коментар Поділитися на інших сайтах More sharing options...
Danilass Опубліковано: 8 липня 2011 Поділитись Опубліковано: 8 липня 2011 Не подешевле, а подолговечнее. Качественная МЧ не облазит. Посилання на коментар Поділитися на інших сайтах More sharing options...
Viorel Опубліковано: 8 липня 2011 Поділитись Опубліковано: 8 липня 2011 Качественная МЧ не облазит. Качественная ППЧ тоже не выгорает. Хотя всему есть свой час.. Посилання на коментар Поділитися на інших сайтах More sharing options...
Danilass Опубліковано: 8 липня 2011 Поділитись Опубліковано: 8 липня 2011 Качественная ППЧ тоже не выгорает. Хотя всему есть свой час.. может быть, но смущает ее горючесть Посилання на коментар Поділитися на інших сайтах More sharing options...
VillaDeLux (ex Акро) Опубліковано: 8 липня 2011 Поділитись Опубліковано: 8 липня 2011 Качественная ППЧ тоже не выгорает. Нет тому достоверных подтверждений. Примеры с 3-5 лет не вариант. Металл Руукки не облазит как минимум 12 лет. Есть тому ряд достоверных подтверждений. Посилання на коментар Поділитися на інших сайтах More sharing options...
immigrant Опубліковано: 8 липня 2011 Поділитись Опубліковано: 8 липня 2011 ...А ППЧ к тому времени рассыпается и требует срочного, капитального ремонта кровли к которому не все готовы. Вот вам и фотофакт! Не просто облезла, а рассыпалась!... Посилання на коментар Поділитися на інших сайтах More sharing options...
Рекомендовані повідомлення
Створіть акаунт або увійдіть у нього для коментування
Ви маєте бути користувачем, щоб залишити коментар
Створити акаунт
Зареєструйтеся для отримання акаунта. Це просто!
Зареєструвати акаунтУвійти
Вже зареєстровані? Увійдіть тут.
Увійти зараз